Projekty nawet 500 zł taniej ❄️

Koniec oferty za:

00godz.

00min.

00sek.

Sprawdź

Projekt domu Dom przy Przyjaznej 7 KRK1202

Dodano!
Dodano!

Warstwy

Warstwy

Rzut parteru

Powierzchnia (m²)
Tooltip
Powierzchnia pomieszczenia
to ta, z której faktycznie możesz korzystać – skosy i niskie części poddasza są liczone częściowo lub wcale.
  1. 100% dla wysokości powyżej 2,2 m,
  2. 50% dla wysokości 1,4–2,2 m,
  3. nie liczymy poniżej 1,4 m.

Powierzchnia podłogi
Liczymy po obrysie pomieszczenia, bez względu na jego wysokość/skosy. Jeśli nie ma skosów to powierzchnia podłogi i pomieszczenia jest taka sama.
pomieszczenia i podłogi
podłogi
1. Wiatrołap
2,40
2. Kotłownia
6
3. Garaż jednostanowiskowy
21,80
4. Łazienka
3,80
5. Hall
2,10
6. Pokój
9,20
7. Pokój dzienny
27,10
8. Kuchnia
8,20
Razem
80,60
80,60
Powierzchnia (m²)
Tooltip
Powierzchnia pomieszczenia
to ta, z której faktycznie możesz korzystać – skosy i niskie części poddasza są liczone częściowo lub wcale.
  1. 100% dla wysokości powyżej 2,2 m,
  2. 50% dla wysokości 1,4–2,2 m,
  3. nie liczymy poniżej 1,4 m.

Powierzchnia podłogi
Liczymy po obrysie pomieszczenia, bez względu na jego wysokość/skosy. Jeśli nie ma skosów to powierzchnia podłogi i pomieszczenia jest taka sama.
pomieszczenia
podłogi
1. Korytarz + schody
8
8
2. Łazienka
5,80
7,20
3. Pokój
15,30
20,30
4. Pokój
12,20
14,40
5. Pokój
14,90
16,90
6. Pokój
9,70
11,70
Razem
65,90
78,50

    Usytuowanie na działce

    Czy ten projekt pasuje na
    Twoją działkę?

    Chętnie to sprawdzimy!

    Dowiedz się:

    • czy zmieści się na niej wybrany przez Ciebie dom
    • jakie parametry musi spełniać dom według miejscowego planu zagospodarowania lub warunków zabudowy (np. kąt nachylenia i typ dachu, liczba kondygnacji itp.
    • jakie inne projekty pasują na Twoją działkę – znajdziemy je dla Ciebie!

Pow. użytkowa

118,70 m²

Pokoje

5

Łazienki i WC

2

Garaż

1

Min. szer. i dł. działki

21,05 x 17 m

Kąt dachu

40°

Konstrukcja

Murowana
więcej

Dom przy Przyjaznej 7 - KRK1202

ikona 118,70 m²
Powierzchnia użytkowa
ikona5
Pokoje (bez salonu)
ikona 2
Łazienki (z toaletami)
ikona 1
Liczba stanowisk garażowych
(z wiatą garażową)
ikona
Konstrukcja: Murowana

Projekt został
wycofany z oferty

W razie pytań prosimy o kontakt
z Centrum Obsługi Klienta
Konsultant Masz pytania?
Zadzwoń
71 715 20 60

pon.-pt. 8-21, sob. 9-17

Parter - 80,60 m²

Parter projektu Dom przy Przyjaznej 7

Zapytaj, co możesz zmienić

Powierzchnia (m²)
Tooltip
Powierzchnia pomieszczenia
to ta, z której faktycznie możesz korzystać – skosy i niskie części poddasza są liczone częściowo lub wcale.
  1. 100% dla wysokości powyżej 2,2 m,
  2. 50% dla wysokości 1,4–2,2 m,
  3. nie liczymy poniżej 1,4 m.

Powierzchnia podłogi
Liczymy po obrysie pomieszczenia, bez względu na jego wysokość/skosy. Jeśli nie ma skosów to powierzchnia podłogi i pomieszczenia jest taka sama.
pomieszczenia i podłogi
podłogi
1. Wiatrołap
2,40
2. Kotłownia
6
3. Garaż jednostanowiskowy
21,80
4. Łazienka
3,80
5. Hall
2,10
6. Pokój
9,20
7. Pokój dzienny
27,10
8. Kuchnia
8,20
Razem
80,60
80,60

Poddasze - 65,90 m²

Poddasze projektu Dom przy Przyjaznej 7

Zapytaj, co możesz zmienić

Powierzchnia (m²)
Tooltip
Powierzchnia pomieszczenia
to ta, z której faktycznie możesz korzystać – skosy i niskie części poddasza są liczone częściowo lub wcale.
  1. 100% dla wysokości powyżej 2,2 m,
  2. 50% dla wysokości 1,4–2,2 m,
  3. nie liczymy poniżej 1,4 m.

Powierzchnia podłogi
Liczymy po obrysie pomieszczenia, bez względu na jego wysokość/skosy. Jeśli nie ma skosów to powierzchnia podłogi i pomieszczenia jest taka sama.
pomieszczenia
podłogi
1. Korytarz + schody
8
8
2. Łazienka
5,80
7,20
3. Pokój
15,30
20,30
4. Pokój
12,20
14,40
5. Pokój
14,90
16,90
6. Pokój
9,70
11,70
Razem
65,90
78,50

Warianty projektu (5)

PROMOCJA
Projekt domu Dom przy Przyjaznej
Dom przy Przyjaznej
Dodano!
Dodano!
101,87 m²
4
2
0

3 190 zł

3 690 zł

Tooltip

Cena regularna

3 090 zł najniższa cena
Tooltip

Najniższa cena z 30 dni
przed obniżką

PROMOCJA
Projekt domu Dom przy Przyjaznej 16
Dom przy Przyjaznej 16
Dodano!
Dodano!
158,67 m²
5
3
2

3 490 zł

3 990 zł

Tooltip

Cena regularna

3 390 zł najniższa cena
Tooltip

Najniższa cena z 30 dni
przed obniżką

PROMOCJA
Projekt domu Dom przy Przyjaznej 2
Dom przy Przyjaznej 2
Dodano!
Dodano!
125 m²
5
3
2

3 390 zł

3 890 zł

Tooltip

Cena regularna

3 290 zł najniższa cena
Tooltip

Najniższa cena z 30 dni
przed obniżką

PROMOCJA
Projekt domu Dom przy Przyjaznej 3
Dom przy Przyjaznej 3
Dodano!
Dodano!
101,86 m²
4
2
0

3 390 zł

3 890 zł

Tooltip

Cena regularna

3 290 zł najniższa cena
Tooltip

Najniższa cena z 30 dni
przed obniżką

PROMOCJA
Projekt domu Dom przy Przyjaznej 11
Dom przy Przyjaznej 11
Dodano!
Dodano!
158,67 m²
5
3
2

3 490 zł

3 990 zł

Tooltip

Cena regularna

3 390 zł najniższa cena
Tooltip

Najniższa cena z 30 dni
przed obniżką

Podobne projekty (5728)

Zobacz wszystkie
NIŻSZA CENA❄️
Zdjęcie 1 projektu BW-27 wariant 4 JGC1252
BW-27 wariant 4
Dodano!
Dodano!
123 m²
4
2
0

3 670 zł

3 770 zł

Tooltip

Cena regularna

3 570 zł najniższa cena
Tooltip

Najniższa cena z 30 dni
przed obniżką

NIŻSZA CENA❄️
Zdjęcie 1 projektu HomeKoncept 66 A KRX1090
HomeKoncept 66 A
Dodano!
Dodano!
103,89 m²
3
2
0

5 390 zł

5 890 zł

Tooltip

Cena regularna

5 006 zł najniższa cena
Tooltip

Najniższa cena z 30 dni
przed obniżką

NIŻSZA CENA❄️
Zdjęcie 1 projektu Dom na Sosnowej WBF1002
Dom na Sosnowej
Dodano!
Dodano!
113,08 m²
4
2
1

3 790 zł

4 290 zł

Tooltip

Cena regularna

3 590 zł najniższa cena
Tooltip

Najniższa cena z 30 dni
przed obniżką

NIŻSZA CENA❄️
Zdjęcie 1 projektu A-150 Dom jodłowa szkieletowy BBD1278
115,40 m²
5
2
0

3 799 zł

4 099 zł

Tooltip

Cena regularna

3 599 zł najniższa cena
Tooltip

Najniższa cena z 30 dni
przed obniżką

NIŻSZA CENA❄️
Zdjęcie 1 projektu Anatol (1632) KRD2777
Anatol (1632)
Dodano!
Dodano!
119,10 m²
5
2
1

4 140 zł

4 490 zł

Tooltip

Cena regularna

3 940 zł najniższa cena
Tooltip

Najniższa cena z 30 dni
przed obniżką

NIŻSZA CENA❄️
Zdjęcie 1 projektu Mini 20 PLUS (wersja B) energo plus WRC2822
107,73 m²
4
2
0

4 640 zł

5 800 zł

Tooltip

Cena regularna

4 640 zł najniższa cena
Tooltip

Najniższa cena z 30 dni
przed obniżką

Zdjęcie 1 projektu N33-BG KKG1025
N33-BG
Dodano!
Dodano!
109,43 m²
4
2
0

5 300 zł

NIŻSZA CENA❄️
Zdjęcie 1 projektu Mateo Sol (1804) KRD2920
Mateo Sol (1804)
Dodano!
Dodano!
126,30 m²
5
2
1

4 540 zł

4 890 zł

Tooltip

Cena regularna

4 340 zł najniższa cena
Tooltip

Najniższa cena z 30 dni
przed obniżką

Elewacje

Frontowa
Tylna
Lewa
Prawa

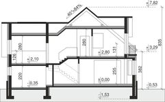
Przekroje

Przekrój pionowy

Usytuowanie na działce

Czy ten projekt pasuje na
Twoją działkę?

Chętnie to sprawdzimy!

Czy ten projekt pasuje na
Twoją działkę?

Chętnie to sprawdzimy!

Dowiedz się:

  • czy zmieści się na niej wybrany przez Ciebie dom
  • jakie parametry musi spełniać dom według miejscowego planu zagospodarowania lub warunków zabudowy (np. kąt nachylenia i typ dachu, liczba kondygnacji itp.
  • jakie inne projekty pasują na Twoją działkę – znajdziemy je dla Ciebie!
Autor: GALERIADOMOW.PL

Dane techniczne projektu

Powierzchnie i wymiary Powierzchnie i wymiary

Powierzchnia użytkowa
Tooltip
Suma powierzchni wszystkich pomieszczeń mieszkalnych, pomniejszona o pow. garażu, kotłowni, strychu, piwnicy. Jest liczona w 100% dla pomieszczeń o wysokości powyżej 2,2 m, w 50% dla pomieszczeń o wys. 2,2-1,4 m i niewliczana dla niższych niż 1,4 m.

118,70 m²

Powierzchnia zabudowy
Tooltip
Powierzchnia zajmowana przez część na- oraz nadziemną budynku liczona, jako rzut pionowy budynku na działkę.

105,50 m²

Kubatura brutto
Tooltip
Zazwyczaj jest to suma kubatur (objętości) wszystkich pomieszczeń budynku, liczonych po zewnętrznym obrysie murów (z ociepleniem).

601 m³

Powierzchnia dachu

175 m²

Kąt nachylenia dachu
Tooltip
Nachylenie połaci dachu głównego podawane w stopniach. Uwaga! W niektórych projektach występuje więcej niż jedno nachylenie dachu.

40°

Wysokość budynku
Tooltip
Wysokość liczona od części budynku położonej najniżej przy powierzchni terenu do najwyższego punktu dachu (kalenicy) z wyłączeniem kominów.

8,30 m

Min. szerokość działki
Tooltip
Najmniejsza możliwa szerokość działki niezbędna do wybudowania wybranego domu. Składa się z szerokości elewacji domu powiększonej z obu stron o 3 m dla ściany bez otworów drzwiowych/okiennych lub 4 m, dla ściany z otworami.

21,05 m

Min. długość działki
Tooltip
Najmniejsza możliwa długość działki niezbędna do wybudowania wybranego domu. Składa się z długości elewacji domu powiększonej z obu stron o 3 m dla ściany bez otworów drzwiowych/okiennych lub 4 m, dla ściany z otworami.

17 m

Energooszczędność Energooszczędność

Oze Czym jest OZE (Odnawialne Źródło Energii)?
Warunki techniczne

Projekt zgody z WT 2021

Technologia i konstrukcja Technologia i konstrukcja

Konstrukcja

Murowana

Opis szczegółowy

Ściany zewnętrzne: pustak 25 cm, styropian 15 cm. Ściany nośne: pustak 25 cm. Strop: monolityczny żelbetowy. Dach: kąt nachylenia 40°, pokrycie - dachówka ceramiczna lub betonowa.

Strop

Żelbetowy

Reklama
Okna i drzwi tarasowe

Nowoczesne okna PVC i aluminiowe WIŚNIOWSKI – doskonała izolacja, elegancki design i niezrównana trwałość.

Wiśniowski
Sprawdź parametry!
Okna dachowe

Oferujemy bezpłatne konsultacje w zakresie wszystkich rozwiązań VELUX. Wyceny, porady dotyczące doboru okien i rolet zewnętrznych - sprawdź!

Velux
Sprawdź szczegóły
Płytki ceramiczne i gresy

Od małych formatów po wielkoformatowe gresy. Marmur, beton, drewno, kamień, lastryko czy cegiełki zamówisz wygodnie online z szybką dostawą.

Ceramzet
Sprawdź ofertę
Drzwi

Ciepłe drzwi WIŚNIOWSKI z kontrolą dostępu. Szeroka gama wzorów i kolorów.

Wiśniowski
Wybierz najlepsze
Bramy garażowe

Automatyczne bramy garażowe segmentowe i uchylne WIŚNIOWSKI na wymiar i z systemem smart home w standardzie.

Wiśniowski
Sprawdź ofertę!
Armatura i ceramika łazienkowa

Topowi producenci. Baterie łazienkowe, zestawy natynkowe i podtynkowe, umywalki, wanny, miski WC oraz kabiny zamówisz kompleksowo online.

Ceramzet II
Dowiedz się więcej
Rekuperacja

Alnor - kompletny system rekuperacji. Dobierz idealne rozwiązanie dla Twojego domu!

Alnor
Dobierz rekuperator
Gruntowe pompy ciepła

Przeprowadzimy kompletną instalację najbardziej oszczędnego źródła ciepła w Twoim nowym domu - gruntowej pompy ciepła. Od dokumentacji, pozwoleń, po odwierty i instalację.

Geothermal Solutions
Dowiedz się więcej

Gotowe domy modułowe (114)

Zobacz wszystkie
Stan deweloperski nawet w 6 miesięcy Gwarancja stałej ceny
Zdjęcie 1 projektu Dom modułowy Soul HMD1001
Gotowy dom modułowy Soul
Dodano!
Dodano!
Pow. użytkowa
118,94 m²
Pokoje
4
518 000 zł 3 654 zł/m²
Zdjęcie 1 projektu Dom prefabrykowany P.14 HPK1026
Pow. użytkowa
118,94 m²
Pokoje
3
694 700 zł 5 829 zł/m²
Zdjęcie 1 projektu Dom szkieletowy Creative Smart 160 HHT1023
Pow. użytkowa
118,35 m²
Pokoje
4
780 019 zł 6 591 zł/m²
Zdjęcie 1 projektu Dom szkieletowy Scandinavian Smart 120 HHT1020
Pow. użytkowa
119,43 m²
Pokoje
3
571 271 zł 4 761 zł/m²
Zdjęcie 1 projektu Dom szkieletowy Emily Smart 120 HHT1026
Pow. użytkowa
120 m²
Pokoje
3
592 512 zł 4 938 zł/m²
Zdjęcie 1 projektu Dom prefabrykowany Parterowy 120C HFX1017
Pow. użytkowa
120,06 m²
Pokoje
4
489 000 zł 4 073 zł/m²
Zdjęcie 1 projektu Dom prefabrykowany Parterowy 120A HFX1015
Pow. użytkowa
121,44 m²
Pokoje
4
489 000 zł 4 027 zł/m²
Zdjęcie 1 projektu Dom prefabrykowany P.3 z okapem HPK1013
Pow. użytkowa
121,46 m²
Pokoje
5
600 100 zł 4 941 zł/m²

Opis projektu domu
Dom przy Przyjaznej 7

Projekt domu Dom przy Przyjaznej 7 jest wariantem popularnego projektu Dom przy Przyjaznej. W przeciwieństwie do podstawowej wersji projekt ma więcej pokoi, większą powierzchnię, garaż. Projekt domu Dom przy Przyjaznej 7 jest doskonałym rozwiązaniem dla osób posiadających średniej szerokości działkę. Dom cechuje się typową bryłą, więc jego realizacja nie pochłonie zbyt wielu środków finansowych. Ciekawym elementem jest uwzględniony przez architekta ozdobny wykusz. W tym projekcie kalenica skierowana jest prostopadle do drogi, co często określane jest w planie zagospodarowania przestrzennego. Dom został zaprojektowany z myślą o zabudowie wolnostojącej. W projekcie zaproponowano garaż jednostanowiskowy w linii budynku. Konstrukcja domu przykryta jest dachem dwuspadowym, i wykonanie więźby oraz jej pokrycie jest ekonomiczne i nie zajmuje wiele czasu. Projekt Dom przy Przyjaznej 7 to dom parterowy z poddaszem użytkowym, dzięki czemu domownicy mogą cieszyć się większą prywatnością.Sercem domu jest przestronna strefa dzienna, która sprzyja spędzaniu wspólnego czasu w gronie najbliższych. Przewidziana w projekcie otwarta kuchnia to świetne rozwiązanie dla osób z małymi dziećmi - ich zabawę w salonie rodzice mogą nadzorować nawet podczas przygotowywania posiłków. Usytuowany w salonie kominek nie tylko świetnie się prezentuje, ale także zapewni przyjemne ciepło w chłodniejsze dni. W projekcie uwzględniono dwie komfortowe łazienki- jedna znajduje się na parterze, druga na poddaszu. W projekcie przewidziano pięć sypialni, które będą odpowiednie dla 5-7 domowników. Przestrzeń można wykorzystać także jako pokój dla gości lub gabinet. Projekt powstał z myślą o Inwestorach, którzy planują zbudować dom w technologii murowanej. Jego wygląd nawiązuje do stylu tradycyjnego, co jest idealnym rozwiązaniem dla osób ceniących klasykę i prostotę.
Czytaj więcej

Informacje dodatkowe

Projekt na etapie adaptacji należy dostosować do nowych przepisów.

Czytaj więcej

Polecani producenci

Prefabrykowane konstrukcje dachowe

tło producenta

WIĄZAR POLSKA

Zobacz więcej

Sprawdź nową generację okien GREENVIEW

tło producenta

FAKRO

Sprawdź nową generację okien GREENVIEW

Styropian, tynki, farby, kleje

tło producenta

Termo Organika

Poznaj super jakość

Okna, drzwi, osłony przeciwsłoneczne

tło producenta

Aluprof

Sprawdź ofertę

Kompletne systemy rekuperacji

tło producenta

Alnor

Dowiedz się więcej

Sprawdź nowy system DACHRYNNA

tło producenta

Galeco

Sprawdź ofertę
Zobacz więcej

Społeczność projektu domu
Dom przy Przyjaznej 7 w budowie

Dołącz do społeczności osób, które budują ten dom lub są zainteresowane jego budową.

  • Oglądaj zdjęcia z budowy
  • Zadawaj pytania
  • Wymieniaj się doświadczeniami

Opinie o projekcie domu Dom przy Przyjaznej 7

Ocena

Ten projekt nie ma jeszcze opinii, bądź pierwszy!

Dodaj opinię

Wywiady mieszkańców domu Dom przy Przyjaznej 7

Zdjęcie profilowe użytkownika ferdzbiecza ferdzbiecza

Zdecydowaliśmy się na projekt Dom przy Przyjaznej 7 KRK1202, ponieważ ciekawa bryła oraz zewnętrzny wygląd budynku wyjątkowo przypadły nam do gustu. Oprócz tego, przewidziany w nim układ pomieszczeń w całości spełniał nasze oczekiwania. Dodatkowo, projekt uwzględnia rozwiązania, na których zależało nam od samego początku - garaż przy domu oraz kotłownię dostosowaną do ogrzewania za pomocą kotła na paliwo stałeObecnie jesteśmy w końcowej fazie inwestycji - do wykonania zostało nam jedynie kilka prac wykończeniowych wewnątrz. Od pierwszego „wbicia łopaty” do dnia dzisiejszego minęło ok. 1,5 roku. Nie potrzebowaliśmy śpieszyć się z budową, dlatego też nie ominęliśmy etapu schnięcia ścian. Po wymurowaniu budynku odczekaliśmy 4 miesiące, aby wilgoć mogła odparować - dopiero po tym czasie, zaczęliśmy wykonywanie tynków.Nasz dom powstał przy użyciu ceramicznych pustaków Thermopor marki Leier. Ściany nośne wymurowaliśmy z pustaków o grubości 25 cm, zaś działowe - 12,5 cm. Dach pokryliśmy dachówką betonową, a zewnętrzną warstwę izolacyjną tworzy 15 cm styropianu. Myślę, że projekt nie należy do drogich w realizacji. Koszt inwestycji można sklasyfikować między niskim a średnim. Wiele w tej kwestii zależy od takich czynników, jak np. jakość zakupionej stolarki otworowej. My zdecydowaliśmy się na okna wysokiej klasy, aczkolwiek można użyć też tradycyjnych. Dla przykładu - przedział cenowy, który został wyliczony odnośnie okien wahał się między 11 a 50 tys. zł.Co prawda, projekt Dom przy Przyjaznej 7 KRK1202 spełnia moje oczekiwania, jednak mam co do niego kilka uwag, na które warto zwrócić uwagę na etapie adaptacji. Okazało się, iż w dokumentacji technicznej przejście pionu elektrycznego z parteru na piętro wychodziło w łazience pod wanną, dlatego musieliśmy przeprojektować przebieg wewnętrznej linii zasilającej. Dodatkowo, nieco trudności pojawiło się w związku z zewnętrzną rurą kanalizacyjną, którą przewidziano 1,5 m poniżej gruntu. W tym celu musieliśmy pogłębić fundamenty, jednak następnie okazało się, że nie możemy się do niej przebić - koniecznie było zastosowanie elektrycznej przepompowni. Lepszym rozwiązaniem byłoby umieszczenie rury kanalizacyjnej bliżej powierzchni gruntu. W kotłowni znajdują się dwa kanały - wentylacyjny z racji montażu pieca oraz drugi - w zamyśle kanalizacyjny. Ma on jednak wymiary 10 cm x 10 cm, więc umieszczenie w nim rury 100 mm było niewykonalne i osobny pion kanalizacyjny musieliśmy wykonać obok. Warto również zwrócić uwagę na kominy, które przechodzą dosyć blisko belek tworzących więźbę - z racji tego, iż kominy się nagrzewają, dla bezpieczeństwa obłożyliśmy je niepalną wełną skalną.Realizując ten projekt należy liczyć się z tym, iż ozdobna, mała kolumna dzieląca kuchenne okna, nie należy do łatwych w obróbce elementów. Od wewnątrz musieliśmy nieco wyrównać jej kształty, aby móc dobrze wykonać tynki oraz parapety. Dodatkowo, aby wyeliminować mostki termiczne ociepliliśmy to miejsce, a w związku z tym, również zewnętrzna forma kolumny musiała zostać zmieniona. Obecnie nie wygląda tak jak na wizualizacji, ale nie powoduje utraty ciepła.Kilka zmian wprowadziliśmy również w układzie okien. Dodaliśmy jedno dachowe w pokoju nad garażem, ponieważ mimo trzech przeszkleń w tym miejscu, było w nim nieco za ciemno. Jednocześnie zrezygnowaliśmy z jednego okna w salonie, dzięki czemu stał się on bardziej ustawny. Wnękę na prysznic w małej łazience, przyłączyliśmy do kotłowni. Kabinę zamontowaliśmy miejscu pierwotnie przewidzianej toalety, zaś tę wykonaliśmy pod schodami.Myślę, że dobrym pomysłem będzie również wydłużenie balkonów o ok. 30-40 cm. Niestety nie przewidzieliśmy, że po zastosowaniu 15 cm warstwy izolacyjnej, o tyle samo skróci się ich powierzchnia. Dodatkowo, wydłużenie balkonów sprawi, iż woda gromadząca się w tych elementach, nie będzie spływać po oknach pod nimi. Ponadto, można rozważyć obniżenie przeszkleń w garażu, które są nieco za wysoko.Układ pomieszczeń przewidziany w projekcie domu parterowego z poddaszem użytkowym Dom przy Przyjaznej 7 KRK1202 został naprawdę dobrze przemyślany. Cieszę się, iż projektant uwzględnił dużą ilość pokoi na górnej kondygnacji. Mimo skosów, pomieszczenia na poddaszu są funkcjonalne i wygodne w umeblowaniu. Dodatkowo jestem zadowolony z zewnętrznego wyglądu budynku, który świetnie się prezentuje. Pozdrawiam.

Zdjęcie profilowe użytkownika JP1202 JP1202

Odpowiedniego projektu domu szukałam naprawdę długo. Spośród ogromu propozycji, które oglądałam najbardziej do gustu przypadł mi projekt domu Dom przy Przyjaznej 7 KRK1202. Przewidziany układ pomieszczeń wydał się nam bardzo funkcjonalny i ponadto opowiadał wszystkim wymaganiom jakie założyliśmy sobie na początku poszukiwań. Najbardziej zależało nam na tym, aby na parterze oprócz części dziennej znajdował się jeszcze jeden dodatkowy pokój. Dzięki temu, gdy w przyszłości korzystanie ze schodów stanie się mało komfortowe, będziemy mogli zaadaptować go na sypialnię. Oprócz tego spodobało nam się, iż kuchnia została otwarta na salon oraz to że architekt przewidział w nim wykonanie kominka. Przy wyborze znaczenie miały również względy wizualne. Jestem zwolenniczką tradycyjnych rozwiązań, dlatego też interesował mnie budynek o symetrycznym wyglądzie elewacji.Jak chyba podczas każdej budowy, również w trakcie naszej natrafiliśmy na kilka przeszkód, ale na szczęście nie było to nic wielkiego. Dokumentacja techniczna nie zawierała żadnych błędów, a cała inwestycja przebiegła dosyć szybko - postawienie oraz całościowe wykończenie domu zajęło w naszym przypadku zaledwie 1,5 roku. Ściany zostały wymurowane z ceramicznych pustaków Porotherm, a dach pokryliśmy dachówką betonową. Za namową fachowca zmieniliśmy sugerowaną metodę wykonania stropu i zamiast żelbetowego, lanego betonem zastosowaliśmy ceramiczną konstrukcję Ackermana. Architekt poprawnie oszacował kosztorys i uważam, że śmiało można się nim sugerować - cena naszej inwestycji była nawet niższa. Dom oraz wodę użytkową ogrzewamy za pomocą piecyka gazowego. Poprzednia zima była dosyć łagodna, toteż rachunki za zużycie gazu były dosyć korzystne i wynosiły ok. 400 zł/mies.Do projektu domu Dom przy Przyjaznej 7 KRK1202 wprowadziliśmy kilka niedużych zmian. Uwzględniona w nim ilość przeszkleń wydała nam się zbyt duża, dlatego też nieco ją zredukowaliśmy. Oprócz tego, okna znajdujące się od frontu zostały trochę przesunięte, tak aby były w pełni symetryczne, co świetnie prezentuje się z zewnątrz. Dodatkowo, nieco podnieśliśmy wysokość parteru. Pomiędzy kuchnią a jadalnią postawiliśmy krótką ściankę, tak aby zasłonić boczną stronę kuchennych mebli. Układ pomieszczeń od początku nam się spodobał, dlatego też postanowiliśmy wykonać go zgodnie z oryginalną wersjąCały nasz dom bardzo nam się podoba. Jedynym minusem jest nieco za mały wiatrołap, tym bardziej iż architekt przewidział drzwi wejściowe otwierane do wewnątrz. W chwili obecnej pewnością wstawiłabym więc te otwierające się na zewnątrz, co polecam również innym Inwestorom. Co prawda, wiatrołap można powiększyć kosztem korytarzyka tworzącego bezpośrednie przejście z hallu do kuchni, jednak uważam że takie rozwiązanie jest bardzo przydatne. Przychodząc z zakupami mogę od razu skierować się do kuchni , aby je rozpakować i nie muszę przechodzić przez część wypoczynkową. Myślę, że można również zastanowić się nad wykonaniem osobnego zadaszenia nad tarasem.Długo szukałam projektu, który w całości spełniałby nasze oczekiwania, dlatego też decyzja o wyborze projektu domu parterowego z poddaszem użytkowym Dom przy Przyjaznej 7 KRK1202 była dokładnie przemyślana. Nowy dom w pełni satysfakcjonuje całą naszą rodzinę i mieszka się w nim naprawdę komfortowo. Mimo niewielkich rozmiarów kuchnia jest ustawna, co sprawia że jej metraż jest w zupełności wystarczający. Ciekawym elementem jest z pewnością wykusz - to miejsce doskonale sprawdza się w roli jadalni, a w dodatku sprawia że bryła z zewnątrz zyskuje na atrakcyjności. Dużym plusem projektu jest również to, iż wnętrze zostało zaplanowane tak, aby powierzchnia była maksymalnie wykorzystana. Korytarze i klatka schodowa mają optymalne rozmiary - ich powierzchnia została ograniczona, dzięki czemu nie ujmują one przestrzeni innym pomieszczeniom, a komunikacja między nimi w dalszym ciągu jest bardzo wygodna. Pozdrawiam.

ASYSTENT WYBORU PROJEKTU

Szukasz idealnego projektu? Znajdziemy go dla Ciebie!

Doradca na podstawie Twoich wskazówek przygotuje spersonalizowaną listę projektów

Graficzne opracowanie rzutów poglądowych widocznych na karcie projektu zostało wykonane przez Extradom.pl. Prezentowane przez Extradom.pl wizualizacje wykonane zostały przez autora projektu i należy poczytywać je jedynie za przykład i propozycję wykończenia, wizję architektoniczną autora projektu. Ostateczne wykończenie budynku może nastąpić na wiele sposobów. Szczegółowe rozwiązania zastosowane w oferowanej dokumentacji - w tym również ilość, lokalizacje i wygląd okien, drzwi, kominów - mogą w niewielkim stopniu różnić się od prezentowanej wizualizacji budynku.

REKLAMA
Zamknij