Projekty nawet 500 zł taniej ❄️

Koniec oferty za:

0dni

00godz.

00min.

00sek.

Sprawdź

Projekt domu Ulka G1 WRC1190

Dodano!
Dodano!

Warstwy

Warstwy

Rzut parteru

Powierzchnia (m²)
Tooltip
Powierzchnia pomieszczenia
to ta, z której faktycznie możesz korzystać – skosy i niskie części poddasza są liczone częściowo lub wcale.
  1. 100% dla wysokości powyżej 2,2 m,
  2. 50% dla wysokości 1,4–2,2 m,
  3. nie liczymy poniżej 1,4 m.

Powierzchnia podłogi
Liczymy po obrysie pomieszczenia, bez względu na jego wysokość/skosy. Jeśli nie ma skosów to powierzchnia podłogi i pomieszczenia jest taka sama.
pomieszczenia i podłogi
podłogi
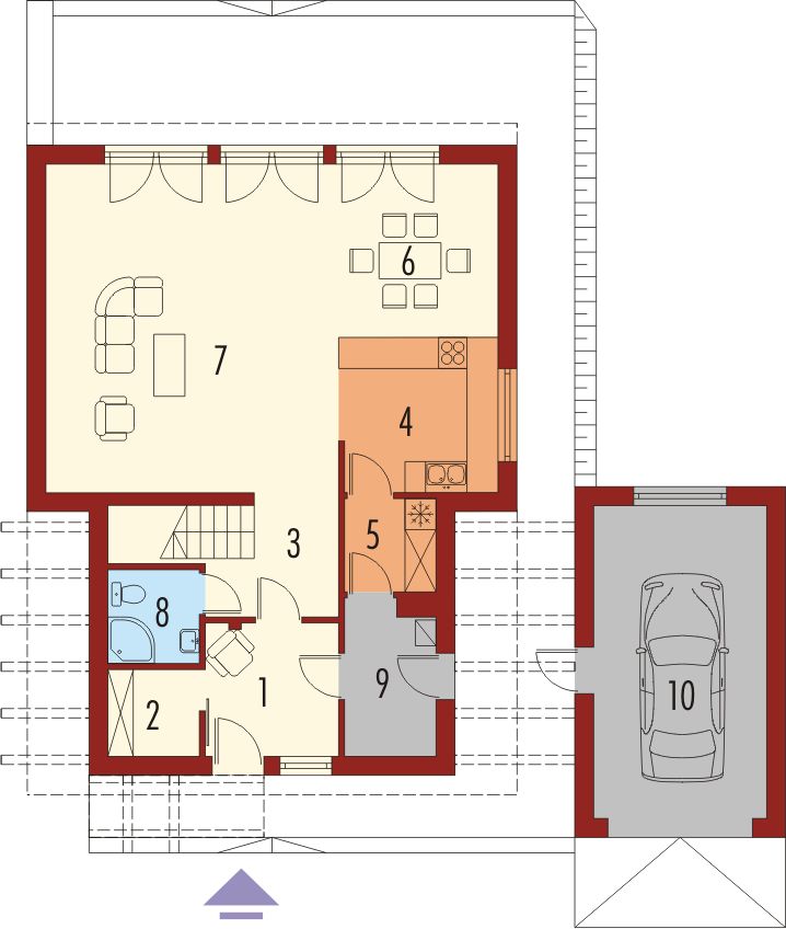
1. Wiatrołap
6,50
2. Garderoba
2,89
3. Hall
4,91
4. Kuchnia
9,12
5. Spiżarnia
3,11
6. Jadalnia
10,26
7. Pokój dzienny
35,70
8. Łazienka
3,13
9. Pomieszczenie gospodarcze
5,03
10. Garaż jednostanowiskowy
20,04
Razem
100,69
100,69
Powierzchnia (m²)
Tooltip
Powierzchnia pomieszczenia
to ta, z której faktycznie możesz korzystać – skosy i niskie części poddasza są liczone częściowo lub wcale.
  1. 100% dla wysokości powyżej 2,2 m,
  2. 50% dla wysokości 1,4–2,2 m,
  3. nie liczymy poniżej 1,4 m.

Powierzchnia podłogi
Liczymy po obrysie pomieszczenia, bez względu na jego wysokość/skosy. Jeśli nie ma skosów to powierzchnia podłogi i pomieszczenia jest taka sama.
pomieszczenia i podłogi
podłogi
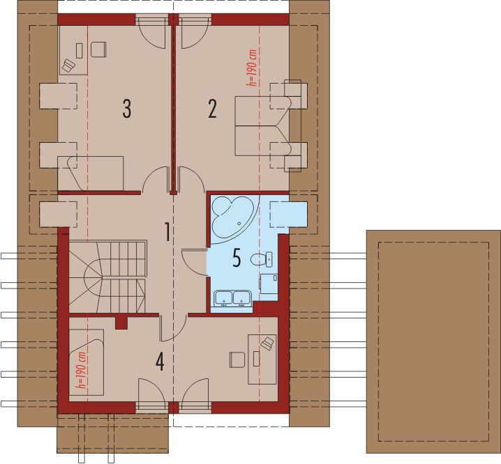
1. Korytarz
8,84
2. Pokój
12,67
3. Pokój
12,67
4. Pokój
13,13
5. Łazienka
5,19
Razem
52,50
52,50

    Usytuowanie na działce

    Czy ten projekt pasuje na
    Twoją działkę?

    Chętnie to sprawdzimy!

    Dowiedz się:

    • czy zmieści się na niej wybrany przez Ciebie dom
    • jakie parametry musi spełniać dom według miejscowego planu zagospodarowania lub warunków zabudowy (np. kąt nachylenia i typ dachu, liczba kondygnacji itp.
    • jakie inne projekty pasują na Twoją działkę – znajdziemy je dla Ciebie!

Pow. użytkowa

133,15 m²

Pokoje

3

Łazienki i WC

2

Garaż

1

Min. szer. i dł. działki

20,7 x 23,70 m

Kąt dachu

45°

Konstrukcja

Murowana
więcej

Ulka G1 - WRC1190

ikona 133,15 m²
Powierzchnia użytkowa
ikona3
Pokoje (bez salonu)
ikona 2
Łazienki (z toaletami)
ikona 1
Liczba stanowisk garażowych
(z wiatą garażową)
ikona
Konstrukcja: Murowana

Projekt został
wycofany z oferty

W razie pytań prosimy o kontakt
z Centrum Obsługi Klienta
Konsultant Masz pytania?
Zadzwoń
71 715 20 60

pon.-pt. 8-21, sob. 9-17

Parter - 100,69 m²

Parter projektu Ulka G1

Zapytaj, co możesz zmienić

Powierzchnia (m²)
Tooltip
Powierzchnia pomieszczenia
to ta, z której faktycznie możesz korzystać – skosy i niskie części poddasza są liczone częściowo lub wcale.
  1. 100% dla wysokości powyżej 2,2 m,
  2. 50% dla wysokości 1,4–2,2 m,
  3. nie liczymy poniżej 1,4 m.

Powierzchnia podłogi
Liczymy po obrysie pomieszczenia, bez względu na jego wysokość/skosy. Jeśli nie ma skosów to powierzchnia podłogi i pomieszczenia jest taka sama.
pomieszczenia i podłogi
podłogi
1. Wiatrołap
6,50
2. Garderoba
2,89
3. Hall
4,91
4. Kuchnia
9,12
5. Spiżarnia
3,11
6. Jadalnia
10,26
7. Pokój dzienny
35,70
8. Łazienka
3,13
9. Pomieszczenie gospodarcze
5,03
10. Garaż jednostanowiskowy
20,04
Razem
100,69
100,69

Poddasze - 52,50 m²

Poddasze projektu Ulka G1

Zapytaj, co możesz zmienić

Powierzchnia (m²)
Tooltip
Powierzchnia pomieszczenia
to ta, z której faktycznie możesz korzystać – skosy i niskie części poddasza są liczone częściowo lub wcale.
  1. 100% dla wysokości powyżej 2,2 m,
  2. 50% dla wysokości 1,4–2,2 m,
  3. nie liczymy poniżej 1,4 m.

Powierzchnia podłogi
Liczymy po obrysie pomieszczenia, bez względu na jego wysokość/skosy. Jeśli nie ma skosów to powierzchnia podłogi i pomieszczenia jest taka sama.
pomieszczenia i podłogi
podłogi
1. Korytarz
8,84
2. Pokój
12,67
3. Pokój
12,67
4. Pokój
13,13
5. Łazienka
5,19
Razem
52,50
52,50

Podobne projekty (7260)

Zobacz wszystkie
NIŻSZA CENA❄️
Zdjęcie 1 projektu Jaskółka 5 z garażem XL WRL1061
Jaskółka 5 z garażem XL
Dodano!
Dodano!
119,70 m²
4
2
1

4 499 zł

4 999 zł

Tooltip

Cena regularna

4 199 zł najniższa cena
Tooltip

Najniższa cena z 30 dni
przed obniżką

NIŻSZA CENA❄️
Zdjęcie 1 projektu Lambada WAH2147
Lambada
Dodano!
Dodano!
149,44 m²
4
3
2

5 512 zł

6 890 zł

Tooltip

Cena regularna

5 167 zł najniższa cena
Tooltip

Najniższa cena z 30 dni
przed obniżką

NIŻSZA CENA❄️
Zdjęcie 1 projektu Oberon 2 WOE1206
Oberon 2
Dodano!
Dodano!
135,55 m²
5
2
1

4 399 zł

4 499 zł

Tooltip

Cena regularna

4 299 zł najniższa cena
Tooltip

Najniższa cena z 30 dni
przed obniżką

NIŻSZA CENA❄️
Zdjęcie 1 projektu Tango WAH1721
Tango
Dodano!
Dodano!
130,17 m²
4
3
1

5 160 zł

6 450 zł

Tooltip

Cena regularna

4 837 zł najniższa cena
Tooltip

Najniższa cena z 30 dni
przed obniżką

Zdjęcie 1 projektu N29-G1 KKG1024
N29-G1
Dodano!
Dodano!
134,52 m²
4
3
1

6 200 zł

NIŻSZA CENA❄️
Zdjęcie 1 projektu Narcyz 4 WAH2029
Narcyz 4
Dodano!
Dodano!
125,58 m²
4
3
1

5 592 zł

6 990 zł

Tooltip

Cena regularna

5 242 zł najniższa cena
Tooltip

Najniższa cena z 30 dni
przed obniżką

NIŻSZA CENA❄️
Zdjęcie 1 projektu Sej-pro 058 energo ELW1041
Sej-pro 058 energo
Dodano!
Dodano!
139,35 m²
3
2
0

5 497 zł

5 797 zł

Tooltip

Cena regularna

5 197 zł najniższa cena
Tooltip

Najniższa cena z 30 dni
przed obniżką

NIŻSZA CENA❄️
Zdjęcie 1 projektu Biba WAH1712
Biba
Dodano!
Dodano!
137,32 m²
4
3
2

5 160 zł

6 450 zł

Tooltip

Cena regularna

4 837 zł najniższa cena
Tooltip

Najniższa cena z 30 dni
przed obniżką

Elewacje

Frontowa
Tylna
Lewa
Prawa

Przekroje

Przekrój pionowy

Usytuowanie na działce

Czy ten projekt pasuje na
Twoją działkę?

Chętnie to sprawdzimy!

Czy ten projekt pasuje na
Twoją działkę?

Chętnie to sprawdzimy!

Dowiedz się:

  • czy zmieści się na niej wybrany przez Ciebie dom
  • jakie parametry musi spełniać dom według miejscowego planu zagospodarowania lub warunków zabudowy (np. kąt nachylenia i typ dachu, liczba kondygnacji itp.
  • jakie inne projekty pasują na Twoją działkę – znajdziemy je dla Ciebie!
Autor: Pracownia Projektowa ARCHIPELAG

Dane techniczne projektu

Powierzchnie i wymiary Powierzchnie i wymiary

Powierzchnia użytkowa
Tooltip
Suma powierzchni wszystkich pomieszczeń mieszkalnych, pomniejszona o pow. garażu, kotłowni, strychu, piwnicy. Jest liczona w 100% dla pomieszczeń o wysokości powyżej 2,2 m, w 50% dla pomieszczeń o wys. 2,2-1,4 m i niewliczana dla niższych niż 1,4 m.

133,15 m²

Powierzchnia zabudowy
Tooltip
Powierzchnia zajmowana przez część na- oraz nadziemną budynku liczona, jako rzut pionowy budynku na działkę.

142,78 m²

Powierzchnia dachu

178 m²

Kąt nachylenia dachu
Tooltip
Nachylenie połaci dachu głównego podawane w stopniach. Uwaga! W niektórych projektach występuje więcej niż jedno nachylenie dachu.

45°

Wysokość budynku
Tooltip
Wysokość liczona od części budynku położonej najniżej przy powierzchni terenu do najwyższego punktu dachu (kalenicy) z wyłączeniem kominów.

8,54 m

Min. szerokość działki
Tooltip
Najmniejsza możliwa szerokość działki niezbędna do wybudowania wybranego domu. Składa się z szerokości elewacji domu powiększonej z obu stron o 3 m dla ściany bez otworów drzwiowych/okiennych lub 4 m, dla ściany z otworami.

20,70 m

Min. długość działki
Tooltip
Najmniejsza możliwa długość działki niezbędna do wybudowania wybranego domu. Składa się z długości elewacji domu powiększonej z obu stron o 3 m dla ściany bez otworów drzwiowych/okiennych lub 4 m, dla ściany z otworami.

23,70 m

Energooszczędność Energooszczędność

Oze Czym jest OZE (Odnawialne Źródło Energii)?
Warunki techniczne

Projekt zgody z WT 2021

Technologia i konstrukcja Technologia i konstrukcja

Konstrukcja

Murowana

Opis szczegółowy

Dom zaprojektowany w technologii murowej ze stropem gęstożebrowym. Schody wewnętrzne drewniane. Dach o konstrukcji drewnianej kryty dachówką cementową lub ceramiczną. Elewację wykonano z tynku mineralnego oraz elementów drewnianych. Stolarka okienna drewniana. Rolety zewnętrzne naokienne.

Strop

Gęstożebrowy

Reklama
Okna i drzwi tarasowe

Nowoczesne okna PVC i aluminiowe WIŚNIOWSKI – doskonała izolacja, elegancki design i niezrównana trwałość.

Wiśniowski
Sprawdź parametry!
Okna dachowe

Oferujemy bezpłatne konsultacje w zakresie wszystkich rozwiązań VELUX. Wyceny, porady dotyczące doboru okien i rolet zewnętrznych - sprawdź!

Velux
Sprawdź szczegóły
Płytki ceramiczne i gresy

Od małych formatów po wielkoformatowe gresy. Marmur, beton, drewno, kamień, lastryko czy cegiełki zamówisz wygodnie online z szybką dostawą.

Ceramzet
Sprawdź ofertę
Drzwi

Ciepłe drzwi WIŚNIOWSKI z kontrolą dostępu. Szeroka gama wzorów i kolorów.

Wiśniowski
Wybierz najlepsze
Bramy garażowe

Automatyczne bramy garażowe segmentowe i uchylne WIŚNIOWSKI na wymiar i z systemem smart home w standardzie.

Wiśniowski
Sprawdź ofertę!
Armatura i ceramika łazienkowa

Topowi producenci. Baterie łazienkowe, zestawy natynkowe i podtynkowe, umywalki, wanny, miski WC oraz kabiny zamówisz kompleksowo online.

Ceramzet II
Dowiedz się więcej
Rekuperacja

Alnor - kompletny system rekuperacji. Dobierz idealne rozwiązanie dla Twojego domu!

Alnor
Dobierz rekuperator
Gruntowe pompy ciepła

Przeprowadzimy kompletną instalację najbardziej oszczędnego źródła ciepła w Twoim nowym domu - gruntowej pompy ciepła. Od dokumentacji, pozwoleń, po odwierty i instalację.

Geothermal Solutions
Dowiedz się więcej

Gotowe domy modułowe (114)

Zobacz wszystkie
Stan deweloperski nawet w 6 miesięcy Gwarancja stałej ceny
Zdjęcie 1 projektu Dom prefabrykowany Piętrowy 130C HFX1023
Pow. użytkowa
132 m²
Pokoje
4
539 000 zł 4 083 zł/m²
Zdjęcie 1 projektu Dom prefabrykowany Piętrowy 130B HFX1022
Pow. użytkowa
131,60 m²
Pokoje
5
539 000 zł 4 096 zł/m²
Zdjęcie 1 projektu Dom prefabrykowany Piętrowy 130A HFX1021
Pow. użytkowa
130,40 m²
Pokoje
4
539 000 zł 4 133 zł/m²
Zdjęcie 1 projektu Dom prefabrykowany DEX136 HDX1002
Pow. użytkowa
136 m²
Pokoje
4
845 000 zł 6 213 zł/m²
Zdjęcie 1 projektu Dom prefabrykowany P.5 HPK1004
Pow. użytkowa
138,67 m²
Pokoje
5
772 700 zł 5 572 zł/m²
Zdjęcie 1 projektu Dom prefabrykowany P.1 z okapem HPK1000
Pow. użytkowa
139,44 m²
Pokoje
3
721 000 zł 5 171 zł/m²
Zdjęcie 1 projektu Dom prefabrykowany P.1 bez okapu HPK1012
Pow. użytkowa
139,44 m²
Pokoje
3
699 800 zł 5 019 zł/m²
Zdjęcie 1 projektu Dom prefabrykowany P.11 HPK1011
Pow. użytkowa
122,88 m²
Pokoje
3
681 300 zł 5 544 zł/m²

Opis projektu domu
Ulka G1

Projekt domu Ulka G1 jest doskonałym rozwiązaniem dla osób posiadających średniej szerokości działkę. Dom posiada prostą bryłę, co znacznie ułatwia późniejszą aranżację wnętrza. W tym projekcie kalenica skierowana jest prostopadle do drogi, co często określane jest w planie zagospodarowania przestrzennego. Projekt został stworzony z myślą o działkach pozwalających na usytuowanie domu w zabudowie wolnostojącej. Projekt można usytuować na granicy działki, co pozwala na realizację w zabudowie bliźniaczej. W projekcie uwzględniono garaż jednostanowiskowy wysunięty do przodu. Jest to również ciekawa propozycja dla osób szukających domu z dachem dwuspadowym, co pozwala na ograniczenie kosztów. Projekt Ulka G1 to dom parterowy z poddaszem użytkowym, co sprawia, że metraż powierzchni użytkowej nie jest ograniczony wielkością działki. Warto zwrócić uwagę na przestronną część dzienną. Tworzy ją między innymi funkcjonalna kuchnia, którą każdy Inwestor swobodnie dostosuje do swoich potrzeb. Uwzględniona w projekcie spiżarka znacznie ułatwi zachowanie porządku. Architekt przewidział również miejsce na jadalnię, dzięki czemu wspólne posiłki będą doskonałą okazją do rozmów w rodzinnej atmosferze. W pełni funkcjonalna łazienka przewidziana jest na obu kondygnacjach, co znacznie usprawni poranne przygotowania do wyjścia. Trzy komfortowe pokoje zaspokoją potrzeby 2-4 osobowej rodziny. Przestrzeń można wykorzystać także jako pokój dla gości lub gabinet. Sporym atutem projektu jest uwzględniona w nim praktyczna garderoba, która minimalizuje potrzebę posiadania w pokojach dużych szaf, dzięki czemu są one bardziej przestronne. W utrzymaniu porządku z pewnością pomoże nam przewidziane w projekcie pomieszczenie gospodarcze. Taras jest idealnym miejscem do organizowania rodzinnych spotkań i chwili relaksu. Projekt został wykonany w technologii murowanej, dzięki czemu podczas upałów dom utrzymuje przyjemny chłód. Jego wygląd nawiązuje do stylu nowoczesnego i idealnie wpisze się w trendy nowo powstających osiedli.
Czytaj więcej

Polecani producenci

Prefabrykowane konstrukcje dachowe

tło producenta

WIĄZAR POLSKA

Zobacz więcej

Sprawdź nową generację okien GREENVIEW

tło producenta

FAKRO

Sprawdź nową generację okien GREENVIEW

Styropian, tynki, farby, kleje

tło producenta

Termo Organika

Poznaj super jakość

Okna, drzwi, osłony przeciwsłoneczne

tło producenta

Aluprof

Sprawdź ofertę

Kompletne systemy rekuperacji

tło producenta

Alnor

Dowiedz się więcej

Sprawdź nowy system DACHRYNNA

tło producenta

Galeco

Sprawdź ofertę
Zobacz więcej

Społeczność projektu domu
Ulka G1 w budowie

Dołącz do społeczności osób, które budują ten dom lub są zainteresowane jego budową.

  • Oglądaj zdjęcia z budowy
  • Zadawaj pytania
  • Wymieniaj się doświadczeniami

Opinie o projekcie domu Ulka G1

Ocena

Ten projekt nie ma jeszcze opinii, bądź pierwszy!

Dodaj opinię

ASYSTENT WYBORU PROJEKTU

Szukasz idealnego projektu? Znajdziemy go dla Ciebie!

Doradca na podstawie Twoich wskazówek przygotuje spersonalizowaną listę projektów

Graficzne opracowanie rzutów poglądowych widocznych na karcie projektu zostało wykonane przez Extradom.pl. Prezentowane przez Extradom.pl wizualizacje wykonane zostały przez autora projektu i należy poczytywać je jedynie za przykład i propozycję wykończenia, wizję architektoniczną autora projektu. Ostateczne wykończenie budynku może nastąpić na wiele sposobów. Szczegółowe rozwiązania zastosowane w oferowanej dokumentacji - w tym również ilość, lokalizacje i wygląd okien, drzwi, kominów - mogą w niewielkim stopniu różnić się od prezentowanej wizualizacji budynku.

REKLAMA
Zamknij