Projekty nawet 500 zł taniej ❄️

Koniec oferty za:

0dni

00godz.

00min.

00sek.

Sprawdź

Projekt domu Tofi 3 WOF1009

Dodano!
Dodano!

Warstwy

Warstwy

Rzut parteru

Powierzchnia (m²)
Tooltip
Powierzchnia pomieszczenia
to ta, z której faktycznie możesz korzystać – skosy i niskie części poddasza są liczone częściowo lub wcale.
  1. 100% dla wysokości powyżej 2,2 m,
  2. 50% dla wysokości 1,4–2,2 m,
  3. nie liczymy poniżej 1,4 m.

Powierzchnia podłogi
Liczymy po obrysie pomieszczenia, bez względu na jego wysokość/skosy. Jeśli nie ma skosów to powierzchnia podłogi i pomieszczenia jest taka sama.
pomieszczenia i podłogi
podłogi
1. Wiatrołap
3,80
2. Korytarz
12,99
3. Pokój dzienny + jadalnia
32,80
4. Kuchnia
10,13
5. Łazienka
3,07
6. Pomieszczenie gospodarcze
7,66
7. Pokój
9,46
Razem
79,91
79,91
Powierzchnia (m²)
Tooltip
Powierzchnia pomieszczenia
to ta, z której faktycznie możesz korzystać – skosy i niskie części poddasza są liczone częściowo lub wcale.
  1. 100% dla wysokości powyżej 2,2 m,
  2. 50% dla wysokości 1,4–2,2 m,
  3. nie liczymy poniżej 1,4 m.

Powierzchnia podłogi
Liczymy po obrysie pomieszczenia, bez względu na jego wysokość/skosy. Jeśli nie ma skosów to powierzchnia podłogi i pomieszczenia jest taka sama.
pomieszczenia i podłogi
podłogi
1. Korytarz
6,57
2. Łazienka
6,20
3. Pokój
10,42
4. Pokój
12,94
5. Pokój
14,51
6. Garderoba
2,74
7. Garderoba
2,91
Razem
56,29
56,29

    Usytuowanie na działce

    Czy ten projekt pasuje na
    Twoją działkę?

    Chętnie to sprawdzimy!

    Dowiedz się:

    • czy zmieści się na niej wybrany przez Ciebie dom
    • jakie parametry musi spełniać dom według miejscowego planu zagospodarowania lub warunków zabudowy (np. kąt nachylenia i typ dachu, liczba kondygnacji itp.
    • jakie inne projekty pasują na Twoją działkę – znajdziemy je dla Ciebie!

Pow. użytkowa

136,20 m²

Pokoje

4

Łazienki i WC

2

Garaż

0

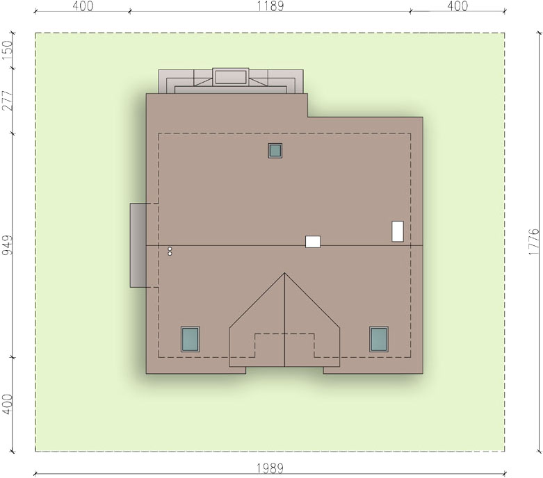
Min. szer. i dł. działki

19,89 x 17,76 m

Kąt dachu

40°

Konstrukcja

Murowana
więcej

Tofi 3 - WOF1009

ikona 136,20 m²
Powierzchnia użytkowa
ikona4
Pokoje (bez salonu)
ikona 2
Łazienki (z toaletami)
ikona 0
Liczba stanowisk garażowych
(z wiatą garażową)
ikona
Konstrukcja: Murowana

Projekt został
wycofany z oferty

W razie pytań prosimy o kontakt
z Centrum Obsługi Klienta
Konsultant Masz pytania?
Zadzwoń
71 715 20 60

pon.-pt. 8-21, sob. 9-17

Parter - 79,91 m²

Parter projektu Tofi 3

Zapytaj, co możesz zmienić

Powierzchnia (m²)
Tooltip
Powierzchnia pomieszczenia
to ta, z której faktycznie możesz korzystać – skosy i niskie części poddasza są liczone częściowo lub wcale.
  1. 100% dla wysokości powyżej 2,2 m,
  2. 50% dla wysokości 1,4–2,2 m,
  3. nie liczymy poniżej 1,4 m.

Powierzchnia podłogi
Liczymy po obrysie pomieszczenia, bez względu na jego wysokość/skosy. Jeśli nie ma skosów to powierzchnia podłogi i pomieszczenia jest taka sama.
pomieszczenia i podłogi
podłogi
1. Wiatrołap
3,80
2. Korytarz
12,99
3. Pokój dzienny + jadalnia
32,80
4. Kuchnia
10,13
5. Łazienka
3,07
6. Pomieszczenie gospodarcze
7,66
7. Pokój
9,46
Razem
79,91
79,91

Poddasze - 56,29 m²

Poddasze projektu Tofi 3

Zapytaj, co możesz zmienić

Powierzchnia (m²)
Tooltip
Powierzchnia pomieszczenia
to ta, z której faktycznie możesz korzystać – skosy i niskie części poddasza są liczone częściowo lub wcale.
  1. 100% dla wysokości powyżej 2,2 m,
  2. 50% dla wysokości 1,4–2,2 m,
  3. nie liczymy poniżej 1,4 m.

Powierzchnia podłogi
Liczymy po obrysie pomieszczenia, bez względu na jego wysokość/skosy. Jeśli nie ma skosów to powierzchnia podłogi i pomieszczenia jest taka sama.
pomieszczenia i podłogi
podłogi
1. Korytarz
6,57
2. Łazienka
6,20
3. Pokój
10,42
4. Pokój
12,94
5. Pokój
14,51
6. Garderoba
2,74
7. Garderoba
2,91
Razem
56,29
56,29

Warianty projektu (1)

PROMOCJA
Projekt domu Tofi 4 modern
Tofi 4 modern
Dodano!
Dodano!
128,80 m²
4
2
0

3 999 zł

4 199 zł

Tooltip

Cena regularna

3 899 zł najniższa cena
Tooltip

Najniższa cena z 30 dni
przed obniżką

Podobne projekty (5745)

Zobacz wszystkie
NIŻSZA CENA❄️
Zdjęcie 1 projektu Baset 1 bez garażu WRL1012
Baset 1 bez garażu
Dodano!
Dodano!
116,60 m²
4
2
0

3 699 zł

4 199 zł

Tooltip

Cena regularna

3 399 zł najniższa cena
Tooltip

Najniższa cena z 30 dni
przed obniżką

NIŻSZA CENA❄️
Zdjęcie 1 projektu Steel stodoła KNT1008
Steel stodoła
Dodano!
Dodano!
113,40 m²
4
3
2

5 050 zł

5 500 zł

Tooltip

Cena regularna

4 700 zł najniższa cena
Tooltip

Najniższa cena z 30 dni
przed obniżką

NIŻSZA CENA❄️
Zdjęcie 1 projektu Dom przy Alabastrowej 55 KRK1560
Dom przy Alabastrowej 55
Dodano!
Dodano!
117,67 m²
4
2
1

3 490 zł

3 990 zł

Tooltip

Cena regularna

3 390 zł najniższa cena
Tooltip

Najniższa cena z 30 dni
przed obniżką

NIŻSZA CENA❄️
Zdjęcie 1 projektu Sej-pro 074 energo ELW1055
Sej-pro 074 energo
Dodano!
Dodano!
128,38 m²
4
2
0

5 097 zł

5 397 zł

Tooltip

Cena regularna

4 797 zł najniższa cena
Tooltip

Najniższa cena z 30 dni
przed obniżką

NIŻSZA CENA❄️
Zdjęcie 1 projektu Malutki 10 BSA2390
Malutki 10
Dodano!
Dodano!
108,56 m²
4
2
1

5 249 zł

5 749 zł

Tooltip

Cena regularna

5 249 zł najniższa cena
Tooltip

Najniższa cena z 30 dni
przed obniżką

NIŻSZA CENA❄️
Zdjęcie 1 projektu Anatol (1632) KRD2777
Anatol (1632)
Dodano!
Dodano!
119,10 m²
5
2
1

4 140 zł

4 490 zł

Tooltip

Cena regularna

3 940 zł najniższa cena
Tooltip

Najniższa cena z 30 dni
przed obniżką

NIŻSZA CENA❄️
Zdjęcie 1 projektu Dom przy Alabastrowej 57 KRK1631
Dom przy Alabastrowej 57
Dodano!
Dodano!
117,67 m²
4
2
1

3 790 zł

4 290 zł

Tooltip

Cena regularna

3 690 zł najniższa cena
Tooltip

Najniższa cena z 30 dni
przed obniżką

NIŻSZA CENA❄️
Zdjęcie 1 projektu Malutki 11 BSA2388
Malutki 11
Dodano!
Dodano!
113,48 m²
4
3
1

5 249 zł

5 749 zł

Tooltip

Cena regularna

5 249 zł najniższa cena
Tooltip

Najniższa cena z 30 dni
przed obniżką

Elewacje

Frontowa
Tylna
Lewa
Prawa

Usytuowanie na działce

Czy ten projekt pasuje na
Twoją działkę?

Chętnie to sprawdzimy!

Czy ten projekt pasuje na
Twoją działkę?

Chętnie to sprawdzimy!

Dowiedz się:

  • czy zmieści się na niej wybrany przez Ciebie dom
  • jakie parametry musi spełniać dom według miejscowego planu zagospodarowania lub warunków zabudowy (np. kąt nachylenia i typ dachu, liczba kondygnacji itp.
  • jakie inne projekty pasują na Twoją działkę – znajdziemy je dla Ciebie!
Autor: Archand

Dane techniczne projektu

Powierzchnie i wymiary Powierzchnie i wymiary

Powierzchnia użytkowa
Tooltip
Suma powierzchni wszystkich pomieszczeń mieszkalnych, pomniejszona o pow. garażu, kotłowni, strychu, piwnicy. Jest liczona w 100% dla pomieszczeń o wysokości powyżej 2,2 m, w 50% dla pomieszczeń o wys. 2,2-1,4 m i niewliczana dla niższych niż 1,4 m.

136,20 m²

Powierzchnia zabudowy
Tooltip
Powierzchnia zajmowana przez część na- oraz nadziemną budynku liczona, jako rzut pionowy budynku na działkę.

106,99 m²

Powierzchnia dachu

178 m²

Kąt nachylenia dachu
Tooltip
Nachylenie połaci dachu głównego podawane w stopniach. Uwaga! W niektórych projektach występuje więcej niż jedno nachylenie dachu.

40°

Wysokość budynku
Tooltip
Wysokość liczona od części budynku położonej najniżej przy powierzchni terenu do najwyższego punktu dachu (kalenicy) z wyłączeniem kominów.

8,47 m

Min. szerokość działki
Tooltip
Najmniejsza możliwa szerokość działki niezbędna do wybudowania wybranego domu. Składa się z szerokości elewacji domu powiększonej z obu stron o 3 m dla ściany bez otworów drzwiowych/okiennych lub 4 m, dla ściany z otworami.

19,89 m

Min. długość działki
Tooltip
Najmniejsza możliwa długość działki niezbędna do wybudowania wybranego domu. Składa się z długości elewacji domu powiększonej z obu stron o 3 m dla ściany bez otworów drzwiowych/okiennych lub 4 m, dla ściany z otworami.

17,76 m

Energooszczędność Energooszczędność

Oze Czym jest OZE (Odnawialne Źródło Energii)?
Warunki techniczne

Projekt zgody z WT 2021

Technologia i konstrukcja Technologia i konstrukcja

Konstrukcja

Murowana

Opis szczegółowy

Fundamenty żelbetowe. Ściany nośne i działowe z pustaków ceramicznych. Strop gęstożebrowy. Konstrukcja dachu drewniana. Pokrycie dachu dachówką ceramiczną.

Strop

Gęstożebrowy

Reklama
Okna i drzwi tarasowe

Nowoczesne okna PVC i aluminiowe WIŚNIOWSKI – doskonała izolacja, elegancki design i niezrównana trwałość.

Wiśniowski
Sprawdź parametry!
Okna dachowe

Oferujemy bezpłatne konsultacje w zakresie wszystkich rozwiązań VELUX. Wyceny, porady dotyczące doboru okien i rolet zewnętrznych - sprawdź!

Velux
Sprawdź szczegóły
Płytki ceramiczne i gresy

Od małych formatów po wielkoformatowe gresy. Marmur, beton, drewno, kamień, lastryko czy cegiełki zamówisz wygodnie online z szybką dostawą.

Ceramzet
Sprawdź ofertę
Drzwi

Ciepłe drzwi WIŚNIOWSKI z kontrolą dostępu. Szeroka gama wzorów i kolorów.

Wiśniowski
Wybierz najlepsze
Bramy garażowe

Automatyczne bramy garażowe segmentowe i uchylne WIŚNIOWSKI na wymiar i z systemem smart home w standardzie.

Wiśniowski
Sprawdź ofertę!
Armatura i ceramika łazienkowa

Topowi producenci. Baterie łazienkowe, zestawy natynkowe i podtynkowe, umywalki, wanny, miski WC oraz kabiny zamówisz kompleksowo online.

Ceramzet II
Dowiedz się więcej
Rekuperacja

Alnor - kompletny system rekuperacji. Dobierz idealne rozwiązanie dla Twojego domu!

Alnor
Dobierz rekuperator
Gruntowe pompy ciepła

Przeprowadzimy kompletną instalację najbardziej oszczędnego źródła ciepła w Twoim nowym domu - gruntowej pompy ciepła. Od dokumentacji, pozwoleń, po odwierty i instalację.

Geothermal Solutions
Dowiedz się więcej

Gotowe domy modułowe (114)

Zobacz wszystkie
Stan deweloperski nawet w 6 miesięcy Gwarancja stałej ceny
Zdjęcie 1 projektu Dom prefabrykowany DEX136 HDX1002
Pow. użytkowa
136 m²
Pokoje
4
845 000 zł 6 213 zł/m²
Zdjęcie 1 projektu Dom prefabrykowany P.5 HPK1004
Pow. użytkowa
138,67 m²
Pokoje
5
772 700 zł 5 572 zł/m²
Zdjęcie 1 projektu Dom prefabrykowany P.1 z okapem HPK1000
Pow. użytkowa
139,44 m²
Pokoje
3
721 000 zł 5 171 zł/m²
Zdjęcie 1 projektu Dom prefabrykowany P.1 bez okapu HPK1012
Pow. użytkowa
139,44 m²
Pokoje
3
699 800 zł 5 019 zł/m²
Zdjęcie 1 projektu Dom prefabrykowany Piętrowy 130C HFX1023
Pow. użytkowa
132 m²
Pokoje
4
539 000 zł 4 083 zł/m²
Zdjęcie 1 projektu Dom prefabrykowany Piętrowy 130B HFX1022
Pow. użytkowa
131,60 m²
Pokoje
5
539 000 zł 4 096 zł/m²
Zdjęcie 1 projektu Dom prefabrykowany Piętrowy 130A HFX1021
Pow. użytkowa
130,40 m²
Pokoje
4
539 000 zł 4 133 zł/m²
Zdjęcie 1 projektu Dom szkieletowy Open Sky 195 HHT1029
Pow. użytkowa
145,04 m²
Pokoje
4
940 300 zł 6 483 zł/m²

Opis projektu domu
Tofi 3

Ze względu na wielkość oraz przemyślany układ pomieszczeń, projekt domu Tofi 3 jest idealną propozycją dla rodziny 2+2. To budynek jednorodzinny z poddaszem użytkowym oraz dachem dwuspadowym, wymagający szerszej działki. Geometryczna forma budynku jest bardzo elegancka, urozmaicona cokołem z klinkieru, oryginalnymi balustradami balkonów oraz dużymi przeszklenia nadającymi nowoczesnego charakteru. Strefę dzienną usytuowano po stronie zachodniej, bardzo dobrze nasłonecznionej przez większość dnia. Pokój dzienny wyposażono w wykusz, przy którym urządzono jadalnię, oraz drzwi na taras, wprowadzające do wnętrza mnóstwo słońca. Częściowe zamknięcie kuchni, poprzez zastosowanie ścianek działowych, zapewni izolację od kuchennych zapachów i hałasów. Poddasze przeznaczono na część nocną składającą się z: łazienki, mniejszej sypialni oraz dwóch większych, wyposażonych w garderoby oraz balkony. Oprócz zwykłych okien, wnętrza doświetlają dodatkowo okna połaciowe i balkonowe. Przy strefie wejściowej przewidziano łazienkę oraz pokój, pełniący funkcję gabinetu lub dodatkowej sypialni, natomiast w głębi domu zaplanowano pomieszczenie gospodarcze posiadające osobne, niezależne wyjście na zewnątrz. Projekt domu Tofi 3 przewiduje mnóstwo jasnych przestrzeni oraz komfortowy układ pokoi, wzbogacony pomieszczeniami dodatkowymi jak garderoby w sypialniach czy wnęki na szafy. Ważną kwestią dla przyszłych domowników jest energooszczędność domu, która zapewni niższe koszty w późniejszej eksploatacji.
Czytaj więcej

Polecani producenci

Prefabrykowane konstrukcje dachowe

tło producenta

WIĄZAR POLSKA

Zobacz więcej

Sprawdź nową generację okien GREENVIEW

tło producenta

FAKRO

Sprawdź nową generację okien GREENVIEW

Styropian, tynki, farby, kleje

tło producenta

Termo Organika

Poznaj super jakość

Okna, drzwi, osłony przeciwsłoneczne

tło producenta

Aluprof

Sprawdź ofertę

Kompletne systemy rekuperacji

tło producenta

Alnor

Dowiedz się więcej

Sprawdź nowy system DACHRYNNA

tło producenta

Galeco

Sprawdź ofertę
Zobacz więcej

Społeczność projektu domu
Tofi 3 w budowie

Dołącz do społeczności osób, które budują ten dom lub są zainteresowane jego budową.

  • Oglądaj zdjęcia z budowy
  • Zadawaj pytania
  • Wymieniaj się doświadczeniami

Opinie o projekcie domu Tofi 3

5

Na podstawie 1 recenzji

Wspaniały!
100%
Bardzo dobry
0%
Średni
0%
Słaby
0%
Bardzo słaby
0%

Wywiady mieszkańców domu Tofi 3

Zdjęcie profilowe użytkownika lukash3333 lukash3333

Szukając odpowiedniego projektu domu, skupiliśmy się na budynkach tradycyjnych o funkcjonalnym wnętrzu. Dodatkowo, bardzo istotna była dla nas nieskomplikowana konstrukcja całego domu. Od początku chciałem wybudować go własnymi siłami, dlatego szukaliśmy projektu o prostej bryle i łatwym w wykonaniu dachu. W kwestii wewnętrznego układu najbardziej zależało nam na trzech sypialniach zlokalizowanych na poddaszu. Ostatecznie, spośród wszystkich propozycji spełniających powyższe kryteria, zdecydowaliśmy się na realizację projektu Tofi 3 WOF1009, który w całości wyjątkowo przypadł do gustu mojej żonie.Budynek został postawiony systemem gospodarczym. Nie zatrudniałem fachowców i właściwie wszystkie prace wykonywałem samodzielnie. Muszę przyznać, że jestem zadowolony z przebiegu inwestycji. Ze wszystkim poradziłem sobie naprawdę sprawnie, a inwestycję udało mi się zakończyć w korzystnym czasie. Budowę rozpocząłem w kwietniu 2015 r. a do nowego domu wprowadziliśmy się po ok. 1,5 roku - w grudniu 2016 r. Działania związane z budową domu wykonywałem po godzinach pracy zawodowej, więc myślę że przy większej ilości posiadanego czasu, projekt domu Tofi 3 WOF1009 spokojnie można zrealizować w przeciągu ok. 6 miesięcy.Projekt w kwestii konstrukcyjnej był dobrze opracowany, a jedyna nieścisłość jaką zauważyłem dotyczyła rozbieżności usytuowania komina na rzutach obu kondygnacji. Oba rysunki nie do końca zgrywają się ze sobą pod tym względem - komin na rysunkach poddasza wychodzi o ok. 20 cm dalej niż na tych dotyczących parteru i warto zwrócić na to uwagę.Postanowiłem zmienić zalecane w projekcie Tofi 3 WOF1009 pustaki ceramiczne na bloczki z betonu komórkowego Solbet. Dodatkowo do ich łączenia zamiast tradycyjnej zaprawy zastosowałem klej. Taka metoda stawiania ścian jest zdecydowanie łatwiejsza i szybsza. Strop wykonałem systemem Teriva, a dach pokryłem blachodachówką. Z racji tego, iż nowy dom budowałem własnymi siłami, sporo udało nam się zaoszczędzić na pracy fachowców. Za materiały potrzebne do zakończenia stanu surowego zamkniętego zapłaciłem ok. 80 tys. zł, tak więc na tym etapie wydaliśmy o połowę mniej niż zakładał kosztorys.Projekt domu Tofi 3 WOF1009 od początku spełniał nasze oczekiwania, dlatego postanowiliśmy w całości wykonać go zgodnie z oryginalną wersją. Przyszłym Inwestorom mogę jedynie poradzić rozważenie podniesienia ścianki kolankowej. Przyznam, że nieco obawialiśmy się że dom po tej zmianie straci na uroku i nie zdecydowaliśmy się na to. Wysokość pokoi na poddaszu jest dla nas wystarczająca, ale myślę że zwolennicy dużej przestronności jak najbardziej mogą pomyśleć o tej zmianie.Dodatkowo, warto już na samym początku jednoznacznie zdecydować się na rodzaj pokrycia dachowego. Początkowo planowałem zastosować się do zaleceń architekta i użyć dachówki ceramicznej, dlatego więźbę wykonałem w całości zgodnie z projektem. Później jednak zmieniłem zdanie, kupując o wiele lżejszą blachę i okazało się, że tak mocna konstrukcja nie była potrzebna. Jeśli więc, ktoś od razu planuje pokrycie dachu blachodachówką, warto zlecić przeprojektowanie więźby, aby móc wykonać ją przy użyciu mniejszej ilości drewna, co pozwoli na dodatkowe oszczędności.Wybierając projekt, warto również wcześniej zastanowić się nad jego usytuowaniem względem kierunków świata. Przyznam, że nie przywiązywaliśmy do tego szczególnej uwagi, ale na szczęście okazało się że w naszym przypadku dom usadowiony jest idealnie. Strona z wykuszem wychodzi na stronę zachodnią, zaś łazienki i kotłownię mamy na wschodzie. Przy takim ułożeniu, łazienki są dobrze oświetlone w godzinach porannych, zaś po południu gdy wracamy z pracy słońce znajduje się w części dziennej i świeci w salonie aż do zachodu. Dodatkowo, nad nim mamy sypialnię, więc rano słońce nas nie budzi.Jesteśmy zadowoleni z wyboru projektu domu parterowego z poddaszem użytkowym Tofi 3 WOF1009. Przewidziany w nim układ pomieszczeń został wyjątkowo funkcjonalnie przemyślany, dzięki czemu nie musieliśmy nic w nim poprawiać. Wszystko jest dokładnie takie jak chcieliśmy od samego początku, a nowy dom w całości spełnia wszystkie nasze oczekiwania. Pozdrawiam.

ASYSTENT WYBORU PROJEKTU

Szukasz idealnego projektu? Znajdziemy go dla Ciebie!

Doradca na podstawie Twoich wskazówek przygotuje spersonalizowaną listę projektów

Graficzne opracowanie rzutów poglądowych widocznych na karcie projektu zostało wykonane przez Extradom.pl. Prezentowane przez Extradom.pl wizualizacje wykonane zostały przez autora projektu i należy poczytywać je jedynie za przykład i propozycję wykończenia, wizję architektoniczną autora projektu. Ostateczne wykończenie budynku może nastąpić na wiele sposobów. Szczegółowe rozwiązania zastosowane w oferowanej dokumentacji - w tym również ilość, lokalizacje i wygląd okien, drzwi, kominów - mogą w niewielkim stopniu różnić się od prezentowanej wizualizacji budynku.

REKLAMA
Zamknij