Projekty nawet 500 zł taniej ❄️

Koniec oferty za:

00godz.

00min.

00sek.

Sprawdź

Projekt domu Milicz dw14 KRP1565

Dodano!
Dodano!

Warstwy

Warstwy

Rzut parteru

Powierzchnia (m²)
Tooltip
Powierzchnia pomieszczenia
to ta, z której faktycznie możesz korzystać – skosy i niskie części poddasza są liczone częściowo lub wcale.
  1. 100% dla wysokości powyżej 2,2 m,
  2. 50% dla wysokości 1,4–2,2 m,
  3. nie liczymy poniżej 1,4 m.

Powierzchnia podłogi
Liczymy po obrysie pomieszczenia, bez względu na jego wysokość/skosy. Jeśli nie ma skosów to powierzchnia podłogi i pomieszczenia jest taka sama.
pomieszczenia i podłogi
podłogi
1. Wiatrołap
6,75
2. Pokój dzienny + kuchnia
42,86
3. Pokój
10,73
4. Korytarz
4,66
5. Łazienka
7,18
6. Kotłownia
6,21
7. Pomieszczenie gospodarcze
4,85
8. Garaż dwustanowiskowy
31,39
Razem
114,63
114,63
Powierzchnia (m²)
Tooltip
Powierzchnia pomieszczenia
to ta, z której faktycznie możesz korzystać – skosy i niskie części poddasza są liczone częściowo lub wcale.
  1. 100% dla wysokości powyżej 2,2 m,
  2. 50% dla wysokości 1,4–2,2 m,
  3. nie liczymy poniżej 1,4 m.

Powierzchnia podłogi
Liczymy po obrysie pomieszczenia, bez względu na jego wysokość/skosy. Jeśli nie ma skosów to powierzchnia podłogi i pomieszczenia jest taka sama.
pomieszczenia
podłogi
1. Korytarz
9,28
9,58
2. Pokój
13,67
18,74
3. Pokój
11,73
15,57
4. Pokój
17,45
21,25
5. Łazienka
4,34
7,52
6. Pokój
26,94
45,01
Razem
83,41
117,67

    Usytuowanie na działce

    Czy ten projekt pasuje na
    Twoją działkę?

    Chętnie to sprawdzimy!

    Dowiedz się:

    • czy zmieści się na niej wybrany przez Ciebie dom
    • jakie parametry musi spełniać dom według miejscowego planu zagospodarowania lub warunków zabudowy (np. kąt nachylenia i typ dachu, liczba kondygnacji itp.
    • jakie inne projekty pasują na Twoją działkę – znajdziemy je dla Ciebie!

Pow. użytkowa

155,59 m²

Pokoje

5

Łazienki i WC

2

Garaż

2

Min. szer. i dł. działki

26,2 x 17,48 m

Kąt dachu

42°

Konstrukcja

Z bali
więcej

Milicz dw14 - KRP1565

ikona 155,59 m²
Powierzchnia użytkowa
ikona5
Pokoje (bez salonu)
ikona 2
Łazienki (z toaletami)
ikona 2
Liczba stanowisk garażowych
(z wiatą garażową)
ikona
Konstrukcja: Z bali

Projekt został
wycofany z oferty

W razie pytań prosimy o kontakt
z Centrum Obsługi Klienta
Konsultant Masz pytania?
Zadzwoń
71 715 20 60

pon.-pt. 8-21, sob. 9-17

Parter - 114,63 m²

Parter projektu Milicz dw14

Zapytaj, co możesz zmienić

Powierzchnia (m²)
Tooltip
Powierzchnia pomieszczenia
to ta, z której faktycznie możesz korzystać – skosy i niskie części poddasza są liczone częściowo lub wcale.
  1. 100% dla wysokości powyżej 2,2 m,
  2. 50% dla wysokości 1,4–2,2 m,
  3. nie liczymy poniżej 1,4 m.

Powierzchnia podłogi
Liczymy po obrysie pomieszczenia, bez względu na jego wysokość/skosy. Jeśli nie ma skosów to powierzchnia podłogi i pomieszczenia jest taka sama.
pomieszczenia i podłogi
podłogi
1. Wiatrołap
6,75
2. Pokój dzienny + kuchnia
42,86
3. Pokój
10,73
4. Korytarz
4,66
5. Łazienka
7,18
6. Kotłownia
6,21
7. Pomieszczenie gospodarcze
4,85
8. Garaż dwustanowiskowy
31,39
Razem
114,63
114,63

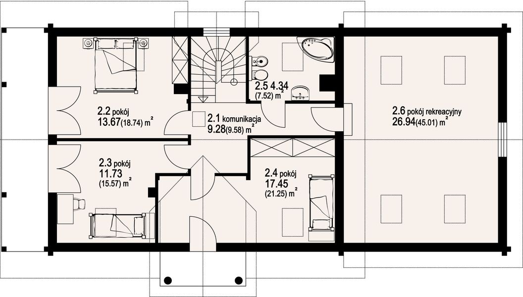
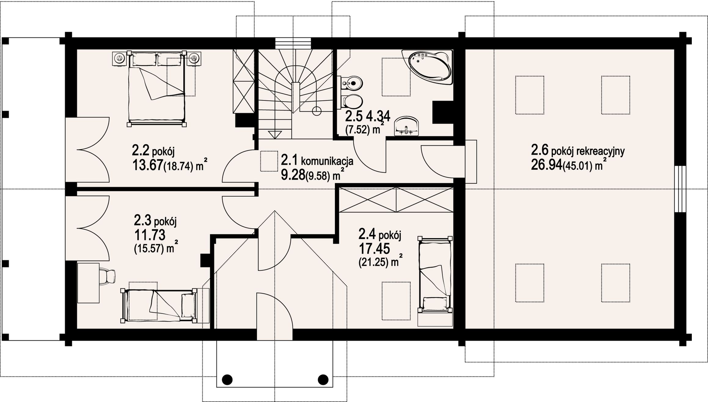
Poddasze - 83,41 m²

Poddasze projektu Milicz dw14

Zapytaj, co możesz zmienić

Powierzchnia (m²)
Tooltip
Powierzchnia pomieszczenia
to ta, z której faktycznie możesz korzystać – skosy i niskie części poddasza są liczone częściowo lub wcale.
  1. 100% dla wysokości powyżej 2,2 m,
  2. 50% dla wysokości 1,4–2,2 m,
  3. nie liczymy poniżej 1,4 m.

Powierzchnia podłogi
Liczymy po obrysie pomieszczenia, bez względu na jego wysokość/skosy. Jeśli nie ma skosów to powierzchnia podłogi i pomieszczenia jest taka sama.
pomieszczenia
podłogi
1. Korytarz
9,28
9,58
2. Pokój
13,67
18,74
3. Pokój
11,73
15,57
4. Pokój
17,45
21,25
5. Łazienka
4,34
7,52
6. Pokój
26,94
45,01
Razem
83,41
117,67

Warianty projektu (23)

PROMOCJA
Projekt domu Milicz 53m
Milicz 53m
Dodano!
Dodano!
217,34 m²
7
2
0

6 199 zł

6 499 zł

Tooltip

Cena regularna

5 999 zł najniższa cena
Tooltip

Najniższa cena z 30 dni
przed obniżką

PROMOCJA
Projekt domu Milicz 49 dw PC
Milicz 49 dw PC
Dodano!
Dodano!
128,20 m²
6
2
1

5 799 zł

6 099 zł

Tooltip

Cena regularna

5 599 zł najniższa cena
Tooltip

Najniższa cena z 30 dni
przed obniżką

PROMOCJA
Projekt domu Milicz dw
Milicz dw
Dodano!
Dodano!
132,43 m²
6
2
1

5 599 zł

5 899 zł

Tooltip

Cena regularna

5 399 zł najniższa cena
Tooltip

Najniższa cena z 30 dni
przed obniżką

PROMOCJA
Projekt domu Milicz 39 dw
Milicz 39 dw
Dodano!
Dodano!
122,28 m²
6
2
1

5 599 zł

5 899 zł

Tooltip

Cena regularna

5 399 zł najniższa cena
Tooltip

Najniższa cena z 30 dni
przed obniżką

PROMOCJA
Projekt domu Milicz m12
Milicz m12
Dodano!
Dodano!
130 m²
4
2
1

4 899 zł

5 199 zł

Tooltip

Cena regularna

4 699 zł najniższa cena
Tooltip

Najniższa cena z 30 dni
przed obniżką

PROMOCJA
Projekt domu Milicz 55 dws
Milicz 55 dws
Dodano!
Dodano!
139,19 m²
6
2
1

5 399 zł

5 699 zł

Tooltip

Cena regularna

5 199 zł najniższa cena
Tooltip

Najniższa cena z 30 dni
przed obniżką

PROMOCJA
Projekt domu Milicz mały dws
Milicz mały dws
Dodano!
Dodano!
125,76 m²
5
2
1

4 999 zł

5 299 zł

Tooltip

Cena regularna

4 799 zł najniższa cena
Tooltip

Najniższa cena z 30 dni
przed obniżką

PROMOCJA
Projekt domu Milicz dw 13
Milicz dw 13
Dodano!
Dodano!
148,39 m²
6
2
1

5 699 zł

5 999 zł

Tooltip

Cena regularna

5 499 zł najniższa cena
Tooltip

Najniższa cena z 30 dni
przed obniżką

PROMOCJA
Projekt domu Milicz dw 8
Milicz dw 8
Dodano!
Dodano!
106,78 m²
3
2
1

5 399 zł

5 699 zł

Tooltip

Cena regularna

5 199 zł najniższa cena
Tooltip

Najniższa cena z 30 dni
przed obniżką

PROMOCJA
Projekt domu Milicz 12 dws
Milicz 12 dws
Dodano!
Dodano!
147,27 m²
5
2
1

5 299 zł

5 599 zł

Tooltip

Cena regularna

5 099 zł najniższa cena
Tooltip

Najniższa cena z 30 dni
przed obniżką

PROMOCJA
Projekt domu Milicz dw 77
Milicz dw 77
Dodano!
Dodano!
189,28 m²
5
3
1

6 199 zł

6 499 zł

Tooltip

Cena regularna

5 999 zł najniższa cena
Tooltip

Najniższa cena z 30 dni
przed obniżką

PROMOCJA
Projekt domu Milicz 23 dw
Milicz 23 dw
Dodano!
Dodano!
143,29 m²
6
2
1

5 599 zł

5 899 zł

Tooltip

Cena regularna

5 399 zł najniższa cena
Tooltip

Najniższa cena z 30 dni
przed obniżką

PROMOCJA
Projekt domu Milicz 51 dws
Milicz 51 dws
Dodano!
Dodano!
139,70 m²
6
2
1

5 299 zł

5 599 zł

Tooltip

Cena regularna

5 099 zł najniższa cena
Tooltip

Najniższa cena z 30 dni
przed obniżką

PROMOCJA
Projekt domu Milicz 22 dw
Milicz 22 dw
Dodano!
Dodano!
126,15 m²
5
2
1

5 499 zł

5 799 zł

Tooltip

Cena regularna

5 299 zł najniższa cena
Tooltip

Najniższa cena z 30 dni
przed obniżką

PROMOCJA
Projekt domu Milicz mały dw
Milicz mały dw
Dodano!
Dodano!
115,52 m²
5
2
1

5 199 zł

5 499 zł

Tooltip

Cena regularna

4 999 zł najniższa cena
Tooltip

Najniższa cena z 30 dni
przed obniżką

PROMOCJA
Projekt domu Milicz dw 7
Milicz dw 7
Dodano!
Dodano!
188,02 m²
5
3
1

6 299 zł

6 599 zł

Tooltip

Cena regularna

6 099 zł najniższa cena
Tooltip

Najniższa cena z 30 dni
przed obniżką

PROMOCJA
Projekt domu Milicz 33 dw
Milicz 33 dw
Dodano!
Dodano!
116,02 m²
5
2
2

5 499 zł

5 799 zł

Tooltip

Cena regularna

5 299 zł najniższa cena
Tooltip

Najniższa cena z 30 dni
przed obniżką

PROMOCJA
Projekt domu Milicz dw 79
Milicz dw 79
Dodano!
Dodano!
192,40 m²
5
3
1

6 599 zł

6 899 zł

Tooltip

Cena regularna

6 399 zł najniższa cena
Tooltip

Najniższa cena z 30 dni
przed obniżką

PROMOCJA
Projekt domu Milicz 53 dws
Milicz 53 dws
Dodano!
Dodano!
145,33 m²
6
2
1

5 299 zł

5 599 zł

Tooltip

Cena regularna

5 099 zł najniższa cena
Tooltip

Najniższa cena z 30 dni
przed obniżką

PROMOCJA
Projekt domu Milicz 16 dw
Milicz 16 dw
Dodano!
Dodano!
199,41 m²
4
2
2

6 199 zł

6 499 zł

Tooltip

Cena regularna

5 999 zł najniższa cena
Tooltip

Najniższa cena z 30 dni
przed obniżką

PROMOCJA
Projekt domu Milicz dw 29
Milicz dw 29
Dodano!
Dodano!
166,20 m²
4
2
1

6 299 zł

6 599 zł

Tooltip

Cena regularna

6 099 zł najniższa cena
Tooltip

Najniższa cena z 30 dni
przed obniżką

PROMOCJA
Projekt domu Milicz 17 dw
Milicz 17 dw
Dodano!
Dodano!
120,14 m²
4
2
2

5 499 zł

5 799 zł

Tooltip

Cena regularna

5 299 zł najniższa cena
Tooltip

Najniższa cena z 30 dni
przed obniżką

PROMOCJA
Projekt domu Milicz 59 dw pcr
Milicz 59 dw pcr
Dodano!
Dodano!
118,82 m²
3
2
1

5 699 zł

5 999 zł

Tooltip

Cena regularna

5 499 zł najniższa cena
Tooltip

Najniższa cena z 30 dni
przed obniżką

Podobne projekty (7292)

Zobacz wszystkie
Zdjęcie 1 projektu House 01 WRG1029
House 01
Dodano!
Dodano!
134,94 m²
4
2
2

6 390 zł

NIŻSZA CENA❄️
Zdjęcie 1 projektu Weranda 5 BSA2292
Weranda 5
Dodano!
Dodano!
150,71 m²
3
2
0

5 249 zł

5 749 zł

Tooltip

Cena regularna

5 249 zł najniższa cena
Tooltip

Najniższa cena z 30 dni
przed obniżką

Nowość
Zdjęcie 1 projektu Kompaktowy 02A KZB1020
Kompaktowy 02A
Dodano!
Dodano!
134,29 m²
4
2
1

4 700 zł

Zdjęcie 1 projektu N7-G2 KKG1041
N7-G2
Dodano!
Dodano!
143,46 m²
4
3
2

6 600 zł

NIŻSZA CENA❄️
Zdjęcie 1 projektu N-153 PZB1045
N-153
Dodano!
Dodano!
157,10 m²
4
2
1

8 541 zł

8 990 zł

Tooltip

Cena regularna

6 066 zł najniższa cena
Tooltip

Najniższa cena z 30 dni
przed obniżką

NIŻSZA CENA❄️
Zdjęcie 1 projektu Tamarillo 8 modern s2 WOF1226
Tamarillo 8 modern s2
Dodano!
Dodano!
131,48 m²
4
2
2

4 499 zł

4 699 zł

Tooltip

Cena regularna

4 399 zł najniższa cena
Tooltip

Najniższa cena z 30 dni
przed obniżką

NIŻSZA CENA❄️
Zdjęcie 1 projektu Dom przy Cyprysowej 63 KRK1682
Dom przy Cyprysowej 63
Dodano!
Dodano!
145,72 m²
5
3
1

3 490 zł

3 990 zł

Tooltip

Cena regularna

3 390 zł najniższa cena
Tooltip

Najniższa cena z 30 dni
przed obniżką

NIŻSZA CENA❄️
Zdjęcie 1 projektu Alicja Atu (1795) KRD2913
Alicja Atu (1795)
Dodano!
Dodano!
142,90 m²
6
2
1

4 740 zł

5 090 zł

Tooltip

Cena regularna

4 540 zł najniższa cena
Tooltip

Najniższa cena z 30 dni
przed obniżką

Elewacje

Frontowa
Tylna
Lewa
Prawa

Przekroje

Przekrój pionowy

Usytuowanie na działce

Czy ten projekt pasuje na
Twoją działkę?

Chętnie to sprawdzimy!

Czy ten projekt pasuje na
Twoją działkę?

Chętnie to sprawdzimy!

Dowiedz się:

  • czy zmieści się na niej wybrany przez Ciebie dom
  • jakie parametry musi spełniać dom według miejscowego planu zagospodarowania lub warunków zabudowy (np. kąt nachylenia i typ dachu, liczba kondygnacji itp.
  • jakie inne projekty pasują na Twoją działkę – znajdziemy je dla Ciebie!
Autor: Dom-Projekt

Dane techniczne projektu

Powierzchnie i wymiary Powierzchnie i wymiary

Powierzchnia użytkowa
Tooltip
Suma powierzchni wszystkich pomieszczeń mieszkalnych, pomniejszona o pow. garażu, kotłowni, strychu, piwnicy. Jest liczona w 100% dla pomieszczeń o wysokości powyżej 2,2 m, w 50% dla pomieszczeń o wys. 2,2-1,4 m i niewliczana dla niższych niż 1,4 m.

155,59 m²

Wysokość ściany kolankowej
Tooltip
Wysokość ściany podpierającej dach. Jej wysokość wpływa na powierzchnię użytkową kondygnacji, na której się znajduje.

0,84 m

Powierzchnia zabudowy
Tooltip
Powierzchnia zajmowana przez część na- oraz nadziemną budynku liczona, jako rzut pionowy budynku na działkę.

144,84 m²

Powierzchnia netto
Tooltip
Powierzchna wszystkich pomieszczeń w budynku mierzona na wysokości podłogi.

238,36 m²

Kubatura brutto
Tooltip
Zazwyczaj jest to suma kubatur (objętości) wszystkich pomieszczeń budynku, liczonych po zewnętrznym obrysie murów (z ociepleniem).

766,60 m³

Powierzchnia dachu

287,67 m²

Kąt nachylenia dachu
Tooltip
Nachylenie połaci dachu głównego podawane w stopniach. Uwaga! W niektórych projektach występuje więcej niż jedno nachylenie dachu.

42°

Wysokość budynku
Tooltip
Wysokość liczona od części budynku położonej najniżej przy powierzchni terenu do najwyższego punktu dachu (kalenicy) z wyłączeniem kominów.

8,46 m

Min. szerokość działki
Tooltip
Najmniejsza możliwa szerokość działki niezbędna do wybudowania wybranego domu. Składa się z szerokości elewacji domu powiększonej z obu stron o 3 m dla ściany bez otworów drzwiowych/okiennych lub 4 m, dla ściany z otworami.

26,20 m

Min. długość działki
Tooltip
Najmniejsza możliwa długość działki niezbędna do wybudowania wybranego domu. Składa się z długości elewacji domu powiększonej z obu stron o 3 m dla ściany bez otworów drzwiowych/okiennych lub 4 m, dla ściany z otworami.

17,48 m

Energooszczędność Energooszczędność

Oze Czym jest OZE (Odnawialne Źródło Energii)?
Warunki techniczne

Projekt zgody z WT 2021

Technologia i konstrukcja Technologia i konstrukcja

Konstrukcja

Z bali

Opis szczegółowy

Wysokość ścianki kolankowej: 0.84 m. Ilość drewna na więźbę: 13.57 m³. Strop: drewniany. Pokrycie dachu: dachówka gontopodobna Gerard Corona. Ściany zewnętrzne: płazy drewniane + wełna mineralna + deska. Ściany wewnętrzne: płazy drewniane. Typ ogrzewania: kocioł gazowy lub kocioł na paliwo stałe. Instalacje dodatkowe: instalacja solarna. Inne: okna połaciowe Fakro.

Strop

Drewniany

Reklama
Okna i drzwi tarasowe

Nowoczesne okna PVC i aluminiowe WIŚNIOWSKI – doskonała izolacja, elegancki design i niezrównana trwałość.

Wiśniowski
Sprawdź parametry!
Okna dachowe

Oferujemy bezpłatne konsultacje w zakresie wszystkich rozwiązań VELUX. Wyceny, porady dotyczące doboru okien i rolet zewnętrznych - sprawdź!

Velux
Sprawdź szczegóły
Płytki ceramiczne i gresy

Od małych formatów po wielkoformatowe gresy. Marmur, beton, drewno, kamień, lastryko czy cegiełki zamówisz wygodnie online z szybką dostawą.

Ceramzet
Sprawdź ofertę
Drzwi

Ciepłe drzwi WIŚNIOWSKI z kontrolą dostępu. Szeroka gama wzorów i kolorów.

Wiśniowski
Wybierz najlepsze
Bramy garażowe

Automatyczne bramy garażowe segmentowe i uchylne WIŚNIOWSKI na wymiar i z systemem smart home w standardzie.

Wiśniowski
Sprawdź ofertę!
Armatura i ceramika łazienkowa

Topowi producenci. Baterie łazienkowe, zestawy natynkowe i podtynkowe, umywalki, wanny, miski WC oraz kabiny zamówisz kompleksowo online.

Ceramzet II
Dowiedz się więcej
Rekuperacja

Alnor - kompletny system rekuperacji. Dobierz idealne rozwiązanie dla Twojego domu!

Alnor
Dobierz rekuperator
Gruntowe pompy ciepła

Przeprowadzimy kompletną instalację najbardziej oszczędnego źródła ciepła w Twoim nowym domu - gruntowej pompy ciepła. Od dokumentacji, pozwoleń, po odwierty i instalację.

Geothermal Solutions
Dowiedz się więcej

Gotowe domy modułowe (114)

Zobacz wszystkie
Stan deweloperski nawet w 6 miesięcy Gwarancja stałej ceny
Zdjęcie 1 projektu Dom prefabrykowany Stodoła 150C HFX1026
Pow. użytkowa
152,90 m²
Pokoje
5
589 000 zł 3 852 zł/m²
Zdjęcie 1 projektu Dom prefabrykowany Stodoła 150A HFX1024
Pow. użytkowa
152,20 m²
Pokoje
5
589 000 zł 3 870 zł/m²
Zdjęcie 1 projektu Dom prefabrykowany P.2 HPK1001
Pow. użytkowa
159,18 m²
Pokoje
5
832 200 zł 5 228 zł/m²
Zdjęcie 1 projektu Dom prefabrykowany Stodoła 150B HFX1025
Pow. użytkowa
151,30 m²
Pokoje
4
589 000 zł 3 893 zł/m²
Zdjęcie 1 projektu Dom prefabrykowany P.4 bez okapu HPK1003
Pow. użytkowa
162,18 m²
Pokoje
4
701 000 zł 4 322 zł/m²
Zdjęcie 1 projektu Dom prefabrykowany P.4 z okapem HPK1014
Pow. użytkowa
162,18 m²
Pokoje
5
710 500 zł 4 381 zł/m²
Zdjęcie 1 projektu Dom prefabrykowany DH174 HDH1009
Pow. użytkowa
162,97 m²
Pokoje
4
1 026 000 zł 5 796 zł/m²
Zdjęcie 1 projektu Dom szkieletowy Viking Smart 220 HHT1032
Pow. użytkowa
163,86 m²
Pokoje
4
1 095 606 zł 6 686 zł/m²

Opis projektu domu
Milicz dw14

Budynek Milicz dw14 został stworzony na wzór cieszącego się popularnością projektu Milicz 9s. W odróżnieniu od podstawowej wersji projekt ma więcej pokoi, większą powierzchnię, więcej stanowisk garażowych, piwnicy. Projekt domu Milicz dw14 jest doskonałym rozwiązaniem dla osób posiadających średniej szerokości działkę. Dom charakteryzuje się typową bryłą, co znacznie ułatwia proces budowy. W tym projekcie kalenica usytuowana jest równolegle do drogi, co często określane jest w warunkach zabudowy. Dom został stworzony do zabudowy wolnostojącej. W projekcie zaplanowano garaż dwustanowiskowy w linii budynku. Konstrukcja domu zwieńczona jest dachem dwuspadowym, co pozwala na ograniczenie kosztów. Projekt Milicz dw14 to dom parterowy z poddaszem użytkowym, dzięki czemu mamy możliwość zagospodarowania większej powierzchni. Autor projektu przewidział w nim ciekawie prezentującą się strefę dzienną. Tworzy ją między innymi kuchnia, która będzie idealnym rozwiązaniem zarówno dla tradycyjnych, jak i nowoczesnych gospodyń domowych. Usytuowany w salonie kominek sprawi, iż wnętrze stanie się bardziej przytulne. Łazienka na parterze sprawdzi się podczas odwiedzin gości, a druga ulokowana na poddaszu - dla domowników. W domu znajduje się pięć wygodnych sypialni, co sprawia iż jest on doskonałym wyborem dla 5-7 osobowej rodziny. Przestrzeń można wykorzystać także jako pokój dla gości lub gabinet. Na komfortowe użytkowanie domu ma również wpływ uwzględnione w nim pomieszczenie gospodarcze. Z pewnością każdy Inwestor doceni także werandę, dzięki której projekt jest oryginalny i urokliwy. Milicz dw14 zadowoli Inwestorów ceniących cechy stylu tradycyjnego, co jest idealnym rozwiązaniem dla osób ceniących klasykę i prostotę.
Czytaj więcej

Polecani producenci

Prefabrykowane konstrukcje dachowe

tło producenta

WIĄZAR POLSKA

Zobacz więcej

Sprawdź nową generację okien GREENVIEW

tło producenta

FAKRO

Sprawdź nową generację okien GREENVIEW

Styropian, tynki, farby, kleje

tło producenta

Termo Organika

Poznaj super jakość

Okna, drzwi, osłony przeciwsłoneczne

tło producenta

Aluprof

Sprawdź ofertę

Kompletne systemy rekuperacji

tło producenta

Alnor

Dowiedz się więcej

Sprawdź nowy system DACHRYNNA

tło producenta

Galeco

Sprawdź ofertę
Zobacz więcej

Społeczność projektu domu
Milicz dw14 w budowie

Dołącz do społeczności osób, które budują ten dom lub są zainteresowane jego budową.

  • Oglądaj zdjęcia z budowy
  • Zadawaj pytania
  • Wymieniaj się doświadczeniami

Opinie o projekcie domu Milicz dw14

Ocena

Ten projekt nie ma jeszcze opinii, bądź pierwszy!

Dodaj opinię

ASYSTENT WYBORU PROJEKTU

Szukasz idealnego projektu? Znajdziemy go dla Ciebie!

Doradca na podstawie Twoich wskazówek przygotuje spersonalizowaną listę projektów

Graficzne opracowanie rzutów poglądowych widocznych na karcie projektu zostało wykonane przez Extradom.pl. Prezentowane przez Extradom.pl wizualizacje wykonane zostały przez autora projektu i należy poczytywać je jedynie za przykład i propozycję wykończenia, wizję architektoniczną autora projektu. Ostateczne wykończenie budynku może nastąpić na wiele sposobów. Szczegółowe rozwiązania zastosowane w oferowanej dokumentacji - w tym również ilość, lokalizacje i wygląd okien, drzwi, kominów - mogą w niewielkim stopniu różnić się od prezentowanej wizualizacji budynku.

REKLAMA
Zamknij