👉 Odbierz prezent 🎁

Koniec oferty za:

00godz.

00min.

00sek.

Sprawdź

Projekt domu Tyniec 01 KZB1005

Zapisz Dodano!
Porównaj Dodano!
ikona Pobierz i drukuj

Warstwy

Wymiary wewnętrzne

Powierzchnie pomieszczeń

Numery pomieszczeń

Meble

Kolory pomieszczeń

Warstwy

Wymiary wewnętrzne

Powierzchnie pomieszczeń

Numery pomieszczeń

Meble

Kolory pomieszczeń

Rzut parteru

Powierzchnia (m²)
Tooltip
Powierzchnia pomieszczenia
to ta, z której faktycznie możesz korzystać – skosy i niskie części poddasza są liczone częściowo lub wcale.
  1. 100% dla wysokości powyżej 2,2 m,
  2. 50% dla wysokości 1,4–2,2 m,
  3. nie liczymy poniżej 1,4 m.

Powierzchnia podłogi
Liczymy po obrysie pomieszczenia, bez względu na jego wysokość/skosy. Jeśli nie ma skosów to powierzchnia podłogi i pomieszczenia jest taka sama.
pomieszczenia
podłogi
1. Wiatrołap
3,15
3,15
2. Korytarz
6,21
6,21
3. Łazienka
3,98
3,98
4. Pokój
10,18
10,18
5. Schody
0,59
3,16
6. Pokój dzienny + kuchnia + jadalnia
48,53
48,53
7. Pomieszczenie gospodarcze
1,36
5,73
8. Kotłownia
2,50
2,50
9. Garaż jednostanowiskowy
31,22
31,22
Razem
107,72
114,66
10. Taras
4,72
11. Taras
18
Powierzchnia (m²)
Tooltip
Powierzchnia pomieszczenia
to ta, z której faktycznie możesz korzystać – skosy i niskie części poddasza są liczone częściowo lub wcale.
  1. 100% dla wysokości powyżej 2,2 m,
  2. 50% dla wysokości 1,4–2,2 m,
  3. nie liczymy poniżej 1,4 m.

Powierzchnia podłogi
Liczymy po obrysie pomieszczenia, bez względu na jego wysokość/skosy. Jeśli nie ma skosów to powierzchnia podłogi i pomieszczenia jest taka sama.
pomieszczenia
podłogi
1. Schody
3,16
3,16
2. Korytarz
9,04
9,04
3. Pokój
12,63
13,82
4. Garderoba
3,34
4,42
5. Łazienka
6,14
7,30
6. Pokój
16,16
18,36
7. Pokój
16,16
18,36
8. Garderoba
3,65
4,55
9. Pralnia
2,37
2,90
Razem
72,65
81,91

    Usytuowanie na działce

    Czy ten projekt pasuje na
    Twoją działkę?

    Chętnie to sprawdzimy!

    Dowiedz się:

    • czy zmieści się na niej wybrany przez Ciebie dom
    • jakie parametry musi spełniać dom według miejscowego planu zagospodarowania lub warunków zabudowy (np. kąt nachylenia i typ dachu, liczba kondygnacji itp.
    • jakie inne projekty pasują na Twoją działkę – znajdziemy je dla Ciebie!

Pow. użytkowa

151,72 m²

Pokoje

4

Łazienki i WC

2

Garaż

1

Min. szer. i dł. działki

22,36 x 21,36 m

Kąt dachu

42°

Szacunkowy koszt SSZ

381 000 zł
Szacunkowy koszt budowy do stanu surowego zamkniętego (SSZ) metodą gospodarczą - większość prac wykonuje inwestor.

Konstrukcja

Murowana
więcej

Tyniec 01 - KZB1005

ikona 151,72 m²
Powierzchnia użytkowa
ikona4
Pokoje (bez salonu)
ikona 2
Łazienki (z toaletami)
ikona 1
Liczba stanowisk garażowych
(z wiatą garażową)
ikona
Konstrukcja: Murowana

4 600 zł

Wydłużony czas realizacji

Gwarancja najniższej ceny
ikona
Darmowa dostawa
Paczkomaty, kurier
ikona
100 dni na wymianę,
30 dni na zwrot
ikona Zyskaj najwięcej! Extradodatki GRATIS:

15% rabatu do LEROY MERLIN

16% rabatu w SELSEY

Pakiet Formalności 2026

Przydatne Extradodatki

Poradnik Dach Solarny

ikona Co zawiera projekt?
  • Projekt zgodny z WT2021, przygotowany przez architekta z uprawnieniami
  • Bezpłatne pozwolenie na zmiany
  • Charakterystyka energetyczna
Konsultant
71 715 20 60

pon.-pt. 8-21, sob. 9-17

Szukasz wykonawcy godnego zaufania?
Zleć budowę w Extradom.pl!

  • Z góry znasz koszt budowy domu
  • Dom odbierasz zgodnie z ustalonym harmonogramem - nawet w 6 miesięcy
  • Zabezpiecza Cię jedna kompleksowa umowa z jednym wykonawcą
  • Otrzymujesz nawet 30-letnią gwarancję na konstrukcję domu
  • Oszczędzasz swój czas dzięki pewnej i kompletnej usłudze
Cena brutto stanu
deweloperskiego od
Tooltip
Cena brutto stanu deweloperskiego od 4 309 do 5 479 zł/m2.
Cena jest uzależniona m.in. od lokalizacji, wybranej technologii, kubatury budynku, skomplikowania projektu i ewentualnych zmian, na które zdecyduje się inwestor.
Cena za m2 powierzchni netto, czyli wszystkich pomieszczeń mierzonych na wysokości podłogi.
4 309 zł/m2
Dowiedz się więcej
Konsultant Masz pytania?
Zadzwoń
71 718 89 70

pon.-pt. 8-19

Parter - 107,72 m²

Warstwy

Wymiary wewnętrzne

Meble

Powierzchnie pomieszczeń

Kolory pomieszczeń

Numery pomieszczeń

Zapytaj, co możesz zmienić

Oznaczenia na rzutach

Lodówka

Suszarka

Zmywarka

Suszarka nad pralką

Kuchenka

Pralka

Piekarnik

Szafa

Kocioł

Pompa ciepła

Kominek

Rekuperacja

Szerokość stolarki
Wysokość stolarki

Legenda Zobacz oznaczenia użyte na rzutach

Powierzchnia (m²)
Tooltip
Powierzchnia pomieszczenia
to ta, z której faktycznie możesz korzystać – skosy i niskie części poddasza są liczone częściowo lub wcale.
  1. 100% dla wysokości powyżej 2,2 m,
  2. 50% dla wysokości 1,4–2,2 m,
  3. nie liczymy poniżej 1,4 m.

Powierzchnia podłogi
Liczymy po obrysie pomieszczenia, bez względu na jego wysokość/skosy. Jeśli nie ma skosów to powierzchnia podłogi i pomieszczenia jest taka sama.
pomieszczenia
podłogi
1. Wiatrołap
3,15
3,15
2. Korytarz
6,21
6,21
3. Łazienka
3,98
3,98
4. Pokój
10,18
10,18
5. Schody
0,59
3,16
6. Pokój dzienny + kuchnia + jadalnia
48,53
48,53
7. Pomieszczenie gospodarcze
1,36
5,73
8. Kotłownia
2,50
2,50
9. Garaż jednostanowiskowy
31,22
31,22
Razem
107,72
114,66
10. Taras
4,72
11. Taras
18

Natychmiast, otrzymasz PDF-y
z rzutami wszystkich kondygnacji

Oznaczenia na rzutach

Lodówka

Suszarka

Zmywarka

Suszarka nad pralką

Kuchenka

Pralka

Piekarnik

Szafa

Kocioł

Pompa ciepła

Kominek

Rekuperacja

Szerokość stolarki
Wysokość stolarki

Legenda Zobacz oznaczenia użyte na rzutach

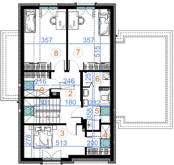
Poddasze - 72,65 m²

Warstwy

Wymiary wewnętrzne

Meble

Powierzchnie pomieszczeń

Kolory pomieszczeń

Numery pomieszczeń

Zapytaj, co możesz zmienić

Oznaczenia na rzutach

Lodówka

Suszarka

Zmywarka

Suszarka nad pralką

Kuchenka

Pralka

Piekarnik

Szafa

Kocioł

Pompa ciepła

Kominek

Rekuperacja

Szerokość stolarki
Wysokość stolarki

Legenda Zobacz oznaczenia użyte na rzutach

Powierzchnia (m²)
Tooltip
Powierzchnia pomieszczenia
to ta, z której faktycznie możesz korzystać – skosy i niskie części poddasza są liczone częściowo lub wcale.
  1. 100% dla wysokości powyżej 2,2 m,
  2. 50% dla wysokości 1,4–2,2 m,
  3. nie liczymy poniżej 1,4 m.

Powierzchnia podłogi
Liczymy po obrysie pomieszczenia, bez względu na jego wysokość/skosy. Jeśli nie ma skosów to powierzchnia podłogi i pomieszczenia jest taka sama.
pomieszczenia
podłogi
1. Schody
3,16
3,16
2. Korytarz
9,04
9,04
3. Pokój
12,63
13,82
4. Garderoba
3,34
4,42
5. Łazienka
6,14
7,30
6. Pokój
16,16
18,36
7. Pokój
16,16
18,36
8. Garderoba
3,65
4,55
9. Pralnia
2,37
2,90
Razem
72,65
81,91

Natychmiast, otrzymasz PDF-y
z rzutami wszystkich kondygnacji

Oznaczenia na rzutach

Lodówka

Suszarka

Zmywarka

Suszarka nad pralką

Kuchenka

Pralka

Piekarnik

Szafa

Kocioł

Pompa ciepła

Kominek

Rekuperacja

Szerokość stolarki
Wysokość stolarki

Legenda Zobacz oznaczenia użyte na rzutach

Zamów rysunki szczegółowe

Zapoznaj się ze szczegółowymi rysunkami rzutów kondygnacji w PDF dla tego projektu.

Warianty projektu (2)

Projekt domu Tyniec 02
Tyniec 02
Dodano!
Dodano!
138,28 m²
5
3
2

5 800 zł

Projekt domu Tyniec 03A
Tyniec 03A
Dodano!
Dodano!
136,04 m²
5
3
2

5 800 zł

Podobne projekty (457)

Zobacz wszystkie
PREZENT 🎁
Zdjęcie 1 projektu BW-27 JGC1240
BW-27
Dodano!
Dodano!
141,60 m²
4
2
1

4 080 zł

PREZENT 🎁
Zdjęcie 1 projektu NewHouse 759 KRZ1070
NewHouse 759
Dodano!
Dodano!
157 m²
4
3
2

5 990 zł

PREZENT 🎁
Zdjęcie 1 projektu Vincent 3 WOF1265
Vincent 3
Dodano!
Dodano!
134,53 m²
4
2
1

5 099 zł

PREZENT 🎁
Zdjęcie 1 projektu APS 352 LUA1636
APS 352
Dodano!
Dodano!
157,40 m²
5
2
2

5 899 zł

PREZENT 🎁
Zdjęcie 1 projektu Wolta 3 BSA2178
Wolta 3
Dodano!
Dodano!
168,57 m²
4
2
2

6 149 zł

PREZENT 🎁
Zdjęcie 1 projektu Ajaks Max WOE1120
Ajaks Max
Dodano!
Dodano!
138,61 m²
4
2
1

4 599 zł

PREZENT 🎁
Zdjęcie 1 projektu Vincent WOF1228
Vincent
Dodano!
Dodano!
133,87 m²
4
2
2

5 899 zł

PREZENT 🎁
Zdjęcie 1 projektu BrickHouse 794 w1 KRZ1112
BrickHouse 794 w1
Dodano!
Dodano!
152,13 m²
4
2
1

6 190 zł

Metody i koszt budowy

Ten dom możesz budować metodą gospodarczą, systemem zleconym lub skorzystać z naszej oferty Projekt z Budową. Przy porównaniu weź pod uwagę nie tylko koszt, ale też różny zakres prac i standard wykonania.

Metoda gospodarcza

Najtańsza metoda - większość prac
budowlanych wykonuje inwestor

Stan surowy zamknięty (SSZ)

381 000 zł netto

Szacunkowy koszt materiałów na I kwartał 2026
  • Prace ziemne i fundamenty

    59 000 zł
  • Konstrukcja, strop oraz dach

    266 000 zł
  • Stolarka okienna i drzwiowa

    56 000 zł
  • Instalacje

    nie obejmuje
  • Prace wykończeniowe

    nie obejmuje
  • Możesz budować etapami, pamiętając jednak o zmianie kosztów w czasie
  • Możesz rozpocząć budowę z częścią niezbędnych środków
  • Sam ustalasz harmonogram, koordynujesz budowę i zapewniasz materiały
Czy da się obniżyć koszty budowy?
Zobacz nasz film jak obniżyć koszt budowy

Projekt z Budową

Najszybsza i najwygodniejsza metoda -
całą budowę domu realizuje jedna firma

Stan deweloperski
Gwarancja stałego kosztu budowy

Gwarancja stałego
kosztu budowy

  • Prace ziemne i fundamenty
  • Konstrukcja, strop oraz dach
  • Stolarka okienna i drzwiowa
  • Instalacje  
    Tooltip

    Obejmuje wykonanie instalacji:

    • wodno-kanalizacyjnej
    • centralnego ogrzewania
    • gazowej
    • elektrycznej
  • Prace wykończeniowe  
    Tooltip

    Prace wykończeniowe obejmują:

    • sufity i ściany wewnętrzne
    • tynki i okładziny ścian wewnętrznych
    • wylewki i posadzkę
    • ocieplenie ścian zewnętrznych i elewację

Budowa
nawet w
6mies.

  • Kompleksowa umowa i znany z góry koszt budowy
  • Logistyka, organizacja budowy i zakupy po stronie firmy budowlanej
  • Formalności i dokumentacje po stronie firmy budowlanej
  • Różne technologie budowy dopasowane do projektu i budżetu
Szczegóły i dostępne technologie

Elewacje

Frontowa
Tylna
Lewa
Prawa

Usytuowanie na działce

Czy ten projekt pasuje na
Twoją działkę?

Chętnie to sprawdzimy!

Czy ten projekt pasuje na
Twoją działkę?

Chętnie to sprawdzimy!

Dowiedz się:

  • czy zmieści się na niej wybrany przez Ciebie dom
  • jakie parametry musi spełniać dom według miejscowego planu zagospodarowania lub warunków zabudowy (np. kąt nachylenia i typ dachu, liczba kondygnacji itp.
  • jakie inne projekty pasują na Twoją działkę – znajdziemy je dla Ciebie!
Autor: Domato

Dane techniczne projektu

Powierzchnie i wymiary Powierzchnie i wymiary

Powierzchnia użytkowa
Tooltip
Suma powierzchni wszystkich pomieszczeń mieszkalnych, pomniejszona o pow. garażu, kotłowni, strychu, piwnicy. Jest liczona w 100% dla pomieszczeń o wysokości powyżej 2,2 m, w 50% dla pomieszczeń o wys. 2,2-1,4 m i niewliczana dla niższych niż 1,4 m.

151,72 m²

Powierzchnia zabudowy
Tooltip
Powierzchnia zajmowana przez część na- oraz nadziemną budynku liczona, jako rzut pionowy budynku na działkę.

147,60 m²

Powierzchnia netto
Tooltip
Powierzchna wszystkich pomieszczeń w budynku mierzona na wysokości podłogi.

194 m²

Kubatura brutto
Tooltip
Zazwyczaj jest to suma kubatur (objętości) wszystkich pomieszczeń budynku, liczonych po zewnętrznym obrysie murów (z ociepleniem).

892,60 m³

Kąt nachylenia dachu
Tooltip
Nachylenie połaci dachu głównego podawane w stopniach. Uwaga! W niektórych projektach występuje więcej niż jedno nachylenie dachu.

42°

Wysokość budynku
Tooltip
Wysokość liczona od części budynku położonej najniżej przy powierzchni terenu do najwyższego punktu dachu (kalenicy) z wyłączeniem kominów.

8,60 m

Szerokość elewacji

14,36 m

Długość elewacji

13,36 m

Min. szerokość działki
Tooltip
Najmniejsza możliwa szerokość działki niezbędna do wybudowania wybranego domu. Składa się z szerokości elewacji domu powiększonej z obu stron o 3 m dla ściany bez otworów drzwiowych/okiennych lub 4 m, dla ściany z otworami.

22,36 m

Min. długość działki
Tooltip
Najmniejsza możliwa długość działki niezbędna do wybudowania wybranego domu. Składa się z długości elewacji domu powiększonej z obu stron o 3 m dla ściany bez otworów drzwiowych/okiennych lub 4 m, dla ściany z otworami.

21,36 m

Energooszczędność Energooszczędność

Oze Czym jest OZE (Odnawialne Źródło Energii)?
Ogrzewanie główne

Gazowe - szczegóły

Interesuje Cię inne źródło ogrzewania? Wyślij zapytanie lub zadzwoń do doradcy

Instalacje w projekcie

Ogrzewanie podłogowe (na całej powierzchni domu lub w jej części, szczegóły u doradcy)

Warunki techniczne

Projekt zgody z WT 2021

Technologia i konstrukcja Technologia i konstrukcja

Konstrukcja

Murowana

PROJEKT Z BUDOWĄ Istnieje możliwość zaadaptowania tego projektu do technologii prefabrykowanej/modułowej i budowy nawet w 6 miesięcy ze stałym kosztem budowy

Dowiedz się więcej »
Opis szczegółowy

Fundamenty: ławy żelbetowe. Ściany konstrukcja: pustak ceramiczny Porotherm. Ściany elewacja: tynk + drewno. Stropy: żelbetowe monolityczne. Dach konstrukcja: więźba drewniana płatwiowo-kleszczowa. Dach pokrycie: dachówka płaska. Schody: żelbetowe. Ogrzewanie kocioł: kocioł gazowy dwufunkcyjny. Ogrzewanie grzejniki: grzejniki ścienne + ogrzewanie podłogowe.

Strop

Żelbetowy

Reklama
Okna i drzwi tarasowe

Nowoczesne okna PVC i aluminiowe WIŚNIOWSKI – doskonała izolacja, elegancki design i niezrównana trwałość.

Wiśniowski
Sprawdź parametry!
Okna dachowe

Oferujemy bezpłatne konsultacje w zakresie wszystkich rozwiązań VELUX. Wyceny, porady dotyczące doboru okien i rolet zewnętrznych - sprawdź!

Velux
Sprawdź szczegóły
Pompa ciepła

Wybierz pompę ciepła, która pasuje do Twojego domu. Niezależnie od tego, czy ustawienie wewnątrz czy na zewnątrz, pompy ciepła STIEBEL ELTRON dopasują się do każdej przestrzeni.

Stiebel
Dobierz pompę ciepła
Drzwi

Ciepłe drzwi WIŚNIOWSKI z kontrolą dostępu. Szeroka gama wzorów i kolorów.

Wiśniowski
Wybierz najlepsze
Bramy garażowe

Automatyczne bramy garażowe segmentowe i uchylne WIŚNIOWSKI na wymiar i z systemem smart home w standardzie.

Wiśniowski
Sprawdź ofertę!
Rekuperacja

Alnor - kompletny system rekuperacji. Dobierz idealne rozwiązanie dla Twojego domu!

Alnor
Dobierz rekuperator
Dach

Producent stalowych pokryć dachowych i systemów elewacyjnych. Precyzja wykonania, trwałość na lata i szybki montaż doceniany przez dekarzy. Postaw na solidny dach Budmat.

Budmat
Sprawdź ofertę
Ogrodzenie

Nowoczesne stalowe ogrodzenia Budmat - estetyka, bezpieczeństwo i trwałość na lata. Systemowe rozwiązania na wymiar, dopasowane do każdego domu.

Budmat
Sprawdź ofertę

Gotowe domy - najszybszy sposób na dom (115)

Zobacz wszystkie
  • Stan deweloperski nawet w 6 miesięcy
  • Gwarancja stałej ceny
Skonfiguruj dom
Zdjęcie 1 projektu Bergen 130 HUS1002
130,40 m²
4
Stan deweloperski brutto
499 000 zł 3 827 zł/m²
Zdjęcie 1 projektu Dom prefabrykowany Stodoła 150B HFX1025
151,30 m²
4
Stan deweloperski brutto
590 000 zł 3 900 zł/m²
Zdjęcie 1 projektu Dom prefabrykowany Stodoła 150A HFX1024
152,20 m²
5
Stan deweloperski brutto
590 000 zł 3 876 zł/m²
Zdjęcie 1 projektu Dom prefabrykowany Stodoła 150C HFX1026
152,90 m²
5
Stan deweloperski brutto
590 000 zł 3 859 zł/m²
Zdjęcie 1 projektu Dom szkieletowy Open Sky 195 HHT1029
145,04 m²
4
Stan deweloperski brutto
940 300 zł 6 483 zł/m²
Zdjęcie 1 projektu Dom prefabrykowany P.2 HPK1001
159,18 m²
5
Stan deweloperski brutto
847 000 zł 5 321 zł/m²
Zdjęcie 1 projektu Dom prefabrykowany P.4 bez okapu HPK1003
162,18 m²
5
Stan deweloperski brutto
723 500 zł 4 461 zł/m²
Zdjęcie 1 projektu Dom prefabrykowany P.4 z okapem HPK1014
162,18 m²
5
Stan deweloperski brutto
739 600 zł 4 560 zł/m²

Opis projektu domu
Tyniec 01

Tyniec 01 to projekt domu nowoczesnego swobodnie nawiązujący do stylu nowoczesnej stodoły, który zadowoli nawet najbardziej wymagających miłośników nowoczesnych rozwiązań architektonicznych. Jest zaprojektowany nowocześnie i ze świeżym spojrzeniem, ale jednocześnie spodoba się tym, którzy ufają w sprawdzone rozwiązania. Dom Tyniec 01 będzie zatem idealny dla 4-5 osobowej rodziny, której zależy na tym, żeby komfortowo mieszkać w ergonomicznych, wyjątkowo przestronnych wnętrzach doświetlonych dużymi oknami. Dodatkowymi atutami tego projektu są pomieszczenia schowków, osobne pralni i kotłowni oraz gabinet na parterze. Jego interesująca bryła została uzyskana poprzez zabieg przenikania się głównej bryły domu – stodoły z prostopadłościanami garażu i pokoju dziennego.
Czytaj więcej

Polecani producenci

Kompletne systemy rekuperacji

tło producenta

Alnor

Dowiedz się więcej

Dachy modułowe ze stali

tło producenta

Budmat

Poznaj szczegóły oferty

Prefabrykowane konstrukcje dachowe

tło producenta

WIĄZAR POLSKA

Zobacz więcej

Sprawdź nową generację okien GREENVIEW

tło producenta

FAKRO

Sprawdź nową generację okien GREENVIEW

Styropian, tynki, farby, kleje

tło producenta

Termo Organika

Poznaj super jakość

Okna, drzwi, osłony przeciwsłoneczne

tło producenta

Aluprof

Sprawdź ofertę
Zobacz więcej

Społeczność projektu domu
Tyniec 01 w budowie

Dołącz do społeczności osób, które budują ten dom lub są zainteresowane jego budową.

  • Oglądaj zdjęcia z budowy
  • Zadawaj pytania
  • Wymieniaj się doświadczeniami

Opinie o projekcie domu Tyniec 01

Ocena

Ten projekt nie ma jeszcze opinii, bądź pierwszy!

Dodaj opinię

ASYSTENT WYBORU PROJEKTU

Szukasz idealnego projektu? Znajdziemy go dla Ciebie!

Doradca na podstawie Twoich wskazówek przygotuje spersonalizowaną listę projektów

Graficzne opracowanie rzutów poglądowych widocznych na karcie projektu zostało wykonane przez Extradom.pl. Prezentowane przez Extradom.pl wizualizacje wykonane zostały przez autora projektu i należy poczytywać je jedynie za przykład i propozycję wykończenia, wizję architektoniczną autora projektu. Ostateczne wykończenie budynku może nastąpić na wiele sposobów. Szczegółowe rozwiązania zastosowane w oferowanej dokumentacji - w tym również ilość, lokalizacje i wygląd okien, drzwi, kominów - mogą w niewielkim stopniu różnić się od prezentowanej wizualizacji budynku.

Extradom.pl Spółka z ograniczoną odpowiedzialnością z siedzibą przy ul. Jaworskiej 13, 53-612 Wrocław, wpisana do rejestru przedsiębiorców Krajowego Rejestru Sądowego przez Sąd Rejonowy dla Wrocławia-Fabrycznej we Wrocławiu, VI Wydział Gospodarczy Krajowego Rejestru Sądowego do pod numerem KRS 0000648746, numer NIP 895-17-18-333, o kapitale zakładowym 708 150,00 zł uprzejmie informuje, iż poprzez serwis Extradom.pl umożliwia m.in. zapoznanie się przez konsumentów z ofertą handlową Partnerów Extradom.pl, którzy stosują metody budowy domów przy wykorzystaniu różnego rodzaju technologie prefabrykacji bądź modułowe (tzw. „Gotowe domy”).

Extradom.pl nie prowadzi jednakże sprzedaży ani nie oferuje usług polegających na doradztwie finansowym, prawnym ani podatkowym w zakresie inwestycji realizowanych w technologiach tzw. „Gotowych domów”. Informacje prezentowane w serwisie Extradom.pl dotyczące Partnerów Extradom.pl oferujących realizację inwestycji w technologiach „Gotowych domów” lub podobnych mają charakter informacyjny i reklamowy.

Prezentowane w serwisie Extradom.pl informacje dotyczące stosowanych przez Partnerów metod budowy domów w technologii prefabrykacji bądź modułowej pochodzą od Partnerów Extradom.pl.

Extradom.pl sp. z o.o. jedynie umożliwia nawiązanie kontaktu przez Użytkownika z Partnerem Extradom.pl stosującym tego rodzaju technologie budowy domów i nie jest stroną umowy o roboty budowlane zawieranej przez Użytkownika Extradom.pl z Partnerem Extradom.pl.

REKLAMA
Zamknij