👉 Projekty w extracenach! ✂️

Koniec oferty za:

00godz.

00min.

00sek.

Sprawdź

Projekt domu Julka 4 WAH1238

Dodano!
Dodano!

Warstwy

Warstwy

Rzut parteru

Powierzchnia (m²)
Tooltip
Powierzchnia pomieszczenia
to ta, z której faktycznie możesz korzystać – skosy i niskie części poddasza są liczone częściowo lub wcale.
  1. 100% dla wysokości powyżej 2,2 m,
  2. 50% dla wysokości 1,4–2,2 m,
  3. nie liczymy poniżej 1,4 m.

Powierzchnia podłogi
Liczymy po obrysie pomieszczenia, bez względu na jego wysokość/skosy. Jeśli nie ma skosów to powierzchnia podłogi i pomieszczenia jest taka sama.
pomieszczenia i podłogi
podłogi
1. Wiatrołap
3,37
2. Hall
9,36
3. Spiżarnia
1,60
4. Kuchnia
9,61
5. Pokój dzienny + jadalnia
42,09
6. Wc
2
7. Pomieszczenie gospodarcze
6,39
8. Kotłownia
6,53
9. Garaż jednostanowiskowy
20,23
Razem
101,18
101,18
Powierzchnia (m²)
Tooltip
Powierzchnia pomieszczenia
to ta, z której faktycznie możesz korzystać – skosy i niskie części poddasza są liczone częściowo lub wcale.
  1. 100% dla wysokości powyżej 2,2 m,
  2. 50% dla wysokości 1,4–2,2 m,
  3. nie liczymy poniżej 1,4 m.

Powierzchnia podłogi
Liczymy po obrysie pomieszczenia, bez względu na jego wysokość/skosy. Jeśli nie ma skosów to powierzchnia podłogi i pomieszczenia jest taka sama.
pomieszczenia
podłogi
1. Strych
17,77
27,05
2. Pokój
17,28
18,48
3. Hall
5,93
5,93
4. Pokój
15,29
16,35
5. Pokój
16,60
20,28
6. Łazienka
9,77
12,92
Razem
82,64
101,01

    Usytuowanie na działce

    Czy ten projekt pasuje na
    Twoją działkę?

    Chętnie to sprawdzimy!

    Dowiedz się:

    • czy zmieści się na niej wybrany przez Ciebie dom
    • jakie parametry musi spełniać dom według miejscowego planu zagospodarowania lub warunków zabudowy (np. kąt nachylenia i typ dachu, liczba kondygnacji itp.
    • jakie inne projekty pasują na Twoją działkę – znajdziemy je dla Ciebie!

Pow. użytkowa

139,29 m²

Pokoje

3

Łazienki i WC

2

Garaż

1

Min. szer. i dł. działki

21,51 x 18,96 m

Kąt dachu

40°

Szacunkowy koszt SSZ

348 000 zł
Szacunkowy koszt budowy do stanu surowego zamkniętego (SSZ) metodą gospodarczą - większość prac wykonuje inwestor.

Konstrukcja

Murowana
więcej

Julka 4 - WAH1238

ikona 139,29 m²
Powierzchnia użytkowa
ikona3
Pokoje (bez salonu)
ikona 2
Łazienki (z toaletami)
ikona 1
Liczba stanowisk garażowych
(z wiatą garażową)
ikona
Konstrukcja: Murowana

Promocja od 03.02.2026, koniec za:

0 dni

00 00 00

5 112 zł

Tooltip

Cena regularna obowiązywała od 01.02.2026 do 02.02.2026

Cena regularna: 6 390 zł
Najniższa cena z 30 dni przed obniżką: 4 872 zł
Gwarancja najniższej ceny Gwarancja najniższej ceny Tooltip

Projekt jest dostępny Tooltip

GRATIS 16% rabatu w SELSEY

GRATIS 10% rabatu do LEROY MERLIN

GRATIS Przydatne Extradodatki

GRATIS Poradnik Dach Solarny

100 dni na wymianę, 30 dni na zwrot

Darmowa dostawa - kurier, paczkomaty

Bezpłatne pozwolenie na zmiany

Dokumentacja zgodna z WT2021

Pokaż więcej (6)
Konsultant Masz pytania?
Zadzwoń
71 715 20 60

pon.-pt. 8-21, sob. 9-17

Szukasz wykonawcy godnego zaufania?
Zleć budowę w Extradom.pl!

  • Z góry znasz koszt budowy domu
  • Dom odbierasz zgodnie z ustalonym harmonogramem - nawet w 6 miesięcy
  • Zabezpiecza Cię jedna kompleksowa umowa z jednym wykonawcą
  • Otrzymujesz nawet 30-letnią gwarancję na konstrukcję domu
  • Oszczędzasz swój czas dzięki pewnej i kompletnej usłudze
Cena brutto stanu
deweloperskiego od
Tooltip
Cena brutto stanu deweloperskiego od 4 529 do 5 829 zł/m2.
Cena jest uzależniona m.in. od lokalizacji, wybranej technologii, kubatury budynku, skomplikowania projektu i ewentualnych zmian, na które zdecyduje się inwestor.
Cena za m2 powierzchni netto, czyli wszystkich pomieszczeń mierzonych na wysokości podłogi.
4 529 zł/m2
Dowiedz się więcej
Konsultant Masz pytania?
Zadzwoń
71 715 20 70

pon.-pt. 8-19

Parter - 101,18 m²

Parter projektu Julka 4

Zapytaj, co możesz zmienić

Powierzchnia (m²)
Tooltip
Powierzchnia pomieszczenia
to ta, z której faktycznie możesz korzystać – skosy i niskie części poddasza są liczone częściowo lub wcale.
  1. 100% dla wysokości powyżej 2,2 m,
  2. 50% dla wysokości 1,4–2,2 m,
  3. nie liczymy poniżej 1,4 m.

Powierzchnia podłogi
Liczymy po obrysie pomieszczenia, bez względu na jego wysokość/skosy. Jeśli nie ma skosów to powierzchnia podłogi i pomieszczenia jest taka sama.
pomieszczenia i podłogi
podłogi
1. Wiatrołap
3,37
2. Hall
9,36
3. Spiżarnia
1,60
4. Kuchnia
9,61
5. Pokój dzienny + jadalnia
42,09
6. Wc
2
7. Pomieszczenie gospodarcze
6,39
8. Kotłownia
6,53
9. Garaż jednostanowiskowy
20,23
Razem
101,18
101,18

Natychmiast, otrzymasz PDF-y
z rzutami wszystkich kondygnacji

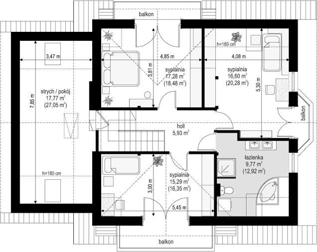
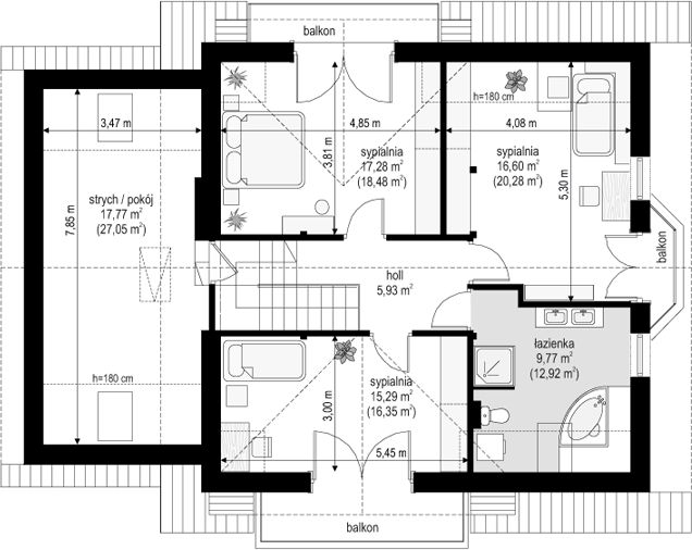
Poddasze - 82,64 m²

Poddasze projektu Julka 4

Zapytaj, co możesz zmienić

Powierzchnia (m²)
Tooltip
Powierzchnia pomieszczenia
to ta, z której faktycznie możesz korzystać – skosy i niskie części poddasza są liczone częściowo lub wcale.
  1. 100% dla wysokości powyżej 2,2 m,
  2. 50% dla wysokości 1,4–2,2 m,
  3. nie liczymy poniżej 1,4 m.

Powierzchnia podłogi
Liczymy po obrysie pomieszczenia, bez względu na jego wysokość/skosy. Jeśli nie ma skosów to powierzchnia podłogi i pomieszczenia jest taka sama.
pomieszczenia
podłogi
1. Strych
17,77
27,05
2. Pokój
17,28
18,48
3. Hall
5,93
5,93
4. Pokój
15,29
16,35
5. Pokój
16,60
20,28
6. Łazienka
9,77
12,92
Razem
82,64
101,01

Natychmiast, otrzymasz PDF-y
z rzutami wszystkich kondygnacji

Zamów rysunki szczegółowe

Zapoznaj się ze szczegółowymi rysunkami rzutów kondygnacji w PDF dla tego projektu.

Warianty projektu (5)

PROMOCJA
Projekt domu Julka 3
Julka 3
Dodano!
Dodano!
139,29 m²
3
2
2

5 376 zł

6 720 zł

Tooltip

Cena regularna

5 136 zł najniższa cena
Tooltip

Najniższa cena z 30 dni
przed obniżką

PROMOCJA
Projekt domu Julka 2
Julka 2
Dodano!
Dodano!
130,96 m²
3
2
1

5 112 zł

6 390 zł

Tooltip

Cena regularna

4 872 zł najniższa cena
Tooltip

Najniższa cena z 30 dni
przed obniżką

PROMOCJA
Projekt domu Julka
Julka
Dodano!
Dodano!
130,96 m²
3
2
2

5 376 zł

6 720 zł

Tooltip

Cena regularna

5 136 zł najniższa cena
Tooltip

Najniższa cena z 30 dni
przed obniżką

PROMOCJA
Projekt domu Julka 3 wariant B
Julka 3 wariant B
144,57 m²

6 032 zł

7 540 zł

Tooltip

Cena regularna

5 752 zł najniższa cena
Tooltip

Najniższa cena z 30 dni
przed obniżką

PROMOCJA
Projekt domu Julka 3 wariant C
Julka 3 wariant C
136 m²

5 536 zł

6 920 zł

Tooltip

Cena regularna

5 296 zł najniższa cena
Tooltip

Najniższa cena z 30 dni
przed obniżką

Podobne projekty (914)

Zobacz wszystkie
EXTRACENA
Zdjęcie 1 projektu Narcyz WAH2009
Narcyz
Dodano!
Dodano!
125,06 m²
5
2
1

5 832 zł

7 290 zł

Tooltip

Cena regularna

5 592 zł najniższa cena
Tooltip

Najniższa cena z 30 dni
przed obniżką

EXTRACENA
Zdjęcie 1 projektu Ajaks WOE1072
Ajaks
Dodano!
Dodano!
127,33 m²
4
2
1

4 299 zł

4 399 zł

Tooltip

Cena regularna

4 299 zł najniższa cena
Tooltip

Najniższa cena z 30 dni
przed obniżką

EXTRACENA
Zdjęcie 1 projektu Narcyz 4 WAH2029
Narcyz 4
Dodano!
Dodano!
125,58 m²
4
3
1

5 832 zł

7 290 zł

Tooltip

Cena regularna

5 592 zł najniższa cena
Tooltip

Najniższa cena z 30 dni
przed obniżką

EXTRACENA
Zdjęcie 1 projektu Ajaks Max WOE1120
Ajaks Max
Dodano!
Dodano!
138,61 m²
4
2
1

4 499 zł

4 599 zł

Tooltip

Cena regularna

4 499 zł najniższa cena
Tooltip

Najniższa cena z 30 dni
przed obniżką

EXTRACENA
Zdjęcie 1 projektu Narcyz 3 WAH2028
Narcyz 3
Dodano!
Dodano!
125,59 m²
6
3
1

5 832 zł

7 290 zł

Tooltip

Cena regularna

5 592 zł najniższa cena
Tooltip

Najniższa cena z 30 dni
przed obniżką

EXTRACENA
Zdjęcie 1 projektu Ajaks Bis WOE1088
Ajaks Bis
Dodano!
Dodano!
127,26 m²
4
2
1

4 299 zł

4 399 zł

Tooltip

Cena regularna

4 299 zł najniższa cena
Tooltip

Najniższa cena z 30 dni
przed obniżką

EXTRACENA
Zdjęcie 1 projektu APS 260 LUA1563
APS 260
Dodano!
Dodano!
138,20 m²
4
2
1

4 049 zł

4 599 zł

Tooltip

Cena regularna

3 749 zł najniższa cena
Tooltip

Najniższa cena z 30 dni
przed obniżką

EXTRACENA
Zdjęcie 1 projektu Izadora WOE1057
Izadora
Dodano!
Dodano!
139,49 m²
4
2
1

4 499 zł

4 599 zł

Tooltip

Cena regularna

4 499 zł najniższa cena
Tooltip

Najniższa cena z 30 dni
przed obniżką

Metody i koszt budowy

Ten dom możesz budować metodą gospodarczą, systemem zleconym lub skorzystać z naszej oferty Projekt z Budową. Przy porównaniu weź pod uwagę nie tylko koszt, ale też różny zakres prac i standard wykonania.

Metoda gospodarcza

Najtańsza metoda - większość prac
budowlanych wykonuje inwestor

Stan surowy zamknięty (SSZ)

348 000 zł netto

Szacunkowy koszt materiałów na IV kwartał 2025
  • Prace ziemne i fundamenty

    51 000 zł
  • Konstrukcja, strop oraz dach

    246 000 zł
  • Stolarka okienna i drzwiowa

    51 000 zł
  • Instalacje

    nie obejmuje
  • Prace wykończeniowe

    nie obejmuje
  • Możesz budować etapami, pamiętając jednak o zmianie kosztów w czasie
  • Możesz rozpocząć budowę z częścią niezbędnych środków
  • Sam ustalasz harmonogram, koordynujesz budowę i zapewniasz materiały
Czy da się obniżyć koszty budowy?
Zobacz nasz film jak obniżyć koszt budowy

Projekt z Budową

Najszybsza i najwygodniejsza metoda -
całą budowę domu realizuje jedna firma

Stan deweloperski
Gwarancja stałego kosztu budowy

Gwarancja stałego
kosztu budowy

  • Prace ziemne i fundamenty
  • Konstrukcja, strop oraz dach
  • Stolarka okienna i drzwiowa
  • Instalacje  
    Tooltip

    Obejmuje wykonanie instalacji:

    • wodno-kanalizacyjnej
    • centralnego ogrzewania
    • gazowej
    • elektrycznej
  • Prace wykończeniowe  
    Tooltip

    Prace wykończeniowe obejmują:

    • sufity i ściany wewnętrzne
    • tynki i okładziny ścian wewnętrznych
    • wylewki i posadzkę
    • ocieplenie ścian zewnętrznych i elewację

Budowa
nawet w
6mies.

  • Kompleksowa umowa i znany z góry koszt budowy
  • Logistyka, organizacja budowy i zakupy po stronie firmy budowlanej
  • Formalności i dokumentacje po stronie firmy budowlanej
  • Różne technologie budowy dopasowane do projektu i budżetu
Szczegóły i dostępne technologie
icon

Darmowe

Zestawienie materiałów budowlanych

icon

Polecamy

Kosztorys

Zawiera zestawienie wszystkich potrzebnych materiałów wraz z ich cenami, uwzględnia koszty sprzętu i transportu. Z kosztorysem:

  • poznasz całkowite koszty budowy
  • zaplanujesz prace na budowie
  • łatwiej ocenisz konkurencyjność ofert podwykonawców
  • otrzymasz dokument wymagany w procesie kredytowym

Elewacje

Frontowa
Tylna
Lewa
Prawa

Usytuowanie na działce

Czy ten projekt pasuje na
Twoją działkę?

Chętnie to sprawdzimy!

Czy ten projekt pasuje na
Twoją działkę?

Chętnie to sprawdzimy!

Dowiedz się:

  • czy zmieści się na niej wybrany przez Ciebie dom
  • jakie parametry musi spełniać dom według miejscowego planu zagospodarowania lub warunków zabudowy (np. kąt nachylenia i typ dachu, liczba kondygnacji itp.
  • jakie inne projekty pasują na Twoją działkę – znajdziemy je dla Ciebie!
Autor: MG Projekt

Dane techniczne projektu

Powierzchnie i wymiary Powierzchnie i wymiary

Powierzchnia użytkowa
Tooltip
Suma powierzchni wszystkich pomieszczeń mieszkalnych, pomniejszona o pow. garażu, kotłowni, strychu, piwnicy. Jest liczona w 100% dla pomieszczeń o wysokości powyżej 2,2 m, w 50% dla pomieszczeń o wys. 2,2-1,4 m i niewliczana dla niższych niż 1,4 m.

139,29 m²

Powierzchnia zabudowy
Tooltip
Powierzchnia zajmowana przez część na- oraz nadziemną budynku liczona, jako rzut pionowy budynku na działkę.

129,68 m²

Powierzchnia całkowita
Tooltip
Całkowita powierzchnia wszystkich kondygnacji budynku łącznie z elementami nośnymi, takimi jak ściany zewnętrzne (z ociepleniem), słupy, tarasy, itp.

232,01 m²

Kubatura brutto
Tooltip
Zazwyczaj jest to suma kubatur (objętości) wszystkich pomieszczeń budynku, liczonych po zewnętrznym obrysie murów (z ociepleniem).

691 m³

Powierzchnia dachu

234,25 m²

Kąt nachylenia dachu
Tooltip
Nachylenie połaci dachu głównego podawane w stopniach. Uwaga! W niektórych projektach występuje więcej niż jedno nachylenie dachu.

40°

Wysokość budynku
Tooltip
Wysokość liczona od części budynku położonej najniżej przy powierzchni terenu do najwyższego punktu dachu (kalenicy) z wyłączeniem kominów.

8,74 m

Szerokość elewacji

14,51 m

Długość elewacji

10,81 m

Min. szerokość działki
Tooltip
Najmniejsza możliwa szerokość działki niezbędna do wybudowania wybranego domu. Składa się z szerokości elewacji domu powiększonej z obu stron o 3 m dla ściany bez otworów drzwiowych/okiennych lub 4 m, dla ściany z otworami.

21,51 m

Min. długość działki
Tooltip
Najmniejsza możliwa długość działki niezbędna do wybudowania wybranego domu. Składa się z długości elewacji domu powiększonej z obu stron o 3 m dla ściany bez otworów drzwiowych/okiennych lub 4 m, dla ściany z otworami.

18,96 m

Energooszczędność Energooszczędność

Oze Czym jest OZE (Odnawialne Źródło Energii)?
Ep
Tooltip
Energia pierwotna określa ilość energii nieodnawialnej potrzebnej w ciągu roku do ogrzewania czy też ogrzania wody użytkowej z uwzględnieniem kosztów produkcji i transportu surowców energetycznych.

68,70 kWh/(m²rok)

Ek
Tooltip
Energia końcowa określa zapotrzebowanie budynku na energię niezbędną do uzyskania założonych parametrów, jak np. temperatura wewnątrz budynku.

63,90 kWh/(m²rok)

Euco
Tooltip
Energia użytkowa potrzebna do ogrzewania i wentylacji. Im parametr jest niższy tym budynek bardziej energooszczędny.

49,70 kWh/(m²rok)

Ogrzewanie główne

Gazowe - szczegóły

Dodatkowo istnieje możliwość zamówienia projektu z

Aneks na paliwo stałe

Powietrzna pompa ciepła

Gruntowa pompa ciepła

Interesuje Cię inne źródło ogrzewania? Wyślij zapytanie lub zadzwoń do doradcy

Wentylacja

Grawitacyjna - szczegóły

Warunki techniczne

Projekt zgody z WT 2021

Technologia i konstrukcja Technologia i konstrukcja

Konstrukcja

Murowana

PROJEKT Z BUDOWĄ Istnieje możliwość zaadaptowania tego projektu do technologii prefabrykowanej/modułowej i budowy nawet w 6 miesięcy ze stałym kosztem budowy

Dowiedz się więcej »
Opis szczegółowy

Fundamenty: betonowe ławy i ściany fundamentowe z bloczków betonowych. Ściany zewnętrzne: ściany murowane - pustaki porotherm 25 + styropian + tynk cienkowarstwowy. Strop: Teriva. Elewacje: tynk cienkowarstwowy na styropianie. Pokrycie dachu: dachówka. Nachylenie dachu: 40 stopni.

Strop

Gęstożebrowy

Reklama
Okna i drzwi tarasowe

Nowoczesne okna PVC i aluminiowe WIŚNIOWSKI – doskonała izolacja, elegancki design i niezrównana trwałość.

Wiśniowski
Sprawdź parametry!
Okna dachowe

Oferujemy bezpłatne konsultacje w zakresie wszystkich rozwiązań VELUX. Wyceny, porady dotyczące doboru okien i rolet zewnętrznych - sprawdź!

Velux
Sprawdź szczegóły
Płytki ceramiczne i gresy

Od małych formatów po wielkoformatowe gresy. Marmur, beton, drewno, kamień, lastryko czy cegiełki zamówisz wygodnie online z szybką dostawą.

Ceramzet
Sprawdź ofertę
Drzwi

Ciepłe drzwi WIŚNIOWSKI z kontrolą dostępu. Szeroka gama wzorów i kolorów.

Wiśniowski
Wybierz najlepsze
Bramy garażowe

Automatyczne bramy garażowe segmentowe i uchylne WIŚNIOWSKI na wymiar i z systemem smart home w standardzie.

Wiśniowski
Sprawdź ofertę!
Armatura i ceramika łazienkowa

Topowi producenci. Baterie łazienkowe, zestawy natynkowe i podtynkowe, umywalki, wanny, miski WC oraz kabiny zamówisz kompleksowo online.

Ceramzet II
Dowiedz się więcej
Rekuperacja

Alnor - kompletny system rekuperacji. Dobierz idealne rozwiązanie dla Twojego domu!

Alnor
Dobierz rekuperator
Dach

Producent stalowych pokryć dachowych i systemów elewacyjnych. Precyzja wykonania, trwałość na lata i szybki montaż doceniany przez dekarzy. Postaw na solidny dach Budmat.

Budmat
Sprawdź ofertę
Ogrodzenie

Nowoczesne stalowe ogrodzenia Budmat - estetyka, bezpieczeństwo i trwałość na lata. Systemowe rozwiązania na wymiar, dopasowane do każdego domu.

Budmat
Sprawdź ofertę

Gotowe domy modułowe (118)

Zobacz wszystkie
Stan deweloperski nawet w 6 miesięcy Gwarancja stałej ceny
Zdjęcie 1 projektu Dom prefabrykowany P.1 z okapem HPK1000
Pow. użytkowa
139,44 m²
Pokoje
3
721 000 zł 5 171 zł/m²
Zdjęcie 1 projektu Dom prefabrykowany P.1 bez okapu HPK1012
Pow. użytkowa
139,44 m²
Pokoje
3
699 800 zł 5 019 zł/m²
Zdjęcie 1 projektu Dom prefabrykowany P.5 HPK1004
Pow. użytkowa
138,67 m²
Pokoje
5
772 700 zł 5 572 zł/m²
Zdjęcie 1 projektu Dom prefabrykowany DEX136 HDX1002
Pow. użytkowa
136 m²
Pokoje
4
895 700 zł 6 586 zł/m²
Zdjęcie 1 projektu Dom szkieletowy Open Sky 195 HHT1029
Pow. użytkowa
145,04 m²
Pokoje
4
940 300 zł 6 483 zł/m²
Zdjęcie 1 projektu Dom prefabrykowany Piętrowy 130C HFX1023
Pow. użytkowa
132 m²
Pokoje
4
539 000 zł 4 083 zł/m²
Zdjęcie 1 projektu Dom prefabrykowany Piętrowy 130B HFX1022
Pow. użytkowa
131,60 m²
Pokoje
5
539 000 zł 4 096 zł/m²
Zdjęcie 1 projektu Dom prefabrykowany Piętrowy 130A HFX1021
Pow. użytkowa
130,40 m²
Pokoje
4
539 000 zł 4 133 zł/m²

Dodatki do projektu

Dodatki możesz zamówić w koszyku lub telefonicznie u naszego Doradcy.

Czym jest OZE (Odnawialne Źródło Energii)?

Ikona

Bestseller

Kosztorys

600 zł

Ikona

Bestseller

Dodatkowy egzemplarz projektu

650 zł

Ikona

Bestseller

Elektroniczna wersja projektu

600 zł

Ikona

Ogrzewanie podłogowe

550 zł

Ikona

Oze

Aneks na paliwo stałe

550 zł

Ikona

Oze

Powietrzna pompa ciepła

550 zł

Pokaż więcej (8)

Opis projektu domu
Julka 4

Projekt domu Julka 4 jest modyfikacją popularnego projektu Julka. W przeciwieństwie do pierwotnej wersji projekt ma więcej pokoi, większą powierzchnię, mniej stanowisk garażowych. Projekt domu Julka 4 odpowiedni do zrealizowania na średniej szerokości działkę. Bryła budynku posiada formę prostą, więc będzie się dobrze prezentował niezależnie od otoczenia. Na uwagę zasługuje ozdobny wykusz, nadający konstrukcji dodatkowego uroku. Projekt należy do kategorii domów z kalenicą usytuowaną równolegle do drogi, co jest istotne ze względu na wymagania określone w planie zagospodarowania przestrzennego. Dom został zaprojektowany z myślą o zabudowie wolnostojącej. Projekt można usytuować na granicy działki, co daje możliwość na realizację w zabudowie bliźniaczej. Autor projektu przewidział garaż jednostanowiskowy w linii budynku. Jest to również ciekawa propozycja dla osób szukających domu z dachem dwuspadowym, dzięki któremu budynek posiada ponadczasowy wygląd. Projekt Julka 4 to dom parterowy z poddaszem użytkowym, dzięki czemu domownicy mogą cieszyć się większą prywatnością.Sercem domu jest przestronna strefa dzienna, która sprzyja spędzaniu wspólnego czasu w gronie najbliższych. Przewidziana w projekcie otwarta kuchnia to świetne rozwiązanie dla osób z małymi dziećmi - ich zabawę w salonie rodzice mogą nadzorować nawet podczas przygotowywania posiłków. W kuchni znajduje się także stół, dzięki któremu poranne spotkania z rodziną staną się ważną częścią dnia dla każdego domownika. Dodatkowo przewidziana spiżarnia to idealne miejsce na przechowywanie przetworów i zapasów żywności. Projektant połączył salon i jadalnię w przestronną strefę dzienną, co jest nowoczesnym oraz bardzo funkcjonalnym rozwiązaniem. W salonie znajduje się nastrojowy kominek dający przyjemne ciepło i nadający wnętrzu przyjemnej atmosfery. W projekcie przewidziano toaletę na parterze oraz łazienkę na wyższej kondygnacji. Strefa sypialniana składa się z czterech pokoi, co jest doskonałą opcją dla 4-6 osobowej rodziny. Przestrzeń można wykorzystać także jako pokój dla gości lub gabinet. W domu nie zabrakło również miejsca na praktyczne zaplecze gospodarcze. Taras daje możliwość kontaktu z przyrodą i sprzyja wypoczynkowi. Budynek został zaprojektowany w technologii murowanej. Jego wygląd zewnętrzny uwydatnia cechy charakterystyczne dla stylu tradycyjnego, dzięki czemu idealnie wpisze się w dowolny krajobraz.
Czytaj więcej

Polecani producenci

Kompletne systemy rekuperacji

tło producenta

Alnor

Dowiedz się więcej

Prefabrykowane konstrukcje dachowe

tło producenta

WIĄZAR POLSKA

Zobacz więcej

Sprawdź nową generację okien GREENVIEW

tło producenta

FAKRO

Sprawdź nową generację okien GREENVIEW

Styropian, tynki, farby, kleje

tło producenta

Termo Organika

Poznaj super jakość

Okna, drzwi, osłony przeciwsłoneczne

tło producenta

Aluprof

Sprawdź ofertę
Zobacz więcej

Społeczność projektu domu
Julka 4 w budowie

Dołącz do społeczności osób, które budują ten dom lub są zainteresowane jego budową.

  • Oglądaj zdjęcia z budowy
  • Zadawaj pytania
  • Wymieniaj się doświadczeniami

Opinie o projekcie domu Julka 4

4

Na podstawie 1 recenzji

Wspaniały!
0%
Bardzo dobry
100%
Średni
0%
Słaby
0%
Bardzo słaby
0%

Wywiady mieszkańców domu Julka 4

Zdjęcie profilowe użytkownika adam0226 adam0226

Zdecydowaliśmy się na realizację projektu Julka 4 WAH1238, gdyż uwzględniony w nim układ pomieszczeń od razu przypadł nam do gustu. Wiedzieliśmy, że nie będziemy musieli wprowadzać do niego wielu zmian, co było dużą zaletą. Postawienie budynku w stanie surowym zamkniętym odbyło się w naprawdę krótkim czasie i zajęło nam zaledwie 3 miesiące. Jestem również zadowolony z ceny inwestycji, gdyż była ona niższa niż spodziewaliśmy się na początku. Moim zdaniem koszty oszacowane przez projektanta są nieco przesadzone i uważam, że bez problemu ten dom można zbudować o wiele taniej - wystarczy poświęcić trochę własnej pracy oraz czasu na znalezienie materiałów w okazyjnych cenach. Realizacja na etapie stanu surowego zamkniętego wyniosła nas ok. 110 tys. zł. Jedyny problem, na który natrafiliśmy w trakcie budowy był związany z frontowymi drzwiami. W oryginalnym projekcie są one bardzo duże i żadne z obecnie dostępnych na rynku nie pasowały do wytycznych. Z tego względu musieliśmy zmniejszyć wymiary wejścia dodając po 10 cm muru z każdej strony. Na szczęście pozostałe etapy realizacji odbyły się bez trudności. Bryłę naszego domu tworzą trójwarstwowe ściany. Od wewnątrz zastosowaliśmy 25 cm pustaki Porotherm, zaś zewnętrzną warstwę tworzą pustaki 12 cm. Pomiędzy nimi znajduje się styropian o grubości 10 cm. Poddasze zaś ociepliliśmy 20 cm wełną mineralną. Ogrzewamy za pomocą pieca na paliwo stałe i do tej pory zużyliśmy stosunkowo niewiele opału, gdyż budynek doskonale utrzymuje temperaturę. Nie potrzebowaliśmy wprowadzać wielu poprawek do projektu Julka 4 WAH1238, aczkolwiek na kilka się zdecydowaliśmy. Aby zwiększyć przestronność w pomieszczeniach na poddaszu podnieśliśmy nieco ściankę kolankową, a przestrzeń nad garażem przedzieliliśmy na dwie części. Na tej powierzchni udało nam się zrobić pokój oraz pralnię. Oprócz tego zamieniliśmy miejscami spiżarnię z ubikacją na parterze. Jestem zadowolony z wyboru projektu domu parterowego z poddaszem użytkowym Julka 4 WAH1238. Budynek jest ekonomiczny, a jego wnętrze naprawdę funkcjonalne. Polecam i pozdrawiam.

Zdjęcie profilowe użytkownika Grzegorz1238 Grzegorz1238

Projekt Julka 4 WAH1238 wybrała właściwie moja żona, aczkolwiek ja w pełni poparłem tą decyzję. Dużą uwagę przy wyborze przywiązywaliśmy do ciekawego wyglądu budynku, który w tym przypadku bardzo spodobał nam się pod względem wizualnym. Poza tym uwzględniony w nim układ pomieszczeń również nam odpowiadał. W tej kwestii najbardziej do gustu przypadła nam duża, otwarta przestrzeń na parterze.Cała inwestycja łącznie z pracami wykończeniowymi zajęła dwa lata. Do wymurowania ścian użyliśmy gazobetonowych bloczków Ytong, a strop wykonaliśmy systemem Teriva. Dach pokryliśmy dachówką karpiówką marki Bogen. Na całej powierzchni domu, zarówno na parterze jak i poddaszu zastosowaliśmy instalację ogrzewania podłogowego. Póki co trudno mi jednak ocenić faktyczne koszty ogrzewania. W pierwszym sezonie grzewczym od powstania murów musiały one dobrze wyschnąć i się ogrzać, dlatego też zużycie gazu było dosyć spore. Podejrzewam jednak, że w następnych latach będzie wyglądać to bardziej korzystnie.W kwestii kosztów realizacji największe znaczenie ma rodzaj użytych materiałów. Szczególnie dotyczy to klasy zastosowanej stolarki otworowej oraz pokrycia dachowego. Zakupiona przez nad dachówka odznacza się wysoką jakością i wyniosła ok. 35 tys. zł., ale nabywając tańszą można zmieścić się w kwocie 15 tys. zł. Uważam więc, że decydując się na standardowe materiały można sugerować się kosztorysem oszacowanym przez architekta.Cała realizacja odbyła się sprawnie, a fachowcy nie zgłaszali żadnych trudności w związku z dokumentacją techniczną. Kierownik budowy zaproponował jednak pewną zmianę w konstrukcji fundamentów, która okazała się bardzo dobrym pomysłem. Mianowicie, oryginalnie pod słupami nośnymi miały znajdować się osobne stopy fundamentowe, aczkolwiek fachowiec zalecił wydłużenie ław do miejsca usytuowania filarów, rezygnując tym samym z przewidzianych pod nimi elementów. Oprócz tego, postanowiliśmy wstawić dwa dodatkowe słupy nośne: jeden między schodami a salonem oraz drugi przy narożnej ściance znajdującej się pomiędzy przeszkleniami w części wypoczynkowej. Zdecydowaliśmy się również na podniesienie ścianki kolankowej o 30 cm. Dzięki temu przestrzeń na poddaszu stała się bardziej przestronna i szczerze polecam to rozwiązanie przyszłym Inwestorom projektu Julka 4 WAH1238. W konstrukcji budynku nie wprowadzaliśmy już innych zmian, aczkolwiek teraz rozważyłbym zastosowanie dodatkowych zbrojeń sięgających od stropu do połaci tworzących lukarny oraz przy ścianach szczytowych - przynajmniej do dolnych płatwi, co zminimalizowałyby ryzyko powstawania pęknięć na tych elementach.Kilka zmian wprowadziliśmy również w układzie przeszkleń - dodatkowe wstawiliśmy zarówno w garażu, jak i w pomieszczeniu nad nim. Świetnym pomysłem była również rezygnacja z wszystkich okien dachowych. We wszystkich pokojach na poddaszu znajdują się duże okna balkonowe, dlatego też nie było potrzeby szpecić dachu połaciowymi. Oryginalny projekt uwzględniał w salonie duże okno ze szprosami, jednak fachowiec doradził nam wstawienie w tym miejscu witryny bez zbędnych ozdobników. Prezentuje się ona naprawdę rewelacyjnie, gdyż za nią mamy piękny widok na las.Pierwotna lokalizacja łazienki na parterze wydała nam się być nie do końca trafiona. Postanowiliśmy więc wykonać ją kosztem części przechodniego pokoju między hallem a garażem. Dzięki temu mogliśmy również zmienić nieco układ schodów - obniżyliśmy konstrukcję wyższego biegu, a przed spocznikiem nie wykonaliśmy zabiegu, dzięki czemu schody mają mniejszy kąt i tym samym są wygodniejsze w użytkowaniuJesteśmy zadowoleni z wyboru projektu domu parterowego z poddaszem użytkowym Julka 4 WAH1238. Zaproponowany w nim układ pomieszczeń, od początku przypadł nam do gustu i w dalszym ciągu spełnia nasze oczekiwania. Rozmieszczenie pokoi zdecydowanie zasługuje na duży plus - wnętrze jest funkcjonalne i bardzo przestronne. Rozwiązaniem, które najbardziej nas satysfakcjonuje jest połączenie kuchni, jadalni i salonu, które wspólnie tworzą otwartą część dzienną. Pozdrawiam.

Zdjęcie profilowe użytkownika jacekvs1 jacekvs1

Szukając odpowiedniego projektu domu, miałem już założone pewne kryteria jakie musiałby spełniać. Przede wszystkim, od początku zależało mi na układzie uwzględniającym połączenie salonu, jadalni i kuchni. Otwarta i przestronna część dzienna na parterze była priorytetem, ale oprócz tego dużą uwagę zwracałem na lokalizację kotłowni. Chciałem bowiem, aby pomieszczenie gospodarcze znajdowało się się garażem. Oglądając różne propozycje natrafiłem na projekt Julka 4 WAH1238. Ukazany na rysunkach dom spełniał powyższe wymagania, a także bardzo spodobał mi się w kwestii funkcjonalnego rozmieszczenia pozostałych pomieszczeń oraz pod względem wizualnym.Wszystkie prace związane z postawieniem i wykończeniem nowego domu przebiegły bardzo sprawnie. Współpracujący z nami fachowcy ze wszystkim świetnie sobie poradzili, a projekt był technicznie dobrze opracowany. Całą realizację udało nam się zakończyć w korzystnym czasie. Od jej rozpoczęcia, do zamieszkania minęły w naszym przypadku niecałe 2 lata. Budynek powstał przy użyciu pustaków ceramicznych. Strop został wykonany systemem Teriva, a dach pokryliśmy dachówką ceramiczną. Na etapie stanu surowego zamkniętego wydaliśmy ok. 180-200 tys. zł.Projekt Julka 4 WAH1238 od początku przypadł nam do gustu, jednak kilka drobnych zmian ułatwiło realizację oraz podniosło komfort użytkowania domu. Doskonałym pomysłem było przeniesienie przejścia do garażu pod klatkę schodową, gdzie pierwotnie miała znajdować się mała toaleta. Przewidziane przez architekta pomieszczenie gospodarcze prowadzące do garażu przeznaczyliśmy na zrobienie w pełni wyposażonej łazienki. Zrezygnowaliśmy z wykuszu oraz uskoków w ścianach tworzących salon. Wyprostowane ściany zwiększyły ustawność strefy wypoczynkowej i polecam to rozwiązanie innym Inwestorom. Oprócz tego nie wstawialiśmy jednego okna w salonie oraz bocznego przeszklenia w kuchni. Zamiast frontowego balkonu zrobiliśmy ozdobny daszek, który również został podparty na eleganckich filarach. Innych zmian nie wprowadzaliśmy, jednak teraz z pewnością wydłużyłbym jeszcze kotłownię, wyrównując ją ze ścianą w salonie. Uważam, że naprawdę warto to rozważyć, tym bardziej przy ogrzewaniu paliwem stałym.Wybór projektu domu parterowego z poddaszem użytkowym Julka 4 WAH1238był dobrze przemyślaną decyzją, z której w dalszym ciągu jesteśmy w pełni zadowoleni. Uwzględniony w nim układ pomieszczeń od początku wydał mi się funkcjonalnie przemyślany i nadal dostrzegam w nim same plusy. Świetnym rozwiązaniem jest strych nad garażem, który można wykorzystać wedle własnych, indywidualnych preferencji. My przeznaczyliśmy go na zrobienie osobnej pralni oraz garderoby z wejściem od sypialni. Projekt Julka 4 WAH1238 cechuje się dużym komfortem, a kilka drobnych zmian w całości dopasowało go do potrzeb naszej rodziny. Pozdrawiam.

ASYSTENT WYBORU PROJEKTU

Szukasz idealnego projektu? Znajdziemy go dla Ciebie!

Doradca na podstawie Twoich wskazówek przygotuje spersonalizowaną listę projektów

Graficzne opracowanie rzutów poglądowych widocznych na karcie projektu zostało wykonane przez Extradom.pl. Prezentowane przez Extradom.pl wizualizacje wykonane zostały przez autora projektu i należy poczytywać je jedynie za przykład i propozycję wykończenia, wizję architektoniczną autora projektu. Ostateczne wykończenie budynku może nastąpić na wiele sposobów. Szczegółowe rozwiązania zastosowane w oferowanej dokumentacji - w tym również ilość, lokalizacje i wygląd okien, drzwi, kominów - mogą w niewielkim stopniu różnić się od prezentowanej wizualizacji budynku.

Extradom.pl Spółka z ograniczoną odpowiedzialnością z siedzibą przy ul. Jaworskiej 13, 53-612 Wrocław, wpisana do rejestru przedsiębiorców Krajowego Rejestru Sądowego przez Sąd Rejonowy dla Wrocławia-Fabrycznej we Wrocławiu, VI Wydział Gospodarczy Krajowego Rejestru Sądowego do pod numerem KRS 0000648746, numer NIP 895-17-18-333, o kapitale zakładowym 708 150,00 zł uprzejmie informuje, iż poprzez serwis Extradom.pl umożliwia m.in. zapoznanie się przez konsumentów z ofertą handlową Partnerów Extradom.pl, którzy stosują metody budowy domów przy wykorzystaniu różnego rodzaju technologie prefabrykacji bądź modułowe (tzw. „Gotowe domy”).

Extradom.pl nie prowadzi jednakże sprzedaży ani nie oferuje usług polegających na doradztwie finansowym, prawnym ani podatkowym w zakresie inwestycji realizowanych w technologiach tzw. „Gotowych domów”. Informacje prezentowane w serwisie Extradom.pl dotyczące Partnerów Extradom.pl oferujących realizację inwestycji w technologiach „Gotowych domów” lub podobnych mają charakter informacyjny i reklamowy.

Prezentowane w serwisie Extradom.pl informacje dotyczące stosowanych przez Partnerów metod budowy domów w technologii prefabrykacji bądź modułowej pochodzą od Partnerów Extradom.pl.

Extradom.pl sp. z o.o. jedynie umożliwia nawiązanie kontaktu przez Użytkownika z Partnerem Extradom.pl stosującym tego rodzaju technologie budowy domów i nie jest stroną umowy o roboty budowlane zawieranej przez Użytkownika Extradom.pl z Partnerem Extradom.pl.

REKLAMA
Zamknij