👉 Złap prezent 🎁

Koniec oferty za:

0dni

00godz.

00min.

00sek.

Sprawdź

Projekt budynku Budynek usługowy BMU-430 wariant 2 SKA1109

Dodano!
Dodano!

Warstwy

Warstwy

Rzut parteru

Powierzchnia (m²)
Tooltip
Powierzchnia pomieszczenia
to ta, z której faktycznie możesz korzystać – skosy i niskie części poddasza są liczone częściowo lub wcale.
  1. 100% dla wysokości powyżej 2,2 m,
  2. 50% dla wysokości 1,4–2,2 m,
  3. nie liczymy poniżej 1,4 m.

Powierzchnia podłogi
Liczymy po obrysie pomieszczenia, bez względu na jego wysokość/skosy. Jeśli nie ma skosów to powierzchnia podłogi i pomieszczenia jest taka sama.
pomieszczenia i podłogi
podłogi
1. Pomieszczenie handlowe
204,68
2. Korytarz
4,97
3. Szatnia + kuchnia
7,13
4. Wc
3,49
5. Wc niepełnosprawnych
6,57
6. Kotłownia
14,31
7. Pomieszczenie na odpady
4,42
8. Pomieszczenie porządkowe
2,91
Razem
248,48
248,48
Powierzchnia (m²)
Tooltip
Powierzchnia pomieszczenia
to ta, z której faktycznie możesz korzystać – skosy i niskie części poddasza są liczone częściowo lub wcale.
  1. 100% dla wysokości powyżej 2,2 m,
  2. 50% dla wysokości 1,4–2,2 m,
  3. nie liczymy poniżej 1,4 m.

Powierzchnia podłogi
Liczymy po obrysie pomieszczenia, bez względu na jego wysokość/skosy. Jeśli nie ma skosów to powierzchnia podłogi i pomieszczenia jest taka sama.
pomieszczenia i podłogi
podłogi
1. Lokal
34,09
2. Lokal
34,55
3. Lokal
33,15
4. Lokal
55,13
5. Hall
7,47
6. Schody
12,75
Razem
177,14
177,14

    Usytuowanie na działce

    Czy ten projekt pasuje na
    Twoją działkę?

    Chętnie to sprawdzimy!

    Dowiedz się:

    • czy zmieści się na niej wybrany przez Ciebie dom
    • jakie parametry musi spełniać dom według miejscowego planu zagospodarowania lub warunków zabudowy (np. kąt nachylenia i typ dachu, liczba kondygnacji itp.
    • jakie inne projekty pasują na Twoją działkę – znajdziemy je dla Ciebie!

Pow. użytkowa

441,50 m²

Pokoje

0

Łazienki i WC

2

Garaż

0

Kąt dachu

30°

Konstrukcja

Murowana
więcej

Budynek usługowy BMU-430 wariant 2 - SKA1109

ikona 441,50 m²
Powierzchnia użytkowa
ikona0
Pokoje (bez salonu)
ikona 2
Łazienki (z toaletami)
ikona 0
Liczba stanowisk garażowych
(z wiatą garażową)
ikona
Konstrukcja: Murowana

Cena projektu:

14 600 zł

Gwarancja najniższej ceny Gwarancja najniższej ceny Tooltip

Projekt jest dostępny Tooltip

100 dni na wymianę, 30 dni na zwrot

Darmowa dostawa - kurier, paczkomaty

Bezpłatne pozwolenie na zmiany

Dokumentacja zgodna z WT2021

Pokaż więcej (2)
Konsultant Masz pytania?
Zadzwoń
71 715 20 60

pon.-pt. 8-21, sob. 9-17

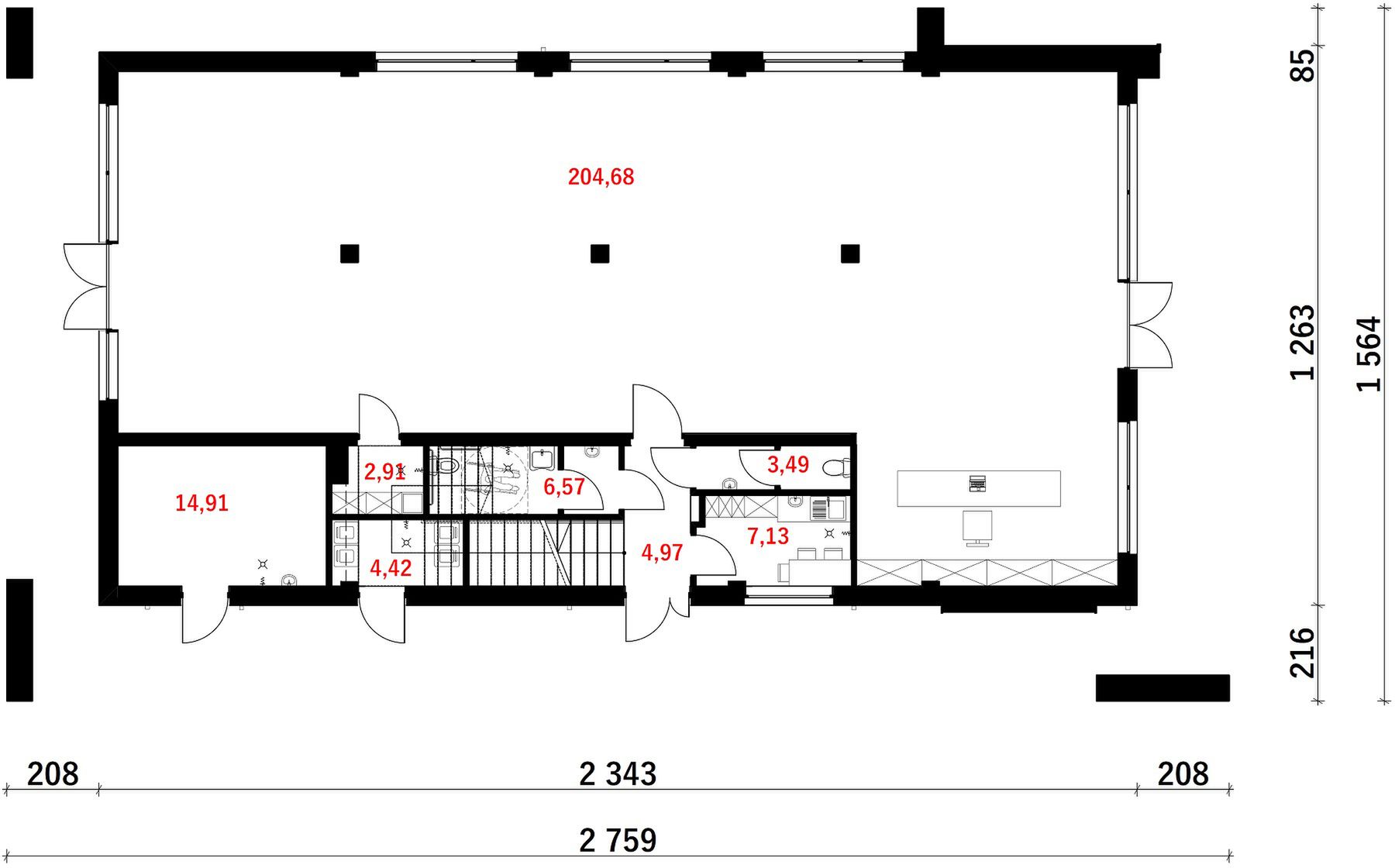
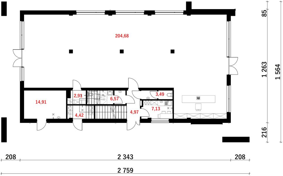
Parter - 248,48 m²

Parter projektu Budynek usługowy BMU-430 wariant 2

Zapytaj, co możesz zmienić

Powierzchnia (m²)
Tooltip
Powierzchnia pomieszczenia
to ta, z której faktycznie możesz korzystać – skosy i niskie części poddasza są liczone częściowo lub wcale.
  1. 100% dla wysokości powyżej 2,2 m,
  2. 50% dla wysokości 1,4–2,2 m,
  3. nie liczymy poniżej 1,4 m.

Powierzchnia podłogi
Liczymy po obrysie pomieszczenia, bez względu na jego wysokość/skosy. Jeśli nie ma skosów to powierzchnia podłogi i pomieszczenia jest taka sama.
pomieszczenia i podłogi
podłogi
1. Pomieszczenie handlowe
204,68
2. Korytarz
4,97
3. Szatnia + kuchnia
7,13
4. Wc
3,49
5. Wc niepełnosprawnych
6,57
6. Kotłownia
14,31
7. Pomieszczenie na odpady
4,42
8. Pomieszczenie porządkowe
2,91
Razem
248,48
248,48

Natychmiast, otrzymasz PDF-y
z rzutami wszystkich kondygnacji

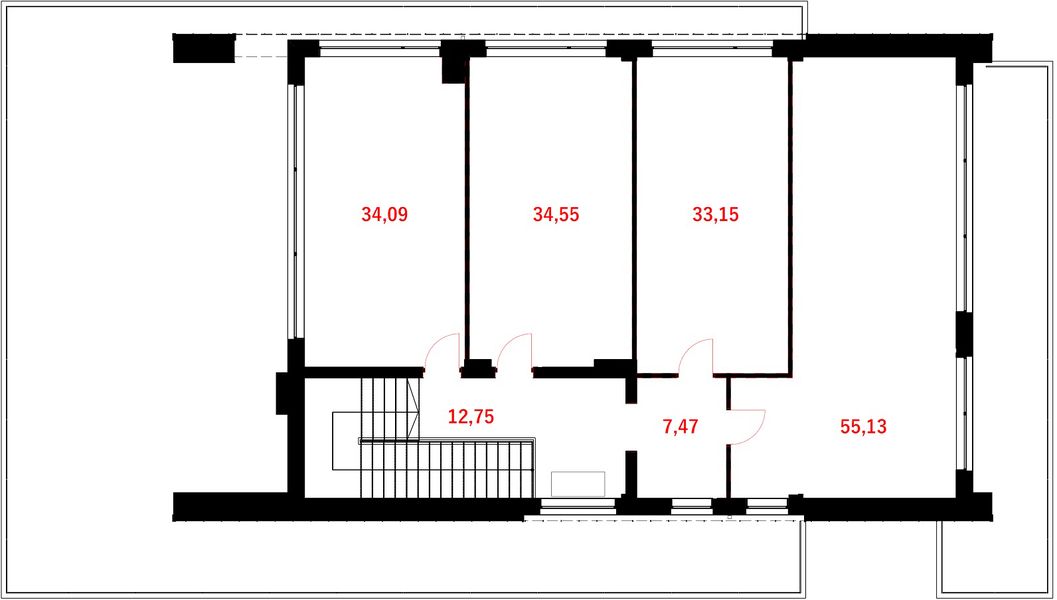
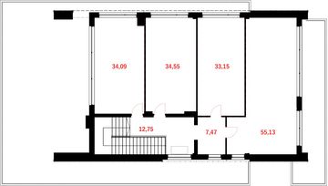
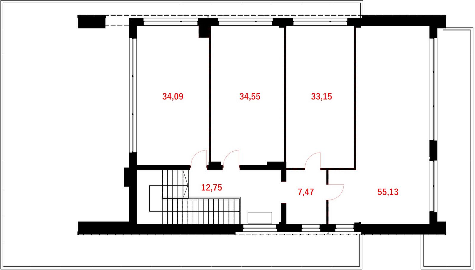
Piętro 1 - 177,14 m²

Piętro 1 projektu Budynek usługowy BMU-430 wariant 2

Zapytaj, co możesz zmienić

Powierzchnia (m²)
Tooltip
Powierzchnia pomieszczenia
to ta, z której faktycznie możesz korzystać – skosy i niskie części poddasza są liczone częściowo lub wcale.
  1. 100% dla wysokości powyżej 2,2 m,
  2. 50% dla wysokości 1,4–2,2 m,
  3. nie liczymy poniżej 1,4 m.

Powierzchnia podłogi
Liczymy po obrysie pomieszczenia, bez względu na jego wysokość/skosy. Jeśli nie ma skosów to powierzchnia podłogi i pomieszczenia jest taka sama.
pomieszczenia i podłogi
podłogi
1. Lokal
34,09
2. Lokal
34,55
3. Lokal
33,15
4. Lokal
55,13
5. Hall
7,47
6. Schody
12,75
Razem
177,14
177,14

Natychmiast, otrzymasz PDF-y
z rzutami wszystkich kondygnacji

Zamów rysunki szczegółowe

Zapoznaj się ze szczegółowymi rysunkami rzutów kondygnacji w PDF dla tego projektu.

Warianty projektu (3)

Projekt domu Budynek usługowy BMU-430 wariant 1
444,81 m²
0
2
0

13 500 zł

Projekt domu Budynek usługowy BMU-430 wariant 3
437,40 m²
3
4
0

16 300 zł

Projekt domu Budynek usługowy BMU-430 wariant 4
433,53 m²
3
5
0

17 500 zł

Elewacje

Frontowa
Tylna
Lewa
Prawa

Usytuowanie na działce

Czy ten projekt pasuje na
Twoją działkę?

Chętnie to sprawdzimy!

Czy ten projekt pasuje na
Twoją działkę?

Chętnie to sprawdzimy!

Dowiedz się:

  • czy zmieści się na niej wybrany przez Ciebie dom
  • jakie parametry musi spełniać dom według miejscowego planu zagospodarowania lub warunków zabudowy (np. kąt nachylenia i typ dachu, liczba kondygnacji itp.
  • jakie inne projekty pasują na Twoją działkę – znajdziemy je dla Ciebie!
Autor: Dom to Dom

Dane techniczne projektu

Powierzchnie i wymiary Powierzchnie i wymiary

Powierzchnia użytkowa
Tooltip
Suma powierzchni wszystkich pomieszczeń mieszkalnych, pomniejszona o pow. garażu, kotłowni, strychu, piwnicy. Jest liczona w 100% dla pomieszczeń o wysokości powyżej 2,2 m, w 50% dla pomieszczeń o wys. 2,2-1,4 m i niewliczana dla niższych niż 1,4 m.

441,50 m²

Powierzchnia zabudowy
Tooltip
Powierzchnia zajmowana przez część na- oraz nadziemną budynku liczona, jako rzut pionowy budynku na działkę.

396,84 m²

Powierzchnia całkowita
Tooltip
Całkowita powierzchnia wszystkich kondygnacji budynku łącznie z elementami nośnymi, takimi jak ściany zewnętrzne (z ociepleniem), słupy, tarasy, itp.

427,11 m²

Powierzchnia netto
Tooltip
Powierzchna wszystkich pomieszczeń w budynku mierzona na wysokości podłogi.

427,11 m²

Kubatura brutto
Tooltip
Zazwyczaj jest to suma kubatur (objętości) wszystkich pomieszczeń budynku, liczonych po zewnętrznym obrysie murów (z ociepleniem).

3 114,57 m³

Kąt nachylenia dachu
Tooltip
Nachylenie połaci dachu głównego podawane w stopniach. Uwaga! W niektórych projektach występuje więcej niż jedno nachylenie dachu.

30°

Wysokość budynku
Tooltip
Wysokość liczona od części budynku położonej najniżej przy powierzchni terenu do najwyższego punktu dachu (kalenicy) z wyłączeniem kominów.

10,98 m

Energooszczędność Energooszczędność

Oze Czym jest OZE (Odnawialne Źródło Energii)?
Warunki techniczne

Projekt zgody z WT 2021

Technologia i konstrukcja Technologia i konstrukcja

Konstrukcja

Murowana

Opis szczegółowy

Ściany zewnętrzne: dwuwarstwowe, silikat i bloczek gazobetonowy + styropian. Strop: nad parterem płyta żelbetowa monolityczna, nad poddaszem sufit podwieszony do konstrukcji dachu. Schody: żelbetowe, monolityczne ze spocznikiem. Ścianka kolankowa: nie dotyczy. Dach: dwuspadowy, pokrycie z blachy płaskiej, konstrukcja drewniana-wiązary kratownicowe.

Strop

Żelbetowy

Reklama
Okna i drzwi tarasowe

Nowoczesne okna PVC i aluminiowe WIŚNIOWSKI – doskonała izolacja, elegancki design i niezrównana trwałość.

Wiśniowski
Sprawdź parametry!
Okna dachowe

Oferujemy bezpłatne konsultacje w zakresie wszystkich rozwiązań VELUX. Wyceny, porady dotyczące doboru okien i rolet zewnętrznych - sprawdź!

Velux
Sprawdź szczegóły
Płytki ceramiczne i gresy

Od małych formatów po wielkoformatowe gresy. Marmur, beton, drewno, kamień, lastryko czy cegiełki zamówisz wygodnie online z szybką dostawą.

Ceramzet
Sprawdź ofertę
Elewacja

Kup przez internet wszystkie materiały potrzebne do wykonania elewacji: styropian, płyty PIR, XPS, kleje, tynki. Najlepsze marki w super cenach z dostawą pod dom.

Hurtownia styropianu
Sprawdź ofertę!
Drzwi

Ciepłe drzwi WIŚNIOWSKI z kontrolą dostępu. Szeroka gama wzorów i kolorów.

Wiśniowski
Wybierz najlepsze
Bramy garażowe

Automatyczne bramy garażowe segmentowe i uchylne WIŚNIOWSKI na wymiar i z systemem smart home w standardzie.

Wiśniowski
Sprawdź ofertę!
Armatura i ceramika łazienkowa

Topowi producenci. Baterie łazienkowe, zestawy natynkowe i podtynkowe, umywalki, wanny, miski WC oraz kabiny zamówisz kompleksowo online.

Ceramzet II
Dowiedz się więcej
Rekuperacja

Alnor - kompletny system rekuperacji. Dobierz idealne rozwiązanie dla Twojego domu!

Alnor
Dobierz rekuperator
Dach

Producent stalowych pokryć dachowych i systemów elewacyjnych. Precyzja wykonania, trwałość na lata i szybki montaż doceniany przez dekarzy. Postaw na solidny dach Budmat.

Budmat
Sprawdź ofertę
Ogrodzenie

Nowoczesne stalowe ogrodzenia Budmat - estetyka, bezpieczeństwo i trwałość na lata. Systemowe rozwiązania na wymiar, dopasowane do każdego domu.

Budmat
Sprawdź ofertę

Opis projektu budynku
Budynek usługowy BMU-430 wariant 2

Przedstawiamy projekt komercyjnego budynku usługowego z szerokim wachlarzem możliwości adaptacyjnych w zależności od zapotrzebowania. Idea jaka przyświecała projektowaniu miała na celu stworzenie obiektu, którego uniwersalna forma oraz zastosowane rozwiązania techniczne i funkcjonalne pozwolą na dużą mobilność wnętrza w przypadku zmian asortymentu towarów przeznaczonych do sprzedaży lub świadczonych w nim usług. Ponadto budynek miał charakteryzować się prostą i ekonomiczną bryłą w ponadczasowym, atrakcyjnym ujęciu. Budynek proponuje się w czterech wariantach, przybliżonych poniżej. Parter budynku, tożsamy dla wszystkich wariantów, został zaprojektowany z myślą o prowadzeniu nieuciążliwych usług np. handlu detalicznego, apteki, drogerii itp. Na parterze przewidziano jednoprzestrzenną salę, do której przynależy pomieszczenie socjalno-szatniowe, pom. porządkowe i toaleta dla personelu. Dodatkowo, ze względu na powierzchnię usługową przewidziano toaletę dla klientów, dostosowaną do użytku również przez osoby niepełnosprawne. Przedstawiany układ spełnia wymogi higieniczno-sanitarne stawiane obecnie budynkom usługowym. Dopełnieniem funkcji jest część techniczna tj. kotłownia i dodatkowe pomieszczenie dostępne z zewnątrz, które w przypadku ograniczonej powierzchni działki może służyć jako pomieszczenie na odpady bytowe. Piętro budynku z kolei proponuje się w czterech wariantach: Prezentowany wariant 2 – z podziałem na cztery lokale użytkowe. Sugerowany podział ma na celu pokazanie możliwości aranżacji lokali pod wynajem, wykorzystywanych w celu prowadzenia nieuciążliwych działalności typu biuro, kancelaria, gabinet kosmetyczny itp. Powierzchnia lokali waha się w granicach 33-55m2. Użytkownicy lokali mają dostęp do toalety na parterze budynku, nic nie stoi na przeszkodzie jednak aby toaletę zaplanować również na piętrze. Pozostałe dostępne warianty projektu to: Wariant 1 – podstawowy, bez ścian działowych, z wykorzystaniem na 1 lokal użytkowy. W tej wersji, piętro stanowi jedna przestrzeń typu open space do swobodnej aranżacji. O podziale i konkretnej funkcji Inwestor może zdecydować na etapie adaptacji projektu lub budowy, w zależności od zapotrzebowania konkretnych najemców. Może służyć na cele biurowe, lokal handlowy lub usługowy np. gastronomiczny (kawiarnia, pizzeria). Przestronny taras z pewnością będzie oblegany przez klientów w sezonie letnim. Dostęp do piętra dla osób niepełnosprawnych zapewnia się poprzez schodołaz lub platformę przyschodową zintegrowaną z poręczą, parkowaną na piętrze, z systemem przywołania na parter w razie konieczności. Wariant 3 – z podziałem na dwa przestronne apartamenty mieszkalne o powierzchni 66,70m2 i 94,78m2. Pierwszy z apartamentów zaplanowano w układzie dwupokojowym z przestronną strefą dzienną i obszerną sypialnią. Drugi z apartamentów oprócz przestronnej strefy dziennej do dyspozycji ma 2 sypialnie oraz dodatkową garderobę. W obu apartamentach przewidziano aneksy kuchenne przylegające do pokojów dziennych. Wariant 4 – z podziałem na trzy lokale mieszkalne o powierzchni 46,63m2, 46,94m2 i 50,71m2. Wszystkie mieszkania zostały zaplanowane w układzie dwupokojowym z aneksami przy salonach. W każdym z mieszkań przewidziano również osobne sypialnie. Z uwagi na komercyjny charakter budynku i przylegającego terenu, dla wariantów z mieszkaniami zaproponowano aby każde z nich miało dostęp do tarasu. Tarasy stanowią dodatkowe atuty, ponieważ dają namiastkę wolnej przestrzeni dla mieszkańców w komercyjnym otoczeniu, gdzie dostęp do otwartego terenu może być utrudniony. Można na nich zorganizować zieleń niską i zaaranżować miejsce do relaksu czy spotkań z przyjaciółmi na wolnym powietrzu. Jest to bardzo ważny czynnik, który może przesądzić o szybkim wynajmie. W przypadku podziału piętra na lokale usługowe, ich użytkownicy z pewnością również docenią możliwości jakie daje chwila oddechu na zewnątrz. W zależności od wybranej wersji projektu, przewidziano wariantowe rozwiązania w zakresie instalacji ogrzewan
Czytaj więcej

Informacje dodatkowe

Dokumentacja zabezpieczona jest specjalną plombą, której usunięcie uniemożliwi zwrot oraz wymianę projektu. Zapraszamy do zamówienia przed zakupem rysunków szczegółowych projektu oraz analizy posiadanej działki w celu upewnienia się, że wybrany projekt domu idealnie na nią pasuje. Do projektu zostanie dołączony opis techniczny, służący do weryfikacji projektu po odbiorze zamówienia bez konieczności otwierania pełnej dokumentacji projektowej.

Czytaj więcej

Polecani producenci

Kompletne systemy rekuperacji

tło producenta

Alnor

Dowiedz się więcej

Prefabrykowane konstrukcje dachowe

tło producenta

WIĄZAR POLSKA

Zobacz więcej

Sprawdź nową generację okien GREENVIEW

tło producenta

FAKRO

Sprawdź nową generację okien GREENVIEW

Styropian, tynki, farby, kleje

tło producenta

Termo Organika

Poznaj super jakość

Okna, drzwi, osłony przeciwsłoneczne

tło producenta

Aluprof

Sprawdź ofertę
Zobacz więcej

Społeczność projektu budynku
Budynek usługowy BMU-430 wariant 2 w budowie

Dołącz do społeczności osób, które budują ten dom lub są zainteresowane jego budową.

  • Oglądaj zdjęcia z budowy
  • Zadawaj pytania
  • Wymieniaj się doświadczeniami

Opinie o projekcie budynku Budynek usługowy BMU-430 wariant 2

Ocena

Ten projekt nie ma jeszcze opinii, bądź pierwszy!

Dodaj opinię

ASYSTENT WYBORU PROJEKTU

Szukasz idealnego projektu? Znajdziemy go dla Ciebie!

Doradca na podstawie Twoich wskazówek przygotuje spersonalizowaną listę projektów

Graficzne opracowanie rzutów poglądowych widocznych na karcie projektu zostało wykonane przez Extradom.pl. Prezentowane przez Extradom.pl wizualizacje wykonane zostały przez autora projektu i należy poczytywać je jedynie za przykład i propozycję wykończenia, wizję architektoniczną autora projektu. Ostateczne wykończenie budynku może nastąpić na wiele sposobów. Szczegółowe rozwiązania zastosowane w oferowanej dokumentacji - w tym również ilość, lokalizacje i wygląd okien, drzwi, kominów - mogą w niewielkim stopniu różnić się od prezentowanej wizualizacji budynku.

REKLAMA
Zamknij