👉 Wiosenne okazje + karta allegro 200 zł! 🔥

Koniec oferty za:

00godz.

00min.

00sek.

Sprawdź

Projekt domu Zawoja dw6 KRP1373

Zapisz Dodano!
Porównaj Dodano!
ikona Pobierz i drukuj

Warstwy

Warstwy

Rzut parteru

Powierzchnia (m²)
Tooltip
Powierzchnia pomieszczenia
to ta, z której faktycznie możesz korzystać – skosy i niskie części poddasza są liczone częściowo lub wcale.
  1. 100% dla wysokości powyżej 2,2 m,
  2. 50% dla wysokości 1,4–2,2 m,
  3. nie liczymy poniżej 1,4 m.

Powierzchnia podłogi
Liczymy po obrysie pomieszczenia, bez względu na jego wysokość/skosy. Jeśli nie ma skosów to powierzchnia podłogi i pomieszczenia jest taka sama.
pomieszczenia i podłogi
podłogi
1. Wiatrołap
3,86
2. Pokój dzienny + kuchnia
27,25
3. Pokój
10,37
4. Łazienka
7,72
Razem
49,20
49,20
Powierzchnia (m²)
Tooltip
Powierzchnia pomieszczenia
to ta, z której faktycznie możesz korzystać – skosy i niskie części poddasza są liczone częściowo lub wcale.
  1. 100% dla wysokości powyżej 2,2 m,
  2. 50% dla wysokości 1,4–2,2 m,
  3. nie liczymy poniżej 1,4 m.

Powierzchnia podłogi
Liczymy po obrysie pomieszczenia, bez względu na jego wysokość/skosy. Jeśli nie ma skosów to powierzchnia podłogi i pomieszczenia jest taka sama.
pomieszczenia
podłogi
1. Korytarz
2,66
6,99
2. Pokój
13,28
21,72
3. Łazienka
4,45
7,89
4. Pokój
10,37
17,27
5. Pomieszczenie gospodarcze
0,44
3,22
Razem
31,20
57,09

    Usytuowanie na działce

    Czy ten projekt pasuje na
    Twoją działkę?

    Chętnie to sprawdzimy!

    Dowiedz się:

    • czy zmieści się na niej wybrany przez Ciebie dom
    • jakie parametry musi spełniać dom według miejscowego planu zagospodarowania lub warunków zabudowy (np. kąt nachylenia i typ dachu, liczba kondygnacji itp.
    • jakie inne projekty pasują na Twoją działkę – znajdziemy je dla Ciebie!

Pow. użytkowa

80,40 m²

Pokoje

3

Łazienki i WC

2

Garaż

0

Min. szer. i dł. działki

18,5 x 16,50 m

Kąt dachu

43°

Konstrukcja

Z bali
więcej

Zawoja dw6 - KRP1373

ikona 80,40 m²
Powierzchnia użytkowa
ikona3
Pokoje (bez salonu)
ikona 2
Łazienki (z toaletami)
ikona 0
Liczba stanowisk garażowych
(z wiatą garażową)
ikona
Konstrukcja: Z bali

Projekt został
wycofany z oferty

W razie pytań prosimy o kontakt
z Centrum Obsługi Klienta
Konsultant
71 715 20 60

pon.-pt. 8-21, sob. 9-17

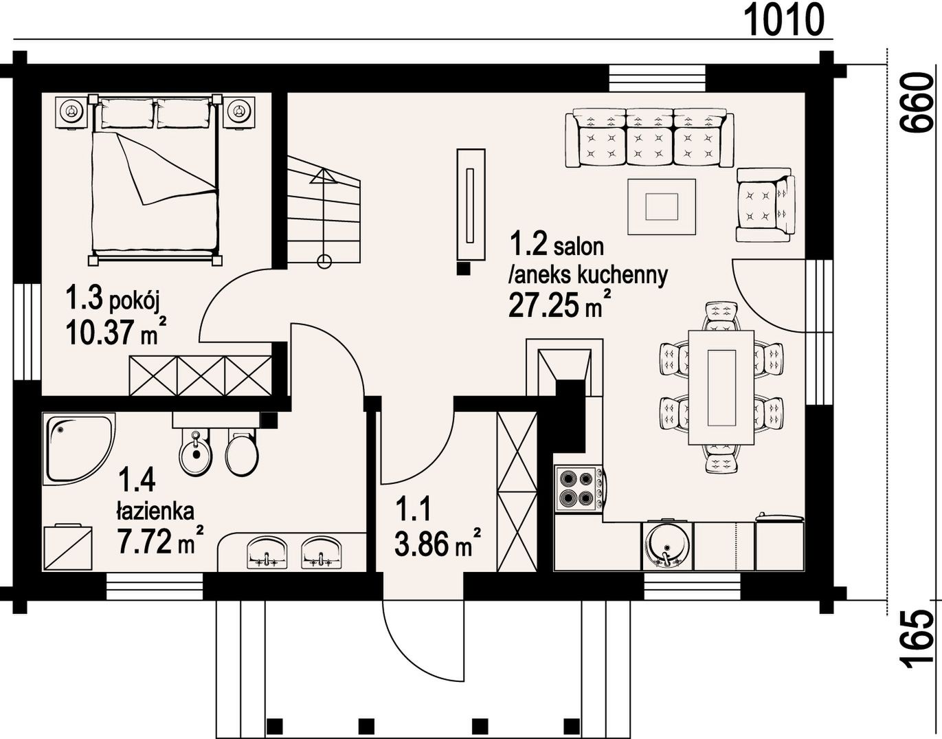
Parter - 49,20 m²

Parter projektu Zawoja dw6

Zapytaj, co możesz zmienić

Powierzchnia (m²)
Tooltip
Powierzchnia pomieszczenia
to ta, z której faktycznie możesz korzystać – skosy i niskie części poddasza są liczone częściowo lub wcale.
  1. 100% dla wysokości powyżej 2,2 m,
  2. 50% dla wysokości 1,4–2,2 m,
  3. nie liczymy poniżej 1,4 m.

Powierzchnia podłogi
Liczymy po obrysie pomieszczenia, bez względu na jego wysokość/skosy. Jeśli nie ma skosów to powierzchnia podłogi i pomieszczenia jest taka sama.
pomieszczenia i podłogi
podłogi
1. Wiatrołap
3,86
2. Pokój dzienny + kuchnia
27,25
3. Pokój
10,37
4. Łazienka
7,72
Razem
49,20
49,20

Poddasze - 31,20 m²

Poddasze projektu Zawoja dw6

Zapytaj, co możesz zmienić

Powierzchnia (m²)
Tooltip
Powierzchnia pomieszczenia
to ta, z której faktycznie możesz korzystać – skosy i niskie części poddasza są liczone częściowo lub wcale.
  1. 100% dla wysokości powyżej 2,2 m,
  2. 50% dla wysokości 1,4–2,2 m,
  3. nie liczymy poniżej 1,4 m.

Powierzchnia podłogi
Liczymy po obrysie pomieszczenia, bez względu na jego wysokość/skosy. Jeśli nie ma skosów to powierzchnia podłogi i pomieszczenia jest taka sama.
pomieszczenia
podłogi
1. Korytarz
2,66
6,99
2. Pokój
13,28
21,72
3. Łazienka
4,45
7,89
4. Pokój
10,37
17,27
5. Pomieszczenie gospodarcze
0,44
3,22
Razem
31,20
57,09

Warianty projektu (48)

PROMOCJA
Projekt domu Zawoja 45 dws
Zawoja 45 dws
Dodano!
Dodano!
71,23 m²
2
1
0

5 280 zł

5 480 zł

Tooltip

Cena regularna

5 180 zł najniższa cena
Tooltip

Najniższa cena z 30 dni
przed obniżką

PROMOCJA
Projekt domu Zawoja 4 dw
Zawoja 4 dw
Dodano!
Dodano!
107,45 m²
4
2
0

5 480 zł

5 680 zł

Tooltip

Cena regularna

5 380 zł najniższa cena
Tooltip

Najniższa cena z 30 dni
przed obniżką

PROMOCJA
Projekt domu Zawoja dw 11
Zawoja dw 11
Dodano!
Dodano!
86,20 m²
4
2
0

5 480 zł

5 680 zł

Tooltip

Cena regularna

5 380 zł najniższa cena
Tooltip

Najniższa cena z 30 dni
przed obniżką

PROMOCJA
Projekt domu Zawoja średnia
Zawoja średnia
Dodano!
Dodano!
116,42 m²
5
2
0

5 180 zł

5 380 zł

Tooltip

Cena regularna

5 080 zł najniższa cena
Tooltip

Najniższa cena z 30 dni
przed obniżką

PROMOCJA
Projekt domu Zawoja dw 8
Zawoja dw 8
Dodano!
Dodano!
104,44 m²
4
2
0

5 480 zł

5 680 zł

Tooltip

Cena regularna

5 480 zł najniższa cena
Tooltip

Najniższa cena z 30 dni
przed obniżką

PROMOCJA
Projekt domu Zawoja dw 21
Zawoja dw 21
Dodano!
Dodano!
90,26 m²
4
2
0

5 480 zł

5 680 zł

Tooltip

Cena regularna

5 380 zł najniższa cena
Tooltip

Najniższa cena z 30 dni
przed obniżką

PROMOCJA
Projekt domu Zawoja dws 17t
Zawoja dws 17t
Dodano!
Dodano!
67,79 m²
3
1
0

5 480 zł

5 680 zł

Tooltip

Cena regularna

5 380 zł najniższa cena
Tooltip

Najniższa cena z 30 dni
przed obniżką

PROMOCJA
Projekt domu Zawoja dw 39
Zawoja dw 39
Dodano!
Dodano!
101,20 m²
4
2
0

5 780 zł

5 980 zł

Tooltip

Cena regularna

5 680 zł najniższa cena
Tooltip

Najniższa cena z 30 dni
przed obniżką

PROMOCJA
Projekt domu Zawoja 16 dwst
Zawoja 16 dwst
Dodano!
Dodano!
111,82 m²
3
2
1

5 480 zł

5 680 zł

Tooltip

Cena regularna

5 380 zł najniższa cena
Tooltip

Najniższa cena z 30 dni
przed obniżką

PROMOCJA
Projekt domu Zawoja dw
Zawoja dw
Dodano!
Dodano!
85,68 m²
4
2
0

5 480 zł

5 680 zł

Tooltip

Cena regularna

5 380 zł najniższa cena
Tooltip

Najniższa cena z 30 dni
przed obniżką

PROMOCJA
Projekt domu Zawoja dws 4
Zawoja dws 4
Dodano!
Dodano!
103,40 m²
4
2
0

5 480 zł

5 680 zł

Tooltip

Cena regularna

5 380 zł najniższa cena
Tooltip

Najniższa cena z 30 dni
przed obniżką

PROMOCJA
Projekt domu Zawoja dw 17
Zawoja dw 17
Dodano!
Dodano!
68,35 m²
2
1
0

5 280 zł

5 480 zł

Tooltip

Cena regularna

5 180 zł najniższa cena
Tooltip

Najniższa cena z 30 dni
przed obniżką

PROMOCJA
Projekt domu Zawoja mk1
Zawoja mk1
Dodano!
Dodano!
100,96 m²
4
2
0

5 180 zł

5 380 zł

Tooltip

Cena regularna

5 080 zł najniższa cena
Tooltip

Najniższa cena z 30 dni
przed obniżką

PROMOCJA
Projekt domu Zawoja mk 31
Zawoja mk 31
Dodano!
Dodano!
99,88 m²
4
2
0

5 180 zł

5 380 zł

Tooltip

Cena regularna

5 080 zł najniższa cena
Tooltip

Najniższa cena z 30 dni
przed obniżką

PROMOCJA
Projekt domu Zawoja mk7gx dws
Zawoja mk7gx dws
Dodano!
Dodano!
99,53 m²
4
2
1

4 980 zł

5 180 zł

Tooltip

Cena regularna

4 880 zł najniższa cena
Tooltip

Najniższa cena z 30 dni
przed obniżką

PROMOCJA
Projekt domu Zawoja 24 dw
Zawoja 24 dw
Dodano!
Dodano!
89,83 m²
4
2
0

5 480 zł

5 680 zł

Tooltip

Cena regularna

5 380 zł najniższa cena
Tooltip

Najniższa cena z 30 dni
przed obniżką

PROMOCJA
Projekt domu Zawoja dw 15
Zawoja dw 15
Dodano!
Dodano!
122,07 m²
5
2
1

5 580 zł

5 780 zł

Tooltip

Cena regularna

5 480 zł najniższa cena
Tooltip

Najniższa cena z 30 dni
przed obniżką

PROMOCJA
Projekt domu Zawoja dws 5
Zawoja dws 5
Dodano!
Dodano!
89,85 m²
4
2
0

5 480 zł

5 680 zł

Tooltip

Cena regularna

5 380 zł najniższa cena
Tooltip

Najniższa cena z 30 dni
przed obniżką

PROMOCJA
Projekt domu Zawoja mk 11 dws
Zawoja mk 11 dws
Dodano!
Dodano!
105,11 m²
4
2
0

5 480 zł

5 680 zł

Tooltip

Cena regularna

5 380 zł najniższa cena
Tooltip

Najniższa cena z 30 dni
przed obniżką

PROMOCJA
Projekt domu Zawoja dws 33
Zawoja dws 33
Dodano!
Dodano!
96,59 m²
4
2
0

5 480 zł

5 680 zł

Tooltip

Cena regularna

5 380 zł najniższa cena
Tooltip

Najniższa cena z 30 dni
przed obniżką

PROMOCJA
Projekt domu Zawoja 55 dw
Zawoja 55 dw
Dodano!
Dodano!
100,78 m²
4
2
0

5 480 zł

5 680 zł

Tooltip

Cena regularna

5 380 zł najniższa cena
Tooltip

Najniższa cena z 30 dni
przed obniżką

PROMOCJA
Projekt domu Zawoja 23 dwst
Zawoja 23 dwst
Dodano!
Dodano!
94,35 m²
4
2
1

5 480 zł

5 680 zł

Tooltip

Cena regularna

5 380 zł najniższa cena
Tooltip

Najniższa cena z 30 dni
przed obniżką

PROMOCJA
Projekt domu Zawoja dws 37t
Zawoja dws 37t
Dodano!
Dodano!
67,88 m²
3
1
0

5 480 zł

5 680 zł

Tooltip

Cena regularna

5 380 zł najniższa cena
Tooltip

Najniższa cena z 30 dni
przed obniżką

PROMOCJA
Projekt domu Zawoja dw 3
Zawoja dw 3
Dodano!
Dodano!
100,78 m²
4
2
0

5 480 zł

5 680 zł

Tooltip

Cena regularna

5 380 zł najniższa cena
Tooltip

Najniższa cena z 30 dni
przed obniżką

PROMOCJA
Projekt domu Zawoja 57 dws
Zawoja 57 dws
Dodano!
Dodano!
78,69 m²
2
1
1

5 380 zł

5 580 zł

Tooltip

Cena regularna

5 280 zł najniższa cena
Tooltip

Najniższa cena z 30 dni
przed obniżką

PROMOCJA
Projekt domu Zawoja 67 dws
Zawoja 67 dws
Dodano!
Dodano!
67,11 m²
3
1
1

5 380 zł

5 580 zł

Tooltip

Cena regularna

5 280 zł najniższa cena
Tooltip

Najniższa cena z 30 dni
przed obniżką

PROMOCJA
Projekt domu Zawoja mk5
Zawoja mk5
Dodano!
Dodano!
104,29 m²
4
2
0

4 880 zł

5 080 zł

Tooltip

Cena regularna

4 780 zł najniższa cena
Tooltip

Najniższa cena z 30 dni
przed obniżką

PROMOCJA
Projekt domu Zawoja mk3x
Zawoja mk3x
Dodano!
Dodano!
105,67 m²
4
2
0

4 880 zł

5 080 zł

Tooltip

Cena regularna

4 780 zł najniższa cena
Tooltip

Najniższa cena z 30 dni
przed obniżką

PROMOCJA
Projekt domu Zawoja 27
Zawoja 27
Dodano!
Dodano!
80,13 m²
4
1
0

4 880 zł

5 080 zł

Tooltip

Cena regularna

4 780 zł najniższa cena
Tooltip

Najniższa cena z 30 dni
przed obniżką

PROMOCJA
Projekt domu Zawoja mk 15
Zawoja mk 15
Dodano!
Dodano!
97,08 m²
4
2
0

4 780 zł

4 980 zł

Tooltip

Cena regularna

4 680 zł najniższa cena
Tooltip

Najniższa cena z 30 dni
przed obniżką

PROMOCJA
Projekt domu Zawoja dw 63
Zawoja dw 63
Dodano!
Dodano!
94,26 m²
4
2
0

5 280 zł

5 480 zł

Tooltip

Cena regularna

5 180 zł najniższa cena
Tooltip

Najniższa cena z 30 dni
przed obniżką

PROMOCJA
Projekt domu Zawoja 33dwsg
Zawoja 33dwsg
Dodano!
Dodano!
92,52 m²
3
2
1

5 480 zł

5 680 zł

Tooltip

Cena regularna

5 380 zł najniższa cena
Tooltip

Najniższa cena z 30 dni
przed obniżką

PROMOCJA
Projekt domu Zawoja mk6
Zawoja mk6
Dodano!
Dodano!
107,33 m²
4
2
0

4 880 zł

5 080 zł

Tooltip

Cena regularna

4 780 zł najniższa cena
Tooltip

Najniższa cena z 30 dni
przed obniżką

PROMOCJA
Projekt domu Zawoja dw 53
Zawoja dw 53
Dodano!
Dodano!
141 m²
5
4
0

5 880 zł

6 080 zł

Tooltip

Cena regularna

5 780 zł najniższa cena
Tooltip

Najniższa cena z 30 dni
przed obniżką

PROMOCJA
Projekt domu Zawoja mk71g
Zawoja mk71g
Dodano!
Dodano!
99,87 m²
4
2
1

4 880 zł

5 080 zł

Tooltip

Cena regularna

4 780 zł najniższa cena
Tooltip

Najniższa cena z 30 dni
przed obniżką

PROMOCJA
Projekt domu Zawoja dw 25
Zawoja dw 25
Dodano!
Dodano!
112,09 m²
5
2
1

5 480 zł

5 680 zł

Tooltip

Cena regularna

5 380 zł najniższa cena
Tooltip

Najniższa cena z 30 dni
przed obniżką

PROMOCJA
Projekt domu Zawoja duża dw 13
Zawoja duża dw 13
Dodano!
Dodano!
144,43 m²
4
2
1

5 780 zł

5 980 zł

Tooltip

Cena regularna

5 680 zł najniższa cena
Tooltip

Najniższa cena z 30 dni
przed obniżką

PROMOCJA
Projekt domu Zawoja dw 43
Zawoja dw 43
Dodano!
Dodano!
102,40 m²
3
2
0

5 480 zł

5 680 zł

Tooltip

Cena regularna

5 380 zł najniższa cena
Tooltip

Najniższa cena z 30 dni
przed obniżką

PROMOCJA
Projekt domu Zawoja 25 dwst
Zawoja 25 dwst
Dodano!
Dodano!
150,58 m²
6
2
1

5 580 zł

5 780 zł

Tooltip

Cena regularna

5 480 zł najniższa cena
Tooltip

Najniższa cena z 30 dni
przed obniżką

PROMOCJA
Projekt domu Zawoja mk 77g dws
Zawoja mk 77g dws
Dodano!
Dodano!
107,43 m²
3
2
1

5 280 zł

5 480 zł

Tooltip

Cena regularna

5 180 zł najniższa cena
Tooltip

Najniższa cena z 30 dni
przed obniżką

PROMOCJA
Projekt domu Zawoja 31 dw
Zawoja 31 dw
Dodano!
Dodano!
94,94 m²
3
3
0

5 480 zł

5 680 zł

Tooltip

Cena regularna

5 380 zł najniższa cena
Tooltip

Najniższa cena z 30 dni
przed obniżką

PROMOCJA
Projekt domu Zawoja 36 dw
Zawoja 36 dw
Dodano!
Dodano!
74,43 m²
2
2
0

5 480 zł

5 680 zł

Tooltip

Cena regularna

5 380 zł najniższa cena
Tooltip

Najniższa cena z 30 dni
przed obniżką

PROMOCJA
Projekt domu Zawoja mk1t
Zawoja mk1t
Dodano!
Dodano!
99,05 m²
4
2
0

4 880 zł

5 080 zł

Tooltip

Cena regularna

4 780 zł najniższa cena
Tooltip

Najniższa cena z 30 dni
przed obniżką

PROMOCJA
Projekt domu Zawoja dw 7
Zawoja dw 7
Dodano!
Dodano!
69,25 m²
2
1
0

5 280 zł

5 480 zł

Tooltip

Cena regularna

5 180 zł najniższa cena
Tooltip

Najniższa cena z 30 dni
przed obniżką

PROMOCJA
Projekt domu Zawoja dw 77
Zawoja dw 77
Dodano!
Dodano!
108,98 m²
3
2
0

5 480 zł

5 680 zł

Tooltip

Cena regularna

5 380 zł najniższa cena
Tooltip

Najniższa cena z 30 dni
przed obniżką

PROMOCJA
Projekt domu Zawoja 14 dw
Zawoja 14 dw
Dodano!
Dodano!
89,42 m²
4
2
0

5 480 zł

5 680 zł

Tooltip

Cena regularna

5 380 zł najniższa cena
Tooltip

Najniższa cena z 30 dni
przed obniżką

PROMOCJA
Projekt domu Zawoja dw 16
Zawoja dw 16
Dodano!
Dodano!
96,83 m²
4
2
1

5 480 zł

5 680 zł

Tooltip

Cena regularna

5 380 zł najniższa cena
Tooltip

Najniższa cena z 30 dni
przed obniżką

PROMOCJA
Projekt domu Zawoja 47 dws
Zawoja 47 dws
Dodano!
Dodano!
71,23 m²
2
1
0

5 280 zł

5 480 zł

Tooltip

Cena regularna

5 180 zł najniższa cena
Tooltip

Najniższa cena z 30 dni
przed obniżką

Podobne projekty (647)

Zobacz wszystkie
NIŻSZA CENA 🔥
Nowość
Zdjęcie 1 projektu BW-70 wariant 1 (niskoemisyjny) JGC1270
84,10 m²
4
2
0

3 570 zł

3 670 zł

Tooltip

Cena regularna

3 570 zł najniższa cena
Tooltip

Najniższa cena z 30 dni
przed obniżką

NIŻSZA CENA 🔥
Zdjęcie 1 projektu Helen 2 BSE1263
Helen 2
Dodano!
Dodano!
86,67 m²
4
2
0

4 845 zł

5 100 zł

Tooltip

Cena regularna

4 845 zł najniższa cena
Tooltip

Najniższa cena z 30 dni
przed obniżką

NIŻSZA CENA 🔥
Zdjęcie 1 projektu Dom przy Wiosennej 7 KRK1472
Dom przy Wiosennej 7
Dodano!
Dodano!
81,35 m²
4
2
1

2 890 zł

3 390 zł

Tooltip

Cena regularna

2 890 zł najniższa cena
Tooltip

Najniższa cena z 30 dni
przed obniżką

NIŻSZA CENA 🔥
Zdjęcie 1 projektu Lungo 4 mini WOF1163
Lungo 4 mini
Dodano!
Dodano!
86,23 m²
4
2
0

3 699 zł

3 899 zł

Tooltip

Cena regularna

3 699 zł najniższa cena
Tooltip

Najniższa cena z 30 dni
przed obniżką

NIŻSZA CENA 🔥
Zdjęcie 1 projektu BW-70 wariant 2 JGC1246
BW-70 wariant 2
Dodano!
Dodano!
82,60 m²
4
2
0

3 370 zł

3 470 zł

Tooltip

Cena regularna

3 370 zł najniższa cena
Tooltip

Najniższa cena z 30 dni
przed obniżką

NIŻSZA CENA 🔥
Zdjęcie 1 projektu Malik (1515) KRD2663
Malik (1515)
Dodano!
Dodano!
80 m²
4
2
0

3 640 zł

3 990 zł

Tooltip

Cena regularna

3 610 zł najniższa cena
Tooltip

Najniższa cena z 30 dni
przed obniżką

NIŻSZA CENA 🔥
Zdjęcie 1 projektu Dino Solo (1920) KRD3063
Dino Solo (1920)
Dodano!
Dodano!
78,80 m²
4
2
0

3 640 zł

3 990 zł

Tooltip

Cena regularna

3 640 zł najniższa cena
Tooltip

Najniższa cena z 30 dni
przed obniżką

NIŻSZA CENA 🔥
Zdjęcie 1 projektu Ewa PRA1131
Ewa
Dodano!
Dodano!
85,07 m²
6
2
0

3 000 zł

3 400 zł

Tooltip

Cena regularna

3 000 zł najniższa cena
Tooltip

Najniższa cena z 30 dni
przed obniżką

Elewacje

Frontowa
Tylna
Lewa
Prawa

Przekroje

Przekrój pionowy

Usytuowanie na działce

Czy ten projekt pasuje na
Twoją działkę?

Chętnie to sprawdzimy!

Czy ten projekt pasuje na
Twoją działkę?

Chętnie to sprawdzimy!

Dowiedz się:

  • czy zmieści się na niej wybrany przez Ciebie dom
  • jakie parametry musi spełniać dom według miejscowego planu zagospodarowania lub warunków zabudowy (np. kąt nachylenia i typ dachu, liczba kondygnacji itp.
  • jakie inne projekty pasują na Twoją działkę – znajdziemy je dla Ciebie!
Autor: Dom-Projekt

Dane techniczne projektu

Powierzchnie i wymiary Powierzchnie i wymiary

Powierzchnia użytkowa
Tooltip
Suma powierzchni wszystkich pomieszczeń mieszkalnych, pomniejszona o pow. garażu, kotłowni, strychu, piwnicy. Jest liczona w 100% dla pomieszczeń o wysokości powyżej 2,2 m, w 50% dla pomieszczeń o wys. 2,2-1,4 m i niewliczana dla niższych niż 1,4 m.

80,40 m²

Powierzchnia zabudowy
Tooltip
Powierzchnia zajmowana przez część na- oraz nadziemną budynku liczona, jako rzut pionowy budynku na działkę.

71,80 m²

Powierzchnia netto
Tooltip
Powierzchna wszystkich pomieszczeń w budynku mierzona na wysokości podłogi.

110,85 m²

Kubatura brutto
Tooltip
Zazwyczaj jest to suma kubatur (objętości) wszystkich pomieszczeń budynku, liczonych po zewnętrznym obrysie murów (z ociepleniem).

340,60 m³

Kąt nachylenia dachu
Tooltip
Nachylenie połaci dachu głównego podawane w stopniach. Uwaga! W niektórych projektach występuje więcej niż jedno nachylenie dachu.

43°

Wysokość budynku
Tooltip
Wysokość liczona od części budynku położonej najniżej przy powierzchni terenu do najwyższego punktu dachu (kalenicy) z wyłączeniem kominów.

7,45 m

Min. szerokość działki
Tooltip
Najmniejsza możliwa szerokość działki niezbędna do wybudowania wybranego domu. Składa się z szerokości elewacji domu powiększonej z obu stron o 3 m dla ściany bez otworów drzwiowych/okiennych lub 4 m, dla ściany z otworami.

18,50 m

Min. długość działki
Tooltip
Najmniejsza możliwa długość działki niezbędna do wybudowania wybranego domu. Składa się z długości elewacji domu powiększonej z obu stron o 3 m dla ściany bez otworów drzwiowych/okiennych lub 4 m, dla ściany z otworami.

16,50 m

Energooszczędność Energooszczędność

Oze Czym jest OZE (Odnawialne Źródło Energii)?
Warunki techniczne

Projekt zgody z WT 2021

Technologia i konstrukcja Technologia i konstrukcja

Konstrukcja

Z bali

Opis szczegółowy

Strop: drewniany. Pokrycie dachu: dachówka gontopodobna z posypka Gerard Corona. Ściany zewnętrzne: płazy drewniane + wełna mineralna + deska. Ściany wewnętrzne: płazy drewniane. Typ ogrzewania: kocioł gazowy.

Strop

Drewniany

Reklama
Okna i drzwi tarasowe

Nowoczesne okna PVC i aluminiowe WIŚNIOWSKI – doskonała izolacja, elegancki design i niezrównana trwałość.

Wiśniowski
Sprawdź parametry!
Okna dachowe

Oferujemy bezpłatne konsultacje w zakresie wszystkich rozwiązań VELUX. Wyceny, porady dotyczące doboru okien i rolet zewnętrznych - sprawdź!

Velux
Sprawdź szczegóły
Płytki ceramiczne i gresy

Od małych formatów po wielkoformatowe gresy. Marmur, beton, drewno, kamień, lastryko czy cegiełki zamówisz wygodnie online z szybką dostawą.

Ceramzet
Sprawdź ofertę
Elewacja

Kup przez internet wszystkie materiały potrzebne do wykonania elewacji: styropian, płyty PIR, XPS, kleje, tynki. Najlepsze marki w super cenach z dostawą pod dom.

Hurtownia styropianu
Sprawdź ofertę!
Drzwi

Ciepłe drzwi WIŚNIOWSKI z kontrolą dostępu. Szeroka gama wzorów i kolorów.

Wiśniowski
Wybierz najlepsze
Bramy garażowe

Automatyczne bramy garażowe segmentowe i uchylne WIŚNIOWSKI na wymiar i z systemem smart home w standardzie.

Wiśniowski
Sprawdź ofertę!
Armatura i ceramika łazienkowa

Topowi producenci. Baterie łazienkowe, zestawy natynkowe i podtynkowe, umywalki, wanny, miski WC oraz kabiny zamówisz kompleksowo online.

Ceramzet II
Dowiedz się więcej
Rekuperacja

Alnor - kompletny system rekuperacji. Dobierz idealne rozwiązanie dla Twojego domu!

Alnor
Dobierz rekuperator
Dach

Producent stalowych pokryć dachowych i systemów elewacyjnych. Precyzja wykonania, trwałość na lata i szybki montaż doceniany przez dekarzy. Postaw na solidny dach Budmat.

Budmat
Sprawdź ofertę
Ogrodzenie

Nowoczesne stalowe ogrodzenia Budmat - estetyka, bezpieczeństwo i trwałość na lata. Systemowe rozwiązania na wymiar, dopasowane do każdego domu.

Budmat
Sprawdź ofertę

Gotowe domy - najszybszy sposób na dom (115)

Zobacz wszystkie
  • Stan deweloperski nawet w 6 miesięcy
  • Gwarancja stałej ceny
Skonfiguruj dom
Zdjęcie 1 projektu Bergen 70 HUS1004
72,05 m²
3
Stan deweloperski brutto
369 000 zł 5 121 zł/m²
Zdjęcie 1 projektu ExtraKeramzytowy 1 HAK1001
80,39 m²
3
Stan deweloperski brutto
411 560 zł 5 120 zł/m²
Zdjęcie 1 projektu Dom prefabrykowany Parterowy 80C HFX1005
79,83 m²
2
Stan deweloperski brutto
399 000 zł 4 998 zł/m²
Zdjęcie 1 projektu Dom szkieletowy Mezzanine Smart 70 HHT1011
81,09 m²
2
Stan deweloperski brutto
449 600 zł 5 544 zł/m²
Zdjęcie 1 projektu Dom prefabrykowany Parterowy 80A HFX1003
79,48 m²
3
Stan deweloperski brutto
399 000 zł 5 020 zł/m²
Zdjęcie 1 projektu Dom prefabrykowany Parterowy 80B HFX1004
79,27 m²
3
Stan deweloperski brutto
399 000 zł 5 033 zł/m²
Zdjęcie 1 projektu Dom modułowy Energy HMD1003
83,28 m²
3
Stan deweloperski brutto
473 000 zł 5 680 zł/m²
Zdjęcie 1 projektu Dom prefabrykowany P.10 HPK1009
84,54 m²
3
Stan deweloperski brutto
509 400 zł 6 026 zł/m²

Opis projektu domu
Zawoja dw6

Budynek Zawoja dw6 został stworzony na wzór popularnego projektu Zawoja dw. W odróżnieniu od podstawowej wersji projekt ma mniej pokoi, mniejszą powierzchnię. Projekt domu Zawoja dw6 jest doskonałym rozwiązaniem dla osób posiadających średniej szerokości działkę. Bryła budynku posiada formę typową, co znacznie ułatwia późniejszą aranżację wnętrza. W tym projekcie kalenica usytuowana jest równolegle do drogi, co często określane jest w planie zagospodarowania przestrzennego. Dom został zaprojektowany z myślą o zabudowie wolnostojącej. Projekt jest idealną propozycją dla osób zainteresowanych domem z dachem dwuspadowym, dzięki któremu budynek posiada ponadczasowy wygląd. Projekt Zawoja dw6 to dom parterowy z poddaszem użytkowym, co sprawia, że metraż powierzchni użytkowej nie jest ograniczony wielkością działki. Uwzględniona w projekcie część dzienna z pewnością zadowoli osoby lubiące cieszyć się wspólnymi chwilami w rodzinnym gronie. Tworzy ją między innymi funkcjonalna kuchnia, którą każdy Inwestor swobodnie dostosuje do swoich potrzeb. Usytuowany w salonie kominek nie tylko świetnie się prezentuje, ale także zapewni przyjemne ciepło w chłodniejsze dni. W domu zostały przewidziane dwie komfortowe łazienki- po jednej na każdej kondygnacji. Potrzeby 2-4 osobowej rodziny spełnią przewidziane w projekcie trzy przestronne sypialnie. Przestrzeń można wykorzystać także jako pokój dla gości lub gabinet. Ciągłość pomiędzy wnętrzem domu a ogrodem zapewnia atrakcyjny taras. Jego wygląd zewnętrzny uwydatnia cechy charakterystyczne dla stylu góralskiego i doskonale wpasuje się górskie tereny.
Czytaj więcej

Polecani producenci

Kompletne systemy rekuperacji

tło producenta

Alnor

Dowiedz się więcej

Prefabrykowane konstrukcje dachowe

tło producenta

WIĄZAR POLSKA

Zobacz więcej

Sprawdź nową generację okien GREENVIEW

tło producenta

FAKRO

Sprawdź nową generację okien GREENVIEW

Styropian, tynki, farby, kleje

tło producenta

Termo Organika

Poznaj super jakość

Okna, drzwi, osłony przeciwsłoneczne

tło producenta

Aluprof

Sprawdź ofertę
Zobacz więcej

Społeczność projektu domu
Zawoja dw6 w budowie

Dołącz do społeczności osób, które budują ten dom lub są zainteresowane jego budową.

  • Oglądaj zdjęcia z budowy
  • Zadawaj pytania
  • Wymieniaj się doświadczeniami

Opinie o projekcie domu Zawoja dw6

Ocena

Ten projekt nie ma jeszcze opinii, bądź pierwszy!

Dodaj opinię

ASYSTENT WYBORU PROJEKTU

Szukasz idealnego projektu? Znajdziemy go dla Ciebie!

Doradca na podstawie Twoich wskazówek przygotuje spersonalizowaną listę projektów

Graficzne opracowanie rzutów poglądowych widocznych na karcie projektu zostało wykonane przez Extradom.pl. Prezentowane przez Extradom.pl wizualizacje wykonane zostały przez autora projektu i należy poczytywać je jedynie za przykład i propozycję wykończenia, wizję architektoniczną autora projektu. Ostateczne wykończenie budynku może nastąpić na wiele sposobów. Szczegółowe rozwiązania zastosowane w oferowanej dokumentacji - w tym również ilość, lokalizacje i wygląd okien, drzwi, kominów - mogą w niewielkim stopniu różnić się od prezentowanej wizualizacji budynku.

REKLAMA
Zamknij