👉 Wiosenne rabaty + karta allegro 200 zł! 🔥

Koniec oferty za:

00godz.

00min.

00sek.

Sprawdź

Projekt domu Zawoja średnia KRP1128

Dodano!
Dodano!

Warstwy

Warstwy

Rzut parteru

Powierzchnia (m²)
Tooltip
Powierzchnia pomieszczenia
to ta, z której faktycznie możesz korzystać – skosy i niskie części poddasza są liczone częściowo lub wcale.
  1. 100% dla wysokości powyżej 2,2 m,
  2. 50% dla wysokości 1,4–2,2 m,
  3. nie liczymy poniżej 1,4 m.

Powierzchnia podłogi
Liczymy po obrysie pomieszczenia, bez względu na jego wysokość/skosy. Jeśli nie ma skosów to powierzchnia podłogi i pomieszczenia jest taka sama.
pomieszczenia i podłogi
podłogi
1. Wiatrołap
6,66
2. Pokój dzienny + kuchnia
36,62
3. Pokój
12,31
4. Łazienka
5,56
5. Kotłownia
7,41
Razem
68,56
68,56
Powierzchnia (m²)
Tooltip
Powierzchnia pomieszczenia
to ta, z której faktycznie możesz korzystać – skosy i niskie części poddasza są liczone częściowo lub wcale.
  1. 100% dla wysokości powyżej 2,2 m,
  2. 50% dla wysokości 1,4–2,2 m,
  3. nie liczymy poniżej 1,4 m.

Powierzchnia podłogi
Liczymy po obrysie pomieszczenia, bez względu na jego wysokość/skosy. Jeśli nie ma skosów to powierzchnia podłogi i pomieszczenia jest taka sama.
pomieszczenia
podłogi
1. Korytarz
4,98
4,98
2. Pokój
12,73
16,48
3. Pokój
11,52
14,79
4. Łazienka
5,81
6,60
5. Pokój
9,95
12,92
6. Pokój
10,28
13,30
Razem
55,27
69,07

    Usytuowanie na działce

    Czy ten projekt pasuje na
    Twoją działkę?

    Chętnie to sprawdzimy!

    Dowiedz się:

    • czy zmieści się na niej wybrany przez Ciebie dom
    • jakie parametry musi spełniać dom według miejscowego planu zagospodarowania lub warunków zabudowy (np. kąt nachylenia i typ dachu, liczba kondygnacji itp.
    • jakie inne projekty pasują na Twoją działkę – znajdziemy je dla Ciebie!

Pow. użytkowa

116,42 m²

Pokoje

5

Łazienki i WC

2

Garaż

0

Min. szer. i dł. działki

19 x 16,50 m

Kąt dachu

43°

Szacunkowy koszt SSZ

285 000 zł
Szacunkowy koszt budowy do stanu surowego zamkniętego (SSZ) metodą gospodarczą - większość prac wykonuje inwestor.

Konstrukcja

Murowana
więcej

Zawoja średnia - KRP1128

ikona 116,42 m²
Powierzchnia użytkowa
ikona5
Pokoje (bez salonu)
ikona 2
Łazienki (z toaletami)
ikona 0
Liczba stanowisk garażowych
(z wiatą garażową)
ikona
Konstrukcja: Murowana

Promocja od 24.03.2026, koniec za:

0 dni

00 00 00

5 180 zł

Tooltip

Cena regularna obowiązywała od 19.03.2026 do 23.03.2026

Cena regularna: 5 380 zł
Najniższa cena z 30 dni przed obniżką: 4 880 zł
Gwarancja najniższej ceny Gwarancja najniższej ceny Tooltip

Projekt jest dostępny Tooltip

GRATIS 15% rabatu do LEROY MERLIN

GRATIS 16% rabatu w SELSEY

GRATIS Przydatne Extradodatki

GRATIS Poradnik Dach Solarny

100 dni na wymianę, 30 dni na zwrot

Darmowa dostawa - kurier, paczkomaty

Bezpłatne pozwolenie na zmiany

Dokumentacja zgodna z WT2021

Pokaż więcej (6)
Konsultant Masz pytania?
Zadzwoń
71 715 20 60

pon.-pt. 8-21, sob. 9-17

Szukasz wykonawcy godnego zaufania?
Zleć budowę w Extradom.pl!

  • Z góry znasz koszt budowy domu
  • Dom odbierasz zgodnie z ustalonym harmonogramem - nawet w 6 miesięcy
  • Zabezpiecza Cię jedna kompleksowa umowa z jednym wykonawcą
  • Otrzymujesz nawet 30-letnią gwarancję na konstrukcję domu
  • Oszczędzasz swój czas dzięki pewnej i kompletnej usłudze
Cena brutto stanu
deweloperskiego od
Tooltip
Cena brutto stanu deweloperskiego od 4 529 do 5 829 zł/m2.
Cena jest uzależniona m.in. od lokalizacji, wybranej technologii, kubatury budynku, skomplikowania projektu i ewentualnych zmian, na które zdecyduje się inwestor.
Cena za m2 powierzchni netto, czyli wszystkich pomieszczeń mierzonych na wysokości podłogi.
4 529 zł/m2
Dowiedz się więcej
Konsultant Masz pytania?
Zadzwoń
71 718 89 70

pon.-pt. 8-19

Parter - 68,56 m²

Parter projektu Zawoja średnia

Zapytaj, co możesz zmienić

Powierzchnia (m²)
Tooltip
Powierzchnia pomieszczenia
to ta, z której faktycznie możesz korzystać – skosy i niskie części poddasza są liczone częściowo lub wcale.
  1. 100% dla wysokości powyżej 2,2 m,
  2. 50% dla wysokości 1,4–2,2 m,
  3. nie liczymy poniżej 1,4 m.

Powierzchnia podłogi
Liczymy po obrysie pomieszczenia, bez względu na jego wysokość/skosy. Jeśli nie ma skosów to powierzchnia podłogi i pomieszczenia jest taka sama.
pomieszczenia i podłogi
podłogi
1. Wiatrołap
6,66
2. Pokój dzienny + kuchnia
36,62
3. Pokój
12,31
4. Łazienka
5,56
5. Kotłownia
7,41
Razem
68,56
68,56

Natychmiast, otrzymasz PDF-y
z rzutami wszystkich kondygnacji

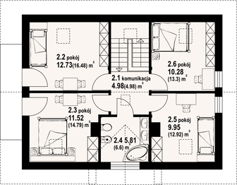
Poddasze - 55,27 m²

Poddasze projektu Zawoja średnia

Zapytaj, co możesz zmienić

Powierzchnia (m²)
Tooltip
Powierzchnia pomieszczenia
to ta, z której faktycznie możesz korzystać – skosy i niskie części poddasza są liczone częściowo lub wcale.
  1. 100% dla wysokości powyżej 2,2 m,
  2. 50% dla wysokości 1,4–2,2 m,
  3. nie liczymy poniżej 1,4 m.

Powierzchnia podłogi
Liczymy po obrysie pomieszczenia, bez względu na jego wysokość/skosy. Jeśli nie ma skosów to powierzchnia podłogi i pomieszczenia jest taka sama.
pomieszczenia
podłogi
1. Korytarz
4,98
4,98
2. Pokój
12,73
16,48
3. Pokój
11,52
14,79
4. Łazienka
5,81
6,60
5. Pokój
9,95
12,92
6. Pokój
10,28
13,30
Razem
55,27
69,07

Natychmiast, otrzymasz PDF-y
z rzutami wszystkich kondygnacji

Zamów rysunki szczegółowe

Zapoznaj się ze szczegółowymi rysunkami rzutów kondygnacji w PDF dla tego projektu.

Warianty projektu (47)

PROMOCJA
Projekt domu Zawoja 45 dws
Zawoja 45 dws
Dodano!
Dodano!
71,23 m²
2
1
0

5 280 zł

5 480 zł

Tooltip

Cena regularna

4 980 zł najniższa cena
Tooltip

Najniższa cena z 30 dni
przed obniżką

PROMOCJA
Projekt domu Zawoja 4 dw
Zawoja 4 dw
Dodano!
Dodano!
107,45 m²
4
2
0

5 480 zł

5 680 zł

Tooltip

Cena regularna

5 180 zł najniższa cena
Tooltip

Najniższa cena z 30 dni
przed obniżką

PROMOCJA
Projekt domu Zawoja dw 11
Zawoja dw 11
Dodano!
Dodano!
86,20 m²
4
2
0

5 480 zł

5 680 zł

Tooltip

Cena regularna

5 180 zł najniższa cena
Tooltip

Najniższa cena z 30 dni
przed obniżką

PROMOCJA
Projekt domu Zawoja dw 8
Zawoja dw 8
Dodano!
Dodano!
104,44 m²
4
2
0

5 480 zł

5 680 zł

Tooltip

Cena regularna

5 380 zł najniższa cena
Tooltip

Najniższa cena z 30 dni
przed obniżką

PROMOCJA
Projekt domu Zawoja dw 21
Zawoja dw 21
Dodano!
Dodano!
90,26 m²
4
2
0

5 480 zł

5 680 zł

Tooltip

Cena regularna

5 180 zł najniższa cena
Tooltip

Najniższa cena z 30 dni
przed obniżką

PROMOCJA
Projekt domu Zawoja dws 17t
Zawoja dws 17t
Dodano!
Dodano!
67,79 m²
3
1
0

5 480 zł

5 680 zł

Tooltip

Cena regularna

5 380 zł najniższa cena
Tooltip

Najniższa cena z 30 dni
przed obniżką

PROMOCJA
Projekt domu Zawoja dw 39
Zawoja dw 39
Dodano!
Dodano!
101,20 m²
4
2
0

5 780 zł

5 980 zł

Tooltip

Cena regularna

5 480 zł najniższa cena
Tooltip

Najniższa cena z 30 dni
przed obniżką

PROMOCJA
Projekt domu Zawoja 16 dwst
Zawoja 16 dwst
Dodano!
Dodano!
111,82 m²
3
2
1

5 480 zł

5 680 zł

Tooltip

Cena regularna

5 180 zł najniższa cena
Tooltip

Najniższa cena z 30 dni
przed obniżką

PROMOCJA
Projekt domu Zawoja dw
Zawoja dw
Dodano!
Dodano!
85,68 m²
4
2
0

5 480 zł

5 680 zł

Tooltip

Cena regularna

5 180 zł najniższa cena
Tooltip

Najniższa cena z 30 dni
przed obniżką

PROMOCJA
Projekt domu Zawoja dws 4
Zawoja dws 4
Dodano!
Dodano!
103,40 m²
4
2
0

5 480 zł

5 680 zł

Tooltip

Cena regularna

5 180 zł najniższa cena
Tooltip

Najniższa cena z 30 dni
przed obniżką

PROMOCJA
Projekt domu Zawoja dws 37t
Zawoja dws 37t
Dodano!
Dodano!
67,88 m²
3
1
0

5 480 zł

5 680 zł

Tooltip

Cena regularna

5 380 zł najniższa cena
Tooltip

Najniższa cena z 30 dni
przed obniżką

PROMOCJA
Projekt domu Zawoja dw 17
Zawoja dw 17
Dodano!
Dodano!
68,35 m²
2
1
0

5 280 zł

5 480 zł

Tooltip

Cena regularna

5 180 zł najniższa cena
Tooltip

Najniższa cena z 30 dni
przed obniżką

PROMOCJA
Projekt domu Zawoja mk1
Zawoja mk1
Dodano!
Dodano!
100,96 m²
4
2
0

5 180 zł

5 380 zł

Tooltip

Cena regularna

4 880 zł najniższa cena
Tooltip

Najniższa cena z 30 dni
przed obniżką

PROMOCJA
Projekt domu Zawoja mk 31
Zawoja mk 31
Dodano!
Dodano!
99,88 m²
4
2
0

5 180 zł

5 380 zł

Tooltip

Cena regularna

4 880 zł najniższa cena
Tooltip

Najniższa cena z 30 dni
przed obniżką

PROMOCJA
Projekt domu Zawoja mk7gx dws
Zawoja mk7gx dws
Dodano!
Dodano!
99,53 m²
4
2
1

4 980 zł

5 180 zł

Tooltip

Cena regularna

4 680 zł najniższa cena
Tooltip

Najniższa cena z 30 dni
przed obniżką

PROMOCJA
Projekt domu Zawoja 24 dw
Zawoja 24 dw
Dodano!
Dodano!
89,83 m²
4
2
0

5 480 zł

5 680 zł

Tooltip

Cena regularna

5 180 zł najniższa cena
Tooltip

Najniższa cena z 30 dni
przed obniżką

PROMOCJA
Projekt domu Zawoja dw 15
Zawoja dw 15
Dodano!
Dodano!
122,07 m²
5
2
1

5 580 zł

5 780 zł

Tooltip

Cena regularna

5 480 zł najniższa cena
Tooltip

Najniższa cena z 30 dni
przed obniżką

PROMOCJA
Projekt domu Zawoja dws 5
Zawoja dws 5
Dodano!
Dodano!
89,85 m²
4
2
0

5 480 zł

5 680 zł

Tooltip

Cena regularna

5 180 zł najniższa cena
Tooltip

Najniższa cena z 30 dni
przed obniżką

PROMOCJA
Projekt domu Zawoja mk 11 dws
Zawoja mk 11 dws
Dodano!
Dodano!
105,11 m²
4
2
0

5 480 zł

5 680 zł

Tooltip

Cena regularna

5 180 zł najniższa cena
Tooltip

Najniższa cena z 30 dni
przed obniżką

PROMOCJA
Projekt domu Zawoja dws 33
Zawoja dws 33
Dodano!
Dodano!
96,59 m²
4
2
0

5 480 zł

5 680 zł

Tooltip

Cena regularna

5 180 zł najniższa cena
Tooltip

Najniższa cena z 30 dni
przed obniżką

PROMOCJA
Projekt domu Zawoja 55 dw
Zawoja 55 dw
Dodano!
Dodano!
100,78 m²
4
2
0

5 480 zł

5 680 zł

Tooltip

Cena regularna

5 380 zł najniższa cena
Tooltip

Najniższa cena z 30 dni
przed obniżką

PROMOCJA
Projekt domu Zawoja 23 dwst
Zawoja 23 dwst
Dodano!
Dodano!
94,35 m²
4
2
1

5 480 zł

5 680 zł

Tooltip

Cena regularna

5 180 zł najniższa cena
Tooltip

Najniższa cena z 30 dni
przed obniżką

PROMOCJA
Projekt domu Zawoja dw 3
Zawoja dw 3
Dodano!
Dodano!
100,78 m²
4
2
0

5 480 zł

5 680 zł

Tooltip

Cena regularna

5 180 zł najniższa cena
Tooltip

Najniższa cena z 30 dni
przed obniżką

PROMOCJA
Projekt domu Zawoja 57 dws
Zawoja 57 dws
Dodano!
Dodano!
78,69 m²
2
1
1

5 380 zł

5 580 zł

Tooltip

Cena regularna

5 080 zł najniższa cena
Tooltip

Najniższa cena z 30 dni
przed obniżką

PROMOCJA
Projekt domu Zawoja 67 dws
Zawoja 67 dws
Dodano!
Dodano!
67,11 m²
3
1
1

5 380 zł

5 580 zł

Tooltip

Cena regularna

5 280 zł najniższa cena
Tooltip

Najniższa cena z 30 dni
przed obniżką

PROMOCJA
Projekt domu Zawoja mk5
Zawoja mk5
Dodano!
Dodano!
104,29 m²
4
2
0

4 880 zł

5 080 zł

Tooltip

Cena regularna

4 580 zł najniższa cena
Tooltip

Najniższa cena z 30 dni
przed obniżką

PROMOCJA
Projekt domu Zawoja mk3x
Zawoja mk3x
Dodano!
Dodano!
105,67 m²
4
2
0

4 880 zł

5 080 zł

Tooltip

Cena regularna

4 580 zł najniższa cena
Tooltip

Najniższa cena z 30 dni
przed obniżką

PROMOCJA
Projekt domu Zawoja 27
Zawoja 27
Dodano!
Dodano!
80,13 m²
4
1
0

4 880 zł

5 080 zł

Tooltip

Cena regularna

4 580 zł najniższa cena
Tooltip

Najniższa cena z 30 dni
przed obniżką

PROMOCJA
Projekt domu Zawoja mk 15
Zawoja mk 15
Dodano!
Dodano!
97,08 m²
4
2
0

4 780 zł

4 980 zł

Tooltip

Cena regularna

4 480 zł najniższa cena
Tooltip

Najniższa cena z 30 dni
przed obniżką

PROMOCJA
Projekt domu Zawoja dw 63
Zawoja dw 63
Dodano!
Dodano!
94,26 m²
4
2
0

5 280 zł

5 480 zł

Tooltip

Cena regularna

4 980 zł najniższa cena
Tooltip

Najniższa cena z 30 dni
przed obniżką

PROMOCJA
Projekt domu Zawoja 33dwsg
Zawoja 33dwsg
Dodano!
Dodano!
92,52 m²
3
2
1

5 480 zł

5 680 zł

Tooltip

Cena regularna

5 180 zł najniższa cena
Tooltip

Najniższa cena z 30 dni
przed obniżką

PROMOCJA
Projekt domu Zawoja mk6
Zawoja mk6
Dodano!
Dodano!
107,33 m²
4
2
0

4 880 zł

5 080 zł

Tooltip

Cena regularna

4 580 zł najniższa cena
Tooltip

Najniższa cena z 30 dni
przed obniżką

PROMOCJA
Projekt domu Zawoja dw 53
Zawoja dw 53
Dodano!
Dodano!
141 m²
5
4
0

5 880 zł

6 080 zł

Tooltip

Cena regularna

5 580 zł najniższa cena
Tooltip

Najniższa cena z 30 dni
przed obniżką

PROMOCJA
Projekt domu Zawoja dw 25
Zawoja dw 25
Dodano!
Dodano!
112,09 m²
5
2
1

5 480 zł

5 680 zł

Tooltip

Cena regularna

5 180 zł najniższa cena
Tooltip

Najniższa cena z 30 dni
przed obniżką

PROMOCJA
Projekt domu Zawoja mk71g
Zawoja mk71g
Dodano!
Dodano!
99,87 m²
4
2
1

4 880 zł

5 080 zł

Tooltip

Cena regularna

4 580 zł najniższa cena
Tooltip

Najniższa cena z 30 dni
przed obniżką

PROMOCJA
Projekt domu Zawoja duża dw 13
Zawoja duża dw 13
Dodano!
Dodano!
144,43 m²
4
2
1

5 780 zł

5 980 zł

Tooltip

Cena regularna

5 480 zł najniższa cena
Tooltip

Najniższa cena z 30 dni
przed obniżką

PROMOCJA
Projekt domu Zawoja mk 77g dws
Zawoja mk 77g dws
Dodano!
Dodano!
107,43 m²
3
2
1

5 280 zł

5 480 zł

Tooltip

Cena regularna

4 980 zł najniższa cena
Tooltip

Najniższa cena z 30 dni
przed obniżką

PROMOCJA
Projekt domu Zawoja dw 43
Zawoja dw 43
Dodano!
Dodano!
102,40 m²
3
2
0

5 480 zł

5 680 zł

Tooltip

Cena regularna

5 180 zł najniższa cena
Tooltip

Najniższa cena z 30 dni
przed obniżką

PROMOCJA
Projekt domu Zawoja 25 dwst
Zawoja 25 dwst
Dodano!
Dodano!
150,58 m²
6
2
1

5 580 zł

5 780 zł

Tooltip

Cena regularna

5 280 zł najniższa cena
Tooltip

Najniższa cena z 30 dni
przed obniżką

PROMOCJA
Projekt domu Zawoja 31 dw
Zawoja 31 dw
Dodano!
Dodano!
94,94 m²
3
3
0

5 480 zł

5 680 zł

Tooltip

Cena regularna

5 180 zł najniższa cena
Tooltip

Najniższa cena z 30 dni
przed obniżką

PROMOCJA
Projekt domu Zawoja 36 dw
Zawoja 36 dw
Dodano!
Dodano!
74,43 m²
2
2
0

5 480 zł

5 680 zł

Tooltip

Cena regularna

5 180 zł najniższa cena
Tooltip

Najniższa cena z 30 dni
przed obniżką

PROMOCJA
Projekt domu Zawoja mk1t
Zawoja mk1t
Dodano!
Dodano!
99,05 m²
4
2
0

4 880 zł

5 080 zł

Tooltip

Cena regularna

4 580 zł najniższa cena
Tooltip

Najniższa cena z 30 dni
przed obniżką

PROMOCJA
Projekt domu Zawoja dw 7
Zawoja dw 7
Dodano!
Dodano!
69,25 m²
2
1
0

5 280 zł

5 480 zł

Tooltip

Cena regularna

5 180 zł najniższa cena
Tooltip

Najniższa cena z 30 dni
przed obniżką

PROMOCJA
Projekt domu Zawoja dw 77
Zawoja dw 77
Dodano!
Dodano!
108,98 m²
3
2
0

5 480 zł

5 680 zł

Tooltip

Cena regularna

5 180 zł najniższa cena
Tooltip

Najniższa cena z 30 dni
przed obniżką

PROMOCJA
Projekt domu Zawoja 14 dw
Zawoja 14 dw
Dodano!
Dodano!
89,42 m²
4
2
0

5 480 zł

5 680 zł

Tooltip

Cena regularna

5 180 zł najniższa cena
Tooltip

Najniższa cena z 30 dni
przed obniżką

PROMOCJA
Projekt domu Zawoja dw 16
Zawoja dw 16
Dodano!
Dodano!
96,83 m²
4
2
1

5 480 zł

5 680 zł

Tooltip

Cena regularna

5 180 zł najniższa cena
Tooltip

Najniższa cena z 30 dni
przed obniżką

PROMOCJA
Projekt domu Zawoja 47 dws
Zawoja 47 dws
Dodano!
Dodano!
71,23 m²
2
1
0

5 280 zł

5 480 zł

Tooltip

Cena regularna

4 980 zł najniższa cena
Tooltip

Najniższa cena z 30 dni
przed obniżką

Podobne projekty (665)

Zobacz wszystkie
NIŻSZA CENA 🔥
Zdjęcie 1 projektu Rodzinek 5 WOF1251
Rodzinek 5
Dodano!
Dodano!
117,45 m²
4
2
0

4 099 zł

4 299 zł

Tooltip

Cena regularna

4 099 zł najniższa cena
Tooltip

Najniższa cena z 30 dni
przed obniżką

NIŻSZA CENA 🔥
Zdjęcie 1 projektu Malik Nano (1891) KRD3033
Malik Nano (1891)
Dodano!
Dodano!
109,20 m²
4
2
0

4 040 zł

4 390 zł

Tooltip

Cena regularna

4 010 zł najniższa cena
Tooltip

Najniższa cena z 30 dni
przed obniżką

NIŻSZA CENA 🔥
Zdjęcie 1 projektu Amor z piwnicą WOE1207
Amor z piwnicą
Dodano!
Dodano!
118,60 m²
5
2
0

3 999 zł

4 399 zł

Tooltip

Cena regularna

3 999 zł najniższa cena
Tooltip

Najniższa cena z 30 dni
przed obniżką

NIŻSZA CENA 🔥
Zdjęcie 1 projektu Tamarillo WOF1070
Tamarillo
Dodano!
Dodano!
109,90 m²
4
2
0

3 799 zł

3 999 zł

Tooltip

Cena regularna

3 799 zł najniższa cena
Tooltip

Najniższa cena z 30 dni
przed obniżką

Zdjęcie 1 projektu N42-BG KKG1040
N42-BG
Dodano!
Dodano!
109,44 m²
4
2
0

5 300 zł

NIŻSZA CENA 🔥
Zdjęcie 1 projektu Aga Solo (1913) KRD3053
Aga Solo (1913)
Dodano!
Dodano!
115,70 m²
5
2
0

4 140 zł

4 490 zł

Tooltip

Cena regularna

4 110 zł najniższa cena
Tooltip

Najniższa cena z 30 dni
przed obniżką

NIŻSZA CENA 🔥
Zdjęcie 1 projektu Domidea 58 - 6 pokojowy WAC1053
Domidea 58 - 6 pokojowy
Dodano!
Dodano!
106,41 m²
5
2
0

5 481 zł

5 781 zł

Tooltip

Cena regularna

5 481 zł najniższa cena
Tooltip

Najniższa cena z 30 dni
przed obniżką

NIŻSZA CENA 🔥
Zdjęcie 1 projektu Amant WOE1032
Amant
Dodano!
Dodano!
124,59 m²
4
2
0

4 099 zł

4 499 zł

Tooltip

Cena regularna

4 099 zł najniższa cena
Tooltip

Najniższa cena z 30 dni
przed obniżką

Metody i koszt budowy

Ten dom możesz budować metodą gospodarczą, systemem zleconym lub skorzystać z naszej oferty Projekt z Budową. Przy porównaniu weź pod uwagę nie tylko koszt, ale też różny zakres prac i standard wykonania.

Metoda gospodarcza

Najtańsza metoda - większość prac
budowlanych wykonuje inwestor

Stan surowy zamknięty (SSZ)

285 000 zł netto

Szacunkowy koszt materiałów na IV kwartał 2025
  • Prace ziemne i fundamenty

    37 000 zł
  • Konstrukcja, strop oraz dach

    206 000 zł
  • Stolarka okienna i drzwiowa

    42 000 zł
  • Instalacje

    nie obejmuje
  • Prace wykończeniowe

    nie obejmuje
  • Możesz budować etapami, pamiętając jednak o zmianie kosztów w czasie
  • Możesz rozpocząć budowę z częścią niezbędnych środków
  • Sam ustalasz harmonogram, koordynujesz budowę i zapewniasz materiały
Czy da się obniżyć koszty budowy?
Zobacz nasz film jak obniżyć koszt budowy

Projekt z Budową

Najszybsza i najwygodniejsza metoda -
całą budowę domu realizuje jedna firma

Stan deweloperski
Gwarancja stałego kosztu budowy

Gwarancja stałego
kosztu budowy

  • Prace ziemne i fundamenty
  • Konstrukcja, strop oraz dach
  • Stolarka okienna i drzwiowa
  • Instalacje  
    Tooltip

    Obejmuje wykonanie instalacji:

    • wodno-kanalizacyjnej
    • centralnego ogrzewania
    • gazowej
    • elektrycznej
  • Prace wykończeniowe  
    Tooltip

    Prace wykończeniowe obejmują:

    • sufity i ściany wewnętrzne
    • tynki i okładziny ścian wewnętrznych
    • wylewki i posadzkę
    • ocieplenie ścian zewnętrznych i elewację

Budowa
nawet w
6mies.

  • Kompleksowa umowa i znany z góry koszt budowy
  • Logistyka, organizacja budowy i zakupy po stronie firmy budowlanej
  • Formalności i dokumentacje po stronie firmy budowlanej
  • Różne technologie budowy dopasowane do projektu i budżetu
Szczegóły i dostępne technologie
icon

Darmowe

Zestawienie materiałów budowlanych

Elewacje

Frontowa
Tylna
Lewa
Prawa

Przekroje

Przekrój pionowy

Usytuowanie na działce

Czy ten projekt pasuje na
Twoją działkę?

Chętnie to sprawdzimy!

Czy ten projekt pasuje na
Twoją działkę?

Chętnie to sprawdzimy!

Dowiedz się:

  • czy zmieści się na niej wybrany przez Ciebie dom
  • jakie parametry musi spełniać dom według miejscowego planu zagospodarowania lub warunków zabudowy (np. kąt nachylenia i typ dachu, liczba kondygnacji itp.
  • jakie inne projekty pasują na Twoją działkę – znajdziemy je dla Ciebie!
Autor: Dom-Projekt

Dane techniczne projektu

Powierzchnie i wymiary Powierzchnie i wymiary

Powierzchnia użytkowa
Tooltip
Suma powierzchni wszystkich pomieszczeń mieszkalnych, pomniejszona o pow. garażu, kotłowni, strychu, piwnicy. Jest liczona w 100% dla pomieszczeń o wysokości powyżej 2,2 m, w 50% dla pomieszczeń o wys. 2,2-1,4 m i niewliczana dla niższych niż 1,4 m.

116,42 m²

Wysokość ściany kolankowej
Tooltip
Wysokość ściany podpierającej dach. Jej wysokość wpływa na powierzchnię użytkową kondygnacji, na której się znajduje.

1,13 m

Powierzchnia zabudowy
Tooltip
Powierzchnia zajmowana przez część na- oraz nadziemną budynku liczona, jako rzut pionowy budynku na działkę.

93,50 m²

Powierzchnia netto
Tooltip
Powierzchna wszystkich pomieszczeń w budynku mierzona na wysokości podłogi.

143,62 m²

Kubatura brutto
Tooltip
Zazwyczaj jest to suma kubatur (objętości) wszystkich pomieszczeń budynku, liczonych po zewnętrznym obrysie murów (z ociepleniem).

510 m³

Powierzchnia dachu

181,25 m²

Kąt nachylenia dachu
Tooltip
Nachylenie połaci dachu głównego podawane w stopniach. Uwaga! W niektórych projektach występuje więcej niż jedno nachylenie dachu.

43°

Wysokość budynku
Tooltip
Wysokość liczona od części budynku położonej najniżej przy powierzchni terenu do najwyższego punktu dachu (kalenicy) z wyłączeniem kominów.

8,67 m

Szerokość elewacji

11 m

Długość elewacji

8,50 m

Min. szerokość działki
Tooltip
Najmniejsza możliwa szerokość działki niezbędna do wybudowania wybranego domu. Składa się z szerokości elewacji domu powiększonej z obu stron o 3 m dla ściany bez otworów drzwiowych/okiennych lub 4 m, dla ściany z otworami.

19 m

Min. długość działki
Tooltip
Najmniejsza możliwa długość działki niezbędna do wybudowania wybranego domu. Składa się z długości elewacji domu powiększonej z obu stron o 3 m dla ściany bez otworów drzwiowych/okiennych lub 4 m, dla ściany z otworami.

16,50 m

Energooszczędność Energooszczędność

Oze Czym jest OZE (Odnawialne Źródło Energii)?
Ep
Tooltip
Energia pierwotna określa ilość energii nieodnawialnej potrzebnej w ciągu roku do ogrzewania czy też ogrzania wody użytkowej z uwzględnieniem kosztów produkcji i transportu surowców energetycznych.

24,50 kWh/(m²rok)

Ogrzewanie główne

Gazowe lub paliwo stałe (OZE) - do wyboru na etapie adaptacji

Interesuje Cię inne źródło ogrzewania? Wyślij zapytanie lub zadzwoń do doradcy

Wentylacja

Grawitacyjna - szczegóły

Instalacje w projekcie

Kolektory słoneczne

Warunki techniczne

Projekt zgody z WT 2021

Technologia i konstrukcja Technologia i konstrukcja

Konstrukcja

Murowana

PROJEKT Z BUDOWĄ Istnieje możliwość zaadaptowania tego projektu do technologii prefabrykowanej/modułowej i budowy nawet w 6 miesięcy ze stałym kosztem budowy

Dowiedz się więcej »
Opis szczegółowy

Wysokość ścianki kolankowej: 1.13 m. Ilość drewna na więźbę: 7.34 m³. Strop: płyta żelbetowa. Pokrycie dachu: dachówka ceramiczna. Ściany zewnętrzne: pustaki ceramiczne + styropian. Ściany wewnętrzne: pustaki ceramiczne. Typ ogrzewania: kocioł gazowy lub kocioł na paliwo stałe. Instalacje dodatkowe: instalacja solarna. Inne: okna połaciowe Fakro.

Strop

Żelbetowy

Reklama
Okna i drzwi tarasowe

Nowoczesne okna PVC i aluminiowe WIŚNIOWSKI – doskonała izolacja, elegancki design i niezrównana trwałość.

Wiśniowski
Sprawdź parametry!
Okna dachowe

Oferujemy bezpłatne konsultacje w zakresie wszystkich rozwiązań VELUX. Wyceny, porady dotyczące doboru okien i rolet zewnętrznych - sprawdź!

Velux
Sprawdź szczegóły
Płytki ceramiczne i gresy

Od małych formatów po wielkoformatowe gresy. Marmur, beton, drewno, kamień, lastryko czy cegiełki zamówisz wygodnie online z szybką dostawą.

Ceramzet
Sprawdź ofertę
Elewacja

Kup przez internet wszystkie materiały potrzebne do wykonania elewacji: styropian, płyty PIR, XPS, kleje, tynki. Najlepsze marki w super cenach z dostawą pod dom.

Hurtownia styropianu
Sprawdź ofertę!
Drzwi

Ciepłe drzwi WIŚNIOWSKI z kontrolą dostępu. Szeroka gama wzorów i kolorów.

Wiśniowski
Wybierz najlepsze
Bramy garażowe

Automatyczne bramy garażowe segmentowe i uchylne WIŚNIOWSKI na wymiar i z systemem smart home w standardzie.

Wiśniowski
Sprawdź ofertę!
Armatura i ceramika łazienkowa

Topowi producenci. Baterie łazienkowe, zestawy natynkowe i podtynkowe, umywalki, wanny, miski WC oraz kabiny zamówisz kompleksowo online.

Ceramzet II
Dowiedz się więcej
Rekuperacja

Alnor - kompletny system rekuperacji. Dobierz idealne rozwiązanie dla Twojego domu!

Alnor
Dobierz rekuperator
Dach

Producent stalowych pokryć dachowych i systemów elewacyjnych. Precyzja wykonania, trwałość na lata i szybki montaż doceniany przez dekarzy. Postaw na solidny dach Budmat.

Budmat
Sprawdź ofertę
Ogrodzenie

Nowoczesne stalowe ogrodzenia Budmat - estetyka, bezpieczeństwo i trwałość na lata. Systemowe rozwiązania na wymiar, dopasowane do każdego domu.

Budmat
Sprawdź ofertę

Gotowe domy - najszybszy sposób na dom (124)

Zobacz wszystkie
  • Stan deweloperski nawet w 6 miesięcy
  • Gwarancja stałej ceny
Skonfiguruj dom
Zdjęcie 1 projektu Bergen 110 HUS1001
110,80 m²
3
Stan deweloperski brutto
449 000 zł 4 052 zł/m²
Zdjęcie 1 projektu Dom prefabrykowany P.13 z dachem płaskim bez garażu HPK1022
115,39 m²
3
Stan deweloperski brutto
627 300 zł 5 436 zł/m²
Zdjęcie 1 projektu Dom prefabrykowany P.13 z dachem kopertowym bez garażu HPK1024
115,39 m²
3
Stan deweloperski brutto
627 300 zł 5 436 zł/m²
Zdjęcie 1 projektu Dom prefabrykowany P.13 z dachem płaskim z garażem HPK1023
115,39 m²
3
Stan deweloperski brutto
743 500 zł 6 443 zł/m²
Zdjęcie 1 projektu Dom prefabrykowany P.13 z dachem kopertowym z garażem HPK1025
115,39 m²
3
Stan deweloperski brutto
743 500 zł 6 443 zł/m²
Zdjęcie 1 projektu Dom modułowy Harmony HMD1000
114,80 m²
4
Stan deweloperski brutto
512 000 zł 3 853 zł/m²
Zdjęcie 1 projektu Dom szkieletowy Creative Smart 160 HHT1023
118,35 m²
4
Stan deweloperski brutto
780 019 zł 6 591 zł/m²
Zdjęcie 1 projektu Dom prefabrykowany P.14 HPK1026
118,94 m²
3
Stan deweloperski brutto
707 200 zł 5 933 zł/m²

Dodatki do projektu

Dodatki możesz zamówić w koszyku lub telefonicznie u naszego Doradcy.

Ikona

Bestseller

Dodatkowy egzemplarz projektu

400 zł

Opis projektu domu
Zawoja średnia

Projekt domu Zawoja średnia to ciekawa propozycja dla osób posiadających średniej szerokości działkę. Dom cechuje się prostą bryłą, przez co jest tani w budowie. Projekt należy do kategorii domów z kalenicą skierowaną równolegle do drogi, co jest ważne z punktu widzenia warunków zabudowy na danym terenie. Kierowany jest do Inwestorów posiadających działkę pozwalającą na realizację projektu w zabudowie wolnostojącej. Projekt jest idealną propozycją dla osób zainteresowanych domem z dachem dwuspadowym, co pozwala na ograniczenie kosztów. Projekt Zawoja średnia to dom parterowy z poddaszem użytkowym, dzięki czemu domownicy mogą cieszyć się większą prywatnością.Warto zwrócić uwagę na przestronną część dzienną. W projekcie przewidziano kuchnię otwartą. Takie rozwiązanie sprawia, że część dzienna jest bardzo przestronna. Dodatkowo w salonie przewidziano kominek, nadający wnętrzu niepowtarzalny klimat. Łazienka na parterze sprawdzi się podczas odwiedzin gości, a druga ulokowana na poddaszu - dla domowników. Część nocna składa się z pięciu sypialni, dlatego też dom jest odpowiedni dla 5-7 osobowej rodziny. Przestrzeń można wykorzystać także jako pokój dla gości lub gabinet. Wspólne grillowanie i rodzinne posiłki umili uwzględniony w projekcie taras. Budynek został zaprojektowany w technologii murowanej. Jego wygląd zewnętrzny uwydatnia cechy charakterystyczne dla stylu tradycyjnego, co jest idealnym rozwiązaniem dla osób ceniących klasykę i prostotę.
Czytaj więcej

Polecani producenci

Kompletne systemy rekuperacji

tło producenta

Alnor

Dowiedz się więcej

Prefabrykowane konstrukcje dachowe

tło producenta

WIĄZAR POLSKA

Zobacz więcej

Sprawdź nową generację okien GREENVIEW

tło producenta

FAKRO

Sprawdź nową generację okien GREENVIEW

Styropian, tynki, farby, kleje

tło producenta

Termo Organika

Poznaj super jakość

Okna, drzwi, osłony przeciwsłoneczne

tło producenta

Aluprof

Sprawdź ofertę
Zobacz więcej

Społeczność projektu domu
Zawoja średnia w budowie

Dołącz do społeczności osób, które budują ten dom lub są zainteresowane jego budową.

  • Oglądaj zdjęcia z budowy
  • Zadawaj pytania
  • Wymieniaj się doświadczeniami

Opinie o projekcie domu Zawoja średnia

Ocena

Ten projekt nie ma jeszcze opinii, bądź pierwszy!

Dodaj opinię

Wywiady mieszkańców domu Zawoja średnia

Zdjęcie profilowe użytkownika w_zawada w_zawada

Ze względu na to, iż posiadamy dosyć wąską działkę, duże znaczenie przy wyborze odpowiedniego projektu miały dla nas jego wymiary. Pod tym kątem projekt Zawoja średnia KRP1128 był dla nas optymalny, a dodatkowo spełniał również inne nasze oczekiwania. Przewidziany w nim układ pomieszczeń wyjątkowo przypadł nam do gustu. Spodobało nam się połączenie kuchni, salonu i jadalni, które sprawia że przestrzeń na parterze jest otwarta i bardzo przestronna. Strefa sypialniana znajduje się zaś na wyższej kondygnacji, co również nam odpowiadało. Oprócz tego, zainteresowała nas możliwość zrobienia tarasów z obu stron domu.Realizacja w naszym przypadku odbyła się bez większych problemów. Przed jej rozpoczęciem mieliśmy co prawda pewne trudności z uzyskaniem wszystkich niezbędnych pozwoleń, aczkolwiek były to bardziej kłopoty natury urzędowej, gdyż nasze starostwo jest bardzo szczegółowe i wymagające. Na szczęście, gdy udało nam się już załatwić wszelkie formalności, pozostałe etapy inwestycji przebiegły bardzo sprawne. Postawienie budynku zajęło nam zaledwie jeden miesiąc. Wykonanie prac wykończeniowych trwało następnych kilka miesięcy i po niecałym roku od rozpoczęcia budowy mogliśmy wprowadzić się już do nowego domu. Architekt poprawnie oszacował przewidywane koszty i myślę, że śmiało można się nimi sugerować.Ściany zewnętrzne wymurowaliśmy z ceramicznych pustaków Porotherm marki Wienrerberger, zaś do postawienia działowych użyliśmy pustaków z Plecewic. Ocieplenie bryły tworzy 15 cm warstwa styropianu. Mimo, iż blachodachówka jest coraz częściej stosowanym materiałem do pokrycia dachu, nie braliśmy pod uwagę tego rozwiązania. Blacha szybko się nagrzewa, co w okresie letnim generuje wysokie temperatury w pomieszczeniach na poddaszu. Dachówka cementowa nie należy do kosztownych, jednak jest dosyć ciężka, a z racji tego napiera na konstrukcję więźby. Najlepszym rozwiązaniem wydała nam się więc dachówka ceramiczna.Z uwagi na wąskie rozmiary naszej działki, budynek musiał zostać usytuowany blisko granicy z sąsiadami. Z tego względu zrezygnowaliśmy z okien od tylnej strony domu. Przeszklenie w salonie zamieniliśmy na luksfery, zaś te w pokoju na parterze przenieśliśmy na ścianę szczytową. W tym miejscu wstawiliśmy okno z możliwością wyjścia na taras, który wykonaliśmy dodatkowo. Kolejną modyfikacją wprowadzoną do projektu Zawoja średnia KRP1128 było połączenie dwóch sypialni na górze w jedną o naprawdę sporych rozmiarach.Otwarta przestrzeń na parterze bardzo nam odpowiada. Wnętrze jest przestronne, a komunikacja między pomieszczeniami - swobodna. Takie rozwiązanie ma również swoje minusy, co należy rozważyć i w razie potrzeby zastosować poprawki. Mianowicie, podczas gotowania odgłosy i zapachy z kuchni dostają się do salonu, a także na wyższą kondygnację. Myślę więc, że dobrym pomysłem mogłoby być w tym przypadku zabudowanie klatki schodowej lub też wstawienie drzwi na piętrze. Takie rozwiązanie sprawdziłoby się również w związku z cyrkulacja powietrza - gdy poddasze się ochładza, zimne powietrze spada na dół, co można odczuć przebywając w salonie. My jednak nie chcieliśmy zamykać sobie przestrzeni i zrezygnowaliśmy z tej modyfikacji.Projekt domu parterowego z poddaszem użytkowym Zawoja średnia KRP1128 został dobrze przemyślany zarówno pod względem architektonicznym, jak i funkcjonalności wnętrza. Układ pomieszczeń jest praktyczny i wygodny w użytkowaniu. Myślę jednak, że gdybym budował się po raz kolejny, zdecydowałbym się na ten projekt w mniejszej wersji metrażowej, gdyż wiązałoby się to z niższymi kosztami realizacji. Pozdrawiam.

ASYSTENT WYBORU PROJEKTU

Szukasz idealnego projektu? Znajdziemy go dla Ciebie!

Doradca na podstawie Twoich wskazówek przygotuje spersonalizowaną listę projektów

Graficzne opracowanie rzutów poglądowych widocznych na karcie projektu zostało wykonane przez Extradom.pl. Prezentowane przez Extradom.pl wizualizacje wykonane zostały przez autora projektu i należy poczytywać je jedynie za przykład i propozycję wykończenia, wizję architektoniczną autora projektu. Ostateczne wykończenie budynku może nastąpić na wiele sposobów. Szczegółowe rozwiązania zastosowane w oferowanej dokumentacji - w tym również ilość, lokalizacje i wygląd okien, drzwi, kominów - mogą w niewielkim stopniu różnić się od prezentowanej wizualizacji budynku.

Extradom.pl Spółka z ograniczoną odpowiedzialnością z siedzibą przy ul. Jaworskiej 13, 53-612 Wrocław, wpisana do rejestru przedsiębiorców Krajowego Rejestru Sądowego przez Sąd Rejonowy dla Wrocławia-Fabrycznej we Wrocławiu, VI Wydział Gospodarczy Krajowego Rejestru Sądowego do pod numerem KRS 0000648746, numer NIP 895-17-18-333, o kapitale zakładowym 708 150,00 zł uprzejmie informuje, iż poprzez serwis Extradom.pl umożliwia m.in. zapoznanie się przez konsumentów z ofertą handlową Partnerów Extradom.pl, którzy stosują metody budowy domów przy wykorzystaniu różnego rodzaju technologie prefabrykacji bądź modułowe (tzw. „Gotowe domy”).

Extradom.pl nie prowadzi jednakże sprzedaży ani nie oferuje usług polegających na doradztwie finansowym, prawnym ani podatkowym w zakresie inwestycji realizowanych w technologiach tzw. „Gotowych domów”. Informacje prezentowane w serwisie Extradom.pl dotyczące Partnerów Extradom.pl oferujących realizację inwestycji w technologiach „Gotowych domów” lub podobnych mają charakter informacyjny i reklamowy.

Prezentowane w serwisie Extradom.pl informacje dotyczące stosowanych przez Partnerów metod budowy domów w technologii prefabrykacji bądź modułowej pochodzą od Partnerów Extradom.pl.

Extradom.pl sp. z o.o. jedynie umożliwia nawiązanie kontaktu przez Użytkownika z Partnerem Extradom.pl stosującym tego rodzaju technologie budowy domów i nie jest stroną umowy o roboty budowlane zawieranej przez Użytkownika Extradom.pl z Partnerem Extradom.pl.

REKLAMA
Zamknij