👉 Niższe ceny + karta allegro 200 zł! 🔥

Koniec oferty za:

0dni

00godz.

00min.

00sek.

Sprawdź

Projekt domu Zawoja 55 dw KRP2395

Zapisz Dodano!
Porównaj Dodano!
ikona Pobierz i drukuj
Dodaj opinię

Warstwy

Warstwy

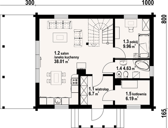
Rzut parteru

Powierzchnia (m²)
Tooltip
Powierzchnia pomieszczenia
to ta, z której faktycznie możesz korzystać – skosy i niskie części poddasza są liczone częściowo lub wcale.
  1. 100% dla wysokości powyżej 2,2 m,
  2. 50% dla wysokości 1,4–2,2 m,
  3. nie liczymy poniżej 1,4 m.

Powierzchnia podłogi
Liczymy po obrysie pomieszczenia, bez względu na jego wysokość/skosy. Jeśli nie ma skosów to powierzchnia podłogi i pomieszczenia jest taka sama.
pomieszczenia i podłogi
podłogi
1. Wiatrołap
6,70
2. Pokój dzienny + kuchnia + jadalnia
38,01
3. Pokój
9,96
4. Łazienka
4,63
5. Kotłownia
6,19
Razem
65,49
65,49
Powierzchnia (m²)
Tooltip
Powierzchnia pomieszczenia
to ta, z której faktycznie możesz korzystać – skosy i niskie części poddasza są liczone częściowo lub wcale.
  1. 100% dla wysokości powyżej 2,2 m,
  2. 50% dla wysokości 1,4–2,2 m,
  3. nie liczymy poniżej 1,4 m.

Powierzchnia podłogi
Liczymy po obrysie pomieszczenia, bez względu na jego wysokość/skosy. Jeśli nie ma skosów to powierzchnia podłogi i pomieszczenia jest taka sama.
pomieszczenia
podłogi
1. Korytarz
5,34
5,49
2. Pokój
18,45
27,83
3. Łazienka
3,64
6,70
4. Pokój
6,91
10,69
5. Pokój
7,14
10,93
Razem
41,48
61,64

    Usytuowanie na działce

    Czy ten projekt pasuje na
    Twoją działkę?

    Chętnie to sprawdzimy!

    Dowiedz się:

    • czy zmieści się na niej wybrany przez Ciebie dom
    • jakie parametry musi spełniać dom według miejscowego planu zagospodarowania lub warunków zabudowy (np. kąt nachylenia i typ dachu, liczba kondygnacji itp.
    • jakie inne projekty pasują na Twoją działkę – znajdziemy je dla Ciebie!

Pow. użytkowa

100,78 m²

Pokoje

4

Łazienki i WC

2

Garaż

0

Kąt dachu

43°

Wysokość budynku

8,23 m

Powierzchnia zabudowy

80 m²

Min. szer. i dł. działki

19,9 x 17,45 m

Konstrukcja

ikona
Z bali

Szukasz wykonawcy godnego zaufania?
Zleć budowę w Extradom.pl!

Sprawdź ofertę

Pokaż więcej parametrów

Zapisz Dodano!
Porównaj Dodano!
ikona Pobierz i drukuj

Zawoja 55 dw - KRP2395

ikona 100,78 m²
Powierzchnia użytkowa
ikona4
Pokoje (bez salonu)
ikona 2
Łazienki (z toaletami)
ikona 0
Liczba stanowisk garażowych
(z wiatą garażową)
ikona
Konstrukcja: Z bali

Promocja

od 14.05.2026 do 21.05.2026

0dni

00 00 00

5 380 zł

5 680 zł - cena regularna
Tooltip

Cena regularna obowiązywała od 07.05.2026 do 11.05.2026

5 380 zł - najniższa cena z 30 dni przed obniżką

Projekt jest dostępny

Gwarancja najniższej ceny
ikona
Darmowa dostawa
Paczkomaty, kurier
ikona
100 dni na wymianę,
30 dni na zwrot
ikona Zyskaj najwięcej! Extradodatki GRATIS:

15% rabatu do LEROY MERLIN

10% rabatu w CASTORAMIE

10% zwrotu za zakupy w OBI

16% rabatu w SELSEY

Kurs wideo dla planujących budowę

Pakiet Formalności 2026

Przydatne Extradodatki

Poradnik Dach Solarny

ikona Co zawiera projekt?
  • Projekt zgodny z WT2021
  • Bezpłatne pozwolenie na zmiany
  • Charakterystyka energetyczna
Konsultant
71 715 20 60

pon.-pt. 8-21, sob. 9-17

Szukasz wykonawcy godnego zaufania?
Zleć budowę w Extradom.pl!

  • Z góry znasz koszt budowy domu
  • Dom odbierasz zgodnie z ustalonym harmonogramem - nawet w 6 miesięcy
  • Zabezpiecza Cię jedna kompleksowa umowa z jednym wykonawcą
  • Otrzymujesz nawet 30-letnią gwarancję na konstrukcję domu
  • Oszczędzasz swój czas dzięki pewnej i kompletnej usłudze
  • Odbiór techniczny GRATIS - Gwarantujemy najwyższą jakość
Cena brutto stanu
deweloperskiego od
Tooltip
Cena brutto stanu deweloperskiego od 4 529 do 5 829 zł/m2.
Cena jest uzależniona m.in. od lokalizacji, wybranej technologii, kubatury budynku, skomplikowania projektu i ewentualnych zmian, na które zdecyduje się inwestor.
Cena za m2 powierzchni netto, czyli wszystkich pomieszczeń mierzonych na wysokości podłogi.
4 529 zł/m2
Dowiedz się więcej
Konsultant Masz pytania?
Zadzwoń
71 715 20 09

pon.-pt. 8-19

Parter - 65,49 m²

Projekt domu Zawoja 55 dw - rzut parteru, dom liczy 4 pokoje, 2 łazienki i wc

Zapytaj, co możesz zmienić

Powierzchnia (m²)
Tooltip
Powierzchnia pomieszczenia
to ta, z której faktycznie możesz korzystać – skosy i niskie części poddasza są liczone częściowo lub wcale.
  1. 100% dla wysokości powyżej 2,2 m,
  2. 50% dla wysokości 1,4–2,2 m,
  3. nie liczymy poniżej 1,4 m.

Powierzchnia podłogi
Liczymy po obrysie pomieszczenia, bez względu na jego wysokość/skosy. Jeśli nie ma skosów to powierzchnia podłogi i pomieszczenia jest taka sama.
pomieszczenia i podłogi
podłogi
1. Wiatrołap
6,70
2. Pokój dzienny + kuchnia + jadalnia
38,01
3. Pokój
9,96
4. Łazienka
4,63
5. Kotłownia
6,19
Razem
65,49
65,49

Natychmiast, otrzymasz PDF-y
z rzutami wszystkich kondygnacji

Poddasze - 41,48 m²

Projekt domu Zawoja 55 dw - rzut poddasza, dom liczy 4 pokoje, 2 łazienki i wc

Zapytaj, co możesz zmienić

Powierzchnia (m²)
Tooltip
Powierzchnia pomieszczenia
to ta, z której faktycznie możesz korzystać – skosy i niskie części poddasza są liczone częściowo lub wcale.
  1. 100% dla wysokości powyżej 2,2 m,
  2. 50% dla wysokości 1,4–2,2 m,
  3. nie liczymy poniżej 1,4 m.

Powierzchnia podłogi
Liczymy po obrysie pomieszczenia, bez względu na jego wysokość/skosy. Jeśli nie ma skosów to powierzchnia podłogi i pomieszczenia jest taka sama.
pomieszczenia
podłogi
1. Korytarz
5,34
5,49
2. Pokój
18,45
27,83
3. Łazienka
3,64
6,70
4. Pokój
6,91
10,69
5. Pokój
7,14
10,93
Razem
41,48
61,64

Natychmiast, otrzymasz PDF-y
z rzutami wszystkich kondygnacji

Zamów rysunki szczegółowe

Zapoznaj się ze szczegółowymi rysunkami rzutów kondygnacji w PDF dla tego projektu.

Warianty projektu (47)

PROMOCJA
Projekt domu Zawoja 45 dws
Zawoja 45 dws
Dodano!
Dodano!
71,23 m²
2
1
0

5 180 zł

5 480 zł

Tooltip

Cena regularna

5 180 zł najniższa cena
Tooltip

Najniższa cena z 30 dni
przed obniżką

PROMOCJA
Projekt domu Zawoja 4 dw
Zawoja 4 dw
Dodano!
Dodano!
107,45 m²
4
2
0

5 380 zł

5 680 zł

Tooltip

Cena regularna

5 380 zł najniższa cena
Tooltip

Najniższa cena z 30 dni
przed obniżką

PROMOCJA
Projekt domu Zawoja dw 11
Zawoja dw 11
Dodano!
Dodano!
86,20 m²
4
2
0

5 380 zł

5 680 zł

Tooltip

Cena regularna

5 380 zł najniższa cena
Tooltip

Najniższa cena z 30 dni
przed obniżką

PROMOCJA
Projekt domu Zawoja średnia
Zawoja średnia
Dodano!
Dodano!
116,42 m²
5
2
0

5 080 zł

5 380 zł

Tooltip

Cena regularna

5 080 zł najniższa cena
Tooltip

Najniższa cena z 30 dni
przed obniżką

PROMOCJA
Projekt domu Zawoja dw 21
Zawoja dw 21
Dodano!
Dodano!
90,26 m²
4
2
0

5 380 zł

5 680 zł

Tooltip

Cena regularna

5 380 zł najniższa cena
Tooltip

Najniższa cena z 30 dni
przed obniżką

PROMOCJA
Projekt domu Zawoja dws 17t
Zawoja dws 17t
Dodano!
Dodano!
67,79 m²
3
1
0

5 480 zł

5 680 zł

Tooltip

Cena regularna

5 480 zł najniższa cena
Tooltip

Najniższa cena z 30 dni
przed obniżką

PROMOCJA
Projekt domu Zawoja dws 4
Zawoja dws 4
Dodano!
Dodano!
103,40 m²
4
2
0

5 380 zł

5 680 zł

Tooltip

Cena regularna

5 380 zł najniższa cena
Tooltip

Najniższa cena z 30 dni
przed obniżką

PROMOCJA
Projekt domu Zawoja dw 8
Zawoja dw 8
Dodano!
Dodano!
104,44 m²
4
2
0

5 380 zł

5 680 zł

Tooltip

Cena regularna

5 380 zł najniższa cena
Tooltip

Najniższa cena z 30 dni
przed obniżką

PROMOCJA
Projekt domu Zawoja dw 39
Zawoja dw 39
Dodano!
Dodano!
101,20 m²
4
2
0

5 680 zł

5 980 zł

Tooltip

Cena regularna

5 680 zł najniższa cena
Tooltip

Najniższa cena z 30 dni
przed obniżką

PROMOCJA
Projekt domu Zawoja 16 dwst
Zawoja 16 dwst
Dodano!
Dodano!
111,82 m²
3
2
1

5 380 zł

5 680 zł

Tooltip

Cena regularna

5 380 zł najniższa cena
Tooltip

Najniższa cena z 30 dni
przed obniżką

PROMOCJA
Projekt domu Zawoja dw
Zawoja dw
Dodano!
Dodano!
85,68 m²
4
2
0

5 380 zł

5 680 zł

Tooltip

Cena regularna

5 380 zł najniższa cena
Tooltip

Najniższa cena z 30 dni
przed obniżką

PROMOCJA
Projekt domu Zawoja 57 dws
Zawoja 57 dws
Dodano!
Dodano!
78,69 m²
2
1
1

5 280 zł

5 580 zł

Tooltip

Cena regularna

5 280 zł najniższa cena
Tooltip

Najniższa cena z 30 dni
przed obniżką

PROMOCJA
Projekt domu Zawoja dw 17
Zawoja dw 17
Dodano!
Dodano!
68,35 m²
2
1
0

5 280 zł

5 480 zł

Tooltip

Cena regularna

5 280 zł najniższa cena
Tooltip

Najniższa cena z 30 dni
przed obniżką

PROMOCJA
Projekt domu Zawoja mk 31
Zawoja mk 31
Dodano!
Dodano!
99,88 m²
4
2
0

5 080 zł

5 380 zł

Tooltip

Cena regularna

5 080 zł najniższa cena
Tooltip

Najniższa cena z 30 dni
przed obniżką

PROMOCJA
Projekt domu Zawoja mk7gx dws
Zawoja mk7gx dws
Dodano!
Dodano!
99,53 m²
4
2
1

4 880 zł

5 180 zł

Tooltip

Cena regularna

4 880 zł najniższa cena
Tooltip

Najniższa cena z 30 dni
przed obniżką

PROMOCJA
Projekt domu Zawoja 24 dw
Zawoja 24 dw
Dodano!
Dodano!
89,83 m²
4
2
0

5 480 zł

5 680 zł

Tooltip

Cena regularna

5 380 zł najniższa cena
Tooltip

Najniższa cena z 30 dni
przed obniżką

PROMOCJA
Projekt domu Zawoja dw 15
Zawoja dw 15
Dodano!
Dodano!
122,07 m²
5
2
1

5 580 zł

5 780 zł

Tooltip

Cena regularna

5 480 zł najniższa cena
Tooltip

Najniższa cena z 30 dni
przed obniżką

PROMOCJA
Projekt domu Zawoja dws 5
Zawoja dws 5
Dodano!
Dodano!
89,85 m²
4
2
0

5 380 zł

5 680 zł

Tooltip

Cena regularna

5 380 zł najniższa cena
Tooltip

Najniższa cena z 30 dni
przed obniżką

PROMOCJA
Projekt domu Zawoja mk 11 dws
Zawoja mk 11 dws
Dodano!
Dodano!
105,11 m²
4
2
0

5 380 zł

5 680 zł

Tooltip

Cena regularna

5 380 zł najniższa cena
Tooltip

Najniższa cena z 30 dni
przed obniżką

PROMOCJA
Projekt domu Zawoja 23 dwst
Zawoja 23 dwst
Dodano!
Dodano!
94,35 m²
4
2
1

5 380 zł

5 680 zł

Tooltip

Cena regularna

5 380 zł najniższa cena
Tooltip

Najniższa cena z 30 dni
przed obniżką

PROMOCJA
Projekt domu Zawoja dw 16
Zawoja dw 16
Dodano!
Dodano!
96,83 m²
4
2
1

5 380 zł

5 680 zł

Tooltip

Cena regularna

5 380 zł najniższa cena
Tooltip

Najniższa cena z 30 dni
przed obniżką

PROMOCJA
Projekt domu Zawoja 67 dws
Zawoja 67 dws
Dodano!
Dodano!
67,11 m²
3
1
1

5 380 zł

5 580 zł

Tooltip

Cena regularna

5 380 zł najniższa cena
Tooltip

Najniższa cena z 30 dni
przed obniżką

PROMOCJA
Projekt domu Zawoja mk1
Zawoja mk1
Dodano!
Dodano!
100,96 m²
4
2
0

5 080 zł

5 380 zł

Tooltip

Cena regularna

5 080 zł najniższa cena
Tooltip

Najniższa cena z 30 dni
przed obniżką

PROMOCJA
Projekt domu Zawoja mk5
Zawoja mk5
Dodano!
Dodano!
104,29 m²
4
2
0

4 780 zł

5 080 zł

Tooltip

Cena regularna

4 780 zł najniższa cena
Tooltip

Najniższa cena z 30 dni
przed obniżką

PROMOCJA
Projekt domu Zawoja mk3x
Zawoja mk3x
Dodano!
Dodano!
105,67 m²
4
2
0

4 780 zł

5 080 zł

Tooltip

Cena regularna

4 780 zł najniższa cena
Tooltip

Najniższa cena z 30 dni
przed obniżką

PROMOCJA
Projekt domu Zawoja 27
Zawoja 27
Dodano!
Dodano!
80,13 m²
4
1
0

4 780 zł

5 080 zł

Tooltip

Cena regularna

4 780 zł najniższa cena
Tooltip

Najniższa cena z 30 dni
przed obniżką

PROMOCJA
Projekt domu Zawoja mk 15
Zawoja mk 15
Dodano!
Dodano!
97,08 m²
4
2
0

4 680 zł

4 980 zł

Tooltip

Cena regularna

4 680 zł najniższa cena
Tooltip

Najniższa cena z 30 dni
przed obniżką

PROMOCJA
Projekt domu Zawoja dw 63
Zawoja dw 63
Dodano!
Dodano!
94,26 m²
4
2
0

5 180 zł

5 480 zł

Tooltip

Cena regularna

5 180 zł najniższa cena
Tooltip

Najniższa cena z 30 dni
przed obniżką

PROMOCJA
Projekt domu Zawoja 33dwsg
Zawoja 33dwsg
Dodano!
Dodano!
92,52 m²
3
2
1

5 380 zł

5 680 zł

Tooltip

Cena regularna

5 380 zł najniższa cena
Tooltip

Najniższa cena z 30 dni
przed obniżką

PROMOCJA
Projekt domu Zawoja mk6
Zawoja mk6
Dodano!
Dodano!
107,33 m²
4
2
0

4 780 zł

5 080 zł

Tooltip

Cena regularna

4 780 zł najniższa cena
Tooltip

Najniższa cena z 30 dni
przed obniżką

PROMOCJA
Projekt domu Zawoja dw 53
Zawoja dw 53
Dodano!
Dodano!
141 m²
5
4
0

5 780 zł

6 080 zł

Tooltip

Cena regularna

5 780 zł najniższa cena
Tooltip

Najniższa cena z 30 dni
przed obniżką

PROMOCJA
Projekt domu Zawoja dw 25
Zawoja dw 25
Dodano!
Dodano!
112,09 m²
5
2
1

5 380 zł

5 680 zł

Tooltip

Cena regularna

5 380 zł najniższa cena
Tooltip

Najniższa cena z 30 dni
przed obniżką

PROMOCJA
Projekt domu Zawoja mk71g
Zawoja mk71g
Dodano!
Dodano!
99,87 m²
4
2
1

4 780 zł

5 080 zł

Tooltip

Cena regularna

4 780 zł najniższa cena
Tooltip

Najniższa cena z 30 dni
przed obniżką

PROMOCJA
Projekt domu Zawoja duża dw 13
Zawoja duża dw 13
Dodano!
Dodano!
144,43 m²
4
2
1

5 680 zł

5 980 zł

Tooltip

Cena regularna

5 680 zł najniższa cena
Tooltip

Najniższa cena z 30 dni
przed obniżką

PROMOCJA
Projekt domu Zawoja mk 77g dws
Zawoja mk 77g dws
Dodano!
Dodano!
107,43 m²
3
2
1

5 180 zł

5 480 zł

Tooltip

Cena regularna

5 180 zł najniższa cena
Tooltip

Najniższa cena z 30 dni
przed obniżką

PROMOCJA
Projekt domu Zawoja 25 dwst
Zawoja 25 dwst
Dodano!
Dodano!
150,58 m²
6
2
1

5 480 zł

5 780 zł

Tooltip

Cena regularna

5 480 zł najniższa cena
Tooltip

Najniższa cena z 30 dni
przed obniżką

PROMOCJA
Projekt domu Zawoja dw 43
Zawoja dw 43
Dodano!
Dodano!
102,40 m²
3
2
0

5 380 zł

5 680 zł

Tooltip

Cena regularna

5 380 zł najniższa cena
Tooltip

Najniższa cena z 30 dni
przed obniżką

PROMOCJA
Projekt domu Zawoja 31 dw
Zawoja 31 dw
Dodano!
Dodano!
94,94 m²
3
3
0

5 380 zł

5 680 zł

Tooltip

Cena regularna

5 380 zł najniższa cena
Tooltip

Najniższa cena z 30 dni
przed obniżką

PROMOCJA
Projekt domu Zawoja dws 33
Zawoja dws 33
Dodano!
Dodano!
96,59 m²
4
2
0

5 380 zł

5 680 zł

Tooltip

Cena regularna

5 380 zł najniższa cena
Tooltip

Najniższa cena z 30 dni
przed obniżką

PROMOCJA
Projekt domu Zawoja 36 dw
Zawoja 36 dw
Dodano!
Dodano!
74,43 m²
2
2
0

5 380 zł

5 680 zł

Tooltip

Cena regularna

5 380 zł najniższa cena
Tooltip

Najniższa cena z 30 dni
przed obniżką

PROMOCJA
Projekt domu Zawoja mk1t
Zawoja mk1t
Dodano!
Dodano!
99,05 m²
4
2
0

4 780 zł

5 080 zł

Tooltip

Cena regularna

4 780 zł najniższa cena
Tooltip

Najniższa cena z 30 dni
przed obniżką

PROMOCJA
Projekt domu Zawoja dw 7
Zawoja dw 7
Dodano!
Dodano!
69,25 m²
2
1
0

5 280 zł

5 480 zł

Tooltip

Cena regularna

5 280 zł najniższa cena
Tooltip

Najniższa cena z 30 dni
przed obniżką

PROMOCJA
Projekt domu Zawoja dw 77
Zawoja dw 77
Dodano!
Dodano!
108,98 m²
3
2
0

5 380 zł

5 680 zł

Tooltip

Cena regularna

5 380 zł najniższa cena
Tooltip

Najniższa cena z 30 dni
przed obniżką

PROMOCJA
Projekt domu Zawoja 14 dw
Zawoja 14 dw
Dodano!
Dodano!
89,42 m²
4
2
0

5 380 zł

5 680 zł

Tooltip

Cena regularna

5 380 zł najniższa cena
Tooltip

Najniższa cena z 30 dni
przed obniżką

PROMOCJA
Projekt domu Zawoja dws 37t
Zawoja dws 37t
Dodano!
Dodano!
67,88 m²
3
1
0

5 480 zł

5 680 zł

Tooltip

Cena regularna

5 480 zł najniższa cena
Tooltip

Najniższa cena z 30 dni
przed obniżką

PROMOCJA
Projekt domu Zawoja dw 3
Zawoja dw 3
Dodano!
Dodano!
100,78 m²
4
2
0

5 380 zł

5 680 zł

Tooltip

Cena regularna

5 380 zł najniższa cena
Tooltip

Najniższa cena z 30 dni
przed obniżką

PROMOCJA
Projekt domu Zawoja 47 dws
Zawoja 47 dws
Dodano!
Dodano!
71,23 m²
2
1
0

5 180 zł

5 480 zł

Tooltip

Cena regularna

5 180 zł najniższa cena
Tooltip

Najniższa cena z 30 dni
przed obniżką

Podobne projekty (217)

Zobacz wszystkie
PROMOCJA
Zdjęcie 1 projektu L-75 Dom willowa z bali BBD1108
L-75 Dom willowa z bali
Dodano!
Dodano!
102,20 m²
3
3
0

3 799 zł

4 099 zł

Tooltip

Cena regularna

3 799 zł najniższa cena
Tooltip

Najniższa cena z 30 dni
przed obniżką

PROMOCJA
Zdjęcie 1 projektu A-154 Dom piaskowa z bali BBD1279
A-154 Dom piaskowa z bali
Dodano!
Dodano!
110,80 m²
4
2
0

3 899 zł

4 299 zł

Tooltip

Cena regularna

3 899 zł najniższa cena
Tooltip

Najniższa cena z 30 dni
przed obniżką

PROMOCJA
Zdjęcie 1 projektu L-116-5 SLU1052
L-116-5
Dodano!
Dodano!
96,04 m²
4
2
0

3 000 zł

3 300 zł

Tooltip

Cena regularna

3 000 zł najniższa cena
Tooltip

Najniższa cena z 30 dni
przed obniżką

PROMOCJA
Zdjęcie 1 projektu A-154 Dom piaskowa szkieletowy BBD1280
113,60 m²
4
2
0

3 899 zł

4 299 zł

Tooltip

Cena regularna

3 899 zł najniższa cena
Tooltip

Najniższa cena z 30 dni
przed obniżką

PROMOCJA
Zdjęcie 1 projektu L-35 Dom różana z bali BBD1052
L-35 Dom różana z bali
Dodano!
Dodano!
96,10 m²
3
2
0

3 799 zł

4 099 zł

Tooltip

Cena regularna

3 799 zł najniższa cena
Tooltip

Najniższa cena z 30 dni
przed obniżką

PROMOCJA
Zdjęcie 1 projektu A-102 Dom wronia z bali BBD1165
A-102 Dom wronia z bali
Dodano!
Dodano!
99,40 m²
4
2
0

3 799 zł

4 099 zł

Tooltip

Cena regularna

3 799 zł najniższa cena
Tooltip

Najniższa cena z 30 dni
przed obniżką

PROMOCJA
Zdjęcie 1 projektu L-209 SLU1012
L-209
Dodano!
Dodano!
103,05 m²
3
2
0

3 600 zł

3 900 zł

Tooltip

Cena regularna

3 600 zł najniższa cena
Tooltip

Najniższa cena z 30 dni
przed obniżką

PROMOCJA
Zdjęcie 1 projektu A-102 Dom wronia szkieletowy BBD1164
102,30 m²
4
2
0

3 799 zł

4 099 zł

Tooltip

Cena regularna

3 799 zł najniższa cena
Tooltip

Najniższa cena z 30 dni
przed obniżką

Projekt z budową

Budowa Projekt z budową

Zbuduj ten dom z naszym Partnerem - wygodnie, szybko i bezpiecznie

Projekt z budową to:

  • gwarancja niezmiennego kosztu budowy

  • krótki czas realizacji - dom gotowy nawet w 6 miesięcy

  • wieloletnia gwarancja na konstrukcję domu

Elewacje

Frontowa
Tylna
Lewa
Prawa

Przekroje

Przekrój pionowy

Usytuowanie na działce

Czy ten projekt pasuje na
Twoją działkę?

Chętnie to sprawdzimy!

Czy ten projekt pasuje na
Twoją działkę?

Chętnie to sprawdzimy!

Dowiedz się:

  • czy zmieści się na niej wybrany przez Ciebie dom
  • jakie parametry musi spełniać dom według miejscowego planu zagospodarowania lub warunków zabudowy (np. kąt nachylenia i typ dachu, liczba kondygnacji itp.
  • jakie inne projekty pasują na Twoją działkę – znajdziemy je dla Ciebie!
Autor: Dom-Projekt

Dane techniczne projektu

Powierzchnie i wymiary Powierzchnie i wymiary

Powierzchnia użytkowa
Tooltip
Suma powierzchni wszystkich pomieszczeń mieszkalnych, pomniejszona o pow. garażu, kotłowni, strychu, piwnicy. Jest liczona w 100% dla pomieszczeń o wysokości powyżej 2,2 m, w 50% dla pomieszczeń o wys. 2,2-1,4 m i niewliczana dla niższych niż 1,4 m.

100,78 m²

Wysokość ściany kolankowej
Tooltip
Wysokość ściany podpierającej dach. Jej wysokość wpływa na powierzchnię użytkową kondygnacji, na której się znajduje.

0,60 m

Powierzchnia zabudowy
Tooltip
Powierzchnia zajmowana przez część na- oraz nadziemną budynku liczona, jako rzut pionowy budynku na działkę.

80 m²

Powierzchnia netto
Tooltip
Powierzchna wszystkich pomieszczeń w budynku mierzona na wysokości podłogi.

127,13 m²

Kubatura brutto
Tooltip
Zazwyczaj jest to suma kubatur (objętości) wszystkich pomieszczeń budynku, liczonych po zewnętrznym obrysie murów (z ociepleniem).

390 m³

Powierzchnia dachu

201 m²

Kąt nachylenia dachu
Tooltip
Nachylenie połaci dachu głównego podawane w stopniach. Uwaga! W niektórych projektach występuje więcej niż jedno nachylenie dachu.

43°

Wysokość budynku
Tooltip
Wysokość liczona od części budynku położonej najniżej przy powierzchni terenu do najwyższego punktu dachu (kalenicy) z wyłączeniem kominów.

8,23 m

Szerokość elewacji

10 m

Długość elewacji

8 m

Min. szerokość działki
Tooltip
Najmniejsza możliwa szerokość działki niezbędna do wybudowania wybranego domu. Składa się z szerokości elewacji domu powiększonej z obu stron o 3 m dla ściany bez otworów drzwiowych/okiennych lub 4 m, dla ściany z otworami.

19,90 m

Min. długość działki
Tooltip
Najmniejsza możliwa długość działki niezbędna do wybudowania wybranego domu. Składa się z długości elewacji domu powiększonej z obu stron o 3 m dla ściany bez otworów drzwiowych/okiennych lub 4 m, dla ściany z otworami.

17,45 m

Energooszczędność Energooszczędność

Oze Czym jest OZE (Odnawialne Źródło Energii)?
Ep
Tooltip
Energia pierwotna określa ilość energii nieodnawialnej potrzebnej w ciągu roku do ogrzewania czy też ogrzania wody użytkowej z uwzględnieniem kosztów produkcji i transportu surowców energetycznych.

26,40 kWh/(m²rok)

Ogrzewanie główne

Gazowe lub paliwo stałe (OZE) - do wyboru na etapie adaptacji

Interesuje Cię inne źródło ogrzewania? Wyślij zapytanie lub zadzwoń do doradcy

Wentylacja

Grawitacyjna - szczegóły

Instalacje w projekcie

Kolektory słoneczne

Warunki techniczne

Projekt zgody z WT 2021

Technologia i konstrukcja Technologia i konstrukcja

Konstrukcja

Z bali

PROJEKT Z BUDOWĄ Istnieje możliwość zaadaptowania tego projektu do technologii prefabrykowanej/modułowej i budowy nawet w 6 miesięcy ze stałym kosztem budowy

Dowiedz się więcej »
Opis szczegółowy

Wysokość ścianki kolankowej: 0.6 m. Strop: drewniany. Pokrycie dachu: dachówka gontopodobna Gerard Corona. Ściany zewnętrzne: płazy drewniane + wełna mineralna + deska. Ściany wewnętrzne: płazy drewniane. Typ ogrzewania: kocioł gazowy lub kocioł na paliwo stałe. Instalacje dodatkowe: instalacja solarna.

Strop

Drewniany

Reklama
Okna i drzwi tarasowe

Nowoczesne okna PVC i aluminiowe WIŚNIOWSKI – doskonała izolacja, elegancki design i niezrównana trwałość.

Wiśniowski
Sprawdź parametry!
Okna dachowe

Oferujemy bezpłatne konsultacje w zakresie wszystkich rozwiązań VELUX. Wyceny, porady dotyczące doboru okien i rolet zewnętrznych - sprawdź!

Velux
Sprawdź szczegóły
Okna i drzwi tarasowe

Systemy drzwi i okien z myślą o nowoczesnej architekturze i dużych przeszkleniach tarasowych.

Drutex
Sprawdź ofertę!
Pompa ciepła

Wybierz pompę ciepła, która pasuje do Twojego domu. Niezależnie od tego, czy ustawienie wewnątrz czy na zewnątrz, pompy ciepła STIEBEL ELTRON dopasują się do każdej przestrzeni.

Stiebel
Dobierz pompę ciepła
Drzwi

Idealne połączenie sztuki z technologią! Nowoczesne i energooszczędne drzwi wyróżniają się doskonałym połączeniem funkcjonalności, wysokiej estetyki wykonania oraz unikalnego stylu.

Drutex
Zobacz więcej
Drzwi

Ciepłe drzwi WIŚNIOWSKI z kontrolą dostępu. Szeroka gama wzorów i kolorów.

Wiśniowski
Wybierz najlepsze
Bramy garażowe

Automatyczne bramy garażowe segmentowe i uchylne WIŚNIOWSKI na wymiar i z systemem smart home w standardzie.

Wiśniowski
Sprawdź ofertę!
Rekuperacja

Alnor - kompletny system rekuperacji. Dobierz idealne rozwiązanie dla Twojego domu!

Alnor
Dobierz rekuperator
Dach

Producent stalowych pokryć dachowych i systemów elewacyjnych. Precyzja wykonania, trwałość na lata i szybki montaż doceniany przez dekarzy. Postaw na solidny dach Budmat.

Budmat
Sprawdź ofertę
Ogrodzenie

Nowoczesne stalowe ogrodzenia Budmat - estetyka, bezpieczeństwo i trwałość na lata. Systemowe rozwiązania na wymiar, dopasowane do każdego domu.

Budmat
Sprawdź ofertę

Gotowe domy - najszybszy sposób na dom (115)

Zobacz wszystkie
  • Stan deweloperski nawet w 6 miesięcy
  • Gwarancja stałej ceny
Skonfiguruj dom
Zdjęcie 1 projektu Bergen 90 HUS1003
90,83 m²
3
Stan deweloperski brutto
429 000 zł 4 723 zł/m²
Zdjęcie 1 projektu Dom prefabrykowany Parterowy 100B HFX1044
100,63 m²
3
Stan deweloperski brutto
449 000 zł 4 462 zł/m²
Zdjęcie 1 projektu Dom prefabrykowany Parterowy 100A HFX1036
100,55 m²
4
Stan deweloperski brutto
449 000 zł 4 465 zł/m²
Zdjęcie 1 projektu Dom prefabrykowany FastHome 100 HFX1031
99,59 m²
3
Stan deweloperski brutto
479 000 zł 4 810 zł/m²
Zdjęcie 1 projektu Dom keramzytowy Atrakcyjna Stodoła wariant 2 HAK1000
99,22 m²
3
Stan deweloperski brutto
494 900 zł 4 988 zł/m²
Zdjęcie 1 projektu Dom szkieletowy Spruce Smart 112 HHT1030
102,60 m²
3
Stan deweloperski brutto
550 500 zł 5 365 zł/m²
Zdjęcie 1 projektu Dom prefabrykowany P.9 HPK1008
97,80 m²
4
Stan deweloperski brutto
555 900 zł 5 684 zł/m²
Zdjęcie 1 projektu Dom prefabrykowany E.3 HPK1019
97,13 m²
3
Stan deweloperski brutto
496 033 zł 5 107 zł/m²

Dodatki do projektu

Dodatki możesz zamówić w koszyku lub telefonicznie u naszego Doradcy.

Ikona

Bestseller

Dodatkowy egzemplarz projektu

400 zł

Opis projektu domu
Zawoja 55 dw

DomProjekt domu Zawoja 55 dw

To projekt domu z bali w stylu góralskim, idealny dla 4- lub 5-osobowej rodziny poszukującej klimatycznego miejsca z duszą. Dom parterowy z poddaszem użytkowym łączy tradycyjną estetykę z funkcjonalnym układem pomieszczeń, oferując przytulną przestrzeń do życia blisko natury.

WyróżnieniaCo wyróżnia ten dom?

  • Klimatyczny kominek w salonie – tworzy serce domu, idealne na chłodne wieczory i rodzinne spotkania, dodając wnętrzu ciepła i niepowtarzalnego charakteru.
  • Urokliwa, zadaszona weranda – stanowi naturalne przedłużenie strefy dziennej i jest doskonałym miejscem na poranną kawę czy popołudniowy relaks na świeżym powietrzu.
  • Dodatkowy pokój na parterze – zapewnia elastyczność aranżacji, idealnie sprawdzi się jako gabinet do pracy, pokój gościnny lub komfortowa sypialnia dla seniora.
  • Wyraźny podział na strefy – parter pełni funkcję otwartej strefy dziennej, podczas gdy poddasze mieści zaciszną strefę nocną, co gwarantuje komfort i prywatność wszystkim domownikom.

ArchitekturaArchitektura i wygląd

Zawoja 55 dw to dom o prostej bryle przykrytej klasycznym, dwuspadowym dachem, co jest rozwiązaniem sprawdzonym i ekonomicznym w budowie. Jego wyjątkowy charakter podkreśla technologia wykonania – ściany z bali nadają budynkowi autentyczny, góralski styl. Całość dopełnia urokliwa weranda przy wejściu oraz taras od strony ogrodu, które zachęcają do spędzania czasu na zewnątrz. Projekt harmonijnie wpisuje się zarówno w górski krajobraz, jak i leśne otoczenie, tworząc spójną i estetyczną całość.

WnętrzeWnętrze i układ funkcjonalny

Dom oferuje 100,78 m² starannie zaplanowanej powierzchni użytkowej. Wewnątrz znajdują się 4 pokoje oraz 2 łazienki, a czytelny podział funkcjonalny na strefę dzienną na parterze i nocną na poddaszu zapewnia wysoki komfort codziennego życia.

Parter – strefa dzienna

Centrum życia rodzinnego to otwarta i jasna przestrzeń, łącząca salon, jadalnię i kuchnię. Centralnym punktem jest kominek, który buduje przytulną atmosferę. Z salonu prowadzi bezpośrednie wyjście na taras, otwierając dom na ogród. Na parterze zaprojektowano również dodatkowy, ustawny pokój, który można zaaranżować jako gabinet lub sypialnię dla gości. Program funkcjonalny uzupełniają wygodna łazienka oraz kotłownia.

Poddasze – strefa nocna

Poddasze to prywatna przestrzeń domowników, przeznaczona na odpoczynek. Znajdują się tu komfortowe sypialnie, które dzięki oknom dachowym są dobrze doświetlone naturalnym światłem. Na tej kondygnacji umieszczono także drugą, w pełni funkcjonalną łazienkę, co usprawnia poranną i wieczorną logistykę całej rodziny.

Czytaj więcej

Polecani producenci

Kompletne systemy rekuperacji

tło producenta

Alnor

Dowiedz się więcej

Dachy modułowe ze stali

tło producenta

Budmat

Poznaj szczegóły oferty

Prefabrykowane konstrukcje dachowe

tło producenta

WIĄZAR POLSKA

Zobacz więcej
Zobacz więcej

Społeczność projektu domu
Zawoja 55 dw w budowie

Dołącz do społeczności osób, które budują ten dom lub są zainteresowane jego budową.

  • Oglądaj zdjęcia z budowy
  • Zadawaj pytania
  • Wymieniaj się doświadczeniami

Opinie o projekcie domu
Zawoja 55 dw

Opinie niezweryfikowane

Bądź pierwszy!
Ten projekt nie ma jeszcze opinii, bądź pierwszy!

ikona Dodaj opinię o projekcie

ASYSTENT WYBORU PROJEKTU

Szukasz idealnego projektu? Znajdziemy go dla Ciebie!

Doradca na podstawie Twoich wskazówek przygotuje spersonalizowaną listę projektów

Graficzne opracowanie rzutów poglądowych widocznych na karcie projektu zostało wykonane przez Extradom.pl. Prezentowane przez Extradom.pl wizualizacje wykonane zostały przez autora projektu i należy poczytywać je jedynie za przykład i propozycję wykończenia, wizję architektoniczną autora projektu. Ostateczne wykończenie budynku może nastąpić na wiele sposobów. Szczegółowe rozwiązania zastosowane w oferowanej dokumentacji - w tym również ilość, lokalizacje i wygląd okien, drzwi, kominów - mogą w niewielkim stopniu różnić się od prezentowanej wizualizacji budynku.

Extradom.pl Spółka z ograniczoną odpowiedzialnością z siedzibą przy ul. Jaworskiej 13, 53-612 Wrocław, wpisana do rejestru przedsiębiorców Krajowego Rejestru Sądowego przez Sąd Rejonowy dla Wrocławia-Fabrycznej we Wrocławiu, VI Wydział Gospodarczy Krajowego Rejestru Sądowego do pod numerem KRS 0000648746, numer NIP 895-17-18-333, o kapitale zakładowym 708 150,00 zł uprzejmie informuje, iż poprzez serwis Extradom.pl umożliwia m.in. zapoznanie się przez konsumentów z ofertą handlową Partnerów Extradom.pl, którzy stosują metody budowy domów przy wykorzystaniu różnego rodzaju technologie prefabrykacji bądź modułowe (tzw. „Gotowe domy”).

Extradom.pl nie prowadzi jednakże sprzedaży ani nie oferuje usług polegających na doradztwie finansowym, prawnym ani podatkowym w zakresie inwestycji realizowanych w technologiach tzw. „Gotowych domów”. Informacje prezentowane w serwisie Extradom.pl dotyczące Partnerów Extradom.pl oferujących realizację inwestycji w technologiach „Gotowych domów” lub podobnych mają charakter informacyjny i reklamowy.

Prezentowane w serwisie Extradom.pl informacje dotyczące stosowanych przez Partnerów metod budowy domów w technologii prefabrykacji bądź modułowej pochodzą od Partnerów Extradom.pl.

Extradom.pl sp. z o.o. jedynie umożliwia nawiązanie kontaktu przez Użytkownika z Partnerem Extradom.pl stosującym tego rodzaju technologie budowy domów i nie jest stroną umowy o roboty budowlane zawieranej przez Użytkownika Extradom.pl z Partnerem Extradom.pl.

REKLAMA
Zamknij