👉 Walentynkowe rabaty ❤️

Koniec oferty za:

0dni

00godz.

00min.

00sek.

Sprawdź

Projekt domu Willa Floryda 4 WAH1855

Dodano!
Dodano!

Warstwy

Warstwy

Rzut parteru

Powierzchnia (m²)
Tooltip
Powierzchnia pomieszczenia
to ta, z której faktycznie możesz korzystać – skosy i niskie części poddasza są liczone częściowo lub wcale.
  1. 100% dla wysokości powyżej 2,2 m,
  2. 50% dla wysokości 1,4–2,2 m,
  3. nie liczymy poniżej 1,4 m.

Powierzchnia podłogi
Liczymy po obrysie pomieszczenia, bez względu na jego wysokość/skosy. Jeśli nie ma skosów to powierzchnia podłogi i pomieszczenia jest taka sama.
pomieszczenia i podłogi
podłogi
1. Wiatrołap
9,55
2. Hall
21,78
3. Kuchnia
20,91
4. Pokój dzienny + jadalnia
83,80
5. Winiarnia
3,64
6. Łazienka
3,40
7. Pokój
12,56
8. Pomieszczenie gospodarcze
9,51
9. Spiżarnia
5,04
10. Kotłownia
6,95
11. Garaż dwustanowiskowy
34,20
Razem
211,34
211,34
Powierzchnia (m²)
Tooltip
Powierzchnia pomieszczenia
to ta, z której faktycznie możesz korzystać – skosy i niskie części poddasza są liczone częściowo lub wcale.
  1. 100% dla wysokości powyżej 2,2 m,
  2. 50% dla wysokości 1,4–2,2 m,
  3. nie liczymy poniżej 1,4 m.

Powierzchnia podłogi
Liczymy po obrysie pomieszczenia, bez względu na jego wysokość/skosy. Jeśli nie ma skosów to powierzchnia podłogi i pomieszczenia jest taka sama.
pomieszczenia i podłogi
podłogi
1. Korytarz
18,19
2. Łazienka + sauna
23,52
3. Garderoba
11,56
4. Korytarz
3,51
5. Pokój
25,62
6. Pokój
12,61
7. Łazienka
5,32
8. Garderoba
4,58
9. Pokój
21,90
10. Pokój
21,94
11. Garderoba
4,10
12. Łazienka
5,20
Razem
158,05
158,05

    Usytuowanie na działce

    Czy ten projekt pasuje na
    Twoją działkę?

    Chętnie to sprawdzimy!

    Dowiedz się:

    • czy zmieści się na niej wybrany przez Ciebie dom
    • jakie parametry musi spełniać dom według miejscowego planu zagospodarowania lub warunków zabudowy (np. kąt nachylenia i typ dachu, liczba kondygnacji itp.
    • jakie inne projekty pasują na Twoją działkę – znajdziemy je dla Ciebie!

Pow. użytkowa

327,82 m²

Pokoje

5

Łazienki i WC

4

Garaż

2

Min. szer. i dł. działki

29,5 x 25,05 m

Kąt dachu

35°

Szacunkowy koszt SSZ

834 000 zł
Szacunkowy koszt budowy do stanu surowego zamkniętego (SSZ) metodą gospodarczą - większość prac wykonuje inwestor.

Konstrukcja

Murowana
więcej

Willa Floryda 4 - WAH1855

ikona 327,82 m²
Powierzchnia użytkowa
ikona5
Pokoje (bez salonu)
ikona 4
Łazienki (z toaletami)
ikona 2
Liczba stanowisk garażowych
(z wiatą garażową)
ikona
Konstrukcja: Murowana

Cena promocyjna
ważna do 19.02.2026 r.

11 192 zł

Tooltip

Cena regularna obowiązywała od 05.02.2026 do 11.02.2026

Cena regularna: 13 990 zł
Najniższa cena z 30 dni przed obniżką: 10 872 zł
Gwarancja najniższej ceny Gwarancja najniższej ceny Tooltip

Projekt jest dostępny Tooltip

GRATIS 16% rabatu w SELSEY

GRATIS 10% rabatu do LEROY MERLIN

GRATIS Przydatne Extradodatki

GRATIS Poradnik Dach Solarny

100 dni na wymianę, 30 dni na zwrot

Darmowa dostawa - kurier, paczkomaty

Bezpłatne pozwolenie na zmiany

Dokumentacja zgodna z WT2021

Pokaż więcej (6)
Konsultant Masz pytania?
Zadzwoń
71 715 20 60

pon.-pt. 8-21, sob. 9-17

Szukasz wykonawcy godnego zaufania?
Zleć budowę w Extradom.pl!

  • Z góry znasz koszt budowy domu
  • Dom odbierasz zgodnie z ustalonym harmonogramem - nawet w 6 miesięcy
  • Zabezpiecza Cię jedna kompleksowa umowa z jednym wykonawcą
  • Otrzymujesz nawet 30-letnią gwarancję na konstrukcję domu
  • Oszczędzasz swój czas dzięki pewnej i kompletnej usłudze
Cena brutto stanu
deweloperskiego od
Tooltip
Cena brutto stanu deweloperskiego od 4 109 do 4 999 zł/m2.
Cena jest uzależniona m.in. od lokalizacji, wybranej technologii, kubatury budynku, skomplikowania projektu i ewentualnych zmian, na które zdecyduje się inwestor.
Cena za m2 powierzchni netto, czyli wszystkich pomieszczeń mierzonych na wysokości podłogi.
4 109 zł/m2
Dowiedz się więcej
Konsultant Masz pytania?
Zadzwoń
71 715 20 70

pon.-pt. 8-19

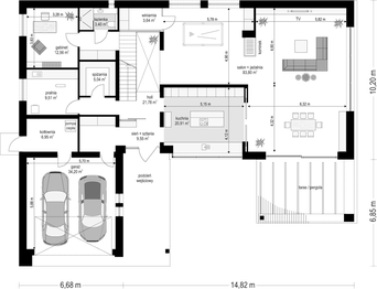
Parter - 211,34 m²

Parter projektu Willa Floryda 4

Zapytaj, co możesz zmienić

Powierzchnia (m²)
Tooltip
Powierzchnia pomieszczenia
to ta, z której faktycznie możesz korzystać – skosy i niskie części poddasza są liczone częściowo lub wcale.
  1. 100% dla wysokości powyżej 2,2 m,
  2. 50% dla wysokości 1,4–2,2 m,
  3. nie liczymy poniżej 1,4 m.

Powierzchnia podłogi
Liczymy po obrysie pomieszczenia, bez względu na jego wysokość/skosy. Jeśli nie ma skosów to powierzchnia podłogi i pomieszczenia jest taka sama.
pomieszczenia i podłogi
podłogi
1. Wiatrołap
9,55
2. Hall
21,78
3. Kuchnia
20,91
4. Pokój dzienny + jadalnia
83,80
5. Winiarnia
3,64
6. Łazienka
3,40
7. Pokój
12,56
8. Pomieszczenie gospodarcze
9,51
9. Spiżarnia
5,04
10. Kotłownia
6,95
11. Garaż dwustanowiskowy
34,20
Razem
211,34
211,34

Natychmiast, otrzymasz PDF-y
z rzutami wszystkich kondygnacji

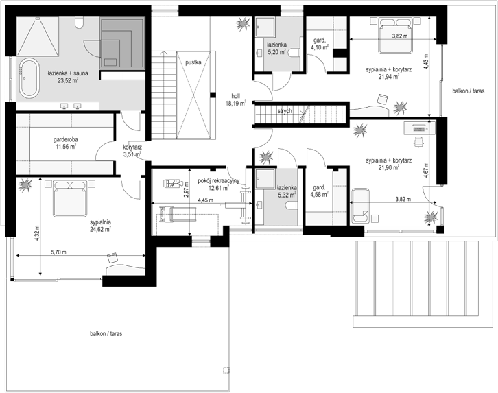
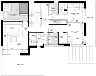
Piętro 1 - 158,05 m²

Piętro 1 projektu Willa Floryda 4

Zapytaj, co możesz zmienić

Powierzchnia (m²)
Tooltip
Powierzchnia pomieszczenia
to ta, z której faktycznie możesz korzystać – skosy i niskie części poddasza są liczone częściowo lub wcale.
  1. 100% dla wysokości powyżej 2,2 m,
  2. 50% dla wysokości 1,4–2,2 m,
  3. nie liczymy poniżej 1,4 m.

Powierzchnia podłogi
Liczymy po obrysie pomieszczenia, bez względu na jego wysokość/skosy. Jeśli nie ma skosów to powierzchnia podłogi i pomieszczenia jest taka sama.
pomieszczenia i podłogi
podłogi
1. Korytarz
18,19
2. Łazienka + sauna
23,52
3. Garderoba
11,56
4. Korytarz
3,51
5. Pokój
25,62
6. Pokój
12,61
7. Łazienka
5,32
8. Garderoba
4,58
9. Pokój
21,90
10. Pokój
21,94
11. Garderoba
4,10
12. Łazienka
5,20
Razem
158,05
158,05

Natychmiast, otrzymasz PDF-y
z rzutami wszystkich kondygnacji

Zamów rysunki szczegółowe

Zapoznaj się ze szczegółowymi rysunkami rzutów kondygnacji w PDF dla tego projektu.

Warianty projektu (16)

PROMOCJA
Projekt domu Willa Floryda 8
Willa Floryda 8
Dodano!
Dodano!
212,34 m²
5
4
2

10 920 zł

13 650 zł

Tooltip

Cena regularna

10 600 zł najniższa cena
Tooltip

Najniższa cena z 30 dni
przed obniżką

PROMOCJA
Projekt domu Willa Floryda 7
Willa Floryda 7
Dodano!
Dodano!
259,72 m²
5
5
2

11 480 zł

14 350 zł

Tooltip

Cena regularna

11 160 zł najniższa cena
Tooltip

Najniższa cena z 30 dni
przed obniżką

PROMOCJA
Projekt domu Willa Floryda 2
Willa Floryda 2
Dodano!
Dodano!
262,39 m²
5
5
2

10 472 zł

13 090 zł

Tooltip

Cena regularna

10 152 zł najniższa cena
Tooltip

Najniższa cena z 30 dni
przed obniżką

PROMOCJA
Projekt domu Willa Floryda 3
Willa Floryda 3
Dodano!
Dodano!
235,54 m²
5
3
2

10 632 zł

13 290 zł

Tooltip

Cena regularna

10 312 zł najniższa cena
Tooltip

Najniższa cena z 30 dni
przed obniżką

PROMOCJA
Projekt domu Willa Floryda 5
Willa Floryda 5
Dodano!
Dodano!
347,89 m²
5
3
3

14 680 zł

18 350 zł

Tooltip

Cena regularna

14 360 zł najniższa cena
Tooltip

Najniższa cena z 30 dni
przed obniżką

PROMOCJA
Projekt domu Willa Floryda
Willa Floryda
Dodano!
Dodano!
363,71 m²
6
5
3

14 072 zł

17 590 zł

Tooltip

Cena regularna

13 752 zł najniższa cena
Tooltip

Najniższa cena z 30 dni
przed obniżką

PROMOCJA
Projekt domu Willa Floryda 2 wariant C
Willa Floryda 2 wariant C
269,44 m²

10 472 zł

13 090 zł

Tooltip

Cena regularna

10 152 zł najniższa cena
Tooltip

Najniższa cena z 30 dni
przed obniżką

PROMOCJA
Projekt domu Willa Floryda 2 wariant F
Willa Floryda 2 wariant F
310,54 m²

10 472 zł

13 090 zł

Tooltip

Cena regularna

10 152 zł najniższa cena
Tooltip

Najniższa cena z 30 dni
przed obniżką

PROMOCJA
Projekt domu Willa Floryda 3 wariant B
Willa Floryda 3 wariant B
234,65 m²

10 632 zł

13 290 zł

Tooltip

Cena regularna

10 312 zł najniższa cena
Tooltip

Najniższa cena z 30 dni
przed obniżką

PROMOCJA
Projekt domu Willa Floryda 5 wariant B
Willa Floryda 5 wariant B
576,13 m²

16 280 zł

20 350 zł

Tooltip

Cena regularna

15 960 zł najniższa cena
Tooltip

Najniższa cena z 30 dni
przed obniżką

PROMOCJA
Projekt domu Willa Floryda 5 wariant C
Willa Floryda 5 wariant C
305,67 m²

14 680 zł

18 350 zł

Tooltip

Cena regularna

14 360 zł najniższa cena
Tooltip

Najniższa cena z 30 dni
przed obniżką

PROMOCJA
Projekt domu Willa Floryda wariant B
Willa Floryda wariant B
471,45 m²

14 680 zł

18 350 zł

Tooltip

Cena regularna

14 360 zł najniższa cena
Tooltip

Najniższa cena z 30 dni
przed obniżką

PROMOCJA
Projekt domu Willa Floryda wariant D
Willa Floryda wariant D
471,45 m²

14 680 zł

18 350 zł

Tooltip

Cena regularna

14 360 zł najniższa cena
Tooltip

Najniższa cena z 30 dni
przed obniżką

PROMOCJA
Projekt domu Willa Floryda wariant E
Willa Floryda wariant E
379,56 m²

14 072 zł

17 590 zł

Tooltip

Cena regularna

13 752 zł najniższa cena
Tooltip

Najniższa cena z 30 dni
przed obniżką

PROMOCJA
Projekt domu Willa Floryda wariant F
Willa Floryda wariant F
437,11 m²

14 680 zł

18 350 zł

Tooltip

Cena regularna

14 360 zł najniższa cena
Tooltip

Najniższa cena z 30 dni
przed obniżką

PROMOCJA
Projekt domu Willa Floryda wariant G
Willa Floryda wariant G
480,65 m²

15 192 zł

18 990 zł

Tooltip

Cena regularna

14 872 zł najniższa cena
Tooltip

Najniższa cena z 30 dni
przed obniżką

Podobne projekty (9)

Zobacz wszystkie
NIŻSZA CENA
Zdjęcie 1 projektu Dom z widokiem B WAH1863
Dom z widokiem B
Dodano!
Dodano!
282,08 m²
5
3
2

7 920 zł

9 900 zł

Tooltip

Cena regularna

7 640 zł najniższa cena
Tooltip

Najniższa cena z 30 dni
przed obniżką

NIŻSZA CENA
Zdjęcie 1 projektu Dom z widokiem E WAH1861
Dom z widokiem E
Dodano!
Dodano!
346,61 m²
5
4
2

8 160 zł

10 200 zł

Tooltip

Cena regularna

7 880 zł najniższa cena
Tooltip

Najniższa cena z 30 dni
przed obniżką

NIŻSZA CENA
Zdjęcie 1 projektu Spokojny zakątek WAH1687
Spokojny zakątek
Dodano!
Dodano!
264,77 m²
6
3
2

7 952 zł

9 940 zł

Tooltip

Cena regularna

7 672 zł najniższa cena
Tooltip

Najniższa cena z 30 dni
przed obniżką

NIŻSZA CENA
Zdjęcie 1 projektu Willa komfortowa WAH1884
Willa komfortowa
Dodano!
Dodano!
324,67 m²
6
4
2

8 632 zł

10 790 zł

Tooltip

Cena regularna

8 312 zł najniższa cena
Tooltip

Najniższa cena z 30 dni
przed obniżką

NIŻSZA CENA
Zdjęcie 1 projektu Dom z widokiem 4 WAH1680
Dom z widokiem 4
Dodano!
Dodano!
285,31 m²
4
3
2

8 160 zł

10 200 zł

Tooltip

Cena regularna

7 880 zł najniższa cena
Tooltip

Najniższa cena z 30 dni
przed obniżką

NIŻSZA CENA
Zdjęcie 1 projektu Spokojny zakątek wariant B WAH1833
Spokojny zakątek wariant B
Dodano!
Dodano!
271,72 m²
4
3
2

7 712 zł

9 640 zł

Tooltip

Cena regularna

7 432 zł najniższa cena
Tooltip

Najniższa cena z 30 dni
przed obniżką

NIŻSZA CENA
Zdjęcie 1 projektu Spokojny zakątek wariant C WAH1730
Spokojny zakątek wariant C
Dodano!
Dodano!
264,90 m²
4
3
2

7 712 zł

9 640 zł

Tooltip

Cena regularna

7 432 zł najniższa cena
Tooltip

Najniższa cena z 30 dni
przed obniżką

NIŻSZA CENA
Zdjęcie 1 projektu uA185 WCB1255
uA185
Dodano!
Dodano!
340,50 m²
5
6
2

11 077 zł

11 660 zł

Tooltip

Cena regularna

11 077 zł najniższa cena
Tooltip

Najniższa cena z 30 dni
przed obniżką

Metody i koszt budowy

Ten dom możesz budować metodą gospodarczą, systemem zleconym lub skorzystać z naszej oferty Projekt z Budową. Przy porównaniu weź pod uwagę nie tylko koszt, ale też różny zakres prac i standard wykonania.

Metoda gospodarcza

Najtańsza metoda - większość prac
budowlanych wykonuje inwestor

Stan surowy zamknięty (SSZ)

834 000 zł netto

Szacunkowy koszt materiałów na IV kwartał 2025
  • Prace ziemne i fundamenty

    116 000 zł
  • Konstrukcja, strop oraz dach

    579 000 zł
  • Stolarka okienna i drzwiowa

    139 000 zł
  • Instalacje

    nie obejmuje
  • Prace wykończeniowe

    nie obejmuje
  • Możesz budować etapami, pamiętając jednak o zmianie kosztów w czasie
  • Możesz rozpocząć budowę z częścią niezbędnych środków
  • Sam ustalasz harmonogram, koordynujesz budowę i zapewniasz materiały
Czy da się obniżyć koszty budowy?
Zobacz nasz film jak obniżyć koszt budowy

Projekt z Budową

Najszybsza i najwygodniejsza metoda -
całą budowę domu realizuje jedna firma

Stan deweloperski
Gwarancja stałego kosztu budowy

Gwarancja stałego
kosztu budowy

  • Prace ziemne i fundamenty
  • Konstrukcja, strop oraz dach
  • Stolarka okienna i drzwiowa
  • Instalacje  
    Tooltip

    Obejmuje wykonanie instalacji:

    • wodno-kanalizacyjnej
    • centralnego ogrzewania
    • gazowej
    • elektrycznej
  • Prace wykończeniowe  
    Tooltip

    Prace wykończeniowe obejmują:

    • sufity i ściany wewnętrzne
    • tynki i okładziny ścian wewnętrznych
    • wylewki i posadzkę
    • ocieplenie ścian zewnętrznych i elewację

Budowa
nawet w
6mies.

  • Kompleksowa umowa i znany z góry koszt budowy
  • Logistyka, organizacja budowy i zakupy po stronie firmy budowlanej
  • Formalności i dokumentacje po stronie firmy budowlanej
  • Różne technologie budowy dopasowane do projektu i budżetu
Szczegóły i dostępne technologie
icon

Darmowe

Zestawienie materiałów budowlanych

icon

Polecamy

Kosztorys

Zawiera zestawienie wszystkich potrzebnych materiałów wraz z ich cenami, uwzględnia koszty sprzętu i transportu. Z kosztorysem:

  • poznasz całkowite koszty budowy
  • zaplanujesz prace na budowie
  • łatwiej ocenisz konkurencyjność ofert podwykonawców
  • otrzymasz dokument wymagany w procesie kredytowym

Elewacje

Frontowa
Tylna
Lewa
Prawa

Usytuowanie na działce

Czy ten projekt pasuje na
Twoją działkę?

Chętnie to sprawdzimy!

Czy ten projekt pasuje na
Twoją działkę?

Chętnie to sprawdzimy!

Dowiedz się:

  • czy zmieści się na niej wybrany przez Ciebie dom
  • jakie parametry musi spełniać dom według miejscowego planu zagospodarowania lub warunków zabudowy (np. kąt nachylenia i typ dachu, liczba kondygnacji itp.
  • jakie inne projekty pasują na Twoją działkę – znajdziemy je dla Ciebie!
Autor: MG Projekt

Dane techniczne projektu

Powierzchnie i wymiary Powierzchnie i wymiary

Powierzchnia użytkowa
Tooltip
Suma powierzchni wszystkich pomieszczeń mieszkalnych, pomniejszona o pow. garażu, kotłowni, strychu, piwnicy. Jest liczona w 100% dla pomieszczeń o wysokości powyżej 2,2 m, w 50% dla pomieszczeń o wys. 2,2-1,4 m i niewliczana dla niższych niż 1,4 m.

327,82 m²

Powierzchnia zabudowy
Tooltip
Powierzchnia zajmowana przez część na- oraz nadziemną budynku liczona, jako rzut pionowy budynku na działkę.

292,37 m²

Powierzchnia całkowita
Tooltip
Całkowita powierzchnia wszystkich kondygnacji budynku łącznie z elementami nośnymi, takimi jak ściany zewnętrzne (z ociepleniem), słupy, tarasy, itp.

464,88 m²

Kubatura brutto
Tooltip
Zazwyczaj jest to suma kubatur (objętości) wszystkich pomieszczeń budynku, liczonych po zewnętrznym obrysie murów (z ociepleniem).

1 703 m³

Powierzchnia dachu

162,16 m²

Kąt nachylenia dachu
Tooltip
Nachylenie połaci dachu głównego podawane w stopniach. Uwaga! W niektórych projektach występuje więcej niż jedno nachylenie dachu.

35°

Wysokość budynku
Tooltip
Wysokość liczona od części budynku położonej najniżej przy powierzchni terenu do najwyższego punktu dachu (kalenicy) z wyłączeniem kominów.

10,12 m

Szerokość elewacji

21,50 m

Długość elewacji

17,05 m

Min. szerokość działki
Tooltip
Najmniejsza możliwa szerokość działki niezbędna do wybudowania wybranego domu. Składa się z szerokości elewacji domu powiększonej z obu stron o 3 m dla ściany bez otworów drzwiowych/okiennych lub 4 m, dla ściany z otworami.

29,50 m

Min. długość działki
Tooltip
Najmniejsza możliwa długość działki niezbędna do wybudowania wybranego domu. Składa się z długości elewacji domu powiększonej z obu stron o 3 m dla ściany bez otworów drzwiowych/okiennych lub 4 m, dla ściany z otworami.

25,05 m

Energooszczędność Energooszczędność

Oze Czym jest OZE (Odnawialne Źródło Energii)?
Ep
Tooltip
Energia pierwotna określa ilość energii nieodnawialnej potrzebnej w ciągu roku do ogrzewania czy też ogrzania wody użytkowej z uwzględnieniem kosztów produkcji i transportu surowców energetycznych.

57,10 kWh/(m²rok)

Ek
Tooltip
Energia końcowa określa zapotrzebowanie budynku na energię niezbędną do uzyskania założonych parametrów, jak np. temperatura wewnątrz budynku.

19 kWh/(m²rok)

Euco
Tooltip
Energia użytkowa potrzebna do ogrzewania i wentylacji. Im parametr jest niższy tym budynek bardziej energooszczędny.

17,60 kWh/(m²rok)

Ogrzewanie główne

Pompa ciepła (OZE) - szczegóły

Dodatkowo istnieje możliwość zamówienia projektu z

Aneks na paliwo stałe

Gruntowa pompa ciepła

Interesuje Cię inne źródło ogrzewania? Wyślij zapytanie lub zadzwoń do doradcy

Wentylacja

Mechaniczna nawiewno-wywiewna z rekuperacją - szczegóły

Warunki techniczne

Projekt zgody z WT 2021

Technologia i konstrukcja Technologia i konstrukcja

Konstrukcja

Murowana

PROJEKT Z BUDOWĄ Istnieje możliwość zaadaptowania tego projektu do technologii prefabrykowanej/modułowej i budowy nawet w 6 miesięcy ze stałym kosztem budowy

Dowiedz się więcej »
Opis szczegółowy

Fundamenty: płyta. Ściany zewnętrzne: ściany murowane - pustaki porotherm 25 + styropian. Strop: monolityczny żelbetowy nad parterem i piętrem. Elewacje: tynk cienkowarstwowy i beton architektoniczny. Pokrycie dachu: blacha na rąbek. Nachylenie dachu: 35 stopni + płaski dach.

Strop

Żelbetowy

Reklama
Okna i drzwi tarasowe

Nowoczesne okna PVC i aluminiowe WIŚNIOWSKI – doskonała izolacja, elegancki design i niezrównana trwałość.

Wiśniowski
Sprawdź parametry!
Okna dachowe

Oferujemy bezpłatne konsultacje w zakresie wszystkich rozwiązań VELUX. Wyceny, porady dotyczące doboru okien i rolet zewnętrznych - sprawdź!

Velux
Sprawdź szczegóły
Płytki ceramiczne i gresy

Od małych formatów po wielkoformatowe gresy. Marmur, beton, drewno, kamień, lastryko czy cegiełki zamówisz wygodnie online z szybką dostawą.

Ceramzet
Sprawdź ofertę
Drzwi

Ciepłe drzwi WIŚNIOWSKI z kontrolą dostępu. Szeroka gama wzorów i kolorów.

Wiśniowski
Wybierz najlepsze
Bramy garażowe

Automatyczne bramy garażowe segmentowe i uchylne WIŚNIOWSKI na wymiar i z systemem smart home w standardzie.

Wiśniowski
Sprawdź ofertę!
Armatura i ceramika łazienkowa

Topowi producenci. Baterie łazienkowe, zestawy natynkowe i podtynkowe, umywalki, wanny, miski WC oraz kabiny zamówisz kompleksowo online.

Ceramzet II
Dowiedz się więcej
Rekuperacja

Alnor - kompletny system rekuperacji. Dobierz idealne rozwiązanie dla Twojego domu!

Alnor
Dobierz rekuperator
Dach

Producent stalowych pokryć dachowych i systemów elewacyjnych. Precyzja wykonania, trwałość na lata i szybki montaż doceniany przez dekarzy. Postaw na solidny dach Budmat.

Budmat
Sprawdź ofertę
Ogrodzenie

Nowoczesne stalowe ogrodzenia Budmat - estetyka, bezpieczeństwo i trwałość na lata. Systemowe rozwiązania na wymiar, dopasowane do każdego domu.

Budmat
Sprawdź ofertę

Gotowe domy modułowe (122)

Zobacz wszystkie
Stan deweloperski nawet w 6 miesięcy Gwarancja stałej ceny
Zdjęcie 1 projektu Dom prefabrykowany P.11 bliźniak HPK1016
Pow. użytkowa
245,76 m²
Pokoje
3
1 362 600 zł 5 544 zł/m²
Zdjęcie 1 projektu Dom prefabrykowany P.12 z okapem HPK1021
Pow. użytkowa
190,98 m²
Pokoje
5
887 600 zł 4 648 zł/m²
Zdjęcie 1 projektu Dom prefabrykowany P.12 bez okapu HPK1020
Pow. użytkowa
190,98 m²
Pokoje
5
858 100 zł 4 493 zł/m²
Zdjęcie 1 projektu Dom prefabrykowany Stodoła 180C HFX1029
Pow. użytkowa
186,60 m²
Pokoje
5
659 000 zł 3 532 zł/m²
Zdjęcie 1 projektu Dom prefabrykowany Stodoła 180A HFX1027
Pow. użytkowa
186,60 m²
Pokoje
5
659 000 zł 3 532 zł/m²
Zdjęcie 1 projektu Dom prefabrykowany Stodoła 180B HFX1028
Pow. użytkowa
185,90 m²
Pokoje
5
659 000 zł 3 545 zł/m²
Zdjęcie 1 projektu Dom prefabrykowany P.6 HPK1005
Pow. użytkowa
176,69 m²
Pokoje
4
916 600 zł 5 188 zł/m²
Zdjęcie 1 projektu Dom szkieletowy Viking Smart 220 HHT1032
Pow. użytkowa
163,86 m²
Pokoje
4
1 095 606 zł 6 686 zł/m²

Dodatki do projektu

Dodatki możesz zamówić w koszyku lub telefonicznie u naszego Doradcy.

Czym jest OZE (Odnawialne Źródło Energii)?

Ikona

Bestseller

Kosztorys

600 zł

Ikona

Bestseller

Dodatkowy egzemplarz projektu

650 zł

Ikona

Bestseller

Elektroniczna wersja projektu

600 zł

Ikona

Ogrzewanie podłogowe

550 zł

Ikona

Oze

Aneks na paliwo stałe

750 zł

Ikona

Oze

Gruntowa pompa ciepła

750 zł

Pokaż więcej (7)

Opis projektu domu
Willa Floryda 4

Projekt domu Willa Floryda 4 jest kolejną propozycją domu z serii Willa Floryda - cieszących się dużym zainteresowaniem Klientów. Projekt Willa Floryda 4 został oparty o język detali i formę podobną do pozostałych "Floryd", ale z własnym przemyślanym programem funkcjonalnym i założeniami. Najważniejszym jest przeznaczenie domu na działkę z wjazdem od południa, lub o wschodu. Zarówno strefa wjazdowa i wejściowa do budynku, jak i część ogrodowa znajdują się w zasadzie po tej samej stronie. Ogród jest przed oraz z boku domu. Dzięki sensownie zaplanowanym wnętrzom wszystkie pokoje są umieszczone od słonecznej strony. Budynek Willa Floryda 4 zaprojektowano jako nowoczesną piętrową willę, z dużymi oknami, elewacjami podzielonymi poziomymi pasami, wykończonymi okładzinami z betonu architektonicznego, tynku i drewna. Projekt domu Willa Floryda 4 składa się z zasadniczej dwukondygnacyjnej bryły, przykrytej łagodnym dachem krytym blachę na rąbek, oraz dobudowanej do niej bryły garażu. Wejście do domu podkreślone jest podcieniem, oraz wykuszem z płaskim daszkiem wystającym z elewacji nad wejściem, na piętrze. Wnętrze domu Willa Floryda 4 podzielono na części: na parterze część dzienną i gospodarczo - garażową, oraz na piętrze - część sypialną. Część dzienna składa się z salonu, jadalni, holu i częściowo zamkniętej kuchni, która jest centrum domu - w niej spotykają się wszyscy domownicy. Salon zdobią piękne przeszklenia na taras z pergolą i ogród, oraz trójstronny kominek. Ozdobą wnętrza jest pustka w holu i wspornikowe schody widoczne od razu po przekroczeniu drzwi wejściowych. Część gospodarczą tworzą pomieszczenia garażu, kotłowni, pralni, spiżarni, oraz szatni przy wejściu. Na parterze zaprojektowano też dodatkowy pokój (sypialnia gościnna lub gabinet), wc z natryskiem, oraz piwniczkę na wino. Na piętrze domu mamy piękny apartament rodziców, z wielką garderobą, pokojem kąpielowym z sauną, oraz tarasem z sypialni. Pozostała przestrzeń to dwa apartamenty dzieci, z łazienkami i garderobami i dostępem do tarasu, oraz pokój rekreacyjny. Nad piętrem znajduje się jeszcze spory strych. Budynek Willa Floryda 4 ma dość prostą konstrukcję - mimo sporej powierzchni nie powinien być trudny ani bardzo drogi w budowie. Dzięki energooszczędnym rozwiązaniom będzie też niedrogi w eksploatacji.
Czytaj więcej

Polecani producenci

Kompletne systemy rekuperacji

tło producenta

Alnor

Dowiedz się więcej

Prefabrykowane konstrukcje dachowe

tło producenta

WIĄZAR POLSKA

Zobacz więcej

Sprawdź nową generację okien GREENVIEW

tło producenta

FAKRO

Sprawdź nową generację okien GREENVIEW

Styropian, tynki, farby, kleje

tło producenta

Termo Organika

Poznaj super jakość

Okna, drzwi, osłony przeciwsłoneczne

tło producenta

Aluprof

Sprawdź ofertę
Zobacz więcej

Społeczność projektu domu
Willa Floryda 4 w budowie

Dołącz do społeczności osób, które budują ten dom lub są zainteresowane jego budową.

  • Oglądaj zdjęcia z budowy
  • Zadawaj pytania
  • Wymieniaj się doświadczeniami

Opinie o projekcie domu Willa Floryda 4

Ocena

Ten projekt nie ma jeszcze opinii, bądź pierwszy!

Dodaj opinię

ASYSTENT WYBORU PROJEKTU

Szukasz idealnego projektu? Znajdziemy go dla Ciebie!

Doradca na podstawie Twoich wskazówek przygotuje spersonalizowaną listę projektów

Graficzne opracowanie rzutów poglądowych widocznych na karcie projektu zostało wykonane przez Extradom.pl. Prezentowane przez Extradom.pl wizualizacje wykonane zostały przez autora projektu i należy poczytywać je jedynie za przykład i propozycję wykończenia, wizję architektoniczną autora projektu. Ostateczne wykończenie budynku może nastąpić na wiele sposobów. Szczegółowe rozwiązania zastosowane w oferowanej dokumentacji - w tym również ilość, lokalizacje i wygląd okien, drzwi, kominów - mogą w niewielkim stopniu różnić się od prezentowanej wizualizacji budynku.

Extradom.pl Spółka z ograniczoną odpowiedzialnością z siedzibą przy ul. Jaworskiej 13, 53-612 Wrocław, wpisana do rejestru przedsiębiorców Krajowego Rejestru Sądowego przez Sąd Rejonowy dla Wrocławia-Fabrycznej we Wrocławiu, VI Wydział Gospodarczy Krajowego Rejestru Sądowego do pod numerem KRS 0000648746, numer NIP 895-17-18-333, o kapitale zakładowym 708 150,00 zł uprzejmie informuje, iż poprzez serwis Extradom.pl umożliwia m.in. zapoznanie się przez konsumentów z ofertą handlową Partnerów Extradom.pl, którzy stosują metody budowy domów przy wykorzystaniu różnego rodzaju technologie prefabrykacji bądź modułowe (tzw. „Gotowe domy”).

Extradom.pl nie prowadzi jednakże sprzedaży ani nie oferuje usług polegających na doradztwie finansowym, prawnym ani podatkowym w zakresie inwestycji realizowanych w technologiach tzw. „Gotowych domów”. Informacje prezentowane w serwisie Extradom.pl dotyczące Partnerów Extradom.pl oferujących realizację inwestycji w technologiach „Gotowych domów” lub podobnych mają charakter informacyjny i reklamowy.

Prezentowane w serwisie Extradom.pl informacje dotyczące stosowanych przez Partnerów metod budowy domów w technologii prefabrykacji bądź modułowej pochodzą od Partnerów Extradom.pl.

Extradom.pl sp. z o.o. jedynie umożliwia nawiązanie kontaktu przez Użytkownika z Partnerem Extradom.pl stosującym tego rodzaju technologie budowy domów i nie jest stroną umowy o roboty budowlane zawieranej przez Użytkownika Extradom.pl z Partnerem Extradom.pl.

REKLAMA
Zamknij