👉 Wiosenne rabaty + karta allegro 200 zł! 🔥

Koniec oferty za:

0dni

00godz.

00min.

00sek.

Sprawdź

Projekt domu Tytan 3 wariant C WAH2005

Zapisz Dodano!
Porównaj Dodano!
ikona Pobierz i drukuj
Dodaj opinię

Warstwy

Wymiary wewnętrzne

Powierzchnie pomieszczeń

Numery pomieszczeń

Meble

Kolory pomieszczeń

Warstwy

Wymiary wewnętrzne

Powierzchnie pomieszczeń

Numery pomieszczeń

Meble

Kolory pomieszczeń

Rzut parteru

Powierzchnia (m²)
Tooltip
Powierzchnia pomieszczenia
to ta, z której faktycznie możesz korzystać – skosy i niskie części poddasza są liczone częściowo lub wcale.
  1. 100% dla wysokości powyżej 2,2 m,
  2. 50% dla wysokości 1,4–2,2 m,
  3. nie liczymy poniżej 1,4 m.

Powierzchnia podłogi
Liczymy po obrysie pomieszczenia, bez względu na jego wysokość/skosy. Jeśli nie ma skosów to powierzchnia podłogi i pomieszczenia jest taka sama.
pomieszczenia i podłogi
podłogi
1. Wiatrołap
3,68
2. Hall
15,04
3. Pokój dzienny
39,59
4. Kuchnia
9,40
5. Spiżarnia
1,09
6. Łazienka
2,77
7. Pokój
8,16
8. Kotłownia
5,09
9. Garaż dwustanowiskowy
33,83
Razem
118,65
118,65
Powierzchnia (m²)
Tooltip
Powierzchnia pomieszczenia
to ta, z której faktycznie możesz korzystać – skosy i niskie części poddasza są liczone częściowo lub wcale.
  1. 100% dla wysokości powyżej 2,2 m,
  2. 50% dla wysokości 1,4–2,2 m,
  3. nie liczymy poniżej 1,4 m.

Powierzchnia podłogi
Liczymy po obrysie pomieszczenia, bez względu na jego wysokość/skosy. Jeśli nie ma skosów to powierzchnia podłogi i pomieszczenia jest taka sama.
pomieszczenia i podłogi
podłogi
1. Hall
6,14
2. Łazienka
6,14
3. Garderoba
10,37
4. Łazienka
5,39
5. Pokój
19,77
6. Pokój
10,56
7. Pokój
14,80
8. Pokój
12,30
Razem
85,47
85,47

    Usytuowanie na działce

    Czy ten projekt pasuje na
    Twoją działkę?

    Chętnie to sprawdzimy!

    Dowiedz się:

    • czy zmieści się na niej wybrany przez Ciebie dom
    • jakie parametry musi spełniać dom według miejscowego planu zagospodarowania lub warunków zabudowy (np. kąt nachylenia i typ dachu, liczba kondygnacji itp.
    • jakie inne projekty pasują na Twoją działkę – znajdziemy je dla Ciebie!

Pow. użytkowa

165,20 m²

Pokoje

5

Łazienki i WC

5

Garaż

2

Min. szer. i dł. działki

20,64 x 19,60 m

Kąt dachu

25°

Szacunkowy koszt SSZ

410 000 zł
Szacunkowy koszt budowy do stanu surowego zamkniętego (SSZ) metodą gospodarczą - większość prac wykonuje inwestor.

Konstrukcja

Murowana
więcej
Zapisz Dodano!
Porównaj Dodano!
ikona Pobierz i drukuj

Tytan 3 wariant C - WAH2005

ikona 165,20 m²
Powierzchnia użytkowa
ikona5
Pokoje (bez salonu)
ikona 5
Łazienki (z toaletami)
ikona 2
Liczba stanowisk garażowych
(z wiatą garażową)
ikona
Konstrukcja: Murowana

Promocja

od 05.05.2026 do 07.05.2026

0dni

00 00 00

6 112 zł

7 640 zł - cena regularna
Tooltip

Cena regularna obowiązywała od 29.04.2026 do 04.05.2026

6 112 zł - najniższa cena z 30 dni przed obniżką

Projekt jest dostępny

Gwarancja najniższej ceny
ikona
Darmowa dostawa
Paczkomaty, kurier
ikona
100 dni na wymianę,
30 dni na zwrot
ikona Zyskaj najwięcej! Extradodatki GRATIS:

15% rabatu do LEROY MERLIN

10% rabatu w CASTORAMIE

16% rabatu w SELSEY

Pakiet Formalności 2026

Przydatne Extradodatki

Poradnik Dach Solarny

ikona Co zawiera projekt?
  • Projekt zgodny z WT2021
  • Bezpłatne pozwolenie na zmiany
  • Charakterystyka energetyczna
Konsultant
71 715 20 60

pon.-pt. 8-21, sob. 9-17

Szukasz wykonawcy godnego zaufania?
Zleć budowę w Extradom.pl!

  • Z góry znasz koszt budowy domu
  • Dom odbierasz zgodnie z ustalonym harmonogramem - nawet w 6 miesięcy
  • Zabezpiecza Cię jedna kompleksowa umowa z jednym wykonawcą
  • Otrzymujesz nawet 30-letnią gwarancję na konstrukcję domu
  • Oszczędzasz swój czas dzięki pewnej i kompletnej usłudze
  • Odbiór techniczny GRATIS - Gwarantujemy najwyższą jakość
Cena brutto stanu
deweloperskiego od
Tooltip
Cena brutto stanu deweloperskiego od 4 529 do 5 679 zł/m2.
Cena jest uzależniona m.in. od lokalizacji, wybranej technologii, kubatury budynku, skomplikowania projektu i ewentualnych zmian, na które zdecyduje się inwestor.
Cena za m2 powierzchni netto, czyli wszystkich pomieszczeń mierzonych na wysokości podłogi.
4 529 zł/m2
Dowiedz się więcej
Konsultant Masz pytania?
Zadzwoń
71 715 20 09

pon.-pt. 8-19

Parter - 118,65 m²

Warstwy

Wymiary wewnętrzne

Meble

Powierzchnie pomieszczeń

Kolory pomieszczeń

Numery pomieszczeń

Zapytaj, co możesz zmienić

Oznaczenia na rzutach

Lodówka

Suszarka

Zmywarka

Suszarka nad pralką

Kuchenka

Pralka

Piekarnik

Szafa

Kocioł

Pompa ciepła

Kominek

Rekuperacja

Szerokość stolarki
Wysokość stolarki

Legenda Zobacz oznaczenia użyte na rzutach

Powierzchnia (m²)
Tooltip
Powierzchnia pomieszczenia
to ta, z której faktycznie możesz korzystać – skosy i niskie części poddasza są liczone częściowo lub wcale.
  1. 100% dla wysokości powyżej 2,2 m,
  2. 50% dla wysokości 1,4–2,2 m,
  3. nie liczymy poniżej 1,4 m.

Powierzchnia podłogi
Liczymy po obrysie pomieszczenia, bez względu na jego wysokość/skosy. Jeśli nie ma skosów to powierzchnia podłogi i pomieszczenia jest taka sama.
pomieszczenia i podłogi
podłogi
1. Wiatrołap
3,68
2. Hall
15,04
3. Pokój dzienny
39,59
4. Kuchnia
9,40
5. Spiżarnia
1,09
6. Łazienka
2,77
7. Pokój
8,16
8. Kotłownia
5,09
9. Garaż dwustanowiskowy
33,83
Razem
118,65
118,65

Natychmiast, otrzymasz PDF-y
z rzutami wszystkich kondygnacji

Oznaczenia na rzutach

Lodówka

Suszarka

Zmywarka

Suszarka nad pralką

Kuchenka

Pralka

Piekarnik

Szafa

Kocioł

Pompa ciepła

Kominek

Rekuperacja

Szerokość stolarki
Wysokość stolarki

Legenda Zobacz oznaczenia użyte na rzutach

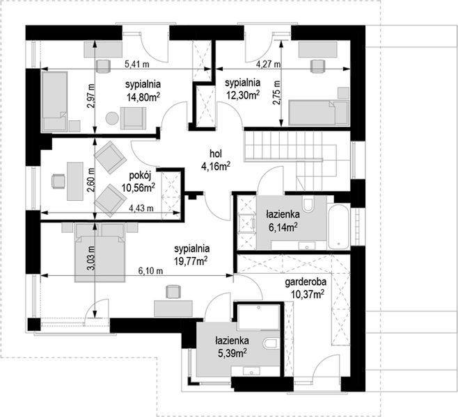
Piętro 1 - 85,47 m²

Warstwy

Wymiary wewnętrzne

Meble

Powierzchnie pomieszczeń

Kolory pomieszczeń

Numery pomieszczeń

Zapytaj, co możesz zmienić

Oznaczenia na rzutach

Lodówka

Suszarka

Zmywarka

Suszarka nad pralką

Kuchenka

Pralka

Piekarnik

Szafa

Kocioł

Pompa ciepła

Kominek

Rekuperacja

Szerokość stolarki
Wysokość stolarki

Legenda Zobacz oznaczenia użyte na rzutach

Powierzchnia (m²)
Tooltip
Powierzchnia pomieszczenia
to ta, z której faktycznie możesz korzystać – skosy i niskie części poddasza są liczone częściowo lub wcale.
  1. 100% dla wysokości powyżej 2,2 m,
  2. 50% dla wysokości 1,4–2,2 m,
  3. nie liczymy poniżej 1,4 m.

Powierzchnia podłogi
Liczymy po obrysie pomieszczenia, bez względu na jego wysokość/skosy. Jeśli nie ma skosów to powierzchnia podłogi i pomieszczenia jest taka sama.
pomieszczenia i podłogi
podłogi
1. Hall
6,14
2. Łazienka
6,14
3. Garderoba
10,37
4. Łazienka
5,39
5. Pokój
19,77
6. Pokój
10,56
7. Pokój
14,80
8. Pokój
12,30
Razem
85,47
85,47

Natychmiast, otrzymasz PDF-y
z rzutami wszystkich kondygnacji

Oznaczenia na rzutach

Lodówka

Suszarka

Zmywarka

Suszarka nad pralką

Kuchenka

Pralka

Piekarnik

Szafa

Kocioł

Pompa ciepła

Kominek

Rekuperacja

Szerokość stolarki
Wysokość stolarki

Legenda Zobacz oznaczenia użyte na rzutach

Zamów rysunki szczegółowe

Zapoznaj się ze szczegółowymi rysunkami rzutów kondygnacji w PDF dla tego projektu.

Warianty projektu (13)

PROMOCJA
Projekt domu Tytan
Tytan
Dodano!
Dodano!
134,26 m²
4
3
1

5 952 zł

7 440 zł

Tooltip

Cena regularna

5 952 zł najniższa cena
Tooltip

Najniższa cena z 30 dni
przed obniżką

PROMOCJA
Projekt domu Tytan 4
Tytan 4
Dodano!
Dodano!
134,26 m²
4
3
2

6 032 zł

7 540 zł

Tooltip

Cena regularna

6 032 zł najniższa cena
Tooltip

Najniższa cena z 30 dni
przed obniżką

PROMOCJA
Projekt domu Tytan 3
Tytan 3
Dodano!
Dodano!
149,61 m²
5
3
2

6 032 zł

7 540 zł

Tooltip

Cena regularna

6 032 zł najniższa cena
Tooltip

Najniższa cena z 30 dni
przed obniżką

PROMOCJA
Projekt domu Tytan 2
Tytan 2
Dodano!
Dodano!
172,21 m²
5
3
0

6 032 zł

7 540 zł

Tooltip

Cena regularna

6 032 zł najniższa cena
Tooltip

Najniższa cena z 30 dni
przed obniżką

PROMOCJA
Projekt domu Tytan 6
Tytan 6
Dodano!
Dodano!
165,27 m²
5
3
2

6 192 zł

7 740 zł

Tooltip

Cena regularna

6 192 zł najniższa cena
Tooltip

Najniższa cena z 30 dni
przed obniżką

PROMOCJA
Projekt domu Tytan 6 B
Tytan 6 B
Dodano!
Dodano!
151,43 m²
4
3
1

6 032 zł

7 540 zł

Tooltip

Cena regularna

6 032 zł najniższa cena
Tooltip

Najniższa cena z 30 dni
przed obniżką

PROMOCJA
Projekt domu Tytan wariant B
Tytan wariant B
Dodano!
Dodano!
134,26 m²
4
3
1

5 952 zł

7 440 zł

Tooltip

Cena regularna

5 952 zł najniższa cena
Tooltip

Najniższa cena z 30 dni
przed obniżką

PROMOCJA
Projekt domu Tytan 5
Tytan 5
Dodano!
Dodano!
165,27 m²
5
3
2

6 192 zł

7 740 zł

Tooltip

Cena regularna

6 192 zł najniższa cena
Tooltip

Najniższa cena z 30 dni
przed obniżką

PROMOCJA
Projekt domu Tytan 5 B
Tytan 5 B
Dodano!
Dodano!
151,43 m²
4
3
1

6 032 zł

7 540 zł

Tooltip

Cena regularna

6 032 zł najniższa cena
Tooltip

Najniższa cena z 30 dni
przed obniżką

PROMOCJA
Projekt domu Tytan 2 B
Tytan 2 B
Dodano!
Dodano!
172,21 m²
5
3
0

6 032 zł

7 540 zł

Tooltip

Cena regularna

6 032 zł najniższa cena
Tooltip

Najniższa cena z 30 dni
przed obniżką

PROMOCJA
Projekt domu Tytan 2 wariant C
Tytan 2 wariant C
172,21 m²

6 032 zł

7 540 zł

Tooltip

Cena regularna

6 032 zł najniższa cena
Tooltip

Najniższa cena z 30 dni
przed obniżką

PROMOCJA
Projekt domu Tytan 3 wariant B
Tytan 3 wariant B
149,61 m²

6 032 zł

7 540 zł

Tooltip

Cena regularna

6 032 zł najniższa cena
Tooltip

Najniższa cena z 30 dni
przed obniżką

PROMOCJA
Projekt domu Tytan wariant E
Tytan wariant E
149,78 m²

5 952 zł

7 440 zł

Tooltip

Cena regularna

5 952 zł najniższa cena
Tooltip

Najniższa cena z 30 dni
przed obniżką

Podobne projekty (64)

Zobacz wszystkie
Nowość
Zdjęcie 1 projektu APS 266 + 2G ECO LUA1700
APS 266 + 2G ECO
Dodano!
Dodano!
146,40 m²
5
2
2

5 899 zł

NIŻSZA CENA 🔥
Zdjęcie 1 projektu Magnat 3 WAH1876
Magnat 3
Dodano!
Dodano!
147,75 m²
5
3
1

5 832 zł

7 290 zł

Tooltip

Cena regularna

5 832 zł najniższa cena
Tooltip

Najniższa cena z 30 dni
przed obniżką

NIŻSZA CENA 🔥
Zdjęcie 1 projektu Modny D36 WWB1034
Modny D36
Dodano!
Dodano!
143,63 m²
4
2
1

5 249 zł

5 549 zł

Tooltip

Cena regularna

5 249 zł najniższa cena
Tooltip

Najniższa cena z 30 dni
przed obniżką

NIŻSZA CENA 🔥
Zdjęcie 1 projektu Willa diamentowa wariant D WAH1976
Willa diamentowa wariant D
Dodano!
Dodano!
156,01 m²
4
3
2

6 192 zł

7 740 zł

Tooltip

Cena regularna

6 192 zł najniższa cena
Tooltip

Najniższa cena z 30 dni
przed obniżką

NIŻSZA CENA 🔥
Zdjęcie 1 projektu Willa diamentowa wariant B WAH1960
Willa diamentowa wariant B
Dodano!
Dodano!
142,15 m²
5
2
2

6 112 zł

7 640 zł

Tooltip

Cena regularna

6 112 zł najniższa cena
Tooltip

Najniższa cena z 30 dni
przed obniżką

NIŻSZA CENA 🔥
Zdjęcie 1 projektu Willa diamentowa WAH1868
Willa diamentowa
Dodano!
Dodano!
134,49 m²
4
2
2

6 032 zł

7 540 zł

Tooltip

Cena regularna

6 032 zł najniższa cena
Tooltip

Najniższa cena z 30 dni
przed obniżką

NIŻSZA CENA 🔥
Zdjęcie 1 projektu Magnat 4 WAH1877
Magnat 4
Dodano!
Dodano!
147,75 m²
5
3
2

6 032 zł

7 540 zł

Tooltip

Cena regularna

6 032 zł najniższa cena
Tooltip

Najniższa cena z 30 dni
przed obniżką

NIŻSZA CENA 🔥
Zdjęcie 1 projektu APS 266 LUA1363
APS 266
Dodano!
Dodano!
146,20 m²
5
2
1

4 549 zł

5 099 zł

Tooltip

Cena regularna

4 349 zł najniższa cena
Tooltip

Najniższa cena z 30 dni
przed obniżką

Metody i koszt budowy

Ten dom możesz budować metodą gospodarczą, systemem zleconym lub skorzystać z naszej oferty Projekt z Budową. Przy porównaniu weź pod uwagę nie tylko koszt, ale też różny zakres prac i standard wykonania.

Metoda gospodarcza

Najtańsza metoda - większość prac
budowlanych wykonuje inwestor

Stan surowy zamknięty (SSZ)

410 000 zł netto

Szacunkowy koszt materiałów na I kwartał 2026
  • Prace ziemne i fundamenty

    60 000 zł
  • Konstrukcja, strop oraz dach

    290 000 zł
  • Stolarka okienna i drzwiowa

    60 000 zł
  • Instalacje

    nie obejmuje
  • Prace wykończeniowe

    nie obejmuje
  • Możesz budować etapami, pamiętając jednak o zmianie kosztów w czasie
  • Możesz rozpocząć budowę z częścią niezbędnych środków
  • Sam ustalasz harmonogram, koordynujesz budowę i zapewniasz materiały
Czy da się obniżyć koszty budowy?
Zobacz nasz film jak obniżyć koszt budowy

Projekt z Budową

Najszybsza i najwygodniejsza metoda -
całą budowę domu realizuje jedna firma

Stan deweloperski
Gwarancja stałego kosztu budowy

Gwarancja stałego
kosztu budowy

  • Prace ziemne i fundamenty
  • Konstrukcja, strop oraz dach
  • Stolarka okienna i drzwiowa
  • Instalacje  
    Tooltip

    Obejmuje wykonanie instalacji:

    • wodno-kanalizacyjnej
    • centralnego ogrzewania
    • gazowej
    • elektrycznej
  • Prace wykończeniowe  
    Tooltip

    Prace wykończeniowe obejmują:

    • sufity i ściany wewnętrzne
    • tynki i okładziny ścian wewnętrznych
    • wylewki i posadzkę
    • ocieplenie ścian zewnętrznych i elewację

Budowa
nawet w
6mies.

  • Kompleksowa umowa i znany z góry koszt budowy
  • Logistyka, organizacja budowy i zakupy po stronie firmy budowlanej
  • Formalności i dokumentacje po stronie firmy budowlanej
  • Różne technologie budowy dopasowane do projektu i budżetu
Szczegóły i dostępne technologie
icon

Darmowe

Zestawienie materiałów budowlanych

icon

Polecamy

Kosztorys

Zawiera zestawienie wszystkich potrzebnych materiałów wraz z ich cenami, uwzględnia koszty sprzętu i transportu. Z kosztorysem:

  • poznasz całkowite koszty budowy
  • zaplanujesz prace na budowie
  • łatwiej ocenisz konkurencyjność ofert podwykonawców
  • otrzymasz dokument wymagany w procesie kredytowym

Elewacje

Frontowa
Tylna
Lewa
Prawa

Usytuowanie na działce

Czy ten projekt pasuje na
Twoją działkę?

Chętnie to sprawdzimy!

Czy ten projekt pasuje na
Twoją działkę?

Chętnie to sprawdzimy!

Dowiedz się:

  • czy zmieści się na niej wybrany przez Ciebie dom
  • jakie parametry musi spełniać dom według miejscowego planu zagospodarowania lub warunków zabudowy (np. kąt nachylenia i typ dachu, liczba kondygnacji itp.
  • jakie inne projekty pasują na Twoją działkę – znajdziemy je dla Ciebie!
Autor: MG Projekt

Dane techniczne projektu

Powierzchnie i wymiary Powierzchnie i wymiary

Powierzchnia użytkowa
Tooltip
Suma powierzchni wszystkich pomieszczeń mieszkalnych, pomniejszona o pow. garażu, kotłowni, strychu, piwnicy. Jest liczona w 100% dla pomieszczeń o wysokości powyżej 2,2 m, w 50% dla pomieszczeń o wys. 2,2-1,4 m i niewliczana dla niższych niż 1,4 m.

165,20 m²

Powierzchnia zabudowy
Tooltip
Powierzchnia zajmowana przez część na- oraz nadziemną budynku liczona, jako rzut pionowy budynku na działkę.

149,05 m²

Powierzchnia całkowita
Tooltip
Całkowita powierzchnia wszystkich kondygnacji budynku łącznie z elementami nośnymi, takimi jak ściany zewnętrzne (z ociepleniem), słupy, tarasy, itp.

256,49 m²

Kubatura brutto
Tooltip
Zazwyczaj jest to suma kubatur (objętości) wszystkich pomieszczeń budynku, liczonych po zewnętrznym obrysie murów (z ociepleniem).

980 m³

Powierzchnia dachu

164,14 m²

Kąt nachylenia dachu
Tooltip
Nachylenie połaci dachu głównego podawane w stopniach. Uwaga! W niektórych projektach występuje więcej niż jedno nachylenie dachu.

25°

Wysokość budynku
Tooltip
Wysokość liczona od części budynku położonej najniżej przy powierzchni terenu do najwyższego punktu dachu (kalenicy) z wyłączeniem kominów.

8,62 m

Szerokość elewacji

13,64 m

Długość elewacji

11,60 m

Min. szerokość działki
Tooltip
Najmniejsza możliwa szerokość działki niezbędna do wybudowania wybranego domu. Składa się z szerokości elewacji domu powiększonej z obu stron o 3 m dla ściany bez otworów drzwiowych/okiennych lub 4 m, dla ściany z otworami.

20,64 m

Min. długość działki
Tooltip
Najmniejsza możliwa długość działki niezbędna do wybudowania wybranego domu. Składa się z długości elewacji domu powiększonej z obu stron o 3 m dla ściany bez otworów drzwiowych/okiennych lub 4 m, dla ściany z otworami.

19,60 m

Energooszczędność Energooszczędność

Oze Czym jest OZE (Odnawialne Źródło Energii)?
Ep
Tooltip
Energia pierwotna określa ilość energii nieodnawialnej potrzebnej w ciągu roku do ogrzewania czy też ogrzania wody użytkowej z uwzględnieniem kosztów produkcji i transportu surowców energetycznych.

66 kWh/(m²rok)

Ek
Tooltip
Energia końcowa określa zapotrzebowanie budynku na energię niezbędną do uzyskania założonych parametrów, jak np. temperatura wewnątrz budynku.

59,90 kWh/(m²rok)

Euco
Tooltip
Energia użytkowa potrzebna do ogrzewania i wentylacji. Im parametr jest niższy tym budynek bardziej energooszczędny.

29,50 kWh/(m²rok)

Ogrzewanie główne

Gazowe - szczegóły

Dodatkowo istnieje możliwość zamówienia projektu z

Aneks na paliwo stałe

Gruntowa pompa ciepła

Powietrzna pompa ciepła

Interesuje Cię inne źródło ogrzewania? Wyślij zapytanie lub zadzwoń do doradcy

Wentylacja

Mechaniczna nawiewno-wywiewna z rekuperacją - szczegóły

Warunki techniczne

Projekt zgody z WT 2021

Technologia i konstrukcja Technologia i konstrukcja

Konstrukcja

Murowana

PROJEKT Z BUDOWĄ Istnieje możliwość zaadaptowania tego projektu do technologii prefabrykowanej/modułowej i budowy nawet w 6 miesięcy ze stałym kosztem budowy

Dowiedz się więcej »
Opis szczegółowy

Fundamenty: betonowe ławy z betonu szczelnego i ściany fundamentowe z bloczków betonowych. Ściany zewnętrzne: ściany murowane - pustaki porotherm 25 + styropian + tynk cienkowarstwowy. Strop: Teriva. Elewacje: tynk cienkowarstwowy na styropianie. Pokrycie dachu: blachodachówka. Nachylenie dachu: 25 stopni.

Strop

Gęstożebrowy

Reklama
Okna i drzwi tarasowe

Nowoczesne okna PVC i aluminiowe WIŚNIOWSKI – doskonała izolacja, elegancki design i niezrównana trwałość.

Wiśniowski
Sprawdź parametry!
Okna dachowe

Oferujemy bezpłatne konsultacje w zakresie wszystkich rozwiązań VELUX. Wyceny, porady dotyczące doboru okien i rolet zewnętrznych - sprawdź!

Velux
Sprawdź szczegóły
Pompa ciepła

Wybierz pompę ciepła, która pasuje do Twojego domu. Niezależnie od tego, czy ustawienie wewnątrz czy na zewnątrz, pompy ciepła STIEBEL ELTRON dopasują się do każdej przestrzeni.

Stiebel
Dobierz pompę ciepła
Drzwi

Ciepłe drzwi WIŚNIOWSKI z kontrolą dostępu. Szeroka gama wzorów i kolorów.

Wiśniowski
Wybierz najlepsze
Bramy garażowe

Automatyczne bramy garażowe segmentowe i uchylne WIŚNIOWSKI na wymiar i z systemem smart home w standardzie.

Wiśniowski
Sprawdź ofertę!
Rekuperacja

Alnor - kompletny system rekuperacji. Dobierz idealne rozwiązanie dla Twojego domu!

Alnor
Dobierz rekuperator
Dach

Producent stalowych pokryć dachowych i systemów elewacyjnych. Precyzja wykonania, trwałość na lata i szybki montaż doceniany przez dekarzy. Postaw na solidny dach Budmat.

Budmat
Sprawdź ofertę
Ogrodzenie

Nowoczesne stalowe ogrodzenia Budmat - estetyka, bezpieczeństwo i trwałość na lata. Systemowe rozwiązania na wymiar, dopasowane do każdego domu.

Budmat
Sprawdź ofertę

Gotowe domy - najszybszy sposób na dom (115)

Zobacz wszystkie
  • Stan deweloperski nawet w 6 miesięcy
  • Gwarancja stałej ceny
Skonfiguruj dom
Zdjęcie 1 projektu Bergen 130 HUS1002
130,40 m²
4
Stan deweloperski brutto
529 000 zł 4 057 zł/m²
Zdjęcie 1 projektu Dom szkieletowy Viking Smart 220 HHT1032
163,86 m²
4
Stan deweloperski brutto
1 095 606 zł 6 686 zł/m²
Zdjęcie 1 projektu Dom prefabrykowany DH174 HDH1009
162,97 m²
4
Stan deweloperski brutto
1 026 000 zł 6 296 zł/m²
Zdjęcie 1 projektu Dom prefabrykowany P.4 bez okapu HPK1003
162,18 m²
5
Stan deweloperski brutto
723 500 zł 4 461 zł/m²
Zdjęcie 1 projektu Dom prefabrykowany P.4 z okapem HPK1014
162,18 m²
5
Stan deweloperski brutto
739 600 zł 4 560 zł/m²
Zdjęcie 1 projektu Dom prefabrykowany P.2 HPK1001
159,18 m²
5
Stan deweloperski brutto
847 000 zł 5 321 zł/m²
Zdjęcie 1 projektu Dom prefabrykowany Stodoła 170B HFX1050
175,12 m²
4
Stan deweloperski brutto
650 000 zł 3 712 zł/m²
Zdjęcie 1 projektu Dom prefabrykowany Stodoła 170A HFX1049
175,42 m²
3
Stan deweloperski brutto
650 000 zł 3 705 zł/m²

Dodatki do projektu

Dodatki możesz zamówić w koszyku lub telefonicznie u naszego Doradcy.

Czym jest OZE (Odnawialne Źródło Energii)?

Ikona

Bestseller

Kosztorys

600 zł

Ikona

Bestseller

Dodatkowy egzemplarz projektu

650 zł

Ikona

Bestseller

Elektroniczna wersja projektu

600 zł

Ikona

Ogrzewanie podłogowe

550 zł

Ikona

Oze

Aneks na paliwo stałe

750 zł

Ikona

Oze

Gruntowa pompa ciepła

750 zł

Pokaż więcej (8)

Opis projektu domu
Tytan 3 wariant C

Wariant projektu poszerzony o 1,0 m, zmiana układu pomieszczeń na parterze.
Czytaj więcej

Polecani producenci

Kompletne systemy rekuperacji

tło producenta

Alnor

Dowiedz się więcej

Dachy modułowe ze stali

tło producenta

Budmat

Poznaj szczegóły oferty

Prefabrykowane konstrukcje dachowe

tło producenta

WIĄZAR POLSKA

Zobacz więcej
Zobacz więcej

Społeczność projektu domu
Tytan 3 wariant C w budowie

Dołącz do społeczności osób, które budują ten dom lub są zainteresowane jego budową.

  • Oglądaj zdjęcia z budowy
  • Zadawaj pytania
  • Wymieniaj się doświadczeniami

Opinie o projekcie domu
Tytan 3 wariant C

Opinie niezweryfikowane

Bądź pierwszy!
Ten projekt nie ma jeszcze opinii, bądź pierwszy!

ikona Dodaj opinię o projekcie

ASYSTENT WYBORU PROJEKTU

Szukasz idealnego projektu? Znajdziemy go dla Ciebie!

Doradca na podstawie Twoich wskazówek przygotuje spersonalizowaną listę projektów

Graficzne opracowanie rzutów poglądowych widocznych na karcie projektu zostało wykonane przez Extradom.pl. Prezentowane przez Extradom.pl wizualizacje wykonane zostały przez autora projektu i należy poczytywać je jedynie za przykład i propozycję wykończenia, wizję architektoniczną autora projektu. Ostateczne wykończenie budynku może nastąpić na wiele sposobów. Szczegółowe rozwiązania zastosowane w oferowanej dokumentacji - w tym również ilość, lokalizacje i wygląd okien, drzwi, kominów - mogą w niewielkim stopniu różnić się od prezentowanej wizualizacji budynku.

Extradom.pl Spółka z ograniczoną odpowiedzialnością z siedzibą przy ul. Jaworskiej 13, 53-612 Wrocław, wpisana do rejestru przedsiębiorców Krajowego Rejestru Sądowego przez Sąd Rejonowy dla Wrocławia-Fabrycznej we Wrocławiu, VI Wydział Gospodarczy Krajowego Rejestru Sądowego do pod numerem KRS 0000648746, numer NIP 895-17-18-333, o kapitale zakładowym 708 150,00 zł uprzejmie informuje, iż poprzez serwis Extradom.pl umożliwia m.in. zapoznanie się przez konsumentów z ofertą handlową Partnerów Extradom.pl, którzy stosują metody budowy domów przy wykorzystaniu różnego rodzaju technologie prefabrykacji bądź modułowe (tzw. „Gotowe domy”).

Extradom.pl nie prowadzi jednakże sprzedaży ani nie oferuje usług polegających na doradztwie finansowym, prawnym ani podatkowym w zakresie inwestycji realizowanych w technologiach tzw. „Gotowych domów”. Informacje prezentowane w serwisie Extradom.pl dotyczące Partnerów Extradom.pl oferujących realizację inwestycji w technologiach „Gotowych domów” lub podobnych mają charakter informacyjny i reklamowy.

Prezentowane w serwisie Extradom.pl informacje dotyczące stosowanych przez Partnerów metod budowy domów w technologii prefabrykacji bądź modułowej pochodzą od Partnerów Extradom.pl.

Extradom.pl sp. z o.o. jedynie umożliwia nawiązanie kontaktu przez Użytkownika z Partnerem Extradom.pl stosującym tego rodzaju technologie budowy domów i nie jest stroną umowy o roboty budowlane zawieranej przez Użytkownika Extradom.pl z Partnerem Extradom.pl.

REKLAMA
Zamknij