Projekty nawet 500 zł taniej ❄️

Koniec oferty za:

00godz.

00min.

00sek.

Sprawdź

Projekt domu Moricone II KRH1158

Dodano!
Dodano!

Warstwy

Warstwy

Warstwy

Rzut parteru

Powierzchnia (m²)
Tooltip
Powierzchnia pomieszczenia
to ta, z której faktycznie możesz korzystać – skosy i niskie części poddasza są liczone częściowo lub wcale.
  1. 100% dla wysokości powyżej 2,2 m,
  2. 50% dla wysokości 1,4–2,2 m,
  3. nie liczymy poniżej 1,4 m.

Powierzchnia podłogi
Liczymy po obrysie pomieszczenia, bez względu na jego wysokość/skosy. Jeśli nie ma skosów to powierzchnia podłogi i pomieszczenia jest taka sama.
pomieszczenia i podłogi
podłogi
1. Korytarz
7,30
2. Pomieszczenie gospodarcze
13,65
3. Pomieszczenie gospodarcze
36,56
4. Kotłownia
13,19
Razem
70,70
70,70
Powierzchnia (m²)
Tooltip
Powierzchnia pomieszczenia
to ta, z której faktycznie możesz korzystać – skosy i niskie części poddasza są liczone częściowo lub wcale.
  1. 100% dla wysokości powyżej 2,2 m,
  2. 50% dla wysokości 1,4–2,2 m,
  3. nie liczymy poniżej 1,4 m.

Powierzchnia podłogi
Liczymy po obrysie pomieszczenia, bez względu na jego wysokość/skosy. Jeśli nie ma skosów to powierzchnia podłogi i pomieszczenia jest taka sama.
pomieszczenia i podłogi
podłogi
1. Wiatrołap
6,50
2. Hall
5,02
3. Pokój dzienny
24,78
4. Kuchnia
14,35
5. Pokój
12,65
6. Łazienka
3,73
7. Schody
5,04
8. Garaż jednostanowiskowy
17,83
9. Pomieszczenie gospodarcze
4,79
Razem
94,69
94,69
Powierzchnia (m²)
Tooltip
Powierzchnia pomieszczenia
to ta, z której faktycznie możesz korzystać – skosy i niskie części poddasza są liczone częściowo lub wcale.
  1. 100% dla wysokości powyżej 2,2 m,
  2. 50% dla wysokości 1,4–2,2 m,
  3. nie liczymy poniżej 1,4 m.

Powierzchnia podłogi
Liczymy po obrysie pomieszczenia, bez względu na jego wysokość/skosy. Jeśli nie ma skosów to powierzchnia podłogi i pomieszczenia jest taka sama.
pomieszczenia
podłogi
1. Hall
4,18
4,18
2. Pokój
13,84
17,93
3. Pokój
15,05
19,47
4. Pokój
9,71
12,78
5. Garderoba
2,77
4,20
6. Łazienka
5,95
7,79
7. Schody
2,76
2,76
Razem
54,26
69,11

    Usytuowanie na działce

    Czy ten projekt pasuje na
    Twoją działkę?

    Chętnie to sprawdzimy!

    Dowiedz się:

    • czy zmieści się na niej wybrany przez Ciebie dom
    • jakie parametry musi spełniać dom według miejscowego planu zagospodarowania lub warunków zabudowy (np. kąt nachylenia i typ dachu, liczba kondygnacji itp.
    • jakie inne projekty pasują na Twoją działkę – znajdziemy je dla Ciebie!

Pow. użytkowa

145,96 m²

Pokoje

4

Łazienki i WC

2

Garaż

1

Min. szer. i dł. działki

22,7 x 18,50 m

Kąt dachu

40°

Konstrukcja

Murowana
więcej

Moricone II - KRH1158

ikona 145,96 m²
Powierzchnia użytkowa
ikona4
Pokoje (bez salonu)
ikona 2
Łazienki (z toaletami)
ikona 1
Liczba stanowisk garażowych
(z wiatą garażową)
ikona
Konstrukcja: Murowana

Projekt został
wycofany z oferty

W razie pytań prosimy o kontakt
z Centrum Obsługi Klienta
Konsultant Masz pytania?
Zadzwoń
71 715 20 60

pon.-pt. 8-21, sob. 9-17

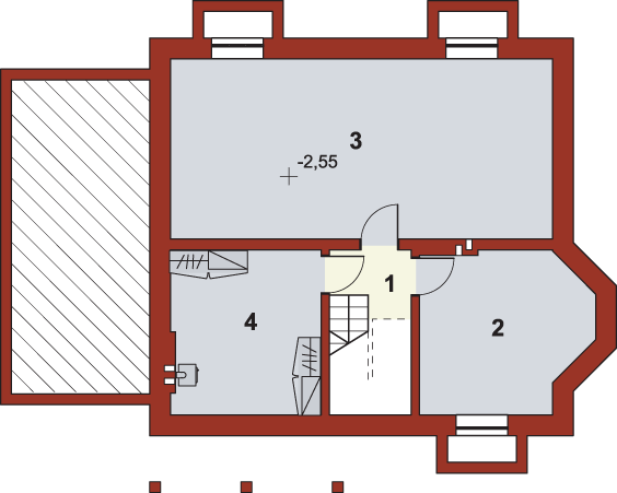
Piwnica - 70,70 m²

Piwnica projektu Moricone II

Zapytaj, co możesz zmienić

Powierzchnia (m²)
Tooltip
Powierzchnia pomieszczenia
to ta, z której faktycznie możesz korzystać – skosy i niskie części poddasza są liczone częściowo lub wcale.
  1. 100% dla wysokości powyżej 2,2 m,
  2. 50% dla wysokości 1,4–2,2 m,
  3. nie liczymy poniżej 1,4 m.

Powierzchnia podłogi
Liczymy po obrysie pomieszczenia, bez względu na jego wysokość/skosy. Jeśli nie ma skosów to powierzchnia podłogi i pomieszczenia jest taka sama.
pomieszczenia i podłogi
podłogi
1. Korytarz
7,30
2. Pomieszczenie gospodarcze
13,65
3. Pomieszczenie gospodarcze
36,56
4. Kotłownia
13,19
Razem
70,70
70,70

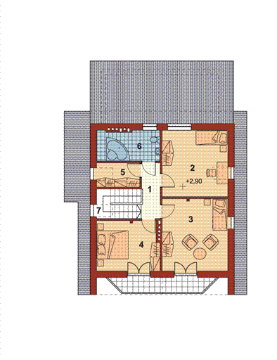
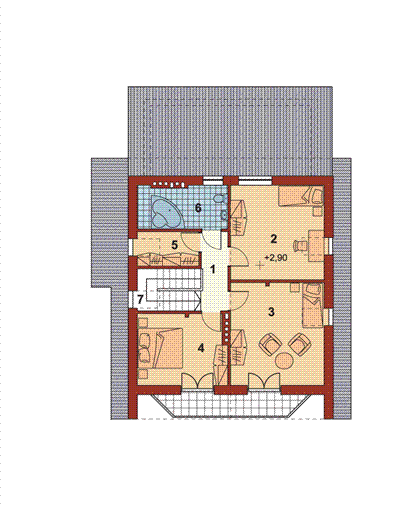
Parter - 94,69 m²

Parter projektu Moricone II

Zapytaj, co możesz zmienić

Powierzchnia (m²)
Tooltip
Powierzchnia pomieszczenia
to ta, z której faktycznie możesz korzystać – skosy i niskie części poddasza są liczone częściowo lub wcale.
  1. 100% dla wysokości powyżej 2,2 m,
  2. 50% dla wysokości 1,4–2,2 m,
  3. nie liczymy poniżej 1,4 m.

Powierzchnia podłogi
Liczymy po obrysie pomieszczenia, bez względu na jego wysokość/skosy. Jeśli nie ma skosów to powierzchnia podłogi i pomieszczenia jest taka sama.
pomieszczenia i podłogi
podłogi
1. Wiatrołap
6,50
2. Hall
5,02
3. Pokój dzienny
24,78
4. Kuchnia
14,35
5. Pokój
12,65
6. Łazienka
3,73
7. Schody
5,04
8. Garaż jednostanowiskowy
17,83
9. Pomieszczenie gospodarcze
4,79
Razem
94,69
94,69

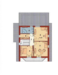
Poddasze - 54,26 m²

Poddasze projektu Moricone II

Zapytaj, co możesz zmienić

Powierzchnia (m²)
Tooltip
Powierzchnia pomieszczenia
to ta, z której faktycznie możesz korzystać – skosy i niskie części poddasza są liczone częściowo lub wcale.
  1. 100% dla wysokości powyżej 2,2 m,
  2. 50% dla wysokości 1,4–2,2 m,
  3. nie liczymy poniżej 1,4 m.

Powierzchnia podłogi
Liczymy po obrysie pomieszczenia, bez względu na jego wysokość/skosy. Jeśli nie ma skosów to powierzchnia podłogi i pomieszczenia jest taka sama.
pomieszczenia
podłogi
1. Hall
4,18
4,18
2. Pokój
13,84
17,93
3. Pokój
15,05
19,47
4. Pokój
9,71
12,78
5. Garderoba
2,77
4,20
6. Łazienka
5,95
7,79
7. Schody
2,76
2,76
Razem
54,26
69,11

Podobne projekty (6885)

Zobacz wszystkie
Zdjęcie 1 projektu Nasza Stodoła S powiększona KRY1004
119,69 m²
4
3
1

5 500 zł

NIŻSZA CENA❄️
Zdjęcie 1 projektu Rozsądny WAH1539
Rozsądny
Dodano!
Dodano!
165,45 m²
5
2
1

5 080 zł

6 350 zł

Tooltip

Cena regularna

4 762 zł najniższa cena
Tooltip

Najniższa cena z 30 dni
przed obniżką

NIŻSZA CENA❄️
Zdjęcie 1 projektu Albatros WAH1506
Albatros
Dodano!
Dodano!
128,63 m²
4
3
1

4 784 zł

5 980 zł

Tooltip

Cena regularna

4 485 zł najniższa cena
Tooltip

Najniższa cena z 30 dni
przed obniżką

NIŻSZA CENA❄️
Zdjęcie 1 projektu Lajkonik (1565) KRD2714
Lajkonik (1565)
Dodano!
Dodano!
150,80 m²
5
2
0

4 540 zł

4 890 zł

Tooltip

Cena regularna

4 340 zł najniższa cena
Tooltip

Najniższa cena z 30 dni
przed obniżką

NIŻSZA CENA❄️
Zdjęcie 1 projektu APS 229 LUA1562
APS 229
Dodano!
Dodano!
124 m²
4
2
1

3 849 zł

4 399 zł

Tooltip

Cena regularna

3 799 zł najniższa cena
Tooltip

Najniższa cena z 30 dni
przed obniżką

NIŻSZA CENA❄️
Zdjęcie 1 projektu Dom przy Głogowej 3 KRK1218
Dom przy Głogowej 3
Dodano!
Dodano!
118,51 m²
4
2
1

3 290 zł

3 790 zł

Tooltip

Cena regularna

3 190 zł najniższa cena
Tooltip

Najniższa cena z 30 dni
przed obniżką

NIŻSZA CENA❄️
Zdjęcie 1 projektu APS 033 NEW LUA1409
APS 033 NEW
Dodano!
Dodano!
137,30 m²
4
2
1

4 349 zł

4 899 zł

Tooltip

Cena regularna

4 299 zł najniższa cena
Tooltip

Najniższa cena z 30 dni
przed obniżką

NIŻSZA CENA❄️
Zdjęcie 1 projektu BW-32 wariant 1 JGC1186
BW-32 wariant 1
Dodano!
Dodano!
133,70 m²
4
2
2

4 230 zł

4 330 zł

Tooltip

Cena regularna

4 130 zł najniższa cena
Tooltip

Najniższa cena z 30 dni
przed obniżką

Elewacje

Frontowa
Tylna
Lewa
Prawa

Przekroje

Przekrój pionowy

Usytuowanie na działce

Czy ten projekt pasuje na
Twoją działkę?

Chętnie to sprawdzimy!

Czy ten projekt pasuje na
Twoją działkę?

Chętnie to sprawdzimy!

Dowiedz się:

  • czy zmieści się na niej wybrany przez Ciebie dom
  • jakie parametry musi spełniać dom według miejscowego planu zagospodarowania lub warunków zabudowy (np. kąt nachylenia i typ dachu, liczba kondygnacji itp.
  • jakie inne projekty pasują na Twoją działkę – znajdziemy je dla Ciebie!
Autor: Archigraph

Dane techniczne projektu

Powierzchnie i wymiary Powierzchnie i wymiary

Powierzchnia użytkowa
Tooltip
Suma powierzchni wszystkich pomieszczeń mieszkalnych, pomniejszona o pow. garażu, kotłowni, strychu, piwnicy. Jest liczona w 100% dla pomieszczeń o wysokości powyżej 2,2 m, w 50% dla pomieszczeń o wys. 2,2-1,4 m i niewliczana dla niższych niż 1,4 m.

145,96 m²

Powierzchnia zabudowy
Tooltip
Powierzchnia zajmowana przez część na- oraz nadziemną budynku liczona, jako rzut pionowy budynku na działkę.

126,39 m²

Kąt nachylenia dachu
Tooltip
Nachylenie połaci dachu głównego podawane w stopniach. Uwaga! W niektórych projektach występuje więcej niż jedno nachylenie dachu.

40°

Wysokość budynku
Tooltip
Wysokość liczona od części budynku położonej najniżej przy powierzchni terenu do najwyższego punktu dachu (kalenicy) z wyłączeniem kominów.

8,62 m

Min. szerokość działki
Tooltip
Najmniejsza możliwa szerokość działki niezbędna do wybudowania wybranego domu. Składa się z szerokości elewacji domu powiększonej z obu stron o 3 m dla ściany bez otworów drzwiowych/okiennych lub 4 m, dla ściany z otworami.

22,70 m

Min. długość działki
Tooltip
Najmniejsza możliwa długość działki niezbędna do wybudowania wybranego domu. Składa się z długości elewacji domu powiększonej z obu stron o 3 m dla ściany bez otworów drzwiowych/okiennych lub 4 m, dla ściany z otworami.

18,50 m

Energooszczędność Energooszczędność

Oze Czym jest OZE (Odnawialne Źródło Energii)?
Warunki techniczne

Projekt zgody z WT 2021

Technologia i konstrukcja Technologia i konstrukcja

Konstrukcja

Murowana

Opis szczegółowy

Fundamenty betonowe z izolacją. Ściany zewnętrzne i wewnętrzne: jednowarstwowe bloczki z betonu komórkowego. Strop żelbetowy. Konstrukcja dachu drewniana, płatwiowo-krokwiowa. Pokrycie dachu dachówką ceramiczną.

Strop

Żelbetowy

Reklama
Okna i drzwi tarasowe

Nowoczesne okna PVC i aluminiowe WIŚNIOWSKI – doskonała izolacja, elegancki design i niezrównana trwałość.

Wiśniowski
Sprawdź parametry!
Okna dachowe

Oferujemy bezpłatne konsultacje w zakresie wszystkich rozwiązań VELUX. Wyceny, porady dotyczące doboru okien i rolet zewnętrznych - sprawdź!

Velux
Sprawdź szczegóły
Płytki ceramiczne i gresy

Od małych formatów po wielkoformatowe gresy. Marmur, beton, drewno, kamień, lastryko czy cegiełki zamówisz wygodnie online z szybką dostawą.

Ceramzet
Sprawdź ofertę
Drzwi

Ciepłe drzwi WIŚNIOWSKI z kontrolą dostępu. Szeroka gama wzorów i kolorów.

Wiśniowski
Wybierz najlepsze
Bramy garażowe

Automatyczne bramy garażowe segmentowe i uchylne WIŚNIOWSKI na wymiar i z systemem smart home w standardzie.

Wiśniowski
Sprawdź ofertę!
Armatura i ceramika łazienkowa

Topowi producenci. Baterie łazienkowe, zestawy natynkowe i podtynkowe, umywalki, wanny, miski WC oraz kabiny zamówisz kompleksowo online.

Ceramzet II
Dowiedz się więcej
Rekuperacja

Alnor - kompletny system rekuperacji. Dobierz idealne rozwiązanie dla Twojego domu!

Alnor
Dobierz rekuperator
Gruntowe pompy ciepła

Przeprowadzimy kompletną instalację najbardziej oszczędnego źródła ciepła w Twoim nowym domu - gruntowej pompy ciepła. Od dokumentacji, pozwoleń, po odwierty i instalację.

Geothermal Solutions
Dowiedz się więcej

Gotowe domy modułowe (114)

Zobacz wszystkie
Stan deweloperski nawet w 6 miesięcy Gwarancja stałej ceny
Zdjęcie 1 projektu Dom szkieletowy Open Sky 195 HHT1029
Pow. użytkowa
145,04 m²
Pokoje
4
940 300 zł 6 483 zł/m²
Zdjęcie 1 projektu Dom prefabrykowany Stodoła 150B HFX1025
Pow. użytkowa
151,30 m²
Pokoje
4
589 000 zł 3 893 zł/m²
Zdjęcie 1 projektu Dom prefabrykowany Stodoła 150A HFX1024
Pow. użytkowa
152,20 m²
Pokoje
5
589 000 zł 3 870 zł/m²
Zdjęcie 1 projektu Dom prefabrykowany P.1 z okapem HPK1000
Pow. użytkowa
139,44 m²
Pokoje
3
721 000 zł 5 171 zł/m²
Zdjęcie 1 projektu Dom prefabrykowany P.1 bez okapu HPK1012
Pow. użytkowa
139,44 m²
Pokoje
3
699 800 zł 5 019 zł/m²
Zdjęcie 1 projektu Dom prefabrykowany Stodoła 150C HFX1026
Pow. użytkowa
152,90 m²
Pokoje
5
589 000 zł 3 852 zł/m²
Zdjęcie 1 projektu Dom prefabrykowany P.5 HPK1004
Pow. użytkowa
138,67 m²
Pokoje
5
772 700 zł 5 572 zł/m²
Zdjęcie 1 projektu Dom prefabrykowany DEX136 HDX1002
Pow. użytkowa
136 m²
Pokoje
4
845 000 zł 6 213 zł/m²

Opis projektu domu
Moricone II

Projekt domu Moricone II to ciekawa propozycja dla osób posiadających średniej szerokości działkę. Dom cechuje się typową bryłą, więc jego realizacja nie pochłonie zbyt wielu środków finansowych. Projekt należy do kategorii domów z kalenicą skierowaną równolegle do drogi, co często określane jest w planie zagospodarowania przestrzennego. Dom został stworzony do zabudowy wolnostojącej. W projekcie przewidziano garaż jednostanowiskowy w linii budynku. Jest to również doskonała propozycja dla osób szukających domu z dachem dwuspadowym, co pozwala na ograniczenie kosztów. Projekt Moricone II to dom parterowy z poddaszem użytkowym, dzięki czemu mamy możliwość zagospodarowania większej powierzchni. W domu przewidziano piwnicę, która świetnie sprawdzi się zwłaszcza w przypadku niedużych lub wąskich działek. Autor projektu przewidział w nim ciekawie prezentującą się strefę dzienną. Projekt przewiduje zamknięcie kuchni na strefę wypoczynkową, dzięki czemu wydobywające się z niej dźwięki nie są słyszalne w salonie. W kuchni znajduje się także stół, dzięki któremu poranne spotkania z rodziną staną się ważną częścią dnia dla każdego domownika. Usytuowany w salonie kominek sprawi, iż wnętrze stanie się bardziej przytulne. Łazienka znajduje się zarówno na poddaszu jak i parterze, co jest szczególnie przydatne podczas odwiedzin gości. Cztery komfortowe pokoje zaspokoją potrzeby 4-6 osobowej rodziny. Przestrzeń można wykorzystać także jako pokój dla gości lub gabinet. Na komfortowe użytkowanie domu ma również wpływ uwzględnione w nim pomieszczenie gospodarcze. Taras daje możliwość kontaktu z przyrodą i sprzyja wypoczynkowi. Projekt został wykonany w technologii murowanej, dzięki czemu podczas upałów dom utrzymuje przyjemny chłód. Moricone II nawiązuje do stylu tradycyjnego, co jest idealnym rozwiązaniem dla osób ceniących klasykę i prostotę.
Czytaj więcej

Polecani producenci

Prefabrykowane konstrukcje dachowe

tło producenta

WIĄZAR POLSKA

Zobacz więcej

Sprawdź nową generację okien GREENVIEW

tło producenta

FAKRO

Sprawdź nową generację okien GREENVIEW

Styropian, tynki, farby, kleje

tło producenta

Termo Organika

Poznaj super jakość

Okna, drzwi, osłony przeciwsłoneczne

tło producenta

Aluprof

Sprawdź ofertę

Kompletne systemy rekuperacji

tło producenta

Alnor

Dowiedz się więcej

Sprawdź nowy system DACHRYNNA

tło producenta

Galeco

Sprawdź ofertę
Zobacz więcej

Społeczność projektu domu
Moricone II w budowie

Dołącz do społeczności osób, które budują ten dom lub są zainteresowane jego budową.

  • Oglądaj zdjęcia z budowy
  • Zadawaj pytania
  • Wymieniaj się doświadczeniami

Opinie o projekcie domu Moricone II

Ocena

Ten projekt nie ma jeszcze opinii, bądź pierwszy!

Dodaj opinię

ASYSTENT WYBORU PROJEKTU

Szukasz idealnego projektu? Znajdziemy go dla Ciebie!

Doradca na podstawie Twoich wskazówek przygotuje spersonalizowaną listę projektów

Graficzne opracowanie rzutów poglądowych widocznych na karcie projektu zostało wykonane przez Extradom.pl. Prezentowane przez Extradom.pl wizualizacje wykonane zostały przez autora projektu i należy poczytywać je jedynie za przykład i propozycję wykończenia, wizję architektoniczną autora projektu. Ostateczne wykończenie budynku może nastąpić na wiele sposobów. Szczegółowe rozwiązania zastosowane w oferowanej dokumentacji - w tym również ilość, lokalizacje i wygląd okien, drzwi, kominów - mogą w niewielkim stopniu różnić się od prezentowanej wizualizacji budynku.

REKLAMA
Zamknij