Projekty nawet 500 zł taniej ❄️

Koniec oferty za:

00godz.

00min.

00sek.

Sprawdź

Projekt domu Miłków ag KRP1023

Dodano!
Dodano!

Warstwy

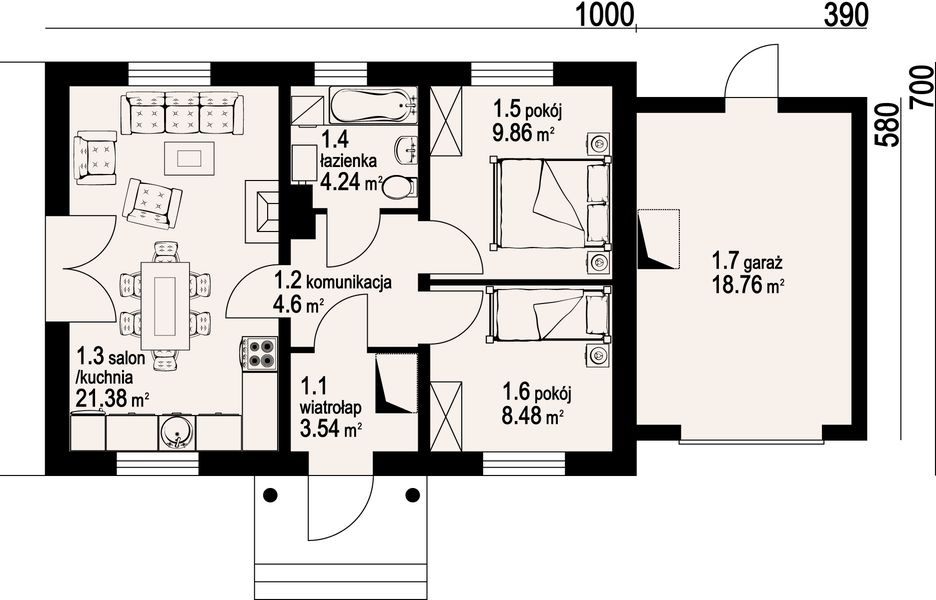
Rzut parteru

Powierzchnia (m²)
Tooltip
Powierzchnia pomieszczenia
to ta, z której faktycznie możesz korzystać – skosy i niskie części poddasza są liczone częściowo lub wcale.
  1. 100% dla wysokości powyżej 2,2 m,
  2. 50% dla wysokości 1,4–2,2 m,
  3. nie liczymy poniżej 1,4 m.

Powierzchnia podłogi
Liczymy po obrysie pomieszczenia, bez względu na jego wysokość/skosy. Jeśli nie ma skosów to powierzchnia podłogi i pomieszczenia jest taka sama.
pomieszczenia i podłogi
podłogi
1. Wiatrołap
3,54
2. Hall
4,60
3. Pokój dzienny + kuchnia
21,38
4. Łazienka
4,24
5. Pokój
9,86
6. Pokój
8,48
7. Garaż jednostanowiskowy
18,76
Razem
70,86
70,86

    Usytuowanie na działce

    Czy ten projekt pasuje na
    Twoją działkę?

    Chętnie to sprawdzimy!

    Dowiedz się:

    • czy zmieści się na niej wybrany przez Ciebie dom
    • jakie parametry musi spełniać dom według miejscowego planu zagospodarowania lub warunków zabudowy (np. kąt nachylenia i typ dachu, liczba kondygnacji itp.
    • jakie inne projekty pasują na Twoją działkę – znajdziemy je dla Ciebie!

Pow. użytkowa

52,10 m²

Pokoje

2

Łazienki i WC

1

Garaż

1

Min. szer. i dł. działki

20,9 x 15 m

Kąt dachu

30°

Konstrukcja

Murowana
więcej

Miłków ag - KRP1023

ikona 52,10 m²
Powierzchnia użytkowa
ikona2
Pokoje (bez salonu)
ikona 1
Łazienki (z toaletami)
ikona 1
Liczba stanowisk garażowych
(z wiatą garażową)
ikona
Konstrukcja: Murowana

Projekt został
wycofany z oferty

W razie pytań prosimy o kontakt
z Centrum Obsługi Klienta
Konsultant Masz pytania?
Zadzwoń
71 715 20 60

pon.-pt. 8-21, sob. 9-17

Parter - 70,86 m²

Parter projektu Miłków ag

Zapytaj, co możesz zmienić

Powierzchnia (m²)
Tooltip
Powierzchnia pomieszczenia
to ta, z której faktycznie możesz korzystać – skosy i niskie części poddasza są liczone częściowo lub wcale.
  1. 100% dla wysokości powyżej 2,2 m,
  2. 50% dla wysokości 1,4–2,2 m,
  3. nie liczymy poniżej 1,4 m.

Powierzchnia podłogi
Liczymy po obrysie pomieszczenia, bez względu na jego wysokość/skosy. Jeśli nie ma skosów to powierzchnia podłogi i pomieszczenia jest taka sama.
pomieszczenia i podłogi
podłogi
1. Wiatrołap
3,54
2. Hall
4,60
3. Pokój dzienny + kuchnia
21,38
4. Łazienka
4,24
5. Pokój
9,86
6. Pokój
8,48
7. Garaż jednostanowiskowy
18,76
Razem
70,86
70,86

Warianty projektu (17)

PROMOCJA
Projekt domu Miłków 79
Miłków 79
Dodano!
Dodano!
66,62 m²
2
1
0

3 999 zł

4 299 zł

Tooltip

Cena regularna

3 799 zł najniższa cena
Tooltip

Najniższa cena z 30 dni
przed obniżką

PROMOCJA
Projekt domu Miłków 15 dw
Miłków 15 dw
Dodano!
Dodano!
53 m²
2
1
0

4 399 zł

4 699 zł

Tooltip

Cena regularna

4 199 zł najniższa cena
Tooltip

Najniższa cena z 30 dni
przed obniżką

PROMOCJA
Projekt domu Miłków 15 dws
Miłków 15 dws
Dodano!
Dodano!
51,36 m²
2
1
0

4 199 zł

4 499 zł

Tooltip

Cena regularna

3 999 zł najniższa cena
Tooltip

Najniższa cena z 30 dni
przed obniżką

PROMOCJA
Projekt domu Miłków
Miłków
Dodano!
Dodano!
54,10 m²
2
1
0

3 799 zł

4 099 zł

Tooltip

Cena regularna

3 599 zł najniższa cena
Tooltip

Najniższa cena z 30 dni
przed obniżką

PROMOCJA
Projekt domu Miłków Średni Dws
Miłków Średni Dws
Dodano!
Dodano!
66,48 m²
2
1
0

4 299 zł

4 599 zł

Tooltip

Cena regularna

4 099 zł najniższa cena
Tooltip

Najniższa cena z 30 dni
przed obniżką

PROMOCJA
Projekt domu Miłków 5g
Miłków 5g
Dodano!
Dodano!
62,88 m²
2
1
1

4 199 zł

4 499 zł

Tooltip

Cena regularna

3 999 zł najniższa cena
Tooltip

Najniższa cena z 30 dni
przed obniżką

PROMOCJA
Projekt domu Miłków 46g dw
Miłków 46g dw
Dodano!
Dodano!
56,59 m²
3
1
2

4 799 zł

5 099 zł

Tooltip

Cena regularna

4 599 zł najniższa cena
Tooltip

Najniższa cena z 30 dni
przed obniżką

PROMOCJA
Projekt domu Miłków 7
Miłków 7
Dodano!
Dodano!
67,96 m²
2
2
0

3 899 zł

4 199 zł

Tooltip

Cena regularna

3 699 zł najniższa cena
Tooltip

Najniższa cena z 30 dni
przed obniżką

PROMOCJA
Projekt domu Miłków 11g
Miłków 11g
Dodano!
Dodano!
95,35 m²
2
1
1

4 299 zł

4 599 zł

Tooltip

Cena regularna

4 099 zł najniższa cena
Tooltip

Najniższa cena z 30 dni
przed obniżką

PROMOCJA
Projekt domu Miłków 6g dws
Miłków 6g dws
Dodano!
Dodano!
65,50 m²
2
1
1

4 499 zł

4 799 zł

Tooltip

Cena regularna

4 299 zł najniższa cena
Tooltip

Najniższa cena z 30 dni
przed obniżką

PROMOCJA
Projekt domu Miłków duży g
Miłków duży g
Dodano!
Dodano!
76,51 m²
2
1
1

4 199 zł

4 499 zł

Tooltip

Cena regularna

3 999 zł najniższa cena
Tooltip

Najniższa cena z 30 dni
przed obniżką

PROMOCJA
Projekt domu Miłków mały 3
Miłków mały 3
Dodano!
Dodano!
57,60 m²
2
1
0

3 899 zł

4 199 zł

Tooltip

Cena regularna

3 699 zł najniższa cena
Tooltip

Najniższa cena z 30 dni
przed obniżką

PROMOCJA
Projekt domu Miłków średni
Miłków średni
Dodano!
Dodano!
64,66 m²
2
1
0

3 899 zł

4 199 zł

Tooltip

Cena regularna

3 699 zł najniższa cena
Tooltip

Najniższa cena z 30 dni
przed obniżką

PROMOCJA
Projekt domu Miłków 19 dws
Miłków 19 dws
Dodano!
Dodano!
62,98 m²
3
2
0

4 499 zł

4 799 zł

Tooltip

Cena regularna

4 299 zł najniższa cena
Tooltip

Najniższa cena z 30 dni
przed obniżką

PROMOCJA
Projekt domu Miłków Mały
Miłków Mały
Dodano!
Dodano!
51,17 m²
2
1
0

3 899 zł

4 199 zł

Tooltip

Cena regularna

3 699 zł najniższa cena
Tooltip

Najniższa cena z 30 dni
przed obniżką

PROMOCJA
Projekt domu Miłków 16g dws
Miłków 16g dws
Dodano!
Dodano!
65,03 m²
2
2
1

4 499 zł

4 799 zł

Tooltip

Cena regularna

4 299 zł najniższa cena
Tooltip

Najniższa cena z 30 dni
przed obniżką

PROMOCJA
Projekt domu Miłków 4g dw
Miłków 4g dw
Dodano!
Dodano!
65,22 m²
2
2
1

4 499 zł

4 799 zł

Tooltip

Cena regularna

4 299 zł najniższa cena
Tooltip

Najniższa cena z 30 dni
przed obniżką

Podobne projekty (760)

Zobacz wszystkie
NIŻSZA CENA❄️
Zdjęcie 1 projektu Mirabelka 2 WOF1200
Mirabelka 2
Dodano!
Dodano!
58,44 m²
2
1
0

3 399 zł

3 599 zł

Tooltip

Cena regularna

3 299 zł najniższa cena
Tooltip

Najniższa cena z 30 dni
przed obniżką

Zdjęcie 1 projektu Kajtek WRD2058
Kajtek
Dodano!
Dodano!
61,20 m²
2
1
0

3 200 zł

NIŻSZA CENA❄️
Zdjęcie 1 projektu Nektarynka WOF1201
Nektarynka
Dodano!
Dodano!
57,74 m²
2
1
0

3 399 zł

3 599 zł

Tooltip

Cena regularna

3 299 zł najniższa cena
Tooltip

Najniższa cena z 30 dni
przed obniżką

NIŻSZA CENA❄️
Zdjęcie 1 projektu Tebe 7 WOE1187
Tebe 7
Dodano!
Dodano!
60 m²
2
1
0

3 499 zł

3 599 zł

Tooltip

Cena regularna

3 399 zł najniższa cena
Tooltip

Najniższa cena z 30 dni
przed obniżką

NIŻSZA CENA❄️
Zdjęcie 1 projektu Biedronka WAH1561
Biedronka
Dodano!
Dodano!
57,79 m²
2
1
0

4 192 zł

5 240 zł

Tooltip

Cena regularna

3 930 zł najniższa cena
Tooltip

Najniższa cena z 30 dni
przed obniżką

NIŻSZA CENA❄️
Zdjęcie 1 projektu Imbir 2 BSA1901
Imbir 2
Dodano!
Dodano!
55,07 m²
1
1
1

3 849 zł

4 349 zł

Tooltip

Cena regularna

3 849 zł najniższa cena
Tooltip

Najniższa cena z 30 dni
przed obniżką

NIŻSZA CENA❄️
Zdjęcie 1 projektu Biedronka 2 WAH1660
Biedronka 2
Dodano!
Dodano!
57,38 m²
2
1
0

3 632 zł

4 540 zł

Tooltip

Cena regularna

3 405 zł najniższa cena
Tooltip

Najniższa cena z 30 dni
przed obniżką

NIŻSZA CENA❄️
Zdjęcie 1 projektu Bonifacy WAH1218
Bonifacy
Dodano!
Dodano!
58,98 m²
2
1
0

3 720 zł

4 650 zł

Tooltip

Cena regularna

3 487 zł najniższa cena
Tooltip

Najniższa cena z 30 dni
przed obniżką

Elewacje

Frontowa
Tylna
Lewa
Prawa

Przekroje

Przekrój pionowy

Usytuowanie na działce

Czy ten projekt pasuje na
Twoją działkę?

Chętnie to sprawdzimy!

Czy ten projekt pasuje na
Twoją działkę?

Chętnie to sprawdzimy!

Dowiedz się:

  • czy zmieści się na niej wybrany przez Ciebie dom
  • jakie parametry musi spełniać dom według miejscowego planu zagospodarowania lub warunków zabudowy (np. kąt nachylenia i typ dachu, liczba kondygnacji itp.
  • jakie inne projekty pasują na Twoją działkę – znajdziemy je dla Ciebie!
Autor: Dom-Projekt

Dane techniczne projektu

Powierzchnie i wymiary Powierzchnie i wymiary

Powierzchnia użytkowa
Tooltip
Suma powierzchni wszystkich pomieszczeń mieszkalnych, pomniejszona o pow. garażu, kotłowni, strychu, piwnicy. Jest liczona w 100% dla pomieszczeń o wysokości powyżej 2,2 m, w 50% dla pomieszczeń o wys. 2,2-1,4 m i niewliczana dla niższych niż 1,4 m.

52,10 m²

Powierzchnia zabudowy
Tooltip
Powierzchnia zajmowana przez część na- oraz nadziemną budynku liczona, jako rzut pionowy budynku na działkę.

92,20 m²

Powierzchnia netto
Tooltip
Powierzchna wszystkich pomieszczeń w budynku mierzona na wysokości podłogi.

73,03 m²

Kubatura brutto
Tooltip
Zazwyczaj jest to suma kubatur (objętości) wszystkich pomieszczeń budynku, liczonych po zewnętrznym obrysie murów (z ociepleniem).

371,50 m³

Powierzchnia dachu

144,15 m²

Kąt nachylenia dachu
Tooltip
Nachylenie połaci dachu głównego podawane w stopniach. Uwaga! W niektórych projektach występuje więcej niż jedno nachylenie dachu.

30°

Wysokość budynku
Tooltip
Wysokość liczona od części budynku położonej najniżej przy powierzchni terenu do najwyższego punktu dachu (kalenicy) z wyłączeniem kominów.

6,08 m

Min. szerokość działki
Tooltip
Najmniejsza możliwa szerokość działki niezbędna do wybudowania wybranego domu. Składa się z szerokości elewacji domu powiększonej z obu stron o 3 m dla ściany bez otworów drzwiowych/okiennych lub 4 m, dla ściany z otworami.

20,90 m

Min. długość działki
Tooltip
Najmniejsza możliwa długość działki niezbędna do wybudowania wybranego domu. Składa się z długości elewacji domu powiększonej z obu stron o 3 m dla ściany bez otworów drzwiowych/okiennych lub 4 m, dla ściany z otworami.

15 m

Energooszczędność Energooszczędność

Oze Czym jest OZE (Odnawialne Źródło Energii)?
Warunki techniczne

Projekt zgody z WT 2021

Technologia i konstrukcja Technologia i konstrukcja

Konstrukcja

Murowana

Opis szczegółowy

Ilość drewna na więźbę: 5.11 m³. Strop: płyta żelbetowa. Pokrycie dachu: dachówka ceramiczna. Ściany zewnętrzne: pustaki ceramiczne + styropian. Ściany wewnętrzne: pustaki ceramiczne. Typ ogrzewania: kocioł gazowy.

Strop

Żelbetowy

Reklama
Okna i drzwi tarasowe

Nowoczesne okna PVC i aluminiowe WIŚNIOWSKI – doskonała izolacja, elegancki design i niezrównana trwałość.

Wiśniowski
Sprawdź parametry!
Okna dachowe

Oferujemy bezpłatne konsultacje w zakresie wszystkich rozwiązań VELUX. Wyceny, porady dotyczące doboru okien i rolet zewnętrznych - sprawdź!

Velux
Sprawdź szczegóły
Płytki ceramiczne i gresy

Od małych formatów po wielkoformatowe gresy. Marmur, beton, drewno, kamień, lastryko czy cegiełki zamówisz wygodnie online z szybką dostawą.

Ceramzet
Sprawdź ofertę
Drzwi

Ciepłe drzwi WIŚNIOWSKI z kontrolą dostępu. Szeroka gama wzorów i kolorów.

Wiśniowski
Wybierz najlepsze
Bramy garażowe

Automatyczne bramy garażowe segmentowe i uchylne WIŚNIOWSKI na wymiar i z systemem smart home w standardzie.

Wiśniowski
Sprawdź ofertę!
Armatura i ceramika łazienkowa

Topowi producenci. Baterie łazienkowe, zestawy natynkowe i podtynkowe, umywalki, wanny, miski WC oraz kabiny zamówisz kompleksowo online.

Ceramzet II
Dowiedz się więcej
Rekuperacja

Alnor - kompletny system rekuperacji. Dobierz idealne rozwiązanie dla Twojego domu!

Alnor
Dobierz rekuperator
Gruntowe pompy ciepła

Przeprowadzimy kompletną instalację najbardziej oszczędnego źródła ciepła w Twoim nowym domu - gruntowej pompy ciepła. Od dokumentacji, pozwoleń, po odwierty i instalację.

Geothermal Solutions
Dowiedz się więcej

Gotowe domy modułowe (114)

Zobacz wszystkie
Stan deweloperski nawet w 6 miesięcy Gwarancja stałej ceny
Zdjęcie 1 projektu Dom prefabrykowany DH47 HDH1001
Pow. użytkowa
51,10 m²
Pokoje
2
352 080 zł 5 878 zł/m²
Zdjęcie 1 projektu Dom mobilny SunStone HLL1002
Gotowy dom mobilny SunStone
Dodano!
Dodano!
Pow. użytkowa
49,21 m²
Pokoje
2
335 500 zł 6 818 zł/m²
Zdjęcie 1 projektu Dom szkieletowy Space Smart 70 HHT1016
Pow. użytkowa
55 m²
Pokoje
3
311 040 zł 5 655 zł/m²
Zdjęcie 1 projektu Dom szkieletowy Family Smart HHT1004
Pow. użytkowa
48,91 m²
Pokoje
3
269 400 zł 5 508 zł/m²
Zdjęcie 1 projektu Dom szkieletowy One Step Smart 70 HHT1015
Pow. użytkowa
55,49 m²
Pokoje
2
342 468 zł 6 172 zł/m²
Zdjęcie 1 projektu Dom prefabrykowany DH55 HDH1002
Pow. użytkowa
48,20 m²
Pokoje
0
332 640 zł 6 510 zł/m²
Zdjęcie 1 projektu Dom szkieletowy Mezzanine Smart 35 HHT1009
Pow. użytkowa
45 m²
Pokoje
1
242 750 zł 5 405 zł/m²
Zdjęcie 1 projektu Dom szkieletowy Mezzanine Smart 50 HHT1010
Pow. użytkowa
61,13 m²
Pokoje
1
324 700 zł 5 346 zł/m²

Opis projektu domu
Miłków ag

Projekt domu Miłków ag jest modyfikacją cieszącego się popularnością projektu Miłków. W odróżnieniu od podstawowej wersji projekt ma garaż. Projekt domu Miłków ag to idealna propozycja dla osób posiadających średniej szerokości działkę. Dom cechuje się prostą bryłą, więc jego realizacja jest łatwa. Projekt ma usytuowaną kalenicę równolegle do drogi, co jest istotne ze względu na wymagania określone w planie zagospodarowania przestrzennego. Dom został zaprojektowany do zabudowy wolnostojącej. Projekt można usytuować na granicy działki, dzięki czemu można go zrealizować w zabudowie bliźniaczej. Posiada garaż jednostanowiskowy w linii budynku. Jest to również ciekawa propozycja dla osób szukających domu z dachem dwuspadowym, co pozwala na znaczne oszczędności. Projekt Miłków ag to dom parterowy, co jest z pewnością ogromnym plusem w przypadku osób starszych, niepełnosprawnych oraz małżeństw z małymi dziećmi. Autor projektu przewidział w nim ciekawie prezentującą się strefę dzienną. Kuchnia otwarta na salon to doskonałe miejsce dla osób lubiących połączenie funkcjonalności z atrakcyjnym i nowoczesnym wyglądem. Dodatkowo w salonie przewidziano kominek, nadający wnętrzu niepowtarzalny klimat. W domu znajduje się jedna komfortowa łazienka. Potrzeby 2-4 osobowej rodziny spełnią przewidziane w projekcie dwie przestronne sypialnie. Przestrzeń można wykorzystać także jako pokój dla gości lub gabinet. Doskonałym miejscem do wypoczynku jest zaprojektowany przy domu taras. Dom zaprojektowano w technologii murowanej. Jego wygląd zewnętrzny uwydatnia cechy charakterystyczne dla stylu tradycyjnego, co jest idealnym rozwiązaniem dla osób ceniących klasykę i prostotę.
Czytaj więcej

Polecani producenci

Prefabrykowane konstrukcje dachowe

tło producenta

WIĄZAR POLSKA

Zobacz więcej

Sprawdź nową generację okien GREENVIEW

tło producenta

FAKRO

Sprawdź nową generację okien GREENVIEW

Styropian, tynki, farby, kleje

tło producenta

Termo Organika

Poznaj super jakość

Okna, drzwi, osłony przeciwsłoneczne

tło producenta

Aluprof

Sprawdź ofertę

Kompletne systemy rekuperacji

tło producenta

Alnor

Dowiedz się więcej

Sprawdź nowy system DACHRYNNA

tło producenta

Galeco

Sprawdź ofertę
Zobacz więcej

Społeczność projektu domu
Miłków ag w budowie

Dołącz do społeczności osób, które budują ten dom lub są zainteresowane jego budową.

  • Oglądaj zdjęcia z budowy
  • Zadawaj pytania
  • Wymieniaj się doświadczeniami

Opinie o projekcie domu Miłków ag

Ocena

Ten projekt nie ma jeszcze opinii, bądź pierwszy!

Dodaj opinię

ASYSTENT WYBORU PROJEKTU

Szukasz idealnego projektu? Znajdziemy go dla Ciebie!

Doradca na podstawie Twoich wskazówek przygotuje spersonalizowaną listę projektów

Graficzne opracowanie rzutów poglądowych widocznych na karcie projektu zostało wykonane przez Extradom.pl. Prezentowane przez Extradom.pl wizualizacje wykonane zostały przez autora projektu i należy poczytywać je jedynie za przykład i propozycję wykończenia, wizję architektoniczną autora projektu. Ostateczne wykończenie budynku może nastąpić na wiele sposobów. Szczegółowe rozwiązania zastosowane w oferowanej dokumentacji - w tym również ilość, lokalizacje i wygląd okien, drzwi, kominów - mogą w niewielkim stopniu różnić się od prezentowanej wizualizacji budynku.

REKLAMA
Zamknij