👉 Wiosenne okazje + karta allegro 200 zł! 🔥

Koniec oferty za:

00godz.

00min.

00sek.

Sprawdź

Projekt domu Jelonek As (1034) KRD1962

Zapisz Dodano!
Porównaj Dodano!
ikona Pobierz i drukuj

Warstwy

Warstwy

Rzut parteru

Powierzchnia (m²)
Tooltip
Powierzchnia pomieszczenia
to ta, z której faktycznie możesz korzystać – skosy i niskie części poddasza są liczone częściowo lub wcale.
  1. 100% dla wysokości powyżej 2,2 m,
  2. 50% dla wysokości 1,4–2,2 m,
  3. nie liczymy poniżej 1,4 m.

Powierzchnia podłogi
Liczymy po obrysie pomieszczenia, bez względu na jego wysokość/skosy. Jeśli nie ma skosów to powierzchnia podłogi i pomieszczenia jest taka sama.
pomieszczenia
podłogi
1. Pokój dzienny
25,40
25,40
2. Garaż jednostanowiskowy
17,70
17,70
3. Pokój
10,70
10,70
4. Hall
10,60
11,50
5. Kuchnia
6,90
6,90
6. Kotłownia
4,30
4,30
7. Wiatrołap
4
4
8. Łazienka
3,40
3,40
9. Schody
2,90
2,90
Razem
85,90
86,80
Powierzchnia (m²)
Tooltip
Powierzchnia pomieszczenia
to ta, z której faktycznie możesz korzystać – skosy i niskie części poddasza są liczone częściowo lub wcale.
  1. 100% dla wysokości powyżej 2,2 m,
  2. 50% dla wysokości 1,4–2,2 m,
  3. nie liczymy poniżej 1,4 m.

Powierzchnia podłogi
Liczymy po obrysie pomieszczenia, bez względu na jego wysokość/skosy. Jeśli nie ma skosów to powierzchnia podłogi i pomieszczenia jest taka sama.
pomieszczenia
podłogi
1. Pokój
13,90
15,40
2. Pokój
13,80
15,30
3. Pokój
13,20
16,90
4. Pokój
9,80
13,10
5. Korytarz
6,90
6,90
6. Łazienka
6,50
7,50
7. Schody
2,90
2,90
8. Garderoba
1,50
5,40
Razem
68,50
83,40

    Usytuowanie na działce

    Czy ten projekt pasuje na
    Twoją działkę?

    Chętnie to sprawdzimy!

    Dowiedz się:

    • czy zmieści się na niej wybrany przez Ciebie dom
    • jakie parametry musi spełniać dom według miejscowego planu zagospodarowania lub warunków zabudowy (np. kąt nachylenia i typ dachu, liczba kondygnacji itp.
    • jakie inne projekty pasują na Twoją działkę – znajdziemy je dla Ciebie!

Pow. użytkowa

126,40 m²

Pokoje

5

Łazienki i WC

2

Garaż

1

Min. szer. i dł. działki

20,1 x 18,60 m

Kąt dachu

45°

Konstrukcja

Murowana
więcej

Jelonek As (1034) - KRD1962

ikona 126,40 m²
Powierzchnia użytkowa
ikona5
Pokoje (bez salonu)
ikona 2
Łazienki (z toaletami)
ikona 1
Liczba stanowisk garażowych
(z wiatą garażową)
ikona
Konstrukcja: Murowana

Projekt został
wycofany z oferty

W razie pytań prosimy o kontakt
z Centrum Obsługi Klienta
Konsultant
71 715 20 60

pon.-pt. 8-21, sob. 9-17

Parter - 85,90 m²

Parter projektu Jelonek As (1034)

Zapytaj, co możesz zmienić

Powierzchnia (m²)
Tooltip
Powierzchnia pomieszczenia
to ta, z której faktycznie możesz korzystać – skosy i niskie części poddasza są liczone częściowo lub wcale.
  1. 100% dla wysokości powyżej 2,2 m,
  2. 50% dla wysokości 1,4–2,2 m,
  3. nie liczymy poniżej 1,4 m.

Powierzchnia podłogi
Liczymy po obrysie pomieszczenia, bez względu na jego wysokość/skosy. Jeśli nie ma skosów to powierzchnia podłogi i pomieszczenia jest taka sama.
pomieszczenia
podłogi
1. Pokój dzienny
25,40
25,40
2. Garaż jednostanowiskowy
17,70
17,70
3. Pokój
10,70
10,70
4. Hall
10,60
11,50
5. Kuchnia
6,90
6,90
6. Kotłownia
4,30
4,30
7. Wiatrołap
4
4
8. Łazienka
3,40
3,40
9. Schody
2,90
2,90
Razem
85,90
86,80

Poddasze - 68,50 m²

Poddasze projektu Jelonek As (1034)

Zapytaj, co możesz zmienić

Powierzchnia (m²)
Tooltip
Powierzchnia pomieszczenia
to ta, z której faktycznie możesz korzystać – skosy i niskie części poddasza są liczone częściowo lub wcale.
  1. 100% dla wysokości powyżej 2,2 m,
  2. 50% dla wysokości 1,4–2,2 m,
  3. nie liczymy poniżej 1,4 m.

Powierzchnia podłogi
Liczymy po obrysie pomieszczenia, bez względu na jego wysokość/skosy. Jeśli nie ma skosów to powierzchnia podłogi i pomieszczenia jest taka sama.
pomieszczenia
podłogi
1. Pokój
13,90
15,40
2. Pokój
13,80
15,30
3. Pokój
13,20
16,90
4. Pokój
9,80
13,10
5. Korytarz
6,90
6,90
6. Łazienka
6,50
7,50
7. Schody
2,90
2,90
8. Garderoba
1,50
5,40
Razem
68,50
83,40

Warianty projektu (3)

PROMOCJA
Projekt domu Jelonek Rex (1702)
Jelonek Rex (1702)
Dodano!
Dodano!
154,40 m²
5
3
1

4 740 zł

5 090 zł

Tooltip

Cena regularna

4 710 zł najniższa cena
Tooltip

Najniższa cena z 30 dni
przed obniżką

PROMOCJA
Projekt domu Jelonek Rex OZE (1833)
Jelonek Rex OZE (1833)
Dodano!
Dodano!
155,40 m²
5
3
1

3 940 zł

4 290 zł

Tooltip

Cena regularna

3 910 zł najniższa cena
Tooltip

Najniższa cena z 30 dni
przed obniżką

PROMOCJA
Projekt domu Jelonek As G2 (1093)
Jelonek As G2 (1093)
Dodano!
Dodano!
152,30 m²
5
3
2

4 340 zł

4 690 zł

Tooltip

Cena regularna

4 310 zł najniższa cena
Tooltip

Najniższa cena z 30 dni
przed obniżką

Podobne projekty (1894)

Zobacz wszystkie
Zdjęcie 1 projektu Nasza Stodoła S powiększona KRY1004
119,69 m²
4
3
1

5 800 zł

NIŻSZA CENA 🔥
Zdjęcie 1 projektu Domidea 58 dG WAC1087
Domidea 58 dG
Dodano!
Dodano!
119,51 m²
4
3
1

5 850 zł

6 150 zł

Tooltip

Cena regularna

5 850 zł najniższa cena
Tooltip

Najniższa cena z 30 dni
przed obniżką

Zdjęcie 1 projektu Nasza Stodoła S powiększona wersja szkieletowa KRY1011
126,38 m²
4
3
1

5 800 zł

NIŻSZA CENA 🔥
Zdjęcie 1 projektu Lungo 3 WOF1131
Lungo 3
Dodano!
Dodano!
129,44 m²
4
2
0

3 499 zł

3 699 zł

Tooltip

Cena regularna

3 499 zł najniższa cena
Tooltip

Najniższa cena z 30 dni
przed obniżką

NIŻSZA CENA 🔥
Zdjęcie 1 projektu APS 213 LUA1258
APS 213
Dodano!
Dodano!
134,10 m²
4
2
0

4 549 zł

5 099 zł

Tooltip

Cena regularna

4 549 zł najniższa cena
Tooltip

Najniższa cena z 30 dni
przed obniżką

NIŻSZA CENA 🔥
Zdjęcie 1 projektu AJR_02_B WOJ1022
AJR_02_B
Dodano!
Dodano!
122,10 m²
5
2
0

4 050 zł

4 400 zł

Tooltip

Cena regularna

4 000 zł najniższa cena
Tooltip

Najniższa cena z 30 dni
przed obniżką

NIŻSZA CENA 🔥
Zdjęcie 1 projektu Dom przy Alabastrowej 58 KRK1634
Dom przy Alabastrowej 58
Dodano!
Dodano!
135 m²
4
3
0

3 790 zł

4 290 zł

Tooltip

Cena regularna

3 790 zł najniższa cena
Tooltip

Najniższa cena z 30 dni
przed obniżką

NIŻSZA CENA 🔥
Zdjęcie 1 projektu Lungo 6 WOF1139
Lungo 6
Dodano!
Dodano!
129,57 m²
4
2
0

3 899 zł

4 099 zł

Tooltip

Cena regularna

3 899 zł najniższa cena
Tooltip

Najniższa cena z 30 dni
przed obniżką

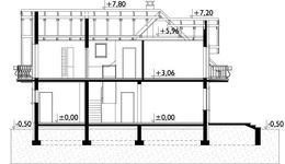
Przekroje

Przekrój pionowy

Usytuowanie na działce

Czy ten projekt pasuje na
Twoją działkę?

Chętnie to sprawdzimy!

Czy ten projekt pasuje na
Twoją działkę?

Chętnie to sprawdzimy!

Dowiedz się:

  • czy zmieści się na niej wybrany przez Ciebie dom
  • jakie parametry musi spełniać dom według miejscowego planu zagospodarowania lub warunków zabudowy (np. kąt nachylenia i typ dachu, liczba kondygnacji itp.
  • jakie inne projekty pasują na Twoją działkę – znajdziemy je dla Ciebie!
Autor: Archeton

Dane techniczne projektu

Powierzchnie i wymiary Powierzchnie i wymiary

Powierzchnia użytkowa
Tooltip
Suma powierzchni wszystkich pomieszczeń mieszkalnych, pomniejszona o pow. garażu, kotłowni, strychu, piwnicy. Jest liczona w 100% dla pomieszczeń o wysokości powyżej 2,2 m, w 50% dla pomieszczeń o wys. 2,2-1,4 m i niewliczana dla niższych niż 1,4 m.

126,40 m²

Wysokość ściany kolankowej
Tooltip
Wysokość ściany podpierającej dach. Jej wysokość wpływa na powierzchnię użytkową kondygnacji, na której się znajduje.

1,40 m

Powierzchnia zabudowy
Tooltip
Powierzchnia zajmowana przez część na- oraz nadziemną budynku liczona, jako rzut pionowy budynku na działkę.

110,20 m²

Powierzchnia całkowita
Tooltip
Całkowita powierzchnia wszystkich kondygnacji budynku łącznie z elementami nośnymi, takimi jak ściany zewnętrzne (z ociepleniem), słupy, tarasy, itp.

230 m²

Powierzchnia netto
Tooltip
Powierzchna wszystkich pomieszczeń w budynku mierzona na wysokości podłogi.

169 m²

Kubatura brutto
Tooltip
Zazwyczaj jest to suma kubatur (objętości) wszystkich pomieszczeń budynku, liczonych po zewnętrznym obrysie murów (z ociepleniem).

711,20 m³

Powierzchnia dachu

205,20 m²

Kąt nachylenia dachu
Tooltip
Nachylenie połaci dachu głównego podawane w stopniach. Uwaga! W niektórych projektach występuje więcej niż jedno nachylenie dachu.

45°

Wysokość budynku
Tooltip
Wysokość liczona od części budynku położonej najniżej przy powierzchni terenu do najwyższego punktu dachu (kalenicy) z wyłączeniem kominów.

8,30 m

Min. szerokość działki
Tooltip
Najmniejsza możliwa szerokość działki niezbędna do wybudowania wybranego domu. Składa się z szerokości elewacji domu powiększonej z obu stron o 3 m dla ściany bez otworów drzwiowych/okiennych lub 4 m, dla ściany z otworami.

20,10 m

Min. długość działki
Tooltip
Najmniejsza możliwa długość działki niezbędna do wybudowania wybranego domu. Składa się z długości elewacji domu powiększonej z obu stron o 3 m dla ściany bez otworów drzwiowych/okiennych lub 4 m, dla ściany z otworami.

18,60 m

Energooszczędność Energooszczędność

Oze Czym jest OZE (Odnawialne Źródło Energii)?
Ep
Tooltip
Energia pierwotna określa ilość energii nieodnawialnej potrzebnej w ciągu roku do ogrzewania czy też ogrzania wody użytkowej z uwzględnieniem kosztów produkcji i transportu surowców energetycznych.

94,74 kWh/(m²rok)

Warunki techniczne

Projekt zgody z WT 2021

Technologia i konstrukcja Technologia i konstrukcja

Konstrukcja

Murowana

Opis szczegółowy

Technologia i konstrukcja: murowana – beton komórkowy. Ściany zewnętrzne: bloczki YTONG gr. 24cm + docieplenie gr. 15 cm. Ściany wewnętrzne: bloki SILKA gr. 24cm. Strop: żelbetowy. Konstrukcja dachu: drewniana, jętkowa. Rodzaj schodów: żelbetowe. Typ ogrzewania: kocioł na gaz. Aneks na paliwo stałe: dostępny (zapytaj o cenę). Pokrycie dachu: dachówka ceramiczna. Elewacja: tynk cienkowarstwowy na siatce.

Strop

Żelbetowy

Reklama
Okna i drzwi tarasowe

Nowoczesne okna PVC i aluminiowe WIŚNIOWSKI – doskonała izolacja, elegancki design i niezrównana trwałość.

Wiśniowski
Sprawdź parametry!
Okna dachowe

Oferujemy bezpłatne konsultacje w zakresie wszystkich rozwiązań VELUX. Wyceny, porady dotyczące doboru okien i rolet zewnętrznych - sprawdź!

Velux
Sprawdź szczegóły
Płytki ceramiczne i gresy

Od małych formatów po wielkoformatowe gresy. Marmur, beton, drewno, kamień, lastryko czy cegiełki zamówisz wygodnie online z szybką dostawą.

Ceramzet
Sprawdź ofertę
Elewacja

Kup przez internet wszystkie materiały potrzebne do wykonania elewacji: styropian, płyty PIR, XPS, kleje, tynki. Najlepsze marki w super cenach z dostawą pod dom.

Hurtownia styropianu
Sprawdź ofertę!
Drzwi

Ciepłe drzwi WIŚNIOWSKI z kontrolą dostępu. Szeroka gama wzorów i kolorów.

Wiśniowski
Wybierz najlepsze
Bramy garażowe

Automatyczne bramy garażowe segmentowe i uchylne WIŚNIOWSKI na wymiar i z systemem smart home w standardzie.

Wiśniowski
Sprawdź ofertę!
Armatura i ceramika łazienkowa

Topowi producenci. Baterie łazienkowe, zestawy natynkowe i podtynkowe, umywalki, wanny, miski WC oraz kabiny zamówisz kompleksowo online.

Ceramzet II
Dowiedz się więcej
Rekuperacja

Alnor - kompletny system rekuperacji. Dobierz idealne rozwiązanie dla Twojego domu!

Alnor
Dobierz rekuperator
Dach

Producent stalowych pokryć dachowych i systemów elewacyjnych. Precyzja wykonania, trwałość na lata i szybki montaż doceniany przez dekarzy. Postaw na solidny dach Budmat.

Budmat
Sprawdź ofertę
Ogrodzenie

Nowoczesne stalowe ogrodzenia Budmat - estetyka, bezpieczeństwo i trwałość na lata. Systemowe rozwiązania na wymiar, dopasowane do każdego domu.

Budmat
Sprawdź ofertę

Gotowe domy - najszybszy sposób na dom (115)

Zobacz wszystkie
  • Stan deweloperski nawet w 6 miesięcy
  • Gwarancja stałej ceny
Skonfiguruj dom
Zdjęcie 1 projektu Bergen 130 HUS1002
130,40 m²
4
Stan deweloperski brutto
499 000 zł 3 827 zł/m²
Zdjęcie 1 projektu Dom prefabrykowany Piętrowy 130A HFX1021
130,40 m²
4
Stan deweloperski brutto
575 000 zł 4 410 zł/m²
Zdjęcie 1 projektu Dom prefabrykowany Parterowy 120B HFX1016
122,36 m²
3
Stan deweloperski brutto
515 000 zł 4 209 zł/m²
Zdjęcie 1 projektu Dom szkieletowy Twin Smart 170 HHT1031
121,95 m²
5
Stan deweloperski brutto
1 650 700 zł 13 536 zł/m²
Zdjęcie 1 projektu Dom prefabrykowany P.3 z okapem HPK1013
121,46 m²
5
Stan deweloperski brutto
630 000 zł 5 187 zł/m²
Zdjęcie 1 projektu Dom prefabrykowany P.3 bez okapu HPK1002
121,46 m²
5
Stan deweloperski brutto
617 300 zł 5 082 zł/m²
Zdjęcie 1 projektu Dom prefabrykowany Parterowy 120A HFX1015
121,44 m²
4
Stan deweloperski brutto
515 000 zł 4 241 zł/m²
Zdjęcie 1 projektu Dom prefabrykowany Piętrowy 130B HFX1022
131,60 m²
5
Stan deweloperski brutto
575 000 zł 4 369 zł/m²

Opis projektu domu
Jelonek As (1034)

Budynek Jelonek As - murowana – beton komórkowy jest wariantem popularnego projektu Jelonek - szkielet drewniany lekki. W odróżnieniu od bazowej wersji projekt ma mniej pokoi, mniejszą powierzchnię. Projekt domu Jelonek As - murowana – beton komórkowy to ciekawa propozycja dla osób posiadających średniej szerokości działkę. Dom charakteryzuje się prostą bryłą, więc jego realizacja nie pochłonie zbyt wielu środków finansowych. Ciekawym rozwiązaniem jest uwzględniony przez architekta ozdobny wykusz. Projekt należy do kategorii domów z kalenicą skierowaną prostopadle do drogi, co jest ważne z punktu widzenia warunków zabudowy na danym terenie. Projekt został stworzony z myślą o działkach pozwalających na usytuowanie domu w zabudowie wolnostojącej. Posiada garaż jednostanowiskowy w bryle budynku. Projekt jest idealną propozycją dla osób zainteresowanych domem z dachem czterospadowym, który doskonale chroni budynek przed niekorzystną pogodą. Wejście do budynku skierowane jest od południa, co jest istotnym rozwiązaniem dla osób, posiadających działkę z wjazdem od tej strony. Projekt Jelonek As - murowana – beton komórkowy to dom parterowy z poddaszem użytkowym, dzięki czemu mamy możliwość zagospodarowania większej powierzchni. Uwzględniona w projekcie część dzienna z pewnością zadowoli osoby lubiące cieszyć się wspólnymi chwilami w rodzinnym gronie. Kuchnia otwarta na salon to doskonałe miejsce dla osób lubiących połączenie funkcjonalności z atrakcyjnym i nowoczesnym wyglądem. Ciekawym elementem jest z pewnością usytuowany w salonie kominek, który nada wnętrzu niepowtarzalny klimat. W pełni funkcjonalną łazienkę przewidziano zarówno na parterze, jak i poddaszu, co jest świetnym rozwiązaniem dla większej ilości domowników. W projekcie przewidziano pięć sypialni, które będą odpowiednie dla 5-7 domowników. Przestrzeń można wykorzystać także jako pokój dla gości lub gabinet. Taras daje możliwość kontaktu z przyrodą i sprzyja wypoczynkowi. Projekt powstał z myślą o Inwestorach, którzy planują zbudować dom w technologii murowanej. W jego bryle widoczne są rozwiązania nawiązujące do stylu tradycyjnego, dlatego będzie prezentować się doskonale niezależnie od okolicy.
Czytaj więcej

Polecani producenci

Kompletne systemy rekuperacji

tło producenta

Alnor

Dowiedz się więcej

Prefabrykowane konstrukcje dachowe

tło producenta

WIĄZAR POLSKA

Zobacz więcej

Sprawdź nową generację okien GREENVIEW

tło producenta

FAKRO

Sprawdź nową generację okien GREENVIEW

Styropian, tynki, farby, kleje

tło producenta

Termo Organika

Poznaj super jakość

Okna, drzwi, osłony przeciwsłoneczne

tło producenta

Aluprof

Sprawdź ofertę
Zobacz więcej

Społeczność projektu domu
Jelonek As (1034) w budowie

Dołącz do społeczności osób, które budują ten dom lub są zainteresowane jego budową.

  • Oglądaj zdjęcia z budowy
  • Zadawaj pytania
  • Wymieniaj się doświadczeniami

Opinie o projekcie domu Jelonek As (1034)

5

Na podstawie 2 recenzji

Wspaniały!
50%
Bardzo dobry
50%
Średni
0%
Słaby
0%
Bardzo słaby
0%

Wywiady mieszkańców domu Jelonek As (1034)

Zdjęcie profilowe użytkownika Gałma Gałma

Gdy wraz z żoną rozpoczęliśmy poszukiwania optymalnego dla nas projektu, przede wszystkim musieliśmy mieć na uwadze wymiary zakupionej działki. Gabaryty domu były ważne nie tylko dlatego żeby dom się na niej zmieścił, ale także aby na działce zostało jeszcze wolne miejsce do zagospodarowania. Powyższy warunek spełniał projekt domu Jelonek As - murowana – beton komórkowy KRD1962, który w dodatku odpowiadał nam również pod innymi względami. Duże znaczenie przy wyborze miał także metraż. Nie chcieliśmy budować dużego domu powyżej 140 m², a zarazem zależało nam na w pełni komfortowej przestrzeni, dlatego też powierzchnia ok. 125 m² wydała nam się idealna. Spory wpływ na decyzje o realizacji projektu Jelonek As miał również uwzględniony w nim strop monolityczny, który moim zdaniem jest najrozsądniejszym rozwiązaniem w kwestii stropu.Wszystkie prace budowlane przebiegły sprawnie i po naszej myśli. Inwestycję udało nam się zakończyć w naprawdę korzystnym czasie, gdyż od rozpoczęcia budowy, do uzyskania dokumentu potwierdzającego odbiór budynku do użytkowania minęło ok. 1,5 roku. Projekt pod względem konstrukcyjnym został poprawnie sporządzony, a jedyną niedoskonałością techniczną jest fakt, iż nie uwzględniono w nim wylania ławy fundamentowej pod schodami. W przypadku drewnianych nie ma to znaczenia, jednak decydując się na sugerowane przez architekta schody betonowe, warto wylać ławę również w tym miejscu.Ściany wymurowaliśmy z bloczków z betonu komórkowego 24 cm marki Solbet. Od początku zależało mi na żelbetowej konstrukcji stropu, który w projekcie Jelonek As - murowana – beton komórkowy KRD1962 został ponadto bardzo dobrze opracowany i wyliczony. Co prawda, wykonawcy próbowali namówić nas na zastosowanie systemu Teriva, który wymaga mniej pracy, jednak w tej kwestii postanowiliśmy ściśle trzymać się zaleceń architekta i również zachęcam do tego innych Inwestorów. Dach pokryliśmy dachówką.Projekt domu Jelonek As - murowana – beton komórkowy KRD1962 został funkcjonalnie przemyślany, a kilka prostych zmian pozwoliło dopasować go do wszystkich naszych oczekiwań. Wprowadziliśmy pewne przesunięcia w kwestii ścianek działowych na poddaszu i obecnie zamiast czterech niedużych sypialni, mamy trzy, w pełni przestronne pokoje. Postanowiliśmy zrezygnować z wykonania balkonu, a także gabinetu na parterze. Jego powierzchnię przyłączyliśmy do salonu, uzyskując tym samym strefę dzienną o naprawdę sporym metrażu. Innych zmian nie wprowadzaliśmy, jednak obecnie uważam że dobrym pomysłem byłoby przeniesienie jednego okna tarasowego na tylną ścianę domu oraz rezygnacja ze środkowego przeszklenia w salonie.Jesteśmy zadowoleni z wyboru projektu domu parterowego z poddaszem użytkowym Jelonek As - murowana – beton komórkowy KRD1962. Co prawda, z racji tego iż w bryle oraz konstrukcji dachu przewidziano ciekawe, ozdobne elementy, budynek nie należy do wyjątkowo łatwych w budowie, ale za to wyróżnia się na tle innych, prostych domów. Musze przyznać, że nowy dom jest nie tylko funkcjonalny, ale także świetnie prezentuje się z zewnątrz i często słyszymy na jego temat bardzo pozytywne komentarze. Pozdrawiam.

ASYSTENT WYBORU PROJEKTU

Szukasz idealnego projektu? Znajdziemy go dla Ciebie!

Doradca na podstawie Twoich wskazówek przygotuje spersonalizowaną listę projektów

Graficzne opracowanie rzutów poglądowych widocznych na karcie projektu zostało wykonane przez Extradom.pl. Prezentowane przez Extradom.pl wizualizacje wykonane zostały przez autora projektu i należy poczytywać je jedynie za przykład i propozycję wykończenia, wizję architektoniczną autora projektu. Ostateczne wykończenie budynku może nastąpić na wiele sposobów. Szczegółowe rozwiązania zastosowane w oferowanej dokumentacji - w tym również ilość, lokalizacje i wygląd okien, drzwi, kominów - mogą w niewielkim stopniu różnić się od prezentowanej wizualizacji budynku.

REKLAMA
Zamknij