Projekty nawet 500 zł taniej ❄️

Koniec oferty za:

0dni

00godz.

00min.

00sek.

Sprawdź

Projekt domu Elmo WRC2333

Dodano!
Dodano!

Warstwy

Rzut parteru

Powierzchnia (m²)
Tooltip
Powierzchnia pomieszczenia
to ta, z której faktycznie możesz korzystać – skosy i niskie części poddasza są liczone częściowo lub wcale.
  1. 100% dla wysokości powyżej 2,2 m,
  2. 50% dla wysokości 1,4–2,2 m,
  3. nie liczymy poniżej 1,4 m.

Powierzchnia podłogi
Liczymy po obrysie pomieszczenia, bez względu na jego wysokość/skosy. Jeśli nie ma skosów to powierzchnia podłogi i pomieszczenia jest taka sama.
pomieszczenia i podłogi
podłogi
1. Wiatrołap
2,59
2. Hol
5,44
3. Kuchnia
9,63
4. Pokój dzienny
23,54
5. Korytarz
4,31
6. Sypialnia
13,37
7. Sypialnia
10,23
8. Łazienka
6,89
9. Kotłownia
5,83
Razem
81,83
81,83

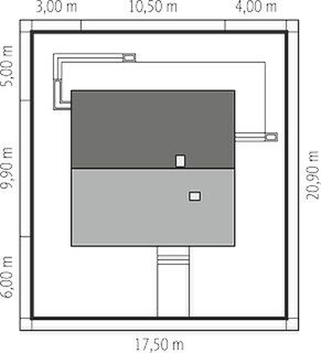
    Usytuowanie na działce

    Czy ten projekt pasuje na
    Twoją działkę?

    Chętnie to sprawdzimy!

    Dowiedz się:

    • czy zmieści się na niej wybrany przez Ciebie dom
    • jakie parametry musi spełniać dom według miejscowego planu zagospodarowania lub warunków zabudowy (np. kąt nachylenia i typ dachu, liczba kondygnacji itp.
    • jakie inne projekty pasują na Twoją działkę – znajdziemy je dla Ciebie!

Pow. użytkowa

76 m²

Pokoje

0

Łazienki i WC

1

Garaż

0

Kąt dachu

30°
więcej

Elmo - WRC2333

ikona 76 m²
Powierzchnia użytkowa
ikona0
Pokoje (bez salonu)
ikona 1
Łazienki (z toaletami)
ikona 0
Liczba stanowisk garażowych
(z wiatą garażową)

Projekt został
wycofany z oferty

W razie pytań prosimy o kontakt
z Centrum Obsługi Klienta
Konsultant Masz pytania?
Zadzwoń
71 715 20 60

pon.-pt. 8-21, sob. 9-17

Parter - 81,83 m²

Parter projektu Elmo

Zapytaj, co możesz zmienić

Powierzchnia (m²)
Tooltip
Powierzchnia pomieszczenia
to ta, z której faktycznie możesz korzystać – skosy i niskie części poddasza są liczone częściowo lub wcale.
  1. 100% dla wysokości powyżej 2,2 m,
  2. 50% dla wysokości 1,4–2,2 m,
  3. nie liczymy poniżej 1,4 m.

Powierzchnia podłogi
Liczymy po obrysie pomieszczenia, bez względu na jego wysokość/skosy. Jeśli nie ma skosów to powierzchnia podłogi i pomieszczenia jest taka sama.
pomieszczenia i podłogi
podłogi
1. Wiatrołap
2,59
2. Hol
5,44
3. Kuchnia
9,63
4. Pokój dzienny
23,54
5. Korytarz
4,31
6. Sypialnia
13,37
7. Sypialnia
10,23
8. Łazienka
6,89
9. Kotłownia
5,83
Razem
81,83
81,83

Podobne projekty (3483)

Zobacz wszystkie
Nowość
Zdjęcie 1 projektu Kwadra Meta (1955) KRD3086
Kwadra Meta (1955)
Dodano!
Dodano!
84,90 m²
3
2
0

2 712 zł

NIŻSZA CENA❄️
Zdjęcie 1 projektu Sensowny 3 WAH2041
Sensowny 3
Dodano!
Dodano!
71,18 m²
3
1
0

4 120 zł

5 150 zł

Tooltip

Cena regularna

3 862 zł najniższa cena
Tooltip

Najniższa cena z 30 dni
przed obniżką

NIŻSZA CENA❄️
Zdjęcie 1 projektu Kasia WAH2008
Kasia
Dodano!
Dodano!
63,70 m²
2
2
0

4 152 zł

5 190 zł

Tooltip

Cena regularna

3 892 zł najniższa cena
Tooltip

Najniższa cena z 30 dni
przed obniżką

NIŻSZA CENA❄️
Zdjęcie 1 projektu Dom przy Bukowej 21 KRK1561
Dom przy Bukowej 21
Dodano!
Dodano!
81,44 m²
3
1
0

3 290 zł

3 790 zł

Tooltip

Cena regularna

3 190 zł najniższa cena
Tooltip

Najniższa cena z 30 dni
przed obniżką

NIŻSZA CENA❄️
Zdjęcie 1 projektu Kasia 2 WAH2013
Kasia 2
Dodano!
Dodano!
63,70 m²
2
2
1

4 152 zł

5 190 zł

Tooltip

Cena regularna

3 892 zł najniższa cena
Tooltip

Najniższa cena z 30 dni
przed obniżką

Zdjęcie 1 projektu Dorado WOW1043
Dorado
Dodano!
Dodano!
73,27 m²
2
1
0

4 200 zł

NIŻSZA CENA❄️
Zdjęcie 1 projektu Antek (1549) KRD2697
Antek (1549)
Dodano!
Dodano!
63,60 m²
2
1
0

3 190 zł

3 540 zł

Tooltip

Cena regularna

2 990 zł najniższa cena
Tooltip

Najniższa cena z 30 dni
przed obniżką

NIŻSZA CENA❄️
Nowość
Zdjęcie 1 projektu Słoneczny 3 GDE1081
Słoneczny 3
Dodano!
Dodano!
80,74 m²
4
1
0

3 850 zł

3 950 zł

Tooltip

Cena regularna

3 750 zł najniższa cena
Tooltip

Najniższa cena z 30 dni
przed obniżką

Elewacje

Frontowa
Tylna
Lewa
Prawa

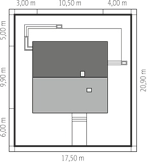
Usytuowanie na działce

Czy ten projekt pasuje na
Twoją działkę?

Chętnie to sprawdzimy!

Czy ten projekt pasuje na
Twoją działkę?

Chętnie to sprawdzimy!

Dowiedz się:

  • czy zmieści się na niej wybrany przez Ciebie dom
  • jakie parametry musi spełniać dom według miejscowego planu zagospodarowania lub warunków zabudowy (np. kąt nachylenia i typ dachu, liczba kondygnacji itp.
  • jakie inne projekty pasują na Twoją działkę – znajdziemy je dla Ciebie!
Autor: Pracownia Projektowa ARCHIPELAG

Dane techniczne projektu

Powierzchnie i wymiary Powierzchnie i wymiary

Powierzchnia użytkowa
Tooltip
Suma powierzchni wszystkich pomieszczeń mieszkalnych, pomniejszona o pow. garażu, kotłowni, strychu, piwnicy. Jest liczona w 100% dla pomieszczeń o wysokości powyżej 2,2 m, w 50% dla pomieszczeń o wys. 2,2-1,4 m i niewliczana dla niższych niż 1,4 m.

76 m²

Powierzchnia zabudowy
Tooltip
Powierzchnia zajmowana przez część na- oraz nadziemną budynku liczona, jako rzut pionowy budynku na działkę.

105,38 m²

Kąt nachylenia dachu
Tooltip
Nachylenie połaci dachu głównego podawane w stopniach. Uwaga! W niektórych projektach występuje więcej niż jedno nachylenie dachu.

30°

Wysokość budynku
Tooltip
Wysokość liczona od części budynku położonej najniżej przy powierzchni terenu do najwyższego punktu dachu (kalenicy) z wyłączeniem kominów.

6,84 m

Min. szerokość działki
Tooltip
Najmniejsza możliwa szerokość działki niezbędna do wybudowania wybranego domu. Składa się z szerokości elewacji domu powiększonej z obu stron o 3 m dla ściany bez otworów drzwiowych/okiennych lub 4 m, dla ściany z otworami.

17,50 m

Energooszczędność Energooszczędność

Oze Czym jest OZE (Odnawialne Źródło Energii)?
Warunki techniczne

Projekt zgody z WT 2021

Gotowe domy modułowe (114)

Zobacz wszystkie
Stan deweloperski nawet w 6 miesięcy Gwarancja stałej ceny
Zdjęcie 1 projektu Dom prefabrykowany DEX76 HDX1000
Pow. użytkowa
76 m²
Pokoje
2
505 000 zł 6 645 zł/m²
Zdjęcie 1 projektu Dom keramzytowy Fiore 76 HRK1003
Pow. użytkowa
75,95 m²
Pokoje
3
344 520 zł 4 536 zł/m²
Zdjęcie 1 projektu Dom szkieletowy Space Smart 90 HHT1021
Pow. użytkowa
74 m²
Pokoje
3
379 527 zł 5 129 zł/m²
Zdjęcie 1 projektu Dom szkieletowy One Step Smart 90 HHT1019
Pow. użytkowa
73,45 m²
Pokoje
2
428 600 zł 5 318 zł/m²
Zdjęcie 1 projektu Dom prefabrykowany DH70 HDH1003
Pow. użytkowa
73,10 m²
Pokoje
3
409 320 zł 5 599 zł/m²
Zdjęcie 1 projektu Dom prefabrykowany Parterowy 80B HFX1004
Pow. użytkowa
79,27 m²
Pokoje
3
385 000 zł 4 857 zł/m²
Zdjęcie 1 projektu Dom prefabrykowany Parterowy 80A HFX1003
Pow. użytkowa
79,48 m²
Pokoje
3
385 000 zł 4 844 zł/m²
Zdjęcie 1 projektu Dom prefabrykowany Parterowy 80C HFX1005
Pow. użytkowa
79,83 m²
Pokoje
2
385 000 zł 4 823 zł/m²

Opis projektu domu
Elmo

Elmo to dom zaprojektowany w duchu energooszczędnej prostoty – zwarta bryła eliminuje ryzyko występowania mostków termicznych, a prosty dwuspadowy dach jest tani w budowie i doskonale nadaje się do zamontowania na nim systemu solarnego. Na jednej kondygnacji udało się zaplanować funkcjonalne wnętrze, które maksymalnie wykorzystuje przestrzeń użytkową. Z zewnątrz dom czaruje swoim atrakcyjnym wyglądem – symetryczną strefą wejściową i smakowitą kompozycją elewacji utrzymaną w tonacji apetycznego cappuccino. Od strony ogrodowej zaplanowano duże przeszklenia, które zapraszają do wnętrz zieleń roślin i naturalne światło, otulające przestrzeń swoim przytulnym blaskiem. Atutem domu jest również komfortowy taras, na którym domownicy mogą witać dzień filiżanką pachnącej kawy, a wieczorem odpoczywać w towarzystwie balsamicznej ciszy ogrodu. Charakterystyka: Dom parterowy, niepodpiwniczony Przeznaczenie: Dom dla 2-3-osobowej rodziny Układ funkcjonalny: Strefa dzienna: salon z kominkiem, kuchnia oraz jadalnia Strefa nocna: dwie sypialnie oraz duża łazienka Dodatkowo: kotłownia Atuty projektu okiem architekta: - Zwarta bryła budynku sprzyjająca oszczędności na dociepleniu, energii na ogrzanie i utrzymanie w przyszłości - Znakomite parametry cieplne - Zblokowane piony instalacyjne to oszczędność na etapie budowy i eksploatacji instalacji - Funkcjonalne i ergonomiczne wnętrze - Salon z kominkiem oferujący wiele możliwości aranżacji - Duże przeszklenia od strony ogrodu - Subtelna kompozycja elewacji Bryla sprzyja wykonaniu energooszczędnych rozwiązań instalacyjnych: - wentylacji mechanicznej z odzyskiem ciepła - systemu solarnego i fotowoltaicznego - pompy ciepła Istnieje możliwość: - zbliźniaczenia lub wykonania domu dwurodzinnego

Dostępne wersje:
- Elmo - z garażem jedno- i dwustanowiskowym
- Elmo II - inna aranżacja parteru, z garażem jedno- i dwustanowiskowym
- Odbicia lustrzane do wszystkich wersji
Czytaj więcej

Polecani producenci

Prefabrykowane konstrukcje dachowe

tło producenta

WIĄZAR POLSKA

Zobacz więcej

Sprawdź nową generację okien GREENVIEW

tło producenta

FAKRO

Sprawdź nową generację okien GREENVIEW

Styropian, tynki, farby, kleje

tło producenta

Termo Organika

Poznaj super jakość

Okna, drzwi, osłony przeciwsłoneczne

tło producenta

Aluprof

Sprawdź ofertę

Kompletne systemy rekuperacji

tło producenta

Alnor

Dowiedz się więcej

Sprawdź nowy system DACHRYNNA

tło producenta

Galeco

Sprawdź ofertę
Zobacz więcej

Społeczność projektu domu
Elmo w budowie

Dołącz do społeczności osób, które budują ten dom lub są zainteresowane jego budową.

  • Oglądaj zdjęcia z budowy
  • Zadawaj pytania
  • Wymieniaj się doświadczeniami

Opinie o projekcie domu Elmo

Ocena

Ten projekt nie ma jeszcze opinii, bądź pierwszy!

Dodaj opinię

ASYSTENT WYBORU PROJEKTU

Szukasz idealnego projektu? Znajdziemy go dla Ciebie!

Doradca na podstawie Twoich wskazówek przygotuje spersonalizowaną listę projektów

Graficzne opracowanie rzutów poglądowych widocznych na karcie projektu zostało wykonane przez Extradom.pl. Prezentowane przez Extradom.pl wizualizacje wykonane zostały przez autora projektu i należy poczytywać je jedynie za przykład i propozycję wykończenia, wizję architektoniczną autora projektu. Ostateczne wykończenie budynku może nastąpić na wiele sposobów. Szczegółowe rozwiązania zastosowane w oferowanej dokumentacji - w tym również ilość, lokalizacje i wygląd okien, drzwi, kominów - mogą w niewielkim stopniu różnić się od prezentowanej wizualizacji budynku.

REKLAMA
Zamknij