Projekty nawet 500 zł taniej ❄️

Koniec oferty za:

0dni

00godz.

00min.

00sek.

Sprawdź

Projekt domu Dom przy Przyjaznej 6 KRK1203

Dodano!
Dodano!

Warstwy

Warstwy

Rzut parteru

Powierzchnia (m²)
Tooltip
Powierzchnia pomieszczenia
to ta, z której faktycznie możesz korzystać – skosy i niskie części poddasza są liczone częściowo lub wcale.
  1. 100% dla wysokości powyżej 2,2 m,
  2. 50% dla wysokości 1,4–2,2 m,
  3. nie liczymy poniżej 1,4 m.

Powierzchnia podłogi
Liczymy po obrysie pomieszczenia, bez względu na jego wysokość/skosy. Jeśli nie ma skosów to powierzchnia podłogi i pomieszczenia jest taka sama.
pomieszczenia i podłogi
podłogi
1. Wiatrołap
2,80
2. Kotłownia
6
3. Garaż jednostanowiskowy
21,80
4. Łazienka
3,80
5. Korytarz
2,20
6. Pokój dzienny
34,90
7. Kuchnia
9
8. Spiżarnia
1
Razem
81,50
81,50
Powierzchnia (m²)
Tooltip
Powierzchnia pomieszczenia
to ta, z której faktycznie możesz korzystać – skosy i niskie części poddasza są liczone częściowo lub wcale.
  1. 100% dla wysokości powyżej 2,2 m,
  2. 50% dla wysokości 1,4–2,2 m,
  3. nie liczymy poniżej 1,4 m.

Powierzchnia podłogi
Liczymy po obrysie pomieszczenia, bez względu na jego wysokość/skosy. Jeśli nie ma skosów to powierzchnia podłogi i pomieszczenia jest taka sama.
pomieszczenia
podłogi
1. Korytarz + schody
8
8
2. Łazienka
5,80
7,20
3. Pokój
15,30
20,30
4. Pokój
12,20
14,40
5. Pokój
13,80
15,70
6. Pokój
10,60
12,80
Razem
65,70
78,40

    Usytuowanie na działce

    Czy ten projekt pasuje na
    Twoją działkę?

    Chętnie to sprawdzimy!

    Dowiedz się:

    • czy zmieści się na niej wybrany przez Ciebie dom
    • jakie parametry musi spełniać dom według miejscowego planu zagospodarowania lub warunków zabudowy (np. kąt nachylenia i typ dachu, liczba kondygnacji itp.
    • jakie inne projekty pasują na Twoją działkę – znajdziemy je dla Ciebie!

Pow. użytkowa

119,40 m²

Pokoje

4

Łazienki i WC

2

Garaż

1

Min. szer. i dł. działki

21,05 x 17 m

Kąt dachu

40°

Konstrukcja

Murowana
więcej

Dom przy Przyjaznej 6 - KRK1203

ikona 119,40 m²
Powierzchnia użytkowa
ikona4
Pokoje (bez salonu)
ikona 2
Łazienki (z toaletami)
ikona 1
Liczba stanowisk garażowych
(z wiatą garażową)
ikona
Konstrukcja: Murowana

Projekt został
wycofany z oferty

W razie pytań prosimy o kontakt
z Centrum Obsługi Klienta
Konsultant Masz pytania?
Zadzwoń
71 715 20 60

pon.-pt. 8-21, sob. 9-17

Parter - 81,50 m²

Parter projektu Dom przy Przyjaznej 6

Zapytaj, co możesz zmienić

Powierzchnia (m²)
Tooltip
Powierzchnia pomieszczenia
to ta, z której faktycznie możesz korzystać – skosy i niskie części poddasza są liczone częściowo lub wcale.
  1. 100% dla wysokości powyżej 2,2 m,
  2. 50% dla wysokości 1,4–2,2 m,
  3. nie liczymy poniżej 1,4 m.

Powierzchnia podłogi
Liczymy po obrysie pomieszczenia, bez względu na jego wysokość/skosy. Jeśli nie ma skosów to powierzchnia podłogi i pomieszczenia jest taka sama.
pomieszczenia i podłogi
podłogi
1. Wiatrołap
2,80
2. Kotłownia
6
3. Garaż jednostanowiskowy
21,80
4. Łazienka
3,80
5. Korytarz
2,20
6. Pokój dzienny
34,90
7. Kuchnia
9
8. Spiżarnia
1
Razem
81,50
81,50

Poddasze - 65,70 m²

Poddasze projektu Dom przy Przyjaznej 6

Zapytaj, co możesz zmienić

Powierzchnia (m²)
Tooltip
Powierzchnia pomieszczenia
to ta, z której faktycznie możesz korzystać – skosy i niskie części poddasza są liczone częściowo lub wcale.
  1. 100% dla wysokości powyżej 2,2 m,
  2. 50% dla wysokości 1,4–2,2 m,
  3. nie liczymy poniżej 1,4 m.

Powierzchnia podłogi
Liczymy po obrysie pomieszczenia, bez względu na jego wysokość/skosy. Jeśli nie ma skosów to powierzchnia podłogi i pomieszczenia jest taka sama.
pomieszczenia
podłogi
1. Korytarz + schody
8
8
2. Łazienka
5,80
7,20
3. Pokój
15,30
20,30
4. Pokój
12,20
14,40
5. Pokój
13,80
15,70
6. Pokój
10,60
12,80
Razem
65,70
78,40

Warianty projektu (5)

PROMOCJA
Projekt domu Dom przy Przyjaznej
Dom przy Przyjaznej
Dodano!
Dodano!
101,87 m²
4
2
0

3 190 zł

3 690 zł

Tooltip

Cena regularna

3 090 zł najniższa cena
Tooltip

Najniższa cena z 30 dni
przed obniżką

PROMOCJA
Projekt domu Dom przy Przyjaznej 16
Dom przy Przyjaznej 16
Dodano!
Dodano!
158,67 m²
5
3
2

3 490 zł

3 990 zł

Tooltip

Cena regularna

3 390 zł najniższa cena
Tooltip

Najniższa cena z 30 dni
przed obniżką

PROMOCJA
Projekt domu Dom przy Przyjaznej 2
Dom przy Przyjaznej 2
Dodano!
Dodano!
125 m²
5
3
2

3 390 zł

3 890 zł

Tooltip

Cena regularna

3 290 zł najniższa cena
Tooltip

Najniższa cena z 30 dni
przed obniżką

PROMOCJA
Projekt domu Dom przy Przyjaznej 3
Dom przy Przyjaznej 3
Dodano!
Dodano!
101,86 m²
4
2
0

3 390 zł

3 890 zł

Tooltip

Cena regularna

3 290 zł najniższa cena
Tooltip

Najniższa cena z 30 dni
przed obniżką

PROMOCJA
Projekt domu Dom przy Przyjaznej 11
Dom przy Przyjaznej 11
Dodano!
Dodano!
158,67 m²
5
3
2

3 490 zł

3 990 zł

Tooltip

Cena regularna

3 390 zł najniższa cena
Tooltip

Najniższa cena z 30 dni
przed obniżką

Podobne projekty (5731)

Zobacz wszystkie
NIŻSZA CENA❄️
Zdjęcie 1 projektu Skarbek As (1546) KRD2695
Skarbek As (1546)
Dodano!
Dodano!
115,10 m²
4
2
1

4 540 zł

4 890 zł

Tooltip

Cena regularna

4 340 zł najniższa cena
Tooltip

Najniższa cena z 30 dni
przed obniżką

NIŻSZA CENA❄️
Zdjęcie 1 projektu Sej-pro 044/1 energo ELW1030
Sej-pro 044/1 energo
Dodano!
Dodano!
101,16 m²
3
2
1

5 097 zł

5 397 zł

Tooltip

Cena regularna

4 797 zł najniższa cena
Tooltip

Najniższa cena z 30 dni
przed obniżką

NIŻSZA CENA❄️
Zdjęcie 1 projektu Nina 2A 37 WRR1086
Nina 2A 37
Dodano!
Dodano!
95,30 m²
3
1
0

3 315 zł

3 900 zł

Tooltip

Cena regularna

3 120 zł najniższa cena
Tooltip

Najniższa cena z 30 dni
przed obniżką

NIŻSZA CENA❄️
Zdjęcie 1 projektu Malinowy BSA2031
Malinowy
Dodano!
Dodano!
118,43 m²
3
2
0

4 949 zł

5 449 zł

Tooltip

Cena regularna

4 949 zł najniższa cena
Tooltip

Najniższa cena z 30 dni
przed obniżką

Nowość
Zdjęcie 1 projektu Krajobrazy 11 WRN1573
Krajobrazy 11
Dodano!
Dodano!
110,30 m²
3
2
1

4 095 zł

NIŻSZA CENA❄️
Zdjęcie 1 projektu Trypolis 4 SLN2409
Trypolis 4
Dodano!
Dodano!
106,30 m²
3
2
2

3 599 zł

3 899 zł

Tooltip

Cena regularna

3 399 zł najniższa cena
Tooltip

Najniższa cena z 30 dni
przed obniżką

NIŻSZA CENA❄️
Zdjęcie 1 projektu Trypolis 2 szkielet drewniany SLN2423
106,36 m²
3
2
1

3 399 zł

3 699 zł

Tooltip

Cena regularna

3 199 zł najniższa cena
Tooltip

Najniższa cena z 30 dni
przed obniżką

Zdjęcie 1 projektu N35-G1 KKG1032
N35-G1
Dodano!
Dodano!
100,58 m²
4
2
1

5 100 zł

Elewacje

Frontowa
Tylna
Lewa
Prawa

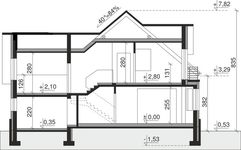
Przekroje

Przekrój pionowy

Usytuowanie na działce

Czy ten projekt pasuje na
Twoją działkę?

Chętnie to sprawdzimy!

Czy ten projekt pasuje na
Twoją działkę?

Chętnie to sprawdzimy!

Dowiedz się:

  • czy zmieści się na niej wybrany przez Ciebie dom
  • jakie parametry musi spełniać dom według miejscowego planu zagospodarowania lub warunków zabudowy (np. kąt nachylenia i typ dachu, liczba kondygnacji itp.
  • jakie inne projekty pasują na Twoją działkę – znajdziemy je dla Ciebie!
Autor: GALERIADOMOW.PL

Dane techniczne projektu

Powierzchnie i wymiary Powierzchnie i wymiary

Powierzchnia użytkowa
Tooltip
Suma powierzchni wszystkich pomieszczeń mieszkalnych, pomniejszona o pow. garażu, kotłowni, strychu, piwnicy. Jest liczona w 100% dla pomieszczeń o wysokości powyżej 2,2 m, w 50% dla pomieszczeń o wys. 2,2-1,4 m i niewliczana dla niższych niż 1,4 m.

119,40 m²

Powierzchnia zabudowy
Tooltip
Powierzchnia zajmowana przez część na- oraz nadziemną budynku liczona, jako rzut pionowy budynku na działkę.

105,50 m²

Kubatura brutto
Tooltip
Zazwyczaj jest to suma kubatur (objętości) wszystkich pomieszczeń budynku, liczonych po zewnętrznym obrysie murów (z ociepleniem).

601 m³

Powierzchnia dachu

175 m²

Kąt nachylenia dachu
Tooltip
Nachylenie połaci dachu głównego podawane w stopniach. Uwaga! W niektórych projektach występuje więcej niż jedno nachylenie dachu.

40°

Wysokość budynku
Tooltip
Wysokość liczona od części budynku położonej najniżej przy powierzchni terenu do najwyższego punktu dachu (kalenicy) z wyłączeniem kominów.

8,30 m

Min. szerokość działki
Tooltip
Najmniejsza możliwa szerokość działki niezbędna do wybudowania wybranego domu. Składa się z szerokości elewacji domu powiększonej z obu stron o 3 m dla ściany bez otworów drzwiowych/okiennych lub 4 m, dla ściany z otworami.

21,05 m

Min. długość działki
Tooltip
Najmniejsza możliwa długość działki niezbędna do wybudowania wybranego domu. Składa się z długości elewacji domu powiększonej z obu stron o 3 m dla ściany bez otworów drzwiowych/okiennych lub 4 m, dla ściany z otworami.

17 m

Energooszczędność Energooszczędność

Oze Czym jest OZE (Odnawialne Źródło Energii)?
Warunki techniczne

Projekt zgody z WT 2021

Technologia i konstrukcja Technologia i konstrukcja

Konstrukcja

Murowana

Opis szczegółowy

Ściany zewnętrzne: pustak 25 cm, styropian 15 cm. Ściany nośne: pustak 25 cm. Strop: monolityczny żelbetowy. Dach: kąt nachylenia 40°, pokrycie - dachówka ceramiczna lub betonowa.

Strop

Żelbetowy

Reklama
Okna i drzwi tarasowe

Nowoczesne okna PVC i aluminiowe WIŚNIOWSKI – doskonała izolacja, elegancki design i niezrównana trwałość.

Wiśniowski
Sprawdź parametry!
Okna dachowe

Oferujemy bezpłatne konsultacje w zakresie wszystkich rozwiązań VELUX. Wyceny, porady dotyczące doboru okien i rolet zewnętrznych - sprawdź!

Velux
Sprawdź szczegóły
Płytki ceramiczne i gresy

Od małych formatów po wielkoformatowe gresy. Marmur, beton, drewno, kamień, lastryko czy cegiełki zamówisz wygodnie online z szybką dostawą.

Ceramzet
Sprawdź ofertę
Drzwi

Ciepłe drzwi WIŚNIOWSKI z kontrolą dostępu. Szeroka gama wzorów i kolorów.

Wiśniowski
Wybierz najlepsze
Bramy garażowe

Automatyczne bramy garażowe segmentowe i uchylne WIŚNIOWSKI na wymiar i z systemem smart home w standardzie.

Wiśniowski
Sprawdź ofertę!
Armatura i ceramika łazienkowa

Topowi producenci. Baterie łazienkowe, zestawy natynkowe i podtynkowe, umywalki, wanny, miski WC oraz kabiny zamówisz kompleksowo online.

Ceramzet II
Dowiedz się więcej
Rekuperacja

Alnor - kompletny system rekuperacji. Dobierz idealne rozwiązanie dla Twojego domu!

Alnor
Dobierz rekuperator
Gruntowe pompy ciepła

Przeprowadzimy kompletną instalację najbardziej oszczędnego źródła ciepła w Twoim nowym domu - gruntowej pompy ciepła. Od dokumentacji, pozwoleń, po odwierty i instalację.

Geothermal Solutions
Dowiedz się więcej

Gotowe domy modułowe (114)

Zobacz wszystkie
Stan deweloperski nawet w 6 miesięcy Gwarancja stałej ceny
Zdjęcie 1 projektu Dom szkieletowy Scandinavian Smart 120 HHT1020
Pow. użytkowa
119,43 m²
Pokoje
3
571 271 zł 4 761 zł/m²
Zdjęcie 1 projektu Dom prefabrykowany P.14 HPK1026
Pow. użytkowa
118,94 m²
Pokoje
3
694 700 zł 5 829 zł/m²
Zdjęcie 1 projektu Dom modułowy Soul HMD1001
Gotowy dom modułowy Soul
Dodano!
Dodano!
Pow. użytkowa
118,94 m²
Pokoje
4
518 000 zł 3 654 zł/m²
Zdjęcie 1 projektu Dom szkieletowy Emily Smart 120 HHT1026
Pow. użytkowa
120 m²
Pokoje
3
592 512 zł 4 938 zł/m²
Zdjęcie 1 projektu Dom prefabrykowany Parterowy 120C HFX1017
Pow. użytkowa
120,06 m²
Pokoje
4
489 000 zł 4 073 zł/m²
Zdjęcie 1 projektu Dom szkieletowy Creative Smart 160 HHT1023
Pow. użytkowa
118,35 m²
Pokoje
4
780 019 zł 6 591 zł/m²
Zdjęcie 1 projektu Dom prefabrykowany Parterowy 120A HFX1015
Pow. użytkowa
121,44 m²
Pokoje
4
489 000 zł 4 027 zł/m²
Zdjęcie 1 projektu Dom prefabrykowany P.3 z okapem HPK1013
Pow. użytkowa
121,46 m²
Pokoje
5
600 100 zł 4 941 zł/m²

Opis projektu domu
Dom przy Przyjaznej 6

Dom Dom przy Przyjaznej 6 został stworzony na wzór popularnego projektu Dom przy Przyjaznej. W odróżnieniu od bazowej wersji projekt ma większą powierzchnię, garaż. Projekt domu Dom przy Przyjaznej 6 to ciekawa propozycja dla osób posiadających średniej szerokości działkę. Dom posiada typową bryłę, więc jego realizacja jest łatwa. Uwzględniony w nim wykusz nadaje konstrukcji wyjątkowego charakteru. W tym projekcie kalenica skierowana jest prostopadle do drogi, co jest bardzo istotne, gdy wymagają tego warunki zabudowy. Dom został stworzony do zabudowy wolnostojącej. W projekcie zaproponowano garaż jednostanowiskowy w linii budynku. Jest to również doskonała propozycja dla osób szukających domu z dachem dwuspadowym, co znacznie obniża koszty budowy. Projekt Dom przy Przyjaznej 6 to dom parterowy z poddaszem użytkowym, co sprawia, że jego powierzchnia jest wyraźnie podzielona na strefy: dzienną i nocną.Zwolenników przestronnych przestrzeni z pewnością ucieszy przewidziana w projekcie część dzienna. Projekt przewiduje zamkniętą kuchnię. Takie rozwiązanie umożliwia łatwiejsze zagospodarowanie i rozmieszczenia mebli. Dodatkowo przewidziana spiżarnia to idealne miejsce na przechowywanie przetworów i zapasów żywności. W salonie znajduje się nastrojowy kominek dający przyjemne ciepło i nadający wnętrzu przyjemnej atmosfery. Łazienka na parterze sprawdzi się podczas odwiedzin gości, a druga ulokowana na poddaszu - dla domowników. W domu znajdują się trzy wygodne sypialnie, co sprawia iż jest on doskonałym wyborem dla 4-6 osobowej rodziny. Przestrzeń można wykorzystać także jako pokój dla gości lub gabinet. Zalecana przez architekta technologia murowana zapewnia trwałość i solidność konstrukcji. Jego wygląd zewnętrzny uwydatnia cechy charakterystyczne dla stylu tradycyjnego, dzięki czemu idealnie wpisze się w dowolny krajobraz.
Czytaj więcej

Informacje dodatkowe

Projekt na etapie adaptacji należy dostosować do nowych przepisów.

Czytaj więcej

Polecani producenci

Prefabrykowane konstrukcje dachowe

tło producenta

WIĄZAR POLSKA

Zobacz więcej

Sprawdź nową generację okien GREENVIEW

tło producenta

FAKRO

Sprawdź nową generację okien GREENVIEW

Styropian, tynki, farby, kleje

tło producenta

Termo Organika

Poznaj super jakość

Okna, drzwi, osłony przeciwsłoneczne

tło producenta

Aluprof

Sprawdź ofertę

Kompletne systemy rekuperacji

tło producenta

Alnor

Dowiedz się więcej

Sprawdź nowy system DACHRYNNA

tło producenta

Galeco

Sprawdź ofertę
Zobacz więcej

Społeczność projektu domu
Dom przy Przyjaznej 6 w budowie

Dołącz do społeczności osób, które budują ten dom lub są zainteresowane jego budową.

  • Oglądaj zdjęcia z budowy
  • Zadawaj pytania
  • Wymieniaj się doświadczeniami

Opinie o projekcie domu Dom przy Przyjaznej 6

5

Na podstawie 1 recenzji

Wspaniały!
100%
Bardzo dobry
0%
Średni
0%
Słaby
0%
Bardzo słaby
0%

Wywiady mieszkańców domu Dom przy Przyjaznej 6

Zdjęcie profilowe użytkownika jakubowska jakubowska

Zdecydowaliśmy się na zakup projektu domu Dom przy Przyjaznej 6 KRK1203, ponieważ jego wygląd zewnętrzny bardzo nam się spodobał. Szczególnie przypadła nam do gustu ciekawa konstrukcja dachu.Na szczęście udało nam się zbudować nasz dom, nie napotykając po drodze na żadne trudności. Ściany zewnętrzne wymurowaliśmy z pustaków Porotherm 25cm. Cały budynek został ocieplony 15cm warstwą białego styropianu. Ze względu na możliwość podłączenia do działki gazu ziemnego, zdecydowaliśmy się na ten rodzaj ogrzewania.Rozkład pokoi w projekcie domu Dom przy Przyjaznej 6 KRK1203 jest dobrze przemyślany. Przy stosunkowo niewielkim metrażu uwzględniono w nim wszystkie potrzebne pomieszczenia, więc nie mieliśmy potrzeby, aby cokolwiek w nim poprawiać. W naszym przypadku wszystko zostało wybudowane zgodnie z pierwowzorem.Dom usytuowany mamy na działce w ten sposób, iż wykusz jadalniany znajduje się po stronie południowej. Tym samym front i wjazd do garażu mamy od zachodu. W domu jest wystarczająco jasno i nie mamy żadnych problemów z doświetleniem pomieszczeń.Moja rodzina liczy 4 osoby. Moim zdaniem, taka liczba domowników jest optymalna dla tego metrażu. Myślę, że przy tej ilości pomieszczeń, mogłaby zamieszkać rodzina z jednym dzieckiem więcej niż my, ale już nikt poza tym.W naszym nowym domu szczególnie podoba mi się salon, który udało nam się efektownie zrealizować. Jestem zadowolona z wyboru projektu domu parterowego z poddaszem użytkowym Dom przy Przyjaznej 6 KRK1203. Jego powierzchnia jest w sam raz dla takiej rodziny jak my i nic nie chcielibyśmy w nim zmienić. Polecam i pozdrawiam.

Zdjęcie profilowe użytkownika olawiosenka olawiosenka

Przed podjęciem ostatecznej decyzji byliśmy zainteresowani projektem uwzględniającym sypialnię na dolnej kondygnacji. Finalnie stwierdziliśmy jednak, że bardziej zależy nam na dużych rozmiarach części dziennej, a spośród propozycji spełniających to wymaganie wybraliśmy projekt domu Dom przy Przyjaznej 6 KRK1203, który bardzo przypadł nam do gustu. Przewidziany w nim układ pomieszczeń został dobrze przemyślany i widzieliśmy, że w całości spełni on nasze oczekiwania. Istotna była dla nas również powierzchnia użytkowa, a w tym przypadku w łatwy sposób można było zmodyfikować ją na etapie adaptacji, aby otrzymać zwrot podatku VAT za materiały budowlane. Sypialnię nad garażem zamieniliśmy na przestrzeń gospodarczą i tym samym metraż użytkowy domu zmniejszył się do ok. 98 m², co uprawniało nas do odzyskania części poniesionych kosztów.Nasza realizacja odbyła się w naprawdę krótkim czasie, gdyż zaledwie po roku od rozpoczęcia pierwszych prac mogliśmy wprowadzić się do nowego domu. Co prawda, do ostatecznego zakończenia inwestycji zostało nam wykończenie łazienki na poddaszu, aczkolwiek nie przeszkadza to w wygodnym mieszkaniu. Łazienka przewidziana na parterze jest w pełni funkcjonalna i póki co, w zupełności wystarcza naszej 3-osobowej rodzinie. Do postawienia budynku użyliśmy ceramicznych pustaków Porotherm marki Wienerberger, a dach pokryliśmy blachodachówką firmy Blachotrapez. Postanowiliśmy zmienić zalecaną w projekcie metodę wykonania stropu. Sugerowaną konstrukcję monolityczną żelbetową wykonaliśmy jedynie nad garażem, natomiast nad pozostałą powierzchnią domu zastosowaliśmy system Teriva. Na chwilę obecną nie wiem jednak czy zdecydowałbym się na to rozwiązanie po raz kolejny, gdyż zauważam, iż niektóre belki w stropie gęstożebrowym są dosyć mocno oddzielone, co powoduje naprężenia i w efekcie pękanie tynku gipsowego. Uważam, że decydując się na realizację projektu domu Dom przy Przyjaznej 6 KRK1203 śmiało można założyć o wiele mniejsze koszty w stosunku do oszacowanych przez architekta - kosztorys został w mojej opinii dosyć mocno przesadzony. Budynek w stanie surowym zamkniętym wyniósł w naszym przypadku ok. 100 tys. zł, zaś wszelkie instalacje (elektryka, hydraulika oraz instalacja grzewcza) to koszt ok. 20 tys. zł.W trakcie budowy fachowcy nie zauważyli błędów konstrukcyjnych w dokumentacji technicznej, aczkolwiek zdecydowaliśmy się zmienić kilka uwzględnionych przez architekta rozwiązań. Projekt Dom przy Przyjaznej 6 KRK1203 przewiduje ogrzewanie gazowe, jednakże nie mamy możliwości podłączenia do działki instalacji gazu ziemnego i musieliśmy zainstalować w domu piec na paliwo stałe. W takim przypadku problem stanowiły jednak wymiary kotłowni, które z racji swojego przeznaczenia są dosyć niewielkie. Musieliśmy więc zrezygnować w niej z bezpośredniego wejścia od strony części mieszkalnej, tak aby móc wykorzystać przestrzeń przy przewidzianych oryginalnie drzwiach. Kolejna wprowadzona przez nas zmiana wynikła z rady udzielonej nam przez murarza. Fachowiec zaproponował lekką modyfikację konstrukcji schodów poprzez jej pochylenie w sposób, który sprawi iż stanie się ona mniej stroma i tym samym bardziej komfortowa w użytkowaniu. Korekta ta sprawiła, iż ok. 40 cm klatki schodowej jest widoczne w garażu, aczkolwiek w żaden sposób nam to nie przeszkadza, gdyż kwestie praktyczne uważamy za znacznie ważniejsze niż wizualne. Oprócz tego postanowiliśmy zrezygnować ze spiżarki oraz znajdującej się przy niej wnęce, dzięki czemu zyskaliśmy przestronniejszą kuchnię. Najmniejszy pokój na poddaszu zmniejszyliśmy na rzecz powiększenia sypialni obok, a pozostałą jego powierzchnię przeznaczyliśmy na zrobienie praktycznej garderoby.Jesteśmy naprawdę zadowoleni z wyboru projektu domu parterowego z poddaszem użytkowym Dom przy Przyjaznej 6 KRK1203. Przewidziany w nim układ pomieszczeń jest dokładnie taki na jakim nam zależało. Od początku chcieliśmy, aby nowy dom posiadał dwie kondygnacje wyraźnie zaznaczające jego strefowość: w przeciągu dnia wspólny czas spędzamy na dole, zaś na górze znajdują się nasze sypialnie. Szczególnie zadowoleni jesteśmy z przestronnej części dziennej, której dużą przestrzeń czuć od razu po przekroczeniu progu wiatrołapu. Świetny efekt wizualny w salonie stwarzają również otwarte na niego schody, a uwzględniona na parterze łazienka z prysznicem to naprawdę praktyczne rozwiązanie. Nowy dom w całości spełnia nasze potrzeby. Pozdrawiam.

Zdjęcie profilowe użytkownika lewitom lewitom

Po podjęciu decyzji o budowie własnego domu przejrzałem naprawdę wiele różnych projektów, a ostatecznie spośród nich wybrałem projekt Dom przy Przyjaznej 6 KRK1203. Gabaryty tworzącej go bryły idealnie mieściły się w wymiarach naszej działki, a uwzględnione wewnątrz rozwiązania w całości spełniały oczekiwania naszej rodziny. Od początku zależało nam dużym salonie z otwartą kuchnią oraz 4 sypialniach na górnej kondygnacji.Inwestycja odbyła się naprawdę sprawnie, a fachowcy ze wszystkim świetnie sobie poradzili. Dokumentacja techniczna została czytelnie sporządzona, a przewidziane w niej rozwiązania architektoniczne były dobrze przemyślane. W związku z tym całą konstrukcję wykonaliśmy zgodnie z wytycznymi. Budowa przebiegła w dosyć krótkim czasie, gdyż do nowego domu wprowadziliśmy się już po 20 miesiącach od rozpoczęcia pierwszych prac. Budynek został postawiony przy użyciu ceramicznych pustaków Porotherm, a strop w oparciu o projekt tradycyjnie wylaliśmy betonem. Na dachu zastosowaliśmy pełne deskowanie, a następnie przykryliśmy go blachodachówką. Poddasze ociepliliśmy natryskową pianką poliuretanową. Dom ogrzewamy gazem, a jego zużycie w sezonie grzewczym wiąże się z łącznymi rachunkami na kwotę ok. 2,5 tys. zł. Muszę przyznać, że architekt świetnie opracował kosztorys dotyczący inwestycji na etapie stanu surowego zamkniętego i śmiało można się nim sugerować. W naszym przypadku koszty na tym etapie były nawet o ok. 15 tys. zł niższe.Rozkład pomieszczeń przewidziany w projekcie domu Dom przy Przyjaznej 6 KRK1203 od początku wydał mi się bardzo funkcjonalnie przemyślany, dlatego też nie potrzebowałem wprowadzać w nim wielu zmian. Postanowiłem jednak zrezygnować z małej spiżarki powiększając tym samym kuchnię. Dodatkowo nie zamurowywałem przestrzeni pod schodami i wykorzystałem ją na zrobienie praktycznego schowka z dostępem od strony garażu. Aby nadać strefie dziennej większej ustawności, zrezygnowałem w tym miejscu z jednego okna, a dodatkowo nie wykonywałem ozdobnych słupków przy przeszkleniach w wykuszu i narożnym oknie w kuchni. Inne przeróbki uznałem za zbędne. Przyszłym Inwestorom mogę poradzić jednak poszerzenie garażu, czego niestety nie mogłem zrobić ze względu na niewielkie wymiary naszej działki. Jeśli jednak ktoś ma taką możliwość, warto o tym pomyśleć już na etapie adaptacji.Wybór projektu domu parterowego z poddaszem użytkowym Dom przy Przyjaznej 6 KRK1203 okazał się dla nas bardzo trafioną decyzją. Powierzchnia domu została świetnie zagospodarowana - wszystkie pomieszczenia są dobrze usytuowane, a metraż w pełni wykorzystany. Duży salon z otwartą na niego kuchnią to rozwiązanie, które świetnie się sprawdza i na którym od początku nam zależało. Bardzo praktyczne jest również uwzględnienie pełnych łazienek na obu kondygnacjach. Kotłownia posiada optymalne wymiary, a z racji zamontowania w niej piecyka gazowego mogłem wykonać w niej jeszcze pralnię. Nowy dom w całości nas satysfakcjonuje i jestem z niego naprawdę zadowolony. Pozdrawiam

ASYSTENT WYBORU PROJEKTU

Szukasz idealnego projektu? Znajdziemy go dla Ciebie!

Doradca na podstawie Twoich wskazówek przygotuje spersonalizowaną listę projektów

Graficzne opracowanie rzutów poglądowych widocznych na karcie projektu zostało wykonane przez Extradom.pl. Prezentowane przez Extradom.pl wizualizacje wykonane zostały przez autora projektu i należy poczytywać je jedynie za przykład i propozycję wykończenia, wizję architektoniczną autora projektu. Ostateczne wykończenie budynku może nastąpić na wiele sposobów. Szczegółowe rozwiązania zastosowane w oferowanej dokumentacji - w tym również ilość, lokalizacje i wygląd okien, drzwi, kominów - mogą w niewielkim stopniu różnić się od prezentowanej wizualizacji budynku.

REKLAMA
Zamknij