Projekty nawet 500 zł taniej ❄️

Koniec oferty za:

00godz.

00min.

00sek.

Sprawdź

Projekt domu Dom przy Malachitowej KRK1149

Dodano!
Dodano!

Warstwy

Warstwy

Rzut parteru

Powierzchnia (m²)
Tooltip
Powierzchnia pomieszczenia
to ta, z której faktycznie możesz korzystać – skosy i niskie części poddasza są liczone częściowo lub wcale.
  1. 100% dla wysokości powyżej 2,2 m,
  2. 50% dla wysokości 1,4–2,2 m,
  3. nie liczymy poniżej 1,4 m.

Powierzchnia podłogi
Liczymy po obrysie pomieszczenia, bez względu na jego wysokość/skosy. Jeśli nie ma skosów to powierzchnia podłogi i pomieszczenia jest taka sama.
pomieszczenia i podłogi
podłogi
1. Wiatrołap
4,70
2. Korytarz
12,50
3. Pokój dzienny
25
4. Kuchnia
16,10
5. Pokój
11,70
6. Kotłownia
6,90
7. Garaż dwustanowiskowy
30,30
8. Łazienka
3,20
Razem
110,40
110,40
Powierzchnia (m²)
Tooltip
Powierzchnia pomieszczenia
to ta, z której faktycznie możesz korzystać – skosy i niskie części poddasza są liczone częściowo lub wcale.
  1. 100% dla wysokości powyżej 2,2 m,
  2. 50% dla wysokości 1,4–2,2 m,
  3. nie liczymy poniżej 1,4 m.

Powierzchnia podłogi
Liczymy po obrysie pomieszczenia, bez względu na jego wysokość/skosy. Jeśli nie ma skosów to powierzchnia podłogi i pomieszczenia jest taka sama.
pomieszczenia
podłogi
9. Korytarz
17,60
17,60
10. Łazienka
13,20
17,10
11. Pokój
14,30
20,60
12. Pokój
13,60
13,60
13. Pokój
12,60
15,20
14. Pokój
12,60
15,20
15. Garderoba
4,90
6,10
Razem
88,80
105,40

    Usytuowanie na działce

    Czy ten projekt pasuje na
    Twoją działkę?

    Chętnie to sprawdzimy!

    Dowiedz się:

    • czy zmieści się na niej wybrany przez Ciebie dom
    • jakie parametry musi spełniać dom według miejscowego planu zagospodarowania lub warunków zabudowy (np. kąt nachylenia i typ dachu, liczba kondygnacji itp.
    • jakie inne projekty pasują na Twoją działkę – znajdziemy je dla Ciebie!

Pow. użytkowa

162 m²

Pokoje

5

Łazienki i WC

2

Garaż

2

Min. szer. i dł. działki

21,4 x 18,70 m

Kąt dachu

45°

Konstrukcja

Murowana
więcej

Dom przy Malachitowej - KRK1149

ikona 162 m²
Powierzchnia użytkowa
ikona5
Pokoje (bez salonu)
ikona 2
Łazienki (z toaletami)
ikona 2
Liczba stanowisk garażowych
(z wiatą garażową)
ikona
Konstrukcja: Murowana

Projekt został
wycofany z oferty

W razie pytań prosimy o kontakt
z Centrum Obsługi Klienta
Konsultant Masz pytania?
Zadzwoń
71 715 20 60

pon.-pt. 8-21, sob. 9-17

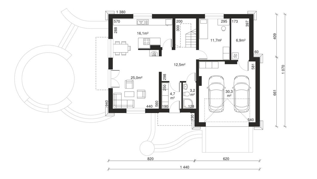
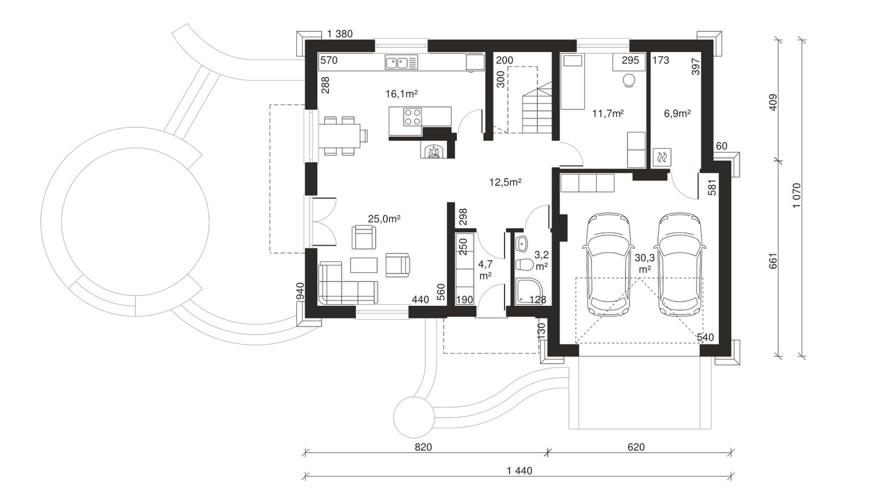
Parter - 110,40 m²

Parter projektu Dom przy Malachitowej

Zapytaj, co możesz zmienić

Powierzchnia (m²)
Tooltip
Powierzchnia pomieszczenia
to ta, z której faktycznie możesz korzystać – skosy i niskie części poddasza są liczone częściowo lub wcale.
  1. 100% dla wysokości powyżej 2,2 m,
  2. 50% dla wysokości 1,4–2,2 m,
  3. nie liczymy poniżej 1,4 m.

Powierzchnia podłogi
Liczymy po obrysie pomieszczenia, bez względu na jego wysokość/skosy. Jeśli nie ma skosów to powierzchnia podłogi i pomieszczenia jest taka sama.
pomieszczenia i podłogi
podłogi
1. Wiatrołap
4,70
2. Korytarz
12,50
3. Pokój dzienny
25
4. Kuchnia
16,10
5. Pokój
11,70
6. Kotłownia
6,90
7. Garaż dwustanowiskowy
30,30
8. Łazienka
3,20
Razem
110,40
110,40

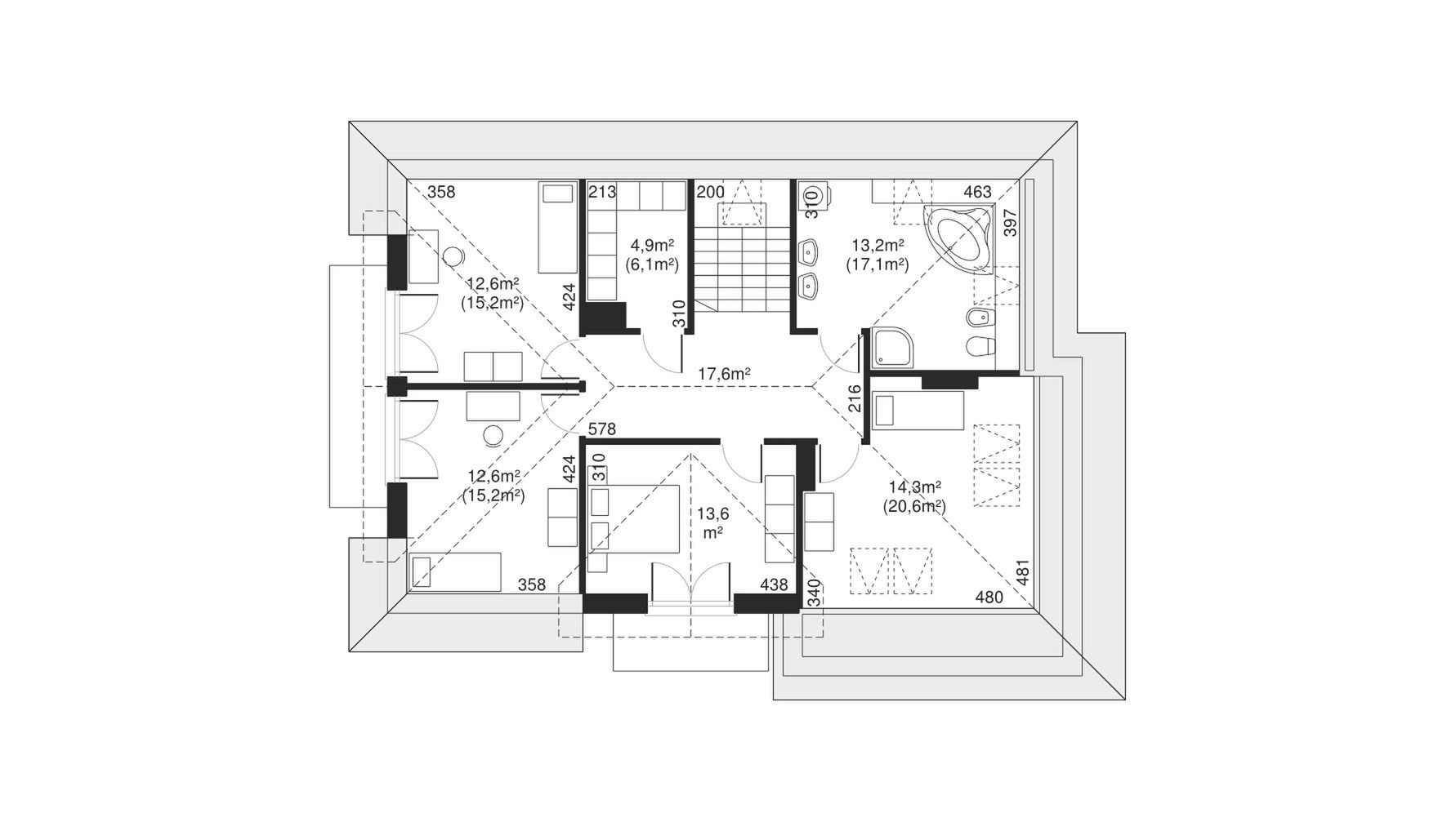
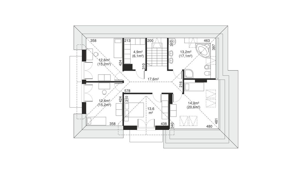
Poddasze - 88,80 m²

Poddasze projektu Dom przy Malachitowej

Zapytaj, co możesz zmienić

Powierzchnia (m²)
Tooltip
Powierzchnia pomieszczenia
to ta, z której faktycznie możesz korzystać – skosy i niskie części poddasza są liczone częściowo lub wcale.
  1. 100% dla wysokości powyżej 2,2 m,
  2. 50% dla wysokości 1,4–2,2 m,
  3. nie liczymy poniżej 1,4 m.

Powierzchnia podłogi
Liczymy po obrysie pomieszczenia, bez względu na jego wysokość/skosy. Jeśli nie ma skosów to powierzchnia podłogi i pomieszczenia jest taka sama.
pomieszczenia
podłogi
9. Korytarz
17,60
17,60
10. Łazienka
13,20
17,10
11. Pokój
14,30
20,60
12. Pokój
13,60
13,60
13. Pokój
12,60
15,20
14. Pokój
12,60
15,20
15. Garderoba
4,90
6,10
Razem
88,80
105,40

Podobne projekty (7146)

Zobacz wszystkie
NIŻSZA CENA❄️
Zdjęcie 1 projektu Miejski 2 WAH2143
Miejski 2
Dodano!
Dodano!
145,44 m²
4
2
0

5 112 zł

6 390 zł

Tooltip

Cena regularna

4 792 zł najniższa cena
Tooltip

Najniższa cena z 30 dni
przed obniżką

Nowość
Zdjęcie 1 projektu APS 166 NEW ECO LUA1675
APS 166 NEW ECO
Dodano!
Dodano!
136 m²
5
3
2

4 699 zł

Nowość
Zdjęcie 1 projektu Tyniec 02 KZB1016
Tyniec 02
Dodano!
Dodano!
138,28 m²
5
3
2

4 700 zł

Nowość
Zdjęcie 1 projektu Otwarty 01 KZB1030
Otwarty 01
Dodano!
Dodano!
159,68 m²
4
3
0

4 700 zł

Nowość
Zdjęcie 1 projektu Tyniec 03A KZB1027
Tyniec 03A
Dodano!
Dodano!
136,04 m²
5
3
2

4 700 zł

NIŻSZA CENA❄️
Zdjęcie 1 projektu Zyga (1665) KRD2815
Zyga (1665)
Dodano!
Dodano!
134,10 m²
5
3
2

4 740 zł

5 090 zł

Tooltip

Cena regularna

4 540 zł najniższa cena
Tooltip

Najniższa cena z 30 dni
przed obniżką

NIŻSZA CENA❄️
Zdjęcie 1 projektu Baltazar Solis (1492) KRD2637
Baltazar Solis (1492)
Dodano!
Dodano!
164,70 m²
5
3
2

4 740 zł

5 090 zł

Tooltip

Cena regularna

4 540 zł najniższa cena
Tooltip

Najniższa cena z 30 dni
przed obniżką

NIŻSZA CENA❄️
Zdjęcie 1 projektu Hortensja (948) KRD1679
Hortensja (948)
Dodano!
Dodano!
156,50 m²
4
3
2

4 740 zł

5 090 zł

Tooltip

Cena regularna

4 540 zł najniższa cena
Tooltip

Najniższa cena z 30 dni
przed obniżką

Elewacje

Tylna
Lewa
Prawa

Przekroje

Przekrój pionowy

Usytuowanie na działce

Czy ten projekt pasuje na
Twoją działkę?

Chętnie to sprawdzimy!

Czy ten projekt pasuje na
Twoją działkę?

Chętnie to sprawdzimy!

Dowiedz się:

  • czy zmieści się na niej wybrany przez Ciebie dom
  • jakie parametry musi spełniać dom według miejscowego planu zagospodarowania lub warunków zabudowy (np. kąt nachylenia i typ dachu, liczba kondygnacji itp.
  • jakie inne projekty pasują na Twoją działkę – znajdziemy je dla Ciebie!
Autor: GALERIADOMOW.PL

Dane techniczne projektu

Powierzchnie i wymiary Powierzchnie i wymiary

Powierzchnia użytkowa
Tooltip
Suma powierzchni wszystkich pomieszczeń mieszkalnych, pomniejszona o pow. garażu, kotłowni, strychu, piwnicy. Jest liczona w 100% dla pomieszczeń o wysokości powyżej 2,2 m, w 50% dla pomieszczeń o wys. 2,2-1,4 m i niewliczana dla niższych niż 1,4 m.

162 m²

Powierzchnia zabudowy
Tooltip
Powierzchnia zajmowana przez część na- oraz nadziemną budynku liczona, jako rzut pionowy budynku na działkę.

142,90 m²

Powierzchnia dachu

254 m²

Kąt nachylenia dachu
Tooltip
Nachylenie połaci dachu głównego podawane w stopniach. Uwaga! W niektórych projektach występuje więcej niż jedno nachylenie dachu.

45°

Wysokość budynku
Tooltip
Wysokość liczona od części budynku położonej najniżej przy powierzchni terenu do najwyższego punktu dachu (kalenicy) z wyłączeniem kominów.

9,40 m

Min. szerokość działki
Tooltip
Najmniejsza możliwa szerokość działki niezbędna do wybudowania wybranego domu. Składa się z szerokości elewacji domu powiększonej z obu stron o 3 m dla ściany bez otworów drzwiowych/okiennych lub 4 m, dla ściany z otworami.

21,40 m

Min. długość działki
Tooltip
Najmniejsza możliwa długość działki niezbędna do wybudowania wybranego domu. Składa się z długości elewacji domu powiększonej z obu stron o 3 m dla ściany bez otworów drzwiowych/okiennych lub 4 m, dla ściany z otworami.

18,70 m

Energooszczędność Energooszczędność

Oze Czym jest OZE (Odnawialne Źródło Energii)?
Warunki techniczne

Projekt zgody z WT 2021

Technologia i konstrukcja Technologia i konstrukcja

Konstrukcja

Murowana

Opis szczegółowy

ściany zewn.pustak ceramiczny 25cm, styropian 15cm ściany nośnepustak ceramiczny 25cm stropmonolityczny żelbetowy pokrycie dachudachówka ceramiczna lub betonowa

Strop

Żelbetowy

Reklama
Okna i drzwi tarasowe

Nowoczesne okna PVC i aluminiowe WIŚNIOWSKI – doskonała izolacja, elegancki design i niezrównana trwałość.

Wiśniowski
Sprawdź parametry!
Okna dachowe

Oferujemy bezpłatne konsultacje w zakresie wszystkich rozwiązań VELUX. Wyceny, porady dotyczące doboru okien i rolet zewnętrznych - sprawdź!

Velux
Sprawdź szczegóły
Płytki ceramiczne i gresy

Od małych formatów po wielkoformatowe gresy. Marmur, beton, drewno, kamień, lastryko czy cegiełki zamówisz wygodnie online z szybką dostawą.

Ceramzet
Sprawdź ofertę
Drzwi

Ciepłe drzwi WIŚNIOWSKI z kontrolą dostępu. Szeroka gama wzorów i kolorów.

Wiśniowski
Wybierz najlepsze
Bramy garażowe

Automatyczne bramy garażowe segmentowe i uchylne WIŚNIOWSKI na wymiar i z systemem smart home w standardzie.

Wiśniowski
Sprawdź ofertę!
Armatura i ceramika łazienkowa

Topowi producenci. Baterie łazienkowe, zestawy natynkowe i podtynkowe, umywalki, wanny, miski WC oraz kabiny zamówisz kompleksowo online.

Ceramzet II
Dowiedz się więcej
Rekuperacja

Alnor - kompletny system rekuperacji. Dobierz idealne rozwiązanie dla Twojego domu!

Alnor
Dobierz rekuperator
Gruntowe pompy ciepła

Przeprowadzimy kompletną instalację najbardziej oszczędnego źródła ciepła w Twoim nowym domu - gruntowej pompy ciepła. Od dokumentacji, pozwoleń, po odwierty i instalację.

Geothermal Solutions
Dowiedz się więcej

Gotowe domy modułowe (114)

Zobacz wszystkie
Stan deweloperski nawet w 6 miesięcy Gwarancja stałej ceny
Zdjęcie 1 projektu Dom prefabrykowany P.4 bez okapu HPK1003
Pow. użytkowa
162,18 m²
Pokoje
4
701 000 zł 4 322 zł/m²
Zdjęcie 1 projektu Dom prefabrykowany P.4 z okapem HPK1014
Pow. użytkowa
162,18 m²
Pokoje
5
710 500 zł 4 381 zł/m²
Zdjęcie 1 projektu Dom prefabrykowany DH174 HDH1009
Pow. użytkowa
162,97 m²
Pokoje
4
1 026 000 zł 5 796 zł/m²
Zdjęcie 1 projektu Dom szkieletowy Viking Smart 220 HHT1032
Pow. użytkowa
163,86 m²
Pokoje
4
1 095 606 zł 6 686 zł/m²
Zdjęcie 1 projektu Dom prefabrykowany P.2 HPK1001
Pow. użytkowa
159,18 m²
Pokoje
5
832 200 zł 5 228 zł/m²
Zdjęcie 1 projektu Dom prefabrykowany Stodoła 150C HFX1026
Pow. użytkowa
152,90 m²
Pokoje
5
589 000 zł 3 852 zł/m²
Zdjęcie 1 projektu Dom prefabrykowany Stodoła 150A HFX1024
Pow. użytkowa
152,20 m²
Pokoje
5
589 000 zł 3 870 zł/m²
Zdjęcie 1 projektu Dom prefabrykowany Stodoła 150B HFX1025
Pow. użytkowa
151,30 m²
Pokoje
4
589 000 zł 3 893 zł/m²

Polecani producenci

Prefabrykowane konstrukcje dachowe

tło producenta

WIĄZAR POLSKA

Zobacz więcej

Sprawdź nową generację okien GREENVIEW

tło producenta

FAKRO

Sprawdź nową generację okien GREENVIEW

Styropian, tynki, farby, kleje

tło producenta

Termo Organika

Poznaj super jakość

Okna, drzwi, osłony przeciwsłoneczne

tło producenta

Aluprof

Sprawdź ofertę

Kompletne systemy rekuperacji

tło producenta

Alnor

Dowiedz się więcej

Sprawdź nowy system DACHRYNNA

tło producenta

Galeco

Sprawdź ofertę
Zobacz więcej

Społeczność projektu domu
Dom przy Malachitowej w budowie

Dołącz do społeczności osób, które budują ten dom lub są zainteresowane jego budową.

  • Oglądaj zdjęcia z budowy
  • Zadawaj pytania
  • Wymieniaj się doświadczeniami

Opinie o projekcie domu Dom przy Malachitowej

Ocena

Ten projekt nie ma jeszcze opinii, bądź pierwszy!

Dodaj opinię

Wywiady mieszkańców domu Dom przy Malachitowej

Zdjęcie profilowe użytkownika b lania67 b lania67

Wybraliśmy projekt Dom przy Malachitowej KRK1149, ponieważ mamy działkę z wjazdem od strony południowej, a przewidziany w nim układ pomieszczeń świetnie pasuje do takiego usytuowania. Poza tym, ułożenie pokoi pozwalało na łatwe zaadaptowanie domu do potrzeb dwóch rodzin, a na tym również nam zależało.Postawienie budynku odbyło bez problemów, aczkolwiek na jedną trudność natrafiliśmy na etapie wykonywania więźby dachowej, która nie była dostatecznie dobrze rozrysowana. Chodziło mianowicie o wyliczenia odnośnie wykonania lukarn, które wychodziłyby za wysoko. Na szczęście po dokładnym przeanalizowaniu projektu dachu, udało nam się to prawidłowo rozwiązać. Na ten element warto jednak zwrócić uwagę.Realizacja, łącznie z większością wykończeń trwała, zaledwie 9 miesięcy, co mogę uznać za duży sukces. Śmialiśmy się nawet z rodziną, że była to taka „ciąża budowlana” :-) Jestem również zadowolona z kosztów, gdyż uważam że jak na dom o takiej powierzchni, nie były one stosunkowo wysokie.Ściany powstały przy użyciu belitowych bloczków, a dach pokryliśmy dachówką cementową. Poddasze zostało ocieplone 30 cm warstwą wełny mineralnej, zaś na zewnątrz zastosowaliśmy styropian o grubości 20 cm. Dodatkowo wszędzie wstawiliśmy trzyszybowe okna o profilu SALAMANDER. Te rozwiązania świetnie sprawdzają się odnośnie ekonomiczności budynku. Co prawda, jesteśmy przed pierwszym sezonem grzewczym, aczkolwiek piec został włączony już w zeszłą zimę podczas wykonywania prac wykończeniowych. Za gaz w tamtym okresie płaciliśmy ok. 400-500 zł. miesięcznie. Myślę, że była to stosunkowo dobra kwota zważywszy na to, iż mury nie były jeszcze dogrzane.Parter zajmuję ja z mężem, zaś poddasze użytkuje nasz syn wraz ze swoją żoną. Aby dostosować projekt Dom przy Malachitowej KRK1149 do potrzeb dwóch rodzin, wprowadziliśmy w nim pewne zmiany. Schody przenieśliśmy do wiatrołapu i zamieniliśmy je miejscami z łazienkami na obu kondygnacjach. Na poddaszu połączyliśmy powierzchnię dwóch pokoi oraz garderoby i obecnie znajduje się tam salon z aneksem kuchennym. Układ jest więc podobny do tego na parterze, tym bardziej, iż na górze młodzi również zrobili kominek. Z racji przeniesienia górnej łazienki w miejsce schodów, w jej pierwotnej lokalizacji powstała sypialnia. Z kolei ze względu na klatkę schodową, pokój z lukarną został zmniejszony.Na parterze wprowadziliśmy delikatne zmiany. W garażu wstawiliśmy okna, a dodatkowo zrobiliśmy do niego bezpośrednie wejście z wiatrołapu. Oprócz tego doświetliliśmy jeszcze kotłownię oraz wydzieliliśmy z niej część powierzchni w celu zrobienia garderoby w sypialni. Na chwilę obecną nie chciałabym wprowadzać innych zmian do projektu domu parterowego z poddaszem użytkowym Dom przy Malachitowej KRK1149 i jestem naprawdę zadowolona z naszego wyboru. Układ pomieszczeń jest funkcjonalny i nic nie przeszkadza nam w jego codziennym użytkowaniu. Szczególnie podoba mi się długa kuchnia w nietypowym kształcie. Dom jest naprawdę komfortowy, a z zewnątrz dobrze się prezentuje. Polecam i pozdrawiam.

ASYSTENT WYBORU PROJEKTU

Szukasz idealnego projektu? Znajdziemy go dla Ciebie!

Doradca na podstawie Twoich wskazówek przygotuje spersonalizowaną listę projektów

Graficzne opracowanie rzutów poglądowych widocznych na karcie projektu zostało wykonane przez Extradom.pl. Prezentowane przez Extradom.pl wizualizacje wykonane zostały przez autora projektu i należy poczytywać je jedynie za przykład i propozycję wykończenia, wizję architektoniczną autora projektu. Ostateczne wykończenie budynku może nastąpić na wiele sposobów. Szczegółowe rozwiązania zastosowane w oferowanej dokumentacji - w tym również ilość, lokalizacje i wygląd okien, drzwi, kominów - mogą w niewielkim stopniu różnić się od prezentowanej wizualizacji budynku.

REKLAMA
Zamknij