Projekty nawet 500 zł taniej ❄️

Koniec oferty za:

00godz.

00min.

00sek.

Sprawdź

Projekt domu Chmielniki małe bm KRP1418

Dodano!
Dodano!

Warstwy

Warstwy

Rzut parteru

Powierzchnia (m²)
Tooltip
Powierzchnia pomieszczenia
to ta, z której faktycznie możesz korzystać – skosy i niskie części poddasza są liczone częściowo lub wcale.
  1. 100% dla wysokości powyżej 2,2 m,
  2. 50% dla wysokości 1,4–2,2 m,
  3. nie liczymy poniżej 1,4 m.

Powierzchnia podłogi
Liczymy po obrysie pomieszczenia, bez względu na jego wysokość/skosy. Jeśli nie ma skosów to powierzchnia podłogi i pomieszczenia jest taka sama.
pomieszczenia i podłogi
podłogi
1. Wiatrołap
6,75
2. Kotłownia
4,30
3. Pokój dzienny + jadalnia
34,01
4. Kuchnia
8,52
5. Korytarz
3,46
6. Spiżarnia
3,16
7. Pomieszczenie gospodarcze
3,42
8. Łazienka
4,39
9. Pokój
11,74
Razem
79,75
79,75
Powierzchnia (m²)
Tooltip
Powierzchnia pomieszczenia
to ta, z której faktycznie możesz korzystać – skosy i niskie części poddasza są liczone częściowo lub wcale.
  1. 100% dla wysokości powyżej 2,2 m,
  2. 50% dla wysokości 1,4–2,2 m,
  3. nie liczymy poniżej 1,4 m.

Powierzchnia podłogi
Liczymy po obrysie pomieszczenia, bez względu na jego wysokość/skosy. Jeśli nie ma skosów to powierzchnia podłogi i pomieszczenia jest taka sama.
pomieszczenia
podłogi
1. Korytarz
8,96
13,77
2. Pokój
9,15
16,87
3. Pokój
9,15
16,87
4. Pokój
11,96
19,48
5. Pokój
9,08
13,19
6. Łazienka
5,94
11,71
Razem
54,24
91,89

    Usytuowanie na działce

    Czy ten projekt pasuje na
    Twoją działkę?

    Chętnie to sprawdzimy!

    Dowiedz się:

    • czy zmieści się na niej wybrany przez Ciebie dom
    • jakie parametry musi spełniać dom według miejscowego planu zagospodarowania lub warunków zabudowy (np. kąt nachylenia i typ dachu, liczba kondygnacji itp.
    • jakie inne projekty pasują na Twoją działkę – znajdziemy je dla Ciebie!

Pow. użytkowa

129,69 m²

Pokoje

5

Łazienki i WC

2

Garaż

0

Min. szer. i dł. działki

19 x 20 m

Kąt dachu

40°

Konstrukcja

Murowana
więcej

Chmielniki małe bm - KRP1418

ikona 129,69 m²
Powierzchnia użytkowa
ikona5
Pokoje (bez salonu)
ikona 2
Łazienki (z toaletami)
ikona 0
Liczba stanowisk garażowych
(z wiatą garażową)
ikona
Konstrukcja: Murowana

Projekt został
wycofany z oferty

W razie pytań prosimy o kontakt
z Centrum Obsługi Klienta
Konsultant Masz pytania?
Zadzwoń
71 715 20 60

pon.-pt. 8-21, sob. 9-17

Parter - 79,75 m²

Parter projektu Chmielniki małe bm

Zapytaj, co możesz zmienić

Powierzchnia (m²)
Tooltip
Powierzchnia pomieszczenia
to ta, z której faktycznie możesz korzystać – skosy i niskie części poddasza są liczone częściowo lub wcale.
  1. 100% dla wysokości powyżej 2,2 m,
  2. 50% dla wysokości 1,4–2,2 m,
  3. nie liczymy poniżej 1,4 m.

Powierzchnia podłogi
Liczymy po obrysie pomieszczenia, bez względu na jego wysokość/skosy. Jeśli nie ma skosów to powierzchnia podłogi i pomieszczenia jest taka sama.
pomieszczenia i podłogi
podłogi
1. Wiatrołap
6,75
2. Kotłownia
4,30
3. Pokój dzienny + jadalnia
34,01
4. Kuchnia
8,52
5. Korytarz
3,46
6. Spiżarnia
3,16
7. Pomieszczenie gospodarcze
3,42
8. Łazienka
4,39
9. Pokój
11,74
Razem
79,75
79,75

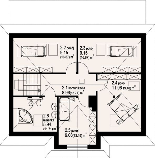
Poddasze - 54,24 m²

Poddasze projektu Chmielniki małe bm

Zapytaj, co możesz zmienić

Powierzchnia (m²)
Tooltip
Powierzchnia pomieszczenia
to ta, z której faktycznie możesz korzystać – skosy i niskie części poddasza są liczone częściowo lub wcale.
  1. 100% dla wysokości powyżej 2,2 m,
  2. 50% dla wysokości 1,4–2,2 m,
  3. nie liczymy poniżej 1,4 m.

Powierzchnia podłogi
Liczymy po obrysie pomieszczenia, bez względu na jego wysokość/skosy. Jeśli nie ma skosów to powierzchnia podłogi i pomieszczenia jest taka sama.
pomieszczenia
podłogi
1. Korytarz
8,96
13,77
2. Pokój
9,15
16,87
3. Pokój
9,15
16,87
4. Pokój
11,96
19,48
5. Pokój
9,08
13,19
6. Łazienka
5,94
11,71
Razem
54,24
91,89

Warianty projektu (33)

PROMOCJA
Projekt domu Chmielniki małe 33 dw
Chmielniki małe 33 dw
Dodano!
Dodano!
160,21 m²
4
2
1

6 599 zł

6 899 zł

Tooltip

Cena regularna

6 399 zł najniższa cena
Tooltip

Najniższa cena z 30 dni
przed obniżką

PROMOCJA
Projekt domu Chmielniki dw 43
Chmielniki dw 43
Dodano!
Dodano!
151,73 m²
4
2
0

6 399 zł

6 699 zł

Tooltip

Cena regularna

6 199 zł najniższa cena
Tooltip

Najniższa cena z 30 dni
przed obniżką

PROMOCJA
Projekt domu Chmielniki małe dw 65
Chmielniki małe dw 65
Dodano!
Dodano!
147,38 m²
4
4
1

6 299 zł

6 599 zł

Tooltip

Cena regularna

6 099 zł najniższa cena
Tooltip

Najniższa cena z 30 dni
przed obniżką

PROMOCJA
Projekt domu Chmielniki małe dw 71
Chmielniki małe dw 71
Dodano!
Dodano!
132,17 m²
5
2
0

6 099 zł

6 399 zł

Tooltip

Cena regularna

5 899 zł najniższa cena
Tooltip

Najniższa cena z 30 dni
przed obniżką

PROMOCJA
Projekt domu Chmielniki małe dw 37
Chmielniki małe dw 37
Dodano!
Dodano!
128,84 m²
5
2
0

5 999 zł

6 299 zł

Tooltip

Cena regularna

5 799 zł najniższa cena
Tooltip

Najniższa cena z 30 dni
przed obniżką

PROMOCJA
Projekt domu Chmielniki małe dw 9
Chmielniki małe dw 9
Dodano!
Dodano!
130,77 m²
6
2
0

6 099 zł

6 399 zł

Tooltip

Cena regularna

5 899 zł najniższa cena
Tooltip

Najniższa cena z 30 dni
przed obniżką

PROMOCJA
Projekt domu Chmielniki małe 7 dws
Chmielniki małe 7 dws
Dodano!
Dodano!
134,33 m²
5
2
1

5 599 zł

5 899 zł

Tooltip

Cena regularna

5 399 zł najniższa cena
Tooltip

Najniższa cena z 30 dni
przed obniżką

PROMOCJA
Projekt domu Chmielniki małe dw 17k
Chmielniki małe dw 17k
Dodano!
Dodano!
139,21 m²
4
2
1

5 899 zł

6 199 zł

Tooltip

Cena regularna

5 699 zł najniższa cena
Tooltip

Najniższa cena z 30 dni
przed obniżką

PROMOCJA
Projekt domu Chmielniki małe dw7k
Chmielniki małe dw7k
Dodano!
Dodano!
123,77 m²
5
2
0

5 999 zł

6 299 zł

Tooltip

Cena regularna

5 799 zł najniższa cena
Tooltip

Najniższa cena z 30 dni
przed obniżką

PROMOCJA
Projekt domu Chmielniki małe dw 57
Chmielniki małe dw 57
Dodano!
Dodano!
156,52 m²
5
2
1

6 599 zł

6 899 zł

Tooltip

Cena regularna

6 399 zł najniższa cena
Tooltip

Najniższa cena z 30 dni
przed obniżką

PROMOCJA
Projekt domu Chmielniki małe dw 47
Chmielniki małe dw 47
Dodano!
Dodano!
128,84 m²
5
2
0

5 999 zł

6 299 zł

Tooltip

Cena regularna

5 799 zł najniższa cena
Tooltip

Najniższa cena z 30 dni
przed obniżką

PROMOCJA
Projekt domu Chmielniki małe dw 97
Chmielniki małe dw 97
Dodano!
Dodano!
149,16 m²
6
2
1

6 399 zł

6 699 zł

Tooltip

Cena regularna

6 199 zł najniższa cena
Tooltip

Najniższa cena z 30 dni
przed obniżką

PROMOCJA
Projekt domu Chmielniki 87 dw
Chmielniki 87 dw
Dodano!
Dodano!
155,42 m²
5
2
1

6 599 zł

6 899 zł

Tooltip

Cena regularna

6 399 zł najniższa cena
Tooltip

Najniższa cena z 30 dni
przed obniżką

PROMOCJA
Projekt domu Chmielniki małe dw 77
Chmielniki małe dw 77
Dodano!
Dodano!
146,09 m²
4
3
1

6 299 zł

6 599 zł

Tooltip

Cena regularna

6 099 zł najniższa cena
Tooltip

Najniższa cena z 30 dni
przed obniżką

PROMOCJA
Projekt domu Chmielniki średnie dw 20
Chmielniki średnie dw 20
Dodano!
Dodano!
236,61 m²
4
3
0

7 299 zł

7 599 zł

Tooltip

Cena regularna

7 099 zł najniższa cena
Tooltip

Najniższa cena z 30 dni
przed obniżką

PROMOCJA
Projekt domu Chmielniki małe dw 72
Chmielniki małe dw 72
Dodano!
Dodano!
108 m²
5
2
0

5 899 zł

6 199 zł

Tooltip

Cena regularna

5 699 zł najniższa cena
Tooltip

Najniższa cena z 30 dni
przed obniżką

PROMOCJA
Projekt domu Chmielniki małe 59 dw
Chmielniki małe 59 dw
Dodano!
Dodano!
138,07 m²
4
3
2

6 199 zł

6 499 zł

Tooltip

Cena regularna

5 999 zł najniższa cena
Tooltip

Najniższa cena z 30 dni
przed obniżką

PROMOCJA
Projekt domu Chmielniki małe dw 67
Chmielniki małe dw 67
Dodano!
Dodano!
134,41 m²
5
2
1

6 099 zł

6 399 zł

Tooltip

Cena regularna

5 899 zł najniższa cena
Tooltip

Najniższa cena z 30 dni
przed obniżką

PROMOCJA
Projekt domu Chmielniki małe dw 11
Chmielniki małe dw 11
Dodano!
Dodano!
106,52 m²
3
2
0

5 899 zł

6 199 zł

Tooltip

Cena regularna

5 699 zł najniższa cena
Tooltip

Najniższa cena z 30 dni
przed obniżką

PROMOCJA
Projekt domu Chmielniki dw 55
Chmielniki dw 55
Dodano!
Dodano!
228,02 m²
5
2
2

7 099 zł

7 399 zł

Tooltip

Cena regularna

6 899 zł najniższa cena
Tooltip

Najniższa cena z 30 dni
przed obniżką

PROMOCJA
Projekt domu Chmielniki małe dw 21
Chmielniki małe dw 21
Dodano!
Dodano!
113,55 m²
2
2
0

5 899 zł

6 199 zł

Tooltip

Cena regularna

5 699 zł najniższa cena
Tooltip

Najniższa cena z 30 dni
przed obniżką

PROMOCJA
Projekt domu Chmielniki małe 16 dw
Chmielniki małe 16 dw
Dodano!
Dodano!
157,79 m²
4
2
0

6 599 zł

6 899 zł

Tooltip

Cena regularna

6 399 zł najniższa cena
Tooltip

Najniższa cena z 30 dni
przed obniżką

PROMOCJA
Projekt domu Chmielniki m1
Chmielniki m1
Dodano!
Dodano!
138,02 m²
4
2
1

5 399 zł

5 699 zł

Tooltip

Cena regularna

5 199 zł najniższa cena
Tooltip

Najniższa cena z 30 dni
przed obniżką

PROMOCJA
Projekt domu Chmielniki m8
Chmielniki m8
Dodano!
Dodano!
109,54 m²
3
2
0

5 299 zł

5 599 zł

Tooltip

Cena regularna

5 099 zł najniższa cena
Tooltip

Najniższa cena z 30 dni
przed obniżką

PROMOCJA
Projekt domu Chmielniki średnie dw 25
Chmielniki średnie dw 25
Dodano!
Dodano!
212 m²
6
2
0

7 099 zł

7 399 zł

Tooltip

Cena regularna

6 899 zł najniższa cena
Tooltip

Najniższa cena z 30 dni
przed obniżką

PROMOCJA
Projekt domu Chmielniki dws 39
Chmielniki dws 39
Dodano!
Dodano!
195,02 m²
5
3
2

6 999 zł

7 299 zł

Tooltip

Cena regularna

6 799 zł najniższa cena
Tooltip

Najniższa cena z 30 dni
przed obniżką

PROMOCJA
Projekt domu Chmielniki małe dw
Chmielniki małe dw
Dodano!
Dodano!
125,51 m²
4
2
0

5 899 zł

6 199 zł

Tooltip

Cena regularna

5 699 zł najniższa cena
Tooltip

Najniższa cena z 30 dni
przed obniżką

PROMOCJA
Projekt domu Chmielniki małe 39 dw
Chmielniki małe 39 dw
Dodano!
Dodano!
150,03 m²
4
2
0

6 399 zł

6 699 zł

Tooltip

Cena regularna

6 199 zł najniższa cena
Tooltip

Najniższa cena z 30 dni
przed obniżką

PROMOCJA
Projekt domu Chmielniki dw 49x
Chmielniki dw 49x
Dodano!
Dodano!
204,15 m²
6
2
0

7 099 zł

7 399 zł

Tooltip

Cena regularna

6 899 zł najniższa cena
Tooltip

Najniższa cena z 30 dni
przed obniżką

PROMOCJA
Projekt domu Chmielniki średnie 28
Chmielniki średnie 28
Dodano!
Dodano!
225,20 m²
6
2
2

7 099 zł

7 399 zł

Tooltip

Cena regularna

6 899 zł najniższa cena
Tooltip

Najniższa cena z 30 dni
przed obniżką

PROMOCJA
Projekt domu Chmielniki dw 66
Chmielniki dw 66
Dodano!
Dodano!
225,04 m²
5
2
2

7 099 zł

7 399 zł

Tooltip

Cena regularna

6 899 zł najniższa cena
Tooltip

Najniższa cena z 30 dni
przed obniżką

PROMOCJA
Projekt domu Chmielniki małe dw 19
Chmielniki małe dw 19
Dodano!
Dodano!
140,69 m²
5
2
0

6 299 zł

6 599 zł

Tooltip

Cena regularna

6 099 zł najniższa cena
Tooltip

Najniższa cena z 30 dni
przed obniżką

PROMOCJA
Projekt domu Chmielniki m11
Chmielniki m11
Dodano!
Dodano!
160,88 m²
5
2
1

5 499 zł

5 799 zł

Tooltip

Cena regularna

5 299 zł najniższa cena
Tooltip

Najniższa cena z 30 dni
przed obniżką

Podobne projekty (6260)

Zobacz wszystkie
NIŻSZA CENA❄️
Zdjęcie 1 projektu Puszek BSA2308
Puszek
Dodano!
Dodano!
127,17 m²
4
2
0

4 949 zł

5 449 zł

Tooltip

Cena regularna

4 949 zł najniższa cena
Tooltip

Najniższa cena z 30 dni
przed obniżką

NIŻSZA CENA❄️
Zdjęcie 1 projektu Optymalny wariant B WAH1914
Optymalny wariant B
Dodano!
Dodano!
124,37 m²
4
2
0

4 736 zł

5 920 zł

Tooltip

Cena regularna

4 440 zł najniższa cena
Tooltip

Najniższa cena z 30 dni
przed obniżką

NIŻSZA CENA❄️
Zdjęcie 1 projektu Witek (1705) KRD2858
Witek (1705)
Dodano!
Dodano!
114,70 m²
5
3
1

4 340 zł

4 690 zł

Tooltip

Cena regularna

4 140 zł najniższa cena
Tooltip

Najniższa cena z 30 dni
przed obniżką

NIŻSZA CENA❄️
Zdjęcie 1 projektu BW-27 wariant JGC1250
BW-27 wariant
Dodano!
Dodano!
132,90 m²
4
2
0

3 880 zł

3 980 zł

Tooltip

Cena regularna

3 780 zł najniższa cena
Tooltip

Najniższa cena z 30 dni
przed obniżką

NIŻSZA CENA❄️
Zdjęcie 1 projektu BW-18 podpiwniczony JGC1037
BW-18 podpiwniczony
Dodano!
Dodano!
125,10 m²
4
2
1

4 230 zł

4 330 zł

Tooltip

Cena regularna

4 130 zł najniższa cena
Tooltip

Najniższa cena z 30 dni
przed obniżką

NIŻSZA CENA❄️
Zdjęcie 1 projektu Dudek 5 BSA2302
Dudek 5
Dodano!
Dodano!
138,41 m²
4
2
0

4 249 zł

4 749 zł

Tooltip

Cena regularna

4 249 zł najniższa cena
Tooltip

Najniższa cena z 30 dni
przed obniżką

NIŻSZA CENA❄️
Zdjęcie 1 projektu Sowa 1 bez garażu WRL1003
Sowa 1 bez garażu
Dodano!
Dodano!
139,80 m²
4
2
0

4 099 zł

4 599 zł

Tooltip

Cena regularna

3 799 zł najniższa cena
Tooltip

Najniższa cena z 30 dni
przed obniżką

NIŻSZA CENA❄️
Zdjęcie 1 projektu BW-36 wariant 17 z garażem JGC1247
BW-36 wariant 17 z garażem
Dodano!
Dodano!
106,80 m²
4
2
1

3 670 zł

3 770 zł

Tooltip

Cena regularna

3 570 zł najniższa cena
Tooltip

Najniższa cena z 30 dni
przed obniżką

Elewacje

Frontowa
Tylna
Lewa
Prawa

Przekroje

Przekrój pionowy

Usytuowanie na działce

Czy ten projekt pasuje na
Twoją działkę?

Chętnie to sprawdzimy!

Czy ten projekt pasuje na
Twoją działkę?

Chętnie to sprawdzimy!

Dowiedz się:

  • czy zmieści się na niej wybrany przez Ciebie dom
  • jakie parametry musi spełniać dom według miejscowego planu zagospodarowania lub warunków zabudowy (np. kąt nachylenia i typ dachu, liczba kondygnacji itp.
  • jakie inne projekty pasują na Twoją działkę – znajdziemy je dla Ciebie!
Autor: Dom-Projekt

Dane techniczne projektu

Powierzchnie i wymiary Powierzchnie i wymiary

Powierzchnia użytkowa
Tooltip
Suma powierzchni wszystkich pomieszczeń mieszkalnych, pomniejszona o pow. garażu, kotłowni, strychu, piwnicy. Jest liczona w 100% dla pomieszczeń o wysokości powyżej 2,2 m, w 50% dla pomieszczeń o wys. 2,2-1,4 m i niewliczana dla niższych niż 1,4 m.

129,69 m²

Wysokość ściany kolankowej
Tooltip
Wysokość ściany podpierającej dach. Jej wysokość wpływa na powierzchnię użytkową kondygnacji, na której się znajduje.

1,03 m

Powierzchnia zabudowy
Tooltip
Powierzchnia zajmowana przez część na- oraz nadziemną budynku liczona, jako rzut pionowy budynku na działkę.

112,64 m²

Powierzchnia netto
Tooltip
Powierzchna wszystkich pomieszczeń w budynku mierzona na wysokości podłogi.

178,70 m²

Kubatura brutto
Tooltip
Zazwyczaj jest to suma kubatur (objętości) wszystkich pomieszczeń budynku, liczonych po zewnętrznym obrysie murów (z ociepleniem).

584,50 m³

Powierzchnia dachu

234,72 m²

Kąt nachylenia dachu
Tooltip
Nachylenie połaci dachu głównego podawane w stopniach. Uwaga! W niektórych projektach występuje więcej niż jedno nachylenie dachu.

40°

Wysokość budynku
Tooltip
Wysokość liczona od części budynku położonej najniżej przy powierzchni terenu do najwyższego punktu dachu (kalenicy) z wyłączeniem kominów.

8,29 m

Min. szerokość działki
Tooltip
Najmniejsza możliwa szerokość działki niezbędna do wybudowania wybranego domu. Składa się z szerokości elewacji domu powiększonej z obu stron o 3 m dla ściany bez otworów drzwiowych/okiennych lub 4 m, dla ściany z otworami.

19 m

Min. długość działki
Tooltip
Najmniejsza możliwa długość działki niezbędna do wybudowania wybranego domu. Składa się z długości elewacji domu powiększonej z obu stron o 3 m dla ściany bez otworów drzwiowych/okiennych lub 4 m, dla ściany z otworami.

20 m

Energooszczędność Energooszczędność

Oze Czym jest OZE (Odnawialne Źródło Energii)?
Warunki techniczne

Projekt zgody z WT 2021

Technologia i konstrukcja Technologia i konstrukcja

Konstrukcja

Murowana

Opis szczegółowy

Wysokość ścianki kolankowej: 1.03 m. Ilość drewna na więźbę: 13.29 m³. Strop: płyta żelbetowa. Pokrycie dachu: dachówka ceramiczna. Ściany zewnętrzne: bloczki z betonu komórkowego ocieplane styropianem. Ściany wewnętrzne: bloczki z betonu komórkowego. Typ ogrzewania: kocioł gazowy lub kocioł na paliwo stałe. Inne: okna połaciowe Velux.

Strop

Żelbetowy

Reklama
Okna i drzwi tarasowe

Nowoczesne okna PVC i aluminiowe WIŚNIOWSKI – doskonała izolacja, elegancki design i niezrównana trwałość.

Wiśniowski
Sprawdź parametry!
Okna dachowe

Oferujemy bezpłatne konsultacje w zakresie wszystkich rozwiązań VELUX. Wyceny, porady dotyczące doboru okien i rolet zewnętrznych - sprawdź!

Velux
Sprawdź szczegóły
Płytki ceramiczne i gresy

Od małych formatów po wielkoformatowe gresy. Marmur, beton, drewno, kamień, lastryko czy cegiełki zamówisz wygodnie online z szybką dostawą.

Ceramzet
Sprawdź ofertę
Drzwi

Ciepłe drzwi WIŚNIOWSKI z kontrolą dostępu. Szeroka gama wzorów i kolorów.

Wiśniowski
Wybierz najlepsze
Bramy garażowe

Automatyczne bramy garażowe segmentowe i uchylne WIŚNIOWSKI na wymiar i z systemem smart home w standardzie.

Wiśniowski
Sprawdź ofertę!
Armatura i ceramika łazienkowa

Topowi producenci. Baterie łazienkowe, zestawy natynkowe i podtynkowe, umywalki, wanny, miski WC oraz kabiny zamówisz kompleksowo online.

Ceramzet II
Dowiedz się więcej
Rekuperacja

Alnor - kompletny system rekuperacji. Dobierz idealne rozwiązanie dla Twojego domu!

Alnor
Dobierz rekuperator
Gruntowe pompy ciepła

Przeprowadzimy kompletną instalację najbardziej oszczędnego źródła ciepła w Twoim nowym domu - gruntowej pompy ciepła. Od dokumentacji, pozwoleń, po odwierty i instalację.

Geothermal Solutions
Dowiedz się więcej

Gotowe domy modułowe (114)

Zobacz wszystkie
Stan deweloperski nawet w 6 miesięcy Gwarancja stałej ceny
Zdjęcie 1 projektu Dom prefabrykowany Piętrowy 130A HFX1021
Pow. użytkowa
130,40 m²
Pokoje
4
539 000 zł 4 133 zł/m²
Zdjęcie 1 projektu Dom prefabrykowany Piętrowy 130B HFX1022
Pow. użytkowa
131,60 m²
Pokoje
5
539 000 zł 4 096 zł/m²
Zdjęcie 1 projektu Dom prefabrykowany Piętrowy 130C HFX1023
Pow. użytkowa
132 m²
Pokoje
4
539 000 zł 4 083 zł/m²
Zdjęcie 1 projektu Dom prefabrykowany DEX136 HDX1002
Pow. użytkowa
136 m²
Pokoje
4
845 000 zł 6 213 zł/m²
Zdjęcie 1 projektu Dom prefabrykowany P.11 HPK1011
Pow. użytkowa
122,88 m²
Pokoje
3
681 300 zł 5 544 zł/m²
Zdjęcie 1 projektu Dom prefabrykowany Parterowy 120B HFX1016
Pow. użytkowa
122,36 m²
Pokoje
3
489 000 zł 3 996 zł/m²
Zdjęcie 1 projektu Dom szkieletowy Twin Smart 170 HHT1031
Pow. użytkowa
121,95 m²
Pokoje
5
1 650 700 zł 13 536 zł/m²
Zdjęcie 1 projektu Dom prefabrykowany P.3 z okapem HPK1013
Pow. użytkowa
121,46 m²
Pokoje
5
600 100 zł 4 941 zł/m²

Opis projektu domu
Chmielniki małe bm

Dom Chmielniki małe bm jest inną propozycją popularnego projektu Chmielniki. W przeciwieństwie do bazowej wersji projekt ma mniej pokoi, mniejszą powierzchnię. Projekt domu Chmielniki małe bm jest doskonałym rozwiązaniem dla osób posiadających średniej szerokości działkę. Bryła budynku posiada formę typową, co znacznie ułatwia proces budowy. W tym projekcie kalenica usytuowana jest równolegle do drogi, co często określane jest w planie zagospodarowania przestrzennego. Dom został zaprojektowany z myślą o zabudowie wolnostojącej. Projekt jest idealną propozycją dla osób zainteresowanych domem z dachem kopertowym, który świetnie się prezentuje. Projekt Chmielniki małe bm to dom parterowy z poddaszem użytkowym, co sprawia, że metraż powierzchni użytkowej nie jest ograniczony wielkością działki. Zwolenników przestronnych przestrzeni z pewnością ucieszy przewidziana w projekcie część dzienna. W projekcie uwzględniono zamkniętą kuchnię, dzięki czemu zapachy przygotowywanych, aromatycznych posiłków nie przedostają się do strefy wypoczynkowej. W kuchni znajduje się stół, dzięki któremu zyskuje ona na funkcjonalności. Dodatkowo przewidziana spiżarnia to idealne miejsce na przechowywanie przetworów i zapasów żywności. W części dziennej uwzględniono salon oraz jadalnię, dzięki czemu wnętrze domu jest bardzo funkcjonalne. W pełni funkcjonalna łazienka przewidziana jest na obu kondygnacjach, co znacznie usprawni poranne przygotowania do wyjścia. Część nocna składa się z pięciu sypialni, dlatego też dom jest odpowiedni dla 5-7 osobowej rodziny. Przestrzeń można wykorzystać także jako pokój dla gości lub gabinet. W domu nie zabrakło również miejsca na praktyczne zaplecze gospodarcze. Efektowny taras pozwala na kontakt z naturą bez zbytniego oddalania się od domowego zacisza. Dom zaprojektowano w technologii murowanej. W jego bryle widoczne są rozwiązania nawiązujące do stylu dworkowego i idealnie wpisze się w wiejski krajobraz.
Czytaj więcej

Polecani producenci

Prefabrykowane konstrukcje dachowe

tło producenta

WIĄZAR POLSKA

Zobacz więcej

Sprawdź nową generację okien GREENVIEW

tło producenta

FAKRO

Sprawdź nową generację okien GREENVIEW

Styropian, tynki, farby, kleje

tło producenta

Termo Organika

Poznaj super jakość

Okna, drzwi, osłony przeciwsłoneczne

tło producenta

Aluprof

Sprawdź ofertę

Kompletne systemy rekuperacji

tło producenta

Alnor

Dowiedz się więcej

Sprawdź nowy system DACHRYNNA

tło producenta

Galeco

Sprawdź ofertę
Zobacz więcej

Społeczność projektu domu
Chmielniki małe bm w budowie

Dołącz do społeczności osób, które budują ten dom lub są zainteresowane jego budową.

  • Oglądaj zdjęcia z budowy
  • Zadawaj pytania
  • Wymieniaj się doświadczeniami

Opinie o projekcie domu Chmielniki małe bm

Ocena

Ten projekt nie ma jeszcze opinii, bądź pierwszy!

Dodaj opinię

Wywiady mieszkańców domu Chmielniki małe bm

Zdjęcie profilowe użytkownika Goś0 Goś0

Nasz znajomy kilka lat wcześniej zrealizował jeden z projektów Chmielniki, który bardzo nam się spodobał. Decydując się na budowę własnego domu postanowiliśmy więc poszukać podobnego budynku z tej samej kolekcji. Oglądając różne propozycje w tej kategori, po niedługim czasie natrafiliśmy na projekt Chmielniki małe bm KRP1418. Ukazany na rysunkach dom od razu przypadł nam do gustu, a uwzględniony w nim układ pomieszczeń spełniał nasze oczekiwania, więc finalnie zdecydowaliśmy się na jego zakup.Cała inwestycja przebiegła naprawdę sprawnie. Fachowcy ze wszystkim świetnie sobie poradzili, a prace postępowały po naszej myśli. Konstrukcyjnie trzymaliśmy się projektu, jednak zamiast przewidzianych ścian przy klatce schodowej o szerokości 20 cm, zastosowaliśmy 24 cm, co wiązało się z lekkim zmniejszeniem pokoju na parterze. Budowę udało nam się zakończyć w korzystnym czasie - od jej rozpoczęcia, do wprowadzenia się do nowego domu minęły dokładnie 2 lata.Budynek powstał przy użyciu bloczków z betonu komórkowego Solbet. Strop zgodnie z zaleceniami architekta wykonaliśmy w tradycyjnej, żelbetowej konstrukcji. Dach pokryliśmy dachówką cementową. Uważam, że autor projektu domu Chmielniki małe bm KRP1418 dobrze oszacował koszty realizacji na etapie stanu surowego zamkniętego. Zmieszczenie się w podanej w nim kwocie jest w pełni realne i myślę, że przyszli Inwestorzy śmiało mogą się nim sugerować.Układ pomieszczeń zaproponowany w projekcie domu Chmielniki małe bm KRP1418 został dobrze przemyślany, aczkolwiek dostrzegliśmy, że można go ulepszyć, czyniąc jeszcze bardziej funkcjonalnym. Kotłownię przenieśliśmy w miejsce gdzie pierwotnie miała znajdować się łazienka z pralnią. Dzięki temu jest ona nieco większa niż w oryginalne, a dodatkowo mogliśmy zrobić z niej bezpośrednie wyjście na zewnątrz z boku budynku, co przy ogrzewaniu paliwem stałym jest wyjątkowo praktyczne. Łazienkę wykonaliśmy w miejscu pierwotnej spiżarki, zaś ją mamy obecnie przy kuchni na metrażu wcześniej przewidzianej kotłowni. Był to naprawdę świetny pomysł, a dodatkowo innym Inwestorom mógłbym jeszcze polecić inną zmianę dotyczącą tej części domu. Myślę że dobrym rozwiązaniem byłoby również zamiana miejscami pomieszczeń przy klatce schodowej, robiąc kotłownię i łazienkę z tyłu domu, a gabinet od frontu.Powierzchnię sypialni przy lukarnie przeznaczyliśmy na zrobienie praktycznej garderoby. Obecnie jednak zrobilibyśmy w tym miejscu pokój kąpielowy, a garderobę w miejscu łazienki. Przyszłym Inwestorom mogę z pewnością polecić jeszcze podniesienie ścianki kolankowej, co zwiększyłoby przestrzeń na poddaszu. Inna modyfikacja jaką wprowadziliśmy polegała na przeniesieniu tarasu na boczną stronę wraz z zadaszeniem i podpierającymi je filarami.Jestem zadowolony z wyboru projektu domu parterowego z poddaszem użytkowym Chmielniki małe bm KRP1418. Nowy dom podoba się nie tylko nam, ale również naszym znajomym - wszyscy odwiedzający nas goście są zachwyceni jego przestronnością. Budynek z zewnątrz nie wydaje się duży i dopiero po wejściu do środka okazuje się jak wiele mamy w nim przestrzeni. Efekt ten podnosi jeszcze bardziej fakt, iż wnętrze w całości zaaranżowaliśmy na biało. Układ naszego nowego domu jest funkcjonalny i spełnia potrzeby naszej rodziny. Pozdrawiam.

ASYSTENT WYBORU PROJEKTU

Szukasz idealnego projektu? Znajdziemy go dla Ciebie!

Doradca na podstawie Twoich wskazówek przygotuje spersonalizowaną listę projektów

Graficzne opracowanie rzutów poglądowych widocznych na karcie projektu zostało wykonane przez Extradom.pl. Prezentowane przez Extradom.pl wizualizacje wykonane zostały przez autora projektu i należy poczytywać je jedynie za przykład i propozycję wykończenia, wizję architektoniczną autora projektu. Ostateczne wykończenie budynku może nastąpić na wiele sposobów. Szczegółowe rozwiązania zastosowane w oferowanej dokumentacji - w tym również ilość, lokalizacje i wygląd okien, drzwi, kominów - mogą w niewielkim stopniu różnić się od prezentowanej wizualizacji budynku.

REKLAMA
Zamknij