Od 4 do 6 kwietnia nasi konsultanci są niedostępni 🌷 Złóż zamówienie przez stronę!

Projekt domu Z widokiem na słońce WOX1076

Zapisz Dodano!
Porównaj Dodano!
ikona Pobierz i drukuj

Warstwy

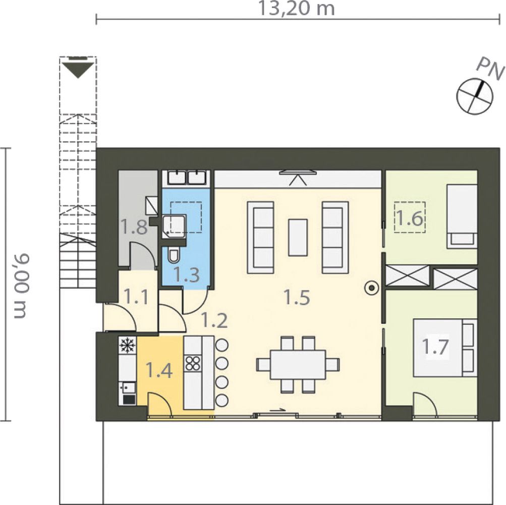
Rzut parteru

Powierzchnia (m²)
Tooltip
Powierzchnia pomieszczenia
to ta, z której faktycznie możesz korzystać – skosy i niskie części poddasza są liczone częściowo lub wcale.
  1. 100% dla wysokości powyżej 2,2 m,
  2. 50% dla wysokości 1,4–2,2 m,
  3. nie liczymy poniżej 1,4 m.

Powierzchnia podłogi
Liczymy po obrysie pomieszczenia, bez względu na jego wysokość/skosy. Jeśli nie ma skosów to powierzchnia podłogi i pomieszczenia jest taka sama.
pomieszczenia i podłogi
podłogi
1. Wiatrołap
2,69
2. Korytarz
2,81
3. Łazienka
6,11
4. Kuchnia
7,91
5. Pokój dzienny + jadalnia
43,84
6. Pokój
10,43
7. Pokój
13,26
8. Pomieszczenie gospodarcze
4,12
Razem
91,17
91,17

    Usytuowanie na działce

    Czy ten projekt pasuje na
    Twoją działkę?

    Chętnie to sprawdzimy!

    Dowiedz się:

    • czy zmieści się na niej wybrany przez Ciebie dom
    • jakie parametry musi spełniać dom według miejscowego planu zagospodarowania lub warunków zabudowy (np. kąt nachylenia i typ dachu, liczba kondygnacji itp.
    • jakie inne projekty pasują na Twoją działkę – znajdziemy je dla Ciebie!

Pow. użytkowa

87 m²

Pokoje

2

Łazienki i WC

1

Garaż

0

Min. szer. i dł. działki

22,2 x 23,40 m

Kąt dachu

Konstrukcja

Murowana
więcej

Z widokiem na słońce - WOX1076

ikona 87 m²
Powierzchnia użytkowa
ikona2
Pokoje (bez salonu)
ikona 1
Łazienki (z toaletami)
ikona 0
Liczba stanowisk garażowych
(z wiatą garażową)
ikona
Konstrukcja: Murowana

Projekt został
wycofany z oferty

W razie pytań prosimy o kontakt
z Centrum Obsługi Klienta
Konsultant
71 715 20 60

pon.-pt. 8-21, sob. 9-17

Parter - 91,17 m²

Parter projektu Z widokiem na słońce

Zapytaj, co możesz zmienić

Powierzchnia (m²)
Tooltip
Powierzchnia pomieszczenia
to ta, z której faktycznie możesz korzystać – skosy i niskie części poddasza są liczone częściowo lub wcale.
  1. 100% dla wysokości powyżej 2,2 m,
  2. 50% dla wysokości 1,4–2,2 m,
  3. nie liczymy poniżej 1,4 m.

Powierzchnia podłogi
Liczymy po obrysie pomieszczenia, bez względu na jego wysokość/skosy. Jeśli nie ma skosów to powierzchnia podłogi i pomieszczenia jest taka sama.
pomieszczenia i podłogi
podłogi
1. Wiatrołap
2,69
2. Korytarz
2,81
3. Łazienka
6,11
4. Kuchnia
7,91
5. Pokój dzienny + jadalnia
43,84
6. Pokój
10,43
7. Pokój
13,26
8. Pomieszczenie gospodarcze
4,12
Razem
91,17
91,17

Podobne projekty (1169)

Zobacz wszystkie
PREZENT 🎁
Zdjęcie 1 projektu Kwadra Meta (1955) KRD3086
Kwadra Meta (1955)
Dodano!
Dodano!
84,90 m²
3
2
0

3 062 zł

PREZENT 🎁
Zdjęcie 1 projektu Dom przy Bukowej 21 KRK1561
Dom przy Bukowej 21
Dodano!
Dodano!
81,44 m²
3
1
0

3 790 zł

PREZENT 🎁
Nowość
Zdjęcie 1 projektu Bambino WOF1279
Bambino
Dodano!
Dodano!
83,59 m²
3
1
0

3 699 zł

PREZENT 🎁
Zdjęcie 1 projektu Zosia 5 WAH1886
Zosia 5
Dodano!
Dodano!
87,47 m²
3
2
0

6 590 zł

PREZENT 🎁
Nowość
Zdjęcie 1 projektu L-326 murowany SLU1062
L-326 murowany
Dodano!
Dodano!
86,22 m²
3
2
0

3 300 zł

PREZENT 🎁
Zdjęcie 1 projektu Felek (1656) KRD2804
Felek (1656)
Dodano!
Dodano!
79,50 m²
3
1
0

3 790 zł

PREZENT 🎁
Zdjęcie 1 projektu Doppio WOF1127
Doppio
Dodano!
Dodano!
80 m²
3
1
0

3 699 zł

PREZENT 🎁
Nowość
Zdjęcie 1 projektu Mirabelka 5 WOF1274
Mirabelka 5
Dodano!
Dodano!
85,67 m²
3
2
0

3 899 zł

Elewacje

Frontowa
Tylna
Lewa
Prawa

Usytuowanie na działce

Czy ten projekt pasuje na
Twoją działkę?

Chętnie to sprawdzimy!

Czy ten projekt pasuje na
Twoją działkę?

Chętnie to sprawdzimy!

Dowiedz się:

  • czy zmieści się na niej wybrany przez Ciebie dom
  • jakie parametry musi spełniać dom według miejscowego planu zagospodarowania lub warunków zabudowy (np. kąt nachylenia i typ dachu, liczba kondygnacji itp.
  • jakie inne projekty pasują na Twoją działkę – znajdziemy je dla Ciebie!
Autor: Domy Czystej Energii

Dane techniczne projektu

Powierzchnie i wymiary Powierzchnie i wymiary

Powierzchnia użytkowa
Tooltip
Suma powierzchni wszystkich pomieszczeń mieszkalnych, pomniejszona o pow. garażu, kotłowni, strychu, piwnicy. Jest liczona w 100% dla pomieszczeń o wysokości powyżej 2,2 m, w 50% dla pomieszczeń o wys. 2,2-1,4 m i niewliczana dla niższych niż 1,4 m.

87 m²

Powierzchnia zabudowy
Tooltip
Powierzchnia zajmowana przez część na- oraz nadziemną budynku liczona, jako rzut pionowy budynku na działkę.

118,25 m²

Kubatura netto
Tooltip
Zazwyczaj jest to suma kubatur (objętości) pomieszczeń budynku, bez strychu, liczonych po zewnętrznym obrysie murów (z ociepleniem).

241,90 m³

Kubatura brutto
Tooltip
Zazwyczaj jest to suma kubatur (objętości) wszystkich pomieszczeń budynku, liczonych po zewnętrznym obrysie murów (z ociepleniem).

483,40 m³

Powierzchnia dachu

119,15 m²

Kąt nachylenia dachu
Tooltip
Nachylenie połaci dachu głównego podawane w stopniach. Uwaga! W niektórych projektach występuje więcej niż jedno nachylenie dachu.

Wysokość budynku
Tooltip
Wysokość liczona od części budynku położonej najniżej przy powierzchni terenu do najwyższego punktu dachu (kalenicy) z wyłączeniem kominów.

4,10 m

Min. szerokość działki
Tooltip
Najmniejsza możliwa szerokość działki niezbędna do wybudowania wybranego domu. Składa się z szerokości elewacji domu powiększonej z obu stron o 3 m dla ściany bez otworów drzwiowych/okiennych lub 4 m, dla ściany z otworami.

22,20 m

Min. długość działki
Tooltip
Najmniejsza możliwa długość działki niezbędna do wybudowania wybranego domu. Składa się z długości elewacji domu powiększonej z obu stron o 3 m dla ściany bez otworów drzwiowych/okiennych lub 4 m, dla ściany z otworami.

23,40 m

Energooszczędność Energooszczędność

Oze Czym jest OZE (Odnawialne Źródło Energii)?
Euco
Tooltip
Energia użytkowa potrzebna do ogrzewania i wentylacji. Im parametr jest niższy tym budynek bardziej energooszczędny.

32,56 kWh/(m²rok)

Warunki techniczne

Projekt zgody z WT 2021

Gotowe domy - najszybszy sposób na dom (115)

Zobacz wszystkie
  • Stan deweloperski nawet w 6 miesięcy
  • Gwarancja stałej ceny
Skonfiguruj dom
Zdjęcie 1 projektu Bergen 90 HUS1003
90,83 m²
3
Stan deweloperski brutto
409 000 zł 4 503 zł/m²
Zdjęcie 1 projektu Dom szkieletowy Urban Smart 110 HHT1035
85,86 m²
3
Stan deweloperski brutto
465 577 zł 5 423 zł/m²
Zdjęcie 1 projektu Dom prefabrykowany E.2 HPK1018
88,25 m²
4
Stan deweloperski brutto
510 719 zł 5 787 zł/m²
Zdjęcie 1 projektu Dom szkieletowy Double Family Smart 140 HHT1024
88,78 m²
4
Stan deweloperski brutto
1 216 900 zł 13 707 zł/m²
Zdjęcie 1 projektu Dom prefabrykowany P.10 HPK1009
84,54 m²
3
Stan deweloperski brutto
509 400 zł 6 026 zł/m²
Zdjęcie 1 projektu Dom prefabrykowany P.10a HPK1010
84,54 m²
3
Stan deweloperski brutto
509 400 zł 6 026 zł/m²
Zdjęcie 1 projektu Dom szkieletowy Mezzanine Smart Comfort 70 HHT1037
89,73 m²
3
Stan deweloperski brutto
490 784 zł 5 470 zł/m²
Zdjęcie 1 projektu Dom prefabrykowany Parterowy 90C HFX1007
90,04 m²
4
Stan deweloperski brutto
425 000 zł 4 720 zł/m²

Opis projektu domu
Z widokiem na słońce

Projekt Z widokiem na słońce to doskonały wybór dla właścicieli działek letniskowych usytuowanych na skarpie. Budynek został częściowo zagłębiony w stoku, dzięki czemu jest odpowiedni do zrealizowania na parceli o bardzo specyficznych warunkach. Jednocześnie takie rozwiązanie, prezentuje się bardzo efektownie i daje użytkownikom możliwość bliskiego obcowania z naturą. Zarazem, pozostałe przeszklenia, posiadają wyjątkowo spore rozmiary, dzięki czemu wnętrze jest doskonale oświetlone. Projekt Z widokiem na słońce charakteryzuje się wyjątkowo prostą konstrukcją. Został oparty na typowej bryle w kształcie prostokąta oraz przykryty dachem płaskim. Rozwiązania te decydują o nowoczesnym charakterze budynku, a także wpływają na niskie koszty realizacji. Dom został zaprojektowany w technologii budynku energooszczędnego. Dodatkowo, architekt przewidział w nim zastosowanie instalacji pozwalających na korzystanie z odnawialnych źródeł energii. Tym samym, projekt Z widokiem na słońce jest nie tylko ekonomiczny w budowie, ale także późniejszej eksploatacji. Przewidziany w projekcie układ pomieszczeń uwzględnia wszystko, co potrzebne do w pełni komfortowego życia. Ilość korytarzy została ograniczona do niezbędnego minimum, dzięki czemu powierzchnia została w całości użytkowo wykorzystana. Brak dużych halli i przedpokojów sprawia, że mimo niewielkiego metrażu domu, uwzględnione w nim pomieszczenia mieszkalne cechują się wysoką przestronnością. Główną częścią układu jest efektowna strefa dzienna w skład w której wchodzą salon, jadalnia i aneks kuchenny. Pomieszczenia zostały na siebie w pełni otwarte, co sprzyja integracji, a ta jest szczególnie ważna podczas rodzinnych wypadów za miasto. Kuchnia składa się z zabudowanego aneksu oraz wolnostojącej, dużej wyspy kuchennej przy której usytuowano wysokie krzesła. Taki układ umożliwia wygodny podział prac między domownikami i nadaje wnętrzu nowoczesnego wyglądu. Ściana tworząca strefę wypoczynkowa została całkowicie przeszklona, co daje niesamowity efekt wizualny. W projekcie znajdują się dwie sypialnie, co sprawia że Z widokiem na słońce jest świetnym wyborem dla 2-4 osobowej rodziny. Łazienka i kuchnia zostały usytuowane blisko pomieszczenia gospodarczego z piecem, co zapewnia szybki przepływ ciepłej wody. Charakterystycznym elementem projektu jest duży taras - idealne miejsce dla miłośników rodzinnego grillowania i chwil relaksu na świeżym powietrzu.
Czytaj więcej

Informacje dodatkowe

Projekt jest w fazie koncepcji. Przy zakupie projektu należy zapłacić 10% zaliczki. Zaliczka jest bezzwrotna w przypadku zwrotu lub rezygnacji z zamówienia.

Czytaj więcej

Polecani producenci

Kompletne systemy rekuperacji

tło producenta

Alnor

Dowiedz się więcej

Prefabrykowane konstrukcje dachowe

tło producenta

WIĄZAR POLSKA

Zobacz więcej

Sprawdź nową generację okien GREENVIEW

tło producenta

FAKRO

Sprawdź nową generację okien GREENVIEW

Styropian, tynki, farby, kleje

tło producenta

Termo Organika

Poznaj super jakość

Okna, drzwi, osłony przeciwsłoneczne

tło producenta

Aluprof

Sprawdź ofertę
Zobacz więcej

Społeczność projektu domu
Z widokiem na słońce w budowie

Dołącz do społeczności osób, które budują ten dom lub są zainteresowane jego budową.

  • Oglądaj zdjęcia z budowy
  • Zadawaj pytania
  • Wymieniaj się doświadczeniami

Opinie o projekcie domu Z widokiem na słońce

Ocena

Ten projekt nie ma jeszcze opinii, bądź pierwszy!

Dodaj opinię

ASYSTENT WYBORU PROJEKTU

Szukasz idealnego projektu? Znajdziemy go dla Ciebie!

Doradca na podstawie Twoich wskazówek przygotuje spersonalizowaną listę projektów

Graficzne opracowanie rzutów poglądowych widocznych na karcie projektu zostało wykonane przez Extradom.pl. Prezentowane przez Extradom.pl wizualizacje wykonane zostały przez autora projektu i należy poczytywać je jedynie za przykład i propozycję wykończenia, wizję architektoniczną autora projektu. Ostateczne wykończenie budynku może nastąpić na wiele sposobów. Szczegółowe rozwiązania zastosowane w oferowanej dokumentacji - w tym również ilość, lokalizacje i wygląd okien, drzwi, kominów - mogą w niewielkim stopniu różnić się od prezentowanej wizualizacji budynku.

REKLAMA
Zamknij