Projekty nawet 500 zł taniej ❄️

Koniec oferty za:

00godz.

00min.

00sek.

Sprawdź

Projekt domu WM18 Wieszczek GDB1053

Dodano!
Dodano!

Warstwy

Warstwy

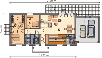
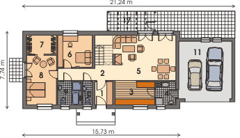
Rzut parteru

Powierzchnia (m²)
Tooltip
Powierzchnia pomieszczenia
to ta, z której faktycznie możesz korzystać – skosy i niskie części poddasza są liczone częściowo lub wcale.
  1. 100% dla wysokości powyżej 2,2 m,
  2. 50% dla wysokości 1,4–2,2 m,
  3. nie liczymy poniżej 1,4 m.

Powierzchnia podłogi
Liczymy po obrysie pomieszczenia, bez względu na jego wysokość/skosy. Jeśli nie ma skosów to powierzchnia podłogi i pomieszczenia jest taka sama.
pomieszczenia i podłogi
podłogi
1. Wiatrołap
4,01
2. Korytarz
12,17
3. Kuchnia
9,27
4. Pomieszczenie gospodarcze
4,21
5. Pokój dzienny
27,94
6. Pokój
10,77
7. Garderoba
5,46
8. Pokój
14,50
9. Łazienka
5,14
10. Wc
2,19
11. Garaż dwustanowiskowy
30,20
Razem
125,86
125,86
Powierzchnia (m²)
Tooltip
Powierzchnia pomieszczenia
to ta, z której faktycznie możesz korzystać – skosy i niskie części poddasza są liczone częściowo lub wcale.
  1. 100% dla wysokości powyżej 2,2 m,
  2. 50% dla wysokości 1,4–2,2 m,
  3. nie liczymy poniżej 1,4 m.

Powierzchnia podłogi
Liczymy po obrysie pomieszczenia, bez względu na jego wysokość/skosy. Jeśli nie ma skosów to powierzchnia podłogi i pomieszczenia jest taka sama.
pomieszczenia
podłogi
12. Korytarz
4,70
4,70
13. Pokój
18,67
44,45
14. Garderoba
1,42
4,25
15. Pokój
15,75
34,95
16. Łazienka
7,36
7,56
Razem
47,90
95,91

    Usytuowanie na działce

    Czy ten projekt pasuje na
    Twoją działkę?

    Chętnie to sprawdzimy!

    Dowiedz się:

    • czy zmieści się na niej wybrany przez Ciebie dom
    • jakie parametry musi spełniać dom według miejscowego planu zagospodarowania lub warunków zabudowy (np. kąt nachylenia i typ dachu, liczba kondygnacji itp.
    • jakie inne projekty pasują na Twoją działkę – znajdziemy je dla Ciebie!

Pow. użytkowa

173,76 m²

Pokoje

4

Łazienki i WC

3

Garaż

2

Min. szer. i dł. działki

28,3 x 15,80 m

Kąt dachu

40°
więcej

WM18 Wieszczek - GDB1053

ikona 173,76 m²
Powierzchnia użytkowa
ikona4
Pokoje (bez salonu)
ikona 3
Łazienki (z toaletami)
ikona 2
Liczba stanowisk garażowych
(z wiatą garażową)

Projekt został
wycofany z oferty

W razie pytań prosimy o kontakt
z Centrum Obsługi Klienta
Konsultant Masz pytania?
Zadzwoń
71 715 20 60

pon.-pt. 8-21, sob. 9-17

Parter - 125,86 m²

Parter projektu WM18 Wieszczek

Zapytaj, co możesz zmienić

Powierzchnia (m²)
Tooltip
Powierzchnia pomieszczenia
to ta, z której faktycznie możesz korzystać – skosy i niskie części poddasza są liczone częściowo lub wcale.
  1. 100% dla wysokości powyżej 2,2 m,
  2. 50% dla wysokości 1,4–2,2 m,
  3. nie liczymy poniżej 1,4 m.

Powierzchnia podłogi
Liczymy po obrysie pomieszczenia, bez względu na jego wysokość/skosy. Jeśli nie ma skosów to powierzchnia podłogi i pomieszczenia jest taka sama.
pomieszczenia i podłogi
podłogi
1. Wiatrołap
4,01
2. Korytarz
12,17
3. Kuchnia
9,27
4. Pomieszczenie gospodarcze
4,21
5. Pokój dzienny
27,94
6. Pokój
10,77
7. Garderoba
5,46
8. Pokój
14,50
9. Łazienka
5,14
10. Wc
2,19
11. Garaż dwustanowiskowy
30,20
Razem
125,86
125,86

Poddasze - 47,90 m²

Poddasze projektu WM18 Wieszczek

Zapytaj, co możesz zmienić

Powierzchnia (m²)
Tooltip
Powierzchnia pomieszczenia
to ta, z której faktycznie możesz korzystać – skosy i niskie części poddasza są liczone częściowo lub wcale.
  1. 100% dla wysokości powyżej 2,2 m,
  2. 50% dla wysokości 1,4–2,2 m,
  3. nie liczymy poniżej 1,4 m.

Powierzchnia podłogi
Liczymy po obrysie pomieszczenia, bez względu na jego wysokość/skosy. Jeśli nie ma skosów to powierzchnia podłogi i pomieszczenia jest taka sama.
pomieszczenia
podłogi
12. Korytarz
4,70
4,70
13. Pokój
18,67
44,45
14. Garderoba
1,42
4,25
15. Pokój
15,75
34,95
16. Łazienka
7,36
7,56
Razem
47,90
95,91

Podobne projekty (7312)

Zobacz wszystkie
Nowość
Zdjęcie 1 projektu NewHouse 790 w3 KRZ1136
NewHouse 790 w3
Dodano!
Dodano!
172,58 m²
4
3
2

6 590 zł

NIŻSZA CENA❄️
Nowość
Zdjęcie 1 projektu N-263 PZB1096
N-263
Dodano!
Dodano!
197,19 m²
5
2
0

8 978 zł

9 450 zł

Tooltip

Cena regularna

9 450 zł najniższa cena
Tooltip

Najniższa cena z 30 dni
przed obniżką

NIŻSZA CENA❄️
Zdjęcie 1 projektu AJR 09 A2 a WOJ1029
AJR 09 A2 a
Dodano!
Dodano!
156,50 m²
5
3
2

4 600 zł

4 900 zł

Tooltip

Cena regularna

4 500 zł najniższa cena
Tooltip

Najniższa cena z 30 dni
przed obniżką

NIŻSZA CENA❄️
Zdjęcie 1 projektu Weranda 5 BSA2292
Weranda 5
Dodano!
Dodano!
150,71 m²
3
2
0

5 249 zł

5 749 zł

Tooltip

Cena regularna

5 249 zł najniższa cena
Tooltip

Najniższa cena z 30 dni
przed obniżką

NIŻSZA CENA❄️
Zdjęcie 1 projektu Rozsądny WAH1539
Rozsądny
Dodano!
Dodano!
165,45 m²
5
2
1

5 080 zł

6 350 zł

Tooltip

Cena regularna

4 762 zł najniższa cena
Tooltip

Najniższa cena z 30 dni
przed obniżką

Zdjęcie 1 projektu Gerda WOW1031
Gerda
Dodano!
Dodano!
169,20 m²
6
2
2

4 200 zł

NIŻSZA CENA❄️
Zdjęcie 1 projektu N-137 PZB1052
N-137
Dodano!
Dodano!
197,64 m²
5
3
2

9 481 zł

9 980 zł

Tooltip

Cena regularna

8 496 zł najniższa cena
Tooltip

Najniższa cena z 30 dni
przed obniżką

NIŻSZA CENA❄️
Zdjęcie 1 projektu N-220 PZB1085
N-220
Dodano!
Dodano!
188,78 m²
5
2
2

10 973 zł

11 550 zł

Tooltip

Cena regularna

9 855 zł najniższa cena
Tooltip

Najniższa cena z 30 dni
przed obniżką

Usytuowanie na działce

Czy ten projekt pasuje na
Twoją działkę?

Chętnie to sprawdzimy!

Czy ten projekt pasuje na
Twoją działkę?

Chętnie to sprawdzimy!

Dowiedz się:

  • czy zmieści się na niej wybrany przez Ciebie dom
  • jakie parametry musi spełniać dom według miejscowego planu zagospodarowania lub warunków zabudowy (np. kąt nachylenia i typ dachu, liczba kondygnacji itp.
  • jakie inne projekty pasują na Twoją działkę – znajdziemy je dla Ciebie!
Autor: Wm

Dane techniczne projektu

Powierzchnie i wymiary Powierzchnie i wymiary

Powierzchnia użytkowa
Tooltip
Suma powierzchni wszystkich pomieszczeń mieszkalnych, pomniejszona o pow. garażu, kotłowni, strychu, piwnicy. Jest liczona w 100% dla pomieszczeń o wysokości powyżej 2,2 m, w 50% dla pomieszczeń o wys. 2,2-1,4 m i niewliczana dla niższych niż 1,4 m.

173,76 m²

Powierzchnia zabudowy
Tooltip
Powierzchnia zajmowana przez część na- oraz nadziemną budynku liczona, jako rzut pionowy budynku na działkę.

166,61 m²

Kąt nachylenia dachu
Tooltip
Nachylenie połaci dachu głównego podawane w stopniach. Uwaga! W niektórych projektach występuje więcej niż jedno nachylenie dachu.

40°

Wysokość budynku
Tooltip
Wysokość liczona od części budynku położonej najniżej przy powierzchni terenu do najwyższego punktu dachu (kalenicy) z wyłączeniem kominów.

6,94 m

Min. szerokość działki
Tooltip
Najmniejsza możliwa szerokość działki niezbędna do wybudowania wybranego domu. Składa się z szerokości elewacji domu powiększonej z obu stron o 3 m dla ściany bez otworów drzwiowych/okiennych lub 4 m, dla ściany z otworami.

28,30 m

Min. długość działki
Tooltip
Najmniejsza możliwa długość działki niezbędna do wybudowania wybranego domu. Składa się z długości elewacji domu powiększonej z obu stron o 3 m dla ściany bez otworów drzwiowych/okiennych lub 4 m, dla ściany z otworami.

15,80 m

Energooszczędność Energooszczędność

Oze Czym jest OZE (Odnawialne Źródło Energii)?
Warunki techniczne

Projekt zgody z WT 2021

Technologia i konstrukcja Technologia i konstrukcja

Opis szczegółowy

Dom z poddaszem użytkowym WM18 Wieszczek - to duży, wygodny dom charakteryzujący się prostą, dwuczęściową bryłą zaprojektowaną na planie prostokąta oraz funkcjonalnym, czytelnym układem wnętrza. Indywidualny charakter domu podkreśla wykończenie fragmentów elewacji deskami i cegłą klinkierową. W wyższej bryle zaprojektowano cześć mieszkalną, w niższej garaż. W domu tym, na szczególną uwagę zasługują praktyczne rozwiązania funkcji wnętrza, dwie sypialnie na parterze, ogród zimowy oraz pomieszczenie gospodarcze zlokalizowane obok kuchni i garażu. Interesującym rozwiązaniem jest możliwość powiązania dziennej przestrzeni parteru z zielenią ogrodu i oranżerii. Projekt powstał na planie parterowego projektu W15 Zimorodek. Technologia: Ściany zewnętrzne: dwu-warstwowe, beton komórkowy 24 cm + styropian 12 cm, strop: gęstożebrowy terriva I bis, konstrukcja dachu: drewniana, krokwiowo jętkowa pokrycie dachu: dachówka ceramiczna elewacja: tynk cienkowarstwowy, na fragmentach ścian płytki klinkierowe, oraz deski elewacyjne. Projekt może występować w wersji ze ścianą trzywarstwową - beton komórkowy 24 cm + styropian 12 cm + cegła klinkierowa. Projekt domu można realizować w różnych zestawieniach kolorystycznych. Wówczas ważne jest, aby przy doborze koloru, w ostatniej wykończeniowej fazie budowy uczestniczył profesjonalista, który zestawi na budowie poszczególne materiały ze sobą - klinkier cokołu, kolor tynków, dachówki oraz deski. Ważne jest aby te zestawienia dokonywać bezpośrednio na budowie w danej lokalizacji. Oranżeria może być wybudowana od razu, bądź po kilku latach. Podane minimalne wymiary działki dla domu bez oranżerii. Uniwersalny wygląd domu, wzorowany na rdzennym polskim budownictwie sprawia, że dom będzie się dobrze prezentował w dowolnym krajobrazie - miejskim, podmiejskim czy w przestrzeni otwartej.

Strop

: gęstożebrowy terriva i bis, konstrukcja dachu: drewniana, krokwiowo jętkowa pokrycie dachu: dachówka ceramiczna elewacja: tynk cienkowarstwowy, na fragmentach ścian płytki klinkierowe, oraz deski elewacyjne

Reklama
Okna i drzwi tarasowe

Nowoczesne okna PVC i aluminiowe WIŚNIOWSKI – doskonała izolacja, elegancki design i niezrównana trwałość.

Wiśniowski
Sprawdź parametry!
Okna dachowe

Oferujemy bezpłatne konsultacje w zakresie wszystkich rozwiązań VELUX. Wyceny, porady dotyczące doboru okien i rolet zewnętrznych - sprawdź!

Velux
Sprawdź szczegóły
Płytki ceramiczne i gresy

Od małych formatów po wielkoformatowe gresy. Marmur, beton, drewno, kamień, lastryko czy cegiełki zamówisz wygodnie online z szybką dostawą.

Ceramzet
Sprawdź ofertę
Drzwi

Ciepłe drzwi WIŚNIOWSKI z kontrolą dostępu. Szeroka gama wzorów i kolorów.

Wiśniowski
Wybierz najlepsze
Bramy garażowe

Automatyczne bramy garażowe segmentowe i uchylne WIŚNIOWSKI na wymiar i z systemem smart home w standardzie.

Wiśniowski
Sprawdź ofertę!
Armatura i ceramika łazienkowa

Topowi producenci. Baterie łazienkowe, zestawy natynkowe i podtynkowe, umywalki, wanny, miski WC oraz kabiny zamówisz kompleksowo online.

Ceramzet II
Dowiedz się więcej
Rekuperacja

Alnor - kompletny system rekuperacji. Dobierz idealne rozwiązanie dla Twojego domu!

Alnor
Dobierz rekuperator
Gruntowe pompy ciepła

Przeprowadzimy kompletną instalację najbardziej oszczędnego źródła ciepła w Twoim nowym domu - gruntowej pompy ciepła. Od dokumentacji, pozwoleń, po odwierty i instalację.

Geothermal Solutions
Dowiedz się więcej

Gotowe domy modułowe (114)

Zobacz wszystkie
Stan deweloperski nawet w 6 miesięcy Gwarancja stałej ceny
Zdjęcie 1 projektu Dom prefabrykowany P.6 HPK1005
Pow. użytkowa
176,69 m²
Pokoje
4
916 600 zł 5 188 zł/m²
Zdjęcie 1 projektu Dom szkieletowy Viking Smart 220 HHT1032
Pow. użytkowa
163,86 m²
Pokoje
4
1 095 606 zł 6 686 zł/m²
Zdjęcie 1 projektu Dom prefabrykowany DH174 HDH1009
Pow. użytkowa
162,97 m²
Pokoje
4
1 026 000 zł 5 796 zł/m²
Zdjęcie 1 projektu Dom prefabrykowany P.4 bez okapu HPK1003
Pow. użytkowa
162,18 m²
Pokoje
4
701 000 zł 4 322 zł/m²
Zdjęcie 1 projektu Dom prefabrykowany P.4 z okapem HPK1014
Pow. użytkowa
162,18 m²
Pokoje
5
710 500 zł 4 381 zł/m²
Zdjęcie 1 projektu Dom prefabrykowany Stodoła 180B HFX1028
Pow. użytkowa
185,90 m²
Pokoje
5
659 000 zł 3 545 zł/m²
Zdjęcie 1 projektu Dom prefabrykowany Stodoła 180C HFX1029
Pow. użytkowa
186,60 m²
Pokoje
5
659 000 zł 3 532 zł/m²
Zdjęcie 1 projektu Dom prefabrykowany Stodoła 180A HFX1027
Pow. użytkowa
186,60 m²
Pokoje
5
659 000 zł 3 532 zł/m²

Opis projektu domu
WM18 Wieszczek

Dom z poddaszem użytkowym WM18 Wieszczek - to duży, wygodny dom charakteryzujący się prostą, dwuczęściową bryłą zaprojektowaną na planie prostokąta oraz funkcjonalnym, czytelnym układem wnętrza. Indywidualny charakter domu podkreśla wykończenie fragmentów elewacji deskami i cegłą klinkierową. W wyższej bryle zaprojektowano cześć mieszkalną, w niższej garaż. W domu tym, na szczególną uwagę zasługują praktyczne rozwiązania funkcji wnętrza, dwie sypialnie na parterze, ogród zimowy oraz pomieszczenie gospodarcze zlokalizowane obok kuchni i garażu. Interesującym rozwiązaniem jest możliwość powiązania dziennej przestrzeni parteru z zielenią ogrodu i oranżerii. Projekt powstał na planie parterowego projektu W15 Zimorodek. Technologia: Ściany zewnętrzne: dwu-warstwowe, beton komórkowy 24 cm + styropian 12 cm, strop: gęstożebrowy terriva I bis, konstrukcja dachu: drewniana, krokwiowo jętkowa pokrycie dachu: dachówka ceramiczna elewacja: tynk cienkowarstwowy, na fragmentach ścian płytki klinkierowe, oraz deski elewacyjne. Projekt może występować w wersji ze ścianą trzywarstwową - beton komórkowy 24 cm + styropian 12 cm + cegła klinkierowa. Projekt domu można realizować w różnych zestawieniach kolorystycznych. Wówczas ważne jest, aby przy doborze koloru, w ostatniej wykończeniowej fazie budowy uczestniczył profesjonalista, który zestawi na budowie poszczególne materiały ze sobą - klinkier cokołu, kolor tynków, dachówki oraz deski. Ważne jest aby te zestawienia dokonywać bezpośrednio na budowie w danej lokalizacji. Oranżeria może być wybudowana od razu, bądź po kilku latach. Podane minimalne wymiary działki dla domu bez oranżerii. Uniwersalny wygląd domu, wzorowany na rdzennym polskim budownictwie sprawia, że dom będzie się dobrze prezentował w dowolnym krajobrazie - miejskim, podmiejskim czy w przestrzeni otwartej.
Czytaj więcej

Polecani producenci

Prefabrykowane konstrukcje dachowe

tło producenta

WIĄZAR POLSKA

Zobacz więcej

Sprawdź nową generację okien GREENVIEW

tło producenta

FAKRO

Sprawdź nową generację okien GREENVIEW

Styropian, tynki, farby, kleje

tło producenta

Termo Organika

Poznaj super jakość

Okna, drzwi, osłony przeciwsłoneczne

tło producenta

Aluprof

Sprawdź ofertę

Kompletne systemy rekuperacji

tło producenta

Alnor

Dowiedz się więcej

Sprawdź nowy system DACHRYNNA

tło producenta

Galeco

Sprawdź ofertę
Zobacz więcej

Społeczność projektu domu
WM18 Wieszczek w budowie

Dołącz do społeczności osób, które budują ten dom lub są zainteresowane jego budową.

  • Oglądaj zdjęcia z budowy
  • Zadawaj pytania
  • Wymieniaj się doświadczeniami

Opinie o projekcie domu WM18 Wieszczek

Ocena

Ten projekt nie ma jeszcze opinii, bądź pierwszy!

Dodaj opinię

ASYSTENT WYBORU PROJEKTU

Szukasz idealnego projektu? Znajdziemy go dla Ciebie!

Doradca na podstawie Twoich wskazówek przygotuje spersonalizowaną listę projektów

Graficzne opracowanie rzutów poglądowych widocznych na karcie projektu zostało wykonane przez Extradom.pl. Prezentowane przez Extradom.pl wizualizacje wykonane zostały przez autora projektu i należy poczytywać je jedynie za przykład i propozycję wykończenia, wizję architektoniczną autora projektu. Ostateczne wykończenie budynku może nastąpić na wiele sposobów. Szczegółowe rozwiązania zastosowane w oferowanej dokumentacji - w tym również ilość, lokalizacje i wygląd okien, drzwi, kominów - mogą w niewielkim stopniu różnić się od prezentowanej wizualizacji budynku.

REKLAMA
Zamknij