👉 Wiosenne rabaty + karta allegro 200 zł! 🔥

Koniec oferty za:

00godz.

00min.

00sek.

Sprawdź

Projekt domu Sześcienny S1-3 ZGD1001

Zapisz Dodano!
Porównaj Dodano!
ikona Pobierz i drukuj
Dodaj opinię

Warstwy

Warstwy

Rzut parteru

Powierzchnia (m²)
Tooltip
Powierzchnia pomieszczenia
to ta, z której faktycznie możesz korzystać – skosy i niskie części poddasza są liczone częściowo lub wcale.
  1. 100% dla wysokości powyżej 2,2 m,
  2. 50% dla wysokości 1,4–2,2 m,
  3. nie liczymy poniżej 1,4 m.

Powierzchnia podłogi
Liczymy po obrysie pomieszczenia, bez względu na jego wysokość/skosy. Jeśli nie ma skosów to powierzchnia podłogi i pomieszczenia jest taka sama.
pomieszczenia i podłogi
podłogi
1. Wiatrołap
3,46
2. Wc
1,56
3. Pokój dzienny + jadalnia
28
4. Kuchnia
6,10
5. Kotłownia
4,30
Razem
43,42
43,42
6. Taras
21,23
7. Podest
6,32
Powierzchnia (m²)
Tooltip
Powierzchnia pomieszczenia
to ta, z której faktycznie możesz korzystać – skosy i niskie części poddasza są liczone częściowo lub wcale.
  1. 100% dla wysokości powyżej 2,2 m,
  2. 50% dla wysokości 1,4–2,2 m,
  3. nie liczymy poniżej 1,4 m.

Powierzchnia podłogi
Liczymy po obrysie pomieszczenia, bez względu na jego wysokość/skosy. Jeśli nie ma skosów to powierzchnia podłogi i pomieszczenia jest taka sama.
pomieszczenia i podłogi
podłogi
1. Schody
4,38
2. Korytarz
3,04
3. Łazienka
7
4. Pokój
17,26
5. Pokój
9,56
6. Garderoba
2,73
7. Garderoba
2,73
Razem
46,70
46,70

    Usytuowanie na działce

    Czy ten projekt pasuje na
    Twoją działkę?

    Chętnie to sprawdzimy!

    Dowiedz się:

    • czy zmieści się na niej wybrany przez Ciebie dom
    • jakie parametry musi spełniać dom według miejscowego planu zagospodarowania lub warunków zabudowy (np. kąt nachylenia i typ dachu, liczba kondygnacji itp.
    • jakie inne projekty pasują na Twoją działkę – znajdziemy je dla Ciebie!

Pow. użytkowa

80,27 m²

Pokoje

2

Łazienki i WC

2

Garaż

0

Min. szer. i dł. działki

15,89 x 15,89 m

Kąt dachu

40°

Szacunkowy koszt SSZ

194 000 zł
Szacunkowy koszt budowy do stanu surowego zamkniętego (SSZ) metodą gospodarczą - większość prac wykonuje inwestor.

Konstrukcja

Murowana
więcej
Zapisz Dodano!
Porównaj Dodano!
ikona Pobierz i drukuj

Sześcienny S1-3 - ZGD1001

ikona 80,27 m²
Powierzchnia użytkowa
ikona2
Pokoje (bez salonu)
ikona 2
Łazienki (z toaletami)
ikona 0
Liczba stanowisk garażowych
(z wiatą garażową)
ikona
Konstrukcja: Murowana

Promocja

od 05.05.2026 do 07.05.2026

0dni

00 00 00

3 750 zł

3 950 zł - cena regularna
Tooltip

Cena regularna obowiązywała od 29.04.2026 do 04.05.2026

3 750 zł - najniższa cena z 30 dni przed obniżką

Projekt jest dostępny

Gwarancja najniższej ceny
ikona
Darmowa dostawa
Paczkomaty, kurier
ikona
100 dni na wymianę,
30 dni na zwrot
ikona Zyskaj najwięcej! Extradodatki GRATIS:

15% rabatu do LEROY MERLIN

10% rabatu w CASTORAMIE

16% rabatu w SELSEY

Pakiet Formalności 2026

Przydatne Extradodatki

Poradnik Dach Solarny

ikona Co zawiera projekt?
  • Projekt zgodny z WT2021
  • Bezpłatne pozwolenie na zmiany
  • Charakterystyka energetyczna
Konsultant
71 715 20 60

pon.-pt. 8-21, sob. 9-17

Szukasz wykonawcy godnego zaufania?
Zleć budowę w Extradom.pl!

  • Z góry znasz koszt budowy domu
  • Dom odbierasz zgodnie z ustalonym harmonogramem - nawet w 6 miesięcy
  • Zabezpiecza Cię jedna kompleksowa umowa z jednym wykonawcą
  • Otrzymujesz nawet 30-letnią gwarancję na konstrukcję domu
  • Oszczędzasz swój czas dzięki pewnej i kompletnej usłudze
  • Odbiór techniczny GRATIS - Gwarantujemy najwyższą jakość
Cena brutto stanu
deweloperskiego od
Tooltip
Cena brutto stanu deweloperskiego od 4 719 do 6 939 zł/m2.
Cena jest uzależniona m.in. od lokalizacji, wybranej technologii, kubatury budynku, skomplikowania projektu i ewentualnych zmian, na które zdecyduje się inwestor.
Cena za m2 powierzchni netto, czyli wszystkich pomieszczeń mierzonych na wysokości podłogi.
4 719 zł/m2
Dowiedz się więcej
Konsultant Masz pytania?
Zadzwoń
71 715 20 09

pon.-pt. 8-19

Parter - 43,42 m²

Parter projektu Sześcienny S1-3

Zapytaj, co możesz zmienić

Powierzchnia (m²)
Tooltip
Powierzchnia pomieszczenia
to ta, z której faktycznie możesz korzystać – skosy i niskie części poddasza są liczone częściowo lub wcale.
  1. 100% dla wysokości powyżej 2,2 m,
  2. 50% dla wysokości 1,4–2,2 m,
  3. nie liczymy poniżej 1,4 m.

Powierzchnia podłogi
Liczymy po obrysie pomieszczenia, bez względu na jego wysokość/skosy. Jeśli nie ma skosów to powierzchnia podłogi i pomieszczenia jest taka sama.
pomieszczenia i podłogi
podłogi
1. Wiatrołap
3,46
2. Wc
1,56
3. Pokój dzienny + jadalnia
28
4. Kuchnia
6,10
5. Kotłownia
4,30
Razem
43,42
43,42
6. Taras
21,23
7. Podest
6,32

Natychmiast, otrzymasz PDF-y
z rzutami wszystkich kondygnacji

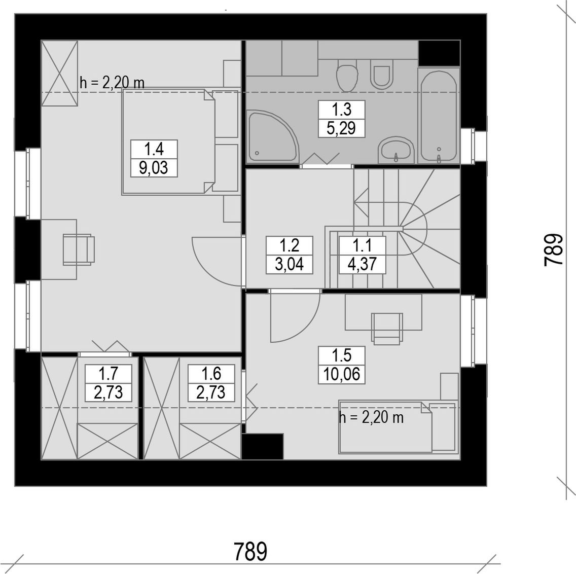
Poddasze - 46,70 m²

Poddasze projektu Sześcienny S1-3

Zapytaj, co możesz zmienić

Powierzchnia (m²)
Tooltip
Powierzchnia pomieszczenia
to ta, z której faktycznie możesz korzystać – skosy i niskie części poddasza są liczone częściowo lub wcale.
  1. 100% dla wysokości powyżej 2,2 m,
  2. 50% dla wysokości 1,4–2,2 m,
  3. nie liczymy poniżej 1,4 m.

Powierzchnia podłogi
Liczymy po obrysie pomieszczenia, bez względu na jego wysokość/skosy. Jeśli nie ma skosów to powierzchnia podłogi i pomieszczenia jest taka sama.
pomieszczenia i podłogi
podłogi
1. Schody
4,38
2. Korytarz
3,04
3. Łazienka
7
4. Pokój
17,26
5. Pokój
9,56
6. Garderoba
2,73
7. Garderoba
2,73
Razem
46,70
46,70

Natychmiast, otrzymasz PDF-y
z rzutami wszystkich kondygnacji

Zamów rysunki szczegółowe

Zapoznaj się ze szczegółowymi rysunkami rzutów kondygnacji w PDF dla tego projektu.

Warianty projektu (3)

PROMOCJA
Projekt domu Sześcienny S1-5
Sześcienny S1-5
Dodano!
Dodano!
79,84 m²
4
2
0

3 750 zł

3 950 zł

Tooltip

Cena regularna

3 750 zł najniższa cena
Tooltip

Najniższa cena z 30 dni
przed obniżką

PROMOCJA
Projekt domu Sześcienny S1-2
Sześcienny S1-2
Dodano!
Dodano!
42,09 m²
1
1
0

3 750 zł

3 950 zł

Tooltip

Cena regularna

3 750 zł najniższa cena
Tooltip

Najniższa cena z 30 dni
przed obniżką

PROMOCJA
Projekt domu Sześcienny S1-4
Sześcienny S1-4
Dodano!
Dodano!
80,43 m²
3
2
0

3 750 zł

3 950 zł

Tooltip

Cena regularna

3 750 zł najniższa cena
Tooltip

Najniższa cena z 30 dni
przed obniżką

Podobne projekty (250)

Zobacz wszystkie
NIŻSZA CENA 🔥
Zdjęcie 1 projektu BW-70 wariant 2 JGC1246
BW-70 wariant 2
Dodano!
Dodano!
82,60 m²
4
2
0

3 370 zł

3 470 zł

Tooltip

Cena regularna

3 370 zł najniższa cena
Tooltip

Najniższa cena z 30 dni
przed obniżką

NIŻSZA CENA 🔥
Zdjęcie 1 projektu Smyk Neo (1366) KRD2512
Smyk Neo (1366)
Dodano!
Dodano!
79,50 m²
3
2
0

3 640 zł

3 990 zł

Tooltip

Cena regularna

3 640 zł najniższa cena
Tooltip

Najniższa cena z 30 dni
przed obniżką

NIŻSZA CENA 🔥
Zdjęcie 1 projektu Malik (1515) KRD2663
Malik (1515)
Dodano!
Dodano!
80 m²
4
2
0

3 640 zł

3 990 zł

Tooltip

Cena regularna

3 640 zł najniższa cena
Tooltip

Najniższa cena z 30 dni
przed obniżką

NIŻSZA CENA 🔥
Zdjęcie 1 projektu Liza (1444) KRD2624
Liza (1444)
Dodano!
Dodano!
74,90 m²
3
2
0

3 640 zł

3 990 zł

Tooltip

Cena regularna

3 640 zł najniższa cena
Tooltip

Najniższa cena z 30 dni
przed obniżką

NIŻSZA CENA 🔥
Zdjęcie 1 projektu Mandarynka 2 BSA2270
Mandarynka 2
Dodano!
Dodano!
70,73 m²
2
1
0

4 349 zł

4 849 zł

Tooltip

Cena regularna

4 349 zł najniższa cena
Tooltip

Najniższa cena z 30 dni
przed obniżką

NIŻSZA CENA 🔥
Zdjęcie 1 projektu Jagoda BSA1880
Jagoda
Dodano!
Dodano!
87,05 m²
3
2
0

4 649 zł

5 149 zł

Tooltip

Cena regularna

4 649 zł najniższa cena
Tooltip

Najniższa cena z 30 dni
przed obniżką

NIŻSZA CENA 🔥
Zdjęcie 1 projektu Ania WAH1562
Ania
Dodano!
Dodano!
82,83 m²
4
2
0

4 816 zł

6 020 zł

Tooltip

Cena regularna

4 816 zł najniższa cena
Tooltip

Najniższa cena z 30 dni
przed obniżką

Zdjęcie 1 projektu Domena 207 C1 WRW1417
Domena 207 C1
Dodano!
Dodano!
86,20 m²
4
2
0

4 290 zł

Metody i koszt budowy

Ten dom możesz budować metodą gospodarczą, systemem zleconym lub skorzystać z naszej oferty Projekt z Budową. Przy porównaniu weź pod uwagę nie tylko koszt, ale też różny zakres prac i standard wykonania.

Metoda gospodarcza

Najtańsza metoda - większość prac
budowlanych wykonuje inwestor

Stan surowy zamknięty (SSZ)

194 000 zł netto

Szacunkowy koszt materiałów na I kwartał 2026
  • Prace ziemne i fundamenty

    25 000 zł
  • Konstrukcja, strop oraz dach

    141 000 zł
  • Stolarka okienna i drzwiowa

    28 000 zł
  • Instalacje

    nie obejmuje
  • Prace wykończeniowe

    nie obejmuje
  • Możesz budować etapami, pamiętając jednak o zmianie kosztów w czasie
  • Możesz rozpocząć budowę z częścią niezbędnych środków
  • Sam ustalasz harmonogram, koordynujesz budowę i zapewniasz materiały
Czy da się obniżyć koszty budowy?
Zobacz nasz film jak obniżyć koszt budowy

Projekt z Budową

Najszybsza i najwygodniejsza metoda -
całą budowę domu realizuje jedna firma

Stan deweloperski
Gwarancja stałego kosztu budowy

Gwarancja stałego
kosztu budowy

  • Prace ziemne i fundamenty
  • Konstrukcja, strop oraz dach
  • Stolarka okienna i drzwiowa
  • Instalacje  
    Tooltip

    Obejmuje wykonanie instalacji:

    • wodno-kanalizacyjnej
    • centralnego ogrzewania
    • gazowej
    • elektrycznej
  • Prace wykończeniowe  
    Tooltip

    Prace wykończeniowe obejmują:

    • sufity i ściany wewnętrzne
    • tynki i okładziny ścian wewnętrznych
    • wylewki i posadzkę
    • ocieplenie ścian zewnętrznych i elewację

Budowa
nawet w
6mies.

  • Kompleksowa umowa i znany z góry koszt budowy
  • Logistyka, organizacja budowy i zakupy po stronie firmy budowlanej
  • Formalności i dokumentacje po stronie firmy budowlanej
  • Różne technologie budowy dopasowane do projektu i budżetu
Szczegóły i dostępne technologie

Przekroje

Przekrój pionowy

Usytuowanie na działce

Czy ten projekt pasuje na
Twoją działkę?

Chętnie to sprawdzimy!

Czy ten projekt pasuje na
Twoją działkę?

Chętnie to sprawdzimy!

Dowiedz się:

  • czy zmieści się na niej wybrany przez Ciebie dom
  • jakie parametry musi spełniać dom według miejscowego planu zagospodarowania lub warunków zabudowy (np. kąt nachylenia i typ dachu, liczba kondygnacji itp.
  • jakie inne projekty pasują na Twoją działkę – znajdziemy je dla Ciebie!
Autor: Biryło Architekci

Dane techniczne projektu

Powierzchnie i wymiary Powierzchnie i wymiary

Powierzchnia użytkowa
Tooltip
Suma powierzchni wszystkich pomieszczeń mieszkalnych, pomniejszona o pow. garażu, kotłowni, strychu, piwnicy. Jest liczona w 100% dla pomieszczeń o wysokości powyżej 2,2 m, w 50% dla pomieszczeń o wys. 2,2-1,4 m i niewliczana dla niższych niż 1,4 m.

80,27 m²

Powierzchnia zabudowy
Tooltip
Powierzchnia zajmowana przez część na- oraz nadziemną budynku liczona, jako rzut pionowy budynku na działkę.

62,25 m²

Kąt nachylenia dachu
Tooltip
Nachylenie połaci dachu głównego podawane w stopniach. Uwaga! W niektórych projektach występuje więcej niż jedno nachylenie dachu.

40°

Wysokość budynku
Tooltip
Wysokość liczona od części budynku położonej najniżej przy powierzchni terenu do najwyższego punktu dachu (kalenicy) z wyłączeniem kominów.

8,32 m

Szerokość elewacji

7,89 m

Długość elewacji

7,89 m

Min. szerokość działki
Tooltip
Najmniejsza możliwa szerokość działki niezbędna do wybudowania wybranego domu. Składa się z szerokości elewacji domu powiększonej z obu stron o 3 m dla ściany bez otworów drzwiowych/okiennych lub 4 m, dla ściany z otworami.

15,89 m

Min. długość działki
Tooltip
Najmniejsza możliwa długość działki niezbędna do wybudowania wybranego domu. Składa się z długości elewacji domu powiększonej z obu stron o 3 m dla ściany bez otworów drzwiowych/okiennych lub 4 m, dla ściany z otworami.

15,89 m

Energooszczędność Energooszczędność

Oze Czym jest OZE (Odnawialne Źródło Energii)?
Ogrzewanie główne

Paliwo stałe (OZE) - szczegóły

Interesuje Cię inne źródło ogrzewania? Wyślij zapytanie lub zadzwoń do doradcy

Wentylacja

Grawitacyjna - szczegóły

Warunki techniczne

Projekt zgody z WT 2021

Technologia i konstrukcja Technologia i konstrukcja

Konstrukcja

Murowana

PROJEKT Z BUDOWĄ Istnieje możliwość zaadaptowania tego projektu do technologii prefabrykowanej/modułowej i budowy nawet w 6 miesięcy ze stałym kosztem budowy

Dowiedz się więcej »
Opis szczegółowy

Ławy fundamentowe: żelbetowe . Ściany fundamentowe: Bloczek betonowy 24 cm + 3x roztwór asfaltowy obustronnie + styropian 20 cm. Ściany zewnętrzne: murowane, dwuwarstwowe: bloczek silikatowy 24 cm + styropian 20 cm, tynk wewnętrzny: cementowo- wapienny, tynk zewnętrzny: mineralny, miejscowo: okładzina klinkierowa, okładzina drewniana. Ściany wewnętrzne: Murowane: bloczek silikatowy gr 8 cm + tynk cementowo- wapienny obustronnie. Podłoga na gruncie: Podsypka piaskowa 20 cm + beton 10 cm + 2x folia + styropian 20 cm + szlichta betonowa 5 cm + wykończenie podłogi. Strop: tynk cementowo- wapienny , płyta żelbetowa 18 cm + styropian 5cm + wykończenie podłogi. Konstrukcja dachu: Drewniana (krokwiowo-płatwiowa) Dachówka ceramiczna lub blachodachówka + łaty i kontrłaty, - folia hydroizolacyjna, krokwie, wełna mineralna 32cm, folia polietylenowa, płyty GK. Elewacja: tynk zewnętrzny: mineralny, miejscowo: okładzina klinkierowa, okładzina drewniana. Okna i drzwi balkonowe: PCV lub drewniane. Sposób ogrzewania: Kocioł na paliwo stałe. Możliwy kocioł na gaz (po dostosowaniu na etapie indywidualnej adaptacji). Wentylacja: Grawitacyjna.

Strop

Żelbetowy

Reklama
Okna i drzwi tarasowe

Nowoczesne okna PVC i aluminiowe WIŚNIOWSKI – doskonała izolacja, elegancki design i niezrównana trwałość.

Wiśniowski
Sprawdź parametry!
Okna dachowe

Oferujemy bezpłatne konsultacje w zakresie wszystkich rozwiązań VELUX. Wyceny, porady dotyczące doboru okien i rolet zewnętrznych - sprawdź!

Velux
Sprawdź szczegóły
Pompa ciepła

Wybierz pompę ciepła, która pasuje do Twojego domu. Niezależnie od tego, czy ustawienie wewnątrz czy na zewnątrz, pompy ciepła STIEBEL ELTRON dopasują się do każdej przestrzeni.

Stiebel
Dobierz pompę ciepła
Drzwi

Ciepłe drzwi WIŚNIOWSKI z kontrolą dostępu. Szeroka gama wzorów i kolorów.

Wiśniowski
Wybierz najlepsze
Bramy garażowe

Automatyczne bramy garażowe segmentowe i uchylne WIŚNIOWSKI na wymiar i z systemem smart home w standardzie.

Wiśniowski
Sprawdź ofertę!
Rekuperacja

Alnor - kompletny system rekuperacji. Dobierz idealne rozwiązanie dla Twojego domu!

Alnor
Dobierz rekuperator
Dach

Producent stalowych pokryć dachowych i systemów elewacyjnych. Precyzja wykonania, trwałość na lata i szybki montaż doceniany przez dekarzy. Postaw na solidny dach Budmat.

Budmat
Sprawdź ofertę
Ogrodzenie

Nowoczesne stalowe ogrodzenia Budmat - estetyka, bezpieczeństwo i trwałość na lata. Systemowe rozwiązania na wymiar, dopasowane do każdego domu.

Budmat
Sprawdź ofertę

Gotowe domy - najszybszy sposób na dom (115)

Zobacz wszystkie
  • Stan deweloperski nawet w 6 miesięcy
  • Gwarancja stałej ceny
Skonfiguruj dom
Zdjęcie 1 projektu Bergen 70 HUS1004
72,05 m²
3
Stan deweloperski brutto
389 000 zł 5 399 zł/m²
Zdjęcie 1 projektu ExtraKeramzytowy 1 HAK1001
80,39 m²
3
Stan deweloperski brutto
434 900 zł 5 410 zł/m²
Zdjęcie 1 projektu Dom prefabrykowany Parterowy 80B HFX1042
79,62 m²
2
Stan deweloperski brutto
399 000 zł 5 011 zł/m²
Zdjęcie 1 projektu Dom prefabrykowany Parterowy 80A HFX1041
79,62 m²
3
Stan deweloperski brutto
399 000 zł 5 011 zł/m²
Zdjęcie 1 projektu Dom szkieletowy Mezzanine Smart 70 HHT1011
81,09 m²
2
Stan deweloperski brutto
449 600 zł 5 544 zł/m²
Zdjęcie 1 projektu Dom modułowy Energy HMD1003
83,28 m²
3
Stan deweloperski brutto
473 000 zł 5 680 zł/m²
Zdjęcie 1 projektu Dom prefabrykowany DEX76 HDX1000
76 m²
2
Stan deweloperski brutto
570 587 zł 7 508 zł/m²
Zdjęcie 1 projektu Dom prefabrykowany P.10 HPK1009
84,54 m²
3
Stan deweloperski brutto
509 400 zł 6 026 zł/m²

Opis projektu domu
Sześcienny S1-3

DomProjekt domu Sześcienny S1-3

Sześcienny S1-3 to kompaktowy dom parterowy z poddaszem użytkowym, idealny dla pary lub rodziny 2+1, która szuka ekonomicznego w budowie i utrzymaniu lokum. Jego prosta bryła i dwuspadowy dach łączą tradycyjny urok z funkcjonalnością, oferując przemyślany układ pomieszczeń na niewielkiej powierzchni.

WyróżnieniaCo wyróżnia ten dom?

  • Otwarta strefa dzienna – salon połączony z jadalnią i kuchnią tworzy zintegrowaną, jasną przestrzeń, która sprzyja wspólnemu spędzaniu czasu.
  • Kominek w salonie – centralny punkt części dziennej, który tworzy niepowtarzalny klimat i dodaje wnętrzu przytulności w chłodniejsze dni.
  • Wyraźny podział na strefy – parter pełni funkcję dzienną, a całe poddasze to prywatna strefa nocna, co zapewnia domownikom komfort i intymność.
  • Prywatna sypialnia z garderobą – na poddaszu zaprojektowano komfortowy pokój sypialniany z osobną, dedykowaną garderobą, co ułatwia organizację i przechowywanie.

ArchitekturaArchitektura i wygląd

Projekt Sześcienny S1-3 charakteryzuje się prostą, zwartą bryłą przykrytą klasycznym dwuspadowym dachem. Taka konstrukcja jest nie tylko ponadczasowa i estetyczna, ale również stanowi sprawdzone i ekonomiczne rozwiązanie na etapie budowy. Tradycyjny styl domu sprawia, że doskonale wpisze się on w każde otoczenie, zarówno miejskie, jak i podmiejskie. Z salonu przewidziano bezpośrednie wyjście na taras, który w naturalny sposób powiększa strefę wypoczynkową i zachęca do relaksu na świeżym powietrzu.

WnętrzeWnętrze i układ funkcjonalny

Na powierzchni użytkowej 80,27 m² zaprojektowano funkcjonalny układ, który obejmuje salon z aneksem kuchennym, jedną sypialnię, dużą łazienkę oraz dodatkowe WC.

Parter – strefa dzienna

Parter to serce domu, gdzie koncentruje się życie codzienne. Po wejściu przez wiatrołap znajdujemy się w otwartej przestrzeni, na którą składają się salon z miejscem na kominek, jadalnia oraz funkcjonalna kuchnia. To rozwiązanie optycznie powiększa wnętrze i integruje domowników. Z pokoju dziennego można wyjść bezpośrednio na taras. Na tej kondygnacji dla wygody mieszkańców i gości zlokalizowano również małe WC oraz kotłownię, która pełni funkcję pomieszczenia gospodarczego.

Poddasze – strefa nocna

Poddasze to w całości prywatna strefa domowników, gwarantująca spokój i odpoczynek. Znajduje się tu komfortowa sypialnia, do której przylega osobna garderoba, co pozwala na wygodne przechowywanie ubrań i zachowanie porządku. Programu dopełnia duża, w pełni funkcjonalna łazienka.

Czytaj więcej

Polecani producenci

Kompletne systemy rekuperacji

tło producenta

Alnor

Dowiedz się więcej

Dachy modułowe ze stali

tło producenta

Budmat

Poznaj szczegóły oferty

Prefabrykowane konstrukcje dachowe

tło producenta

WIĄZAR POLSKA

Zobacz więcej
Zobacz więcej

Społeczność projektu domu
Sześcienny S1-3 w budowie

Dołącz do społeczności osób, które budują ten dom lub są zainteresowane jego budową.

  • Oglądaj zdjęcia z budowy
  • Zadawaj pytania
  • Wymieniaj się doświadczeniami

Opinie o projekcie domu
Sześcienny S1-3

Opinie niezweryfikowane

Bądź pierwszy!
Ten projekt nie ma jeszcze opinii, bądź pierwszy!

ikona Dodaj opinię o projekcie

ASYSTENT WYBORU PROJEKTU

Szukasz idealnego projektu? Znajdziemy go dla Ciebie!

Doradca na podstawie Twoich wskazówek przygotuje spersonalizowaną listę projektów

Graficzne opracowanie rzutów poglądowych widocznych na karcie projektu zostało wykonane przez Extradom.pl. Prezentowane przez Extradom.pl wizualizacje wykonane zostały przez autora projektu i należy poczytywać je jedynie za przykład i propozycję wykończenia, wizję architektoniczną autora projektu. Ostateczne wykończenie budynku może nastąpić na wiele sposobów. Szczegółowe rozwiązania zastosowane w oferowanej dokumentacji - w tym również ilość, lokalizacje i wygląd okien, drzwi, kominów - mogą w niewielkim stopniu różnić się od prezentowanej wizualizacji budynku.

Extradom.pl Spółka z ograniczoną odpowiedzialnością z siedzibą przy ul. Jaworskiej 13, 53-612 Wrocław, wpisana do rejestru przedsiębiorców Krajowego Rejestru Sądowego przez Sąd Rejonowy dla Wrocławia-Fabrycznej we Wrocławiu, VI Wydział Gospodarczy Krajowego Rejestru Sądowego do pod numerem KRS 0000648746, numer NIP 895-17-18-333, o kapitale zakładowym 708 150,00 zł uprzejmie informuje, iż poprzez serwis Extradom.pl umożliwia m.in. zapoznanie się przez konsumentów z ofertą handlową Partnerów Extradom.pl, którzy stosują metody budowy domów przy wykorzystaniu różnego rodzaju technologie prefabrykacji bądź modułowe (tzw. „Gotowe domy”).

Extradom.pl nie prowadzi jednakże sprzedaży ani nie oferuje usług polegających na doradztwie finansowym, prawnym ani podatkowym w zakresie inwestycji realizowanych w technologiach tzw. „Gotowych domów”. Informacje prezentowane w serwisie Extradom.pl dotyczące Partnerów Extradom.pl oferujących realizację inwestycji w technologiach „Gotowych domów” lub podobnych mają charakter informacyjny i reklamowy.

Prezentowane w serwisie Extradom.pl informacje dotyczące stosowanych przez Partnerów metod budowy domów w technologii prefabrykacji bądź modułowej pochodzą od Partnerów Extradom.pl.

Extradom.pl sp. z o.o. jedynie umożliwia nawiązanie kontaktu przez Użytkownika z Partnerem Extradom.pl stosującym tego rodzaju technologie budowy domów i nie jest stroną umowy o roboty budowlane zawieranej przez Użytkownika Extradom.pl z Partnerem Extradom.pl.

REKLAMA
Zamknij