👉 Projekty w extracenach! ✂️

Koniec oferty za:

00godz.

00min.

00sek.

Sprawdź

Projekt domu Szafran WOF1033

Dodano!
Dodano!

Warstwy

Rzut parteru

Powierzchnia (m²)
Tooltip
Powierzchnia pomieszczenia
to ta, z której faktycznie możesz korzystać – skosy i niskie części poddasza są liczone częściowo lub wcale.
  1. 100% dla wysokości powyżej 2,2 m,
  2. 50% dla wysokości 1,4–2,2 m,
  3. nie liczymy poniżej 1,4 m.

Powierzchnia podłogi
Liczymy po obrysie pomieszczenia, bez względu na jego wysokość/skosy. Jeśli nie ma skosów to powierzchnia podłogi i pomieszczenia jest taka sama.
pomieszczenia i podłogi
podłogi
1. Wiatrołap
3,68
2. Korytarz
7,77
3. Pokój dzienny
26,76
4. Kuchnia
9,93
5. Spiżarnia
2,08
6. Wc
1,89
7. Łazienka
5,32
8. Korytarz
4,29
9. Pokój
14,16
10. Pokój
15,50
11. Garderoba
2,23
12. Pomieszczenie gospodarcze
12,11
13. Pokój
14,25
Razem
119,97
119,97

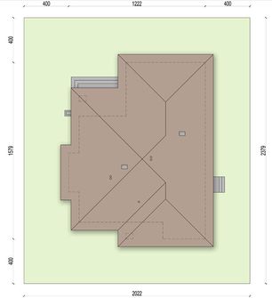
    Usytuowanie na działce

    Czy ten projekt pasuje na
    Twoją działkę?

    Chętnie to sprawdzimy!

    Dowiedz się:

    • czy zmieści się na niej wybrany przez Ciebie dom
    • jakie parametry musi spełniać dom według miejscowego planu zagospodarowania lub warunków zabudowy (np. kąt nachylenia i typ dachu, liczba kondygnacji itp.
    • jakie inne projekty pasują na Twoją działkę – znajdziemy je dla Ciebie!

Pow. użytkowa

120 m²

Pokoje

3

Łazienki i WC

2

Garaż

0

Min. szer. i dł. działki

20,22 x 23,79 m

Kąt dachu

30°

Szacunkowy koszt SSZ

324 000 zł
Szacunkowy koszt budowy do stanu surowego zamkniętego (SSZ) metodą gospodarczą - większość prac wykonuje inwestor.

Konstrukcja

Murowana
więcej

Szafran - WOF1033

ikona 120 m²
Powierzchnia użytkowa
ikona3
Pokoje (bez salonu)
ikona 2
Łazienki (z toaletami)
ikona 0
Liczba stanowisk garażowych
(z wiatą garażową)
ikona
Konstrukcja: Murowana

Promocja od 03.02.2026, koniec za:

0 dni

00 00 00

3 899 zł

Tooltip

Cena regularna obowiązywała od 27.01.2026 do 02.02.2026

Cena regularna: 4 099 zł
Najniższa cena z 30 dni przed obniżką: 3 799 zł
Gwarancja najniższej ceny Gwarancja najniższej ceny Tooltip

Wydłużony czas realizacji Tooltip

GRATIS 10% rabatu do LEROY MERLIN

GRATIS 16% rabatu w SELSEY

GRATIS Przydatne Extradodatki

GRATIS Poradnik Dach Solarny

100 dni na wymianę, 30 dni na zwrot

Darmowa dostawa - kurier, paczkomaty

Bezpłatne pozwolenie na zmiany

Dokumentacja zgodna z WT2021

Pokaż więcej (6)
Konsultant Masz pytania?
Zadzwoń
71 715 20 60

pon.-pt. 8-21, sob. 9-17

Szukasz wykonawcy godnego zaufania?
Zleć budowę w Extradom.pl!

  • Z góry znasz koszt budowy domu
  • Dom odbierasz zgodnie z ustalonym harmonogramem - nawet w 6 miesięcy
  • Zabezpiecza Cię jedna kompleksowa umowa z jednym wykonawcą
  • Otrzymujesz nawet 30-letnią gwarancję na konstrukcję domu
  • Oszczędzasz swój czas dzięki pewnej i kompletnej usłudze
Cena brutto stanu
deweloperskiego od
Tooltip
Cena brutto stanu deweloperskiego od 4 529 do 5 829 zł/m2.
Cena jest uzależniona m.in. od lokalizacji, wybranej technologii, kubatury budynku, skomplikowania projektu i ewentualnych zmian, na które zdecyduje się inwestor.
Cena za m2 powierzchni netto, czyli wszystkich pomieszczeń mierzonych na wysokości podłogi.
4 529 zł/m2
Dowiedz się więcej
Konsultant Masz pytania?
Zadzwoń
71 715 20 70

pon.-pt. 8-19

Parter - 119,97 m²

Parter projektu Szafran

Zapytaj, co możesz zmienić

Powierzchnia (m²)
Tooltip
Powierzchnia pomieszczenia
to ta, z której faktycznie możesz korzystać – skosy i niskie części poddasza są liczone częściowo lub wcale.
  1. 100% dla wysokości powyżej 2,2 m,
  2. 50% dla wysokości 1,4–2,2 m,
  3. nie liczymy poniżej 1,4 m.

Powierzchnia podłogi
Liczymy po obrysie pomieszczenia, bez względu na jego wysokość/skosy. Jeśli nie ma skosów to powierzchnia podłogi i pomieszczenia jest taka sama.
pomieszczenia i podłogi
podłogi
1. Wiatrołap
3,68
2. Korytarz
7,77
3. Pokój dzienny
26,76
4. Kuchnia
9,93
5. Spiżarnia
2,08
6. Wc
1,89
7. Łazienka
5,32
8. Korytarz
4,29
9. Pokój
14,16
10. Pokój
15,50
11. Garderoba
2,23
12. Pomieszczenie gospodarcze
12,11
13. Pokój
14,25
Razem
119,97
119,97

Natychmiast, otrzymasz PDF-y
z rzutami wszystkich kondygnacji

Zamów rysunki szczegółowe

Zapoznaj się ze szczegółowymi rysunkami rzutów kondygnacji w PDF dla tego projektu.

Warianty projektu (3)

PROMOCJA
Projekt domu Szafran G2
Szafran G2
Dodano!
Dodano!
120 m²
3
2
2

3 899 zł

4 099 zł

Tooltip

Cena regularna

3 799 zł najniższa cena
Tooltip

Najniższa cena z 30 dni
przed obniżką

PROMOCJA
Projekt domu Szafran 2
Szafran 2
Dodano!
Dodano!
120 m²
3
2
0

3 899 zł

4 099 zł

Tooltip

Cena regularna

3 799 zł najniższa cena
Tooltip

Najniższa cena z 30 dni
przed obniżką

PROMOCJA
Projekt domu Szafran G1
Szafran G1
Dodano!
Dodano!
120 m²
3
2
1

3 899 zł

4 099 zł

Tooltip

Cena regularna

3 799 zł najniższa cena
Tooltip

Najniższa cena z 30 dni
przed obniżką

Podobne projekty (133)

Zobacz wszystkie
EXTRACENA
Zdjęcie 1 projektu Elka 5 BSA2231
Elka 5
Dodano!
Dodano!
98,15 m²
3
2
0

4 849 zł

5 249 zł

Tooltip

Cena regularna

4 549 zł najniższa cena
Tooltip

Najniższa cena z 30 dni
przed obniżką

EXTRACENA
Zdjęcie 1 projektu Wspaniały 2 WAH2021
Wspaniały 2
Dodano!
Dodano!
102,90 m²
3
2
0

5 112 zł

6 390 zł

Tooltip

Cena regularna

4 472 zł najniższa cena
Tooltip

Najniższa cena z 30 dni
przed obniżką

EXTRACENA
Zdjęcie 1 projektu Kwadra Prima (1857) KRD3001
Kwadra Prima (1857)
Dodano!
Dodano!
119,90 m²
4
2
0

3 840 zł

4 190 zł

Tooltip

Cena regularna

3 840 zł najniższa cena
Tooltip

Najniższa cena z 30 dni
przed obniżką

EXTRACENA
Zdjęcie 1 projektu Aloes 4 WOF1195
Aloes 4
Dodano!
Dodano!
125,67 m²
4
2
0

4 199 zł

4 399 zł

Tooltip

Cena regularna

4 099 zł najniższa cena
Tooltip

Najniższa cena z 30 dni
przed obniżką

EXTRACENA
Zdjęcie 1 projektu APS 277 LUA1362
APS 277
Dodano!
Dodano!
108,90 m²
3
2
0

4 199 zł

4 699 zł

Tooltip

Cena regularna

3 999 zł najniższa cena
Tooltip

Najniższa cena z 30 dni
przed obniżką

EXTRACENA
Zdjęcie 1 projektu Aloes G1 WOF1221
Aloes G1
Dodano!
Dodano!
100,86 m²
3
2
1

3 899 zł

4 099 zł

Tooltip

Cena regularna

3 799 zł najniższa cena
Tooltip

Najniższa cena z 30 dni
przed obniżką

EXTRACENA
Zdjęcie 1 projektu Dom na południowej WAH2036
Dom na południowej
Dodano!
Dodano!
116,94 m²
3
2
0

4 552 zł

5 690 zł

Tooltip

Cena regularna

4 312 zł najniższa cena
Tooltip

Najniższa cena z 30 dni
przed obniżką

EXTRACENA
Zdjęcie 1 projektu Tryton 3 B WOE1125
Tryton 3 B
Dodano!
Dodano!
117,90 m²
3
2
0

4 099 zł

4 199 zł

Tooltip

Cena regularna

4 099 zł najniższa cena
Tooltip

Najniższa cena z 30 dni
przed obniżką

Metody i koszt budowy

Ten dom możesz budować metodą gospodarczą, systemem zleconym lub skorzystać z naszej oferty Projekt z Budową. Przy porównaniu weź pod uwagę nie tylko koszt, ale też różny zakres prac i standard wykonania.

Metoda gospodarcza

Najtańsza metoda - większość prac
budowlanych wykonuje inwestor

Stan surowy zamknięty (SSZ)

324 000 zł netto

Szacunkowy koszt materiałów na IV kwartał 2025
  • Prace ziemne i fundamenty

    65 000 zł
  • Konstrukcja, strop oraz dach

    212 000 zł
  • Stolarka okienna i drzwiowa

    47 000 zł
  • Instalacje

    nie obejmuje
  • Prace wykończeniowe

    nie obejmuje
  • Możesz budować etapami, pamiętając jednak o zmianie kosztów w czasie
  • Możesz rozpocząć budowę z częścią niezbędnych środków
  • Sam ustalasz harmonogram, koordynujesz budowę i zapewniasz materiały
Czy da się obniżyć koszty budowy?
Zobacz nasz film jak obniżyć koszt budowy

Projekt z Budową

Najszybsza i najwygodniejsza metoda -
całą budowę domu realizuje jedna firma

Stan deweloperski
Gwarancja stałego kosztu budowy

Gwarancja stałego
kosztu budowy

  • Prace ziemne i fundamenty
  • Konstrukcja, strop oraz dach
  • Stolarka okienna i drzwiowa
  • Instalacje  
    Tooltip

    Obejmuje wykonanie instalacji:

    • wodno-kanalizacyjnej
    • centralnego ogrzewania
    • gazowej
    • elektrycznej
  • Prace wykończeniowe  
    Tooltip

    Prace wykończeniowe obejmują:

    • sufity i ściany wewnętrzne
    • tynki i okładziny ścian wewnętrznych
    • wylewki i posadzkę
    • ocieplenie ścian zewnętrznych i elewację

Budowa
nawet w
6mies.

  • Kompleksowa umowa i znany z góry koszt budowy
  • Logistyka, organizacja budowy i zakupy po stronie firmy budowlanej
  • Formalności i dokumentacje po stronie firmy budowlanej
  • Różne technologie budowy dopasowane do projektu i budżetu
Szczegóły i dostępne technologie
icon

Polecamy

Kosztorys

Zawiera zestawienie wszystkich potrzebnych materiałów wraz z ich cenami, uwzględnia koszty sprzętu i transportu. Z kosztorysem:

  • poznasz całkowite koszty budowy
  • zaplanujesz prace na budowie
  • łatwiej ocenisz konkurencyjność ofert podwykonawców
  • otrzymasz dokument wymagany w procesie kredytowym

Elewacje

Frontowa
Tylna
Lewa
Prawa

Usytuowanie na działce

Czy ten projekt pasuje na
Twoją działkę?

Chętnie to sprawdzimy!

Czy ten projekt pasuje na
Twoją działkę?

Chętnie to sprawdzimy!

Dowiedz się:

  • czy zmieści się na niej wybrany przez Ciebie dom
  • jakie parametry musi spełniać dom według miejscowego planu zagospodarowania lub warunków zabudowy (np. kąt nachylenia i typ dachu, liczba kondygnacji itp.
  • jakie inne projekty pasują na Twoją działkę – znajdziemy je dla Ciebie!
Autor: Archand

Dane techniczne projektu

Powierzchnie i wymiary Powierzchnie i wymiary

Powierzchnia użytkowa
Tooltip
Suma powierzchni wszystkich pomieszczeń mieszkalnych, pomniejszona o pow. garażu, kotłowni, strychu, piwnicy. Jest liczona w 100% dla pomieszczeń o wysokości powyżej 2,2 m, w 50% dla pomieszczeń o wys. 2,2-1,4 m i niewliczana dla niższych niż 1,4 m.

120 m²

Powierzchnia zabudowy
Tooltip
Powierzchnia zajmowana przez część na- oraz nadziemną budynku liczona, jako rzut pionowy budynku na działkę.

162,67 m²

Kubatura netto
Tooltip
Zazwyczaj jest to suma kubatur (objętości) pomieszczeń budynku, bez strychu, liczonych po zewnętrznym obrysie murów (z ociepleniem).

324 m³

Powierzchnia dachu

240 m²

Kąt nachylenia dachu
Tooltip
Nachylenie połaci dachu głównego podawane w stopniach. Uwaga! W niektórych projektach występuje więcej niż jedno nachylenie dachu.

30°

Wysokość budynku
Tooltip
Wysokość liczona od części budynku położonej najniżej przy powierzchni terenu do najwyższego punktu dachu (kalenicy) z wyłączeniem kominów.

7,02 m

Szerokość elewacji

12,22 m

Długość elewacji

15,79 m

Min. szerokość działki
Tooltip
Najmniejsza możliwa szerokość działki niezbędna do wybudowania wybranego domu. Składa się z szerokości elewacji domu powiększonej z obu stron o 3 m dla ściany bez otworów drzwiowych/okiennych lub 4 m, dla ściany z otworami.

20,22 m

Min. długość działki
Tooltip
Najmniejsza możliwa długość działki niezbędna do wybudowania wybranego domu. Składa się z długości elewacji domu powiększonej z obu stron o 3 m dla ściany bez otworów drzwiowych/okiennych lub 4 m, dla ściany z otworami.

23,79 m

Energooszczędność Energooszczędność

Oze Czym jest OZE (Odnawialne Źródło Energii)?
Ep
Tooltip
Energia pierwotna określa ilość energii nieodnawialnej potrzebnej w ciągu roku do ogrzewania czy też ogrzania wody użytkowej z uwzględnieniem kosztów produkcji i transportu surowców energetycznych.

47,25 kWh/(m²rok)

Ek
Tooltip
Energia końcowa określa zapotrzebowanie budynku na energię niezbędną do uzyskania założonych parametrów, jak np. temperatura wewnątrz budynku.

107,25 kWh/(m²rok)

Euco
Tooltip
Energia użytkowa potrzebna do ogrzewania i wentylacji. Im parametr jest niższy tym budynek bardziej energooszczędny.

50,29 kWh/(m²rok)

Ogrzewanie główne

Gazowe lub paliwo stałe (OZE) - do wyboru na etapie adaptacji

Dodatkowo istnieje możliwość zamówienia projektu z

Pompa ciepła + ogrzewanie podłogowe

Interesuje Cię inne źródło ogrzewania? Wyślij zapytanie lub zadzwoń do doradcy

Warunki techniczne

Projekt zgody z WT 2021

Technologia i konstrukcja Technologia i konstrukcja

Konstrukcja

Murowana

PROJEKT Z BUDOWĄ Istnieje możliwość zaadaptowania tego projektu do technologii prefabrykowanej/modułowej i budowy nawet w 6 miesięcy ze stałym kosztem budowy

Dowiedz się więcej »
Opis szczegółowy

Fundamenty żelbetowe. Ściany nośne i działowe z pustaków ceramicznych. Strop gęstożebrowy Konstrukcja dachu drewniana. Pokrycie dachu dachówką cementową lub ceramiczna.

Strop

Gęstożebrowy

Reklama
Okna i drzwi tarasowe

Nowoczesne okna PVC i aluminiowe WIŚNIOWSKI – doskonała izolacja, elegancki design i niezrównana trwałość.

Wiśniowski
Sprawdź parametry!
Okna dachowe

Oferujemy bezpłatne konsultacje w zakresie wszystkich rozwiązań VELUX. Wyceny, porady dotyczące doboru okien i rolet zewnętrznych - sprawdź!

Velux
Sprawdź szczegóły
Płytki ceramiczne i gresy

Od małych formatów po wielkoformatowe gresy. Marmur, beton, drewno, kamień, lastryko czy cegiełki zamówisz wygodnie online z szybką dostawą.

Ceramzet
Sprawdź ofertę
Drzwi

Ciepłe drzwi WIŚNIOWSKI z kontrolą dostępu. Szeroka gama wzorów i kolorów.

Wiśniowski
Wybierz najlepsze
Bramy garażowe

Automatyczne bramy garażowe segmentowe i uchylne WIŚNIOWSKI na wymiar i z systemem smart home w standardzie.

Wiśniowski
Sprawdź ofertę!
Armatura i ceramika łazienkowa

Topowi producenci. Baterie łazienkowe, zestawy natynkowe i podtynkowe, umywalki, wanny, miski WC oraz kabiny zamówisz kompleksowo online.

Ceramzet II
Dowiedz się więcej
Rekuperacja

Alnor - kompletny system rekuperacji. Dobierz idealne rozwiązanie dla Twojego domu!

Alnor
Dobierz rekuperator
Dach

Producent stalowych pokryć dachowych i systemów elewacyjnych. Precyzja wykonania, trwałość na lata i szybki montaż doceniany przez dekarzy. Postaw na solidny dach Budmat.

Budmat
Sprawdź ofertę
Ogrodzenie

Nowoczesne stalowe ogrodzenia Budmat - estetyka, bezpieczeństwo i trwałość na lata. Systemowe rozwiązania na wymiar, dopasowane do każdego domu.

Budmat
Sprawdź ofertę

Gotowe domy modułowe (118)

Zobacz wszystkie
Stan deweloperski nawet w 6 miesięcy Gwarancja stałej ceny
Zdjęcie 1 projektu Dom szkieletowy Emily Smart 120 HHT1026
Pow. użytkowa
120 m²
Pokoje
3
592 512 zł 4 938 zł/m²
Zdjęcie 1 projektu Dom prefabrykowany Parterowy 120C HFX1017
Pow. użytkowa
120,06 m²
Pokoje
4
489 000 zł 4 073 zł/m²
Zdjęcie 1 projektu Dom szkieletowy Scandinavian Smart 120 HHT1020
Pow. użytkowa
119,43 m²
Pokoje
3
571 271 zł 4 761 zł/m²
Zdjęcie 1 projektu Dom prefabrykowany P.14 HPK1026
Pow. użytkowa
118,94 m²
Pokoje
3
694 700 zł 5 829 zł/m²
Zdjęcie 1 projektu Dom modułowy Soul HMD1001
Gotowy dom modułowy Soul
Dodano!
Dodano!
Pow. użytkowa
118,94 m²
Pokoje
4
518 000 zł 3 654 zł/m²
Zdjęcie 1 projektu Dom prefabrykowany Parterowy 120A HFX1015
Pow. użytkowa
121,44 m²
Pokoje
4
489 000 zł 4 027 zł/m²
Zdjęcie 1 projektu Dom prefabrykowany P.3 z okapem HPK1013
Pow. użytkowa
121,46 m²
Pokoje
5
600 100 zł 4 941 zł/m²
Zdjęcie 1 projektu Dom prefabrykowany P.3 bez okapu HPK1002
Pow. użytkowa
121,46 m²
Pokoje
5
594 000 zł 4 890 zł/m²

Dodatki do projektu

Dodatki możesz zamówić w koszyku lub telefonicznie u naszego Doradcy.

Czym jest OZE (Odnawialne Źródło Energii)?

Ikona

Bestseller

Kosztorys

790 zł

590 zł

Cena przy zakupie z projektem

Ikona

Bestseller

Dodatkowy egzemplarz projektu

690 zł

490 zł

Cena przy zakupie z projektem

Ikona

Bestseller

Ogrzewanie podłogowe

1 190 zł

990 zł

Cena przy zakupie z projektem

Ikona

Oze

Pompa ciepła + ogrzewanie podłogowe

1 190 zł

990 zł

Cena przy zakupie z projektem

Opis projektu domu
Szafran

Projekt domu Szafran to idealna propozycja dla osób posiadających średniej szerokości działkę. Dom posiada bryłę w kształcie litery L, co pozwala na łatwy podział na strefy. Przeszklenia przewidziane w wykuszu nadadzą wnętrzu większej przestronności. Projekt został stworzony z myślą o działkach pozwalających na usytuowanie domu w zabudowie wolnostojącej. Projekt jest idealną propozycją dla osób zainteresowanych domem z dachem namiotowym, który charakteryzuje się dużą odpornością na działanie niesprzyjających warunków pogodowych. Projekt Szafran to dom parterowy, co sprawia, że komunikacja między pomieszczeniami jest bardzo komfortowa. Zaletą projektu jest podział na strefę dzienną i nocną - przeznaczoną tylko dla mieszkańców. Sercem domu jest przestronna strefa dzienna, która sprzyja spędzaniu wspólnego czasu w gronie najbliższych. Przewidziana w projekcie otwarta kuchnia to świetne rozwiązanie dla osób z małymi dziećmi - ich zabawę w salonie rodzice mogą nadzorować nawet podczas przygotowywania posiłków. W kuchni znajduje się także stół, dzięki któremu poranne spotkania z rodziną staną się ważną częścią dnia dla każdego domownika. Dodatkowo przydatnym pomieszczeniem jest pojemna spiżarka. Usytuowany w salonie kominek sprawi, iż wnętrze stanie się bardziej przytulne. W projekcie uwzględniono komfortową łazienkę oraz osobną toaletę, co jest szczególnie przydatne podczas odwiedzin gości. Część nocna składa się z trzech sypialni, dlatego też dom jest odpowiedni dla 2-4 osobowej rodziny. Przestrzeń można wykorzystać także jako pokój dla gości lub gabinet. Bardzo praktycznym pomieszczeniem jest uwzględniona w domu garderoba. W domu nie zabrakło również miejsca na praktyczne zaplecze gospodarcze. Taras przy domu sprzyja spędzaniu czasu na świeżym powietrzu. Projekt został wykonany w technologii murowanej, dzięki czemu podczas upałów dom utrzymuje przyjemny chłód. W jego bryle widoczne są rozwiązania nawiązujące do stylu tradycyjnego, dlatego będzie prezentować się doskonale niezależnie od okolicy. Prosta bryła i nieskomplikowana konstrukcja, zdecydowanie ułatwią i przyspieszą realizację. Aby zapewnić niskie koszty eksploatacji i nie zwiększać kosztów budowy, w projekcie zastosowano rozwiązania energooszczędne na poziomie ekonomicznie uzasadnionym. W trosce o naturalne środowisko i niskie zużycie energii, dom oferuje wiele rozwiązań energooszczędnych. Projekt zawiera rozbudowany pakiet instalacji w skład, których wchodzi: projekt ogrzewania na paliwo stałe - biomasę, projekt ogrzewania gazowego, oraz schemat instalacji solarnych. Na etapie adaptacji, inwestor może wybrać najbardziej odpowiednią dla siebie opcję. Prosta bryła i nieskomplikowana konstrukcja, zdecydowanie ułatwią i przyspieszą realizację. Aby zapewnić niskie koszty eksploatacji i nie zwiększać kosztów budowy, w projekcie zastosowano rozwiązania energooszczędne na poziomie ekonomicznie uzasadnionym.
Czytaj więcej

Polecani producenci

Kompletne systemy rekuperacji

tło producenta

Alnor

Dowiedz się więcej

Prefabrykowane konstrukcje dachowe

tło producenta

WIĄZAR POLSKA

Zobacz więcej

Sprawdź nową generację okien GREENVIEW

tło producenta

FAKRO

Sprawdź nową generację okien GREENVIEW

Styropian, tynki, farby, kleje

tło producenta

Termo Organika

Poznaj super jakość

Okna, drzwi, osłony przeciwsłoneczne

tło producenta

Aluprof

Sprawdź ofertę
Zobacz więcej

Społeczność projektu domu
Szafran w budowie

Dołącz do społeczności osób, które budują ten dom lub są zainteresowane jego budową.

  • Oglądaj zdjęcia z budowy
  • Zadawaj pytania
  • Wymieniaj się doświadczeniami

Opinie o projekcie domu Szafran

4

Na podstawie 1 recenzji

Wspaniały!
0%
Bardzo dobry
100%
Średni
0%
Słaby
0%
Bardzo słaby
0%

Opinie niezweryfikowane zakupem

Dodaj opinię
nika0008
11.06.2017 r.
witam czy ktos buduje szafran w woj mazowieckim lub warmińsku-mazurskim?

Wywiady mieszkańców domu Szafran

Zdjęcie profilowe użytkownika Justyna1033 Justyna1033

Przy wyborze odpowiedniego projektu szczególnie istotną kwestią był dla mnie uwzględniony w nim układ pomieszczeń. Spośród wielu propozycji, które oglądałam najbardziej do gustu przypadł mi projekt Szafran WOF1033, gdyż przewidziane w nim wnętrze w 100% odpowiadało moim pierwotnym założeniom. Rozwiązaniem, które miało dla mnie bardzo istotne znaczenie jest widoczny podział części mieszkalnej na strefy. Salon z kuchnią oraz pomieszczenia gospodarcze znajdują się w znacznej odległości od pokoi domowników, co jest naprawdę funkcjonalne. Dodatkowo, strefa sypialniana oddzielona jest drzwiami, więc jest poza zasięgiem wzroku odwiedzających gości, co pozwala na zachowanie prywatności.Realizacja naszego nowego domu przebiegła bez żadnych trudności. Fachowcy nie zgłaszali błędów w dokumentacji, ze wszystkim poradzili sobie sprawnie i bez problemów. Projekt nabyliśmy pod koniec 2013 r. i niedługo po tym rozpoczęliśmy pierwsze prace budowlane. Obecnie (lipiec 2016 r.) do całkowitego zakończenia inwestycji zostało nam wykonanie kilku ostatnich wykończeń. Ściany nośne wymurowaliśmy z ceramicznych pustaków z Hadykówki, zaś do postawienia działowych użyliśmy białych bloczków z betonu komórkowego. Na dachu zastosowaliśmy dachówkę. Moim zdaniem kosztorys odnośnie stanu surowego zamkniętego został nieco przeszacowany i myślę, że ten projekt bez problemów można zrealizować mniejszymi kosztami - przynajmniej tak właśnie było w naszym przypadku.Zdecydowaliśmy się na projekt Szafran WOF1033 w wersji lustrzanego odbicia. Budynek usytuowany jest na działce w ten sposób, iż przeszklony wykusz w jadalni wychodzi na stronę południową, zaś po najmniej słonecznej północy mamy tylko jedno okno w kotłowni, co uważam jest bardzo dobrym ułożeniem. We wszystkich pomieszczeniach mamy wystarczająco jasno i myślę, że przy takim układzie nie ma potrzeby wstawiania dodatkowych okien. Duże przeszklenie od południa sprawia, iż część dzienna jest bardzo słoneczna i ciepła.Wybór projektu domu parterowego Szafran WOF1033 okazał się dla nas strzałem w dziesiątkę. Uwzględniony w nim wewnętrzny układ w całości spełniał nasze oczekiwania od samego początku, dlatego też nie czuliśmy potrzeby aby cokolwiek zmieniać. Układ pomieszczeń zasługuje na duży plus i w dalszym ciągu nie widzę w naszym domu nic co chciałabym zmienić - wszystko jest dokładnie tak jak chciałam. Uważam, że dom jest idealny dla małżeństwa z dwójką dzieci - przy takim układzie każde z pociech będzie miało swoją własną sypialnię. Pokoje są jednak na tyle duże, że nawet 5-osobowa rodzina będzie czuć się na takim metrażu z pełnym komfortem. Pozdrawiam.

Zdjęcie profilowe użytkownika szafranszafran8u38 szafranszafran8u38

Gdy zaczynaliśmy szukać projektu naszego przyszłego domu, mieliśmy tylko jedno wymaganie, które musiałby spełniać. Mianowicie zależało nam na tym, aby wszystkie pomieszczenia znajdowały się na jednej kondygnacji. Spośród propozycji budynków parterowych, mojej żonie najbardziej do gustu przypadł projekt domu Szafran WOF1033, dlatego też finalnie zdecydowaliśmy się na jego zakup.Na szczęście cała realizacja odbyła się bez żadnych komplikacji. Wszystko przebiegło zgodnie z planem i w naprawdę krótkim czasie, gdyż postawienie domu łącznie z wykonaniem wszelkich prac wykończeniowych zajęło nam zaledwie 1,5 roku. Postanowiliśmy nie zmieniać zalecanej przez architekta technologii budowy i wszystkie użyte przez nas materiały są zgodne z sugestiami projektanta. Dzięki temu bez problemu udało nam się zmieścić w oszacowanych kosztach i mogę śmiało stwierdzić, że kosztorys został dobrze wyliczony i można się nim sugerować.Dom ogrzewamy za pomocą pieca gazowego, a za nami pierwszy sezon grzewczy od zamieszkania. Łącznie roczne rachunki za zużycie gazu (wraz z ogrzewaniem wody użytkowej) wyniosły ok. 5 tys. zł. Jeśli przyszli Inwestorzy projektu domu Szafran WOF1033 również chcieliby zainstalować w kotłowni kocioł gazowy, radziłbym rozważyć jej zmniejszenie. Pomieszczenie gospodarcze jest dosyć duże, więc w takim przypadku część jego powierzchni śmiało można przyłączyć do znajdującego się obok pokoju.Nasz dom usytuowany jest na działce w ten sposób, iż front znajduje się na południu, zaś taras wychodzi na stronę północną. Mimo to, oprócz korytarza, w którym nie ma okna, we wszystkich pozostałych pomieszczeniach mamy wystarczająco jasno. Do oryginalnego projektu domu parterowego Szafran WOF1033 nie wprowadzaliśmy żadnych zmian. Wszystko zrobiliśmy zgodnie z jego pierwotną wersją i jestem naprawdę zadowolony z funkcjonalności wnętrza. Układ pomieszczeń w naszym domu w całości spełnia nasze oczekiwania, a jego metraż jest w pełni komfortowy dla naszej 4-osobowej rodziny. Pozdrawiam.

Zdjęcie profilowe użytkownika Gosia i Tomek Z Gosia i Tomek Z

Na początku poszukiwań byliśmy zainteresowani budynkiem z poddaszem użytkowym, aczkolwiek po pewnym czasie doszliśmy do wniosku, że dom parterowy będzie dla nas lepszym rozwiązaniem. Chcieliśmy, aby przewidziany w nim układ pomieszczeń uwzględniał trzy sypialnie oraz dwie łazienki. Jednokondygnacyjnych budynków spełniających te kryteria było wiele, ale ostatecznie zdecydowaliśmy się na projekt domu z tarasem Szafran WOF1033, który spełniał nasze oczekiwania również pod innymi względami. Na nasz wybór wpłynęły przede wszystkim duże rozmiary pomieszczenia gospodarczego oraz znajdująca się w pobliżu kuchni spiżarka.Podczas budowy nie mieliśmy żadnych problemów. Pierwsze prace związane z wylaniem fundamentów miały miejsce w czerwcu 2015 r. a już po ponad roku mogliśmy wprowadzić się do nowego domu. Wtedy do ostatecznego zakończenia inwestycji zostało nam jedynie wykończenie elewacji. Fundamenty postawiliśmy z betonowych bloczków fundamentowych, zaś nośne ściany budynku wymurowaliśmy z ceramicznych pustaków Max. Strop zrobiliśmy w tradycyjnej, lanej betonem konstrukcji, a dach pokryliśmy blachodachówką. Myślę, że oszacowany przez architekta kosztorys został dobrze wyliczony. Uważam nawet, że projekt domu Szafran WOF1033 można zrealizować jeszcze mniejszym kosztem. Nam udało się to bez problemów, ponieważ budowaliśmy systemem gospodarczym, a dodatkowo w naszym rejonie (Podkarpacie) ceny materiałów są całkiem korzystne.Projekt domu Szafran WOF1033 przewiduje kuchnię otwartą. My postanowiliśmy zamknąć ją na salon, aczkolwiek nie wstawialiśmy drzwi między tymi pomieszczeniami. Dodatkowo, zrezygnowaliśmy z drzwi oddzielających strefę sypialnianą od hallu. Doskonałym pomysłem było przyłączenie wnęki na pralkę, przewidzianej w dużej łazience do powierzchni małej toalety. Dzięki temu udało nam się zmieścić w niej 50 cm kabinę prysznicową, co jest naprawdę praktyczne. Ponadto, wejścia do obu łazienek znajdują się w naszym przypadku na tej samej ścianie. Kolejna zmiana polegała na podniesieniu ścianki kolankowej o wysokość trzech pustaków, co spowodowało iż przestrzeń na poddaszu stała się naprawdę przestronna. Co prawda, póki co nie planujemy jej zaaranżować, aczkolwiek mamy taką możliwość, gdy w przyszłości zajdzie potrzeba. Myślę więc, że warto rozważyć to rozwiązanie. Jestem zadowolony z wprowadzonych modyfikacji i sądzę, że na chwilę obecną nic więcej nie poprawiałbym w kwestii układu pomieszczeń. Jedyne nad czym bym się teraz zastanowił to zrobienie miejsca na szafę wnękową w hallu przy wiatrołapie, gdyż oryginalnie znajduje się tam szafa wolnostojąca.Wraz z żoną mamy jedno dziecko, a drugie jest już w drodze. Przy czwórce domowników metraż naszego domu będzie idealny, tym bardziej że w dzisiejszych czasach każde dziecko chce mieć swój własny pokój. Myślę jednak, że jeśli rodzeństwo jest w podobnym wieku i dwójka z nich może mieszkać w jednym pokoju, 5-osobowa rodzina również będzie czuła się komfortowo przy takiej ilości miejsca. Wybór projektu domu parterowego Szafran WOF1033 był dla nas trafioną decyzją. Wnętrze domu jest funkcjonalne, a duże wymiary pomieszczenia gospodarczego doskonale się sprawdzają. Na początku obawialiśmy się nieco, że salon może być trochę za mały, jednak okazało się, że jego przestrzeń jest dla nas całkowicie wystarczająca. Pozdrawiam.

ASYSTENT WYBORU PROJEKTU

Szukasz idealnego projektu? Znajdziemy go dla Ciebie!

Doradca na podstawie Twoich wskazówek przygotuje spersonalizowaną listę projektów

Graficzne opracowanie rzutów poglądowych widocznych na karcie projektu zostało wykonane przez Extradom.pl. Prezentowane przez Extradom.pl wizualizacje wykonane zostały przez autora projektu i należy poczytywać je jedynie za przykład i propozycję wykończenia, wizję architektoniczną autora projektu. Ostateczne wykończenie budynku może nastąpić na wiele sposobów. Szczegółowe rozwiązania zastosowane w oferowanej dokumentacji - w tym również ilość, lokalizacje i wygląd okien, drzwi, kominów - mogą w niewielkim stopniu różnić się od prezentowanej wizualizacji budynku.

Extradom.pl Spółka z ograniczoną odpowiedzialnością z siedzibą przy ul. Jaworskiej 13, 53-612 Wrocław, wpisana do rejestru przedsiębiorców Krajowego Rejestru Sądowego przez Sąd Rejonowy dla Wrocławia-Fabrycznej we Wrocławiu, VI Wydział Gospodarczy Krajowego Rejestru Sądowego do pod numerem KRS 0000648746, numer NIP 895-17-18-333, o kapitale zakładowym 708 150,00 zł uprzejmie informuje, iż poprzez serwis Extradom.pl umożliwia m.in. zapoznanie się przez konsumentów z ofertą handlową Partnerów Extradom.pl, którzy stosują metody budowy domów przy wykorzystaniu różnego rodzaju technologie prefabrykacji bądź modułowe (tzw. „Gotowe domy”).

Extradom.pl nie prowadzi jednakże sprzedaży ani nie oferuje usług polegających na doradztwie finansowym, prawnym ani podatkowym w zakresie inwestycji realizowanych w technologiach tzw. „Gotowych domów”. Informacje prezentowane w serwisie Extradom.pl dotyczące Partnerów Extradom.pl oferujących realizację inwestycji w technologiach „Gotowych domów” lub podobnych mają charakter informacyjny i reklamowy.

Prezentowane w serwisie Extradom.pl informacje dotyczące stosowanych przez Partnerów metod budowy domów w technologii prefabrykacji bądź modułowej pochodzą od Partnerów Extradom.pl.

Extradom.pl sp. z o.o. jedynie umożliwia nawiązanie kontaktu przez Użytkownika z Partnerem Extradom.pl stosującym tego rodzaju technologie budowy domów i nie jest stroną umowy o roboty budowlane zawieranej przez Użytkownika Extradom.pl z Partnerem Extradom.pl.

REKLAMA
Zamknij