👉 Wiosenne rabaty + karta allegro 200 zł! 🔥

Koniec oferty za:

0dni

00godz.

00min.

00sek.

Sprawdź

Projekt domu Pistacja WOF1056

Dodano!
Dodano!

Warstwy

Rzut parteru

Powierzchnia (m²)
Tooltip
Powierzchnia pomieszczenia
to ta, z której faktycznie możesz korzystać – skosy i niskie części poddasza są liczone częściowo lub wcale.
  1. 100% dla wysokości powyżej 2,2 m,
  2. 50% dla wysokości 1,4–2,2 m,
  3. nie liczymy poniżej 1,4 m.

Powierzchnia podłogi
Liczymy po obrysie pomieszczenia, bez względu na jego wysokość/skosy. Jeśli nie ma skosów to powierzchnia podłogi i pomieszczenia jest taka sama.
pomieszczenia i podłogi
podłogi
1. Wiatrołap
3,39
2. Hall
4,76
3. Pokój dzienny + kuchnia
36,52
4. Pokój
12,06
5. Pokój
12,65
6. Pokój
11,02
7. Łazienka
4,85
8. Pomieszczenie gospodarcze
4,75
Razem
90
90

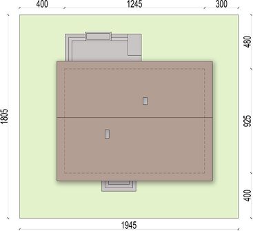
    Usytuowanie na działce

    Czy ten projekt pasuje na
    Twoją działkę?

    Chętnie to sprawdzimy!

    Dowiedz się:

    • czy zmieści się na niej wybrany przez Ciebie dom
    • jakie parametry musi spełniać dom według miejscowego planu zagospodarowania lub warunków zabudowy (np. kąt nachylenia i typ dachu, liczba kondygnacji itp.
    • jakie inne projekty pasują na Twoją działkę – znajdziemy je dla Ciebie!

Pow. użytkowa

90 m²

Pokoje

3

Łazienki i WC

1

Garaż

0

Min. szer. i dł. działki

19,45 x 18,05 m

Kąt dachu

35°

Szacunkowy koszt SSZ

240 000 zł
Szacunkowy koszt budowy do stanu surowego zamkniętego (SSZ) metodą gospodarczą - większość prac wykonuje inwestor.

Konstrukcja

Murowana
więcej

Pistacja - WOF1056

ikona 90 m²
Powierzchnia użytkowa
ikona3
Pokoje (bez salonu)
ikona 1
Łazienki (z toaletami)
ikona 0
Liczba stanowisk garażowych
(z wiatą garażową)
ikona
Konstrukcja: Murowana

Promocja od 24.03.2026, koniec za:

0 dni

00 00 00

3 499 zł

Tooltip

Cena regularna obowiązywała od 19.03.2026 do 23.03.2026

Cena regularna: 3 699 zł
Najniższa cena z 30 dni przed obniżką: 3 499 zł
Gwarancja najniższej ceny Gwarancja najniższej ceny Tooltip

Projekt jest dostępny Tooltip

GRATIS 15% rabatu do LEROY MERLIN

GRATIS 16% rabatu w SELSEY

GRATIS Przydatne Extradodatki

GRATIS Poradnik Dach Solarny

100 dni na wymianę, 30 dni na zwrot

Darmowa dostawa - kurier, paczkomaty

Bezpłatne pozwolenie na zmiany

Dokumentacja zgodna z WT2021

Pokaż więcej (6)
Konsultant Masz pytania?
Zadzwoń
71 715 20 60

pon.-pt. 8-21, sob. 9-17

Szukasz wykonawcy godnego zaufania?
Zleć budowę w Extradom.pl!

  • Z góry znasz koszt budowy domu
  • Dom odbierasz zgodnie z ustalonym harmonogramem - nawet w 6 miesięcy
  • Zabezpiecza Cię jedna kompleksowa umowa z jednym wykonawcą
  • Otrzymujesz nawet 30-letnią gwarancję na konstrukcję domu
  • Oszczędzasz swój czas dzięki pewnej i kompletnej usłudze
Cena brutto stanu
deweloperskiego od
Tooltip
Cena brutto stanu deweloperskiego od 4 719 do 6 939 zł/m2.
Cena jest uzależniona m.in. od lokalizacji, wybranej technologii, kubatury budynku, skomplikowania projektu i ewentualnych zmian, na które zdecyduje się inwestor.
Cena za m2 powierzchni netto, czyli wszystkich pomieszczeń mierzonych na wysokości podłogi.
4 719 zł/m2
Dowiedz się więcej
Konsultant Masz pytania?
Zadzwoń
71 718 89 70

pon.-pt. 8-19

Parter - 90 m²

Parter projektu Pistacja

Zapytaj, co możesz zmienić

Powierzchnia (m²)
Tooltip
Powierzchnia pomieszczenia
to ta, z której faktycznie możesz korzystać – skosy i niskie części poddasza są liczone częściowo lub wcale.
  1. 100% dla wysokości powyżej 2,2 m,
  2. 50% dla wysokości 1,4–2,2 m,
  3. nie liczymy poniżej 1,4 m.

Powierzchnia podłogi
Liczymy po obrysie pomieszczenia, bez względu na jego wysokość/skosy. Jeśli nie ma skosów to powierzchnia podłogi i pomieszczenia jest taka sama.
pomieszczenia i podłogi
podłogi
1. Wiatrołap
3,39
2. Hall
4,76
3. Pokój dzienny + kuchnia
36,52
4. Pokój
12,06
5. Pokój
12,65
6. Pokój
11,02
7. Łazienka
4,85
8. Pomieszczenie gospodarcze
4,75
Razem
90
90

Natychmiast, otrzymasz PDF-y
z rzutami wszystkich kondygnacji

Zamów rysunki szczegółowe

Zapoznaj się ze szczegółowymi rysunkami rzutów kondygnacji w PDF dla tego projektu.

Warianty projektu (1)

PROMOCJA
Projekt domu Pistacja 2
Pistacja 2
Dodano!
Dodano!
90 m²
3
1
0

3 499 zł

3 699 zł

Tooltip

Cena regularna

3 499 zł najniższa cena
Tooltip

Najniższa cena z 30 dni
przed obniżką

Podobne projekty (325)

Zobacz wszystkie
NIŻSZA CENA 🔥
Zdjęcie 1 projektu Parterowy klasyk 90 GDF1004
Parterowy klasyk 90
Dodano!
Dodano!
89,92 m²
3
2
0

3 980 zł

4 350 zł

Tooltip

Cena regularna

3 980 zł najniższa cena
Tooltip

Najniższa cena z 30 dni
przed obniżką

NIŻSZA CENA 🔥
Zdjęcie 1 projektu Tebe paliwo stałe WOE1062
Tebe paliwo stałe
Dodano!
Dodano!
83,92 m²
3
1
0

3 699 zł

3 799 zł

Tooltip

Cena regularna

3 399 zł najniższa cena
Tooltip

Najniższa cena z 30 dni
przed obniżką

NIŻSZA CENA 🔥
Zdjęcie 1 projektu Tebe WOE1021
Tebe
Dodano!
Dodano!
83,89 m²
3
1
0

3 699 zł

3 799 zł

Tooltip

Cena regularna

3 399 zł najniższa cena
Tooltip

Najniższa cena z 30 dni
przed obniżką

Zdjęcie 1 projektu Ania WRD3268
Ania
Dodano!
Dodano!
94,30 m²
3
1
0

3 600 zł

NIŻSZA CENA 🔥
Zdjęcie 1 projektu Mokka 2 WOF1079
Mokka 2
Dodano!
Dodano!
89,59 m²
3
2
0

3 899 zł

4 099 zł

Tooltip

Cena regularna

3 899 zł najniższa cena
Tooltip

Najniższa cena z 30 dni
przed obniżką

NIŻSZA CENA 🔥
Zdjęcie 1 projektu Słoneczny wariant E WAH1446
Słoneczny wariant E
Dodano!
Dodano!
89,78 m²
3
2
0

4 472 zł

5 590 zł

Tooltip

Cena regularna

4 472 zł najniższa cena
Tooltip

Najniższa cena z 30 dni
przed obniżką

NIŻSZA CENA 🔥
Zdjęcie 1 projektu APS 285 w2 LUA1532
APS 285 w2
Dodano!
Dodano!
84,80 m²
2
1
0

4 599 zł

5 099 zł

Tooltip

Cena regularna

4 599 zł najniższa cena
Tooltip

Najniższa cena z 30 dni
przed obniżką

NIŻSZA CENA 🔥
Nowość
Zdjęcie 1 projektu Bambino WOF1279
Bambino
Dodano!
Dodano!
83,59 m²
3
1
0

3 499 zł

3 699 zł

Tooltip

Cena regularna

3 499 zł najniższa cena
Tooltip

Najniższa cena z 30 dni
przed obniżką

Metody i koszt budowy

Ten dom możesz budować metodą gospodarczą, systemem zleconym lub skorzystać z naszej oferty Projekt z Budową. Przy porównaniu weź pod uwagę nie tylko koszt, ale też różny zakres prac i standard wykonania.

Metoda gospodarcza

Najtańsza metoda - większość prac
budowlanych wykonuje inwestor

Stan surowy zamknięty (SSZ)

240 000 zł netto

Szacunkowy koszt materiałów na IV kwartał 2025
  • Prace ziemne i fundamenty

    46 000 zł
  • Konstrukcja, strop oraz dach

    159 000 zł
  • Stolarka okienna i drzwiowa

    35 000 zł
  • Instalacje

    nie obejmuje
  • Prace wykończeniowe

    nie obejmuje
  • Możesz budować etapami, pamiętając jednak o zmianie kosztów w czasie
  • Możesz rozpocząć budowę z częścią niezbędnych środków
  • Sam ustalasz harmonogram, koordynujesz budowę i zapewniasz materiały
Czy da się obniżyć koszty budowy?
Zobacz nasz film jak obniżyć koszt budowy

Projekt z Budową

Najszybsza i najwygodniejsza metoda -
całą budowę domu realizuje jedna firma

Stan deweloperski
Gwarancja stałego kosztu budowy

Gwarancja stałego
kosztu budowy

  • Prace ziemne i fundamenty
  • Konstrukcja, strop oraz dach
  • Stolarka okienna i drzwiowa
  • Instalacje  
    Tooltip

    Obejmuje wykonanie instalacji:

    • wodno-kanalizacyjnej
    • centralnego ogrzewania
    • gazowej
    • elektrycznej
  • Prace wykończeniowe  
    Tooltip

    Prace wykończeniowe obejmują:

    • sufity i ściany wewnętrzne
    • tynki i okładziny ścian wewnętrznych
    • wylewki i posadzkę
    • ocieplenie ścian zewnętrznych i elewację

Budowa
nawet w
6mies.

  • Kompleksowa umowa i znany z góry koszt budowy
  • Logistyka, organizacja budowy i zakupy po stronie firmy budowlanej
  • Formalności i dokumentacje po stronie firmy budowlanej
  • Różne technologie budowy dopasowane do projektu i budżetu
Szczegóły i dostępne technologie
icon

Polecamy

Kosztorys

Zawiera zestawienie wszystkich potrzebnych materiałów wraz z ich cenami, uwzględnia koszty sprzętu i transportu. Z kosztorysem:

  • poznasz całkowite koszty budowy
  • zaplanujesz prace na budowie
  • łatwiej ocenisz konkurencyjność ofert podwykonawców
  • otrzymasz dokument wymagany w procesie kredytowym

Elewacje

Frontowa
Tylna
Lewa
Prawa

Przekroje

Przekrój pionowy

Usytuowanie na działce

Czy ten projekt pasuje na
Twoją działkę?

Chętnie to sprawdzimy!

Czy ten projekt pasuje na
Twoją działkę?

Chętnie to sprawdzimy!

Dowiedz się:

  • czy zmieści się na niej wybrany przez Ciebie dom
  • jakie parametry musi spełniać dom według miejscowego planu zagospodarowania lub warunków zabudowy (np. kąt nachylenia i typ dachu, liczba kondygnacji itp.
  • jakie inne projekty pasują na Twoją działkę – znajdziemy je dla Ciebie!
Autor: Archand

Dane techniczne projektu

Powierzchnie i wymiary Powierzchnie i wymiary

Powierzchnia użytkowa
Tooltip
Suma powierzchni wszystkich pomieszczeń mieszkalnych, pomniejszona o pow. garażu, kotłowni, strychu, piwnicy. Jest liczona w 100% dla pomieszczeń o wysokości powyżej 2,2 m, w 50% dla pomieszczeń o wys. 2,2-1,4 m i niewliczana dla niższych niż 1,4 m.

90 m²

Powierzchnia zabudowy
Tooltip
Powierzchnia zajmowana przez część na- oraz nadziemną budynku liczona, jako rzut pionowy budynku na działkę.

115,16 m²

Kubatura netto
Tooltip
Zazwyczaj jest to suma kubatur (objętości) pomieszczeń budynku, bez strychu, liczonych po zewnętrznym obrysie murów (z ociepleniem).

243 m³

Powierzchnia dachu

180 m²

Kąt nachylenia dachu
Tooltip
Nachylenie połaci dachu głównego podawane w stopniach. Uwaga! W niektórych projektach występuje więcej niż jedno nachylenie dachu.

35°

Wysokość budynku
Tooltip
Wysokość liczona od części budynku położonej najniżej przy powierzchni terenu do najwyższego punktu dachu (kalenicy) z wyłączeniem kominów.

7 m

Szerokość elewacji

12,45 m

Długość elewacji

9,25 m

Min. szerokość działki
Tooltip
Najmniejsza możliwa szerokość działki niezbędna do wybudowania wybranego domu. Składa się z szerokości elewacji domu powiększonej z obu stron o 3 m dla ściany bez otworów drzwiowych/okiennych lub 4 m, dla ściany z otworami.

19,45 m

Min. długość działki
Tooltip
Najmniejsza możliwa długość działki niezbędna do wybudowania wybranego domu. Składa się z długości elewacji domu powiększonej z obu stron o 3 m dla ściany bez otworów drzwiowych/okiennych lub 4 m, dla ściany z otworami.

18,05 m

Energooszczędność Energooszczędność

Oze Czym jest OZE (Odnawialne Źródło Energii)?
Ep
Tooltip
Energia pierwotna określa ilość energii nieodnawialnej potrzebnej w ciągu roku do ogrzewania czy też ogrzania wody użytkowej z uwzględnieniem kosztów produkcji i transportu surowców energetycznych.

45,67 kWh/(m²rok)

Ek
Tooltip
Energia końcowa określa zapotrzebowanie budynku na energię niezbędną do uzyskania założonych parametrów, jak np. temperatura wewnątrz budynku.

107,36 kWh/(m²rok)

Euco
Tooltip
Energia użytkowa potrzebna do ogrzewania i wentylacji. Im parametr jest niższy tym budynek bardziej energooszczędny.

53,02 kWh/(m²rok)

Ogrzewanie główne

Gazowe lub paliwo stałe (OZE) - do wyboru na etapie adaptacji

Dodatkowo istnieje możliwość zamówienia projektu z

Pompa ciepła + ogrzewanie podłogowe

Interesuje Cię inne źródło ogrzewania? Wyślij zapytanie lub zadzwoń do doradcy

Warunki techniczne

Projekt zgody z WT 2021

Technologia i konstrukcja Technologia i konstrukcja

Konstrukcja

Murowana

PROJEKT Z BUDOWĄ Istnieje możliwość zaadaptowania tego projektu do technologii prefabrykowanej/modułowej i budowy nawet w 6 miesięcy ze stałym kosztem budowy

Dowiedz się więcej »
Opis szczegółowy

Fundamenty żelbetowe, ściany nośne i działowe z pustaków ceramicznych, strop gęstożebrowy, konstrukcja dachu drewniana, dachówka ceramiczna.

Strop

Gęstożebrowy

Reklama
Okna i drzwi tarasowe

Nowoczesne okna PVC i aluminiowe WIŚNIOWSKI – doskonała izolacja, elegancki design i niezrównana trwałość.

Wiśniowski
Sprawdź parametry!
Okna dachowe

Oferujemy bezpłatne konsultacje w zakresie wszystkich rozwiązań VELUX. Wyceny, porady dotyczące doboru okien i rolet zewnętrznych - sprawdź!

Velux
Sprawdź szczegóły
Płytki ceramiczne i gresy

Od małych formatów po wielkoformatowe gresy. Marmur, beton, drewno, kamień, lastryko czy cegiełki zamówisz wygodnie online z szybką dostawą.

Ceramzet
Sprawdź ofertę
Elewacja

Kup przez internet wszystkie materiały potrzebne do wykonania elewacji: styropian, płyty PIR, XPS, kleje, tynki. Najlepsze marki w super cenach z dostawą pod dom.

Hurtownia styropianu
Sprawdź ofertę!
Drzwi

Ciepłe drzwi WIŚNIOWSKI z kontrolą dostępu. Szeroka gama wzorów i kolorów.

Wiśniowski
Wybierz najlepsze
Bramy garażowe

Automatyczne bramy garażowe segmentowe i uchylne WIŚNIOWSKI na wymiar i z systemem smart home w standardzie.

Wiśniowski
Sprawdź ofertę!
Armatura i ceramika łazienkowa

Topowi producenci. Baterie łazienkowe, zestawy natynkowe i podtynkowe, umywalki, wanny, miski WC oraz kabiny zamówisz kompleksowo online.

Ceramzet II
Dowiedz się więcej
Rekuperacja

Alnor - kompletny system rekuperacji. Dobierz idealne rozwiązanie dla Twojego domu!

Alnor
Dobierz rekuperator
Dach

Producent stalowych pokryć dachowych i systemów elewacyjnych. Precyzja wykonania, trwałość na lata i szybki montaż doceniany przez dekarzy. Postaw na solidny dach Budmat.

Budmat
Sprawdź ofertę
Ogrodzenie

Nowoczesne stalowe ogrodzenia Budmat - estetyka, bezpieczeństwo i trwałość na lata. Systemowe rozwiązania na wymiar, dopasowane do każdego domu.

Budmat
Sprawdź ofertę

Gotowe domy - najszybszy sposób na dom (124)

Zobacz wszystkie
  • Stan deweloperski nawet w 6 miesięcy
  • Gwarancja stałej ceny
Skonfiguruj dom
Zdjęcie 1 projektu Bergen 90 HUS1003
90,83 m²
3
Stan deweloperski brutto
409 000 zł 4 503 zł/m²
Zdjęcie 1 projektu Dom prefabrykowany Parterowy 90C HFX1007
90,04 m²
4
Stan deweloperski brutto
415 000 zł 4 609 zł/m²
Zdjęcie 1 projektu Dom prefabrykowany Parterowy 90B HFX1006
90,04 m²
3
Stan deweloperski brutto
415 000 zł 4 609 zł/m²
Zdjęcie 1 projektu Dom szkieletowy Mezzanine Smart Comfort 70 HHT1037
89,73 m²
3
Stan deweloperski brutto
490 784 zł 5 470 zł/m²
Zdjęcie 1 projektu Dom keramzytowy Bella 90 HRK1000
90,52 m²
3
Stan deweloperski brutto
398 520 zł 4 403 zł/m²
Zdjęcie 1 projektu Dom prefabrykowany DH110 HDH1006
91,17 m²
3
Stan deweloperski brutto
553 500 zł 6 071 zł/m²
Zdjęcie 1 projektu Dom szkieletowy Double Family Smart 140 HHT1024
88,78 m²
4
Stan deweloperski brutto
1 216 900 zł 13 707 zł/m²
Zdjęcie 1 projektu Dom prefabrykowany Parterowy 90D HFX1008
91,35 m²
3
Stan deweloperski brutto
415 000 zł 4 543 zł/m²

Dodatki do projektu

Dodatki możesz zamówić w koszyku lub telefonicznie u naszego Doradcy.

Czym jest OZE (Odnawialne Źródło Energii)?

Ikona

Bestseller

Kosztorys

790 zł

590 zł

Cena przy zakupie z projektem

Ikona

Bestseller

Dodatkowy egzemplarz projektu

690 zł

490 zł

Cena przy zakupie z projektem

Ikona

Bestseller

Ogrzewanie podłogowe

1 190 zł

990 zł

Cena przy zakupie z projektem

Ikona

Oze

Pompa ciepła + ogrzewanie podłogowe

1 190 zł

990 zł

Cena przy zakupie z projektem

Opis projektu domu
Pistacja

Projekt domu Pistacja jest doskonałym rozwiązaniem dla osób posiadających średniej szerokości działkę. Bryła budynku posiada formę prostą, więc jego realizacja nie pochłonie zbyt wielu środków finansowych. W tym projekcie kalenica skierowana jest równolegle do drogi, co często określane jest w warunkach zabudowy. Projekt został stworzony z myślą o działkach pozwalających na usytuowanie domu w zabudowie wolnostojącej. Projekt można usytuować na granicy działki, dzięki czemu można go zrealizować w zabudowie bliźniaczej. Jest to również doskonała propozycja dla osób szukających domu z dachem dwuspadowym, co pozwala na ograniczenie kosztów. Projekt Pistacja to dom parterowy, co jest z pewnością ogromnym plusem w przypadku osób starszych, niepełnosprawnych oraz małżeństw z małymi dziećmi. Zaletą projektu jest podział na strefę dzienną i nocną - przeznaczoną tylko dla mieszkańców. Zwolenników przestronnych przestrzeni z pewnością ucieszy przewidziana w projekcie funkcjonalna część dzienna. Otwarta kuchnia dodaje wnętrzu przestrzeni oraz znacznie ułatwia komunikację między domownikami. W kuchni znajduje się stół, dzięki któremu zyskuje ona na funkcjonalności. Usytuowany w salonie kominek nie tylko świetnie się prezentuje, ale także zapewni przyjemne ciepło w chłodniejsze dni. Uwzględniona w projekcie łazienka posiada optymalne wymiary. Trzy komfortowe pokoje zaspokoją potrzeby 2-4 osobowej rodziny. Przestrzeń można wykorzystać także jako pokój dla gości lub gabinet. Na komfortowe użytkowanie domu ma również wpływ uwzględnione w nim pomieszczenie gospodarcze. Taras przy domu sprzyja spędzaniu czasu na świeżym powietrzu. Projekt został wykonany w technologii murowanej, dzięki czemu podczas upałów dom utrzymuje przyjemny chłód. Pistacja zadowoli Inwestorów ceniących cechy stylu tradycyjnego, dlatego będzie prezentować się doskonale niezależnie od okolicy. W trosce o naturalne środowisko i niskie zużycie energii, dom oferuje wiele rozwiązań energooszczędnych. Projekt zawiera rozbudowany pakiet instalacji w skład, których wchodzi: projekt ogrzewania na paliwo stałe- biomasę, projekt ogrzewania gazowego, oraz schemat instalacji solarnych. Na etapie adaptacji, inwestor może wybrać najbardziej odpowiednią dla siebie opcję. Prosta bryła i nieskomplikowana konstrukcja, zdecydowanie ułatwią i przyspieszą realizację. Aby zapewnić niskie koszty eksploatacji i nie zwiększać kosztów budowy, w projekcie zastosowano rozwiązania energooszczędne na poziomie ekonomicznie uzasadnionym.
Czytaj więcej

Polecani producenci

Kompletne systemy rekuperacji

tło producenta

Alnor

Dowiedz się więcej

Prefabrykowane konstrukcje dachowe

tło producenta

WIĄZAR POLSKA

Zobacz więcej

Sprawdź nową generację okien GREENVIEW

tło producenta

FAKRO

Sprawdź nową generację okien GREENVIEW

Styropian, tynki, farby, kleje

tło producenta

Termo Organika

Poznaj super jakość

Okna, drzwi, osłony przeciwsłoneczne

tło producenta

Aluprof

Sprawdź ofertę
Zobacz więcej

Społeczność projektu domu
Pistacja w budowie

Dołącz do społeczności osób, które budują ten dom lub są zainteresowane jego budową.

  • Oglądaj zdjęcia z budowy
  • Zadawaj pytania
  • Wymieniaj się doświadczeniami

Opinie o projekcie domu Pistacja

5

Na podstawie 1 recenzji

Wspaniały!
100%
Bardzo dobry
0%
Średni
0%
Słaby
0%
Bardzo słaby
0%

Wywiady mieszkańców domu Pistacja

Zdjęcie profilowe użytkownika Marcin62 Marcin62

Zależało mi, aby budowa naszego nowego domu nie pochłonęła zbyt wielu środków finansowych, toteż podczas poszukiwań projektu, głównie skupiłem się na jego konstrukcji. Istotna była prosta, nieskomplikowana bryła oraz niezbyt duży metraż do 100 m². Oglądając propozycje spełniające powyższe wymagania, natknęliśmy się na projekt domu Pistacja WOF1056. W całości bardzo nam się spodobał i ostatecznie zdecydowaliśmy się na jego realizację.Całą inwestycję udało nam się ukończyć po naszej myśli. Prace postępowały jak najbardziej sprawnie i przyznam, że jestem bardzo zadowolony z przebiegu naszej budowy. Wszystkie etapy zakończyliśmy w błyskawicznym czasie - postawienie oraz całościowe wykończenie nowego domu trwało w naszym przypadku zaledwie 4 miesiące.Do wymurowania ścian użyliśmy bloczków z betonu komórkowego marki Ytong. Strop tworzy drewniana konstrukcja, a od spodu zastosowaliśmy sufity podwieszane montowane na stelażach i płytach g-k. Dach pokryliśmy dachówką ceramiczną. Przy powyższych materiałach, koszty realizacji projektu Pistacja WOF1056 na etapie stanu surowego zamkniętego wyniosły ok. 110 tys. zł.Projekt domu Pistacja WOF1056 przewiduje zagospodarowanie jednej kondygnacji, jednak strych okazał się na tyle spory, iż postanowiliśmy użytkowo go wykorzystać. Zrezygnowaliśmy z wykonania kominka oraz znajdującej się przy niej ścianki, wydłużając jednocześnie ścianę między kuchnią a salonem. Przy niej, w głównym hallu wykonaliśmy praktyczne schody na górę. Z racji iż posiadamy piec na paliwo stałe, nie chcieliśmy aby dym i popiół przedostawały się do części mieszkalnej i w efekcie zamurowaliśmy drzwi do kotłowni. Obecnie dostać można się do niej od zewnątrz z tyłu domu. Dodatkowo, zrezygnowaliśmy z okna na ścianie szczytowej w strefie dziennej. Innych zmian nie wprowadzaliśmy, chociaż teraz z pewnością pomyślałbym o lekkim podniesieniu ścianki kolankowej. Takie rozwiązanie sprawi, iż strych stanie się przestronniejszy i szczerze polecam ten pomysł przyszłym Inwestorom Pistacji. Myślę, że warto również rozważyć modyfikację instalacji, tak aby móc umieścić w kotłowni stację uzdatniania wody.Decyzja o wyborze projektu domu parterowego Pistacja WOF1056 była bardzo dokładnie przemyślana. Uwzględniony w nim układ pomieszczeń od początku nam odpowiadał i w dalszym ciągu dostrzegamy w nim same plusy. Nieduży metraż domu sprawia, iż jest on tani w eksploatacji a sprzątanie nie zajmuje wiele czasu. Jednocześnie pokoje są przestronne, a wszystkie pomieszczenia w pełni komfortowe w codziennym użytkowaniu. Nowy dom spełnił nasze oczekiwania i w całości nam satysfakcjonuje. Pozdrawiam.

ASYSTENT WYBORU PROJEKTU

Szukasz idealnego projektu? Znajdziemy go dla Ciebie!

Doradca na podstawie Twoich wskazówek przygotuje spersonalizowaną listę projektów

Graficzne opracowanie rzutów poglądowych widocznych na karcie projektu zostało wykonane przez Extradom.pl. Prezentowane przez Extradom.pl wizualizacje wykonane zostały przez autora projektu i należy poczytywać je jedynie za przykład i propozycję wykończenia, wizję architektoniczną autora projektu. Ostateczne wykończenie budynku może nastąpić na wiele sposobów. Szczegółowe rozwiązania zastosowane w oferowanej dokumentacji - w tym również ilość, lokalizacje i wygląd okien, drzwi, kominów - mogą w niewielkim stopniu różnić się od prezentowanej wizualizacji budynku.

Extradom.pl Spółka z ograniczoną odpowiedzialnością z siedzibą przy ul. Jaworskiej 13, 53-612 Wrocław, wpisana do rejestru przedsiębiorców Krajowego Rejestru Sądowego przez Sąd Rejonowy dla Wrocławia-Fabrycznej we Wrocławiu, VI Wydział Gospodarczy Krajowego Rejestru Sądowego do pod numerem KRS 0000648746, numer NIP 895-17-18-333, o kapitale zakładowym 708 150,00 zł uprzejmie informuje, iż poprzez serwis Extradom.pl umożliwia m.in. zapoznanie się przez konsumentów z ofertą handlową Partnerów Extradom.pl, którzy stosują metody budowy domów przy wykorzystaniu różnego rodzaju technologie prefabrykacji bądź modułowe (tzw. „Gotowe domy”).

Extradom.pl nie prowadzi jednakże sprzedaży ani nie oferuje usług polegających na doradztwie finansowym, prawnym ani podatkowym w zakresie inwestycji realizowanych w technologiach tzw. „Gotowych domów”. Informacje prezentowane w serwisie Extradom.pl dotyczące Partnerów Extradom.pl oferujących realizację inwestycji w technologiach „Gotowych domów” lub podobnych mają charakter informacyjny i reklamowy.

Prezentowane w serwisie Extradom.pl informacje dotyczące stosowanych przez Partnerów metod budowy domów w technologii prefabrykacji bądź modułowej pochodzą od Partnerów Extradom.pl.

Extradom.pl sp. z o.o. jedynie umożliwia nawiązanie kontaktu przez Użytkownika z Partnerem Extradom.pl stosującym tego rodzaju technologie budowy domów i nie jest stroną umowy o roboty budowlane zawieranej przez Użytkownika Extradom.pl z Partnerem Extradom.pl.

REKLAMA
Zamknij