Od 4 do 6 kwietnia nasi konsultanci są niedostępni 🌷 Złóż zamówienie przez stronę!

Projekt domu Osina 7p KRP1181

Zapisz Dodano!
Porównaj Dodano!
ikona Pobierz i drukuj

Warstwy

Warstwy

Warstwy

Rzut parteru

Powierzchnia (m²)
Tooltip
Powierzchnia pomieszczenia
to ta, z której faktycznie możesz korzystać – skosy i niskie części poddasza są liczone częściowo lub wcale.
  1. 100% dla wysokości powyżej 2,2 m,
  2. 50% dla wysokości 1,4–2,2 m,
  3. nie liczymy poniżej 1,4 m.

Powierzchnia podłogi
Liczymy po obrysie pomieszczenia, bez względu na jego wysokość/skosy. Jeśli nie ma skosów to powierzchnia podłogi i pomieszczenia jest taka sama.
pomieszczenia i podłogi
podłogi
1. Korytarz
4,95
2. Kotłownia
10,88
3. Pomieszczenie gospodarcze
14,34
4. Garaż jednostanowiskowy
35,25
Razem
65,42
65,42
Powierzchnia (m²)
Tooltip
Powierzchnia pomieszczenia
to ta, z której faktycznie możesz korzystać – skosy i niskie części poddasza są liczone częściowo lub wcale.
  1. 100% dla wysokości powyżej 2,2 m,
  2. 50% dla wysokości 1,4–2,2 m,
  3. nie liczymy poniżej 1,4 m.

Powierzchnia podłogi
Liczymy po obrysie pomieszczenia, bez względu na jego wysokość/skosy. Jeśli nie ma skosów to powierzchnia podłogi i pomieszczenia jest taka sama.
pomieszczenia i podłogi
podłogi
1. Wiatrołap
7,70
2. Garderoba
7,06
3. Korytarz
4,22
4. Korytarz
4,26
5. Kuchnia
14,34
6. Pokój dzienny
35,25
7. Łazienka
6,35
Razem
79,18
79,18
Powierzchnia (m²)
Tooltip
Powierzchnia pomieszczenia
to ta, z której faktycznie możesz korzystać – skosy i niskie części poddasza są liczone częściowo lub wcale.
  1. 100% dla wysokości powyżej 2,2 m,
  2. 50% dla wysokości 1,4–2,2 m,
  3. nie liczymy poniżej 1,4 m.

Powierzchnia podłogi
Liczymy po obrysie pomieszczenia, bez względu na jego wysokość/skosy. Jeśli nie ma skosów to powierzchnia podłogi i pomieszczenia jest taka sama.
pomieszczenia
podłogi
1. Korytarz
8,45
8,71
2. Pokój
12,64
14,71
3. Pokój
15,03
19,25
4. Pokój
12,31
16,55
5. Łazienka
7,55
7,85
6. Pokój
11,38
21,60
Razem
67,36
88,67

    Usytuowanie na działce

    Czy ten projekt pasuje na
    Twoją działkę?

    Chętnie to sprawdzimy!

    Dowiedz się:

    • czy zmieści się na niej wybrany przez Ciebie dom
    • jakie parametry musi spełniać dom według miejscowego planu zagospodarowania lub warunków zabudowy (np. kąt nachylenia i typ dachu, liczba kondygnacji itp.
    • jakie inne projekty pasują na Twoją działkę – znajdziemy je dla Ciebie!

Pow. użytkowa

139,48 m²

Pokoje

4

Łazienki i WC

2

Garaż

1

Min. szer. i dł. działki

21,5 x 18,60 m

Kąt dachu

38°

Konstrukcja

Murowana
więcej

Osina 7p - KRP1181

ikona 139,48 m²
Powierzchnia użytkowa
ikona4
Pokoje (bez salonu)
ikona 2
Łazienki (z toaletami)
ikona 1
Liczba stanowisk garażowych
(z wiatą garażową)
ikona
Konstrukcja: Murowana

Projekt został
wycofany z oferty

W razie pytań prosimy o kontakt
z Centrum Obsługi Klienta
Konsultant
71 715 20 02

pon.-pt. 8-21, sob. 9-17

Piwnica - 65,42 m²

Piwnica projektu Osina 7p

Zapytaj, co możesz zmienić

Powierzchnia (m²)
Tooltip
Powierzchnia pomieszczenia
to ta, z której faktycznie możesz korzystać – skosy i niskie części poddasza są liczone częściowo lub wcale.
  1. 100% dla wysokości powyżej 2,2 m,
  2. 50% dla wysokości 1,4–2,2 m,
  3. nie liczymy poniżej 1,4 m.

Powierzchnia podłogi
Liczymy po obrysie pomieszczenia, bez względu na jego wysokość/skosy. Jeśli nie ma skosów to powierzchnia podłogi i pomieszczenia jest taka sama.
pomieszczenia i podłogi
podłogi
1. Korytarz
4,95
2. Kotłownia
10,88
3. Pomieszczenie gospodarcze
14,34
4. Garaż jednostanowiskowy
35,25
Razem
65,42
65,42

Parter - 79,18 m²

Parter projektu Osina 7p

Zapytaj, co możesz zmienić

Powierzchnia (m²)
Tooltip
Powierzchnia pomieszczenia
to ta, z której faktycznie możesz korzystać – skosy i niskie części poddasza są liczone częściowo lub wcale.
  1. 100% dla wysokości powyżej 2,2 m,
  2. 50% dla wysokości 1,4–2,2 m,
  3. nie liczymy poniżej 1,4 m.

Powierzchnia podłogi
Liczymy po obrysie pomieszczenia, bez względu na jego wysokość/skosy. Jeśli nie ma skosów to powierzchnia podłogi i pomieszczenia jest taka sama.
pomieszczenia i podłogi
podłogi
1. Wiatrołap
7,70
2. Garderoba
7,06
3. Korytarz
4,22
4. Korytarz
4,26
5. Kuchnia
14,34
6. Pokój dzienny
35,25
7. Łazienka
6,35
Razem
79,18
79,18

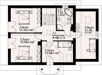
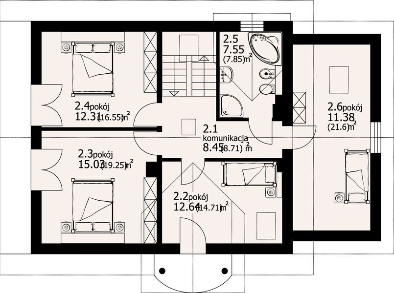
Poddasze - 67,36 m²

Poddasze projektu Osina 7p

Zapytaj, co możesz zmienić

Powierzchnia (m²)
Tooltip
Powierzchnia pomieszczenia
to ta, z której faktycznie możesz korzystać – skosy i niskie części poddasza są liczone częściowo lub wcale.
  1. 100% dla wysokości powyżej 2,2 m,
  2. 50% dla wysokości 1,4–2,2 m,
  3. nie liczymy poniżej 1,4 m.

Powierzchnia podłogi
Liczymy po obrysie pomieszczenia, bez względu na jego wysokość/skosy. Jeśli nie ma skosów to powierzchnia podłogi i pomieszczenia jest taka sama.
pomieszczenia
podłogi
1. Korytarz
8,45
8,71
2. Pokój
12,64
14,71
3. Pokój
15,03
19,25
4. Pokój
12,31
16,55
5. Łazienka
7,55
7,85
6. Pokój
11,38
21,60
Razem
67,36
88,67

Warianty projektu (1)

Projekt domu Osina 44
Osina 44
Dodano!
Dodano!
175,12 m²
5
2
2

5 780 zł

Podobne projekty (1762)

Zobacz wszystkie
PREZENT 🎁
Zdjęcie 1 projektu Nasza Stodoła S powiększona wersja szkieletowa KRY1011
126,38 m²
4
3
1

5 800 zł

PREZENT 🎁
Zdjęcie 1 projektu Albatros WAH1506
Albatros
Dodano!
Dodano!
128,63 m²
4
3
1

6 280 zł

PREZENT 🎁
Zdjęcie 1 projektu Lajkonik (1565) KRD2714
Lajkonik (1565)
Dodano!
Dodano!
150,80 m²
5
2
0

4 890 zł

PREZENT 🎁
Zdjęcie 1 projektu Arnika BSA1580
Arnika
Dodano!
Dodano!
130,13 m²
3
2
1

5 349 zł

PREZENT 🎁
Zdjęcie 1 projektu Dom przy Alabastrowej 58 KRK1634
Dom przy Alabastrowej 58
Dodano!
Dodano!
135 m²
4
3
0

4 290 zł

PREZENT 🎁
Zdjęcie 1 projektu Krajobrazy 44 WRN1583
Krajobrazy 44
Dodano!
Dodano!
131,50 m²
4
2
1

4 195 zł

PREZENT 🎁
Zdjęcie 1 projektu Wygodny GDA1017
Wygodny
Dodano!
Dodano!
148,83 m²
4
2
1

7 380 zł

PREZENT 🎁
Zdjęcie 1 projektu Lungo WOF1128
Lungo
Dodano!
Dodano!
128,39 m²
4
2
1

4 099 zł

Elewacje

Frontowa
Tylna
Lewa
Prawa

Przekroje

Przekrój pionowy

Usytuowanie na działce

Czy ten projekt pasuje na
Twoją działkę?

Chętnie to sprawdzimy!

Czy ten projekt pasuje na
Twoją działkę?

Chętnie to sprawdzimy!

Dowiedz się:

  • czy zmieści się na niej wybrany przez Ciebie dom
  • jakie parametry musi spełniać dom według miejscowego planu zagospodarowania lub warunków zabudowy (np. kąt nachylenia i typ dachu, liczba kondygnacji itp.
  • jakie inne projekty pasują na Twoją działkę – znajdziemy je dla Ciebie!
Autor: Dom-Projekt

Dane techniczne projektu

Powierzchnie i wymiary Powierzchnie i wymiary

Powierzchnia użytkowa
Tooltip
Suma powierzchni wszystkich pomieszczeń mieszkalnych, pomniejszona o pow. garażu, kotłowni, strychu, piwnicy. Jest liczona w 100% dla pomieszczeń o wysokości powyżej 2,2 m, w 50% dla pomieszczeń o wys. 2,2-1,4 m i niewliczana dla niższych niż 1,4 m.

139,48 m²

Wysokość ściany kolankowej
Tooltip
Wysokość ściany podpierającej dach. Jej wysokość wpływa na powierzchnię użytkową kondygnacji, na której się znajduje.

1,11 m

Powierzchnia zabudowy
Tooltip
Powierzchnia zajmowana przez część na- oraz nadziemną budynku liczona, jako rzut pionowy budynku na działkę.

117,20 m²

Powierzchnia netto
Tooltip
Powierzchna wszystkich pomieszczeń w budynku mierzona na wysokości podłogi.

234,22 m²

Kubatura brutto
Tooltip
Zazwyczaj jest to suma kubatur (objętości) wszystkich pomieszczeń budynku, liczonych po zewnętrznym obrysie murów (z ociepleniem).

834,80 m³

Powierzchnia dachu

216,56 m²

Kąt nachylenia dachu
Tooltip
Nachylenie połaci dachu głównego podawane w stopniach. Uwaga! W niektórych projektach występuje więcej niż jedno nachylenie dachu.

38°

Wysokość budynku
Tooltip
Wysokość liczona od części budynku położonej najniżej przy powierzchni terenu do najwyższego punktu dachu (kalenicy) z wyłączeniem kominów.

8,23 m

Min. szerokość działki
Tooltip
Najmniejsza możliwa szerokość działki niezbędna do wybudowania wybranego domu. Składa się z szerokości elewacji domu powiększonej z obu stron o 3 m dla ściany bez otworów drzwiowych/okiennych lub 4 m, dla ściany z otworami.

21,50 m

Min. długość działki
Tooltip
Najmniejsza możliwa długość działki niezbędna do wybudowania wybranego domu. Składa się z długości elewacji domu powiększonej z obu stron o 3 m dla ściany bez otworów drzwiowych/okiennych lub 4 m, dla ściany z otworami.

18,60 m

Energooszczędność Energooszczędność

Oze Czym jest OZE (Odnawialne Źródło Energii)?
Warunki techniczne

Projekt zgody z WT 2021

Technologia i konstrukcja Technologia i konstrukcja

Konstrukcja

Murowana

Opis szczegółowy

Wysokość ścianki kolankowej: 1.11 m. Ilość drewna na więźbę: 8.09 m³. Strop: płyta żelbetowa. Pokrycie dachu: dachówka ceramiczna. Ściany zewnętrzne: pustaki ceramiczne + styropian. Ściany wewnętrzne: pustaki ceramiczne. Typ ogrzewania: kocioł gazowy lub kocioł na paliwo stałe. Inne: okna połaciowe Fakro.

Strop

Żelbetowy

Reklama
Okna i drzwi tarasowe

Nowoczesne okna PVC i aluminiowe WIŚNIOWSKI – doskonała izolacja, elegancki design i niezrównana trwałość.

Wiśniowski
Sprawdź parametry!
Okna dachowe

Oferujemy bezpłatne konsultacje w zakresie wszystkich rozwiązań VELUX. Wyceny, porady dotyczące doboru okien i rolet zewnętrznych - sprawdź!

Velux
Sprawdź szczegóły
Pompa ciepła

Wybierz pompę ciepła, która pasuje do Twojego domu. Niezależnie od tego, czy ustawienie wewnątrz czy na zewnątrz, pompy ciepła STIEBEL ELTRON dopasują się do każdej przestrzeni.

Stiebel
Dowiedz się więcej
Płytki ceramiczne i gresy

Od małych formatów po wielkoformatowe gresy. Marmur, beton, drewno, kamień, lastryko czy cegiełki zamówisz wygodnie online z szybką dostawą.

Ceramzet
Sprawdź ofertę
Elewacja

Kup przez internet wszystkie materiały potrzebne do wykonania elewacji: styropian, płyty PIR, XPS, kleje, tynki. Najlepsze marki w super cenach z dostawą pod dom.

Hurtownia styropianu
Sprawdź ofertę!
Drzwi

Ciepłe drzwi WIŚNIOWSKI z kontrolą dostępu. Szeroka gama wzorów i kolorów.

Wiśniowski
Wybierz najlepsze
Bramy garażowe

Automatyczne bramy garażowe segmentowe i uchylne WIŚNIOWSKI na wymiar i z systemem smart home w standardzie.

Wiśniowski
Sprawdź ofertę!
Rekuperacja

Alnor - kompletny system rekuperacji. Dobierz idealne rozwiązanie dla Twojego domu!

Alnor
Dobierz rekuperator
Dach

Producent stalowych pokryć dachowych i systemów elewacyjnych. Precyzja wykonania, trwałość na lata i szybki montaż doceniany przez dekarzy. Postaw na solidny dach Budmat.

Budmat
Sprawdź ofertę
Ogrodzenie

Nowoczesne stalowe ogrodzenia Budmat - estetyka, bezpieczeństwo i trwałość na lata. Systemowe rozwiązania na wymiar, dopasowane do każdego domu.

Budmat
Sprawdź ofertę

Gotowe domy - najszybszy sposób na dom (115)

Zobacz wszystkie
  • Stan deweloperski nawet w 6 miesięcy
  • Gwarancja stałej ceny
Skonfiguruj dom
Zdjęcie 1 projektu Bergen 130 HUS1002
130,40 m²
4
Stan deweloperski brutto
499 000 zł 3 827 zł/m²
Zdjęcie 1 projektu Dom prefabrykowany P.1 z okapem HPK1000
139,44 m²
3
Stan deweloperski brutto
734 000 zł 5 264 zł/m²
Zdjęcie 1 projektu Dom prefabrykowany P.1 bez okapu HPK1012
139,44 m²
3
Stan deweloperski brutto
712 400 zł 5 109 zł/m²
Zdjęcie 1 projektu Dom prefabrykowany P.5 HPK1004
138,67 m²
5
Stan deweloperski brutto
787 200 zł 5 677 zł/m²
Zdjęcie 1 projektu Dom prefabrykowany DEX136 HDX1002
136 m²
4
Stan deweloperski brutto
895 700 zł 6 586 zł/m²
Zdjęcie 1 projektu Dom szkieletowy Open Sky 195 HHT1029
145,04 m²
4
Stan deweloperski brutto
940 300 zł 6 483 zł/m²
Zdjęcie 1 projektu Dom prefabrykowany Piętrowy 130C HFX1023
132 m²
4
Stan deweloperski brutto
575 000 zł 4 356 zł/m²
Zdjęcie 1 projektu Dom prefabrykowany Piętrowy 130B HFX1022
131,60 m²
5
Stan deweloperski brutto
575 000 zł 4 369 zł/m²

Opis projektu domu
Osina 7p

Projekt domu Osina 7p został stworzony na wzór popularnego projektu Osina. W przeciwieństwie do bazowej wersji projekt ma mniej pokoi, większą powierzchnię. Projekt domu Osina 7p to idealna propozycja dla osób posiadających średniej szerokości działkę. Doskonale sprawdzi się w przypadku działki zlokalizowanej na nierównym terenie. Dom charakteryzuje się prostą bryłą, więc będzie się dobrze prezentował niezależnie od otoczenia. W tym projekcie kalenica usytuowana jest równolegle do drogi, co często określane jest w planie zagospodarowania przestrzennego. Dom został zaprojektowany z myślą o zabudowie wolnostojącej. Autor projektu przewidział garaż jednostanowiskowy garaż podziemny. Jest to również doskonała propozycja dla osób szukających domu z dachem dwuspadowym, i wykonanie więźby oraz jej pokrycie jest ekonomiczne i nie zajmuje wiele czasu. Projekt dedykowany jest w szczególności osobom posiadającym działkę z wjazdem od strony południowej. Projekt Osina 7p to dom parterowy z poddaszem użytkowym, co sprawia, że metraż powierzchni użytkowej nie jest ograniczony wielkością działki. Budynek posiada piwnicę, w której można urządzić pralnię oraz pomieszczenie gospodarcze. Autor projektu przewidział w nim ciekawie prezentującą się strefę dzienną. Kuchnia zamknięta na salon jest rozwiązaniem przede wszystkim funkcjonalnym. Zamknięta strefa ogranicza przedostawanie się hałasu do innych części domu. W kuchni znajduje się także stół, dzięki któremu poranne spotkania z rodziną staną się ważną częścią dnia dla każdego domownika. Usytuowany w salonie kominek sprawi, iż wnętrze stanie się bardziej przytulne. Praktycznym rozwiązaniem jest uwzględnienie w projekcie dwóch łazienek - zarówno na dole jak i na górze. Uwzględnione w domu cztery przestronne sypialnie to optymalna opcja dla 4-6 osobowej rodziny. Przestrzeń można wykorzystać także jako pokój dla gości lub gabinet. Dla osób ceniących sobie dobrą organizację, istotnym pomieszczeniem jest przewidziana w projekcie garderoba. Taras jest idealnym miejscem do organizowania rodzinnych spotkań i chwili relaksu. Projekt został wykonany w technologii murowanej, dzięki czemu podczas upałów dom utrzymuje przyjemny chłód. Jego wygląd nawiązuje do stylu tradycyjnego, dzięki czemu idealnie wpisze się w dowolny krajobraz.
Czytaj więcej

Polecani producenci

Kompletne systemy rekuperacji

tło producenta

Alnor

Dowiedz się więcej

Prefabrykowane konstrukcje dachowe

tło producenta

WIĄZAR POLSKA

Zobacz więcej

Sprawdź nową generację okien GREENVIEW

tło producenta

FAKRO

Sprawdź nową generację okien GREENVIEW

Styropian, tynki, farby, kleje

tło producenta

Termo Organika

Poznaj super jakość

Okna, drzwi, osłony przeciwsłoneczne

tło producenta

Aluprof

Sprawdź ofertę
Zobacz więcej

Społeczność projektu domu
Osina 7p w budowie

Dołącz do społeczności osób, które budują ten dom lub są zainteresowane jego budową.

  • Oglądaj zdjęcia z budowy
  • Zadawaj pytania
  • Wymieniaj się doświadczeniami

Opinie o projekcie domu Osina 7p

Ocena

Ten projekt nie ma jeszcze opinii, bądź pierwszy!

Dodaj opinię

ASYSTENT WYBORU PROJEKTU

Szukasz idealnego projektu? Znajdziemy go dla Ciebie!

Doradca na podstawie Twoich wskazówek przygotuje spersonalizowaną listę projektów

Graficzne opracowanie rzutów poglądowych widocznych na karcie projektu zostało wykonane przez Extradom.pl. Prezentowane przez Extradom.pl wizualizacje wykonane zostały przez autora projektu i należy poczytywać je jedynie za przykład i propozycję wykończenia, wizję architektoniczną autora projektu. Ostateczne wykończenie budynku może nastąpić na wiele sposobów. Szczegółowe rozwiązania zastosowane w oferowanej dokumentacji - w tym również ilość, lokalizacje i wygląd okien, drzwi, kominów - mogą w niewielkim stopniu różnić się od prezentowanej wizualizacji budynku.

REKLAMA
Zamknij