👉 Walentynkowe rabaty ❤️

Koniec oferty za:

0dni

00godz.

00min.

00sek.

Sprawdź

Projekt domu Ofelia WAH1550

Dodano!
Dodano!

Warstwy

Wymiary wewnętrzne

Powierzchnie pomieszczeń

Numery pomieszczeń

Meble

Kolory pomieszczeń

Warstwy

Wymiary wewnętrzne

Powierzchnie pomieszczeń

Numery pomieszczeń

Meble

Kolory pomieszczeń

Rzut parteru

Powierzchnia (m²)
Tooltip
Powierzchnia pomieszczenia
to ta, z której faktycznie możesz korzystać – skosy i niskie części poddasza są liczone częściowo lub wcale.
  1. 100% dla wysokości powyżej 2,2 m,
  2. 50% dla wysokości 1,4–2,2 m,
  3. nie liczymy poniżej 1,4 m.

Powierzchnia podłogi
Liczymy po obrysie pomieszczenia, bez względu na jego wysokość/skosy. Jeśli nie ma skosów to powierzchnia podłogi i pomieszczenia jest taka sama.
pomieszczenia i podłogi
podłogi
1. Wiatrołap
3,67
2. Hall
18,25
3. Łazienka
2,81
4. Pokój
10,11
5. Pokój
9,63
6. Pokój dzienny + jadalnia
43,57
7. Kuchnia
10,23
8. Spiżarnia
2,01
9. Kotłownia
9,20
10. Garaż dwustanowiskowy
33,35
Razem
142,83
142,83
Powierzchnia (m²)
Tooltip
Powierzchnia pomieszczenia
to ta, z której faktycznie możesz korzystać – skosy i niskie części poddasza są liczone częściowo lub wcale.
  1. 100% dla wysokości powyżej 2,2 m,
  2. 50% dla wysokości 1,4–2,2 m,
  3. nie liczymy poniżej 1,4 m.

Powierzchnia podłogi
Liczymy po obrysie pomieszczenia, bez względu na jego wysokość/skosy. Jeśli nie ma skosów to powierzchnia podłogi i pomieszczenia jest taka sama.
pomieszczenia
podłogi
1. Korytarz
10,66
10,66
2. Garderoba
4,29
5,21
3. Pokój
17,61
18,49
4. Pokój
12,74
18,81
5. Łazienka
8,99
14,97
6. Pokój
12,97
14,22
7. Garderoba
2,51
4,90
8. Strych
18,98
43,99
Razem
88,75
131,25

    Usytuowanie na działce

    Czy ten projekt pasuje na
    Twoją działkę?

    Chętnie to sprawdzimy!

    Dowiedz się:

    • czy zmieści się na niej wybrany przez Ciebie dom
    • jakie parametry musi spełniać dom według miejscowego planu zagospodarowania lub warunków zabudowy (np. kąt nachylenia i typ dachu, liczba kondygnacji itp.
    • jakie inne projekty pasują na Twoją działkę – znajdziemy je dla Ciebie!

Pow. użytkowa

170,05 m²

Pokoje

5

Łazienki i WC

2

Garaż

2

Min. szer. i dł. działki

26,87 x 19,51 m

Kąt dachu

40°

Szacunkowy koszt SSZ

442 000 zł
Szacunkowy koszt budowy do stanu surowego zamkniętego (SSZ) metodą gospodarczą - większość prac wykonuje inwestor.

Konstrukcja

Murowana
więcej

Ofelia - WAH1550

ikona 170,05 m²
Powierzchnia użytkowa
ikona5
Pokoje (bez salonu)
ikona 2
Łazienki (z toaletami)
ikona 2
Liczba stanowisk garażowych
(z wiatą garażową)
ikona
Konstrukcja: Murowana

Cena promocyjna
ważna do 19.02.2026 r.

6 192 zł

Tooltip

Cena regularna obowiązywała od 05.02.2026 do 11.02.2026

Cena regularna: 7 740 zł
Najniższa cena z 30 dni przed obniżką: 5 912 zł
Gwarancja najniższej ceny Gwarancja najniższej ceny Tooltip

Projekt jest dostępny Tooltip

GRATIS 16% rabatu w SELSEY

GRATIS 10% rabatu do LEROY MERLIN

GRATIS Przydatne Extradodatki

GRATIS Poradnik Dach Solarny

100 dni na wymianę, 30 dni na zwrot

Darmowa dostawa - kurier, paczkomaty

Bezpłatne pozwolenie na zmiany

Dokumentacja zgodna z WT2021

Pokaż więcej (6)
Konsultant Masz pytania?
Zadzwoń
71 715 20 60

pon.-pt. 8-21, sob. 9-17

Szukasz wykonawcy godnego zaufania?
Zleć budowę w Extradom.pl!

  • Z góry znasz koszt budowy domu
  • Dom odbierasz zgodnie z ustalonym harmonogramem - nawet w 6 miesięcy
  • Zabezpiecza Cię jedna kompleksowa umowa z jednym wykonawcą
  • Otrzymujesz nawet 30-letnią gwarancję na konstrukcję domu
  • Oszczędzasz swój czas dzięki pewnej i kompletnej usłudze
Cena brutto stanu
deweloperskiego od
Tooltip
Cena brutto stanu deweloperskiego od 4 419 do 5 579 zł/m2.
Cena jest uzależniona m.in. od lokalizacji, wybranej technologii, kubatury budynku, skomplikowania projektu i ewentualnych zmian, na które zdecyduje się inwestor.
Cena za m2 powierzchni netto, czyli wszystkich pomieszczeń mierzonych na wysokości podłogi.
4 419 zł/m2
Dowiedz się więcej
Konsultant Masz pytania?
Zadzwoń
71 715 20 70

pon.-pt. 8-19

Parter - 142,83 m²

Wymiary wewnętrzne

Powierzchnie pomieszczeń

Zapytaj, co możesz zmienić

Oznaczenia na rzutach

Lodówka

Suszarka

Zmywarka

Suszarka nad pralką

Kuchenka

Pralka

Piekarnik

Szafa

Kocioł

Pompa ciepła

Kominek

Rekuperacja

Szerokość stolarki
Wysokość stolarki

Legenda Zobacz oznaczenia użyte na rzutach

Powierzchnia (m²)
Tooltip
Powierzchnia pomieszczenia
to ta, z której faktycznie możesz korzystać – skosy i niskie części poddasza są liczone częściowo lub wcale.
  1. 100% dla wysokości powyżej 2,2 m,
  2. 50% dla wysokości 1,4–2,2 m,
  3. nie liczymy poniżej 1,4 m.

Powierzchnia podłogi
Liczymy po obrysie pomieszczenia, bez względu na jego wysokość/skosy. Jeśli nie ma skosów to powierzchnia podłogi i pomieszczenia jest taka sama.
pomieszczenia i podłogi
podłogi
1. Wiatrołap
3,67
2. Hall
18,25
3. Łazienka
2,81
4. Pokój
10,11
5. Pokój
9,63
6. Pokój dzienny + jadalnia
43,57
7. Kuchnia
10,23
8. Spiżarnia
2,01
9. Kotłownia
9,20
10. Garaż dwustanowiskowy
33,35
Razem
142,83
142,83

Natychmiast, otrzymasz PDF-y
z rzutami wszystkich kondygnacji

Oznaczenia na rzutach

Lodówka

Suszarka

Zmywarka

Suszarka nad pralką

Kuchenka

Pralka

Piekarnik

Szafa

Kocioł

Pompa ciepła

Kominek

Rekuperacja

Szerokość stolarki
Wysokość stolarki

Legenda Zobacz oznaczenia użyte na rzutach

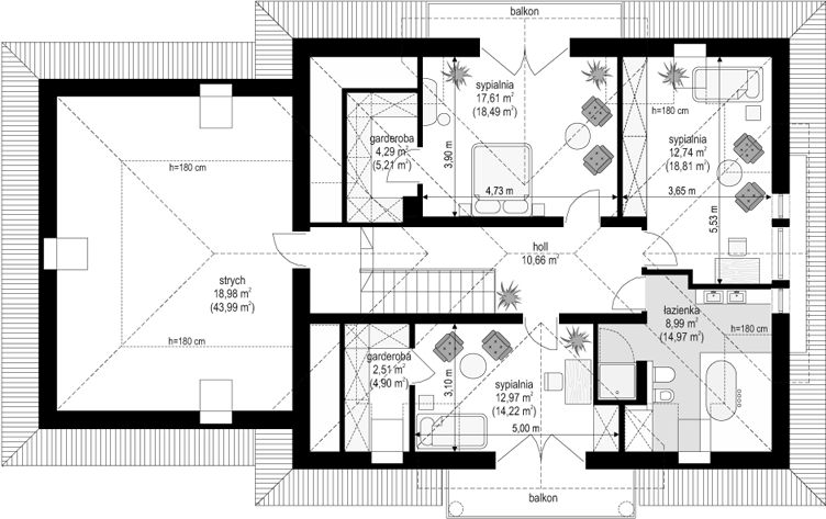
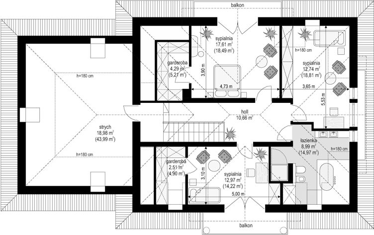
Poddasze - 88,75 m²

Wymiary wewnętrzne

Powierzchnie pomieszczeń

Zapytaj, co możesz zmienić

Oznaczenia na rzutach

Lodówka

Suszarka

Zmywarka

Suszarka nad pralką

Kuchenka

Pralka

Piekarnik

Szafa

Kocioł

Pompa ciepła

Kominek

Rekuperacja

Szerokość stolarki
Wysokość stolarki

Legenda Zobacz oznaczenia użyte na rzutach

Powierzchnia (m²)
Tooltip
Powierzchnia pomieszczenia
to ta, z której faktycznie możesz korzystać – skosy i niskie części poddasza są liczone częściowo lub wcale.
  1. 100% dla wysokości powyżej 2,2 m,
  2. 50% dla wysokości 1,4–2,2 m,
  3. nie liczymy poniżej 1,4 m.

Powierzchnia podłogi
Liczymy po obrysie pomieszczenia, bez względu na jego wysokość/skosy. Jeśli nie ma skosów to powierzchnia podłogi i pomieszczenia jest taka sama.
pomieszczenia
podłogi
1. Korytarz
10,66
10,66
2. Garderoba
4,29
5,21
3. Pokój
17,61
18,49
4. Pokój
12,74
18,81
5. Łazienka
8,99
14,97
6. Pokój
12,97
14,22
7. Garderoba
2,51
4,90
8. Strych
18,98
43,99
Razem
88,75
131,25

Natychmiast, otrzymasz PDF-y
z rzutami wszystkich kondygnacji

Oznaczenia na rzutach

Lodówka

Suszarka

Zmywarka

Suszarka nad pralką

Kuchenka

Pralka

Piekarnik

Szafa

Kocioł

Pompa ciepła

Kominek

Rekuperacja

Szerokość stolarki
Wysokość stolarki

Legenda Zobacz oznaczenia użyte na rzutach

Zamów rysunki szczegółowe

Zapoznaj się ze szczegółowymi rysunkami rzutów kondygnacji w PDF dla tego projektu.

Warianty projektu (3)

PROMOCJA
Projekt domu Ofelia 2
Ofelia 2
Dodano!
Dodano!
170,05 m²
5
2
1

5 800 zł

7 250 zł

Tooltip

Cena regularna

5 560 zł najniższa cena
Tooltip

Najniższa cena z 30 dni
przed obniżką

PROMOCJA
Projekt domu Ofelia 3
Ofelia 3
Dodano!
Dodano!
179,11 m²
5
3
1

5 800 zł

7 250 zł

Tooltip

Cena regularna

5 560 zł najniższa cena
Tooltip

Najniższa cena z 30 dni
przed obniżką

PROMOCJA
Projekt domu Ofelia wariant B
Ofelia wariant B
162,35 m²

6 192 zł

7 740 zł

Tooltip

Cena regularna

5 912 zł najniższa cena
Tooltip

Najniższa cena z 30 dni
przed obniżką

Podobne projekty (54)

Zobacz wszystkie
NIŻSZA CENA
Nowość
Zdjęcie 1 projektu NewHouse 765 KRZ1146
NewHouse 765
Dodano!
Dodano!
186,14 m²
5
3
2

5 581 zł

6 490 zł

Tooltip

Cena regularna

5 990 zł najniższa cena
Tooltip

Najniższa cena z 30 dni
przed obniżką

NIŻSZA CENA
Zdjęcie 1 projektu Amanda wariant B WAH1605
Amanda wariant B
Dodano!
Dodano!
192,89 m²
4
3
2

5 472 zł

6 840 zł

Tooltip

Cena regularna

5 232 zł najniższa cena
Tooltip

Najniższa cena z 30 dni
przed obniżką

NIŻSZA CENA
Zdjęcie 1 projektu BrickHouse 103 KRZ1081
BrickHouse 103
Dodano!
Dodano!
186,14 m²
5
3
2

5 581 zł

6 490 zł

Tooltip

Cena regularna

5 990 zł najniższa cena
Tooltip

Najniższa cena z 30 dni
przed obniżką

NIŻSZA CENA
Zdjęcie 1 projektu APS 181 LUA1229
APS 181
Dodano!
Dodano!
161,90 m²
5
3
2

4 849 zł

5 399 zł

Tooltip

Cena regularna

4 849 zł najniższa cena
Tooltip

Najniższa cena z 30 dni
przed obniżką

NIŻSZA CENA
Zdjęcie 1 projektu APS 119 LUA1137
APS 119
Dodano!
Dodano!
161,40 m²
4
3
2

4 749 zł

5 299 zł

Tooltip

Cena regularna

4 749 zł najniższa cena
Tooltip

Najniższa cena z 30 dni
przed obniżką

NIŻSZA CENA
Zdjęcie 1 projektu Romeo WAH1551
Romeo
Dodano!
Dodano!
161,51 m²
4
2
2

5 112 zł

6 390 zł

Tooltip

Cena regularna

4 872 zł najniższa cena
Tooltip

Najniższa cena z 30 dni
przed obniżką

NIŻSZA CENA
Zdjęcie 1 projektu APS 041 wariant 2 LUA1526
APS 041 wariant 2
Dodano!
Dodano!
173,30 m²
4
3
2

5 049 zł

5 599 zł

Tooltip

Cena regularna

5 049 zł najniższa cena
Tooltip

Najniższa cena z 30 dni
przed obniżką

NIŻSZA CENA
Zdjęcie 1 projektu Anielski Dwór (1094) KRD2032
Anielski Dwór (1094)
Dodano!
Dodano!
169,90 m²
4
3
2

4 740 zł

5 090 zł

Tooltip

Cena regularna

4 740 zł najniższa cena
Tooltip

Najniższa cena z 30 dni
przed obniżką

Metody i koszt budowy

Ten dom możesz budować metodą gospodarczą, systemem zleconym lub skorzystać z naszej oferty Projekt z Budową. Przy porównaniu weź pod uwagę nie tylko koszt, ale też różny zakres prac i standard wykonania.

Metoda gospodarcza

Najtańsza metoda - większość prac
budowlanych wykonuje inwestor

Stan surowy zamknięty (SSZ)

442 000 zł netto

Szacunkowy koszt materiałów na IV kwartał 2025
  • Prace ziemne i fundamenty

    76 000 zł
  • Konstrukcja, strop oraz dach

    301 000 zł
  • Stolarka okienna i drzwiowa

    65 000 zł
  • Instalacje

    nie obejmuje
  • Prace wykończeniowe

    nie obejmuje
  • Możesz budować etapami, pamiętając jednak o zmianie kosztów w czasie
  • Możesz rozpocząć budowę z częścią niezbędnych środków
  • Sam ustalasz harmonogram, koordynujesz budowę i zapewniasz materiały
Czy da się obniżyć koszty budowy?
Zobacz nasz film jak obniżyć koszt budowy

Projekt z Budową

Najszybsza i najwygodniejsza metoda -
całą budowę domu realizuje jedna firma

Stan deweloperski
Gwarancja stałego kosztu budowy

Gwarancja stałego
kosztu budowy

  • Prace ziemne i fundamenty
  • Konstrukcja, strop oraz dach
  • Stolarka okienna i drzwiowa
  • Instalacje  
    Tooltip

    Obejmuje wykonanie instalacji:

    • wodno-kanalizacyjnej
    • centralnego ogrzewania
    • gazowej
    • elektrycznej
  • Prace wykończeniowe  
    Tooltip

    Prace wykończeniowe obejmują:

    • sufity i ściany wewnętrzne
    • tynki i okładziny ścian wewnętrznych
    • wylewki i posadzkę
    • ocieplenie ścian zewnętrznych i elewację

Budowa
nawet w
6mies.

  • Kompleksowa umowa i znany z góry koszt budowy
  • Logistyka, organizacja budowy i zakupy po stronie firmy budowlanej
  • Formalności i dokumentacje po stronie firmy budowlanej
  • Różne technologie budowy dopasowane do projektu i budżetu
Szczegóły i dostępne technologie
icon

Darmowe

Zestawienie materiałów budowlanych

icon

Polecamy

Kosztorys

Zawiera zestawienie wszystkich potrzebnych materiałów wraz z ich cenami, uwzględnia koszty sprzętu i transportu. Z kosztorysem:

  • poznasz całkowite koszty budowy
  • zaplanujesz prace na budowie
  • łatwiej ocenisz konkurencyjność ofert podwykonawców
  • otrzymasz dokument wymagany w procesie kredytowym

Elewacje

Frontowa
Tylna
Lewa
Prawa

Przekroje

Przekrój pionowy

Usytuowanie na działce

Czy ten projekt pasuje na
Twoją działkę?

Chętnie to sprawdzimy!

Czy ten projekt pasuje na
Twoją działkę?

Chętnie to sprawdzimy!

Dowiedz się:

  • czy zmieści się na niej wybrany przez Ciebie dom
  • jakie parametry musi spełniać dom według miejscowego planu zagospodarowania lub warunków zabudowy (np. kąt nachylenia i typ dachu, liczba kondygnacji itp.
  • jakie inne projekty pasują na Twoją działkę – znajdziemy je dla Ciebie!
Autor: MG Projekt

Dane techniczne projektu

Powierzchnie i wymiary Powierzchnie i wymiary

Powierzchnia użytkowa
Tooltip
Suma powierzchni wszystkich pomieszczeń mieszkalnych, pomniejszona o pow. garażu, kotłowni, strychu, piwnicy. Jest liczona w 100% dla pomieszczeń o wysokości powyżej 2,2 m, w 50% dla pomieszczeń o wys. 2,2-1,4 m i niewliczana dla niższych niż 1,4 m.

170,05 m²

Powierzchnia zabudowy
Tooltip
Powierzchnia zajmowana przez część na- oraz nadziemną budynku liczona, jako rzut pionowy budynku na działkę.

191,28 m²

Powierzchnia całkowita
Tooltip
Całkowita powierzchnia wszystkich kondygnacji budynku łącznie z elementami nośnymi, takimi jak ściany zewnętrzne (z ociepleniem), słupy, tarasy, itp.

280,23 m²

Kubatura brutto
Tooltip
Zazwyczaj jest to suma kubatur (objętości) wszystkich pomieszczeń budynku, liczonych po zewnętrznym obrysie murów (z ociepleniem).

906 m³

Powierzchnia dachu

290 m²

Kąt nachylenia dachu
Tooltip
Nachylenie połaci dachu głównego podawane w stopniach. Uwaga! W niektórych projektach występuje więcej niż jedno nachylenie dachu.

40°

Wysokość budynku
Tooltip
Wysokość liczona od części budynku położonej najniżej przy powierzchni terenu do najwyższego punktu dachu (kalenicy) z wyłączeniem kominów.

8,80 m

Szerokość elewacji

18,99 m

Długość elewacji

11,36 m

Min. szerokość działki
Tooltip
Najmniejsza możliwa szerokość działki niezbędna do wybudowania wybranego domu. Składa się z szerokości elewacji domu powiększonej z obu stron o 3 m dla ściany bez otworów drzwiowych/okiennych lub 4 m, dla ściany z otworami.

26,87 m

Min. długość działki
Tooltip
Najmniejsza możliwa długość działki niezbędna do wybudowania wybranego domu. Składa się z długości elewacji domu powiększonej z obu stron o 3 m dla ściany bez otworów drzwiowych/okiennych lub 4 m, dla ściany z otworami.

19,51 m

Energooszczędność Energooszczędność

Oze Czym jest OZE (Odnawialne Źródło Energii)?
Ep
Tooltip
Energia pierwotna określa ilość energii nieodnawialnej potrzebnej w ciągu roku do ogrzewania czy też ogrzania wody użytkowej z uwzględnieniem kosztów produkcji i transportu surowców energetycznych.

66,70 kWh/(m²rok)

Ek
Tooltip
Energia końcowa określa zapotrzebowanie budynku na energię niezbędną do uzyskania założonych parametrów, jak np. temperatura wewnątrz budynku.

54,90 kWh/(m²rok)

Euco
Tooltip
Energia użytkowa potrzebna do ogrzewania i wentylacji. Im parametr jest niższy tym budynek bardziej energooszczędny.

44,90 kWh/(m²rok)

Ogrzewanie główne

Gazowe - szczegóły

Dodatkowo istnieje możliwość zamówienia projektu z

Aneks na paliwo stałe

Powietrzna pompa ciepła

Gruntowa pompa ciepła

Interesuje Cię inne źródło ogrzewania? Wyślij zapytanie lub zadzwoń do doradcy

Wentylacja

Grawitacyjna - szczegóły

Warunki techniczne

Projekt zgody z WT 2021

Technologia i konstrukcja Technologia i konstrukcja

Konstrukcja

Murowana

PROJEKT Z BUDOWĄ Istnieje możliwość zaadaptowania tego projektu do technologii prefabrykowanej/modułowej i budowy nawet w 6 miesięcy ze stałym kosztem budowy

Dowiedz się więcej »
Opis szczegółowy

Fundamenty: betonowe ławy i ściany fundamentowe z bloczków betonowych. Ściany zewnętrzne: ściany murowane - pustaki porotherm 25 + styropian + tynk cienkowarstwowy. Strop: Teriva. Elewacje: tynk cienkowarstwowy na styropianie. Pokrycie dachu: dachówka ceramiczna. Nachylenie dachu: 40 stopni.

Strop

Gęstożebrowy

Reklama
Okna i drzwi tarasowe

Nowoczesne okna PVC i aluminiowe WIŚNIOWSKI – doskonała izolacja, elegancki design i niezrównana trwałość.

Wiśniowski
Sprawdź parametry!
Okna dachowe

Oferujemy bezpłatne konsultacje w zakresie wszystkich rozwiązań VELUX. Wyceny, porady dotyczące doboru okien i rolet zewnętrznych - sprawdź!

Velux
Sprawdź szczegóły
Płytki ceramiczne i gresy

Od małych formatów po wielkoformatowe gresy. Marmur, beton, drewno, kamień, lastryko czy cegiełki zamówisz wygodnie online z szybką dostawą.

Ceramzet
Sprawdź ofertę
Drzwi

Ciepłe drzwi WIŚNIOWSKI z kontrolą dostępu. Szeroka gama wzorów i kolorów.

Wiśniowski
Wybierz najlepsze
Bramy garażowe

Automatyczne bramy garażowe segmentowe i uchylne WIŚNIOWSKI na wymiar i z systemem smart home w standardzie.

Wiśniowski
Sprawdź ofertę!
Armatura i ceramika łazienkowa

Topowi producenci. Baterie łazienkowe, zestawy natynkowe i podtynkowe, umywalki, wanny, miski WC oraz kabiny zamówisz kompleksowo online.

Ceramzet II
Dowiedz się więcej
Rekuperacja

Alnor - kompletny system rekuperacji. Dobierz idealne rozwiązanie dla Twojego domu!

Alnor
Dobierz rekuperator
Dach

Producent stalowych pokryć dachowych i systemów elewacyjnych. Precyzja wykonania, trwałość na lata i szybki montaż doceniany przez dekarzy. Postaw na solidny dach Budmat.

Budmat
Sprawdź ofertę
Ogrodzenie

Nowoczesne stalowe ogrodzenia Budmat - estetyka, bezpieczeństwo i trwałość na lata. Systemowe rozwiązania na wymiar, dopasowane do każdego domu.

Budmat
Sprawdź ofertę

Gotowe domy modułowe (122)

Zobacz wszystkie
Stan deweloperski nawet w 6 miesięcy Gwarancja stałej ceny
Zdjęcie 1 projektu Dom szkieletowy Viking Smart 220 HHT1032
Pow. użytkowa
163,86 m²
Pokoje
4
1 095 606 zł 6 686 zł/m²
Zdjęcie 1 projektu Dom prefabrykowany P.6 HPK1005
Pow. użytkowa
176,69 m²
Pokoje
4
916 600 zł 5 188 zł/m²
Zdjęcie 1 projektu Dom prefabrykowany DH174 HDH1009
Pow. użytkowa
162,97 m²
Pokoje
4
1 026 000 zł 5 796 zł/m²
Zdjęcie 1 projektu Dom prefabrykowany P.4 bez okapu HPK1003
Pow. użytkowa
162,18 m²
Pokoje
5
701 000 zł 4 322 zł/m²
Zdjęcie 1 projektu Dom prefabrykowany P.4 z okapem HPK1014
Pow. użytkowa
162,18 m²
Pokoje
5
710 500 zł 4 381 zł/m²
Zdjęcie 1 projektu Dom prefabrykowany P.2 HPK1001
Pow. użytkowa
159,18 m²
Pokoje
5
832 200 zł 5 228 zł/m²
Zdjęcie 1 projektu Dom prefabrykowany Stodoła 180B HFX1028
Pow. użytkowa
185,90 m²
Pokoje
5
659 000 zł 3 545 zł/m²
Zdjęcie 1 projektu Dom prefabrykowany Stodoła 180C HFX1029
Pow. użytkowa
186,60 m²
Pokoje
5
659 000 zł 3 532 zł/m²

Dodatki do projektu

Dodatki możesz zamówić w koszyku lub telefonicznie u naszego Doradcy.

Czym jest OZE (Odnawialne Źródło Energii)?

Ikona

Bestseller

Kosztorys

600 zł

Ikona

Bestseller

Dodatkowy egzemplarz projektu

650 zł

Ikona

Bestseller

Elektroniczna wersja projektu

600 zł

Ikona

Ogrzewanie podłogowe

550 zł

Ikona

Oze

Aneks na paliwo stałe

750 zł

Ikona

Oze

Powietrzna pompa ciepła

750 zł

Pokaż więcej (8)

Opis projektu domu
Ofelia

Projekt domu Ofelia jest doskonałym rozwiązaniem dla osób posiadających średniej szerokości działkę. Dom posiada typową bryłę, więc jego realizacja jest łatwa. Uwzględniony w nim wykusz nadaje konstrukcji wyjątkowego charakteru. Projekt należy do kategorii domów z kalenicą skierowaną równolegle do drogi, co jest bardzo istotne, gdy wymagają tego warunki zabudowy. Dom został stworzony do zabudowy wolnostojącej. W projekcie zaproponowano garaż dwustanowiskowy w linii budynku. Jest to również doskonała propozycja dla osób szukających domu z dachem kopertowym, który doskonale chroni budynek przed niekorzystną pogodą. Projekt Ofelia to dom parterowy z poddaszem użytkowym, dzięki czemu możemy cieszyć się sporym metrażem nawet na stosunkowo niedużej działce. Zwolenników przestronnych przestrzeni z pewnością ucieszy przewidziana w projekcie część dzienna. Kuchnia otwarta na salon to doskonałe miejsce dla osób lubiących połączenie funkcjonalności z atrakcyjnym i nowoczesnym wyglądem. Zwolenników praktycznych rozwiązań niewątpliwie ucieszy fakt, iż przewidziano także miejsce na spiżarkę. W domu przewidziano jadalnię połączoną z salonem. Takie rozwiązanie daje wiele możliwości aranżacji strefy dziennej. Dodatkowo w salonie przewidziano kominek, nadający wnętrzu niepowtarzalny klimat. W domu zostały przewidziane dwie komfortowe łazienki- po jednej na każdej kondygnacji. W domu znajduje się pięć wygodnych sypialni, co sprawia iż jest on doskonałym wyborem dla 5-7 osobowej rodziny. Przestrzeń można wykorzystać także jako pokój dla gości lub gabinet. Taras daje możliwość kontaktu z przyrodą i sprzyja wypoczynkowi. Dom zaprojektowano w technologii murowanej. Ofelia nawiązuje do stylu tradycyjnego, dlatego będzie prezentować się doskonale niezależnie od okolicy.
Czytaj więcej

Polecani producenci

Kompletne systemy rekuperacji

tło producenta

Alnor

Dowiedz się więcej

Prefabrykowane konstrukcje dachowe

tło producenta

WIĄZAR POLSKA

Zobacz więcej

Sprawdź nową generację okien GREENVIEW

tło producenta

FAKRO

Sprawdź nową generację okien GREENVIEW

Styropian, tynki, farby, kleje

tło producenta

Termo Organika

Poznaj super jakość

Okna, drzwi, osłony przeciwsłoneczne

tło producenta

Aluprof

Sprawdź ofertę
Zobacz więcej

Społeczność projektu domu
Ofelia w budowie

Dołącz do społeczności osób, które budują ten dom lub są zainteresowane jego budową.

  • Oglądaj zdjęcia z budowy
  • Zadawaj pytania
  • Wymieniaj się doświadczeniami

Opinie o projekcie domu Ofelia

5

Na podstawie 2 recenzji

Wspaniały!
50%
Bardzo dobry
50%
Średni
0%
Słaby
0%
Bardzo słaby
0%

Wywiady mieszkańców domu Ofelia

Zdjęcie profilowe użytkownika kuki25 kuki25

Zdecydowaliśmy się na projekt Ofelia WAH1550, ponieważ klasyczny wygląd bryły wyjątkowo przypadł nam do gustu, a przewidziany w nim układ pomieszczeń został dobrze przemyślany. Dodatkowo, uwzględnione rozwiązania pozwalały na wprowadzenie drobnych modernizacji, tak abyśmy mogli dostosować projekt do wszystkich naszych oczekiwań. Budowa odbyła się sprawnie i bez większych problemów. Jedyna nieścisłość, na którą natrafiliśmy w projekcie, dotyczyła spisu stolarki na więźbę dachową. Okazało się, że dokumentacja przewiduje użycie większej ilości belek na wykonanie murłat, niż faktycznie było to potrzebne, a zakup nieużytych materiałów niestety wiązał się z kosztami. Poza tym, realizacja przebiegła zgodnie z planem. Budowę rozpoczęliśmy w 2013 roku, a w następnym budynek stanął już w stanie surowym zamkniętym (z dachem i stolarką otworową). W maju 2014 r. zaczęliśmy wykonywanie prac wykończeniowych, które trwały do lutego 2015 r.Ściany postawiliśmy przy użyciu gazobetonowych bloczków Suporex 24 cm, a dach pokryliśmy dachówką ceramiczną. Izolację zewnętrzną tworzy 15 cm warstwa styropianu, zaś poddasze ociepliliśmy wełną mineralną o łącznej grubości 27 cm. W domu ogrzewamy za pomocą pieca na paliwo stałe, w którym palimy drewnem oraz ekogroszkiem. Podczas większych mrozów, miesięczny koszt zużycia opału wynosi ok. 700-800 zł., łącznie z ogrzewaniem wody użytkowej.Dolna kondygnacja została podniesiona o wysokość jednego pustaka. Dzięki temu, pod sufitem mogliśmy poprowadzić kanały instalacji systemu rekuperacji i zasłonić je płytą gipsowo-kartonową, przy jednoczesnym zachowaniu wysokości pomieszczeń na parterze. Projekt Ofelia WAH1550 przewiduje wykonanie w części dziennej dwóch słupów podtrzymujących, jednak my postanowiliśmy z nich zrezygnować. Zamiast tych elementów zastosowaliśmy dwa podciągi, które równie dobrze utrzymują konstrukcję stropu, a ponadto nie zabierają przestrzeni. Postanowiliśmy także nie robić spiżarki - jej kosztem powiększyliśmy kuchnię oraz wiatrołap, który oryginalnie był dosyć niewielki. W układzie ścianek działowych wprowadziliśmy kosmetyczne poprawki - wyprostowaliśmy je tak, aby zminimalizować wszelkie załamania.Świetnym pomysłem było również podniesienie ścianki kolankowej. Dzięki temu pomieszczenia na poddaszu stały się większe oraz bardziej ustawne. Dodatkowo, wyższa powierzchnia nad garażem dała możliwość w pełni użytkowego jej zagospodarowania. Tą przestrzeń wykorzystaliśmy na zrobienie dużej sypialni z garderobą oraz łazienki.Jestem zadowolony z wyboru projektu domu parterowego z poddaszem użytkowym Ofelia WAH1550. Najbardziej w nowym domu podoba mi się otwarta i bardzo przestronna powierzchnia parteru. Pozdrawiam.

Zdjęcie profilowe użytkownika dar66 dar66

Projekt domu Ofelia WAH1550 przede wszystkim ujął nas swoim wyglądem zewnętrznym - ukazany na rysunkach budynek doskonale się prezentuje i tym samym wyjątkowo przypadł nam do gustu. Wpływ na decyzję o jego wyborze miał również uwzględniony układ wewnętrzny, który został funkcjonalnie zaplanowany i przewiduje praktyczne rozwiązania. Jednym z nich jest fakt, iż wejście do kotłowni nie jest możliwe bezpośrednio z części mieszkalnej, a z garażu co jest istotne przy ogrzewaniu paliwem stałym. Oprócz tego spodobała nam się przestronność pomieszczeń.Cała inwestycja przebiegła bardzo sprawnie. Projekt Ofelia WAH1550 zakupiliśmy w marcu 2014 r. i niedługo po tym przystąpiliśmy do formalności związanych z uzyskaniem pozwolenia na budowę. Na szczęście nie trwało to długo i już wkrótce mogliśmy rozpocząć pierwsze prace. Do nowego w pełni wykończonego domu wprowadziliśmy się w lipcu 2016 r. Postanowiłem nie oszczędzać na materiałach i ociepleniu i tym samym starałem się korzystać jedynie z produktów odznaczających się wysoką jakością. Co prawda, koszty naszej budowy nieco przekroczyły kwotę oszacowaną przez architekta, aczkolwiek dom jest inwestycją na lata i liczyłem się, że jest to jednak większy wydatek. Ściany wymurowaliśmy z bloczków Eko Silikatowych. Dobrze zaizolowaliśmy fundamenty, a bryłę z zewnątrz pokryliśmy 18 cm warstwą styropianu. Postanowiliśmy zmienić zalecaną w projekcie metodę wykonania stropu i w naszym przypadku tworzy go w całości wylewana betonem konstrukcja. Dach pokryliśmy dachówką. Dom i wodę użytkową ogrzewamy za pomocą pieca na paliwo stałe. Póki co trudno jest mi określić koszty tego rozwiązania, ponieważ w kotle palimy opałem które pozostało nam z wcześniejszego mieszkania. Jestem jednak zadowolony z ekonomiczności budynku - dosyć szybko się nagrzewa i dobrze utrzymuje temperaturę. Wprawdzie, ze względu na duży metraż domu zużycie opału nie jest do końca niskie, jednak uważam, że jak na tak dużą kubaturę wygląda to całkiem korzystnie. Myślę jednak, że w niedługim czasie zdecydujemy się na zamianę tradycyjnego kotła na piec na ekogroszek lub pellet. Układ pomieszczeń przewidziany w projekcie domu Ofelia WAH1550 od początku przypadł nam do gustu, a wprowadzenie w nim kilku modyfikacji jeszcze bardziej dopasowało go do naszych oczekiwań. Pokój przy kotłowni jest oryginalnie dosyć mały, a w dodatku nie był nam właściwie potrzebny, dlatego też postanowiliśmy zrezygnować z niego na rzecz powiększenia salonu. Jest on teraz wyjątkowo pokaźny, tym bardziej że przyłączyliśmy do niego powierzchnię wnęki przeznaczonej na taras. Oprócz tego, nieco powiększyliśmy kotłownię kosztem kilku centymetrów garażu, a także zamiast jednego okna zrobiliśmy w niej bezpośrednie wyjście na zewnątrz, co znacznie ułatwia wnoszenie opału. Nie wykonywaliśmy garderób w sypialniach, dzięki czemu uzyskaliśmy większe pokoje. Ponadto, w dachu nad pomieszczeniem na półpiętrze zrobiliśmy lukarnę, więc teraz wydaje się on znacznie bardziej przestronne, a budynek prezentuje się jeszcze lepiej. Innych zmian nie wprowadzałem, aczkolwiek obecnie zastanowiłbym się nad innym rozwiązaniem dotyczącym schodów, gdyż ich oryginalny układ nieco marnuje powierzchnię korytarza. Jesteśmy 4-osobową rodziną, a metraż naszego domu jest dla nas w pełni komfortowy. Ja z żoną użytkujemy pomieszczenia nad garażem, które przeznaczyliśmy na zrobienie prywatnej strefy małżeńskiej z sypialnią i garderobą. Dwoje naszych dzieci ma swoje osobne pokoje na poddaszu. Z kolei pokój na dole służy mi jako gabinet do pracy. Uważam, że taka powierzchnia spokojnie usatysfakcjonowałaby większą ilość domowników. Na górze został nam wolny pokój, a dodatkowo wszystkie na tym poziomie są na tyle duże, że jeśli ktoś miałby taką potrzebę poprzez lekką modyfikację ścianek działowych można by uzyskać jeszcze jeden. Pozdrawiam.

Zdjęcie profilowe użytkownika Wojtek_332 Wojtek_332

Oglądając propozycje różnych budynków, natrafiliśmy na projekt domu Ofelia WAH1550, który od razu wyjątkowo przypadł nam do gustu. Dom ujął nas przede wszystkim swoim niezwykle atrakcyjnym wyglądem zewnętrznym. Od zawsze bardzo podobały mi się konstrukcje w dokładnie takiej formie, a ponadto Ofelia jest doskonałym połączeniem klasycznego polskiego dworku z elementami stylu nowoczesnego. Po przeanalizowaniu wnętrza stwierdziliśmy, że układ pomieszczeń jest świetnie dopasowany do naszych oczekiwań. Został funkcjonalnie przemyślany, a dodatkowo od początku zależało nam na otwartej i w pełni przestronnej przestrzeni na parterze Jestem zadowolony z przebiegu inwestycji. Współpracujący z nami fachowcy doskonale poradzili sobie na każdym etapie, a wszystkie prace postępowały sprawnie i naprawdę szybko. Budowę rozpoczęliśmy w sierpniu 2015 r. i już w grudniu budynek stanął w stanie surowym zamkniętym. Następnie ruszyliśmy z wykończeniami, a do nowego domu wprowadziliśmy się w sierpniu 2016 r. Cała realizacja zajęła nam więc ok. jednego roku. Użyte przez nas materiały są zgodne z wytycznymi zawartymi w projekcie domu Ofelia WAH1550. Do postawienia ścian użyliśmy więc ceramicznych pustaków Porotherm 24 cm, a bryłę z zewnątrz ociepliliśmy grafitowym, frezowanym styropianem firmy Genderka o grubości 25 cm. Strop wykonaliśmy systemem Teriva, a dach został pokryty dachówką karpiówką. Przy użyciu powyższych materiałów, koszty budowy do stanu surowego zamkniętego wyniosły ok. 250 tys. zł. Projekt domu z garażem dwustanowiskowym Ofelia WAH1550 od początku w całości bardzo nam się spodobał, a w celu pełnego dostosowania go do wszystkich naszych preferencji, wprowadziliśmy w nim kilka zmian. Zamiast trzech słupów konstrukcyjnych przy jadalni, postanowiłem zrobić podciąg w stropie. Uważam, że był to dobry pomysł, jednak podciąg wyszedł nieco za wysoki i obecnie zastanowiłbym się nad lepszym rozwiązaniem tej kwestii. Zrezygnowałem z małego pokoju przy salonie na rzecz powiększenia strefy dziennej. Wejście do frontowego gabinetu przeniosłem za schody - w miejscu wnęki na szafę przy drzwiach do garażu. Z kolei prowadzący do niego pierwotnie korytarzyk przyłączyłem do łazienki. Świetnym pomysłem było również podniesienie ścianki kolankowej. Dzięki temu pokoje na poddaszu stały się przestronniejsze, a strych sporo zyskał na powierzchni Obecnie przestrzeń nad garażem ma spore rozmiary i przeznaczyliśmy ją na zrobienie siłowni i kina domowego. Wybór projektu domu parterowego z poddaszem użytkowym Ofelia WAH1550 okazał się dla nas strzałem w dziesiątkę. Połączenie salonu, jadalni i kuchni świetnie się sprawdza - otwarta część dzienna nadaje wnętrzu niesamowitej przestronności. Nowy dom w całości bardzo nam się podoba i w dalszym ciągu dostrzegamy w nim same plusy. Pozdrawiam.

ASYSTENT WYBORU PROJEKTU

Szukasz idealnego projektu? Znajdziemy go dla Ciebie!

Doradca na podstawie Twoich wskazówek przygotuje spersonalizowaną listę projektów

Graficzne opracowanie rzutów poglądowych widocznych na karcie projektu zostało wykonane przez Extradom.pl. Prezentowane przez Extradom.pl wizualizacje wykonane zostały przez autora projektu i należy poczytywać je jedynie za przykład i propozycję wykończenia, wizję architektoniczną autora projektu. Ostateczne wykończenie budynku może nastąpić na wiele sposobów. Szczegółowe rozwiązania zastosowane w oferowanej dokumentacji - w tym również ilość, lokalizacje i wygląd okien, drzwi, kominów - mogą w niewielkim stopniu różnić się od prezentowanej wizualizacji budynku.

Extradom.pl Spółka z ograniczoną odpowiedzialnością z siedzibą przy ul. Jaworskiej 13, 53-612 Wrocław, wpisana do rejestru przedsiębiorców Krajowego Rejestru Sądowego przez Sąd Rejonowy dla Wrocławia-Fabrycznej we Wrocławiu, VI Wydział Gospodarczy Krajowego Rejestru Sądowego do pod numerem KRS 0000648746, numer NIP 895-17-18-333, o kapitale zakładowym 708 150,00 zł uprzejmie informuje, iż poprzez serwis Extradom.pl umożliwia m.in. zapoznanie się przez konsumentów z ofertą handlową Partnerów Extradom.pl, którzy stosują metody budowy domów przy wykorzystaniu różnego rodzaju technologie prefabrykacji bądź modułowe (tzw. „Gotowe domy”).

Extradom.pl nie prowadzi jednakże sprzedaży ani nie oferuje usług polegających na doradztwie finansowym, prawnym ani podatkowym w zakresie inwestycji realizowanych w technologiach tzw. „Gotowych domów”. Informacje prezentowane w serwisie Extradom.pl dotyczące Partnerów Extradom.pl oferujących realizację inwestycji w technologiach „Gotowych domów” lub podobnych mają charakter informacyjny i reklamowy.

Prezentowane w serwisie Extradom.pl informacje dotyczące stosowanych przez Partnerów metod budowy domów w technologii prefabrykacji bądź modułowej pochodzą od Partnerów Extradom.pl.

Extradom.pl sp. z o.o. jedynie umożliwia nawiązanie kontaktu przez Użytkownika z Partnerem Extradom.pl stosującym tego rodzaju technologie budowy domów i nie jest stroną umowy o roboty budowlane zawieranej przez Użytkownika Extradom.pl z Partnerem Extradom.pl.

REKLAMA
Zamknij