Od 4 do 6 kwietnia nasi konsultanci są niedostępni 🌷 Złóż zamówienie przez stronę!

Projekt domu New House 18 KRZ1012

Zapisz Dodano!
Porównaj Dodano!
ikona Pobierz i drukuj

Warstwy

Rzut parteru

Powierzchnia (m²)
Tooltip
Powierzchnia pomieszczenia
to ta, z której faktycznie możesz korzystać – skosy i niskie części poddasza są liczone częściowo lub wcale.
  1. 100% dla wysokości powyżej 2,2 m,
  2. 50% dla wysokości 1,4–2,2 m,
  3. nie liczymy poniżej 1,4 m.

Powierzchnia podłogi
Liczymy po obrysie pomieszczenia, bez względu na jego wysokość/skosy. Jeśli nie ma skosów to powierzchnia podłogi i pomieszczenia jest taka sama.
pomieszczenia i podłogi
podłogi
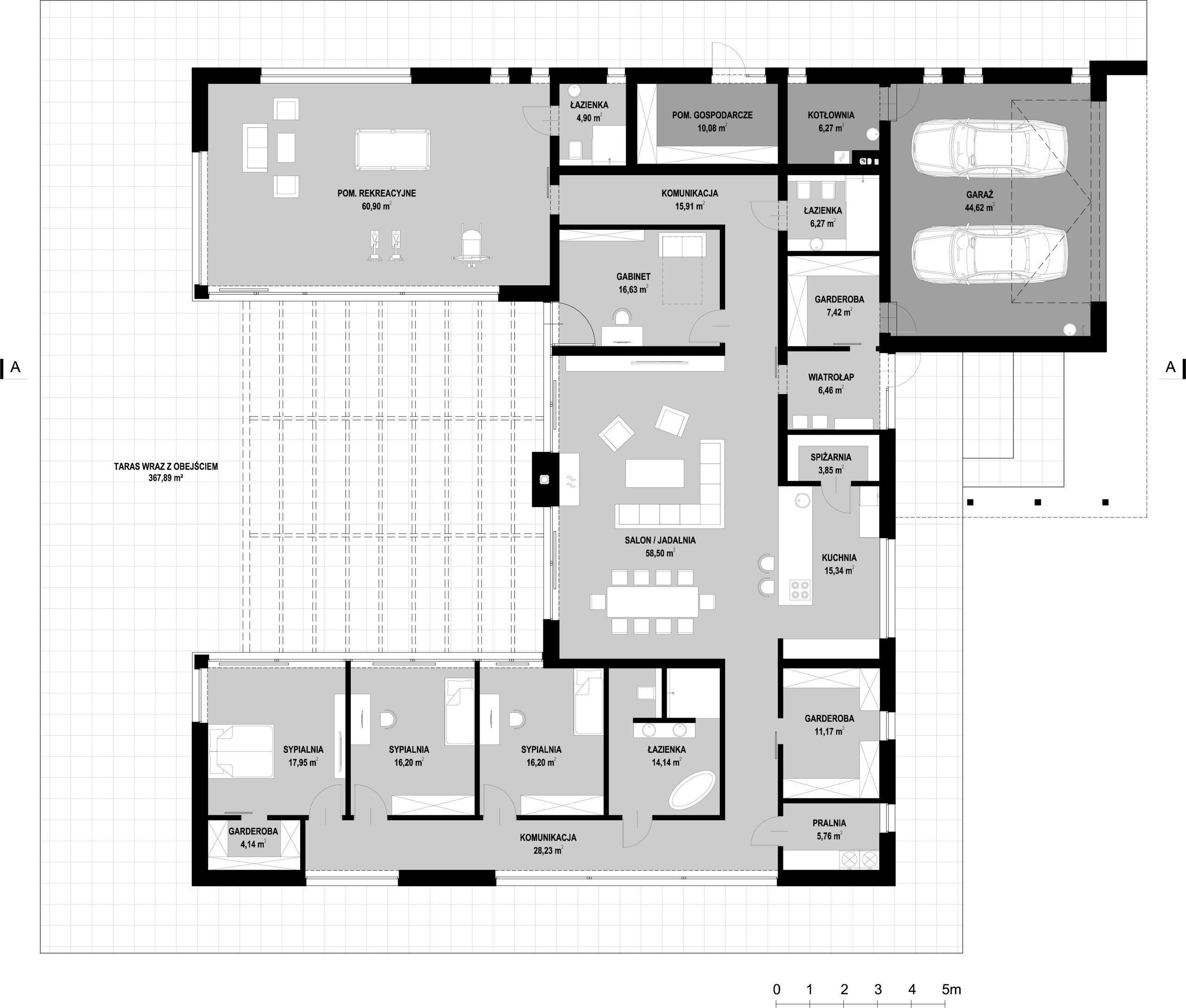
1. Wiatrołap
6,46
2. Garderoba
7,42
3. Spiżarnia
3,85
4. Kuchnia
15,34
5. Garderoba
11,17
6. Pomieszczenie gospodarcze
5,76
7. Korytarz
28,23
8. Garderoba
4,14
9. Pokój
17,95
10. Pokój
16,20
11. Pokój
16,20
12. Łazienka
14,14
13. Pokój dzienny + jadalnia
58,50
14. Pokój
16,63
15. Korytarz
15,91
16. Łazienka
6,27
17. Łazienka
4,90
18. Pokój
60,90
19. Pomieszczenie gospodarcze
10,08
20. Kotłownia
6,27
21. Garaż dwustanowiskowy
44,62
Razem
370,94
370,94
22. Taras
367,89

    Usytuowanie na działce

    Czy ten projekt pasuje na
    Twoją działkę?

    Chętnie to sprawdzimy!

    Dowiedz się:

    • czy zmieści się na niej wybrany przez Ciebie dom
    • jakie parametry musi spełniać dom według miejscowego planu zagospodarowania lub warunków zabudowy (np. kąt nachylenia i typ dachu, liczba kondygnacji itp.
    • jakie inne projekty pasują na Twoją działkę – znajdziemy je dla Ciebie!

Pow. użytkowa

275,72 m²

Pokoje

5

Łazienki i WC

3

Garaż

2

Min. szer. i dł. działki

37,05 x 32,20 m

Kąt dachu

25°

Konstrukcja

Murowana
więcej

New House 18 - KRZ1012

ikona 275,72 m²
Powierzchnia użytkowa
ikona5
Pokoje (bez salonu)
ikona 3
Łazienki (z toaletami)
ikona 2
Liczba stanowisk garażowych
(z wiatą garażową)
ikona
Konstrukcja: Murowana

Projekt został
wycofany z oferty

W razie pytań prosimy o kontakt
z Centrum Obsługi Klienta
Konsultant
71 715 20 60

pon.-pt. 8-21, sob. 9-17

Parter - 370,94 m²

Parter projektu New House 18

Zapytaj, co możesz zmienić

Powierzchnia (m²)
Tooltip
Powierzchnia pomieszczenia
to ta, z której faktycznie możesz korzystać – skosy i niskie części poddasza są liczone częściowo lub wcale.
  1. 100% dla wysokości powyżej 2,2 m,
  2. 50% dla wysokości 1,4–2,2 m,
  3. nie liczymy poniżej 1,4 m.

Powierzchnia podłogi
Liczymy po obrysie pomieszczenia, bez względu na jego wysokość/skosy. Jeśli nie ma skosów to powierzchnia podłogi i pomieszczenia jest taka sama.
pomieszczenia i podłogi
podłogi
1. Wiatrołap
6,46
2. Garderoba
7,42
3. Spiżarnia
3,85
4. Kuchnia
15,34
5. Garderoba
11,17
6. Pomieszczenie gospodarcze
5,76
7. Korytarz
28,23
8. Garderoba
4,14
9. Pokój
17,95
10. Pokój
16,20
11. Pokój
16,20
12. Łazienka
14,14
13. Pokój dzienny + jadalnia
58,50
14. Pokój
16,63
15. Korytarz
15,91
16. Łazienka
6,27
17. Łazienka
4,90
18. Pokój
60,90
19. Pomieszczenie gospodarcze
10,08
20. Kotłownia
6,27
21. Garaż dwustanowiskowy
44,62
Razem
370,94
370,94
22. Taras
367,89

Podobne projekty (18)

Zobacz wszystkie
PREZENT 🎁
Nowość
Zdjęcie 1 projektu LK&1866 LKP1009
LK&1866
Dodano!
Dodano!
271,57 m²
4
2
3

22 140 zł

PREZENT 🎁
Nowość
Zdjęcie 1 projektu LK&1863 LKP1003
LK&1863
Dodano!
Dodano!
263,28 m²
5
3
2

14 670 zł

PREZENT 🎁
Nowość
Zdjęcie 1 projektu LK&1811 LKP1040
LK&1811
Dodano!
Dodano!
306,22 m²
4
4
3

30 750 zł

PREZENT 🎁
Zdjęcie 1 projektu Dom Harmonia POZ1003
Dom Harmonia
Dodano!
Dodano!
321,17 m²
4
3
3

27 500 zł

PREZENT 🎁
Zdjęcie 1 projektu Dom Vectoria II POZ1014
Dom Vectoria II
Dodano!
Dodano!
268,78 m²
5
3
3

27 300 zł

PREZENT 🎁
Zdjęcie 1 projektu Dom Vitra POZ1012
Dom Vitra
Dodano!
Dodano!
253,70 m²
4
3
3

26 400 zł

PREZENT 🎁
Zdjęcie 1 projektu Dom Vectoria POZ1013
Dom Vectoria
Dodano!
Dodano!
232,31 m²
4
3
2

25 500 zł

PREZENT 🎁
Zdjęcie 1 projektu BrickHouse 118 KRZ1095
BrickHouse 118
Dodano!
Dodano!
326,23 m²
4
3
2

11 990 zł

Elewacje

Frontowa
Tylna
Lewa
Prawa

Przekroje

Przekrój pionowy

Usytuowanie na działce

Czy ten projekt pasuje na
Twoją działkę?

Chętnie to sprawdzimy!

Czy ten projekt pasuje na
Twoją działkę?

Chętnie to sprawdzimy!

Dowiedz się:

  • czy zmieści się na niej wybrany przez Ciebie dom
  • jakie parametry musi spełniać dom według miejscowego planu zagospodarowania lub warunków zabudowy (np. kąt nachylenia i typ dachu, liczba kondygnacji itp.
  • jakie inne projekty pasują na Twoją działkę – znajdziemy je dla Ciebie!
Autor: Modern House

Dane techniczne projektu

Powierzchnie i wymiary Powierzchnie i wymiary

Powierzchnia użytkowa
Tooltip
Suma powierzchni wszystkich pomieszczeń mieszkalnych, pomniejszona o pow. garażu, kotłowni, strychu, piwnicy. Jest liczona w 100% dla pomieszczeń o wysokości powyżej 2,2 m, w 50% dla pomieszczeń o wys. 2,2-1,4 m i niewliczana dla niższych niż 1,4 m.

275,72 m²

Powierzchnia zabudowy
Tooltip
Powierzchnia zajmowana przez część na- oraz nadziemną budynku liczona, jako rzut pionowy budynku na działkę.

448,79 m²

Kąt nachylenia dachu
Tooltip
Nachylenie połaci dachu głównego podawane w stopniach. Uwaga! W niektórych projektach występuje więcej niż jedno nachylenie dachu.

25°

Wysokość budynku
Tooltip
Wysokość liczona od części budynku położonej najniżej przy powierzchni terenu do najwyższego punktu dachu (kalenicy) z wyłączeniem kominów.

6,68 m

Min. szerokość działki
Tooltip
Najmniejsza możliwa szerokość działki niezbędna do wybudowania wybranego domu. Składa się z szerokości elewacji domu powiększonej z obu stron o 3 m dla ściany bez otworów drzwiowych/okiennych lub 4 m, dla ściany z otworami.

37,05 m

Min. długość działki
Tooltip
Najmniejsza możliwa długość działki niezbędna do wybudowania wybranego domu. Składa się z długości elewacji domu powiększonej z obu stron o 3 m dla ściany bez otworów drzwiowych/okiennych lub 4 m, dla ściany z otworami.

32,20 m

Energooszczędność Energooszczędność

Oze Czym jest OZE (Odnawialne Źródło Energii)?
Warunki techniczne

Projekt zgody z WT 2021

Technologia i konstrukcja Technologia i konstrukcja

Konstrukcja

Murowana

Opis szczegółowy

Fundamenty: tradycyjne ławy fundamentowe żelbetowe. Ściany zewn.: dwuwarstwowe – pustak ceramiczny 25 cm + styropian 20 cm. Ściany wewn.: murowane. Strop: żelbetowy wylewany na mokro. Dach: tradycyjna więźba dachowa pokryta dachówką ceramiczna. Elewacje: tynki silikonowe, kamień naturalny (fornir kamienny). Ogrzewanie: gazowe – piec kondensacyjny. Ogrzewanie podłogowe w pom.: salon, jadalnia, kuchnia, łazienki, wiatrołap, garderoby, pralnia, komunikacja.Tradycyjne grzejniki w pom.: sypialnie, gabinet, pom. rekreacyjne, pralnia, łazienki, kotłownia i garaż. Wentylacja: mechaniczna z rekuperacją.

Strop

Żelbetowy

Reklama
Okna i drzwi tarasowe

Nowoczesne okna PVC i aluminiowe WIŚNIOWSKI – doskonała izolacja, elegancki design i niezrównana trwałość.

Wiśniowski
Sprawdź parametry!
Okna dachowe

Oferujemy bezpłatne konsultacje w zakresie wszystkich rozwiązań VELUX. Wyceny, porady dotyczące doboru okien i rolet zewnętrznych - sprawdź!

Velux
Sprawdź szczegóły
Pompa ciepła

Wybierz pompę ciepła, która pasuje do Twojego domu. Niezależnie od tego, czy ustawienie wewnątrz czy na zewnątrz, pompy ciepła STIEBEL ELTRON dopasują się do każdej przestrzeni.

Stiebel
Dowiedz się więcej
Płytki ceramiczne i gresy

Od małych formatów po wielkoformatowe gresy. Marmur, beton, drewno, kamień, lastryko czy cegiełki zamówisz wygodnie online z szybką dostawą.

Ceramzet
Sprawdź ofertę
Elewacja

Kup przez internet wszystkie materiały potrzebne do wykonania elewacji: styropian, płyty PIR, XPS, kleje, tynki. Najlepsze marki w super cenach z dostawą pod dom.

Hurtownia styropianu
Sprawdź ofertę!
Drzwi

Ciepłe drzwi WIŚNIOWSKI z kontrolą dostępu. Szeroka gama wzorów i kolorów.

Wiśniowski
Wybierz najlepsze
Bramy garażowe

Automatyczne bramy garażowe segmentowe i uchylne WIŚNIOWSKI na wymiar i z systemem smart home w standardzie.

Wiśniowski
Sprawdź ofertę!
Rekuperacja

Alnor - kompletny system rekuperacji. Dobierz idealne rozwiązanie dla Twojego domu!

Alnor
Dobierz rekuperator
Dach

Producent stalowych pokryć dachowych i systemów elewacyjnych. Precyzja wykonania, trwałość na lata i szybki montaż doceniany przez dekarzy. Postaw na solidny dach Budmat.

Budmat
Sprawdź ofertę
Ogrodzenie

Nowoczesne stalowe ogrodzenia Budmat - estetyka, bezpieczeństwo i trwałość na lata. Systemowe rozwiązania na wymiar, dopasowane do każdego domu.

Budmat
Sprawdź ofertę

Gotowe domy - najszybszy sposób na dom (115)

Zobacz wszystkie
  • Stan deweloperski nawet w 6 miesięcy
  • Gwarancja stałej ceny
Skonfiguruj dom
Zdjęcie 1 projektu Bergen 130 HUS1002
130,40 m²
4
Stan deweloperski brutto
499 000 zł 3 827 zł/m²
Zdjęcie 1 projektu Dom prefabrykowany P.12 z okapem HPK1021
190,98 m²
5
Stan deweloperski brutto
916 500 zł 4 799 zł/m²
Zdjęcie 1 projektu Dom prefabrykowany P.12 bez okapu HPK1020
190,98 m²
5
Stan deweloperski brutto
886 500 zł 4 642 zł/m²
Zdjęcie 1 projektu Dom prefabrykowany P.6 HPK1005
176,69 m²
4
Stan deweloperski brutto
972 700 zł 5 505 zł/m²
Zdjęcie 1 projektu Dom szkieletowy Viking Smart 220 HHT1032
163,86 m²
4
Stan deweloperski brutto
1 095 606 zł 6 686 zł/m²
Zdjęcie 1 projektu Dom prefabrykowany DH174 HDH1009
162,97 m²
4
Stan deweloperski brutto
1 026 000 zł 6 296 zł/m²
Zdjęcie 1 projektu Dom prefabrykowany P.4 bez okapu HPK1003
162,18 m²
5
Stan deweloperski brutto
723 500 zł 4 461 zł/m²
Zdjęcie 1 projektu Dom prefabrykowany P.4 z okapem HPK1014
162,18 m²
5
Stan deweloperski brutto
739 600 zł 4 560 zł/m²

Opis projektu domu
New House 18

New House 18 to parterowy budynek o nowoczesnej formie, z przestronnym i przemyślanym wnętrzem, stworzony z myślą o 4 - 5 osobowej rodzinie. Nowoczesność rozwiązań funkcjonalnych pozwoliła na wprowadzenie bogatego programu użytkowego, dającego poczucie przestrzeni i komfortu. Budynek podzielony jest na trzy strefy funkcjonalne: dzienną, nocną i rekreacyjną. W części dziennej znajduje się przestronny salon z jadalnią oraz połączona z nimi wygodna kuchnia z pojemną spiżarnią. Część ścian pokoju dziennego została przeszklona zapewniając, nie tylko stały dostęp naturalnego światła, ale także wzbogacając pomieszczenie widokiem na ogród. Należy tutaj wspomnieć również o efektownym, dostępnym z części dziennej tarasie, który z pewnością w sezonie letnim, stanie się "zielonym salonem" - wymarzonym miejscem odpoczynku czy spotkań w gronie rodziny i przyjaciół. Taras otoczony jest z trzech stron budynkiem, a jego wielkość umożliwia stworzenie w centralnym miejscu basenu, który stanowiłby dodatkową atrakcję w sezonie letnim. W strefie prywatnej zaprojektowano 3 wygodne sypialnie, w tym jedną z własną garderobą, w każdej sypialni znajduje się wyjście na taras. W części nocnej znajdziemy także wygodną łazienkę (salon kąpielowy, pralnię oraz dużą garderobę. Część rekreacyjna znajduje się w trzecim skrzydle budynku gdzie mamy do dyspozycji przestrzeń o pow. ponad 60 m2 z zaprojektowaną szklaną ścianą z widokiem i wyjściem na taras. Przy wejściu do domu zaplanowano wiatrołap i garderobę, idealne miejsce na okrycia wierzchnie i obuwie, z której przechodzi się do obszernego, dwustanowiskowego garażu, którego wielkość zapewni możliwość pomieszczenia w nim również motoru i rowerów. Dodatkowo zaprojektowano również, dostępne z zewnątrz, pomieszczenie gospodarcze, w którym miejsce znajdą z pewnością wszelkie narzędzia ogrodnicze. Projekt domu NH18 charakteryzuje się nowoczesnością rozwiązań architektonicznych, zarówno w zakresie formy budynku jak i rozwiązań funkcjonalno - użytkowych. Uwzględnia wykorzystanie nowych technologii i rozwiązań mających na celu uzyskane wysokiej energooszczędności budynku przy możliwie niskich kosztach budowy i późniejszej eksploatacji budynku. Materiały użyte w projekcie charakteryzują się bardzo dobrą jakością i trwałością oraz umożliwiają dowolne kształtowanie formy budynku spełniając przy tym wysokie parametry techniczne oraz walory estetyczne.
Czytaj więcej

Polecani producenci

Kompletne systemy rekuperacji

tło producenta

Alnor

Dowiedz się więcej

Prefabrykowane konstrukcje dachowe

tło producenta

WIĄZAR POLSKA

Zobacz więcej

Sprawdź nową generację okien GREENVIEW

tło producenta

FAKRO

Sprawdź nową generację okien GREENVIEW

Styropian, tynki, farby, kleje

tło producenta

Termo Organika

Poznaj super jakość

Okna, drzwi, osłony przeciwsłoneczne

tło producenta

Aluprof

Sprawdź ofertę
Zobacz więcej

Społeczność projektu domu
New House 18 w budowie

Dołącz do społeczności osób, które budują ten dom lub są zainteresowane jego budową.

  • Oglądaj zdjęcia z budowy
  • Zadawaj pytania
  • Wymieniaj się doświadczeniami

Opinie o projekcie domu New House 18

Ocena

Ten projekt nie ma jeszcze opinii, bądź pierwszy!

Dodaj opinię

ASYSTENT WYBORU PROJEKTU

Szukasz idealnego projektu? Znajdziemy go dla Ciebie!

Doradca na podstawie Twoich wskazówek przygotuje spersonalizowaną listę projektów

Graficzne opracowanie rzutów poglądowych widocznych na karcie projektu zostało wykonane przez Extradom.pl. Prezentowane przez Extradom.pl wizualizacje wykonane zostały przez autora projektu i należy poczytywać je jedynie za przykład i propozycję wykończenia, wizję architektoniczną autora projektu. Ostateczne wykończenie budynku może nastąpić na wiele sposobów. Szczegółowe rozwiązania zastosowane w oferowanej dokumentacji - w tym również ilość, lokalizacje i wygląd okien, drzwi, kominów - mogą w niewielkim stopniu różnić się od prezentowanej wizualizacji budynku.

REKLAMA
Zamknij