👉 Wiosenne rabaty + karta allegro 200 zł! 🔥

Koniec oferty za:

00godz.

00min.

00sek.

Sprawdź

Projekt domu Nasz parterowy 120 GDF1009

Zapisz Dodano!
Porównaj Dodano!
ikona Pobierz i drukuj
Dodaj opinię

Warstwy

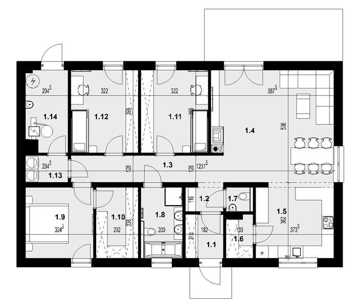
Rzut parteru

Powierzchnia (m²)
Tooltip
Powierzchnia pomieszczenia
to ta, z której faktycznie możesz korzystać – skosy i niskie części poddasza są liczone częściowo lub wcale.
  1. 100% dla wysokości powyżej 2,2 m,
  2. 50% dla wysokości 1,4–2,2 m,
  3. nie liczymy poniżej 1,4 m.

Powierzchnia podłogi
Liczymy po obrysie pomieszczenia, bez względu na jego wysokość/skosy. Jeśli nie ma skosów to powierzchnia podłogi i pomieszczenia jest taka sama.
pomieszczenia i podłogi
podłogi
1. Wiatrołap
3,71
2. Hall
2,02
3. Korytarz
8,32
4. Pokój dzienny + jadalnia
30,83
5. Kuchnia
12,41
6. Spiżarnia
2,42
7. Wc
1,26
8. Łazienka
6,29
9. Pokój
10,77
10. Garderoba
6,65
11. Pokój
12,54
12. Pokój
12,54
13. Pralnia
2,52
14. Kotłownia
7,52
Razem
119,80
119,80
15. Taras
15
16. Taras
3

    Usytuowanie na działce

    Czy ten projekt pasuje na
    Twoją działkę?

    Chętnie to sprawdzimy!

    Dowiedz się:

    • czy zmieści się na niej wybrany przez Ciebie dom
    • jakie parametry musi spełniać dom według miejscowego planu zagospodarowania lub warunków zabudowy (np. kąt nachylenia i typ dachu, liczba kondygnacji itp.
    • jakie inne projekty pasują na Twoją działkę – znajdziemy je dla Ciebie!

Pow. użytkowa

119,80 m²

Pokoje

3

Łazienki i WC

2

Garaż

0

Kąt dachu

30°

Wysokość budynku

6,11 m

Powierzchnia zabudowy

152,29 m²

Min. szer. i dł. działki

22,54 x 17,80 m

Konstrukcja

Murowana

Szacunkowy koszt SSZ
netto na I kwartał 2026

317 000 zł

Pokaż więcej parametrów

Zapisz Dodano!
Porównaj Dodano!
ikona Pobierz i drukuj

Nasz parterowy 120 - GDF1009

ikona 119,80 m²
Powierzchnia użytkowa
ikona3
Pokoje (bez salonu)
ikona 2
Łazienki (z toaletami)
ikona 0
Liczba stanowisk garażowych
(z wiatą garażową)
ikona
Konstrukcja: Murowana

Promocja

od 05.05.2026 do 07.05.2026

0dni

00 00 00

3 980 zł

4 350 zł - cena regularna
Tooltip

Cena regularna obowiązywała od 29.04.2026 do 04.05.2026

3 980 zł - najniższa cena z 30 dni przed obniżką

Projekt jest dostępny

Gwarancja najniższej ceny
ikona
Darmowa dostawa
Paczkomaty, kurier
ikona
100 dni na wymianę,
30 dni na zwrot
ikona Zyskaj najwięcej! Extradodatki GRATIS:

15% rabatu do LEROY MERLIN

10% rabatu w CASTORAMIE

16% rabatu w SELSEY

Kurs wideo dla planujących budowę

Pakiet Formalności 2026

Przydatne Extradodatki

Poradnik Dach Solarny

ikona Co zawiera projekt?
  • Projekt zgodny z WT2021
  • Bezpłatne pozwolenie na zmiany
  • Charakterystyka energetyczna
Konsultant
71 715 20 60

pon.-pt. 8-21, sob. 9-17

Szukasz wykonawcy godnego zaufania?
Zleć budowę w Extradom.pl!

  • Z góry znasz koszt budowy domu
  • Dom odbierasz zgodnie z ustalonym harmonogramem - nawet w 6 miesięcy
  • Zabezpiecza Cię jedna kompleksowa umowa z jednym wykonawcą
  • Otrzymujesz nawet 30-letnią gwarancję na konstrukcję domu
  • Oszczędzasz swój czas dzięki pewnej i kompletnej usłudze
  • Odbiór techniczny GRATIS - Gwarantujemy najwyższą jakość
Cena brutto stanu
deweloperskiego od
Tooltip
Cena brutto stanu deweloperskiego od 4 529 do 5 829 zł/m2.
Cena jest uzależniona m.in. od lokalizacji, wybranej technologii, kubatury budynku, skomplikowania projektu i ewentualnych zmian, na które zdecyduje się inwestor.
Cena za m2 powierzchni netto, czyli wszystkich pomieszczeń mierzonych na wysokości podłogi.
4 529 zł/m2
Dowiedz się więcej
Konsultant Masz pytania?
Zadzwoń
71 715 20 09

pon.-pt. 8-19

Parter - 119,80 m²

Parter projektu Nasz parterowy 120

Zapytaj, co możesz zmienić

Powierzchnia (m²)
Tooltip
Powierzchnia pomieszczenia
to ta, z której faktycznie możesz korzystać – skosy i niskie części poddasza są liczone częściowo lub wcale.
  1. 100% dla wysokości powyżej 2,2 m,
  2. 50% dla wysokości 1,4–2,2 m,
  3. nie liczymy poniżej 1,4 m.

Powierzchnia podłogi
Liczymy po obrysie pomieszczenia, bez względu na jego wysokość/skosy. Jeśli nie ma skosów to powierzchnia podłogi i pomieszczenia jest taka sama.
pomieszczenia i podłogi
podłogi
1. Wiatrołap
3,71
2. Hall
2,02
3. Korytarz
8,32
4. Pokój dzienny + jadalnia
30,83
5. Kuchnia
12,41
6. Spiżarnia
2,42
7. Wc
1,26
8. Łazienka
6,29
9. Pokój
10,77
10. Garderoba
6,65
11. Pokój
12,54
12. Pokój
12,54
13. Pralnia
2,52
14. Kotłownia
7,52
Razem
119,80
119,80
15. Taras
15
16. Taras
3

Natychmiast, otrzymasz PDF-y
z rzutami wszystkich kondygnacji

Zamów rysunki szczegółowe

Zapoznaj się ze szczegółowymi rysunkami rzutów kondygnacji w PDF dla tego projektu.

Warianty projektu (12)

PROMOCJA
Projekt domu Parterowy klasyk
Parterowy klasyk
Dodano!
Dodano!
99,64 m²
3
2
0

3 980 zł

4 350 zł

Tooltip

Cena regularna

3 980 zł najniższa cena
Tooltip

Najniższa cena z 30 dni
przed obniżką

PROMOCJA
Projekt domu Parterowy Klasyk 110
Parterowy Klasyk 110
Dodano!
Dodano!
109,99 m²
3
2
0

3 980 zł

4 350 zł

Tooltip

Cena regularna

3 980 zł najniższa cena
Tooltip

Najniższa cena z 30 dni
przed obniżką

PROMOCJA
Projekt domu Parterowy klasyk 120
Parterowy klasyk 120
Dodano!
Dodano!
119,80 m²
3
2
0

3 980 zł

4 350 zł

Tooltip

Cena regularna

3 980 zł najniższa cena
Tooltip

Najniższa cena z 30 dni
przed obniżką

PROMOCJA
Projekt domu Parterowy klasyk 90
Parterowy klasyk 90
Dodano!
Dodano!
89,92 m²
3
2
0

3 980 zł

4 350 zł

Tooltip

Cena regularna

3 980 zł najniższa cena
Tooltip

Najniższa cena z 30 dni
przed obniżką

PROMOCJA
Projekt domu Parterowy klasyk 80
Parterowy klasyk 80
Dodano!
Dodano!
79,94 m²
3
2
0

3 980 zł

4 350 zł

Tooltip

Cena regularna

3 980 zł najniższa cena
Tooltip

Najniższa cena z 30 dni
przed obniżką

PROMOCJA
Projekt domu Parterowy klasyk 120 plus
Parterowy klasyk 120 plus
Dodano!
Dodano!
121,88 m²
4
2
0

3 980 zł

4 350 zł

Tooltip

Cena regularna

3 980 zł najniższa cena
Tooltip

Najniższa cena z 30 dni
przed obniżką

PROMOCJA
Projekt domu Nasz parterowy
Nasz parterowy
Dodano!
Dodano!
99,64 m²
3
2
0

3 980 zł

4 350 zł

Tooltip

Cena regularna

3 980 zł najniższa cena
Tooltip

Najniższa cena z 30 dni
przed obniżką

PROMOCJA
Projekt domu Parterowy klasyk 60
Parterowy klasyk 60
Dodano!
Dodano!
59,98 m²
2
1
0

3 980 zł

4 350 zł

Tooltip

Cena regularna

3 980 zł najniższa cena
Tooltip

Najniższa cena z 30 dni
przed obniżką

PROMOCJA
Projekt domu Parterowy klasyk 110 plus
Parterowy klasyk 110 plus
Dodano!
Dodano!
109,06 m²
4
2
0

3 980 zł

4 350 zł

Tooltip

Cena regularna

3 980 zł najniższa cena
Tooltip

Najniższa cena z 30 dni
przed obniżką

PROMOCJA
Projekt domu Nasz parterowy 80
Nasz parterowy 80
Dodano!
Dodano!
79,94 m²
3
2
0

3 980 zł

4 350 zł

Tooltip

Cena regularna

3 980 zł najniższa cena
Tooltip

Najniższa cena z 30 dni
przed obniżką

PROMOCJA
Projekt domu Nasz Parterowy 110
Nasz Parterowy 110
Dodano!
Dodano!
109,99 m²
3
2
0

3 980 zł

4 350 zł

Tooltip

Cena regularna

3 980 zł najniższa cena
Tooltip

Najniższa cena z 30 dni
przed obniżką

PROMOCJA
Projekt domu Nasz Parterowy 90
Nasz Parterowy 90
Dodano!
Dodano!
89,92 m²
3
2
0

3 980 zł

4 350 zł

Tooltip

Cena regularna

3 980 zł najniższa cena
Tooltip

Najniższa cena z 30 dni
przed obniżką

Podobne projekty (346)

Zobacz wszystkie
NIŻSZA CENA 🔥
Zdjęcie 1 projektu Dom na Majowej Komfort + WBF1005
Dom na Majowej Komfort +
Dodano!
Dodano!
112,41 m²
3
2
0

3 999 zł

4 499 zł

Tooltip

Cena regularna

3 999 zł najniższa cena
Tooltip

Najniższa cena z 30 dni
przed obniżką

NIŻSZA CENA 🔥
Zdjęcie 1 projektu Dom na praktycznej 2 WAH2066
Dom na praktycznej 2
Dodano!
Dodano!
116,77 m²
3
2
0

5 552 zł

6 940 zł

Tooltip

Cena regularna

5 552 zł najniższa cena
Tooltip

Najniższa cena z 30 dni
przed obniżką

Zdjęcie 1 projektu Mini 4 w. II WRC2734
Mini 4 w. II
Dodano!
Dodano!
122,90 m²
3
2
0

4 900 zł

Nowość
Zdjęcie 1 projektu Planujdom 212 ABP1002
Planujdom 212
Dodano!
Dodano!
112,68 m²
3
2
0

4 390 zł

Nowość
Zdjęcie 1 projektu Planujdom 213 ABP1001
Planujdom 213
Dodano!
Dodano!
126,72 m²
3
1
0

4 100 zł

NIŻSZA CENA 🔥
Zdjęcie 1 projektu Paproć 3 BSA2316
Paproć 3
Dodano!
Dodano!
114,12 m²
3
2
0

5 249 zł

5 749 zł

Tooltip

Cena regularna

5 249 zł najniższa cena
Tooltip

Najniższa cena z 30 dni
przed obniżką

NIŻSZA CENA 🔥
Zdjęcie 1 projektu Wymarzony 8 B WAH2161
Wymarzony 8 B
Dodano!
Dodano!
118,01 m²
4
2
0

5 432 zł

6 790 zł

Tooltip

Cena regularna

5 432 zł najniższa cena
Tooltip

Najniższa cena z 30 dni
przed obniżką

Nowość
Zdjęcie 1 projektu NewHouse 766 KRZ1154
NewHouse 766
Dodano!
Dodano!
111,48 m²
3
2
0

5 490 zł

Metody i koszt budowy

Ten dom możesz budować metodą gospodarczą, systemem zleconym lub skorzystać z naszej oferty Projekt z Budową. Przy porównaniu weź pod uwagę nie tylko koszt, ale też różny zakres prac i standard wykonania.

Metoda gospodarcza

Najtańsza metoda - większość prac
budowlanych wykonuje inwestor

Stan surowy zamknięty (SSZ)

317 000 zł netto

Szacunkowy koszt materiałów na I kwartał 2026
  • Prace ziemne i fundamenty

    61 000 zł
  • Konstrukcja, strop oraz dach

    210 000 zł
  • Stolarka okienna i drzwiowa

    46 000 zł
  • Instalacje

    nie obejmuje
  • Prace wykończeniowe

    nie obejmuje
  • Możesz budować etapami, pamiętając jednak o zmianie kosztów w czasie
  • Możesz rozpocząć budowę z częścią niezbędnych środków
  • Sam ustalasz harmonogram, koordynujesz budowę i zapewniasz materiały
Czy da się obniżyć koszty budowy?
Zobacz nasz film jak obniżyć koszt budowy

Projekt z Budową

Najszybsza i najwygodniejsza metoda -
całą budowę domu realizuje jedna firma

Stan deweloperski
Gwarancja stałego kosztu budowy

Gwarancja stałego
kosztu budowy

  • Prace ziemne i fundamenty
  • Konstrukcja, strop oraz dach
  • Stolarka okienna i drzwiowa
  • Instalacje  
    Tooltip

    Obejmuje wykonanie instalacji:

    • wodno-kanalizacyjnej
    • centralnego ogrzewania
    • gazowej
    • elektrycznej
  • Prace wykończeniowe  
    Tooltip

    Prace wykończeniowe obejmują:

    • sufity i ściany wewnętrzne
    • tynki i okładziny ścian wewnętrznych
    • wylewki i posadzkę
    • ocieplenie ścian zewnętrznych i elewację

Budowa
nawet w
6mies.

  • Kompleksowa umowa i znany z góry koszt budowy
  • Logistyka, organizacja budowy i zakupy po stronie firmy budowlanej
  • Formalności i dokumentacje po stronie firmy budowlanej
  • Różne technologie budowy dopasowane do projektu i budżetu
Szczegóły i dostępne technologie

Elewacje

Frontowa
Tylna
Lewa
Prawa

Przekroje

Przekrój pionowy

Usytuowanie na działce

Czy ten projekt pasuje na
Twoją działkę?

Chętnie to sprawdzimy!

Czy ten projekt pasuje na
Twoją działkę?

Chętnie to sprawdzimy!

Dowiedz się:

  • czy zmieści się na niej wybrany przez Ciebie dom
  • jakie parametry musi spełniać dom według miejscowego planu zagospodarowania lub warunków zabudowy (np. kąt nachylenia i typ dachu, liczba kondygnacji itp.
  • jakie inne projekty pasują na Twoją działkę – znajdziemy je dla Ciebie!
Autor: Aringa

Dane techniczne projektu

Powierzchnie i wymiary Powierzchnie i wymiary

Powierzchnia użytkowa
Tooltip
Suma powierzchni wszystkich pomieszczeń mieszkalnych, pomniejszona o pow. garażu, kotłowni, strychu, piwnicy. Jest liczona w 100% dla pomieszczeń o wysokości powyżej 2,2 m, w 50% dla pomieszczeń o wys. 2,2-1,4 m i niewliczana dla niższych niż 1,4 m.

119,80 m²

Powierzchnia zabudowy
Tooltip
Powierzchnia zajmowana przez część na- oraz nadziemną budynku liczona, jako rzut pionowy budynku na działkę.

152,29 m²

Powierzchnia dachu

176 m²

Kąt nachylenia dachu
Tooltip
Nachylenie połaci dachu głównego podawane w stopniach. Uwaga! W niektórych projektach występuje więcej niż jedno nachylenie dachu.

30°

Wysokość budynku
Tooltip
Wysokość liczona od części budynku położonej najniżej przy powierzchni terenu do najwyższego punktu dachu (kalenicy) z wyłączeniem kominów.

6,11 m

Szerokość elewacji

15,54 m

Długość elewacji

9,80 m

Min. szerokość działki
Tooltip
Najmniejsza możliwa szerokość działki niezbędna do wybudowania wybranego domu. Składa się z szerokości elewacji domu powiększonej z obu stron o 3 m dla ściany bez otworów drzwiowych/okiennych lub 4 m, dla ściany z otworami.

22,54 m

Min. długość działki
Tooltip
Najmniejsza możliwa długość działki niezbędna do wybudowania wybranego domu. Składa się z długości elewacji domu powiększonej z obu stron o 3 m dla ściany bez otworów drzwiowych/okiennych lub 4 m, dla ściany z otworami.

17,80 m

Energooszczędność Energooszczędność

Oze Czym jest OZE (Odnawialne Źródło Energii)?
Ogrzewanie główne

Gazowe lub paliwo stałe (OZE) - do wyboru na etapie adaptacji

Dodatkowo istnieje możliwość zamówienia projektu z

Powietrzna pompa ciepła

Interesuje Cię inne źródło ogrzewania? Wyślij zapytanie lub zadzwoń do doradcy

Instalacje w projekcie

Ogrzewanie podłogowe (na całej powierzchni domu lub w jej części, szczegóły u doradcy)

Warunki techniczne

Projekt zgody z WT 2021

Technologia i konstrukcja Technologia i konstrukcja

Konstrukcja

Murowana

PROJEKT Z BUDOWĄ Istnieje możliwość zaadaptowania tego projektu do technologii prefabrykowanej/modułowej i budowy nawet w 6 miesięcy ze stałym kosztem budowy

Dowiedz się więcej »
Opis szczegółowy

Ściany zewnętrzne i wewnętrzne nośne z bloczków z betonu komórkowego ocieplone styropianem grubości 15 cm. Ściany działowe z bloczków typu Silka . Ściany fundamentowe z bloczków betonowych. Strop strychu drewniany (możliwy do zaadaptowania na obciążenia użytkowe). Elewacje wykończone tynkiem strukturalnym. Tynki wewnętrzne gipsowe lub cementowo-wapienne. Pokrycie dachu blachą. Stolarka okienna PVC. Wszystkie technologie można zmienić na etapie adaptacji.

Strop

Drewniany

Reklama
Okna i drzwi tarasowe

Nowoczesne okna PVC i aluminiowe WIŚNIOWSKI – doskonała izolacja, elegancki design i niezrównana trwałość.

Wiśniowski
Sprawdź parametry!
Okna dachowe

Oferujemy bezpłatne konsultacje w zakresie wszystkich rozwiązań VELUX. Wyceny, porady dotyczące doboru okien i rolet zewnętrznych - sprawdź!

Velux
Sprawdź szczegóły
Pompa ciepła

Wybierz pompę ciepła, która pasuje do Twojego domu. Niezależnie od tego, czy ustawienie wewnątrz czy na zewnątrz, pompy ciepła STIEBEL ELTRON dopasują się do każdej przestrzeni.

Stiebel
Dobierz pompę ciepła
Drzwi

Ciepłe drzwi WIŚNIOWSKI z kontrolą dostępu. Szeroka gama wzorów i kolorów.

Wiśniowski
Wybierz najlepsze
Bramy garażowe

Automatyczne bramy garażowe segmentowe i uchylne WIŚNIOWSKI na wymiar i z systemem smart home w standardzie.

Wiśniowski
Sprawdź ofertę!
Rekuperacja

Alnor - kompletny system rekuperacji. Dobierz idealne rozwiązanie dla Twojego domu!

Alnor
Dobierz rekuperator
Dach

Producent stalowych pokryć dachowych i systemów elewacyjnych. Precyzja wykonania, trwałość na lata i szybki montaż doceniany przez dekarzy. Postaw na solidny dach Budmat.

Budmat
Sprawdź ofertę
Ogrodzenie

Nowoczesne stalowe ogrodzenia Budmat - estetyka, bezpieczeństwo i trwałość na lata. Systemowe rozwiązania na wymiar, dopasowane do każdego domu.

Budmat
Sprawdź ofertę

Gotowe domy - najszybszy sposób na dom (115)

Zobacz wszystkie
  • Stan deweloperski nawet w 6 miesięcy
  • Gwarancja stałej ceny
Skonfiguruj dom
Zdjęcie 1 projektu Bergen 110 HUS1001
110,80 m²
3
Stan deweloperski brutto
469 000 zł 4 233 zł/m²
Zdjęcie 1 projektu Dom szkieletowy Emily Smart 120 HHT1026
120 m²
3
Stan deweloperski brutto
592 512 zł 4 938 zł/m²
Zdjęcie 1 projektu Dom prefabrykowany FastHome 120 HFX1033
120,04 m²
4
Stan deweloperski brutto
530 000 zł 4 415 zł/m²
Zdjęcie 1 projektu Dom szkieletowy Scandinavian Smart 120 HHT1020
119,43 m²
3
Stan deweloperski brutto
571 271 zł 4 761 zł/m²
Zdjęcie 1 projektu Dom prefabrykowany P.14 HPK1026
118,94 m²
3
Stan deweloperski brutto
707 200 zł 5 933 zł/m²
Zdjęcie 1 projektu Dom modułowy Soul HMD1001
118,94 m²
4
Stan deweloperski brutto
518 000 zł 3 654 zł/m²
Zdjęcie 1 projektu Dom szkieletowy Creative Smart 160 HHT1023
118,35 m²
4
Stan deweloperski brutto
780 019 zł 6 591 zł/m²
Zdjęcie 1 projektu Dom prefabrykowany P.3 z okapem HPK1013
121,46 m²
5
Stan deweloperski brutto
630 000 zł 5 187 zł/m²

Dodatki do projektu

Dodatki możesz zamówić w koszyku lub telefonicznie u naszego Doradcy.

Czym jest OZE (Odnawialne Źródło Energii)?

Ikona

Bestseller

Dodatkowy egzemplarz projektu

500 zł

Ikona

Bestseller

Elektroniczna wersja projektu

700 zł

Ikona

Bestseller

Oze

Powietrzna pompa ciepła

900 zł

Opis projektu domu
Nasz parterowy 120

Projekt " Nasz parterowy 120" jest odpowiedzią naszej pracowni na potrzeby rodziny 2+2. Wysoka funkcjonalność połączona z prostą bryłą budynku pozwalają na zaadaptowanie projektu na większości działek oraz duże oszczędności w trakcie budowy. Hole i korytarze zostały ograniczone do niezbędnego minimum. Po domu porusza się wygodnie i komfortowo, ale przemyślany układ pomieszczeń sprawia, że długość przejścia w poszczególne strefy jest niewielka. Wiatrołap mimo niewielkich rozmiarów mieści obszerną szafę, a w przedsionku znajduje się dodatkowe miejsce do siedzenia, gdzie można wygodnie założyć buty. Strefa dzienna, na którą składa się salon, jadalnia i kuchnia są wprost dopasowane do wielkości mebli i miejsca potrzebnego do wygodnego, codziennego przebywania 4-osobowej rodziny. W kuchni zmieszczą się wszystkie sprzęty AGD i wystarczająca ilość szafek na potrzebną zastawę i urządzenia do gotowania. W tej wersji projektu w kuchni umieszczono dodatkowy blat w postaci tzw. „wyspy” kuchennej. Ponadto przy kuchni znajduje się pojemna spiżarnia. Przy stole jadalnianym, znajdującym się przy samym oknie standardowo mieści się sześć osób, jednak przewidziane zostało miejsce do jego rozłożenia, aż do 10 osób. Na narożnej kanapie także każdy znajdzie swoje miejsce, żeby spokojnie odpocząć przed TV i kominku, z którego wykonania oczywiście można zrezygnować. W tym projekcie nic nie dzieje się z przypadku. Sypialnie i pokoje zostały przygotowane ściśle dla modelu rodziny 2+2. Sypialnia rodziców mieści właściwie tylko łóżko oraz szafkę TV, ponieważ wszystkie ubrania i rzeczy podręczne będą składowane w dostępnej z tego pokoju garderobie. W pokojach dzieci umieszczono wszystkie niezbędne meble - szerokie łóżko z szafką nocną, wygodne biurko oraz bardzo dużą szafę na ubrania. Z korytarza dostępna jest przestronna łazienka zlokalizowana blisko pokoi. W łazience umieszczono kabinę prysznicową i wygodną wannę. Ponadto dla większego komfortu zaprojektowano toaletę, która może być dostępna zarówno dla domowników jak i gości. Kotłownia może zostać wyposażona w dowolne źródło ciepła. Mimo niewielkich rozmiarów można umieścić tutaj piec na pellet z podajnikiem, boiler na ciepłą wodę, umywalkę, zmiękczacz wody i całą niezbędną instalację. Jeżeli jednak zdecydujesz się na gaz czy pompę ciepła zyskasz dodatkową przestrzeń magazynową na kosiarkę czy sprzęty ogrodowe. W drodze do kotłowni zaprojektowano funkcjonalne pomieszczenie gospodarcze, gdzie zmieści się pralka i suszarka bębnowa. Dodatkowo na strychu znajdzie się dodatkowa ogromna przestrzeń do składowania rzadziej używanych przedmiotów, dostępna poprzez składane schody znajdujące się na poddaszu. Konstrukcja strych umożliwia także jego adaptację na poddasze użytkowe w przyszłości. Architektura i konstrukcja budynku zaprojektowano w sposób oszczędny bez stosowania drogich i niepotrzebnych, niepraktycznych rozwiązań. Przede wszystkim budynek jest niewielkich rozmiarów w rzucie, dzięki czemu można go wybudować na działce o powierzchni około 400 metrów kwadratowych, co przy rosnących cenach działek jest ogromną zaletą. Bryła budynku jest prosta, przekryta dachem dwuspadowym, którego wykonanie jest dużo tańsze od np. dachu kopertowego. Na zaplanowanym tarasie wystarczy miejsca dla wszystkich domowników, a także zaproszonych gości. Okna i witryny nie są przepastnie szerokie i wysokie, co sprawia, że na pewno otrzymasz korzystną ofertę na ich dostawę i montaż. Fasada budynku zaprojektowana została z zastosowaniem nowoczesnych materiałów w stonowanej i bardzo eleganckiej kolorystyce. Pokrycie dachu stanowi blacha trapezowa typu „na rąbek” w odcieniach szarości. Elewację pokrywa biała i beżowa struktura, co z stolarką w odcieniu jasnego drewna stanowi dopełnienie nowoczesnego wyglądu budynku.
Czytaj więcej

Polecani producenci

Kompletne systemy rekuperacji

tło producenta

Alnor

Dowiedz się więcej

Dachy modułowe ze stali

tło producenta

Budmat

Poznaj szczegóły oferty

Prefabrykowane konstrukcje dachowe

tło producenta

WIĄZAR POLSKA

Zobacz więcej
Zobacz więcej

Społeczność projektu domu
Nasz parterowy 120 w budowie

Dołącz do społeczności osób, które budują ten dom lub są zainteresowane jego budową.

  • Oglądaj zdjęcia z budowy
  • Zadawaj pytania
  • Wymieniaj się doświadczeniami

Opinie o projekcie domu
Nasz parterowy 120

Opinie niezweryfikowane

Bądź pierwszy!
Ten projekt nie ma jeszcze opinii, bądź pierwszy!

ikona Dodaj opinię o projekcie

ASYSTENT WYBORU PROJEKTU

Szukasz idealnego projektu? Znajdziemy go dla Ciebie!

Doradca na podstawie Twoich wskazówek przygotuje spersonalizowaną listę projektów

Graficzne opracowanie rzutów poglądowych widocznych na karcie projektu zostało wykonane przez Extradom.pl. Prezentowane przez Extradom.pl wizualizacje wykonane zostały przez autora projektu i należy poczytywać je jedynie za przykład i propozycję wykończenia, wizję architektoniczną autora projektu. Ostateczne wykończenie budynku może nastąpić na wiele sposobów. Szczegółowe rozwiązania zastosowane w oferowanej dokumentacji - w tym również ilość, lokalizacje i wygląd okien, drzwi, kominów - mogą w niewielkim stopniu różnić się od prezentowanej wizualizacji budynku.

Extradom.pl Spółka z ograniczoną odpowiedzialnością z siedzibą przy ul. Jaworskiej 13, 53-612 Wrocław, wpisana do rejestru przedsiębiorców Krajowego Rejestru Sądowego przez Sąd Rejonowy dla Wrocławia-Fabrycznej we Wrocławiu, VI Wydział Gospodarczy Krajowego Rejestru Sądowego do pod numerem KRS 0000648746, numer NIP 895-17-18-333, o kapitale zakładowym 708 150,00 zł uprzejmie informuje, iż poprzez serwis Extradom.pl umożliwia m.in. zapoznanie się przez konsumentów z ofertą handlową Partnerów Extradom.pl, którzy stosują metody budowy domów przy wykorzystaniu różnego rodzaju technologie prefabrykacji bądź modułowe (tzw. „Gotowe domy”).

Extradom.pl nie prowadzi jednakże sprzedaży ani nie oferuje usług polegających na doradztwie finansowym, prawnym ani podatkowym w zakresie inwestycji realizowanych w technologiach tzw. „Gotowych domów”. Informacje prezentowane w serwisie Extradom.pl dotyczące Partnerów Extradom.pl oferujących realizację inwestycji w technologiach „Gotowych domów” lub podobnych mają charakter informacyjny i reklamowy.

Prezentowane w serwisie Extradom.pl informacje dotyczące stosowanych przez Partnerów metod budowy domów w technologii prefabrykacji bądź modułowej pochodzą od Partnerów Extradom.pl.

Extradom.pl sp. z o.o. jedynie umożliwia nawiązanie kontaktu przez Użytkownika z Partnerem Extradom.pl stosującym tego rodzaju technologie budowy domów i nie jest stroną umowy o roboty budowlane zawieranej przez Użytkownika Extradom.pl z Partnerem Extradom.pl.

REKLAMA
Zamknij