👉 Projekty w extracenach! ✂️

Koniec oferty za:

00godz.

00min.

00sek.

Sprawdź

Projekt domu Morski 3 WRD3216

Dodano!
Dodano!

Warstwy

Warstwy

Rzut parteru

Powierzchnia (m²)
Tooltip
Powierzchnia pomieszczenia
to ta, z której faktycznie możesz korzystać – skosy i niskie części poddasza są liczone częściowo lub wcale.
  1. 100% dla wysokości powyżej 2,2 m,
  2. 50% dla wysokości 1,4–2,2 m,
  3. nie liczymy poniżej 1,4 m.

Powierzchnia podłogi
Liczymy po obrysie pomieszczenia, bez względu na jego wysokość/skosy. Jeśli nie ma skosów to powierzchnia podłogi i pomieszczenia jest taka sama.
pomieszczenia i podłogi
podłogi
1. Wiatrołap
2
2. Pokój dzienny + jadalnia + kuchnia
27,50
3. Łazienka
4,60
Razem
34,10
34,10
Powierzchnia (m²)
Tooltip
Powierzchnia pomieszczenia
to ta, z której faktycznie możesz korzystać – skosy i niskie części poddasza są liczone częściowo lub wcale.
  1. 100% dla wysokości powyżej 2,2 m,
  2. 50% dla wysokości 1,4–2,2 m,
  3. nie liczymy poniżej 1,4 m.

Powierzchnia podłogi
Liczymy po obrysie pomieszczenia, bez względu na jego wysokość/skosy. Jeśli nie ma skosów to powierzchnia podłogi i pomieszczenia jest taka sama.
pomieszczenia i podłogi
podłogi
1. Korytarz
2,30
2. Pokój
9,45
3. Pokój
10,45
Razem
22,20
22,20

    Usytuowanie na działce

    Czy ten projekt pasuje na
    Twoją działkę?

    Chętnie to sprawdzimy!

    Dowiedz się:

    • czy zmieści się na niej wybrany przez Ciebie dom
    • jakie parametry musi spełniać dom według miejscowego planu zagospodarowania lub warunków zabudowy (np. kąt nachylenia i typ dachu, liczba kondygnacji itp.
    • jakie inne projekty pasują na Twoją działkę – znajdziemy je dla Ciebie!

Pow. użytkowa

56,30 m²

Pokoje

2

Łazienki i WC

1

Garaż

0

Min. szer. i dł. działki

11,68 x 16,09 m

Kąt dachu

40°

Szacunkowy koszt SSZ

138 000 zł
Szacunkowy koszt budowy do stanu surowego zamkniętego (SSZ) metodą gospodarczą - większość prac wykonuje inwestor.

Konstrukcja

Murowana
więcej

Morski 3 - WRD3216

ikona 56,30 m²
Powierzchnia użytkowa
ikona2
Pokoje (bez salonu)
ikona 1
Łazienki (z toaletami)
ikona 0
Liczba stanowisk garażowych
(z wiatą garażową)
ikona
Konstrukcja: Murowana

Promocja od 03.02.2026, koniec za:

0 dni

00 00 00

3 050 zł

Tooltip

Cena regularna obowiązywała od 28.01.2026 do 02.02.2026

Cena regularna: 3 550 zł
Najniższa cena z 30 dni przed obniżką: 3 050 zł
Gwarancja najniższej ceny Gwarancja najniższej ceny Tooltip

Projekt jest dostępny Tooltip

GRATIS 10% rabatu do LEROY MERLIN

GRATIS 16% rabatu w SELSEY

GRATIS Przydatne Extradodatki

GRATIS Poradnik Dach Solarny

100 dni na wymianę, 30 dni na zwrot

Darmowa dostawa - kurier, paczkomaty

Bezpłatne pozwolenie na zmiany

Dokumentacja zgodna z WT2021

Pokaż więcej (6)
Konsultant Masz pytania?
Zadzwoń
71 715 20 60

pon.-pt. 8-21, sob. 9-17

Szukasz wykonawcy godnego zaufania?
Zleć budowę w Extradom.pl!

  • Z góry znasz koszt budowy domu
  • Dom odbierasz zgodnie z ustalonym harmonogramem - nawet w 6 miesięcy
  • Zabezpiecza Cię jedna kompleksowa umowa z jednym wykonawcą
  • Otrzymujesz nawet 30-letnią gwarancję na konstrukcję domu
  • Oszczędzasz swój czas dzięki pewnej i kompletnej usłudze
Cena brutto stanu
deweloperskiego od
Tooltip
Cena brutto stanu deweloperskiego od 4 719 do 6 939 zł/m2.
Cena jest uzależniona m.in. od lokalizacji, wybranej technologii, kubatury budynku, skomplikowania projektu i ewentualnych zmian, na które zdecyduje się inwestor.
Cena za m2 powierzchni netto, czyli wszystkich pomieszczeń mierzonych na wysokości podłogi.
4 719 zł/m2
Dowiedz się więcej
Konsultant Masz pytania?
Zadzwoń
71 715 20 70

pon.-pt. 8-19

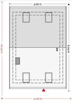
Parter - 34,10 m²

Parter projektu Morski 3

Zapytaj, co możesz zmienić

Powierzchnia (m²)
Tooltip
Powierzchnia pomieszczenia
to ta, z której faktycznie możesz korzystać – skosy i niskie części poddasza są liczone częściowo lub wcale.
  1. 100% dla wysokości powyżej 2,2 m,
  2. 50% dla wysokości 1,4–2,2 m,
  3. nie liczymy poniżej 1,4 m.

Powierzchnia podłogi
Liczymy po obrysie pomieszczenia, bez względu na jego wysokość/skosy. Jeśli nie ma skosów to powierzchnia podłogi i pomieszczenia jest taka sama.
pomieszczenia i podłogi
podłogi
1. Wiatrołap
2
2. Pokój dzienny + jadalnia + kuchnia
27,50
3. Łazienka
4,60
Razem
34,10
34,10

Natychmiast, otrzymasz PDF-y
z rzutami wszystkich kondygnacji

Poddasze - 22,20 m²

Poddasze projektu Morski 3

Zapytaj, co możesz zmienić

Powierzchnia (m²)
Tooltip
Powierzchnia pomieszczenia
to ta, z której faktycznie możesz korzystać – skosy i niskie części poddasza są liczone częściowo lub wcale.
  1. 100% dla wysokości powyżej 2,2 m,
  2. 50% dla wysokości 1,4–2,2 m,
  3. nie liczymy poniżej 1,4 m.

Powierzchnia podłogi
Liczymy po obrysie pomieszczenia, bez względu na jego wysokość/skosy. Jeśli nie ma skosów to powierzchnia podłogi i pomieszczenia jest taka sama.
pomieszczenia i podłogi
podłogi
1. Korytarz
2,30
2. Pokój
9,45
3. Pokój
10,45
Razem
22,20
22,20

Natychmiast, otrzymasz PDF-y
z rzutami wszystkich kondygnacji

Zamów rysunki szczegółowe

Zapoznaj się ze szczegółowymi rysunkami rzutów kondygnacji w PDF dla tego projektu.

Warianty projektu (10)

Projekt domu Morski 2 - dwulokalowy LLL
Morski 2 - dwulokalowy LLL
Dodano!
Dodano!
52,80 m²
2
2
0

6 080 zł

PROMOCJA
Projekt domu Morski 3 - dwulokalowy LLL
Morski 3 - dwulokalowy LLL
Dodano!
Dodano!
56,30 m²
2
1
0

6 245 zł

6 745 zł

Tooltip

Cena regularna

6 245 zł najniższa cena
Tooltip

Najniższa cena z 30 dni
przed obniżką

Projekt domu Morski 4 - segment lewy
Morski 4 - segment lewy
Dodano!
Dodano!
58,70 m²
2
1
0

3 373 zł

Projekt domu Morski 2 - bliźniak LLL
Morski 2 - bliźniak LLL
Dodano!
Dodano!
52,80 m²
2
3
0

6 080 zł

Projekt domu Morski 3 - bliźniak PLP
Morski 3 - bliźniak PLP
Dodano!
Dodano!
56,30 m²
2
1
0

6 745 zł

Projekt domu Morski 2 - segment lewy
Morski 2 - segment lewy
Dodano!
Dodano!
52,80 m²
2
2
0

3 040 zł

Projekt domu Morski 4 - bliźniak LLL
Morski 4 - bliźniak LLL
Dodano!
Dodano!
58,70 m²
3
1
0

6 745 zł

Projekt domu Morski 1 - segment lewy
Morski 1 - segment lewy
Dodano!
Dodano!
46,45 m²
2
1
0

2 660 zł

Projekt domu Morski 3 - segment lewy
Morski 3 - segment lewy
Dodano!
Dodano!
56,30 m²
2
1
0

3 372 zł

PROMOCJA
Projekt domu Morski 2
Morski 2
Dodano!
Dodano!
53 m²
2
2
0

2 700 zł

3 200 zł

Tooltip

Cena regularna

2 700 zł najniższa cena
Tooltip

Najniższa cena z 30 dni
przed obniżką

Podobne projekty (11)

Zobacz wszystkie
EXTRACENA
Zdjęcie 1 projektu Ara (1881) KRD3016
Ara (1881)
Dodano!
Dodano!
54,20 m²
2
2
0

3 190 zł

3 540 zł

Tooltip

Cena regularna

3 190 zł najniższa cena
Tooltip

Najniższa cena z 30 dni
przed obniżką

EXTRACENA
Zdjęcie 1 projektu Sosenka wariant G WAH1452
Sosenka wariant G
Dodano!
Dodano!
45,87 m²
2
1
0

4 392 zł

5 490 zł

Tooltip

Cena regularna

4 152 zł najniższa cena
Tooltip

Najniższa cena z 30 dni
przed obniżką

EXTRACENA
Zdjęcie 1 projektu Maluch WRD3046
Maluch
Dodano!
Dodano!
55,40 m²
2
2
0

2 850 zł

3 350 zł

Tooltip

Cena regularna

2 850 zł najniższa cena
Tooltip

Najniższa cena z 30 dni
przed obniżką

EXTRACENA
Zdjęcie 1 projektu Orlean 7 C dom mieszkalny, całoroczny SLN2677
58,46 m²
3
1
0

2 699 zł

2 999 zł

Tooltip

Cena regularna

2 599 zł najniższa cena
Tooltip

Najniższa cena z 30 dni
przed obniżką

EXTRACENA
Zdjęcie 1 projektu Nastka WOE1194
Nastka
Dodano!
Dodano!
49,19 m²
2
2
0

3 499 zł

3 599 zł

Tooltip

Cena regularna

3 499 zł najniższa cena
Tooltip

Najniższa cena z 30 dni
przed obniżką

EXTRACENA
Zdjęcie 1 projektu Francik WAH1006
Francik
Dodano!
Dodano!
52,50 m²
2
1
0

3 928 zł

4 910 zł

Tooltip

Cena regularna

3 728 zł najniższa cena
Tooltip

Najniższa cena z 30 dni
przed obniżką

EXTRACENA
Zdjęcie 1 projektu L-302 midi murowany SLU1056
L-302 midi murowany
Dodano!
Dodano!
56,07 m²
3
2
0

2 700 zł

3 000 zł

Tooltip

Cena regularna

2 600 zł najniższa cena
Tooltip

Najniższa cena z 30 dni
przed obniżką

EXTRACENA
Zdjęcie 1 projektu Morski 1 WRD3010
Morski 1
Dodano!
Dodano!
46,45 m²
2
1
0

2 300 zł

2 800 zł

Tooltip

Cena regularna

2 300 zł najniższa cena
Tooltip

Najniższa cena z 30 dni
przed obniżką

Metody i koszt budowy

Ten dom możesz budować metodą gospodarczą, systemem zleconym lub skorzystać z naszej oferty Projekt z Budową. Przy porównaniu weź pod uwagę nie tylko koszt, ale też różny zakres prac i standard wykonania.

Metoda gospodarcza

Najtańsza metoda - większość prac
budowlanych wykonuje inwestor

Stan surowy zamknięty (SSZ)

138 000 zł netto

Szacunkowy koszt materiałów na IV kwartał 2025
  • Prace ziemne i fundamenty

    18 000 zł
  • Konstrukcja, strop oraz dach

    100 000 zł
  • Stolarka okienna i drzwiowa

    20 000 zł
  • Instalacje

    nie obejmuje
  • Prace wykończeniowe

    nie obejmuje
  • Możesz budować etapami, pamiętając jednak o zmianie kosztów w czasie
  • Możesz rozpocząć budowę z częścią niezbędnych środków
  • Sam ustalasz harmonogram, koordynujesz budowę i zapewniasz materiały
Czy da się obniżyć koszty budowy?
Zobacz nasz film jak obniżyć koszt budowy

Projekt z Budową

Najszybsza i najwygodniejsza metoda -
całą budowę domu realizuje jedna firma

Stan deweloperski
Gwarancja stałego kosztu budowy

Gwarancja stałego
kosztu budowy

  • Prace ziemne i fundamenty
  • Konstrukcja, strop oraz dach
  • Stolarka okienna i drzwiowa
  • Instalacje  
    Tooltip

    Obejmuje wykonanie instalacji:

    • wodno-kanalizacyjnej
    • centralnego ogrzewania
    • gazowej
    • elektrycznej
  • Prace wykończeniowe  
    Tooltip

    Prace wykończeniowe obejmują:

    • sufity i ściany wewnętrzne
    • tynki i okładziny ścian wewnętrznych
    • wylewki i posadzkę
    • ocieplenie ścian zewnętrznych i elewację

Budowa
nawet w
6mies.

  • Kompleksowa umowa i znany z góry koszt budowy
  • Logistyka, organizacja budowy i zakupy po stronie firmy budowlanej
  • Formalności i dokumentacje po stronie firmy budowlanej
  • Różne technologie budowy dopasowane do projektu i budżetu
Szczegóły i dostępne technologie

Usytuowanie na działce

Czy ten projekt pasuje na
Twoją działkę?

Chętnie to sprawdzimy!

Czy ten projekt pasuje na
Twoją działkę?

Chętnie to sprawdzimy!

Dowiedz się:

  • czy zmieści się na niej wybrany przez Ciebie dom
  • jakie parametry musi spełniać dom według miejscowego planu zagospodarowania lub warunków zabudowy (np. kąt nachylenia i typ dachu, liczba kondygnacji itp.
  • jakie inne projekty pasują na Twoją działkę – znajdziemy je dla Ciebie!
Autor: Horyzont Pracownia Projektowa

Dane techniczne projektu

Powierzchnie i wymiary Powierzchnie i wymiary

Powierzchnia użytkowa
Tooltip
Suma powierzchni wszystkich pomieszczeń mieszkalnych, pomniejszona o pow. garażu, kotłowni, strychu, piwnicy. Jest liczona w 100% dla pomieszczeń o wysokości powyżej 2,2 m, w 50% dla pomieszczeń o wys. 2,2-1,4 m i niewliczana dla niższych niż 1,4 m.

56,30 m²

Wysokość ściany kolankowej
Tooltip
Wysokość ściany podpierającej dach. Jej wysokość wpływa na powierzchnię użytkową kondygnacji, na której się znajduje.

0,92 m

Powierzchnia zabudowy
Tooltip
Powierzchnia zajmowana przez część na- oraz nadziemną budynku liczona, jako rzut pionowy budynku na działkę.

45,95 m²

Kąt nachylenia dachu
Tooltip
Nachylenie połaci dachu głównego podawane w stopniach. Uwaga! W niektórych projektach występuje więcej niż jedno nachylenie dachu.

40°

Wysokość budynku
Tooltip
Wysokość liczona od części budynku położonej najniżej przy powierzchni terenu do najwyższego punktu dachu (kalenicy) z wyłączeniem kominów.

7,54 m

Szerokość elewacji

5,68 m

Długość elewacji

8,09 m

Min. szerokość działki
Tooltip
Najmniejsza możliwa szerokość działki niezbędna do wybudowania wybranego domu. Składa się z szerokości elewacji domu powiększonej z obu stron o 3 m dla ściany bez otworów drzwiowych/okiennych lub 4 m, dla ściany z otworami.

11,68 m

Min. długość działki
Tooltip
Najmniejsza możliwa długość działki niezbędna do wybudowania wybranego domu. Składa się z długości elewacji domu powiększonej z obu stron o 3 m dla ściany bez otworów drzwiowych/okiennych lub 4 m, dla ściany z otworami.

16,09 m

Energooszczędność Energooszczędność

Oze Czym jest OZE (Odnawialne Źródło Energii)?
Ogrzewanie główne

Gazowe - szczegóły

Interesuje Cię inne źródło ogrzewania? Wyślij zapytanie lub zadzwoń do doradcy

Warunki techniczne

Projekt zgody z WT 2021

Technologia i konstrukcja Technologia i konstrukcja

Konstrukcja

Murowana

PROJEKT Z BUDOWĄ Istnieje możliwość zaadaptowania tego projektu do technologii prefabrykowanej/modułowej i budowy nawet w 6 miesięcy ze stałym kosztem budowy

Dowiedz się więcej »
Opis szczegółowy

Strop: gęstożebrowy Teriva. Ściany zewnętrzne: gazobeton + styropian. Pokrycie dachowe: dachówka cementowa. Okna połaciowe: Velux. Fundamentowanie: Ławy fundamentowe.

Strop

Gęstożebrowy

Reklama
Okna i drzwi tarasowe

Nowoczesne okna PVC i aluminiowe WIŚNIOWSKI – doskonała izolacja, elegancki design i niezrównana trwałość.

Wiśniowski
Sprawdź parametry!
Okna dachowe

Oferujemy bezpłatne konsultacje w zakresie wszystkich rozwiązań VELUX. Wyceny, porady dotyczące doboru okien i rolet zewnętrznych - sprawdź!

Velux
Sprawdź szczegóły
Płytki ceramiczne i gresy

Od małych formatów po wielkoformatowe gresy. Marmur, beton, drewno, kamień, lastryko czy cegiełki zamówisz wygodnie online z szybką dostawą.

Ceramzet
Sprawdź ofertę
Drzwi

Ciepłe drzwi WIŚNIOWSKI z kontrolą dostępu. Szeroka gama wzorów i kolorów.

Wiśniowski
Wybierz najlepsze
Bramy garażowe

Automatyczne bramy garażowe segmentowe i uchylne WIŚNIOWSKI na wymiar i z systemem smart home w standardzie.

Wiśniowski
Sprawdź ofertę!
Armatura i ceramika łazienkowa

Topowi producenci. Baterie łazienkowe, zestawy natynkowe i podtynkowe, umywalki, wanny, miski WC oraz kabiny zamówisz kompleksowo online.

Ceramzet II
Dowiedz się więcej
Rekuperacja

Alnor - kompletny system rekuperacji. Dobierz idealne rozwiązanie dla Twojego domu!

Alnor
Dobierz rekuperator
Dach

Producent stalowych pokryć dachowych i systemów elewacyjnych. Precyzja wykonania, trwałość na lata i szybki montaż doceniany przez dekarzy. Postaw na solidny dach Budmat.

Budmat
Sprawdź ofertę
Ogrodzenie

Nowoczesne stalowe ogrodzenia Budmat - estetyka, bezpieczeństwo i trwałość na lata. Systemowe rozwiązania na wymiar, dopasowane do każdego domu.

Budmat
Sprawdź ofertę

Gotowe domy modułowe (118)

Zobacz wszystkie
Stan deweloperski nawet w 6 miesięcy Gwarancja stałej ceny
Zdjęcie 1 projektu Dom szkieletowy One Step Smart 70 HHT1015
Pow. użytkowa
55,49 m²
Pokoje
2
342 468 zł 6 172 zł/m²
Zdjęcie 1 projektu Dom prefabrykowany DH60 HDH1010
Pow. użytkowa
55,13 m²
Pokoje
2
321 400 zł 5 830 zł/m²
Zdjęcie 1 projektu Dom szkieletowy Space Smart 70 HHT1016
Pow. użytkowa
55 m²
Pokoje
3
311 040 zł 5 655 zł/m²
Zdjęcie 1 projektu Dom prefabrykowany DH47 + przedsionek HDH1013
Pow. użytkowa
53,72 m²
Pokoje
2
413 964 zł 7 706 zł/m²
Zdjęcie 1 projektu Dom szkieletowy Mezzanine Smart 50 HHT1010
Pow. użytkowa
61,13 m²
Pokoje
1
324 700 zł 5 346 zł/m²
Zdjęcie 1 projektu Dom prefabrykowany DH47 HDH1001
Pow. użytkowa
51,10 m²
Pokoje
2
378 600 zł 6 321 zł/m²
Zdjęcie 1 projektu Dom mobilny SunStone HLL1002
Gotowy dom mobilny SunStone
Dodano!
Dodano!
Pow. użytkowa
49,21 m²
Pokoje
2
335 500 zł 6 818 zł/m²
Zdjęcie 1 projektu Dom szkieletowy Family Smart HHT1004
Pow. użytkowa
48,91 m²
Pokoje
3
269 400 zł 5 508 zł/m²

Dodatki do projektu

Dodatki możesz zamówić w koszyku lub telefonicznie u naszego Doradcy.

Ikona

Bestseller

Dodatkowy egzemplarz projektu

887 zł

Opis projektu domu
Morski 3

Projekt domu z poddaszem Morski 3 z dachem dwuspadowym, tarasem
Czytaj więcej

Polecani producenci

Kompletne systemy rekuperacji

tło producenta

Alnor

Dowiedz się więcej

Prefabrykowane konstrukcje dachowe

tło producenta

WIĄZAR POLSKA

Zobacz więcej

Sprawdź nową generację okien GREENVIEW

tło producenta

FAKRO

Sprawdź nową generację okien GREENVIEW

Styropian, tynki, farby, kleje

tło producenta

Termo Organika

Poznaj super jakość

Okna, drzwi, osłony przeciwsłoneczne

tło producenta

Aluprof

Sprawdź ofertę
Zobacz więcej

Społeczność projektu domu
Morski 3 w budowie

Dołącz do społeczności osób, które budują ten dom lub są zainteresowane jego budową.

  • Oglądaj zdjęcia z budowy
  • Zadawaj pytania
  • Wymieniaj się doświadczeniami

Opinie o projekcie domu Morski 3

Ocena

Ten projekt nie ma jeszcze opinii, bądź pierwszy!

Dodaj opinię

ASYSTENT WYBORU PROJEKTU

Szukasz idealnego projektu? Znajdziemy go dla Ciebie!

Doradca na podstawie Twoich wskazówek przygotuje spersonalizowaną listę projektów

Graficzne opracowanie rzutów poglądowych widocznych na karcie projektu zostało wykonane przez Extradom.pl. Prezentowane przez Extradom.pl wizualizacje wykonane zostały przez autora projektu i należy poczytywać je jedynie za przykład i propozycję wykończenia, wizję architektoniczną autora projektu. Ostateczne wykończenie budynku może nastąpić na wiele sposobów. Szczegółowe rozwiązania zastosowane w oferowanej dokumentacji - w tym również ilość, lokalizacje i wygląd okien, drzwi, kominów - mogą w niewielkim stopniu różnić się od prezentowanej wizualizacji budynku.

Extradom.pl Spółka z ograniczoną odpowiedzialnością z siedzibą przy ul. Jaworskiej 13, 53-612 Wrocław, wpisana do rejestru przedsiębiorców Krajowego Rejestru Sądowego przez Sąd Rejonowy dla Wrocławia-Fabrycznej we Wrocławiu, VI Wydział Gospodarczy Krajowego Rejestru Sądowego do pod numerem KRS 0000648746, numer NIP 895-17-18-333, o kapitale zakładowym 708 150,00 zł uprzejmie informuje, iż poprzez serwis Extradom.pl umożliwia m.in. zapoznanie się przez konsumentów z ofertą handlową Partnerów Extradom.pl, którzy stosują metody budowy domów przy wykorzystaniu różnego rodzaju technologie prefabrykacji bądź modułowe (tzw. „Gotowe domy”).

Extradom.pl nie prowadzi jednakże sprzedaży ani nie oferuje usług polegających na doradztwie finansowym, prawnym ani podatkowym w zakresie inwestycji realizowanych w technologiach tzw. „Gotowych domów”. Informacje prezentowane w serwisie Extradom.pl dotyczące Partnerów Extradom.pl oferujących realizację inwestycji w technologiach „Gotowych domów” lub podobnych mają charakter informacyjny i reklamowy.

Prezentowane w serwisie Extradom.pl informacje dotyczące stosowanych przez Partnerów metod budowy domów w technologii prefabrykacji bądź modułowej pochodzą od Partnerów Extradom.pl.

Extradom.pl sp. z o.o. jedynie umożliwia nawiązanie kontaktu przez Użytkownika z Partnerem Extradom.pl stosującym tego rodzaju technologie budowy domów i nie jest stroną umowy o roboty budowlane zawieranej przez Użytkownika Extradom.pl z Partnerem Extradom.pl.

REKLAMA
Zamknij