👉 Wiosenne okazje + karta allegro 200 zł! 🔥

Koniec oferty za:

00godz.

00min.

00sek.

Sprawdź

Projekt domu Mirów 3 KRP1093

Zapisz Dodano!
Porównaj Dodano!
ikona Pobierz i drukuj

Warstwy

Warstwy

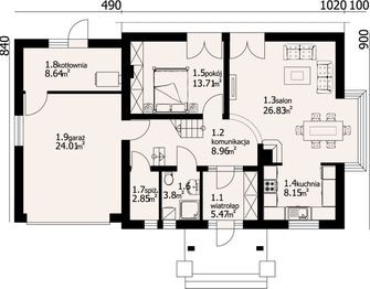
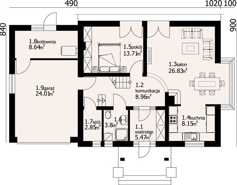
Rzut parteru

Powierzchnia (m²)
Tooltip
Powierzchnia pomieszczenia
to ta, z której faktycznie możesz korzystać – skosy i niskie części poddasza są liczone częściowo lub wcale.
  1. 100% dla wysokości powyżej 2,2 m,
  2. 50% dla wysokości 1,4–2,2 m,
  3. nie liczymy poniżej 1,4 m.

Powierzchnia podłogi
Liczymy po obrysie pomieszczenia, bez względu na jego wysokość/skosy. Jeśli nie ma skosów to powierzchnia podłogi i pomieszczenia jest taka sama.
pomieszczenia i podłogi
podłogi
1. Wiatrołap
5,47
2. Hall
8,96
3. Pokój dzienny
26,83
4. Kuchnia
8,15
5. Pokój
13,71
6. Łazienka
3,80
7. Spiżarnia
2,85
8. Kotłownia
8,64
9. Garaż jednostanowiskowy
24,01
Razem
102,42
102,42
Powierzchnia (m²)
Tooltip
Powierzchnia pomieszczenia
to ta, z której faktycznie możesz korzystać – skosy i niskie części poddasza są liczone częściowo lub wcale.
  1. 100% dla wysokości powyżej 2,2 m,
  2. 50% dla wysokości 1,4–2,2 m,
  3. nie liczymy poniżej 1,4 m.

Powierzchnia podłogi
Liczymy po obrysie pomieszczenia, bez względu na jego wysokość/skosy. Jeśli nie ma skosów to powierzchnia podłogi i pomieszczenia jest taka sama.
pomieszczenia
podłogi
1. Korytarz
7,63
12,48
2. Pokój
15,43
19,08
3. Pokój
15,67
18,85
4. Pokój
11,70
14,17
5. Łazienka
4,80
7,49
6. Strych
3,40
9,40
7. Strych
17,80
24,25
Razem
76,43
105,72

    Usytuowanie na działce

    Czy ten projekt pasuje na
    Twoją działkę?

    Chętnie to sprawdzimy!

    Dowiedz się:

    • czy zmieści się na niej wybrany przez Ciebie dom
    • jakie parametry musi spełniać dom według miejscowego planu zagospodarowania lub warunków zabudowy (np. kąt nachylenia i typ dachu, liczba kondygnacji itp.
    • jakie inne projekty pasują na Twoją działkę – znajdziemy je dla Ciebie!

Pow. użytkowa

125 m²

Pokoje

4

Łazienki i WC

2

Garaż

1

Min. szer. i dł. działki

24,08 x 17 m

Kąt dachu

42°

Konstrukcja

Murowana
więcej

Mirów 3 - KRP1093

ikona 125 m²
Powierzchnia użytkowa
ikona4
Pokoje (bez salonu)
ikona 2
Łazienki (z toaletami)
ikona 1
Liczba stanowisk garażowych
(z wiatą garażową)
ikona
Konstrukcja: Murowana

Projekt został
wycofany z oferty

W razie pytań prosimy o kontakt
z Centrum Obsługi Klienta
Konsultant
71 715 20 60

pon.-pt. 8-21, sob. 9-17

Parter - 102,42 m²

Parter projektu Mirów 3

Zapytaj, co możesz zmienić

Powierzchnia (m²)
Tooltip
Powierzchnia pomieszczenia
to ta, z której faktycznie możesz korzystać – skosy i niskie części poddasza są liczone częściowo lub wcale.
  1. 100% dla wysokości powyżej 2,2 m,
  2. 50% dla wysokości 1,4–2,2 m,
  3. nie liczymy poniżej 1,4 m.

Powierzchnia podłogi
Liczymy po obrysie pomieszczenia, bez względu na jego wysokość/skosy. Jeśli nie ma skosów to powierzchnia podłogi i pomieszczenia jest taka sama.
pomieszczenia i podłogi
podłogi
1. Wiatrołap
5,47
2. Hall
8,96
3. Pokój dzienny
26,83
4. Kuchnia
8,15
5. Pokój
13,71
6. Łazienka
3,80
7. Spiżarnia
2,85
8. Kotłownia
8,64
9. Garaż jednostanowiskowy
24,01
Razem
102,42
102,42

Poddasze - 76,43 m²

Poddasze projektu Mirów 3

Zapytaj, co możesz zmienić

Powierzchnia (m²)
Tooltip
Powierzchnia pomieszczenia
to ta, z której faktycznie możesz korzystać – skosy i niskie części poddasza są liczone częściowo lub wcale.
  1. 100% dla wysokości powyżej 2,2 m,
  2. 50% dla wysokości 1,4–2,2 m,
  3. nie liczymy poniżej 1,4 m.

Powierzchnia podłogi
Liczymy po obrysie pomieszczenia, bez względu na jego wysokość/skosy. Jeśli nie ma skosów to powierzchnia podłogi i pomieszczenia jest taka sama.
pomieszczenia
podłogi
1. Korytarz
7,63
12,48
2. Pokój
15,43
19,08
3. Pokój
15,67
18,85
4. Pokój
11,70
14,17
5. Łazienka
4,80
7,49
6. Strych
3,40
9,40
7. Strych
17,80
24,25
Razem
76,43
105,72

Podobne projekty (2136)

Zobacz wszystkie
NIŻSZA CENA 🔥
Zdjęcie 1 projektu BW-44 wariant 4 JGC1144
BW-44 wariant 4
Dodano!
Dodano!
121,10 m²
4
2
1

3 770 zł

3 870 zł

Tooltip

Cena regularna

3 770 zł najniższa cena
Tooltip

Najniższa cena z 30 dni
przed obniżką

NIŻSZA CENA 🔥
Zdjęcie 1 projektu Dominik Rex (1686) KRD2839
Dominik Rex (1686)
Dodano!
Dodano!
123,30 m²
5
2
1

4 540 zł

4 890 zł

Tooltip

Cena regularna

4 510 zł najniższa cena
Tooltip

Najniższa cena z 30 dni
przed obniżką

NIŻSZA CENA 🔥
Zdjęcie 1 projektu Narcyz 3 WAH2028
Narcyz 3
Dodano!
Dodano!
125,59 m²
6
3
1

5 832 zł

7 290 zł

Tooltip

Cena regularna

5 832 zł najniższa cena
Tooltip

Najniższa cena z 30 dni
przed obniżką

NIŻSZA CENA 🔥
Zdjęcie 1 projektu BW-49 wariant 14 JGC1022
BW-49 wariant 14
Dodano!
Dodano!
112,30 m²
4
2
1

3 770 zł

3 870 zł

Tooltip

Cena regularna

3 770 zł najniższa cena
Tooltip

Najniższa cena z 30 dni
przed obniżką

NIŻSZA CENA 🔥
Zdjęcie 1 projektu APS 161 NEW + 2G LUA1502
APS 161 NEW + 2G
Dodano!
Dodano!
121,50 m²
4
2
2

4 449 zł

4 999 zł

Tooltip

Cena regularna

4 449 zł najniższa cena
Tooltip

Najniższa cena z 30 dni
przed obniżką

NIŻSZA CENA 🔥
Zdjęcie 1 projektu Ajaks 5 WOE1160
Ajaks 5
Dodano!
Dodano!
127,54 m²
4
2
1

4 099 zł

4 499 zł

Tooltip

Cena regularna

4 099 zł najniższa cena
Tooltip

Najniższa cena z 30 dni
przed obniżką

NIŻSZA CENA 🔥
Zdjęcie 1 projektu BW-46 wariant 1 JGC1255
BW-46 wariant 1
Dodano!
Dodano!
127,70 m²
4
2
1

3 980 zł

4 080 zł

Tooltip

Cena regularna

3 980 zł najniższa cena
Tooltip

Najniższa cena z 30 dni
przed obniżką

NIŻSZA CENA 🔥
Zdjęcie 1 projektu BW-44 JGC1055
BW-44
Dodano!
Dodano!
133,70 m²
4
2
1

3 980 zł

4 080 zł

Tooltip

Cena regularna

3 980 zł najniższa cena
Tooltip

Najniższa cena z 30 dni
przed obniżką

Elewacje

Frontowa
Tylna
Lewa
Prawa

Przekroje

Przekrój pionowy

Usytuowanie na działce

Czy ten projekt pasuje na
Twoją działkę?

Chętnie to sprawdzimy!

Czy ten projekt pasuje na
Twoją działkę?

Chętnie to sprawdzimy!

Dowiedz się:

  • czy zmieści się na niej wybrany przez Ciebie dom
  • jakie parametry musi spełniać dom według miejscowego planu zagospodarowania lub warunków zabudowy (np. kąt nachylenia i typ dachu, liczba kondygnacji itp.
  • jakie inne projekty pasują na Twoją działkę – znajdziemy je dla Ciebie!
Autor: Dom-Projekt

Dane techniczne projektu

Powierzchnie i wymiary Powierzchnie i wymiary

Powierzchnia użytkowa
Tooltip
Suma powierzchni wszystkich pomieszczeń mieszkalnych, pomniejszona o pow. garażu, kotłowni, strychu, piwnicy. Jest liczona w 100% dla pomieszczeń o wysokości powyżej 2,2 m, w 50% dla pomieszczeń o wys. 2,2-1,4 m i niewliczana dla niższych niż 1,4 m.

125 m²

Wysokość ściany kolankowej
Tooltip
Wysokość ściany podpierającej dach. Jej wysokość wpływa na powierzchnię użytkową kondygnacji, na której się znajduje.

0,97 m

Powierzchnia zabudowy
Tooltip
Powierzchnia zajmowana przez część na- oraz nadziemną budynku liczona, jako rzut pionowy budynku na działkę.

136,66 m²

Powierzchnia netto
Tooltip
Powierzchna wszystkich pomieszczeń w budynku mierzona na wysokości podłogi.

214,18 m²

Kubatura brutto
Tooltip
Zazwyczaj jest to suma kubatur (objętości) wszystkich pomieszczeń budynku, liczonych po zewnętrznym obrysie murów (z ociepleniem).

728 m³

Powierzchnia dachu

247,95 m²

Kąt nachylenia dachu
Tooltip
Nachylenie połaci dachu głównego podawane w stopniach. Uwaga! W niektórych projektach występuje więcej niż jedno nachylenie dachu.

42°

Wysokość budynku
Tooltip
Wysokość liczona od części budynku położonej najniżej przy powierzchni terenu do najwyższego punktu dachu (kalenicy) z wyłączeniem kominów.

8,70 m

Min. szerokość działki
Tooltip
Najmniejsza możliwa szerokość działki niezbędna do wybudowania wybranego domu. Składa się z szerokości elewacji domu powiększonej z obu stron o 3 m dla ściany bez otworów drzwiowych/okiennych lub 4 m, dla ściany z otworami.

24,08 m

Min. długość działki
Tooltip
Najmniejsza możliwa długość działki niezbędna do wybudowania wybranego domu. Składa się z długości elewacji domu powiększonej z obu stron o 3 m dla ściany bez otworów drzwiowych/okiennych lub 4 m, dla ściany z otworami.

17 m

Energooszczędność Energooszczędność

Oze Czym jest OZE (Odnawialne Źródło Energii)?
Warunki techniczne

Projekt zgody z WT 2021

Technologia i konstrukcja Technologia i konstrukcja

Konstrukcja

Murowana

Opis szczegółowy

Wysokość ścianki kolankowej: 0.97 m. Strop: płyta żelbetowa. Pokrycie dachu: dachówka ceramiczna. Ściany zewnętrzne: pustaki ceramiczne + styropian. Ściany wewnętrzne: pustaki ceramiczne. Typ ogrzewania: kocioł gazowy. Inne: okna połaciowe Velux.

Strop

Żelbetowy

Reklama
Okna i drzwi tarasowe

Nowoczesne okna PVC i aluminiowe WIŚNIOWSKI – doskonała izolacja, elegancki design i niezrównana trwałość.

Wiśniowski
Sprawdź parametry!
Okna dachowe

Oferujemy bezpłatne konsultacje w zakresie wszystkich rozwiązań VELUX. Wyceny, porady dotyczące doboru okien i rolet zewnętrznych - sprawdź!

Velux
Sprawdź szczegóły
Płytki ceramiczne i gresy

Od małych formatów po wielkoformatowe gresy. Marmur, beton, drewno, kamień, lastryko czy cegiełki zamówisz wygodnie online z szybką dostawą.

Ceramzet
Sprawdź ofertę
Elewacja

Kup przez internet wszystkie materiały potrzebne do wykonania elewacji: styropian, płyty PIR, XPS, kleje, tynki. Najlepsze marki w super cenach z dostawą pod dom.

Hurtownia styropianu
Sprawdź ofertę!
Drzwi

Ciepłe drzwi WIŚNIOWSKI z kontrolą dostępu. Szeroka gama wzorów i kolorów.

Wiśniowski
Wybierz najlepsze
Bramy garażowe

Automatyczne bramy garażowe segmentowe i uchylne WIŚNIOWSKI na wymiar i z systemem smart home w standardzie.

Wiśniowski
Sprawdź ofertę!
Armatura i ceramika łazienkowa

Topowi producenci. Baterie łazienkowe, zestawy natynkowe i podtynkowe, umywalki, wanny, miski WC oraz kabiny zamówisz kompleksowo online.

Ceramzet II
Dowiedz się więcej
Rekuperacja

Alnor - kompletny system rekuperacji. Dobierz idealne rozwiązanie dla Twojego domu!

Alnor
Dobierz rekuperator
Dach

Producent stalowych pokryć dachowych i systemów elewacyjnych. Precyzja wykonania, trwałość na lata i szybki montaż doceniany przez dekarzy. Postaw na solidny dach Budmat.

Budmat
Sprawdź ofertę
Ogrodzenie

Nowoczesne stalowe ogrodzenia Budmat - estetyka, bezpieczeństwo i trwałość na lata. Systemowe rozwiązania na wymiar, dopasowane do każdego domu.

Budmat
Sprawdź ofertę

Gotowe domy - najszybszy sposób na dom (115)

Zobacz wszystkie
  • Stan deweloperski nawet w 6 miesięcy
  • Gwarancja stałej ceny
Skonfiguruj dom
Zdjęcie 1 projektu Bergen 130 HUS1002
130,40 m²
4
Stan deweloperski brutto
499 000 zł 3 827 zł/m²
Zdjęcie 1 projektu Dom prefabrykowany Parterowy 120B HFX1016
122,36 m²
3
Stan deweloperski brutto
515 000 zł 4 209 zł/m²
Zdjęcie 1 projektu Dom szkieletowy Twin Smart 170 HHT1031
121,95 m²
5
Stan deweloperski brutto
1 650 700 zł 13 536 zł/m²
Zdjęcie 1 projektu Dom prefabrykowany P.3 z okapem HPK1013
121,46 m²
5
Stan deweloperski brutto
630 000 zł 5 187 zł/m²
Zdjęcie 1 projektu Dom prefabrykowany P.3 bez okapu HPK1002
121,46 m²
5
Stan deweloperski brutto
617 300 zł 5 082 zł/m²
Zdjęcie 1 projektu Dom prefabrykowany Parterowy 120A HFX1015
121,44 m²
4
Stan deweloperski brutto
515 000 zł 4 241 zł/m²
Zdjęcie 1 projektu Dom prefabrykowany Parterowy 120C HFX1017
120,06 m²
4
Stan deweloperski brutto
515 000 zł 4 290 zł/m²
Zdjęcie 1 projektu Dom szkieletowy Emily Smart 120 HHT1026
120 m²
3
Stan deweloperski brutto
592 512 zł 4 938 zł/m²

Opis projektu domu
Mirów 3

Dom Mirów 3 charakteryzuje klasyczna, szeroka bryła z dachem dwuspadowym i przyległym do niej, jednostanowiskowym garażem. Budynek jest obszerny, wiec wymaga dużej działki, poza tym posiada użytkowe poddasze wyposażone w balkony oraz lukarny. Do wnętrza domu przechodzimy przez wiatrołap, gdzie zmieszczą się pojemne szafy, dalej znajduje się centralnie położony hall z klatką schodową. Prowadzi on do strefy dziennej, łazienki, pokoju, do małej, ukrytej pod schodami spiżarni oraz przejścia do garażu. Pokój można wykorzystać jako sypialnię, ze względu na jego komfortowe położenie na parterze oraz wyjście na taras. Strefa dzienna to przestronne i widne wnętrze salonu połączonego z jadalnią oraz kuchnią. Jadalnia świetnie wkomponuje się w wykusz i za sprawą odpowiedniej aranżacji może stać się elementem reprezentacyjnym pomieszczenia. Dzięki trzem obszernym pokojom, przeznaczonym na część sypialną, poddasze jest w stanie pomieścić 5-6 osób. Biorąc pod uwagę również sypialnię na parterze, dom Mirów 3 jest idealną propozycją dla bardzo dużej rodziny. Ogromną zaletą projektu jest pojemność domu. Umiejętne zagospodarowanie powierzchni przyniosło korzyści w postaci szerokich i komfortowych pokoi oraz poręcznych pomieszczeń pomocniczych. Dzięki temu może tam zamieszkać dużo osób, bez wypływu na komfort użytkowania przestrzeni domu.
Czytaj więcej

Polecani producenci

Kompletne systemy rekuperacji

tło producenta

Alnor

Dowiedz się więcej

Prefabrykowane konstrukcje dachowe

tło producenta

WIĄZAR POLSKA

Zobacz więcej

Sprawdź nową generację okien GREENVIEW

tło producenta

FAKRO

Sprawdź nową generację okien GREENVIEW

Styropian, tynki, farby, kleje

tło producenta

Termo Organika

Poznaj super jakość

Okna, drzwi, osłony przeciwsłoneczne

tło producenta

Aluprof

Sprawdź ofertę
Zobacz więcej

Społeczność projektu domu
Mirów 3 w budowie

Dołącz do społeczności osób, które budują ten dom lub są zainteresowane jego budową.

  • Oglądaj zdjęcia z budowy
  • Zadawaj pytania
  • Wymieniaj się doświadczeniami

Opinie o projekcie domu Mirów 3

4

Na podstawie 1 recenzji

Wspaniały!
0%
Bardzo dobry
100%
Średni
0%
Słaby
0%
Bardzo słaby
0%

Wywiady mieszkańców domu Mirów 3

Zdjęcie profilowe użytkownika mały 1980 mały 1980

Wybierając projekt domu najważniejsze znaczenie miał dla mnie funkcjonalny układ pomieszczeń, aczkolwiek kwestia wizualna również była istotna. Lukarny dachowe uważamy za bardzo ciekawe elementy architektoniczne i chcieliśmy, aby nowy dom uwzględniał dwa takie ozdobniki. Oprócz tego interesował nas szeroki garaż uwzględniony w bryle. Oglądając różne propozycje natrafiliśmy na projekt Mirów 3 KRP1093, który od razu przypadł nam do gustu. Przewidziane wnętrze wydało nam się wyjątkowo dobrze zaplanowane i w całości spełniało nasze oczekiwania. W efekcie zdecydowaliśmy się na jego zakup, a następnie realizację.Wszystkie prace budowlane postępowały całkiem sprawnie. Co prawda jak chyba podczas większości tego typu inwestycji nie obyło się bez pewnych niejasnych sytuacji związanych z wykonawcami, ale na szczęście nie było to nic mającego wpływ na przebieg budowy. Dokumentacja techniczna była poprawnie sporządzona, a całą realizację udało się zakończyć w korzystnym czasie. Od rozpoczęcia wykopów fundamentowych, do wprowadzenia się do w pełni wykończonego domu minęło w naszym przypadku 1,5 roku.Budynek został postawiony z bloczków z betonu komórkowego Ytong. Zmieniliśmy sugerowaną w projekcie konstrukcje stropu i wykonaliśmy go systemem Teriva. Dach pokryliśmy dachówką. Uważam, że decydując się na realizację projektu domu Mirów 3 KRP1093 bezpieczniej od razu założyć wyższe koszta niż oszacowane w kosztorysie. Przy zastosowaniu powyższych materiałów stan surowy zamknięty wyniósł ok. 300 tys. zł.Zewnętrzną izolację bryły tworzy 15 cm grafitowego styropianu. Dom oraz wodę użytkową ogrzewamy za pomocą pieca na paliwo stałe, a za sobą mamy już pierwszy sezon grzewczy od zamieszkania. W okresie zimowym zużywaliśmy ok. 0,5 tony ekogroszku na miesiąc.Układ pomieszczeń uwzględniony w projekcie domu parterowego z poddaszem użytkowym Mirów 3 KRP1093 od początku nam odpowiadał. Został funkcjonalnie przemyślany i był jednym z głównych powodów dla których zdecydowaliśmy się na jego zakup. Z tego względu postanowiliśmy wykonać go w całości zgodnie z oryginalną wersją. Jedyne wprowadzone zmiany polegały na zmodyfikowaniu kominka oraz lekkim przesunięciu ścianki działowej na strychu. Wnętrze nowego domu w dalszym ciągu bardzo nam się podoba i dostrzegamy w nim same plusy. Rozmieszczenie jest wygodnie w codziennym użytkowaniu, a pokoje mają optymalne wymiary. Obecnie w domu mieszkamy we trójkę, więc taki metraż jest dla nas w pełni komfortowy. Myślę, że taka powierzchnia usatysfakcjonowałaby nawet 5-6-osobową rodzinę. Pozdrawiam.

ASYSTENT WYBORU PROJEKTU

Szukasz idealnego projektu? Znajdziemy go dla Ciebie!

Doradca na podstawie Twoich wskazówek przygotuje spersonalizowaną listę projektów

Graficzne opracowanie rzutów poglądowych widocznych na karcie projektu zostało wykonane przez Extradom.pl. Prezentowane przez Extradom.pl wizualizacje wykonane zostały przez autora projektu i należy poczytywać je jedynie za przykład i propozycję wykończenia, wizję architektoniczną autora projektu. Ostateczne wykończenie budynku może nastąpić na wiele sposobów. Szczegółowe rozwiązania zastosowane w oferowanej dokumentacji - w tym również ilość, lokalizacje i wygląd okien, drzwi, kominów - mogą w niewielkim stopniu różnić się od prezentowanej wizualizacji budynku.

REKLAMA
Zamknij