Projekt domu Krokus KSA1314

Zapisz Dodano!
Porównaj Dodano!
ikona Pobierz i drukuj

Warstwy

Warstwy

Rzut parteru

Powierzchnia (m²)
Tooltip
Powierzchnia pomieszczenia
to ta, z której faktycznie możesz korzystać – skosy i niskie części poddasza są liczone częściowo lub wcale.
  1. 100% dla wysokości powyżej 2,2 m,
  2. 50% dla wysokości 1,4–2,2 m,
  3. nie liczymy poniżej 1,4 m.

Powierzchnia podłogi
Liczymy po obrysie pomieszczenia, bez względu na jego wysokość/skosy. Jeśli nie ma skosów to powierzchnia podłogi i pomieszczenia jest taka sama.
pomieszczenia i podłogi
podłogi
1. Wiatrołap
4,50
2. Garaż jednostanowiskowy
17,60
3. Pomieszczenie gospodarcze
4,60
4. Hall
8,10
5. Schody
6,20
6. Spiżarnia
2,70
7. Kuchnia
8,60
8. Jadalnia
11
9. Wc
1,90
10. Pokój dzienny
23,20
Razem
88,40
88,40
Powierzchnia (m²)
Tooltip
Powierzchnia pomieszczenia
to ta, z której faktycznie możesz korzystać – skosy i niskie części poddasza są liczone częściowo lub wcale.
  1. 100% dla wysokości powyżej 2,2 m,
  2. 50% dla wysokości 1,4–2,2 m,
  3. nie liczymy poniżej 1,4 m.

Powierzchnia podłogi
Liczymy po obrysie pomieszczenia, bez względu na jego wysokość/skosy. Jeśli nie ma skosów to powierzchnia podłogi i pomieszczenia jest taka sama.
pomieszczenia i podłogi
podłogi
11. Hall
9,30
12. Łazienka
5
13. Garderoba
1,10
14. Pokój
8,50
15. Pokój
9,30
16. Garderoba
1,30
17. Łazienka
5
18. Pokój
10,80
19. Garderoba
1,40
Razem
51,70
51,70

    Usytuowanie na działce

    Czy ten projekt pasuje na
    Twoją działkę?

    Chętnie to sprawdzimy!

    Dowiedz się:

    • czy zmieści się na niej wybrany przez Ciebie dom
    • jakie parametry musi spełniać dom według miejscowego planu zagospodarowania lub warunków zabudowy (np. kąt nachylenia i typ dachu, liczba kondygnacji itp.
    • jakie inne projekty pasują na Twoją działkę – znajdziemy je dla Ciebie!

Pow. użytkowa

121,40 m²

Pokoje

3

Łazienki i WC

3

Garaż

1

Min. szer. i dł. działki

21,5 x 18,90 m

Kąt dachu

40°

Konstrukcja

Murowana
więcej

Krokus - KSA1314

ikona 121,40 m²
Powierzchnia użytkowa
ikona3
Pokoje (bez salonu)
ikona 3
Łazienki (z toaletami)
ikona 1
Liczba stanowisk garażowych
(z wiatą garażową)
ikona
Konstrukcja: Murowana

Projekt został
wycofany z oferty

W razie pytań prosimy o kontakt
z Centrum Obsługi Klienta
Konsultant
71 715 20 60

pon.-pt. 8-21, sob. 9-17

Parter - 88,40 m²

Parter projektu Krokus

Zapytaj, co możesz zmienić

Powierzchnia (m²)
Tooltip
Powierzchnia pomieszczenia
to ta, z której faktycznie możesz korzystać – skosy i niskie części poddasza są liczone częściowo lub wcale.
  1. 100% dla wysokości powyżej 2,2 m,
  2. 50% dla wysokości 1,4–2,2 m,
  3. nie liczymy poniżej 1,4 m.

Powierzchnia podłogi
Liczymy po obrysie pomieszczenia, bez względu na jego wysokość/skosy. Jeśli nie ma skosów to powierzchnia podłogi i pomieszczenia jest taka sama.
pomieszczenia i podłogi
podłogi
1. Wiatrołap
4,50
2. Garaż jednostanowiskowy
17,60
3. Pomieszczenie gospodarcze
4,60
4. Hall
8,10
5. Schody
6,20
6. Spiżarnia
2,70
7. Kuchnia
8,60
8. Jadalnia
11
9. Wc
1,90
10. Pokój dzienny
23,20
Razem
88,40
88,40

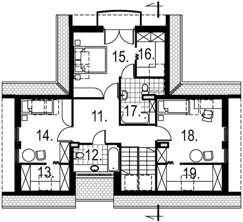
Poddasze - 51,70 m²

Poddasze projektu Krokus

Zapytaj, co możesz zmienić

Powierzchnia (m²)
Tooltip
Powierzchnia pomieszczenia
to ta, z której faktycznie możesz korzystać – skosy i niskie części poddasza są liczone częściowo lub wcale.
  1. 100% dla wysokości powyżej 2,2 m,
  2. 50% dla wysokości 1,4–2,2 m,
  3. nie liczymy poniżej 1,4 m.

Powierzchnia podłogi
Liczymy po obrysie pomieszczenia, bez względu na jego wysokość/skosy. Jeśli nie ma skosów to powierzchnia podłogi i pomieszczenia jest taka sama.
pomieszczenia i podłogi
podłogi
11. Hall
9,30
12. Łazienka
5
13. Garderoba
1,10
14. Pokój
8,50
15. Pokój
9,30
16. Garderoba
1,30
17. Łazienka
5
18. Pokój
10,80
19. Garderoba
1,40
Razem
51,70
51,70

Podobne projekty (2154)

Zobacz wszystkie
PREZENT 🎁
Zdjęcie 1 projektu Skarbek As (1546) KRD2695
Skarbek As (1546)
Dodano!
Dodano!
115,10 m²
4
2
1

4 890 zł

PREZENT 🎁
Zdjęcie 1 projektu Leo BSA1701
Leo
Dodano!
Dodano!
126,28 m²
3
2
1

5 349 zł

PREZENT 🎁
Zdjęcie 1 projektu Krajobrazy 25 WRN1578
Krajobrazy 25
Dodano!
Dodano!
120,60 m²
3
2
1

4 195 zł

PREZENT 🎁
Zdjęcie 1 projektu TK12 WAK1027
TK12
Dodano!
Dodano!
126,04 m²
3
3
0

3 390 zł

PREZENT 🎁
Zdjęcie 1 projektu Dom przy Kolorowej 2 KRK1641
Dom przy Kolorowej 2
Dodano!
Dodano!
124,93 m²
3
2
1

4 290 zł

PREZENT 🎁
Zdjęcie 1 projektu Tymek G1 energo WRC2827
Tymek G1 energo
Dodano!
Dodano!
124,57 m²
3
2
1

5 900 zł

PREZENT 🎁
Zdjęcie 1 projektu Amant 3 WOE1105
Amant 3
Dodano!
Dodano!
124,75 m²
3
2
1

4 599 zł

PREZENT 🎁
Zdjęcie 1 projektu Tetyda BSA2295
Tetyda
Dodano!
Dodano!
132,19 m²
4
2
2

6 349 zł

Elewacje

Frontowa
Tylna
Lewa
Prawa

Przekroje

Przekrój pionowy

Usytuowanie na działce

Czy ten projekt pasuje na
Twoją działkę?

Chętnie to sprawdzimy!

Czy ten projekt pasuje na
Twoją działkę?

Chętnie to sprawdzimy!

Dowiedz się:

  • czy zmieści się na niej wybrany przez Ciebie dom
  • jakie parametry musi spełniać dom według miejscowego planu zagospodarowania lub warunków zabudowy (np. kąt nachylenia i typ dachu, liczba kondygnacji itp.
  • jakie inne projekty pasują na Twoją działkę – znajdziemy je dla Ciebie!
Autor: ArchTim

Dane techniczne projektu

Powierzchnie i wymiary Powierzchnie i wymiary

Powierzchnia użytkowa
Tooltip
Suma powierzchni wszystkich pomieszczeń mieszkalnych, pomniejszona o pow. garażu, kotłowni, strychu, piwnicy. Jest liczona w 100% dla pomieszczeń o wysokości powyżej 2,2 m, w 50% dla pomieszczeń o wys. 2,2-1,4 m i niewliczana dla niższych niż 1,4 m.

121,40 m²

Powierzchnia zabudowy
Tooltip
Powierzchnia zajmowana przez część na- oraz nadziemną budynku liczona, jako rzut pionowy budynku na działkę.

116,90 m²

Powierzchnia dachu

183 m²

Kąt nachylenia dachu
Tooltip
Nachylenie połaci dachu głównego podawane w stopniach. Uwaga! W niektórych projektach występuje więcej niż jedno nachylenie dachu.

40°

Wysokość budynku
Tooltip
Wysokość liczona od części budynku położonej najniżej przy powierzchni terenu do najwyższego punktu dachu (kalenicy) z wyłączeniem kominów.

7,07 m

Min. szerokość działki
Tooltip
Najmniejsza możliwa szerokość działki niezbędna do wybudowania wybranego domu. Składa się z szerokości elewacji domu powiększonej z obu stron o 3 m dla ściany bez otworów drzwiowych/okiennych lub 4 m, dla ściany z otworami.

21,50 m

Min. długość działki
Tooltip
Najmniejsza możliwa długość działki niezbędna do wybudowania wybranego domu. Składa się z długości elewacji domu powiększonej z obu stron o 3 m dla ściany bez otworów drzwiowych/okiennych lub 4 m, dla ściany z otworami.

18,90 m

Energooszczędność Energooszczędność

Oze Czym jest OZE (Odnawialne Źródło Energii)?
Warunki techniczne

Projekt zgody z WT 2021

Technologia i konstrukcja Technologia i konstrukcja

Konstrukcja

Murowana

Opis szczegółowy

Ściany zewnętrzne dwuwarstwowe: cegła SILKA + wełna mineralna + tynk. Ściany zewnętrzne trójwarstwowe: cegła SILKA + wełna mineralna + cegła klinkierowa. Ściany wewnętrzne: cegła SILKA i/lub płyty na ruszcie stalowym, wygłuszone wełną mineralną. Strop: wylewany. Więźba dachowa: drewniana. Poszycie dachu: dachówka cementowa. Stolarka okienna i drzwiowa: drewniana lub PCV.

Strop

Żelbetowy

Reklama
Okna i drzwi tarasowe

Nowoczesne okna PVC i aluminiowe WIŚNIOWSKI – doskonała izolacja, elegancki design i niezrównana trwałość.

Wiśniowski
Sprawdź parametry!
Okna dachowe

Oferujemy bezpłatne konsultacje w zakresie wszystkich rozwiązań VELUX. Wyceny, porady dotyczące doboru okien i rolet zewnętrznych - sprawdź!

Velux
Sprawdź szczegóły
Pompa ciepła

Wybierz pompę ciepła, która pasuje do Twojego domu. Niezależnie od tego, czy ustawienie wewnątrz czy na zewnątrz, pompy ciepła STIEBEL ELTRON dopasują się do każdej przestrzeni.

Stiebel
Dowiedz się więcej
Płytki ceramiczne i gresy

Od małych formatów po wielkoformatowe gresy. Marmur, beton, drewno, kamień, lastryko czy cegiełki zamówisz wygodnie online z szybką dostawą.

Ceramzet
Sprawdź ofertę
Drzwi

Ciepłe drzwi WIŚNIOWSKI z kontrolą dostępu. Szeroka gama wzorów i kolorów.

Wiśniowski
Wybierz najlepsze
Bramy garażowe

Automatyczne bramy garażowe segmentowe i uchylne WIŚNIOWSKI na wymiar i z systemem smart home w standardzie.

Wiśniowski
Sprawdź ofertę!
Rekuperacja

Alnor - kompletny system rekuperacji. Dobierz idealne rozwiązanie dla Twojego domu!

Alnor
Dobierz rekuperator
Dach

Producent stalowych pokryć dachowych i systemów elewacyjnych. Precyzja wykonania, trwałość na lata i szybki montaż doceniany przez dekarzy. Postaw na solidny dach Budmat.

Budmat
Sprawdź ofertę
Ogrodzenie

Nowoczesne stalowe ogrodzenia Budmat - estetyka, bezpieczeństwo i trwałość na lata. Systemowe rozwiązania na wymiar, dopasowane do każdego domu.

Budmat
Sprawdź ofertę

Gotowe domy - najszybszy sposób na dom (115)

Zobacz wszystkie
  • Stan deweloperski nawet w 6 miesięcy
  • Gwarancja stałej ceny
Skonfiguruj dom
Zdjęcie 1 projektu Bergen 130 HUS1002
130,40 m²
4
Stan deweloperski brutto
499 000 zł 3 827 zł/m²
Zdjęcie 1 projektu Dom prefabrykowany Parterowy 120A HFX1015
121,44 m²
4
Stan deweloperski brutto
515 000 zł 4 241 zł/m²
Zdjęcie 1 projektu Dom prefabrykowany P.3 z okapem HPK1013
121,46 m²
5
Stan deweloperski brutto
630 000 zł 5 187 zł/m²
Zdjęcie 1 projektu Dom prefabrykowany P.3 bez okapu HPK1002
121,46 m²
5
Stan deweloperski brutto
617 300 zł 5 082 zł/m²
Zdjęcie 1 projektu Dom szkieletowy Twin Smart 170 HHT1031
121,95 m²
5
Stan deweloperski brutto
1 650 700 zł 13 536 zł/m²
Zdjęcie 1 projektu Dom prefabrykowany Parterowy 120B HFX1016
122,36 m²
3
Stan deweloperski brutto
515 000 zł 4 209 zł/m²
Zdjęcie 1 projektu Dom prefabrykowany Parterowy 120C HFX1017
120,06 m²
4
Stan deweloperski brutto
515 000 zł 4 290 zł/m²
Zdjęcie 1 projektu Dom szkieletowy Emily Smart 120 HHT1026
120 m²
3
Stan deweloperski brutto
592 512 zł 4 938 zł/m²

Opis projektu domu
Krokus

Projekt Krokus propozycja domu przeznaczonego na średniej wielkości działkę, cechującego się wyjątkowo funkcjonalnym wnętrzem. Posiada nieskomplikowaną bryłę w kształcie litery T, dzięki czemu jest łatwy w budowie i jednocześnie wyróżnia się na tle innych. Zaletą takiej formy bryły jest również doskonale wydzielona strefowość części mieszkalnej. Wielospadowy dach podnosi jego walory wizualne. Zewnętrzny wygląd domu uwydatnia cechy charakterystyczne dla stylu tradycyjnego, dzięki czemu dobrze wpisze się w każdą działkę, niezależnie od otoczenia. W bryle autor uwzględnił wykonanie jednostanowiskowego garażu. Przewidziany w projekcie układ wnętrza zapewnia komfort mieszkania oraz poczucie prywatności domowników. Zwolenników tradycyjnych rozwiązań z pewnością usatysfakcjonuje osobna klatka schodowa w hallu, w pobliżu wiatrołapu. Dzięki temu, po powrocie do domu można udać się od razu do sypialni, bez potrzeby przechodzenia przez część dzienną. Kuchnia i jadalnia zostały oddzielone od strefy jadalnianej, co szczególnie docenią rodzice mniejszych dzieci. Przy takim układzie, łatwiej zachować porządek w salonie, a w trakcie wizyt gości, kuchnia w której nie zawsze mamy idealnie czysto, jest poza zasięgiem wzroku. Ciekawym elementem jest z pewnością usytuowany w salonie kominek. Nadaje on wnętrzu nastrojowej atmosfery, a także wspomaga system grzewczy podczas chłodniejszych dni. W hallu przewidziano ubikację, co ogranicza potrzebę korzystania ze schodów. na poddaszu znajdują się trzy sypialnie - każda z nich została wyposażona w pojemną garderobę. Dodatkowo w strefie małżeńskiej przewidziano prywatą łazienkę oraz efektowny balkon. Drzwi balkonowe oraz okno tarasowe w salonie posiada spore rozmiary, dzięki czemu pomieszczenia są dobrze oświetlone. Łazienka dla pozostałych domowników jest dostępna z korytarza. Co ważne, pokoje nie posiadają wspólnych ścian, co zapewnia poczucie prywatności np. głośniej puszczona muzyka nie przeszkodzi pozostałym domownikom. Projekt Krokus to prosty w budowie dom, którego realizacja nie pochlania wielu kosztów. Został zaprojketowany w technologii murowanej przy zastosowaniu łatwo dostępnych materiałów.
Czytaj więcej

Polecani producenci

Kompletne systemy rekuperacji

tło producenta

Alnor

Dowiedz się więcej

Prefabrykowane konstrukcje dachowe

tło producenta

WIĄZAR POLSKA

Zobacz więcej

Sprawdź nową generację okien GREENVIEW

tło producenta

FAKRO

Sprawdź nową generację okien GREENVIEW

Styropian, tynki, farby, kleje

tło producenta

Termo Organika

Poznaj super jakość

Okna, drzwi, osłony przeciwsłoneczne

tło producenta

Aluprof

Sprawdź ofertę
Zobacz więcej

Społeczność projektu domu
Krokus w budowie

Dołącz do społeczności osób, które budują ten dom lub są zainteresowane jego budową.

  • Oglądaj zdjęcia z budowy
  • Zadawaj pytania
  • Wymieniaj się doświadczeniami

Opinie o projekcie domu Krokus

Ocena

Ten projekt nie ma jeszcze opinii, bądź pierwszy!

Dodaj opinię

ASYSTENT WYBORU PROJEKTU

Szukasz idealnego projektu? Znajdziemy go dla Ciebie!

Doradca na podstawie Twoich wskazówek przygotuje spersonalizowaną listę projektów

Graficzne opracowanie rzutów poglądowych widocznych na karcie projektu zostało wykonane przez Extradom.pl. Prezentowane przez Extradom.pl wizualizacje wykonane zostały przez autora projektu i należy poczytywać je jedynie za przykład i propozycję wykończenia, wizję architektoniczną autora projektu. Ostateczne wykończenie budynku może nastąpić na wiele sposobów. Szczegółowe rozwiązania zastosowane w oferowanej dokumentacji - w tym również ilość, lokalizacje i wygląd okien, drzwi, kominów - mogą w niewielkim stopniu różnić się od prezentowanej wizualizacji budynku.

REKLAMA
Zamknij