Projekty nawet 500 zł taniej ❄️

Koniec oferty za:

00godz.

00min.

00sek.

Sprawdź

Projekt domu Kreator KSA1315

Dodano!
Dodano!

Warstwy

Rzut parteru

Powierzchnia (m²)
Tooltip
Powierzchnia pomieszczenia
to ta, z której faktycznie możesz korzystać – skosy i niskie części poddasza są liczone częściowo lub wcale.
  1. 100% dla wysokości powyżej 2,2 m,
  2. 50% dla wysokości 1,4–2,2 m,
  3. nie liczymy poniżej 1,4 m.

Powierzchnia podłogi
Liczymy po obrysie pomieszczenia, bez względu na jego wysokość/skosy. Jeśli nie ma skosów to powierzchnia podłogi i pomieszczenia jest taka sama.
pomieszczenia i podłogi
podłogi
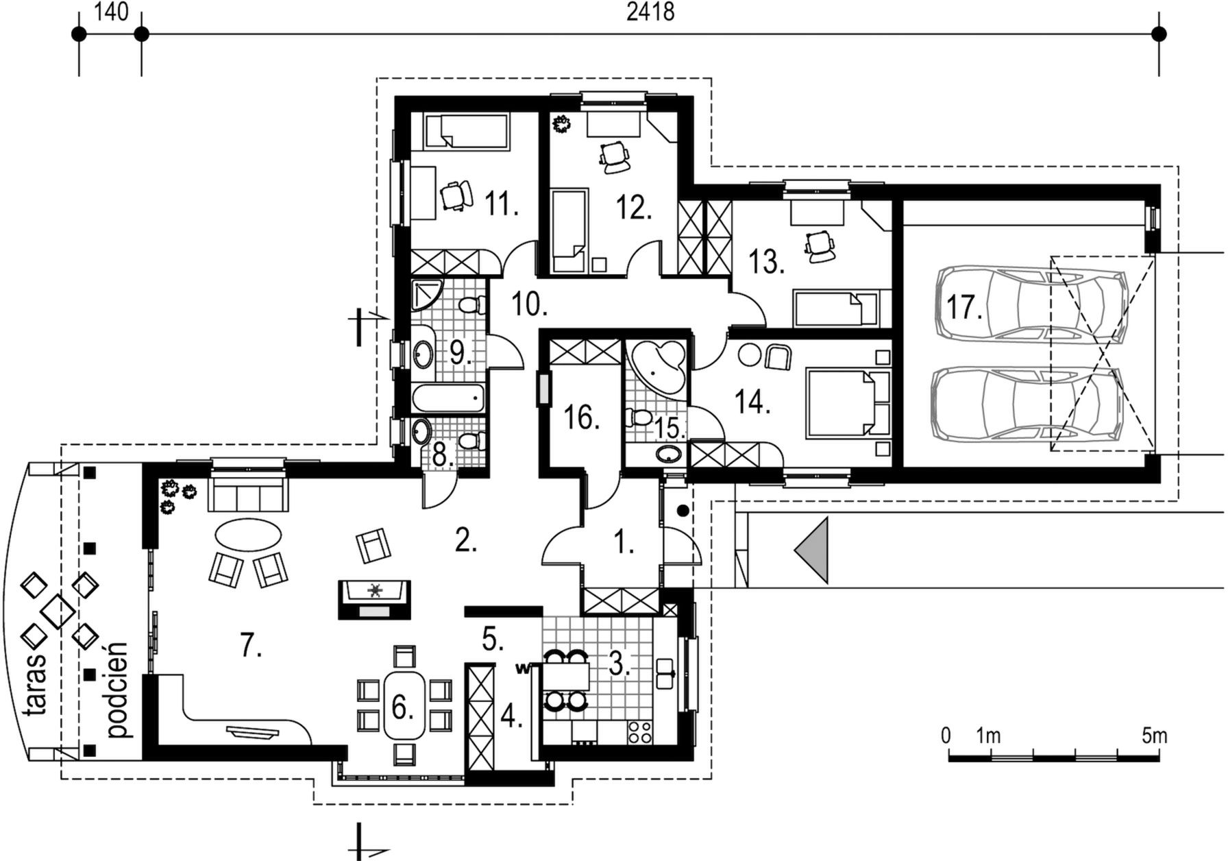
1. Wiatrołap
5,80
2. Hall
8,30
3. Kuchnia
9,90
4. Spiżarnia
4,20
5. Korytarz
2
6. Jadalnia
10,50
7. Pokój dzienny
36,40
8. Wc
2,20
9. Łazienka
5,80
10. Korytarz
10,70
11. Pokój
11,90
12. Pokój
12,90
13. Pokój
12,80
14. Pokój
14,70
15. Łazienka
4,50
16. Pomieszczenie gospodarcze
5,20
17. Garaż dwustanowiskowy
36,60
Razem
194,40
194,40

    Usytuowanie na działce

    Czy ten projekt pasuje na
    Twoją działkę?

    Chętnie to sprawdzimy!

    Dowiedz się:

    • czy zmieści się na niej wybrany przez Ciebie dom
    • jakie parametry musi spełniać dom według miejscowego planu zagospodarowania lub warunków zabudowy (np. kąt nachylenia i typ dachu, liczba kondygnacji itp.
    • jakie inne projekty pasują na Twoją działkę – znajdziemy je dla Ciebie!

Pow. użytkowa

157 m²

Pokoje

4

Łazienki i WC

3

Garaż

2

Min. szer. i dł. działki

33,6 x 24,40 m

Kąt dachu

30°

Konstrukcja

Murowana
więcej

Kreator - KSA1315

ikona 157 m²
Powierzchnia użytkowa
ikona4
Pokoje (bez salonu)
ikona 3
Łazienki (z toaletami)
ikona 2
Liczba stanowisk garażowych
(z wiatą garażową)
ikona
Konstrukcja: Murowana

Projekt został
wycofany z oferty

W razie pytań prosimy o kontakt
z Centrum Obsługi Klienta
Konsultant Masz pytania?
Zadzwoń
71 715 20 60

pon.-pt. 8-21, sob. 9-17

Parter - 194,40 m²

Parter projektu Kreator

Zapytaj, co możesz zmienić

Powierzchnia (m²)
Tooltip
Powierzchnia pomieszczenia
to ta, z której faktycznie możesz korzystać – skosy i niskie części poddasza są liczone częściowo lub wcale.
  1. 100% dla wysokości powyżej 2,2 m,
  2. 50% dla wysokości 1,4–2,2 m,
  3. nie liczymy poniżej 1,4 m.

Powierzchnia podłogi
Liczymy po obrysie pomieszczenia, bez względu na jego wysokość/skosy. Jeśli nie ma skosów to powierzchnia podłogi i pomieszczenia jest taka sama.
pomieszczenia i podłogi
podłogi
1. Wiatrołap
5,80
2. Hall
8,30
3. Kuchnia
9,90
4. Spiżarnia
4,20
5. Korytarz
2
6. Jadalnia
10,50
7. Pokój dzienny
36,40
8. Wc
2,20
9. Łazienka
5,80
10. Korytarz
10,70
11. Pokój
11,90
12. Pokój
12,90
13. Pokój
12,80
14. Pokój
14,70
15. Łazienka
4,50
16. Pomieszczenie gospodarcze
5,20
17. Garaż dwustanowiskowy
36,60
Razem
194,40
194,40

Podobne projekty (5556)

Zobacz wszystkie
Zdjęcie 1 projektu APS 264 wariant 2 ECO LUA1667
APS 264 wariant 2 ECO
Dodano!
Dodano!
134,20 m²
4
2
2

5 399 zł

NIŻSZA CENA❄️
Zdjęcie 1 projektu Sej-pro 029 energo ELW1057
Sej-pro 029 energo
Dodano!
Dodano!
139,48 m²
4
2
1

5 397 zł

5 697 zł

Tooltip

Cena regularna

5 097 zł najniższa cena
Tooltip

Najniższa cena z 30 dni
przed obniżką

Zdjęcie 1 projektu Domena 124 C1 WRW1349
Domena 124 C1
Dodano!
Dodano!
130,91 m²
4
2
0

4 950 zł

NIŻSZA CENA❄️
Zdjęcie 1 projektu Kordian (1749) KRD2997
Kordian (1749)
Dodano!
Dodano!
133,30 m²
4
2
2

4 540 zł

4 890 zł

Tooltip

Cena regularna

4 340 zł najniższa cena
Tooltip

Najniższa cena z 30 dni
przed obniżką

NIŻSZA CENA❄️
Zdjęcie 1 projektu Dom na szerokiej 3 WAH2045
Dom na szerokiej 3
Dodano!
Dodano!
134,81 m²
4
3
2

5 080 zł

6 350 zł

Tooltip

Cena regularna

4 762 zł najniższa cena
Tooltip

Najniższa cena z 30 dni
przed obniżką

NIŻSZA CENA❄️
Zdjęcie 1 projektu Parterowy wąski WAH1955
Parterowy wąski
Dodano!
Dodano!
125,53 m²
3
2
1

5 192 zł

6 490 zł

Tooltip

Cena regularna

4 867 zł najniższa cena
Tooltip

Najniższa cena z 30 dni
przed obniżką

NIŻSZA CENA❄️
Zdjęcie 1 projektu Sej-pro 071 energo ELW1044
Sej-pro 071 energo
Dodano!
Dodano!
136,55 m²
4
2
0

4 997 zł

5 297 zł

Tooltip

Cena regularna

4 697 zł najniższa cena
Tooltip

Najniższa cena z 30 dni
przed obniżką

NIŻSZA CENA❄️
Zdjęcie 1 projektu Koniczynka Polo G2 (1508) KRD2659
Koniczynka Polo G2 (1508)
Dodano!
Dodano!
137,10 m²
4
3
2

4 540 zł

4 890 zł

Tooltip

Cena regularna

4 340 zł najniższa cena
Tooltip

Najniższa cena z 30 dni
przed obniżką

Elewacje

Frontowa
Tylna
Lewa
Prawa

Przekroje

Przekrój pionowy

Usytuowanie na działce

Czy ten projekt pasuje na
Twoją działkę?

Chętnie to sprawdzimy!

Czy ten projekt pasuje na
Twoją działkę?

Chętnie to sprawdzimy!

Dowiedz się:

  • czy zmieści się na niej wybrany przez Ciebie dom
  • jakie parametry musi spełniać dom według miejscowego planu zagospodarowania lub warunków zabudowy (np. kąt nachylenia i typ dachu, liczba kondygnacji itp.
  • jakie inne projekty pasują na Twoją działkę – znajdziemy je dla Ciebie!
Autor: ArchTim

Dane techniczne projektu

Powierzchnie i wymiary Powierzchnie i wymiary

Powierzchnia użytkowa
Tooltip
Suma powierzchni wszystkich pomieszczeń mieszkalnych, pomniejszona o pow. garażu, kotłowni, strychu, piwnicy. Jest liczona w 100% dla pomieszczeń o wysokości powyżej 2,2 m, w 50% dla pomieszczeń o wys. 2,2-1,4 m i niewliczana dla niższych niż 1,4 m.

157 m²

Powierzchnia zabudowy
Tooltip
Powierzchnia zajmowana przez część na- oraz nadziemną budynku liczona, jako rzut pionowy budynku na działkę.

246,70 m²

Powierzchnia dachu

284,90 m²

Kąt nachylenia dachu
Tooltip
Nachylenie połaci dachu głównego podawane w stopniach. Uwaga! W niektórych projektach występuje więcej niż jedno nachylenie dachu.

30°

Wysokość budynku
Tooltip
Wysokość liczona od części budynku położonej najniżej przy powierzchni terenu do najwyższego punktu dachu (kalenicy) z wyłączeniem kominów.

5,78 m

Min. szerokość działki
Tooltip
Najmniejsza możliwa szerokość działki niezbędna do wybudowania wybranego domu. Składa się z szerokości elewacji domu powiększonej z obu stron o 3 m dla ściany bez otworów drzwiowych/okiennych lub 4 m, dla ściany z otworami.

33,60 m

Min. długość działki
Tooltip
Najmniejsza możliwa długość działki niezbędna do wybudowania wybranego domu. Składa się z długości elewacji domu powiększonej z obu stron o 3 m dla ściany bez otworów drzwiowych/okiennych lub 4 m, dla ściany z otworami.

24,40 m

Energooszczędność Energooszczędność

Oze Czym jest OZE (Odnawialne Źródło Energii)?
Warunki techniczne

Projekt zgody z WT 2021

Technologia i konstrukcja Technologia i konstrukcja

Konstrukcja

Murowana

Opis szczegółowy

Ściany zewnętrzne dwuwarstwowe: cegła SILKA + wełna mineralna + tynk. Ściany wewnętrzne: cegła SILKA i/lub płyty na ruszcie stalowym, wygłuszone wełną mineralną. Strop: drewniany. Więźba dachowa: tradycyjna drewniana. Poszycie dachu: dachówka cementowa. Stolarka: drewniana lub PCV. Instalacja centralnego ogrzewania: kocioł dwufunkcyjny + grzejniki.

Strop

Drewniany

Reklama
Okna i drzwi tarasowe

Nowoczesne okna PVC i aluminiowe WIŚNIOWSKI – doskonała izolacja, elegancki design i niezrównana trwałość.

Wiśniowski
Sprawdź parametry!
Okna dachowe

Oferujemy bezpłatne konsultacje w zakresie wszystkich rozwiązań VELUX. Wyceny, porady dotyczące doboru okien i rolet zewnętrznych - sprawdź!

Velux
Sprawdź szczegóły
Płytki ceramiczne i gresy

Od małych formatów po wielkoformatowe gresy. Marmur, beton, drewno, kamień, lastryko czy cegiełki zamówisz wygodnie online z szybką dostawą.

Ceramzet
Sprawdź ofertę
Drzwi

Ciepłe drzwi WIŚNIOWSKI z kontrolą dostępu. Szeroka gama wzorów i kolorów.

Wiśniowski
Wybierz najlepsze
Bramy garażowe

Automatyczne bramy garażowe segmentowe i uchylne WIŚNIOWSKI na wymiar i z systemem smart home w standardzie.

Wiśniowski
Sprawdź ofertę!
Armatura i ceramika łazienkowa

Topowi producenci. Baterie łazienkowe, zestawy natynkowe i podtynkowe, umywalki, wanny, miski WC oraz kabiny zamówisz kompleksowo online.

Ceramzet II
Dowiedz się więcej
Rekuperacja

Alnor - kompletny system rekuperacji. Dobierz idealne rozwiązanie dla Twojego domu!

Alnor
Dobierz rekuperator
Gruntowe pompy ciepła

Przeprowadzimy kompletną instalację najbardziej oszczędnego źródła ciepła w Twoim nowym domu - gruntowej pompy ciepła. Od dokumentacji, pozwoleń, po odwierty i instalację.

Geothermal Solutions
Dowiedz się więcej

Gotowe domy modułowe (114)

Zobacz wszystkie
Stan deweloperski nawet w 6 miesięcy Gwarancja stałej ceny
Zdjęcie 1 projektu Dom prefabrykowany P.2 HPK1001
Pow. użytkowa
159,18 m²
Pokoje
5
832 200 zł 5 228 zł/m²
Zdjęcie 1 projektu Dom prefabrykowany Stodoła 150C HFX1026
Pow. użytkowa
152,90 m²
Pokoje
5
589 000 zł 3 852 zł/m²
Zdjęcie 1 projektu Dom prefabrykowany Stodoła 150A HFX1024
Pow. użytkowa
152,20 m²
Pokoje
5
589 000 zł 3 870 zł/m²
Zdjęcie 1 projektu Dom prefabrykowany P.4 bez okapu HPK1003
Pow. użytkowa
162,18 m²
Pokoje
4
701 000 zł 4 322 zł/m²
Zdjęcie 1 projektu Dom prefabrykowany P.4 z okapem HPK1014
Pow. użytkowa
162,18 m²
Pokoje
5
710 500 zł 4 381 zł/m²
Zdjęcie 1 projektu Dom prefabrykowany Stodoła 150B HFX1025
Pow. użytkowa
151,30 m²
Pokoje
4
589 000 zł 3 893 zł/m²
Zdjęcie 1 projektu Dom prefabrykowany DH174 HDH1009
Pow. użytkowa
162,97 m²
Pokoje
4
1 026 000 zł 5 796 zł/m²
Zdjęcie 1 projektu Dom szkieletowy Viking Smart 220 HHT1032
Pow. użytkowa
163,86 m²
Pokoje
4
1 095 606 zł 6 686 zł/m²

Opis projektu domu
Kreator

Projekt Kreator to doskonała propozycja dla właścicieli szerokich działek, mogących pozwolić sobie na realizację reprezentacyjnego domu o wysoce komfortowym wnętrzu. Charakteryzuje się bryłą o ciekawej formie zwieńczonej efektownym dachem wielospadowym, dzięki czemu świetnie się prezentuje. Ponadczasowy wygląd sprawia, iż Kreator idealnie wpisze się w każdą działkę, niezależnie od otoczenia. Architekt przewidział wykonanie w bryle dwustanowiskowego garażu, co z pewnością usatysfakcjonuje zmotoryzowanych domowników. Posiadacze jednego samochodu, mogą wykorzystać część garażu na zrobienie przydomowego warsztatu. Projekt Kreator to dom parterowy, dzięki czemu jest bardzo wygodny w codziennym użytkowaniu. Brak schodów jest szczególną zaletą gdy dom zamieszkały jest przez małe dzieci oraz osoby starsze. Mimo jednej kondygnacji, układ pomieszczeń cechuje się wyraźnym podziałem na strefę dzienną i nocną. Wyjątkowo funkcjonalna część dzienna, z pewnością zadowoli zwolenników praktycznych rozwiązań. Sporych rozmiarów kuchnia zachwyci miłośników testowania nowych przepisów, a dzięki uwzględnionemu w niej miejscu na stolik można przysiąść w niej na szybkie śniadanie. Zaraz obok znajduje się pojemna spiżarka na przetwory. Wejście do kuchni znajduje się od strony wiatrołapu oraz jadalni. Dzięki temu po powrocie z zakupów możemy szybko je rozpakować, a przenoszenie dań na stół jadalniany jest bardzo wygodne. Jadalnia została otworzona na salon, aczkolwiek autor optycznie ją wydzielił, co sprzyja celebrowaniu wspólnych posiłków. Przewidziany w salonie wolnostojący kominek podnosi reprezentacyjność wnętrza i stwarza przyjemną atmosferę. W hallu znajduje się przejście do jednej z trzech łazienek, która doskonale sprawdzi się w przypadku wizyt gości. Łazienkę dla domowników zlokalizowano w strefie sypialnianej, a dodatkowo w sypialni małżeńskiej znajduje się jeszcze łazienka prywatna. Cztery przestronne sypialnie idealnie sprawdzą się w przypadku 3-6 osobowej rodziny. W projekcie nie zabrakło również praktycznego pomieszczenia gospodarczego. Taras umożliwia organizację grilla, a dzięki podcieniowi nie musimy obawiać się w trakcie o niespodziewany opad deszczu. Projekt Kreator zaprojektowano w technologii murowanej przy zastosowaniu materiałów odznaczających się bardzo korzystnymi parametrami termicznymi.
Czytaj więcej

Polecani producenci

Prefabrykowane konstrukcje dachowe

tło producenta

WIĄZAR POLSKA

Zobacz więcej

Sprawdź nową generację okien GREENVIEW

tło producenta

FAKRO

Sprawdź nową generację okien GREENVIEW

Styropian, tynki, farby, kleje

tło producenta

Termo Organika

Poznaj super jakość

Okna, drzwi, osłony przeciwsłoneczne

tło producenta

Aluprof

Sprawdź ofertę

Kompletne systemy rekuperacji

tło producenta

Alnor

Dowiedz się więcej

Sprawdź nowy system DACHRYNNA

tło producenta

Galeco

Sprawdź ofertę
Zobacz więcej

Społeczność projektu domu
Kreator w budowie

Dołącz do społeczności osób, które budują ten dom lub są zainteresowane jego budową.

  • Oglądaj zdjęcia z budowy
  • Zadawaj pytania
  • Wymieniaj się doświadczeniami

Opinie o projekcie domu Kreator

Ocena

Ten projekt nie ma jeszcze opinii, bądź pierwszy!

Dodaj opinię

ASYSTENT WYBORU PROJEKTU

Szukasz idealnego projektu? Znajdziemy go dla Ciebie!

Doradca na podstawie Twoich wskazówek przygotuje spersonalizowaną listę projektów

Graficzne opracowanie rzutów poglądowych widocznych na karcie projektu zostało wykonane przez Extradom.pl. Prezentowane przez Extradom.pl wizualizacje wykonane zostały przez autora projektu i należy poczytywać je jedynie za przykład i propozycję wykończenia, wizję architektoniczną autora projektu. Ostateczne wykończenie budynku może nastąpić na wiele sposobów. Szczegółowe rozwiązania zastosowane w oferowanej dokumentacji - w tym również ilość, lokalizacje i wygląd okien, drzwi, kominów - mogą w niewielkim stopniu różnić się od prezentowanej wizualizacji budynku.

REKLAMA
Zamknij