Projekty nawet 500 zł taniej ❄️

Koniec oferty za:

00godz.

00min.

00sek.

Sprawdź

Projekt domu Jaworzynka średnia KRP1159

Dodano!
Dodano!

Warstwy

Warstwy

Warstwy

Rzut parteru

Powierzchnia (m²)
Tooltip
Powierzchnia pomieszczenia
to ta, z której faktycznie możesz korzystać – skosy i niskie części poddasza są liczone częściowo lub wcale.
  1. 100% dla wysokości powyżej 2,2 m,
  2. 50% dla wysokości 1,4–2,2 m,
  3. nie liczymy poniżej 1,4 m.

Powierzchnia podłogi
Liczymy po obrysie pomieszczenia, bez względu na jego wysokość/skosy. Jeśli nie ma skosów to powierzchnia podłogi i pomieszczenia jest taka sama.
pomieszczenia i podłogi
podłogi
1. Korytarz
4,71
2. Kotłownia
14,48
3. Garaż dwustanowiskowy
38,47
4. Pomieszczenie gospodarcze
14,65
5. Pomieszczenie gospodarcze
7,96
Razem
80,27
80,27
Powierzchnia (m²)
Tooltip
Powierzchnia pomieszczenia
to ta, z której faktycznie możesz korzystać – skosy i niskie części poddasza są liczone częściowo lub wcale.
  1. 100% dla wysokości powyżej 2,2 m,
  2. 50% dla wysokości 1,4–2,2 m,
  3. nie liczymy poniżej 1,4 m.

Powierzchnia podłogi
Liczymy po obrysie pomieszczenia, bez względu na jego wysokość/skosy. Jeśli nie ma skosów to powierzchnia podłogi i pomieszczenia jest taka sama.
pomieszczenia i podłogi
podłogi
1. Wiatrołap
2,31
2. Korytarz
5,72
3. Kuchnia
14,52
4. Łazienka
5,69
5. Garderoba
3,10
6. Pokój dzienny
38,36
Razem
69,70
69,70
Powierzchnia (m²)
Tooltip
Powierzchnia pomieszczenia
to ta, z której faktycznie możesz korzystać – skosy i niskie części poddasza są liczone częściowo lub wcale.
  1. 100% dla wysokości powyżej 2,2 m,
  2. 50% dla wysokości 1,4–2,2 m,
  3. nie liczymy poniżej 1,4 m.

Powierzchnia podłogi
Liczymy po obrysie pomieszczenia, bez względu na jego wysokość/skosy. Jeśli nie ma skosów to powierzchnia podłogi i pomieszczenia jest taka sama.
pomieszczenia
podłogi
1. Korytarz
4,97
7,58
2. Łazienka
9,91
15,12
3. Pokój
18,45
23,70
4. Pokój
20,81
31,13
Razem
54,14
77,53

    Usytuowanie na działce

    Czy ten projekt pasuje na
    Twoją działkę?

    Chętnie to sprawdzimy!

    Dowiedz się:

    • czy zmieści się na niej wybrany przez Ciebie dom
    • jakie parametry musi spełniać dom według miejscowego planu zagospodarowania lub warunków zabudowy (np. kąt nachylenia i typ dachu, liczba kondygnacji itp.
    • jakie inne projekty pasują na Twoją działkę – znajdziemy je dla Ciebie!

Pow. użytkowa

123,66 m²

Pokoje

2

Łazienki i WC

2

Garaż

2

Min. szer. i dł. działki

19,3 x 19,60 m

Kąt dachu

42°

Konstrukcja

Murowana
więcej

Jaworzynka średnia - KRP1159

ikona 123,66 m²
Powierzchnia użytkowa
ikona2
Pokoje (bez salonu)
ikona 2
Łazienki (z toaletami)
ikona 2
Liczba stanowisk garażowych
(z wiatą garażową)
ikona
Konstrukcja: Murowana

Projekt został
wycofany z oferty

W razie pytań prosimy o kontakt
z Centrum Obsługi Klienta
Konsultant Masz pytania?
Zadzwoń
71 715 20 60

pon.-pt. 8-21, sob. 9-17

Piwnica - 80,27 m²

Piwnica projektu Jaworzynka średnia

Zapytaj, co możesz zmienić

Powierzchnia (m²)
Tooltip
Powierzchnia pomieszczenia
to ta, z której faktycznie możesz korzystać – skosy i niskie części poddasza są liczone częściowo lub wcale.
  1. 100% dla wysokości powyżej 2,2 m,
  2. 50% dla wysokości 1,4–2,2 m,
  3. nie liczymy poniżej 1,4 m.

Powierzchnia podłogi
Liczymy po obrysie pomieszczenia, bez względu na jego wysokość/skosy. Jeśli nie ma skosów to powierzchnia podłogi i pomieszczenia jest taka sama.
pomieszczenia i podłogi
podłogi
1. Korytarz
4,71
2. Kotłownia
14,48
3. Garaż dwustanowiskowy
38,47
4. Pomieszczenie gospodarcze
14,65
5. Pomieszczenie gospodarcze
7,96
Razem
80,27
80,27

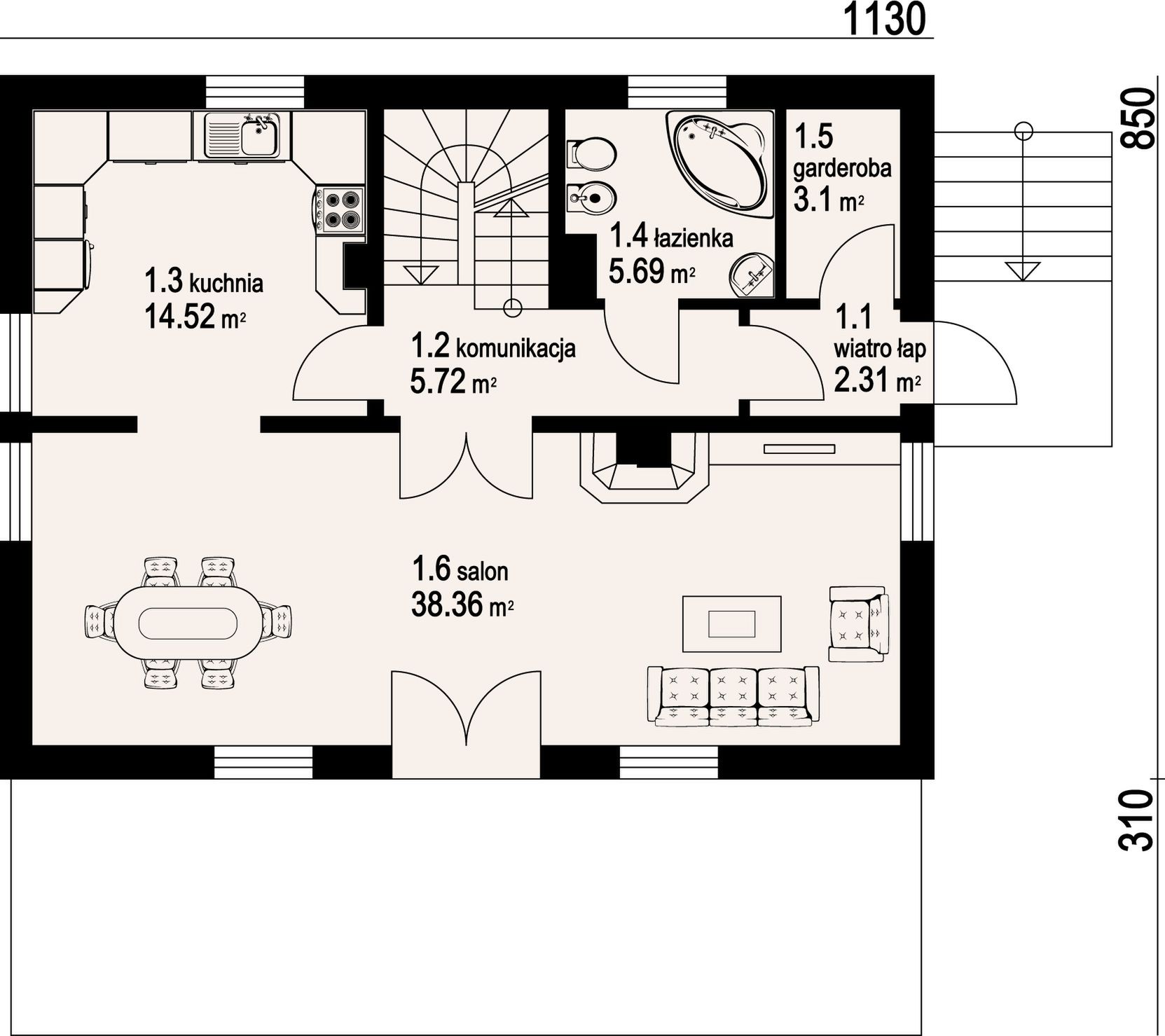
Parter - 69,70 m²

Parter projektu Jaworzynka średnia

Zapytaj, co możesz zmienić

Powierzchnia (m²)
Tooltip
Powierzchnia pomieszczenia
to ta, z której faktycznie możesz korzystać – skosy i niskie części poddasza są liczone częściowo lub wcale.
  1. 100% dla wysokości powyżej 2,2 m,
  2. 50% dla wysokości 1,4–2,2 m,
  3. nie liczymy poniżej 1,4 m.

Powierzchnia podłogi
Liczymy po obrysie pomieszczenia, bez względu na jego wysokość/skosy. Jeśli nie ma skosów to powierzchnia podłogi i pomieszczenia jest taka sama.
pomieszczenia i podłogi
podłogi
1. Wiatrołap
2,31
2. Korytarz
5,72
3. Kuchnia
14,52
4. Łazienka
5,69
5. Garderoba
3,10
6. Pokój dzienny
38,36
Razem
69,70
69,70

Poddasze - 54,14 m²

Poddasze projektu Jaworzynka średnia

Zapytaj, co możesz zmienić

Powierzchnia (m²)
Tooltip
Powierzchnia pomieszczenia
to ta, z której faktycznie możesz korzystać – skosy i niskie części poddasza są liczone częściowo lub wcale.
  1. 100% dla wysokości powyżej 2,2 m,
  2. 50% dla wysokości 1,4–2,2 m,
  3. nie liczymy poniżej 1,4 m.

Powierzchnia podłogi
Liczymy po obrysie pomieszczenia, bez względu na jego wysokość/skosy. Jeśli nie ma skosów to powierzchnia podłogi i pomieszczenia jest taka sama.
pomieszczenia
podłogi
1. Korytarz
4,97
7,58
2. Łazienka
9,91
15,12
3. Pokój
18,45
23,70
4. Pokój
20,81
31,13
Razem
54,14
77,53

Warianty projektu (7)

PROMOCJA
Projekt domu Jaworzynka nowa mg
Jaworzynka nowa mg
Dodano!
Dodano!
109,37 m²
3
2
1

5 099 zł

5 399 zł

Tooltip

Cena regularna

4 899 zł najniższa cena
Tooltip

Najniższa cena z 30 dni
przed obniżką

PROMOCJA
Projekt domu Jaworzynka średnia 9
Jaworzynka średnia 9
Dodano!
Dodano!
127,06 m²
4
2
2

5 099 zł

5 399 zł

Tooltip

Cena regularna

4 899 zł najniższa cena
Tooltip

Najniższa cena z 30 dni
przed obniżką

PROMOCJA
Projekt domu Jaworzynka nowa 3
Jaworzynka nowa 3
Dodano!
Dodano!
95,21 m²
4
2
0

4 999 zł

5 299 zł

Tooltip

Cena regularna

4 799 zł najniższa cena
Tooltip

Najniższa cena z 30 dni
przed obniżką

PROMOCJA
Projekt domu Jaworzynka dw 5
Jaworzynka dw 5
Dodano!
Dodano!
104,93 m²
3
2
0

5 699 zł

5 999 zł

Tooltip

Cena regularna

5 499 zł najniższa cena
Tooltip

Najniższa cena z 30 dni
przed obniżką

PROMOCJA
Projekt domu Jaworzynka duża 19m
Jaworzynka duża 19m
Dodano!
Dodano!
188,05 m²
3
2
1

6 099 zł

6 399 zł

Tooltip

Cena regularna

5 899 zł najniższa cena
Tooltip

Najniższa cena z 30 dni
przed obniżką

PROMOCJA
Projekt domu Jaworzynka mała dw
Jaworzynka mała dw
Dodano!
Dodano!
88,31 m²
3
2
0

5 599 zł

5 899 zł

Tooltip

Cena regularna

5 399 zł najniższa cena
Tooltip

Najniższa cena z 30 dni
przed obniżką

PROMOCJA
Projekt domu Jaworzynka dw
Jaworzynka dw
Dodano!
Dodano!
102,36 m²
3
2
0

5 699 zł

5 999 zł

Tooltip

Cena regularna

5 499 zł najniższa cena
Tooltip

Najniższa cena z 30 dni
przed obniżką

Podobne projekty (7182)

Zobacz wszystkie
NIŻSZA CENA❄️
Zdjęcie 1 projektu Dom przy Migdałowej 6 KRK1744
Dom przy Migdałowej 6
Dodano!
Dodano!
105,16 m²
3
2
1

3 490 zł

3 990 zł

Tooltip

Cena regularna

3 390 zł najniższa cena
Tooltip

Najniższa cena z 30 dni
przed obniżką

NIŻSZA CENA❄️
Zdjęcie 1 projektu Lungo 4 modern WOF1153
Lungo 4 modern
Dodano!
Dodano!
110,33 m²
4
2
0

3 799 zł

3 999 zł

Tooltip

Cena regularna

3 699 zł najniższa cena
Tooltip

Najniższa cena z 30 dni
przed obniżką

NIŻSZA CENA❄️
Zdjęcie 1 projektu Dom przy Kolorowej 3 KRK1745
Dom przy Kolorowej 3
Dodano!
Dodano!
120 m²
3
2
1

3 790 zł

4 290 zł

Tooltip

Cena regularna

3 690 zł najniższa cena
Tooltip

Najniższa cena z 30 dni
przed obniżką

Zdjęcie 1 projektu WB-3460 KRA1153
WB-3460
Dodano!
Dodano!
124,20 m²
3
2
1

3 900 zł

Zdjęcie 1 projektu Z wnęką 03 KZB1012
Z wnęką 03
Dodano!
Dodano!
125,80 m²
4
2
1

3 800 zł

NIŻSZA CENA❄️
Zdjęcie 1 projektu Kosma G2 energo WRC2768
Kosma G2 energo
Dodano!
Dodano!
135,06 m²
4
2
2

4 720 zł

5 900 zł

Tooltip

Cena regularna

4 720 zł najniższa cena
Tooltip

Najniższa cena z 30 dni
przed obniżką

NIŻSZA CENA❄️
Zdjęcie 1 projektu APS 271 LUA1361
APS 271
Dodano!
Dodano!
111 m²
3
2
1

4 049 zł

4 599 zł

Tooltip

Cena regularna

3 999 zł najniższa cena
Tooltip

Najniższa cena z 30 dni
przed obniżką

NIŻSZA CENA❄️
Zdjęcie 1 projektu Lorena (1445) KRD2572
Lorena (1445)
Dodano!
Dodano!
124,70 m²
4
2
1

4 540 zł

4 890 zł

Tooltip

Cena regularna

4 340 zł najniższa cena
Tooltip

Najniższa cena z 30 dni
przed obniżką

Elewacje

Frontowa
Tylna
Lewa
Prawa

Przekroje

Przekrój pionowy

Usytuowanie na działce

Czy ten projekt pasuje na
Twoją działkę?

Chętnie to sprawdzimy!

Czy ten projekt pasuje na
Twoją działkę?

Chętnie to sprawdzimy!

Dowiedz się:

  • czy zmieści się na niej wybrany przez Ciebie dom
  • jakie parametry musi spełniać dom według miejscowego planu zagospodarowania lub warunków zabudowy (np. kąt nachylenia i typ dachu, liczba kondygnacji itp.
  • jakie inne projekty pasują na Twoją działkę – znajdziemy je dla Ciebie!
Autor: Dom-Projekt

Dane techniczne projektu

Powierzchnie i wymiary Powierzchnie i wymiary

Powierzchnia użytkowa
Tooltip
Suma powierzchni wszystkich pomieszczeń mieszkalnych, pomniejszona o pow. garażu, kotłowni, strychu, piwnicy. Jest liczona w 100% dla pomieszczeń o wysokości powyżej 2,2 m, w 50% dla pomieszczeń o wys. 2,2-1,4 m i niewliczana dla niższych niż 1,4 m.

123,66 m²

Wysokość ściany kolankowej
Tooltip
Wysokość ściany podpierającej dach. Jej wysokość wpływa na powierzchnię użytkową kondygnacji, na której się znajduje.

0,74 m

Powierzchnia zabudowy
Tooltip
Powierzchnia zajmowana przez część na- oraz nadziemną budynku liczona, jako rzut pionowy budynku na działkę.

134,40 m²

Powierzchnia netto
Tooltip
Powierzchna wszystkich pomieszczeń w budynku mierzona na wysokości podłogi.

239,52 m²

Kubatura brutto
Tooltip
Zazwyczaj jest to suma kubatur (objętości) wszystkich pomieszczeń budynku, liczonych po zewnętrznym obrysie murów (z ociepleniem).

708 m³

Powierzchnia dachu

200,33 m²

Kąt nachylenia dachu
Tooltip
Nachylenie połaci dachu głównego podawane w stopniach. Uwaga! W niektórych projektach występuje więcej niż jedno nachylenie dachu.

42°

Wysokość budynku
Tooltip
Wysokość liczona od części budynku położonej najniżej przy powierzchni terenu do najwyższego punktu dachu (kalenicy) z wyłączeniem kominów.

8,83 m

Min. szerokość działki
Tooltip
Najmniejsza możliwa szerokość działki niezbędna do wybudowania wybranego domu. Składa się z szerokości elewacji domu powiększonej z obu stron o 3 m dla ściany bez otworów drzwiowych/okiennych lub 4 m, dla ściany z otworami.

19,30 m

Min. długość działki
Tooltip
Najmniejsza możliwa długość działki niezbędna do wybudowania wybranego domu. Składa się z długości elewacji domu powiększonej z obu stron o 3 m dla ściany bez otworów drzwiowych/okiennych lub 4 m, dla ściany z otworami.

19,60 m

Energooszczędność Energooszczędność

Oze Czym jest OZE (Odnawialne Źródło Energii)?
Warunki techniczne

Projekt zgody z WT 2021

Technologia i konstrukcja Technologia i konstrukcja

Konstrukcja

Murowana

Opis szczegółowy

Wysokość ścianki kolankowej: 0.74 m. Ilość drewna na więźbę: 8.3 m³. Strop: płyta żelbetowa. Pokrycie dachu: dachówka ceramiczna. Ściany zewnętrzne: pustaki ceramiczne + styropian. Ściany wewnętrzne: pustaki ceramiczne. Typ ogrzewania: kocioł gazowy lub kocioł na paliwo stałe.

Strop

Żelbetowy

Reklama
Okna i drzwi tarasowe

Nowoczesne okna PVC i aluminiowe WIŚNIOWSKI – doskonała izolacja, elegancki design i niezrównana trwałość.

Wiśniowski
Sprawdź parametry!
Okna dachowe

Oferujemy bezpłatne konsultacje w zakresie wszystkich rozwiązań VELUX. Wyceny, porady dotyczące doboru okien i rolet zewnętrznych - sprawdź!

Velux
Sprawdź szczegóły
Płytki ceramiczne i gresy

Od małych formatów po wielkoformatowe gresy. Marmur, beton, drewno, kamień, lastryko czy cegiełki zamówisz wygodnie online z szybką dostawą.

Ceramzet
Sprawdź ofertę
Drzwi

Ciepłe drzwi WIŚNIOWSKI z kontrolą dostępu. Szeroka gama wzorów i kolorów.

Wiśniowski
Wybierz najlepsze
Bramy garażowe

Automatyczne bramy garażowe segmentowe i uchylne WIŚNIOWSKI na wymiar i z systemem smart home w standardzie.

Wiśniowski
Sprawdź ofertę!
Armatura i ceramika łazienkowa

Topowi producenci. Baterie łazienkowe, zestawy natynkowe i podtynkowe, umywalki, wanny, miski WC oraz kabiny zamówisz kompleksowo online.

Ceramzet II
Dowiedz się więcej
Rekuperacja

Alnor - kompletny system rekuperacji. Dobierz idealne rozwiązanie dla Twojego domu!

Alnor
Dobierz rekuperator
Gruntowe pompy ciepła

Przeprowadzimy kompletną instalację najbardziej oszczędnego źródła ciepła w Twoim nowym domu - gruntowej pompy ciepła. Od dokumentacji, pozwoleń, po odwierty i instalację.

Geothermal Solutions
Dowiedz się więcej

Gotowe domy modułowe (114)

Zobacz wszystkie
Stan deweloperski nawet w 6 miesięcy Gwarancja stałej ceny
Zdjęcie 1 projektu Dom prefabrykowany P.11 HPK1011
Pow. użytkowa
122,88 m²
Pokoje
3
681 300 zł 5 544 zł/m²
Zdjęcie 1 projektu Dom prefabrykowany Parterowy 120B HFX1016
Pow. użytkowa
122,36 m²
Pokoje
3
489 000 zł 3 996 zł/m²
Zdjęcie 1 projektu Dom szkieletowy Twin Smart 170 HHT1031
Pow. użytkowa
121,95 m²
Pokoje
5
1 650 700 zł 13 536 zł/m²
Zdjęcie 1 projektu Dom prefabrykowany P.3 z okapem HPK1013
Pow. użytkowa
121,46 m²
Pokoje
5
600 100 zł 4 941 zł/m²
Zdjęcie 1 projektu Dom prefabrykowany P.3 bez okapu HPK1002
Pow. użytkowa
121,46 m²
Pokoje
5
594 000 zł 4 890 zł/m²
Zdjęcie 1 projektu Dom prefabrykowany Parterowy 120A HFX1015
Pow. użytkowa
121,44 m²
Pokoje
4
489 000 zł 4 027 zł/m²
Zdjęcie 1 projektu Dom prefabrykowany Parterowy 120C HFX1017
Pow. użytkowa
120,06 m²
Pokoje
4
489 000 zł 4 073 zł/m²
Zdjęcie 1 projektu Dom szkieletowy Emily Smart 120 HHT1026
Pow. użytkowa
120 m²
Pokoje
3
592 512 zł 4 938 zł/m²

Opis projektu domu
Jaworzynka średnia

Dom Jaworzynka średnia jest inną propozycją znanego projektu Jaworzynka. W przeciwieństwie do podstawowej wersji projekt ma większą powierzchnię, garaż. Projekt domu Jaworzynka średnia to ciekawa propozycja dla osób posiadających średniej szerokości działkę. Powstał on z myślą o Inwestorach posiadających działkę znajdującą się na skarpie. Dom posiada prostą bryłę, więc jego realizacja jest łatwa. Projekt ma usytuowaną kalenicę równolegle do drogi, co często określane jest w planie zagospodarowania przestrzennego. Dom został zaprojektowany z myślą o zabudowie wolnostojącej. Posiada garaż dwustanowiskowy garaż podziemny. Konstrukcja domu zwieńczona jest dachem dwuspadowym, dzięki któremu budynek posiada ponadczasowy wygląd. Projekt został zaplanowany z myślą o działkach z wjazdem od południowej strony. Projekt Jaworzynka średnia to dom parterowy z poddaszem użytkowym, co sprawia, że jego powierzchnia jest wyraźnie podzielona na strefy: dzienną i nocną.Uwzględnioną w projekcie piwnicę docenią osoby, dla których funkcjonalne rozwiązania mają szczególne znaczenie. Uwzględniona w projekcie część dzienna z pewnością zadowoli osoby lubiące cieszyć się wspólnymi chwilami w rodzinnym gronie. Tworzy ją między innymi kuchnia, która będzie idealnym rozwiązaniem zarówno dla tradycyjnych, jak i nowoczesnych gospodyń domowych. Dodatkowo w salonie przewidziano kominek, nadający wnętrzu niepowtarzalny klimat. W projekcie uwzględniono dwie komfortowe łazienki- jedna znajduje się na parterze, druga na poddaszu. Potrzeby 2-4 osobowej rodziny spełnią przewidziane w projekcie dwie przestronne sypialnie. Przestrzeń można wykorzystać także jako pokój dla gości lub gabinet. Niewątpliwą zaletą projektu jest przewidziana w nim funkcjonalna garderoba. Efektowny taras pozwala na kontakt z naturą bez zbytniego oddalania się od domowego zacisza. Budynek został zaprojektowany w technologii murowanej. Jaworzynka średnia jest doskonałą propozycją dla Inwestorów szukających domu tradycyjnego, dzięki czemu idealnie wpisze się w dowolny krajobraz.
Czytaj więcej

Polecani producenci

Prefabrykowane konstrukcje dachowe

tło producenta

WIĄZAR POLSKA

Zobacz więcej

Sprawdź nową generację okien GREENVIEW

tło producenta

FAKRO

Sprawdź nową generację okien GREENVIEW

Styropian, tynki, farby, kleje

tło producenta

Termo Organika

Poznaj super jakość

Okna, drzwi, osłony przeciwsłoneczne

tło producenta

Aluprof

Sprawdź ofertę

Kompletne systemy rekuperacji

tło producenta

Alnor

Dowiedz się więcej

Sprawdź nowy system DACHRYNNA

tło producenta

Galeco

Sprawdź ofertę
Zobacz więcej

Społeczność projektu domu
Jaworzynka średnia w budowie

Dołącz do społeczności osób, które budują ten dom lub są zainteresowane jego budową.

  • Oglądaj zdjęcia z budowy
  • Zadawaj pytania
  • Wymieniaj się doświadczeniami

Opinie o projekcie domu Jaworzynka średnia

4

Na podstawie 1 recenzji

Wspaniały!
0%
Bardzo dobry
100%
Średni
0%
Słaby
0%
Bardzo słaby
0%

Wywiady mieszkańców domu Jaworzynka średnia

Zdjęcie profilowe użytkownika JacekMaz JacekMaz

Przy wyborze odpowiedniego projektu skupiliśmy się na tym, aby budynek wpasował się w charakter wiejskiego krajobrazu. Przeglądnęliśmy wiele propozycji, aż natrafiliśmy na projekt domu Jaworzynka średnia KRP1159, którego wygląd idealnie współgrał z otoczeniem naszej działki. Istotny wpływ na decyzję o jego realizacji miało również podpiwniczenie oraz praktycznie zaplanowany układ pomieszczeń.Wszystkie prace związane z postawieniem i wykończeniem domu przebiegły bardzo sprawnie. Do oryginalnego projektu wprowadziłem jedynie drobne zmiany wynikające z naszych indywidualnych preferencji. Dokumentacja techniczna była dobrze sporządzona, a całą budowę udało nam się zakończyć w naprawdę korzystnym czasie. Inwestycja od rozpoczęcia do wprowadzenia się do nowego domu zajęła nam łącznie 1,5 roku.Ściany wymurowaliśmy z betonu komórkowego Ytong. Strop wykonaliśmy systemem Teriva, a dach pokryliśmy glazurowaną dachówką ceramiczną. Koszty inwestycji w dużej mierze zależą od użytych materiałów i przyznam, że przy zastosowaniu powyższych wydatki na etapie stanu surowego zamkniętego były wyższe niż oszacowane w kosztorysie. Myślę więc, że decydując się na projekt domu Jaworzynka średnia KRP1159 bezpieczniej będzie założyć nieco większą kwotę w stosunku do sugerowanejZewnętrzną izolację bryły tworzy 15 cm warstwa styropianu. Dom ogrzewamy paliwem stałym, aczkolwiek póki co trudno jest mi jednoznacznie ocenić faktyczne koszty takiego rozwiązania. Zima w ubiegłym roku była dosyć łagodna, w trakcie nie korzystaliśmy z dedykowanego do pieca opału. Oprócz tego drewno nie było do końca wysuszone. Myślę jednak, że mimo to zużycie wyglądało całkiem korzystnie i jestem zadowolony z energetycznych parametrów cieplnych domu.Wnętrze przewidziane w projekcie domu parterowego z poddaszem użytkowym Jaworzynka średnia KRP1159 od początku nam odpowiadało, jednak aby dopasować je do wszystkich naszych oczekiwań, postanowiliśmy wprowadzić w nim kilka drobnych modyfikacji. Mianowicie poszerzyliśmy przejście z salonu do kuchni, a także zrezygnowaliśmy z drzwi prowadzących do kuchni bezpośrednio z hallu. Na górze pierwotnie miały znajdować się dwie naprawdę sporych rozmiarów sypialnie, więc z łatwością udało nam się wygospodarować na tej kondygnacji trzy pokoje o standardowych wymiarach. Po dokonanej zmianie, balkon dzielony jest przez dwie sypialnie.Wybór projektu domu z piwnicą Jaworzynka średnia KRP1159 okazał się dla nas trafną decyzją. Funkcjonalność układu pomieszczeń jest jak najbardziej w porządku i jak dla nas wnętrze jest na plus. Żona twierdzi jedynie, że przy kuchni przydałaby się spiżarka, więc myślę że na etapie adaptacji warto ją wygospodarować. Pozdrawiam.

ASYSTENT WYBORU PROJEKTU

Szukasz idealnego projektu? Znajdziemy go dla Ciebie!

Doradca na podstawie Twoich wskazówek przygotuje spersonalizowaną listę projektów

Graficzne opracowanie rzutów poglądowych widocznych na karcie projektu zostało wykonane przez Extradom.pl. Prezentowane przez Extradom.pl wizualizacje wykonane zostały przez autora projektu i należy poczytywać je jedynie za przykład i propozycję wykończenia, wizję architektoniczną autora projektu. Ostateczne wykończenie budynku może nastąpić na wiele sposobów. Szczegółowe rozwiązania zastosowane w oferowanej dokumentacji - w tym również ilość, lokalizacje i wygląd okien, drzwi, kominów - mogą w niewielkim stopniu różnić się od prezentowanej wizualizacji budynku.

REKLAMA
Zamknij