👉 Wiosenne rabaty + karta allegro 200 zł! 🔥

Koniec oferty za:

00godz.

00min.

00sek.

Sprawdź

Projekt domu HomeKoncept 89 KRX1151

Zapisz Dodano!
Porównaj Dodano!
ikona Pobierz i drukuj
Dodaj opinię

Warstwy

Wymiary wewnętrzne

Powierzchnie pomieszczeń

Numery pomieszczeń

Meble

Kolory pomieszczeń

Warstwy

Wymiary wewnętrzne

Powierzchnie pomieszczeń

Numery pomieszczeń

Meble

Kolory pomieszczeń

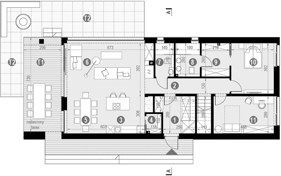
Rzut parteru

Powierzchnia (m²)
Tooltip
Powierzchnia pomieszczenia
to ta, z której faktycznie możesz korzystać – skosy i niskie części poddasza są liczone częściowo lub wcale.
  1. 100% dla wysokości powyżej 2,2 m,
  2. 50% dla wysokości 1,4–2,2 m,
  3. nie liczymy poniżej 1,4 m.

Powierzchnia podłogi
Liczymy po obrysie pomieszczenia, bez względu na jego wysokość/skosy. Jeśli nie ma skosów to powierzchnia podłogi i pomieszczenia jest taka sama.
pomieszczenia
podłogi
1. Wiatrołap
6,03
6,56
2. Korytarz
8,12
8,12
3. Spiżarnia
1,74
1,74
4. Kuchnia
9,14
9,14
5. Jadalnia
8,60
8,60
6. Pokój dzienny
27,04
27,04
7. Łazienka
3,77
3,77
8. Łazienka
4,90
4,90
9. Garderoba
5,63
5,63
10. Pokój
12,98
12,98
11. Pokój
13,53
13,53
Razem
101,48
102,01
12. Taras
22,19
13. Taras
40,10
Powierzchnia (m²)
Tooltip
Powierzchnia pomieszczenia
to ta, z której faktycznie możesz korzystać – skosy i niskie części poddasza są liczone częściowo lub wcale.
  1. 100% dla wysokości powyżej 2,2 m,
  2. 50% dla wysokości 1,4–2,2 m,
  3. nie liczymy poniżej 1,4 m.

Powierzchnia podłogi
Liczymy po obrysie pomieszczenia, bez względu na jego wysokość/skosy. Jeśli nie ma skosów to powierzchnia podłogi i pomieszczenia jest taka sama.
pomieszczenia
podłogi
1. Schody
6,42
6,42
2. Korytarz
8,61
8,61
3. Garderoba
4,51
5,98
4. Łazienka
6,17
8,05
5. Pokój
10,03
12,52
6. Pokój
13
15,90
7. Pomieszczenie gospodarcze
6,06
7,63
Razem
54,80
65,11

    Usytuowanie na działce

    Czy ten projekt pasuje na
    Twoją działkę?

    Chętnie to sprawdzimy!

    Dowiedz się:

    • czy zmieści się na niej wybrany przez Ciebie dom
    • jakie parametry musi spełniać dom według miejscowego planu zagospodarowania lub warunków zabudowy (np. kąt nachylenia i typ dachu, liczba kondygnacji itp.
    • jakie inne projekty pasują na Twoją działkę – znajdziemy je dla Ciebie!

Pow. użytkowa

157,38 m²

Pokoje

4

Łazienki i WC

3

Garaż

0

Kąt dachu

35°

Wysokość budynku

8,07 m

Powierzchnia zabudowy

134,40 m²

Min. szer. i dł. działki

25,36 x 15,90 m

Konstrukcja

Murowana

Szacunkowy koszt SSZ
netto na I kwartał 2026

457 000 zł

Pokaż więcej parametrów

Zapisz Dodano!
Porównaj Dodano!
ikona Pobierz i drukuj

HomeKoncept 89 - KRX1151

ikona 157,38 m²
Powierzchnia użytkowa
ikona4
Pokoje (bez salonu)
ikona 3
Łazienki (z toaletami)
ikona 0
Liczba stanowisk garażowych
(z wiatą garażową)
ikona
Konstrukcja: Murowana

6 990 zł

Projekt jest dostępny

Gwarancja najniższej ceny
ikona
Darmowa dostawa
Paczkomaty, kurier
ikona
100 dni na wymianę,
30 dni na zwrot
ikona Zyskaj najwięcej! Extradodatki GRATIS:

15% rabatu do LEROY MERLIN

10% rabatu w CASTORAMIE

16% rabatu w SELSEY

Kurs wideo dla planujących budowę

Pakiet Formalności 2026

Przydatne Extradodatki

Poradnik Dach Solarny

ikona Co zawiera projekt?
  • Projekt zgodny z WT2021
  • Bezpłatne pozwolenie na zmiany
  • Charakterystyka energetyczna
Konsultant
71 715 20 60

pon.-pt. 8-21, sob. 9-17

Szukasz wykonawcy godnego zaufania?
Zleć budowę w Extradom.pl!

  • Z góry znasz koszt budowy domu
  • Dom odbierasz zgodnie z ustalonym harmonogramem - nawet w 6 miesięcy
  • Zabezpiecza Cię jedna kompleksowa umowa z jednym wykonawcą
  • Otrzymujesz nawet 30-letnią gwarancję na konstrukcję domu
  • Oszczędzasz swój czas dzięki pewnej i kompletnej usłudze
  • Odbiór techniczny GRATIS - Gwarantujemy najwyższą jakość
Cena brutto stanu
deweloperskiego od
Tooltip
Cena brutto stanu deweloperskiego od 4 529 do 5 679 zł/m2.
Cena jest uzależniona m.in. od lokalizacji, wybranej technologii, kubatury budynku, skomplikowania projektu i ewentualnych zmian, na które zdecyduje się inwestor.
Cena za m2 powierzchni netto, czyli wszystkich pomieszczeń mierzonych na wysokości podłogi.
4 529 zł/m2
Dowiedz się więcej
Konsultant Masz pytania?
Zadzwoń
71 715 20 09

pon.-pt. 8-19

Parter - 101,48 m²

Warstwy

Wymiary wewnętrzne

Meble

Powierzchnie pomieszczeń

Kolory pomieszczeń

Numery pomieszczeń

Zapytaj, co możesz zmienić

Oznaczenia na rzutach

Lodówka

Suszarka

Zmywarka

Suszarka nad pralką

Kuchenka

Pralka

Piekarnik

Szafa

Kocioł

Pompa ciepła

Kominek

Rekuperacja

Szerokość stolarki
Wysokość stolarki

Legenda Zobacz oznaczenia użyte na rzutach

Powierzchnia (m²)
Tooltip
Powierzchnia pomieszczenia
to ta, z której faktycznie możesz korzystać – skosy i niskie części poddasza są liczone częściowo lub wcale.
  1. 100% dla wysokości powyżej 2,2 m,
  2. 50% dla wysokości 1,4–2,2 m,
  3. nie liczymy poniżej 1,4 m.

Powierzchnia podłogi
Liczymy po obrysie pomieszczenia, bez względu na jego wysokość/skosy. Jeśli nie ma skosów to powierzchnia podłogi i pomieszczenia jest taka sama.
pomieszczenia
podłogi
1. Wiatrołap
6,03
6,56
2. Korytarz
8,12
8,12
3. Spiżarnia
1,74
1,74
4. Kuchnia
9,14
9,14
5. Jadalnia
8,60
8,60
6. Pokój dzienny
27,04
27,04
7. Łazienka
3,77
3,77
8. Łazienka
4,90
4,90
9. Garderoba
5,63
5,63
10. Pokój
12,98
12,98
11. Pokój
13,53
13,53
Razem
101,48
102,01
12. Taras
22,19
13. Taras
40,10

Natychmiast, otrzymasz PDF-y
z rzutami wszystkich kondygnacji

Oznaczenia na rzutach

Lodówka

Suszarka

Zmywarka

Suszarka nad pralką

Kuchenka

Pralka

Piekarnik

Szafa

Kocioł

Pompa ciepła

Kominek

Rekuperacja

Szerokość stolarki
Wysokość stolarki

Legenda Zobacz oznaczenia użyte na rzutach

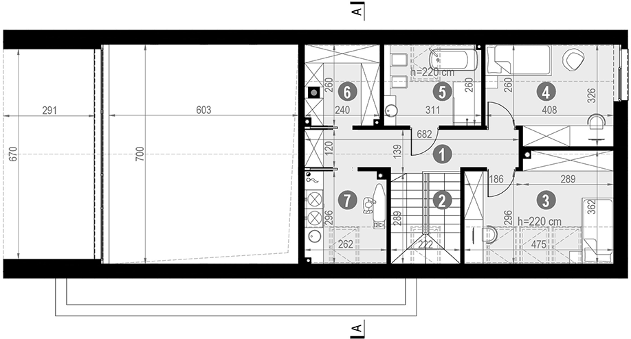
Poddasze - 54,80 m²

Warstwy

Wymiary wewnętrzne

Meble

Powierzchnie pomieszczeń

Kolory pomieszczeń

Numery pomieszczeń

Zapytaj, co możesz zmienić

Oznaczenia na rzutach

Lodówka

Suszarka

Zmywarka

Suszarka nad pralką

Kuchenka

Pralka

Piekarnik

Szafa

Kocioł

Pompa ciepła

Kominek

Rekuperacja

Szerokość stolarki
Wysokość stolarki

Legenda Zobacz oznaczenia użyte na rzutach

Powierzchnia (m²)
Tooltip
Powierzchnia pomieszczenia
to ta, z której faktycznie możesz korzystać – skosy i niskie części poddasza są liczone częściowo lub wcale.
  1. 100% dla wysokości powyżej 2,2 m,
  2. 50% dla wysokości 1,4–2,2 m,
  3. nie liczymy poniżej 1,4 m.

Powierzchnia podłogi
Liczymy po obrysie pomieszczenia, bez względu na jego wysokość/skosy. Jeśli nie ma skosów to powierzchnia podłogi i pomieszczenia jest taka sama.
pomieszczenia
podłogi
1. Schody
6,42
6,42
2. Korytarz
8,61
8,61
3. Garderoba
4,51
5,98
4. Łazienka
6,17
8,05
5. Pokój
10,03
12,52
6. Pokój
13
15,90
7. Pomieszczenie gospodarcze
6,06
7,63
Razem
54,80
65,11

Natychmiast, otrzymasz PDF-y
z rzutami wszystkich kondygnacji

Oznaczenia na rzutach

Lodówka

Suszarka

Zmywarka

Suszarka nad pralką

Kuchenka

Pralka

Piekarnik

Szafa

Kocioł

Pompa ciepła

Kominek

Rekuperacja

Szerokość stolarki
Wysokość stolarki

Legenda Zobacz oznaczenia użyte na rzutach

Zamów rysunki szczegółowe

Zapoznaj się ze szczegółowymi rysunkami rzutów kondygnacji w PDF dla tego projektu.

Warianty projektu (1)

Projekt domu HomeKoncept 89 G2
HomeKoncept 89 G2
Dodano!
Dodano!
203,93 m²
4
5
2

7 990 zł

Podobne projekty (131)

Zobacz wszystkie
NIŻSZA CENA 🔥
Zdjęcie 1 projektu Domidea 60 dG WAC1028
Domidea 60 dG
Dodano!
Dodano!
125,43 m²
4
3
1

5 604 zł

5 904 zł

Tooltip

Cena regularna

5 604 zł najniższa cena
Tooltip

Najniższa cena z 30 dni
przed obniżką

NIŻSZA CENA 🔥
Zdjęcie 1 projektu Domidea 50 d40 w4 WAC1010
Domidea 50 d40 w4
Dodano!
Dodano!
126,70 m²
4
3
1

5 604 zł

5 904 zł

Tooltip

Cena regularna

5 604 zł najniższa cena
Tooltip

Najniższa cena z 30 dni
przed obniżką

NIŻSZA CENA 🔥
Zdjęcie 1 projektu Nora BBI1021
Nora
Dodano!
Dodano!
176,53 m²
4
2
0

5 900 zł

6 200 zł

Tooltip

Cena regularna

5 900 zł najniższa cena
Tooltip

Najniższa cena z 30 dni
przed obniżką

NIŻSZA CENA 🔥
Zdjęcie 1 projektu Pogodny BSA2203
Pogodny
Dodano!
Dodano!
137,62 m²
4
3
1

5 349 zł

5 849 zł

Tooltip

Cena regularna

5 349 zł najniższa cena
Tooltip

Najniższa cena z 30 dni
przed obniżką

NIŻSZA CENA 🔥
Zdjęcie 1 projektu Weranda 5 BSA2292
Weranda 5
Dodano!
Dodano!
150,71 m²
3
2
0

5 649 zł

6 149 zł

Tooltip

Cena regularna

5 649 zł najniższa cena
Tooltip

Najniższa cena z 30 dni
przed obniżką

NIŻSZA CENA 🔥
Zdjęcie 1 projektu Helen 2 BBI1019
Helen 2
Dodano!
Dodano!
137,90 m²
3
2
0

5 900 zł

6 200 zł

Tooltip

Cena regularna

5 900 zł najniższa cena
Tooltip

Najniższa cena z 30 dni
przed obniżką

Zdjęcie 1 projektu Nasza Stodoła M KRY1000
Nasza Stodoła M
Dodano!
Dodano!
161,70 m²
5
3
1

6 000 zł

NIŻSZA CENA 🔥
Zdjęcie 1 projektu Mak 4 BSA2279
Mak 4
Dodano!
Dodano!
146,49 m²
4
2
0

4 849 zł

5 349 zł

Tooltip

Cena regularna

4 849 zł najniższa cena
Tooltip

Najniższa cena z 30 dni
przed obniżką

Metody i koszt budowy

Ten dom możesz budować metodą gospodarczą, systemem zleconym lub skorzystać z naszej oferty Projekt z Budową. Przy porównaniu weź pod uwagę nie tylko koszt, ale też różny zakres prac i standard wykonania.

Metoda gospodarcza

Najtańsza metoda - większość prac
budowlanych wykonuje inwestor

Stan surowy zamknięty (SSZ)

457 000 zł netto

Szacunkowy koszt materiałów na I kwartał 2026
  • Prace ziemne i fundamenty

    54 000 zł
  • Konstrukcja, strop oraz dach

    276 000 zł
  • Stolarka okienna i drzwiowa

    127 000 zł
  • Instalacje

    nie obejmuje
  • Prace wykończeniowe

    nie obejmuje
  • Możesz budować etapami, pamiętając jednak o zmianie kosztów w czasie
  • Możesz rozpocząć budowę z częścią niezbędnych środków
  • Sam ustalasz harmonogram, koordynujesz budowę i zapewniasz materiały
Czy da się obniżyć koszty budowy?
Zobacz nasz film jak obniżyć koszt budowy

Projekt z Budową

Najszybsza i najwygodniejsza metoda -
całą budowę domu realizuje jedna firma

Stan deweloperski
Gwarancja stałego kosztu budowy

Gwarancja stałego
kosztu budowy

  • Prace ziemne i fundamenty
  • Konstrukcja, strop oraz dach
  • Stolarka okienna i drzwiowa
  • Instalacje  
    Tooltip

    Obejmuje wykonanie instalacji:

    • wodno-kanalizacyjnej
    • centralnego ogrzewania
    • gazowej
    • elektrycznej
  • Prace wykończeniowe  
    Tooltip

    Prace wykończeniowe obejmują:

    • sufity i ściany wewnętrzne
    • tynki i okładziny ścian wewnętrznych
    • wylewki i posadzkę
    • ocieplenie ścian zewnętrznych i elewację

Budowa
nawet w
6mies.

  • Kompleksowa umowa i znany z góry koszt budowy
  • Logistyka, organizacja budowy i zakupy po stronie firmy budowlanej
  • Formalności i dokumentacje po stronie firmy budowlanej
  • Różne technologie budowy dopasowane do projektu i budżetu
Szczegóły i dostępne technologie
icon

Darmowe

Zestawienie materiałów budowlanych

icon

Polecamy

Kosztorys

Zawiera zestawienie wszystkich potrzebnych materiałów wraz z ich cenami, uwzględnia koszty sprzętu i transportu. Z kosztorysem:

  • poznasz całkowite koszty budowy
  • zaplanujesz prace na budowie
  • łatwiej ocenisz konkurencyjność ofert podwykonawców
  • otrzymasz dokument wymagany w procesie kredytowym

Elewacje

Frontowa
Tylna
Lewa
Prawa

Przekroje

Przekrój pionowy

Usytuowanie na działce

Czy ten projekt pasuje na
Twoją działkę?

Chętnie to sprawdzimy!

Czy ten projekt pasuje na
Twoją działkę?

Chętnie to sprawdzimy!

Dowiedz się:

  • czy zmieści się na niej wybrany przez Ciebie dom
  • jakie parametry musi spełniać dom według miejscowego planu zagospodarowania lub warunków zabudowy (np. kąt nachylenia i typ dachu, liczba kondygnacji itp.
  • jakie inne projekty pasują na Twoją działkę – znajdziemy je dla Ciebie!
Autor: HOMEKONCEPT

Dane techniczne projektu

Powierzchnie i wymiary Powierzchnie i wymiary

Powierzchnia użytkowa
Tooltip
Suma powierzchni wszystkich pomieszczeń mieszkalnych, pomniejszona o pow. garażu, kotłowni, strychu, piwnicy. Jest liczona w 100% dla pomieszczeń o wysokości powyżej 2,2 m, w 50% dla pomieszczeń o wys. 2,2-1,4 m i niewliczana dla niższych niż 1,4 m.

157,38 m²

Powierzchnia zabudowy
Tooltip
Powierzchnia zajmowana przez część na- oraz nadziemną budynku liczona, jako rzut pionowy budynku na działkę.

134,40 m²

Powierzchnia całkowita
Tooltip
Całkowita powierzchnia wszystkich kondygnacji budynku łącznie z elementami nośnymi, takimi jak ściany zewnętrzne (z ociepleniem), słupy, tarasy, itp.

215,58 m²

Kubatura brutto
Tooltip
Zazwyczaj jest to suma kubatur (objętości) wszystkich pomieszczeń budynku, liczonych po zewnętrznym obrysie murów (z ociepleniem).

874,18 m³

Powierzchnia dachu

192 m²

Kąt nachylenia dachu
Tooltip
Nachylenie połaci dachu głównego podawane w stopniach. Uwaga! W niektórych projektach występuje więcej niż jedno nachylenie dachu.

35°

Wysokość budynku
Tooltip
Wysokość liczona od części budynku położonej najniżej przy powierzchni terenu do najwyższego punktu dachu (kalenicy) z wyłączeniem kominów.

8,07 m

Szerokość elewacji

19,86 m

Długość elewacji

9,10 m

Min. szerokość działki
Tooltip
Najmniejsza możliwa szerokość działki niezbędna do wybudowania wybranego domu. Składa się z szerokości elewacji domu powiększonej z obu stron o 3 m dla ściany bez otworów drzwiowych/okiennych lub 4 m, dla ściany z otworami.

25,36 m

Min. długość działki
Tooltip
Najmniejsza możliwa długość działki niezbędna do wybudowania wybranego domu. Składa się z długości elewacji domu powiększonej z obu stron o 3 m dla ściany bez otworów drzwiowych/okiennych lub 4 m, dla ściany z otworami.

15,90 m

Energooszczędność Energooszczędność

Oze Czym jest OZE (Odnawialne Źródło Energii)?
Ep
Tooltip
Energia pierwotna określa ilość energii nieodnawialnej potrzebnej w ciągu roku do ogrzewania czy też ogrzania wody użytkowej z uwzględnieniem kosztów produkcji i transportu surowców energetycznych.

14 kWh/(m²rok)

Euco
Tooltip
Energia użytkowa potrzebna do ogrzewania i wentylacji. Im parametr jest niższy tym budynek bardziej energooszczędny.

17,20 kWh/(m²rok)

Ogrzewanie główne

Gazowe - szczegóły

Dodatkowo istnieje możliwość zamówienia projektu z

Pompa ciepła + ogrzewanie podłogowe

Interesuje Cię inne źródło ogrzewania? Wyślij zapytanie lub zadzwoń do doradcy

Wentylacja

Mechaniczna nawiewno-wywiewna z rekuperacją - szczegóły

Instalacje w projekcie

Ogrzewanie podłogowe (na całej powierzchni domu lub w jej części, szczegóły u doradcy)

Warunki techniczne

Projekt zgody z WT 2021

Technologia i konstrukcja Technologia i konstrukcja

Konstrukcja

Murowana

PROJEKT Z BUDOWĄ Istnieje możliwość zaadaptowania tego projektu do technologii prefabrykowanej/modułowej i budowy nawet w 6 miesięcy ze stałym kosztem budowy

Dowiedz się więcej »
Opis szczegółowy

Fundamenty: tradycyjne - na ławach fundamentowych. Strop: żelbetowy wylewany. Ściany: dwuwarstwowe pustak ceramiczny 25 cm + styropian Termo Organika 20 cm/wełna mineralna 18 cm. Dach: tradycyjna więźba dachowa pokryta blachą na rąbek, okna dachowe FAKRO, stropodach pełny kryty membraną EPDM. Elewacja: tynk silikonowy połączony z drewnem elewacyjnym . Ogrzewanie: gazowe - piec kondensacyjny oraz ogrzewanie podłogowe w całym domu w łazienkach dodatkowo tradycyjne grzejniki typu ręcznikowiec. Wentylacja: mechaniczna z rekuperacją. Rolety podtynkowe: tak – rozwiązania firmy ALUPROF.

Strop

Żelbetowy

Reklama
Okna i drzwi tarasowe

Nowoczesne okna PVC i aluminiowe WIŚNIOWSKI – doskonała izolacja, elegancki design i niezrównana trwałość.

Wiśniowski
Sprawdź parametry!
Okna dachowe

Oferujemy bezpłatne konsultacje w zakresie wszystkich rozwiązań VELUX. Wyceny, porady dotyczące doboru okien i rolet zewnętrznych - sprawdź!

Velux
Sprawdź szczegóły
Pompa ciepła

Wybierz pompę ciepła, która pasuje do Twojego domu. Niezależnie od tego, czy ustawienie wewnątrz czy na zewnątrz, pompy ciepła STIEBEL ELTRON dopasują się do każdej przestrzeni.

Stiebel
Dobierz pompę ciepła
Drzwi

Ciepłe drzwi WIŚNIOWSKI z kontrolą dostępu. Szeroka gama wzorów i kolorów.

Wiśniowski
Wybierz najlepsze
Bramy garażowe

Automatyczne bramy garażowe segmentowe i uchylne WIŚNIOWSKI na wymiar i z systemem smart home w standardzie.

Wiśniowski
Sprawdź ofertę!
Rekuperacja

Alnor - kompletny system rekuperacji. Dobierz idealne rozwiązanie dla Twojego domu!

Alnor
Dobierz rekuperator
Dach

Producent stalowych pokryć dachowych i systemów elewacyjnych. Precyzja wykonania, trwałość na lata i szybki montaż doceniany przez dekarzy. Postaw na solidny dach Budmat.

Budmat
Sprawdź ofertę
Ogrodzenie

Nowoczesne stalowe ogrodzenia Budmat - estetyka, bezpieczeństwo i trwałość na lata. Systemowe rozwiązania na wymiar, dopasowane do każdego domu.

Budmat
Sprawdź ofertę

Gotowe domy - najszybszy sposób na dom (115)

Zobacz wszystkie
  • Stan deweloperski nawet w 6 miesięcy
  • Gwarancja stałej ceny
Skonfiguruj dom
Zdjęcie 1 projektu Bergen 130 HUS1002
130,40 m²
4
Stan deweloperski brutto
529 000 zł 4 057 zł/m²
Zdjęcie 1 projektu Dom prefabrykowany P.2 HPK1001
159,18 m²
5
Stan deweloperski brutto
847 000 zł 5 321 zł/m²
Zdjęcie 1 projektu Dom prefabrykowany P.4 bez okapu HPK1003
162,18 m²
5
Stan deweloperski brutto
723 500 zł 4 461 zł/m²
Zdjęcie 1 projektu Dom prefabrykowany P.4 z okapem HPK1014
162,18 m²
5
Stan deweloperski brutto
739 600 zł 4 560 zł/m²
Zdjęcie 1 projektu Dom prefabrykowany DH174 HDH1009
162,97 m²
4
Stan deweloperski brutto
1 026 000 zł 6 296 zł/m²
Zdjęcie 1 projektu Dom szkieletowy Viking Smart 220 HHT1032
163,86 m²
4
Stan deweloperski brutto
1 095 606 zł 6 686 zł/m²
Zdjęcie 1 projektu Dom prefabrykowany Parterowy 150A HFX1038
150,51 m²
4
Stan deweloperski brutto
590 000 zł 3 920 zł/m²
Zdjęcie 1 projektu Dom prefabrykowany Parterowy 150B HFX1039
150,50 m²
4
Stan deweloperski brutto
590 000 zł 3 920 zł/m²

Dodatki do projektu

Dodatki możesz zamówić w koszyku lub telefonicznie u naszego Doradcy.

Czym jest OZE (Odnawialne Źródło Energii)?

Ikona

Bestseller

Kosztorys

490 zł

Ikona

Bestseller

Pakiet PREMIUM

4 189 zł

1 690 zł

Cena przy zakupie z projektem

Ikona

Bestseller

Pakiet HOME

1 154 zł

690 zł

Cena przy zakupie z projektem

Ikona

Dodatkowy egzemplarz projektu

490 zł

Ikona

Rysunki elewacji w DWG

590 zł

Ikona

Uproszczone pliki DWG

590 zł

Pokaż więcej (4)

Opis projektu domu
HomeKoncept 89

Projekt domu z poddaszem HomeKoncept-89 z dachem dwuspadowym i tarasem.
Czytaj więcej

Polecani producenci

Kompletne systemy rekuperacji

tło producenta

Alnor

Dowiedz się więcej

Dachy modułowe ze stali

tło producenta

Budmat

Poznaj szczegóły oferty

Prefabrykowane konstrukcje dachowe

tło producenta

WIĄZAR POLSKA

Zobacz więcej
Zobacz więcej

Społeczność projektu domu
HomeKoncept 89 w budowie

Dołącz do społeczności osób, które budują ten dom lub są zainteresowane jego budową.

  • Oglądaj zdjęcia z budowy
  • Zadawaj pytania
  • Wymieniaj się doświadczeniami

Opinie o projekcie domu
HomeKoncept 89

Opinie niezweryfikowane

Bądź pierwszy!
Ten projekt nie ma jeszcze opinii, bądź pierwszy!

ikona Dodaj opinię o projekcie

ASYSTENT WYBORU PROJEKTU

Szukasz idealnego projektu? Znajdziemy go dla Ciebie!

Doradca na podstawie Twoich wskazówek przygotuje spersonalizowaną listę projektów

Graficzne opracowanie rzutów poglądowych widocznych na karcie projektu zostało wykonane przez Extradom.pl. Prezentowane przez Extradom.pl wizualizacje wykonane zostały przez autora projektu i należy poczytywać je jedynie za przykład i propozycję wykończenia, wizję architektoniczną autora projektu. Ostateczne wykończenie budynku może nastąpić na wiele sposobów. Szczegółowe rozwiązania zastosowane w oferowanej dokumentacji - w tym również ilość, lokalizacje i wygląd okien, drzwi, kominów - mogą w niewielkim stopniu różnić się od prezentowanej wizualizacji budynku.

Extradom.pl Spółka z ograniczoną odpowiedzialnością z siedzibą przy ul. Jaworskiej 13, 53-612 Wrocław, wpisana do rejestru przedsiębiorców Krajowego Rejestru Sądowego przez Sąd Rejonowy dla Wrocławia-Fabrycznej we Wrocławiu, VI Wydział Gospodarczy Krajowego Rejestru Sądowego do pod numerem KRS 0000648746, numer NIP 895-17-18-333, o kapitale zakładowym 708 150,00 zł uprzejmie informuje, iż poprzez serwis Extradom.pl umożliwia m.in. zapoznanie się przez konsumentów z ofertą handlową Partnerów Extradom.pl, którzy stosują metody budowy domów przy wykorzystaniu różnego rodzaju technologie prefabrykacji bądź modułowe (tzw. „Gotowe domy”).

Extradom.pl nie prowadzi jednakże sprzedaży ani nie oferuje usług polegających na doradztwie finansowym, prawnym ani podatkowym w zakresie inwestycji realizowanych w technologiach tzw. „Gotowych domów”. Informacje prezentowane w serwisie Extradom.pl dotyczące Partnerów Extradom.pl oferujących realizację inwestycji w technologiach „Gotowych domów” lub podobnych mają charakter informacyjny i reklamowy.

Prezentowane w serwisie Extradom.pl informacje dotyczące stosowanych przez Partnerów metod budowy domów w technologii prefabrykacji bądź modułowej pochodzą od Partnerów Extradom.pl.

Extradom.pl sp. z o.o. jedynie umożliwia nawiązanie kontaktu przez Użytkownika z Partnerem Extradom.pl stosującym tego rodzaju technologie budowy domów i nie jest stroną umowy o roboty budowlane zawieranej przez Użytkownika Extradom.pl z Partnerem Extradom.pl.

REKLAMA
Zamknij