Projekty nawet 500 zł taniej ❄️

Koniec oferty za:

00godz.

00min.

00sek.

Sprawdź

Projekt domu HomeKoncept 101 G2 KRX1206

Dodano!
Dodano!

Warstwy

Warstwy

Rzut parteru

Powierzchnia (m²)
Tooltip
Powierzchnia pomieszczenia
to ta, z której faktycznie możesz korzystać – skosy i niskie części poddasza są liczone częściowo lub wcale.
  1. 100% dla wysokości powyżej 2,2 m,
  2. 50% dla wysokości 1,4–2,2 m,
  3. nie liczymy poniżej 1,4 m.

Powierzchnia podłogi
Liczymy po obrysie pomieszczenia, bez względu na jego wysokość/skosy. Jeśli nie ma skosów to powierzchnia podłogi i pomieszczenia jest taka sama.
pomieszczenia
podłogi
1. Wiatrołap
7,86
9,32
2. Korytarz
5,33
5,33
3. Pokój dzienny + jadalnia
21,20
21,20
4. Kuchnia
5,85
5,85
5. Kotłownia
5,16
5,16
6. Łazienka
3,50
3,50
7. Garderoba
3,07
3,07
8. Garaż dwustanowiskowy
41,84
41,84
Razem
93,81
95,27
9. Taras
13,01
Powierzchnia (m²)
Tooltip
Powierzchnia pomieszczenia
to ta, z której faktycznie możesz korzystać – skosy i niskie części poddasza są liczone częściowo lub wcale.
  1. 100% dla wysokości powyżej 2,2 m,
  2. 50% dla wysokości 1,4–2,2 m,
  3. nie liczymy poniżej 1,4 m.

Powierzchnia podłogi
Liczymy po obrysie pomieszczenia, bez względu na jego wysokość/skosy. Jeśli nie ma skosów to powierzchnia podłogi i pomieszczenia jest taka sama.
pomieszczenia
podłogi
1. Korytarz
7,74
7,74
2. Pokój
9,41
10,88
3. Pokój
7,34
8,57
4. Łazienka
3,61
4,59
5. Pokój
9,22
10,36
6. Garderoba
5,79
6,94
Razem
43,11
49,08

    Usytuowanie na działce

    Czy ten projekt pasuje na
    Twoją działkę?

    Chętnie to sprawdzimy!

    Dowiedz się:

    • czy zmieści się na niej wybrany przez Ciebie dom
    • jakie parametry musi spełniać dom według miejscowego planu zagospodarowania lub warunków zabudowy (np. kąt nachylenia i typ dachu, liczba kondygnacji itp.
    • jakie inne projekty pasują na Twoją działkę – znajdziemy je dla Ciebie!

Pow. użytkowa

95,08 m²

Pokoje

3

Łazienki i WC

2

Garaż

2

Min. szer. i dł. działki

22,8 x 17,76 m

Kąt dachu

45°

Konstrukcja

Murowana
więcej

HomeKoncept 101 G2 - KRX1206

ikona 95,08 m²
Powierzchnia użytkowa
ikona3
Pokoje (bez salonu)
ikona 2
Łazienki (z toaletami)
ikona 2
Liczba stanowisk garażowych
(z wiatą garażową)
ikona
Konstrukcja: Murowana

Projekt został
wycofany z oferty

W razie pytań prosimy o kontakt
z Centrum Obsługi Klienta
Konsultant Masz pytania?
Zadzwoń
71 715 20 60

pon.-pt. 8-21, sob. 9-17

Parter - 93,81 m²

Parter projektu HomeKoncept 101 G2

Zapytaj, co możesz zmienić

Powierzchnia (m²)
Tooltip
Powierzchnia pomieszczenia
to ta, z której faktycznie możesz korzystać – skosy i niskie części poddasza są liczone częściowo lub wcale.
  1. 100% dla wysokości powyżej 2,2 m,
  2. 50% dla wysokości 1,4–2,2 m,
  3. nie liczymy poniżej 1,4 m.

Powierzchnia podłogi
Liczymy po obrysie pomieszczenia, bez względu na jego wysokość/skosy. Jeśli nie ma skosów to powierzchnia podłogi i pomieszczenia jest taka sama.
pomieszczenia
podłogi
1. Wiatrołap
7,86
9,32
2. Korytarz
5,33
5,33
3. Pokój dzienny + jadalnia
21,20
21,20
4. Kuchnia
5,85
5,85
5. Kotłownia
5,16
5,16
6. Łazienka
3,50
3,50
7. Garderoba
3,07
3,07
8. Garaż dwustanowiskowy
41,84
41,84
Razem
93,81
95,27
9. Taras
13,01

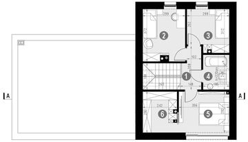
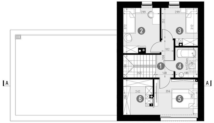
Poddasze - 43,11 m²

Poddasze projektu HomeKoncept 101 G2

Zapytaj, co możesz zmienić

Powierzchnia (m²)
Tooltip
Powierzchnia pomieszczenia
to ta, z której faktycznie możesz korzystać – skosy i niskie części poddasza są liczone częściowo lub wcale.
  1. 100% dla wysokości powyżej 2,2 m,
  2. 50% dla wysokości 1,4–2,2 m,
  3. nie liczymy poniżej 1,4 m.

Powierzchnia podłogi
Liczymy po obrysie pomieszczenia, bez względu na jego wysokość/skosy. Jeśli nie ma skosów to powierzchnia podłogi i pomieszczenia jest taka sama.
pomieszczenia
podłogi
1. Korytarz
7,74
7,74
2. Pokój
9,41
10,88
3. Pokój
7,34
8,57
4. Łazienka
3,61
4,59
5. Pokój
9,22
10,36
6. Garderoba
5,79
6,94
Razem
43,11
49,08

Podobne projekty (5988)

Zobacz wszystkie
NIŻSZA CENA❄️
Zdjęcie 1 projektu Steel stodoła KNT1008
Steel stodoła
Dodano!
Dodano!
113,40 m²
4
3
2

5 050 zł

5 500 zł

Tooltip

Cena regularna

4 700 zł najniższa cena
Tooltip

Najniższa cena z 30 dni
przed obniżką

Zdjęcie 1 projektu D21-11A G2 WSA1000
D21-11A G2
Dodano!
Dodano!
104,42 m²
3
2
2

7 500 zł

Nowość
Zdjęcie 1 projektu Dopasowany 05 KZB1051
Dopasowany 05
Dodano!
Dodano!
79,72 m²
3
1
1

4 000 zł

Nowość
Zdjęcie 1 projektu Dopasowany 04 KZB1050
Dopasowany 04
Dodano!
Dodano!
81,28 m²
3
1
1

3 800 zł

NIŻSZA CENA❄️
Zdjęcie 1 projektu Malina Alfa (1523) KRD2670
Malina Alfa (1523)
Dodano!
Dodano!
111 m²
4
2
1

4 340 zł

4 690 zł

Tooltip

Cena regularna

4 140 zł najniższa cena
Tooltip

Najniższa cena z 30 dni
przed obniżką

NIŻSZA CENA❄️
Zdjęcie 1 projektu Malutki 11 BSA2388
Malutki 11
Dodano!
Dodano!
113,48 m²
4
3
1

5 249 zł

5 749 zł

Tooltip

Cena regularna

5 249 zł najniższa cena
Tooltip

Najniższa cena z 30 dni
przed obniżką

NIŻSZA CENA❄️
Zdjęcie 1 projektu Czaruś Duo (892) KRD1729
Czaruś Duo (892)
Dodano!
Dodano!
97,70 m²
4
2
1

4 140 zł

4 490 zł

Tooltip

Cena regularna

3 940 zł najniższa cena
Tooltip

Najniższa cena z 30 dni
przed obniżką

NIŻSZA CENA❄️
Zdjęcie 1 projektu Weranda 6 BSA2299
Weranda 6
Dodano!
Dodano!
110,58 m²
3
2
1

5 249 zł

5 749 zł

Tooltip

Cena regularna

5 249 zł najniższa cena
Tooltip

Najniższa cena z 30 dni
przed obniżką

Elewacje

Frontowa
Tylna
Lewa
Prawa

Przekroje

Przekrój pionowy

Usytuowanie na działce

Czy ten projekt pasuje na
Twoją działkę?

Chętnie to sprawdzimy!

Czy ten projekt pasuje na
Twoją działkę?

Chętnie to sprawdzimy!

Dowiedz się:

  • czy zmieści się na niej wybrany przez Ciebie dom
  • jakie parametry musi spełniać dom według miejscowego planu zagospodarowania lub warunków zabudowy (np. kąt nachylenia i typ dachu, liczba kondygnacji itp.
  • jakie inne projekty pasują na Twoją działkę – znajdziemy je dla Ciebie!
Autor: HOMEKONCEPT

Dane techniczne projektu

Powierzchnie i wymiary Powierzchnie i wymiary

Powierzchnia użytkowa
Tooltip
Suma powierzchni wszystkich pomieszczeń mieszkalnych, pomniejszona o pow. garażu, kotłowni, strychu, piwnicy. Jest liczona w 100% dla pomieszczeń o wysokości powyżej 2,2 m, w 50% dla pomieszczeń o wys. 2,2-1,4 m i niewliczana dla niższych niż 1,4 m.

95,08 m²

Powierzchnia zabudowy
Tooltip
Powierzchnia zajmowana przez część na- oraz nadziemną budynku liczona, jako rzut pionowy budynku na działkę.

127,73 m²

Powierzchnia całkowita
Tooltip
Całkowita powierzchnia wszystkich kondygnacji budynku łącznie z elementami nośnymi, takimi jak ściany zewnętrzne (z ociepleniem), słupy, tarasy, itp.

195,94 m²

Powierzchnia dachu

98 m²

Kąt nachylenia dachu
Tooltip
Nachylenie połaci dachu głównego podawane w stopniach. Uwaga! W niektórych projektach występuje więcej niż jedno nachylenie dachu.

45°

Wysokość budynku
Tooltip
Wysokość liczona od części budynku położonej najniżej przy powierzchni terenu do najwyższego punktu dachu (kalenicy) z wyłączeniem kominów.

8,30 m

Szerokość elewacji

15,80 m

Długość elewacji

9,76 m

Min. szerokość działki
Tooltip
Najmniejsza możliwa szerokość działki niezbędna do wybudowania wybranego domu. Składa się z szerokości elewacji domu powiększonej z obu stron o 3 m dla ściany bez otworów drzwiowych/okiennych lub 4 m, dla ściany z otworami.

22,80 m

Min. długość działki
Tooltip
Najmniejsza możliwa długość działki niezbędna do wybudowania wybranego domu. Składa się z długości elewacji domu powiększonej z obu stron o 3 m dla ściany bez otworów drzwiowych/okiennych lub 4 m, dla ściany z otworami.

17,76 m

Energooszczędność Energooszczędność

Oze Czym jest OZE (Odnawialne Źródło Energii)?
Ogrzewanie główne

Gazowe - szczegóły

Interesuje Cię inne źródło ogrzewania? Wyślij zapytanie lub zadzwoń do doradcy

Wentylacja

Mechaniczna nawiewno-wywiewna z rekuperacją - szczegóły

Instalacje w projekcie

Ogrzewanie podłogowe (na całej powierzchni domu lub w jej części, szczegóły u doradcy)

Warunki techniczne

Projekt zgody z WT 2021

Technologia i konstrukcja Technologia i konstrukcja

Konstrukcja

Murowana

Opis szczegółowy

Fundamenty: tradycyjne - na ławach fundamentowych. Strop: żelbetowy wylewany. Ściany: dwuwarstwowe - pustak ceramiczny 25 cm + styropian Termo Organika 20 cm. Dach: tradycyjna więźba dachowa pokryta blachą na rąbek, okna dachowe FAKRO, system rynnowy Galeco BEZOKAPOWY. Elewacja: tynk silikonowy w kolorze białym i grafitowym połączony z kamieniem. Ogrzewanie: gazowe - piec kondensacyjny oraz ogrzewanie podłogowe w całym domu, dodatkowo w łazienkach tradycyjne grzejniki typu "ręcznikowiec". Wentylacja: mechaniczna z rekuperacją. Rolety podtynkowe - tak.

Strop

Żelbetowy

Reklama
Okna i drzwi tarasowe

Nowoczesne okna PVC i aluminiowe WIŚNIOWSKI – doskonała izolacja, elegancki design i niezrównana trwałość.

Wiśniowski
Sprawdź parametry!
Okna dachowe

Oferujemy bezpłatne konsultacje w zakresie wszystkich rozwiązań VELUX. Wyceny, porady dotyczące doboru okien i rolet zewnętrznych - sprawdź!

Velux
Sprawdź szczegóły
Płytki ceramiczne i gresy

Od małych formatów po wielkoformatowe gresy. Marmur, beton, drewno, kamień, lastryko czy cegiełki zamówisz wygodnie online z szybką dostawą.

Ceramzet
Sprawdź ofertę
Drzwi

Ciepłe drzwi WIŚNIOWSKI z kontrolą dostępu. Szeroka gama wzorów i kolorów.

Wiśniowski
Wybierz najlepsze
Bramy garażowe

Automatyczne bramy garażowe segmentowe i uchylne WIŚNIOWSKI na wymiar i z systemem smart home w standardzie.

Wiśniowski
Sprawdź ofertę!
Armatura i ceramika łazienkowa

Topowi producenci. Baterie łazienkowe, zestawy natynkowe i podtynkowe, umywalki, wanny, miski WC oraz kabiny zamówisz kompleksowo online.

Ceramzet II
Dowiedz się więcej
Rekuperacja

Alnor - kompletny system rekuperacji. Dobierz idealne rozwiązanie dla Twojego domu!

Alnor
Dobierz rekuperator
Gruntowe pompy ciepła

Przeprowadzimy kompletną instalację najbardziej oszczędnego źródła ciepła w Twoim nowym domu - gruntowej pompy ciepła. Od dokumentacji, pozwoleń, po odwierty i instalację.

Geothermal Solutions
Dowiedz się więcej

Gotowe domy modułowe (114)

Zobacz wszystkie
Stan deweloperski nawet w 6 miesięcy Gwarancja stałej ceny
Zdjęcie 1 projektu Dom prefabrykowany Piętrowy 95A HFX1018
Pow. użytkowa
95,80 m²
Pokoje
3
469 000 zł 4 896 zł/m²
Zdjęcie 1 projektu Dom keramzytowy Essenzia 110G HRK1002
Pow. użytkowa
95,83 m²
Pokoje
2
495 720 zł 5 173 zł/m²
Zdjęcie 1 projektu Dom prefabrykowany DH110 HDH1006
Pow. użytkowa
94,18 m²
Pokoje
3
512 676 zł 5 444 zł/m²
Zdjęcie 1 projektu Dom prefabrykowany Piętrowy 95C HFX1020
Pow. użytkowa
96,20 m²
Pokoje
3
469 000 zł 4 875 zł/m²
Zdjęcie 1 projektu Dom prefabrykowany Piętrowy 95B HFX1019
Pow. użytkowa
96,20 m²
Pokoje
3
469 000 zł 4 875 zł/m²
Zdjęcie 1 projektu Dom prefabrykowany DH115 HDH1007
Pow. użytkowa
93,90 m²
Pokoje
2
520 992 zł 5 138 zł/m²
Zdjęcie 1 projektu ExtraBetonowy 3 HPK1019
Gotowy extraBetonowy 3
Dodano!
Dodano!
Pow. użytkowa
97,13 m²
Pokoje
3
491 826 zł 5 064 zł/m²
Zdjęcie 1 projektu Dom modułowy Flow HMD1002
Gotowy dom modułowy Flow
Dodano!
Dodano!
Pow. użytkowa
92,67 m²
Pokoje
3
508 000 zł 5 482 zł/m²

Opis projektu domu
HomeKoncept 101 G2

Projekt domu HomeKoncept 101 G2 z dachem dwuspadowym i z tarasem.
Czytaj więcej

Polecani producenci

Prefabrykowane konstrukcje dachowe

tło producenta

WIĄZAR POLSKA

Zobacz więcej

Sprawdź nową generację okien GREENVIEW

tło producenta

FAKRO

Sprawdź nową generację okien GREENVIEW

Styropian, tynki, farby, kleje

tło producenta

Termo Organika

Poznaj super jakość

Okna, drzwi, osłony przeciwsłoneczne

tło producenta

Aluprof

Sprawdź ofertę

Kompletne systemy rekuperacji

tło producenta

Alnor

Dowiedz się więcej

Sprawdź nowy system DACHRYNNA

tło producenta

Galeco

Sprawdź ofertę
Zobacz więcej

Społeczność projektu domu
HomeKoncept 101 G2 w budowie

Dołącz do społeczności osób, które budują ten dom lub są zainteresowane jego budową.

  • Oglądaj zdjęcia z budowy
  • Zadawaj pytania
  • Wymieniaj się doświadczeniami

Opinie o projekcie domu HomeKoncept 101 G2

Ocena

Ten projekt nie ma jeszcze opinii, bądź pierwszy!

Dodaj opinię

ASYSTENT WYBORU PROJEKTU

Szukasz idealnego projektu? Znajdziemy go dla Ciebie!

Doradca na podstawie Twoich wskazówek przygotuje spersonalizowaną listę projektów

Graficzne opracowanie rzutów poglądowych widocznych na karcie projektu zostało wykonane przez Extradom.pl. Prezentowane przez Extradom.pl wizualizacje wykonane zostały przez autora projektu i należy poczytywać je jedynie za przykład i propozycję wykończenia, wizję architektoniczną autora projektu. Ostateczne wykończenie budynku może nastąpić na wiele sposobów. Szczegółowe rozwiązania zastosowane w oferowanej dokumentacji - w tym również ilość, lokalizacje i wygląd okien, drzwi, kominów - mogą w niewielkim stopniu różnić się od prezentowanej wizualizacji budynku.

REKLAMA
Zamknij