👉 Rozgrzewające rabaty! 🔥

Projekt domu Gaik sudecki dws KRP1861

Dodano!
Dodano!

Warstwy

Warstwy

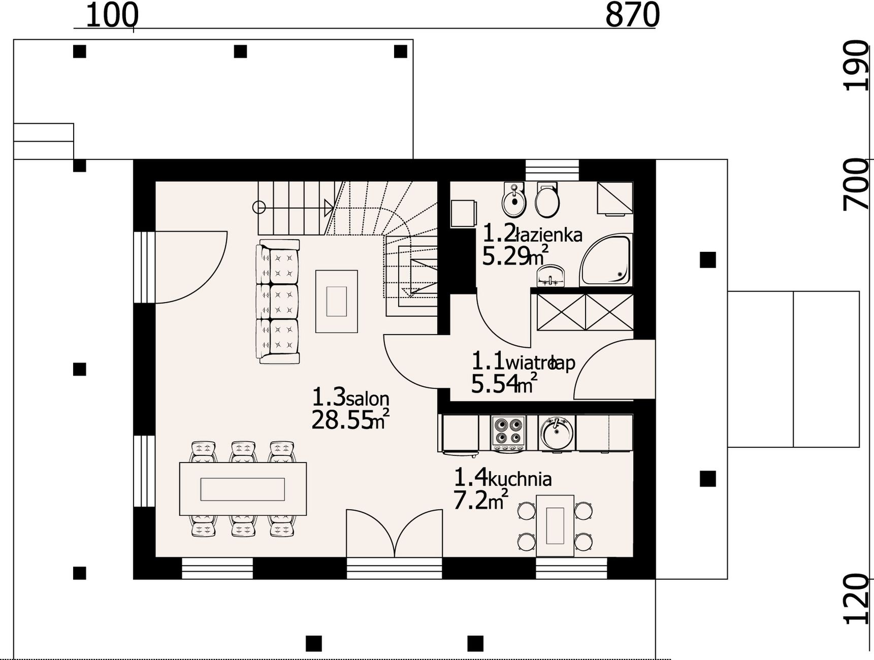
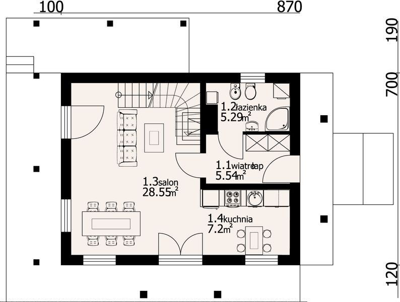
Rzut parteru

Powierzchnia (m²)
Tooltip
Powierzchnia pomieszczenia
to ta, z której faktycznie możesz korzystać – skosy i niskie części poddasza są liczone częściowo lub wcale.
  1. 100% dla wysokości powyżej 2,2 m,
  2. 50% dla wysokości 1,4–2,2 m,
  3. nie liczymy poniżej 1,4 m.

Powierzchnia podłogi
Liczymy po obrysie pomieszczenia, bez względu na jego wysokość/skosy. Jeśli nie ma skosów to powierzchnia podłogi i pomieszczenia jest taka sama.
pomieszczenia i podłogi
podłogi
1. Wiatrołap
5,54
2. Łazienka
5,29
3. Pokój dzienny + jadalnia
28,55
4. Kuchnia
7,20
Razem
46,58
46,58
Powierzchnia (m²)
Tooltip
Powierzchnia pomieszczenia
to ta, z której faktycznie możesz korzystać – skosy i niskie części poddasza są liczone częściowo lub wcale.
  1. 100% dla wysokości powyżej 2,2 m,
  2. 50% dla wysokości 1,4–2,2 m,
  3. nie liczymy poniżej 1,4 m.

Powierzchnia podłogi
Liczymy po obrysie pomieszczenia, bez względu na jego wysokość/skosy. Jeśli nie ma skosów to powierzchnia podłogi i pomieszczenia jest taka sama.
pomieszczenia
podłogi
1. Korytarz
3,23
3,33
2. Łazienka
4,13
6,87
3. Pokój
9,02
10,78
4. Pokój
12,85
14,65
5. Pokój
6,26
8,35
Razem
35,49
43,98

    Usytuowanie na działce

    Czy ten projekt pasuje na
    Twoją działkę?

    Chętnie to sprawdzimy!

    Dowiedz się:

    • czy zmieści się na niej wybrany przez Ciebie dom
    • jakie parametry musi spełniać dom według miejscowego planu zagospodarowania lub warunków zabudowy (np. kąt nachylenia i typ dachu, liczba kondygnacji itp.
    • jakie inne projekty pasują na Twoją działkę – znajdziemy je dla Ciebie!

Pow. użytkowa

82,07 m²

Pokoje

3

Łazienki i WC

2

Garaż

0

Min. szer. i dł. działki

16,3 x 16,90 m

Kąt dachu

45°

Konstrukcja

Szkieletowa
więcej

Gaik sudecki dws - KRP1861

ikona 82,07 m²
Powierzchnia użytkowa
ikona3
Pokoje (bez salonu)
ikona 2
Łazienki (z toaletami)
ikona 0
Liczba stanowisk garażowych
(z wiatą garażową)
ikona
Konstrukcja: Szkieletowa

Promocja od 09.12.2025, koniec za:

0 dni

00 00 00

4 699 zł

Tooltip

Cena regularna obowiązywała od 01.12.2025 do 08.12.2025

Cena regularna: 4 999 zł
Najniższa cena z 30 dni przed obniżką: 4 499 zł
Gwarancja najniższej ceny Gwarancja najniższej ceny Tooltip

Projekt jest dostępny Tooltip

GRATIS 10% rabatu do LEROY MERLIN

GRATIS Przydatne Extradodatki

GRATIS Poradnik Dach Solarny

100 dni na wymianę, 30 dni na zwrot

Darmowa dostawa - kurier, paczkomaty

Bezpłatne pozwolenie na zmiany

Dokumentacja zgodna z WT2021

Pokaż więcej (5)
Konsultant Masz pytania?
Zadzwoń
71 715 20 60

pon.-pt. 8-21, sob. 9-17

Szukasz wykonawcy godnego zaufania?
Zleć budowę w Extradom.pl!

  • Z góry znasz koszt budowy domu
  • Dom odbierasz zgodnie z ustalonym harmonogramem - nawet w 6 miesięcy
  • Zabezpiecza Cię jedna kompleksowa umowa z jednym wykonawcą
  • Otrzymujesz nawet 30-letnią gwarancję na konstrukcję domu
  • Oszczędzasz swój czas dzięki pewnej i kompletnej usłudze
Cena brutto stanu
deweloperskiego od
Tooltip
Cena brutto stanu deweloperskiego od 4 629 do 5 979 zł/m2.
Cena jest uzależniona m.in. od lokalizacji, wybranej technologii, kubatury budynku, skomplikowania projektu i ewentualnych zmian, na które zdecyduje się inwestor.
Cena za m2 powierzchni netto, czyli wszystkich pomieszczeń mierzonych na wysokości podłogi.
4 629 zł/m2
Dowiedz się więcej
Konsultant Masz pytania?
Zadzwoń
71 715 20 70

pon.-pt. 8-19

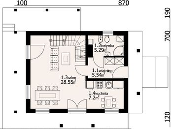
Parter - 46,58 m²

Parter projektu Gaik sudecki dws

Zapytaj, co możesz zmienić

Powierzchnia (m²)
Tooltip
Powierzchnia pomieszczenia
to ta, z której faktycznie możesz korzystać – skosy i niskie części poddasza są liczone częściowo lub wcale.
  1. 100% dla wysokości powyżej 2,2 m,
  2. 50% dla wysokości 1,4–2,2 m,
  3. nie liczymy poniżej 1,4 m.

Powierzchnia podłogi
Liczymy po obrysie pomieszczenia, bez względu na jego wysokość/skosy. Jeśli nie ma skosów to powierzchnia podłogi i pomieszczenia jest taka sama.
pomieszczenia i podłogi
podłogi
1. Wiatrołap
5,54
2. Łazienka
5,29
3. Pokój dzienny + jadalnia
28,55
4. Kuchnia
7,20
Razem
46,58
46,58

Natychmiast, otrzymasz PDF-y
z rzutami wszystkich kondygnacji

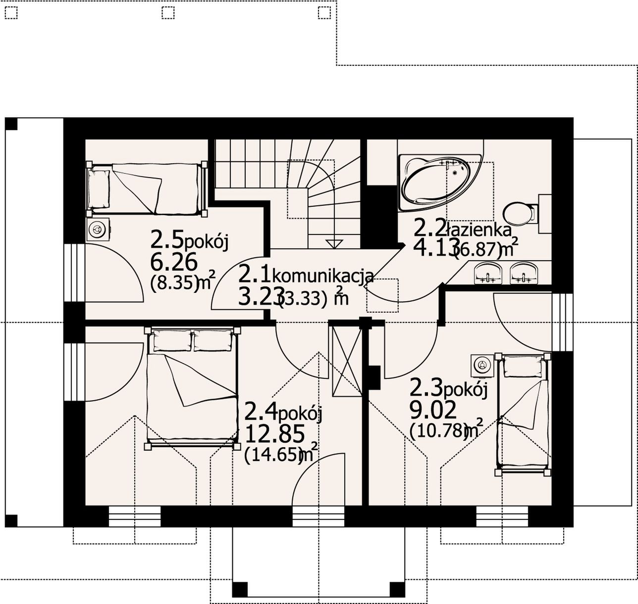
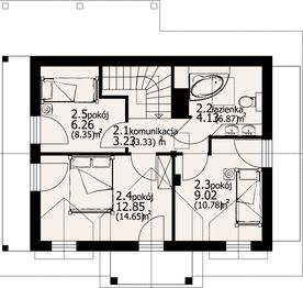
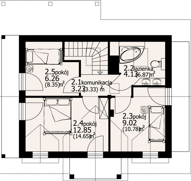
Poddasze - 35,49 m²

Poddasze projektu Gaik sudecki dws

Zapytaj, co możesz zmienić

Powierzchnia (m²)
Tooltip
Powierzchnia pomieszczenia
to ta, z której faktycznie możesz korzystać – skosy i niskie części poddasza są liczone częściowo lub wcale.
  1. 100% dla wysokości powyżej 2,2 m,
  2. 50% dla wysokości 1,4–2,2 m,
  3. nie liczymy poniżej 1,4 m.

Powierzchnia podłogi
Liczymy po obrysie pomieszczenia, bez względu na jego wysokość/skosy. Jeśli nie ma skosów to powierzchnia podłogi i pomieszczenia jest taka sama.
pomieszczenia
podłogi
1. Korytarz
3,23
3,33
2. Łazienka
4,13
6,87
3. Pokój
9,02
10,78
4. Pokój
12,85
14,65
5. Pokój
6,26
8,35
Razem
35,49
43,98

Natychmiast, otrzymasz PDF-y
z rzutami wszystkich kondygnacji

Zamów rysunki szczegółowe

Zapoznaj się ze szczegółowymi rysunkami rzutów kondygnacji w PDF dla tego projektu.

Warianty projektu (2)

PROMOCJA
Projekt domu Gaik sudecki dw
Gaik sudecki dw
Dodano!
Dodano!
80,35 m²
3
2
0

4 799 zł

5 099 zł

Tooltip

Cena regularna

4 599 zł najniższa cena
Tooltip

Najniższa cena z 30 dni
przed obniżką

PROMOCJA
Projekt domu Gaik 5dw
Gaik 5dw
Dodano!
Dodano!
78,08 m²
3
2
0

4 699 zł

4 999 zł

Tooltip

Cena regularna

4 499 zł najniższa cena
Tooltip

Najniższa cena z 30 dni
przed obniżką

Podobne projekty (451)

Zobacz wszystkie
NIŻSZA CENA ✂️
Zdjęcie 1 projektu Groszek (908) KRD2022
Groszek (908)
Dodano!
Dodano!
72,50 m²
2
2
0

3 440 zł

3 790 zł

Tooltip

Cena regularna

3 240 zł najniższa cena
Tooltip

Najniższa cena z 30 dni
przed obniżką

NIŻSZA CENA ✂️
Zdjęcie 1 projektu D336 WAI1497
D336
Dodano!
Dodano!
95,41 m²
3
2
0

3 549 zł

3 899 zł

Tooltip

Cena regularna

3 069 zł najniższa cena
Tooltip

Najniższa cena z 30 dni
przed obniżką

NIŻSZA CENA ✂️
Zdjęcie 1 projektu D338 - wersja drewniana WAI1469
D338 - wersja drewniana
Dodano!
Dodano!
94,59 m²
4
2
0

3 549 zł

3 899 zł

Tooltip

Cena regularna

3 069 zł najniższa cena
Tooltip

Najniższa cena z 30 dni
przed obniżką

NIŻSZA CENA ✂️
Zdjęcie 1 projektu L-15 Dom jeżynowa szkieletowy BBD1016
90,30 m²
3
2
0

3 499 zł

3 799 zł

Tooltip

Cena regularna

3 299 zł najniższa cena
Tooltip

Najniższa cena z 30 dni
przed obniżką

NIŻSZA CENA ✂️
Zdjęcie 1 projektu D03 Grześ drewniany WAH1121
D03 Grześ drewniany
Dodano!
Dodano!
84,66 m²
3
2
0

3 912 zł

4 890 zł

Tooltip

Cena regularna

3 667 zł najniższa cena
Tooltip

Najniższa cena z 30 dni
przed obniżką

NIŻSZA CENA ✂️
Zdjęcie 1 projektu Lisek dr-T BSA2339
Lisek dr-T
Dodano!
Dodano!
86,58 m²
3
2
0

4 899 zł

5 249 zł

Tooltip

Cena regularna

4 749 zł najniższa cena
Tooltip

Najniższa cena z 30 dni
przed obniżką

NIŻSZA CENA ✂️
Zdjęcie 1 projektu Chatka drewniana WAH1156
Chatka drewniana
Dodano!
Dodano!
67,95 m²
3
1
0

3 960 zł

4 950 zł

Tooltip

Cena regularna

3 712 zł najniższa cena
Tooltip

Najniższa cena z 30 dni
przed obniżką

NIŻSZA CENA ✂️
Zdjęcie 1 projektu Wrzos 2 GDE1074
Wrzos 2
Dodano!
Dodano!
70,88 m²
4
2
0

3 750 zł

3 850 zł

Tooltip

Cena regularna

3 650 zł najniższa cena
Tooltip

Najniższa cena z 30 dni
przed obniżką

Projekt z budową

Budowa Projekt z budową

Zbuduj ten dom z naszym Partnerem - wygodnie, szybko i bezpiecznie

Projekt z budową to:

  • gwarancja niezmiennego kosztu budowy

  • krótki czas realizacji - dom gotowy nawet w 6 miesięcy

  • wieloletnia gwarancja na konstrukcję domu

Elewacje

Frontowa
Tylna
Lewa
Prawa

Przekroje

Przekrój pionowy

Usytuowanie na działce

Czy ten projekt pasuje na
Twoją działkę?

Chętnie to sprawdzimy!

Czy ten projekt pasuje na
Twoją działkę?

Chętnie to sprawdzimy!

Dowiedz się:

  • czy zmieści się na niej wybrany przez Ciebie dom
  • jakie parametry musi spełniać dom według miejscowego planu zagospodarowania lub warunków zabudowy (np. kąt nachylenia i typ dachu, liczba kondygnacji itp.
  • jakie inne projekty pasują na Twoją działkę – znajdziemy je dla Ciebie!
Autor: Dom-Projekt

Dane techniczne projektu

Powierzchnie i wymiary Powierzchnie i wymiary

Powierzchnia użytkowa
Tooltip
Suma powierzchni wszystkich pomieszczeń mieszkalnych, pomniejszona o pow. garażu, kotłowni, strychu, piwnicy. Jest liczona w 100% dla pomieszczeń o wysokości powyżej 2,2 m, w 50% dla pomieszczeń o wys. 2,2-1,4 m i niewliczana dla niższych niż 1,4 m.

82,07 m²

Wysokość ściany kolankowej
Tooltip
Wysokość ściany podpierającej dach. Jej wysokość wpływa na powierzchnię użytkową kondygnacji, na której się znajduje.

0,78 m

Powierzchnia zabudowy
Tooltip
Powierzchnia zajmowana przez część na- oraz nadziemną budynku liczona, jako rzut pionowy budynku na działkę.

61,39 m²

Powierzchnia netto
Tooltip
Powierzchna wszystkich pomieszczeń w budynku mierzona na wysokości podłogi.

94,17 m²

Kubatura brutto
Tooltip
Zazwyczaj jest to suma kubatur (objętości) wszystkich pomieszczeń budynku, liczonych po zewnętrznym obrysie murów (z ociepleniem).

485,50 m³

Powierzchnia dachu

151,37 m²

Kąt nachylenia dachu
Tooltip
Nachylenie połaci dachu głównego podawane w stopniach. Uwaga! W niektórych projektach występuje więcej niż jedno nachylenie dachu.

45°

Wysokość budynku
Tooltip
Wysokość liczona od części budynku położonej najniżej przy powierzchni terenu do najwyższego punktu dachu (kalenicy) z wyłączeniem kominów.

8,14 m

Szerokość elewacji

7 m

Długość elewacji

8,70 m

Min. szerokość działki
Tooltip
Najmniejsza możliwa szerokość działki niezbędna do wybudowania wybranego domu. Składa się z szerokości elewacji domu powiększonej z obu stron o 3 m dla ściany bez otworów drzwiowych/okiennych lub 4 m, dla ściany z otworami.

16,30 m

Min. długość działki
Tooltip
Najmniejsza możliwa długość działki niezbędna do wybudowania wybranego domu. Składa się z długości elewacji domu powiększonej z obu stron o 3 m dla ściany bez otworów drzwiowych/okiennych lub 4 m, dla ściany z otworami.

16,90 m

Energooszczędność Energooszczędność

Oze Czym jest OZE (Odnawialne Źródło Energii)?
Ep
Tooltip
Energia pierwotna określa ilość energii nieodnawialnej potrzebnej w ciągu roku do ogrzewania czy też ogrzania wody użytkowej z uwzględnieniem kosztów produkcji i transportu surowców energetycznych.

69,40 kWh/(m²rok)

Ogrzewanie główne

Gazowe - szczegóły

Interesuje Cię inne źródło ogrzewania? Wyślij zapytanie lub zadzwoń do doradcy

Wentylacja

Grawitacyjna - szczegóły

Warunki techniczne

Projekt zgody z WT 2021

Technologia i konstrukcja Technologia i konstrukcja

Konstrukcja

Szkieletowa

PROJEKT Z BUDOWĄ Istnieje możliwość zaadaptowania tego projektu do technologii prefabrykowanej/modułowej i budowy nawet w 6 miesięcy ze stałym kosztem budowy

Dowiedz się więcej »
Opis szczegółowy

Wysokość ścianki kolankowej: 0.78 m. Strop: drewniany. Pokrycie dachu: dachówka gontopodobna Gerard Corona. Ściany zewnętrzne: szkieletowe drewniane ocieplone wełną mineralną. Ściany wewnętrzne: szkieletowe drewniane. Typ ogrzewania: kocioł gazowy. Inne: okna połaciowe Fakro.

Strop

Drewniany

Reklama
Okna i drzwi tarasowe

Nowoczesne okna PVC i aluminiowe WIŚNIOWSKI – doskonała izolacja, elegancki design i niezrównana trwałość.

Wiśniowski
Sprawdź parametry!
Okna dachowe

Oferujemy bezpłatne konsultacje w zakresie wszystkich rozwiązań VELUX. Wyceny, porady dotyczące doboru okien i rolet zewnętrznych - sprawdź!

Velux
Sprawdź szczegóły
Dach

Producent stalowych pokryć dachowych i elewacyjnych - 40 lat doświadczenia. Zbuduj solidny dach z nami!

Blachy Pruszyński
Sprawdź szczegóły
Płytki ceramiczne i gresy

Od małych formatów po wielkoformatowe gresy. Marmur, beton, drewno, kamień, lastryko czy cegiełki zamówisz wygodnie online z szybką dostawą.

Ceramzet
Sprawdź ofertę
Drzwi

Ciepłe drzwi WIŚNIOWSKI z kontrolą dostępu. Szeroka gama wzorów i kolorów.

Wiśniowski
Wybierz najlepsze
Bramy garażowe

Automatyczne bramy garażowe segmentowe i uchylne WIŚNIOWSKI na wymiar i z systemem smart home w standardzie.

Wiśniowski
Sprawdź ofertę!
Armatura i ceramika łazienkowa

Topowi producenci. Baterie łazienkowe, zestawy natynkowe i podtynkowe, umywalki, wanny, miski WC oraz kabiny zamówisz kompleksowo online.

Ceramzet II
Dowiedz się więcej
Rekuperacja

Alnor - kompletny system rekuperacji. Dobierz idealne rozwiązanie dla Twojego domu!

Alnor
Dobierz rekuperator
Gruntowe pompy ciepła

Przeprowadzimy kompletną instalację najbardziej oszczędnego źródła ciepła w Twoim nowym domu - gruntowej pompy ciepła. Od dokumentacji, pozwoleń, po odwierty i instalację.

Geothermal Solutions
Dowiedz się więcej

Gotowe domy modułowe (113)

Zobacz wszystkie
Stan deweloperski nawet w 6 miesięcy Gwarancja stałej ceny
Zdjęcie 1 projektu Dom szkieletowy Mezzanine Smart 70 HHT1011
Pow. użytkowa
81,09 m²
Pokoje
2
449 600 zł 5 544 zł/m²
Zdjęcie 1 projektu Dom modułowy Energy HMD1003
Gotowy dom modułowy Energy
Dodano!
Dodano!
Pow. użytkowa
83,28 m²
Pokoje
3
473 000 zł 5 680 zł/m²
Zdjęcie 1 projektu ExtraKeramzytowy 1 HAK1001
Gotowy extraKeramzytowy 1
Dodano!
Dodano!
Pow. użytkowa
80 m²
Pokoje
3
419 000 zł 5 238 zł/m²
Zdjęcie 1 projektu Dom prefabrykowany Parterowy 80C HFX1005
Pow. użytkowa
79,83 m²
Pokoje
2
385 000 zł 4 823 zł/m²
Zdjęcie 1 projektu Dom prefabrykowany P.10a HPK1010
Pow. użytkowa
84,54 m²
Pokoje
3
474 900 zł 5 617 zł/m²
Zdjęcie 1 projektu Dom prefabrykowany P.10 HPK1009
Pow. użytkowa
84,54 m²
Pokoje
3
474 900 zł 5 617 zł/m²
Zdjęcie 1 projektu Dom prefabrykowany Parterowy 80A HFX1003
Pow. użytkowa
79,48 m²
Pokoje
3
385 000 zł 4 844 zł/m²
Zdjęcie 1 projektu Dom prefabrykowany Parterowy 80B HFX1004
Pow. użytkowa
79,27 m²
Pokoje
3
385 000 zł 4 857 zł/m²

Dodatki do projektu

Dodatki możesz zamówić w koszyku lub telefonicznie u naszego Doradcy.

Ikona

Bestseller

Dodatkowy egzemplarz projektu

400 zł

Opis projektu domu
Gaik sudecki dws

Projekt domu Gaik sudecki dws jest wariantem cieszącego się popularnością projektu Gaik sudecki dw. W przeciwieństwie do bazowej wersji projekt ma większą powierzchnię. Projekt domu Gaik sudecki dws to ciekawa propozycja dla osób posiadających średniej szerokości działkę. Bryła budynku posiada formę prostą, przez co jest tani w budowie. Projekt należy do kategorii domów z kalenicą usytuowaną równolegle do drogi, co często określane jest w planie zagospodarowania przestrzennego. Kierowany jest do Inwestorów posiadających działkę pozwalającą na realizację projektu w zabudowie wolnostojącej. Projekt jest idealną propozycją dla osób zainteresowanych domem z dachem dwuspadowym, co znacznie obniża koszty realizacji. Projekt Gaik sudecki dws to dom parterowy z poddaszem użytkowym, dzięki czemu domownicy mogą cieszyć się większą prywatnością.Sercem domu jest przestronna strefa dzienna, która sprzyja spędzaniu wspólnego czasu w gronie najbliższych. Tworzy ją między innymi funkcjonalna kuchnia, która spełni marzenie każdej gospodyni. W części dziennej uwzględniono salon oraz jadalnię, dzięki czemu wnętrze domu jest bardzo funkcjonalne. Łazienka na parterze sprawdzi się podczas odwiedzin gości, a druga ulokowana na poddaszu - dla domowników. Potrzeby 2-4 osobowej rodziny spełnią przewidziane w projekcie trzy przestronne sypialnie. Przestrzeń można wykorzystać także jako pokój dla gości lub gabinet. Taras daje możliwość kontaktu z przyrodą i sprzyja wypoczynkowi. Przewidziana przez architekta szkieletowa konstrukcja znacznie skraca czas wzniesienia budynku. Jego wygląd nawiązuje do stylu tradycyjnego, co jest idealnym rozwiązaniem dla osób ceniących klasykę i prostotę. Dom do 70 m
Czytaj więcej

Polecani producenci

Prefabrykowane konstrukcje dachowe

tło producenta

WIĄZAR POLSKA

Zobacz więcej

Sprawdź nową generację okien GREENVIEW

tło producenta

FAKRO

Sprawdź nową generację okien GREENVIEW

Styropian, tynki, farby, kleje

tło producenta

Termo Organika

Poznaj super jakość

Okna, drzwi, osłony przeciwsłoneczne

tło producenta

Aluprof

Sprawdź ofertę

Kompletne systemy rekuperacji

tło producenta

Alnor

Dowiedz się więcej

Sprawdź nowy system DACHRYNNA

tło producenta

Galeco

Sprawdź ofertę
Zobacz więcej

Społeczność projektu domu
Gaik sudecki dws w budowie

Dołącz do społeczności osób, które budują ten dom lub są zainteresowane jego budową.

  • Oglądaj zdjęcia z budowy
  • Zadawaj pytania
  • Wymieniaj się doświadczeniami

Opinie o projekcie domu Gaik sudecki dws

Ocena

Ten projekt nie ma jeszcze opinii, bądź pierwszy!

Dodaj opinię

ASYSTENT WYBORU PROJEKTU

Szukasz idealnego projektu? Znajdziemy go dla Ciebie!

Doradca na podstawie Twoich wskazówek przygotuje spersonalizowaną listę projektów

Graficzne opracowanie rzutów poglądowych widocznych na karcie projektu zostało wykonane przez Extradom.pl. Prezentowane przez Extradom.pl wizualizacje wykonane zostały przez autora projektu i należy poczytywać je jedynie za przykład i propozycję wykończenia, wizję architektoniczną autora projektu. Ostateczne wykończenie budynku może nastąpić na wiele sposobów. Szczegółowe rozwiązania zastosowane w oferowanej dokumentacji - w tym również ilość, lokalizacje i wygląd okien, drzwi, kominów - mogą w niewielkim stopniu różnić się od prezentowanej wizualizacji budynku.

Extradom.pl Spółka z ograniczoną odpowiedzialnością z siedzibą przy ul. Jaworskiej 13, 53-612 Wrocław, wpisana do rejestru przedsiębiorców Krajowego Rejestru Sądowego przez Sąd Rejonowy dla Wrocławia-Fabrycznej we Wrocławiu, VI Wydział Gospodarczy Krajowego Rejestru Sądowego do pod numerem KRS 0000648746, numer NIP 895-17-18-333, o kapitale zakładowym 708 150,00 zł uprzejmie informuje, iż poprzez serwis Extradom.pl umożliwia m.in. zapoznanie się przez konsumentów z ofertą handlową Partnerów Extradom.pl, którzy stosują metody budowy domów przy wykorzystaniu różnego rodzaju technologie prefabrykacji bądź modułowe (tzw. „Gotowe domy”).

Extradom.pl nie prowadzi jednakże sprzedaży ani nie oferuje usług polegających na doradztwie finansowym, prawnym ani podatkowym w zakresie inwestycji realizowanych w technologiach tzw. „Gotowych domów”. Informacje prezentowane w serwisie Extradom.pl dotyczące Partnerów Extradom.pl oferujących realizację inwestycji w technologiach „Gotowych domów” lub podobnych mają charakter informacyjny i reklamowy.

Prezentowane w serwisie Extradom.pl informacje dotyczące stosowanych przez Partnerów metod budowy domów w technologii prefabrykacji bądź modułowej pochodzą od Partnerów Extradom.pl.

Extradom.pl sp. z o.o. jedynie umożliwia nawiązanie kontaktu przez Użytkownika z Partnerem Extradom.pl stosującym tego rodzaju technologie budowy domów i nie jest stroną umowy o roboty budowlane zawieranej przez Użytkownika Extradom.pl z Partnerem Extradom.pl.

REKLAMA
Zamknij