Projekty nawet 500 zł taniej ❄️

Koniec oferty za:

0dni

00godz.

00min.

00sek.

Sprawdź

Projekt domu E-128 WAX1029

Dodano!
Dodano!

Warstwy

Warstwy

Rzut parteru

Powierzchnia (m²)
Tooltip
Powierzchnia pomieszczenia
to ta, z której faktycznie możesz korzystać – skosy i niskie części poddasza są liczone częściowo lub wcale.
  1. 100% dla wysokości powyżej 2,2 m,
  2. 50% dla wysokości 1,4–2,2 m,
  3. nie liczymy poniżej 1,4 m.

Powierzchnia podłogi
Liczymy po obrysie pomieszczenia, bez względu na jego wysokość/skosy. Jeśli nie ma skosów to powierzchnia podłogi i pomieszczenia jest taka sama.
pomieszczenia i podłogi
podłogi
1. Wiatrołap
5,80
2. Hall
7,10
3. Kuchnia
9,56
4. Spiżarnia
3,35
5. Jadalnia
10,51
6. Korytarz
3,28
7. Pokój dzienny
30,74
8. Pokój
9,37
9. Wc
2,27
10. Garaż dwustanowiskowy
31,51
11. Pomieszczenie gospodarcze
3,41
12. Pomieszczenie gospodarcze
4,35
Razem
121,25
121,25
13. Taras
32,54
Powierzchnia (m²)
Tooltip
Powierzchnia pomieszczenia
to ta, z której faktycznie możesz korzystać – skosy i niskie części poddasza są liczone częściowo lub wcale.
  1. 100% dla wysokości powyżej 2,2 m,
  2. 50% dla wysokości 1,4–2,2 m,
  3. nie liczymy poniżej 1,4 m.

Powierzchnia podłogi
Liczymy po obrysie pomieszczenia, bez względu na jego wysokość/skosy. Jeśli nie ma skosów to powierzchnia podłogi i pomieszczenia jest taka sama.
pomieszczenia
podłogi
1. Hall
6,80
6,80
2. Pokój
12,36
20,77
3. Pomieszczenie gospodarcze
3,18
9,48
4. Pokój
20,28
27,40
5. Łazienka
5,13
5,13
6. Garderoba
4,47
6,77
7. Łazienka
4,92
8,33
8. Pokój
7,58
15,79
9. Pokój
7,58
15,79
Razem
72,30
116,26

    Usytuowanie na działce

    Czy ten projekt pasuje na
    Twoją działkę?

    Chętnie to sprawdzimy!

    Dowiedz się:

    • czy zmieści się na niej wybrany przez Ciebie dom
    • jakie parametry musi spełniać dom według miejscowego planu zagospodarowania lub warunków zabudowy (np. kąt nachylenia i typ dachu, liczba kondygnacji itp.
    • jakie inne projekty pasują na Twoją działkę – znajdziemy je dla Ciebie!

Pow. użytkowa

162 m²

Pokoje

5

Łazienki i WC

3

Garaż

2

Min. szer. i dł. działki

23 x 21,90 m

Kąt dachu

35°

Szacunkowy koszt SSZ

446 000 zł
Szacunkowy koszt budowy do stanu surowego zamkniętego (SSZ) metodą gospodarczą - większość prac wykonuje inwestor.

Konstrukcja

Murowana
więcej

E-128 - WAX1029

ikona 162 m²
Powierzchnia użytkowa
ikona5
Pokoje (bez salonu)
ikona 3
Łazienki (z toaletami)
ikona 2
Liczba stanowisk garażowych
(z wiatą garażową)
ikona
Konstrukcja: Murowana

Cena projektu:

6 490 zł

Gwarancja najniższej ceny Gwarancja najniższej ceny Tooltip

Projekt jest dostępny Tooltip

GRATIS 10% rabatu do LEROY MERLIN

GRATIS Przydatne Extradodatki

GRATIS Poradnik Dach Solarny

100 dni na wymianę, 30 dni na zwrot

Darmowa dostawa - kurier, paczkomaty

Bezpłatne pozwolenie na zmiany

Dokumentacja zgodna z WT2021

Pokaż więcej (5)
Konsultant Masz pytania?
Zadzwoń
71 715 20 60

pon.-pt. 8-21, sob. 9-17

Szukasz wykonawcy godnego zaufania?
Zleć budowę w Extradom.pl!

  • Z góry znasz koszt budowy domu
  • Dom odbierasz zgodnie z ustalonym harmonogramem - nawet w 6 miesięcy
  • Zabezpiecza Cię jedna kompleksowa umowa z jednym wykonawcą
  • Otrzymujesz nawet 30-letnią gwarancję na konstrukcję domu
  • Oszczędzasz swój czas dzięki pewnej i kompletnej usłudze
Cena brutto stanu
deweloperskiego od
Tooltip
Cena brutto stanu deweloperskiego od 4 109 do 5 279 zł/m2.
Cena jest uzależniona m.in. od lokalizacji, wybranej technologii, kubatury budynku, skomplikowania projektu i ewentualnych zmian, na które zdecyduje się inwestor.
Cena za m2 powierzchni netto, czyli wszystkich pomieszczeń mierzonych na wysokości podłogi.
4 109 zł/m2
Dowiedz się więcej
Konsultant Masz pytania?
Zadzwoń
71 715 20 70

pon.-pt. 8-19

Parter - 121,25 m²

Parter projektu E-128

Zapytaj, co możesz zmienić

Powierzchnia (m²)
Tooltip
Powierzchnia pomieszczenia
to ta, z której faktycznie możesz korzystać – skosy i niskie części poddasza są liczone częściowo lub wcale.
  1. 100% dla wysokości powyżej 2,2 m,
  2. 50% dla wysokości 1,4–2,2 m,
  3. nie liczymy poniżej 1,4 m.

Powierzchnia podłogi
Liczymy po obrysie pomieszczenia, bez względu na jego wysokość/skosy. Jeśli nie ma skosów to powierzchnia podłogi i pomieszczenia jest taka sama.
pomieszczenia i podłogi
podłogi
1. Wiatrołap
5,80
2. Hall
7,10
3. Kuchnia
9,56
4. Spiżarnia
3,35
5. Jadalnia
10,51
6. Korytarz
3,28
7. Pokój dzienny
30,74
8. Pokój
9,37
9. Wc
2,27
10. Garaż dwustanowiskowy
31,51
11. Pomieszczenie gospodarcze
3,41
12. Pomieszczenie gospodarcze
4,35
Razem
121,25
121,25
13. Taras
32,54

Natychmiast, otrzymasz PDF-y
z rzutami wszystkich kondygnacji

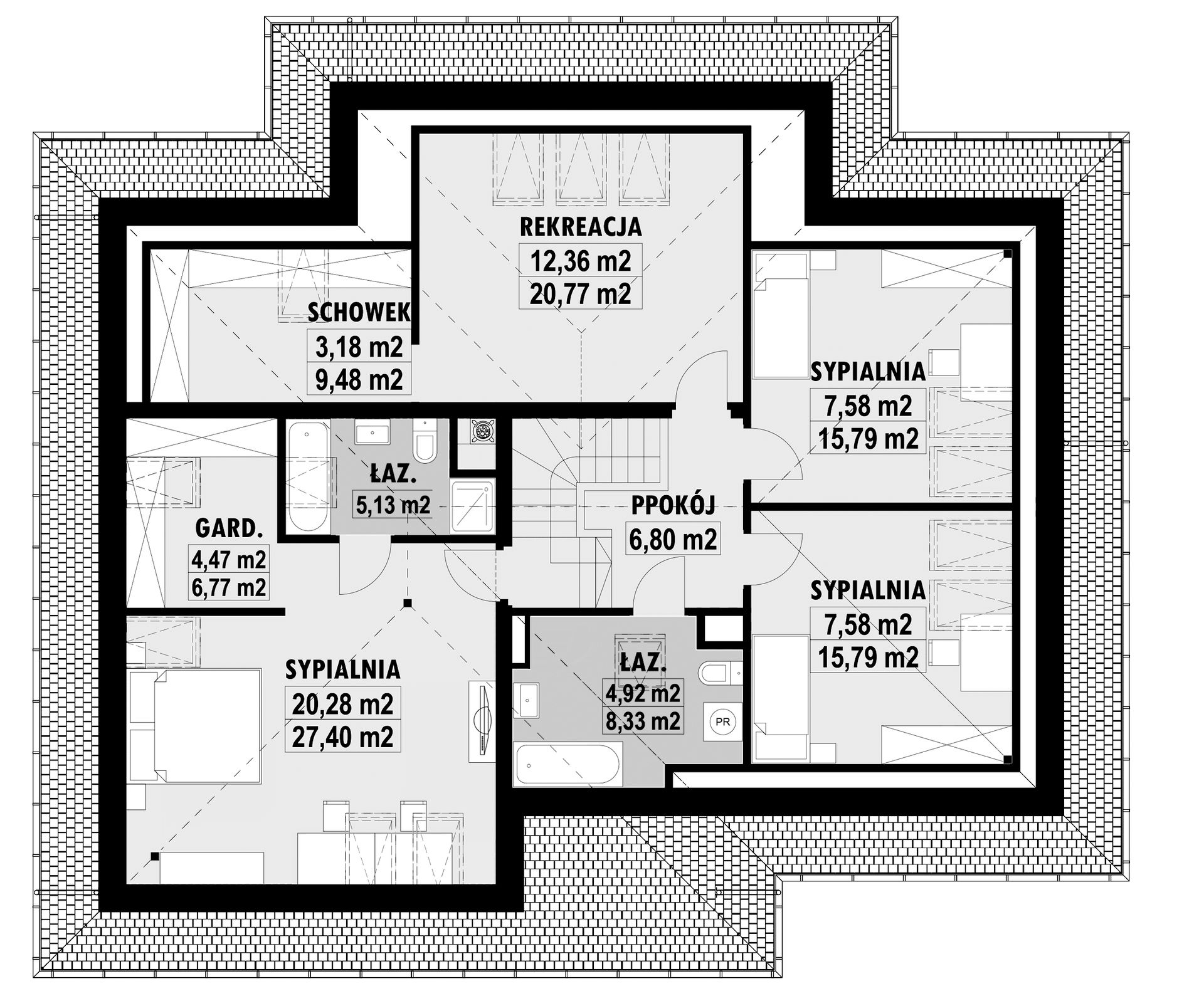
Poddasze - 72,30 m²

Poddasze projektu E-128

Zapytaj, co możesz zmienić

Powierzchnia (m²)
Tooltip
Powierzchnia pomieszczenia
to ta, z której faktycznie możesz korzystać – skosy i niskie części poddasza są liczone częściowo lub wcale.
  1. 100% dla wysokości powyżej 2,2 m,
  2. 50% dla wysokości 1,4–2,2 m,
  3. nie liczymy poniżej 1,4 m.

Powierzchnia podłogi
Liczymy po obrysie pomieszczenia, bez względu na jego wysokość/skosy. Jeśli nie ma skosów to powierzchnia podłogi i pomieszczenia jest taka sama.
pomieszczenia
podłogi
1. Hall
6,80
6,80
2. Pokój
12,36
20,77
3. Pomieszczenie gospodarcze
3,18
9,48
4. Pokój
20,28
27,40
5. Łazienka
5,13
5,13
6. Garderoba
4,47
6,77
7. Łazienka
4,92
8,33
8. Pokój
7,58
15,79
9. Pokój
7,58
15,79
Razem
72,30
116,26

Natychmiast, otrzymasz PDF-y
z rzutami wszystkich kondygnacji

Zamów rysunki szczegółowe

Zapoznaj się ze szczegółowymi rysunkami rzutów kondygnacji w PDF dla tego projektu.

Warianty projektu (5)

Projekt domu E-226
E-226
Dodano!
Dodano!
141,80 m²
5
3
2

6 490 zł

Projekt domu E-158
E-158
Dodano!
Dodano!
149,90 m²
5
3
1

6 290 zł

Projekt domu E-225
E-225
Dodano!
Dodano!
134,60 m²
4
3
1

6 190 zł

Projekt domu E-188
E-188
Dodano!
Dodano!
129,10 m²
4
3
1

5 990 zł

Projekt domu E-226a
E-226a
Dodano!
Dodano!
132,20 m²
5
2
2

6 290 zł

Podobne projekty (382)

Zobacz wszystkie
NIŻSZA CENA❄️
Zdjęcie 1 projektu Opałek X 2G BSB1143
Opałek X 2G
Dodano!
Dodano!
149,84 m²
4
3
2

4 997 zł

5 260 zł

Tooltip

Cena regularna

4 734 zł najniższa cena
Tooltip

Najniższa cena z 30 dni
przed obniżką

Zdjęcie 1 projektu Domena 204 B WRW1366
Domena 204 B
Dodano!
Dodano!
162,19 m²
5
3
2

4 900 zł

NIŻSZA CENA❄️
Zdjęcie 1 projektu Hiacynt 3 WAH2057
Hiacynt 3
Dodano!
Dodano!
156,83 m²
4
3
2

6 360 zł

7 950 zł

Tooltip

Cena regularna

5 962 zł najniższa cena
Tooltip

Najniższa cena z 30 dni
przed obniżką

NIŻSZA CENA❄️
Zdjęcie 1 projektu Hiacynt 8 WAH2118
Hiacynt 8
Dodano!
Dodano!
222,33 m²
5
3
2

7 320 zł

9 150 zł

Tooltip

Cena regularna

6 862 zł najniższa cena
Tooltip

Najniższa cena z 30 dni
przed obniżką

NIŻSZA CENA❄️
Zdjęcie 1 projektu Hiacynt WAH1953
Hiacynt
Dodano!
Dodano!
210,18 m²
4
3
2

7 240 zł

9 050 zł

Tooltip

Cena regularna

6 787 zł najniższa cena
Tooltip

Najniższa cena z 30 dni
przed obniżką

NIŻSZA CENA❄️
Zdjęcie 1 projektu Hiacynt 4 WAH2059
Hiacynt 4
Dodano!
Dodano!
184,58 m²
4
3
2

6 360 zł

7 950 zł

Tooltip

Cena regularna

5 962 zł najniższa cena
Tooltip

Najniższa cena z 30 dni
przed obniżką

NIŻSZA CENA❄️
Zdjęcie 1 projektu Decyma 7 BSA2086
Decyma 7
Dodano!
Dodano!
154,23 m²
4
3
1

4 949 zł

5 449 zł

Tooltip

Cena regularna

4 949 zł najniższa cena
Tooltip

Najniższa cena z 30 dni
przed obniżką

NIŻSZA CENA❄️
Zdjęcie 1 projektu Opałek III N 2G+ BSB1119
Opałek III N 2G+
Dodano!
Dodano!
139,80 m²
4
3
2

4 997 zł

5 260 zł

Tooltip

Cena regularna

4 734 zł najniższa cena
Tooltip

Najniższa cena z 30 dni
przed obniżką

Metody i koszt budowy

Ten dom możesz budować metodą gospodarczą, systemem zleconym lub skorzystać z naszej oferty Projekt z Budową. Przy porównaniu weź pod uwagę nie tylko koszt, ale też różny zakres prac i standard wykonania.

Metoda gospodarcza

Najtańsza metoda - większość prac
budowlanych wykonuje inwestor

Stan surowy zamknięty (SSZ)

446 000 zł netto

Szacunkowy koszt materiałów na III kwartał 2025
  • Prace ziemne i fundamenty

    69 000 zł
  • Konstrukcja, strop oraz dach

    286 000 zł
  • Stolarka okienna i drzwiowa

    91 000 zł
  • Instalacje

    nie obejmuje
  • Prace wykończeniowe

    nie obejmuje
  • Możesz budować etapami, pamiętając jednak o zmianie kosztów w czasie
  • Możesz rozpocząć budowę z częścią niezbędnych środków
  • Sam ustalasz harmonogram, koordynujesz budowę i zapewniasz materiały
Czy da się obniżyć koszty budowy?
Zobacz nasz film jak obniżyć koszt budowy

Projekt z Budową

Najszybsza i najwygodniejsza metoda -
całą budowę domu realizuje jedna firma

Stan deweloperski
Gwarancja stałego kosztu budowy

Gwarancja stałego
kosztu budowy

  • Prace ziemne i fundamenty
  • Konstrukcja, strop oraz dach
  • Stolarka okienna i drzwiowa
  • Instalacje  
    Tooltip

    Obejmuje wykonanie instalacji:

    • wodno-kanalizacyjnej
    • centralnego ogrzewania
    • gazowej
    • elektrycznej
  • Prace wykończeniowe  
    Tooltip

    Prace wykończeniowe obejmują:

    • sufity i ściany wewnętrzne
    • tynki i okładziny ścian wewnętrznych
    • wylewki i posadzkę
    • ocieplenie ścian zewnętrznych i elewację

Budowa
nawet w
6mies.

  • Kompleksowa umowa i znany z góry koszt budowy
  • Logistyka, organizacja budowy i zakupy po stronie firmy budowlanej
  • Formalności i dokumentacje po stronie firmy budowlanej
  • Różne technologie budowy dopasowane do projektu i budżetu
Szczegóły i dostępne technologie
icon

Polecamy

Kosztorys

Zawiera zestawienie wszystkich potrzebnych materiałów wraz z ich cenami, uwzględnia koszty sprzętu i transportu. Z kosztorysem:

  • poznasz całkowite koszty budowy
  • zaplanujesz prace na budowie
  • łatwiej ocenisz konkurencyjność ofert podwykonawców
  • otrzymasz dokument wymagany w procesie kredytowym

Elewacje

Frontowa
Tylna
Lewa
Prawa

Usytuowanie na działce

Czy ten projekt pasuje na
Twoją działkę?

Chętnie to sprawdzimy!

Czy ten projekt pasuje na
Twoją działkę?

Chętnie to sprawdzimy!

Dowiedz się:

  • czy zmieści się na niej wybrany przez Ciebie dom
  • jakie parametry musi spełniać dom według miejscowego planu zagospodarowania lub warunków zabudowy (np. kąt nachylenia i typ dachu, liczba kondygnacji itp.
  • jakie inne projekty pasują na Twoją działkę – znajdziemy je dla Ciebie!
Autor: E-domy

Dane techniczne projektu

Powierzchnie i wymiary Powierzchnie i wymiary

Powierzchnia użytkowa
Tooltip
Suma powierzchni wszystkich pomieszczeń mieszkalnych, pomniejszona o pow. garażu, kotłowni, strychu, piwnicy. Jest liczona w 100% dla pomieszczeń o wysokości powyżej 2,2 m, w 50% dla pomieszczeń o wys. 2,2-1,4 m i niewliczana dla niższych niż 1,4 m.

162 m²

Powierzchnia zabudowy
Tooltip
Powierzchnia zajmowana przez część na- oraz nadziemną budynku liczona, jako rzut pionowy budynku na działkę.

172,70 m²

Powierzchnia netto
Tooltip
Powierzchna wszystkich pomieszczeń w budynku mierzona na wysokości podłogi.

237,50 m²

Kubatura netto
Tooltip
Zazwyczaj jest to suma kubatur (objętości) pomieszczeń budynku, bez strychu, liczonych po zewnętrznym obrysie murów (z ociepleniem).

586,50 m³

Powierzchnia dachu

280 m²

Kąt nachylenia dachu
Tooltip
Nachylenie połaci dachu głównego podawane w stopniach. Uwaga! W niektórych projektach występuje więcej niż jedno nachylenie dachu.

35°

Wysokość budynku
Tooltip
Wysokość liczona od części budynku położonej najniżej przy powierzchni terenu do najwyższego punktu dachu (kalenicy) z wyłączeniem kominów.

8 m

Szerokość elewacji

15,01 m

Długość elewacji

12,91 m

Min. szerokość działki
Tooltip
Najmniejsza możliwa szerokość działki niezbędna do wybudowania wybranego domu. Składa się z szerokości elewacji domu powiększonej z obu stron o 3 m dla ściany bez otworów drzwiowych/okiennych lub 4 m, dla ściany z otworami.

23 m

Min. długość działki
Tooltip
Najmniejsza możliwa długość działki niezbędna do wybudowania wybranego domu. Składa się z długości elewacji domu powiększonej z obu stron o 3 m dla ściany bez otworów drzwiowych/okiennych lub 4 m, dla ściany z otworami.

21,90 m

Energooszczędność Energooszczędność

Oze Czym jest OZE (Odnawialne Źródło Energii)?
Ogrzewanie główne

Gazowe - szczegóły

Dodatkowo istnieje możliwość zamówienia projektu z

Aneks na paliwo stałe

Powietrzna pompa ciepła

Gruntowa pompa ciepła

Pakiet energooszczędny

Interesuje Cię inne źródło ogrzewania? Wyślij zapytanie lub zadzwoń do doradcy

Wentylacja

Grawitacyjna - szczegóły

Warunki techniczne

Projekt zgody z WT 2021

Technologia i konstrukcja Technologia i konstrukcja

Konstrukcja

Murowana

PROJEKT Z BUDOWĄ Istnieje możliwość zaadaptowania tego projektu do technologii prefabrykowanej/modułowej i budowy nawet w 6 miesięcy ze stałym kosztem budowy

Dowiedz się więcej »
Opis szczegółowy

Ściany: 25cm ceramika + 18cm styropian. Strop: wylewany żelbetowy. Pokrycie dachowe: dachówka cementowa. Ocieplenie posadzki na gruncie: 20cm styropian. Ocieplenie dachu: 25-30cm wełna mineralna. Stolarka okienna: drewniana. Wykończenie zewnętrze: kamień, płytki klinkierowe lub drewno. Ogrzewanie: gazowe, grzejniki. Wentylacja: grawitacyjna.

Strop

Żelbetowy

Reklama
Okna i drzwi tarasowe

Nowoczesne okna PVC i aluminiowe WIŚNIOWSKI – doskonała izolacja, elegancki design i niezrównana trwałość.

Wiśniowski
Sprawdź parametry!
Okna dachowe

Oferujemy bezpłatne konsultacje w zakresie wszystkich rozwiązań VELUX. Wyceny, porady dotyczące doboru okien i rolet zewnętrznych - sprawdź!

Velux
Sprawdź szczegóły
Dach

Producent stalowych pokryć dachowych i elewacyjnych - 40 lat doświadczenia. Zbuduj solidny dach z nami!

Blachy Pruszyński
Sprawdź szczegóły
Płytki ceramiczne i gresy

Od małych formatów po wielkoformatowe gresy. Marmur, beton, drewno, kamień, lastryko czy cegiełki zamówisz wygodnie online z szybką dostawą.

Ceramzet
Sprawdź ofertę
Drzwi

Ciepłe drzwi WIŚNIOWSKI z kontrolą dostępu. Szeroka gama wzorów i kolorów.

Wiśniowski
Wybierz najlepsze
Bramy garażowe

Automatyczne bramy garażowe segmentowe i uchylne WIŚNIOWSKI na wymiar i z systemem smart home w standardzie.

Wiśniowski
Sprawdź ofertę!
Armatura i ceramika łazienkowa

Topowi producenci. Baterie łazienkowe, zestawy natynkowe i podtynkowe, umywalki, wanny, miski WC oraz kabiny zamówisz kompleksowo online.

Ceramzet II
Dowiedz się więcej
Rekuperacja

Alnor - kompletny system rekuperacji. Dobierz idealne rozwiązanie dla Twojego domu!

Alnor
Dobierz rekuperator
Gruntowe pompy ciepła

Przeprowadzimy kompletną instalację najbardziej oszczędnego źródła ciepła w Twoim nowym domu - gruntowej pompy ciepła. Od dokumentacji, pozwoleń, po odwierty i instalację.

Geothermal Solutions
Dowiedz się więcej

Gotowe domy modułowe (113)

Zobacz wszystkie
Stan deweloperski nawet w 6 miesięcy Gwarancja stałej ceny
Zdjęcie 1 projektu Dom prefabrykowany P.4 bez okapu HPK1003
Pow. użytkowa
162,18 m²
Pokoje
4
701 000 zł 4 322 zł/m²
Zdjęcie 1 projektu Dom prefabrykowany P.4 z okapem HPK1014
Pow. użytkowa
162,18 m²
Pokoje
5
710 500 zł 4 381 zł/m²
Zdjęcie 1 projektu Dom szkieletowy Viking Smart 220 HHT1032
Pow. użytkowa
163,86 m²
Pokoje
4
1 095 606 zł 6 686 zł/m²
Zdjęcie 1 projektu Dom prefabrykowany P.2 HPK1001
Pow. użytkowa
159,18 m²
Pokoje
5
832 200 zł 5 228 zł/m²
Zdjęcie 1 projektu Dom prefabrykowany Stodoła 150C HFX1026
Pow. użytkowa
152,90 m²
Pokoje
5
589 000 zł 3 852 zł/m²
Zdjęcie 1 projektu Dom prefabrykowany Stodoła 150A HFX1024
Pow. użytkowa
152,20 m²
Pokoje
5
589 000 zł 3 870 zł/m²
Zdjęcie 1 projektu Dom prefabrykowany Stodoła 150B HFX1025
Pow. użytkowa
151,30 m²
Pokoje
4
589 000 zł 3 893 zł/m²
Zdjęcie 1 projektu Dom prefabrykowany P.6 HPK1005
Pow. użytkowa
176,69 m²
Pokoje
4
916 600 zł 5 188 zł/m²

Dodatki do projektu

Dodatki możesz zamówić w koszyku lub telefonicznie u naszego Doradcy.

Czym jest OZE (Odnawialne Źródło Energii)?

Ikona

Bestseller

Kosztorys

599 zł

Ikona

Bestseller

Dodatkowy egzemplarz projektu

449 zł

Ikona

Bestseller

Ogrzewanie podłogowe

499 zł

Ikona

Oze

Aneks na paliwo stałe

449 zł

Ikona

Oze

Powietrzna pompa ciepła

499 zł

Ikona

Oze

Gruntowa pompa ciepła

499 zł

Pokaż więcej (6)

Opis projektu domu
E-128

E-128 to duży dom jednorodzinny z poddaszem użytkowym, wyposażony w dwustanowiskowy garaż i liczne, dodatkowe pomieszczenia, rekompensujące brak piwnicy. Ten przestronny budynek zapewni komfort wymagającej rodzinie, liczącej od 4 do nawet 6 osób. Jest to obiekt nowoczesny, kryty łagodnie nachylonym dachem wielospadowym o wysuniętych okapach. Bryła posiada niewielkie meandry stworzone m.in. przez wysunięcie garażu czy wydzielenie zadaszonego tarasu na tyłach. Dom wymagać będzie sporej działki. Rozłożysty plan wyraźnie podzielono na obszary dedykowane różnym aktywnościom. Zlokalizowana na parterze strefa dzienna od strony ulicy zawiera pomieszczenia gospodarcze i użytkowe, natomiast wzdłuż przeciwległej ściany zgromadzono przestrzeń bardziej osobistą, służącą do wypoczynku. W skład pierwszej części wchodzi niewielki, niczym nieoddzielony hall, wychodząca na zadaszony taras jadalnia i łącząca się z nią półotwarta, jasna kuchnia z narożnym oknem i sporą spiżarnią. Tuż obok zlokalizowano wygodną klatkę schodowa z ukrytą pod górnym biegiem toaletą. Schody i zewnętrzne naroże wyznaczają granicę między jadalnią, a dużym pokojem dziennym. Wielkie przeszklenia łączą go z biegnącym wzdłuż ścian tarasem. Pokój posiada też miejsce na kominek. Na końcu zlokalizowano dodatkowo pokój, który można zagospodarować pod bibliotekę. Dostępny z wiatrołapu garaż łączy się z pomieszczeniami: technicznym (kotłownia) i gospodarczym, z którego można dostać się do ogrodu. Poddasze zajmuje część nocna, która również została w pewien sposób uporządkowana. Najwyżej położone są dwie małe ale, doskonale doświetlone sypialnie, wspólna łazienka i obszerna część rekreacyjna z sąsiednim schowkiem. Ogromna, wyposażona w garderobę i własną łazienkę sypialnia, dostępna jest z półpiętra. Dzięki temu posiada nieco wyższe od pozostałych pokoi ścianki kolankowe, a co za tym idzie większą i łatwiejszą do zagospodarowania powierzchnię użytkową. Dom E-128 posiada szereg udogodnień, które sprawiają, że każdy z członków dużej rodziny będzie mógł czuć się swobodnie. Poza standardowymi sypialniami zaprojektowano półprywatne obszary, jak np. biblioteka. Optyczny podział strefy dziennej na trzy części (kuchnia z jadalnią, salon oraz taras) umożliwia wszystkim mieszkańcom bezkonfliktowe korzystanie użytkowanie. Pomieszczenie gospodarcze, biblioteka i schowek na strychu rozwiązują problem magazynowania rzeczy takich jak sprzęty ogrodowe, książki i dokumenty czy wreszcie odzież. Wpisujące się w nowoczesny charakter budynku duże okna, zapewniają dobre doświetlenie, a rozłożysty dach pozwolił stworzyć funkcjonalne przestrzenie w obejściu.
Czytaj więcej

Informacje dodatkowe

Dokumentacja zabezpieczona jest specjalną plombą, której usunięcie uniemożliwi zwrot oraz wymianę projektu. Zapraszamy do zamówienia przed zakupem rysunków szczegółowych projektu oraz analizy posiadanej działki w celu upewnienia się, że wybrany projekt domu idealnie na nią pasuje. W dokumentacji znajduje się jeden egzemplarz projektu architektoniczno-budowlanego, służący do weryfikacji projektu po odbiorze zamówienia bez konieczności otwierania pełnej dokumentacji projektowej.

Czytaj więcej

Polecani producenci

Prefabrykowane konstrukcje dachowe

tło producenta

WIĄZAR POLSKA

Zobacz więcej

Sprawdź nową generację okien GREENVIEW

tło producenta

FAKRO

Sprawdź nową generację okien GREENVIEW

Styropian, tynki, farby, kleje

tło producenta

Termo Organika

Poznaj super jakość

Okna, drzwi, osłony przeciwsłoneczne

tło producenta

Aluprof

Sprawdź ofertę

Kompletne systemy rekuperacji

tło producenta

Alnor

Dowiedz się więcej

Sprawdź nowy system DACHRYNNA

tło producenta

Galeco

Sprawdź ofertę
Zobacz więcej

Społeczność projektu domu
E-128 w budowie

Dołącz do społeczności osób, które budują ten dom lub są zainteresowane jego budową.

  • Oglądaj zdjęcia z budowy
  • Zadawaj pytania
  • Wymieniaj się doświadczeniami

Opinie o projekcie domu E-128

5

Na podstawie 3 recenzji

Wspaniały!
67%
Bardzo dobry
33%
Średni
0%
Słaby
0%
Bardzo słaby
0%

Opinie niezweryfikowane zakupem

Dodaj opinię
KrzysztofLipnicki30
22.10.2017 r.
Projekt e-128 od początku był idealny dla mnie i do dziś kiedy przeglądam inne projekty żaden nie zachwyca mnie tak jak e-128. Dla osób które także są zainteresowane wyborem tego domku jedyne co mogę doradzić to aby zastanowiły się nad zmianą tylnej cześć domu w miejscu gdzie jest biblioteczka, pomieszczenie jest zdecydowanie za małe a po przez przesunięcie rogu domu można powiększyć bez zwiększania kosztów budowy. Dach domu posiada wg mnie za duża ilość okien i podnosi koszt budowy,u mnie zostało zredukowane o prawie połowę. Jeśli chodzi o poszycie dachu odradzam blachodachówkę ze względu na konstrukcje dachu gdzie jest bardzo dużo odpadów przy budowie co oznacza podobny koszt jak dachówka, polecam na pewno dachówkę lub gont. Kolejna rzeczą to różnica poziomu garażu względem domu i tym samym największej sypialni na poddaszu, zmiany wyrównania poziomów nie zwiększą koszty budowy domu a nawet obniżą. Jeśli chodzi o podstawę domu wybrałem płytę fundamentowa z dodatkowym ociepleniem i w moim przypadku znacznie przyspieszyło to budowę i mam nadzieję zwiększy się oszczędność ciepła. Jeśli chodzi o ogrzewanie polecam zastosowanie kominka z wymiennikiem ciepła ( nie jestem pewien nazwy :) na tyle rozbudowanego aby ogrzewał cały dom w razie potrzeby, wszystkie podłogi pomieszczeń- u mnie nie ma wogole zastosowanych kaloryferów tylko ogrzewanie podłogowe z dobrym ociepleniem domu z zewnątrz, ogrzewanie zdecydowanie gazowe plus kominek.

Wywiady mieszkańców domu E-128

Zdjęcie profilowe użytkownika Marcin225 Marcin225

Zdecydowaliśmy się na realizację projektu domu E-128 WAX1029, ponieważ spełniał nasze oczekiwania pod wieloma względami. Kąt nachylenia dachu odpowiadał wymogom określonym w warunkach zabudowy, a dodatkowo od początku szukaliśmy budynku o takich gabarytach. Spore znaczenie przy naszym wyborze miała kwestia wizualnego wyglądu domu, który w tym przypadku wyjątkowo nam się spodobał. Ponadto, przewidziany w nim wewnętrzny układ uwzględniał interesujące nas rozwiązania. Mianowicie, od początku zależało nam na dużej, otwartej przestrzeni na dolnej kondygnacji. Oprócz tego, do gustu bardzo przypadły nam sporych rozmiarów przeszklenia. Budowa nowego domu przebiegła sprawnie i zgodnie z planem. Dokumentacja techniczna została dobrze sporządzona, a cała konstrukcja jest na tyle solidna, iż współpracujący z nami fachowcy stwierdzili, że taki dom można postawić nawet na bardzo wymagającym terenie. Postanowiliśmy nie zmieniać zalecanej przez architekta technologii i zastosowane przez nas materiały są zgodne z wytycznymi. Tym samym do wymurowania ścian użyliśmy ceramicznych pustaków Porotherm, strop tradycyjnie wylaliśmy betonem, a dach pokryliśmy dachówką. Uważam, że projektant dobrze oszacował kosztorys i zmieszczenie się w podanej kwocie jest całkiem realne, aczkolwiek warto wziąć pod uwagę to, że na cenę inwestycji wpływ ma naprawdę wiele czynników. W poszczególnych rejonach kraju ceny za robociznę i materiały mogą się znacznie różnić, dlatego myślę że zawsze bezpieczniej jest jednak założyć ok. 20% rozbieżność względem podanych kosztów. Projekt domu E-128 WAX1029 od początku bardzo nam odpowiadał, dlatego uznaliśmy, że wykonanie wewnętrznego układu zgodnie z oryginalną wersją będzie najrozsądniejszym rozwiązaniem. W dalszym ciągu jestem z tego zadowolony i nadal nie chciałbym nic zmieniać w kwestii rozkładu pomieszczeń. Myślę natomiast, że dobrym pomysłem byłoby podniesienie ścianki kolankowej, aczkolwiek w naszym przypadku było już na to za późno. Szczerze polecam jednak to rozwiązanie innym Inwestorom projektu E-128 WAX1029. Podniesienie ścianki kolankowej o wysokość jednego czy dwóch pustaków spowoduje, że poddasze stanie się bardziej przestronne, a jednocześnie dom nie straci na wyglądzie. Jeśli ktoś jednak obawia się o utratę uroku budynku można pomyśleć nad zmniejszeniem wysokości pomieszczeń na parterze, które i tak są dosyć wysokie.Wybór projektu domu parterowego z poddaszem użytkowym E-128 WAX1029 okazał się dla nas bardzo trafną decyzją. Wnętrze nowego domu jest funkcjonalne i w całości spełnia oczekiwania mojej rodziny. W szczególności satysfakcjonuje nas powierzchnia niższej kondygnacji. Jedynymi, odrębnymi pomieszczeniami na tym poziomie jest łazienka i biblioteka, zaś pozostałe są na siebie w całości otwarte. Dzięki temu na dole mamy jedną, ogromną i bardzo przestronną strefę dzienną, w której razem spędzamy najwięcej wolnego czasu. Pozdrawiam.

Zdjęcie profilowe użytkownika Anna220 Anna220

Spośród wszystkich propozycji jakie oglądaliśmy, ostatecznie zdecydowaliśmy się na projekt E-128 WAX1029. Ukazany na rysunkach dom odpowiadał nam zarówno w kwestii wizualnej, jak i rozmieszczenia wnętrza. Podczas poszukiwań idealnej dla nas opcji, największą uwagę zwracaliśmy na funkcjonalny układ pomieszczeń. Nie chcieliśmy, aby pokoje zlokalizowane były w losowych miejscach, a tym przypadku ich układ został wyjątkowo praktycznie zaplanowany. Wiedzieliśmy, że jedynie kilka drobnych zmian w całości dopasuje go do wszystkich naszych oczekiwań. Oprócz tego spodobał się nam nowoczesny wygląd projektu E-128 WAX1029 - szczególnie przypadł do gustu naszym dzieciom, które brały czynny udział w finalnym wyborze.Jestem zadowolona z przebiegu inwestycji. Wszystkie prace postępowały sprawnie i po naszej myśli. Całą realizację udało nam się zakończyć w naprawdę korzystnym czasie, gdyż łącznie z wykończeniami trwała ok. 1,5 roku. Budowę rozpoczęliśmy w grudniu 2015 r., a do nowego domu wprowadziliśmy się w wakacje 2017 r. Przy wyborze materiałów opieraliśmy się na dołączonym do projektu kosztorysie i tym samym zdecydowana większość zastosowanych produktów jest zgodna ze wskazówkami architekta. Budynek został więc postawiony przy użyciu ceramicznych pustaków, a na dachu znajduje się dachówka. Wydatki oszacowane przez autora projektu domu E-128 WAX1029 dotyczące realizacji w stanie surowym zamkniętym zostały moim zdanie poprawnie wyliczone. Koszty naszej inwestycji były zbliżone do kwoty podanej w kosztorysie i myślę, że przyszli Inwestorzy również mogą się nim sugerować. Projekt domu E-128 WAX1029 został bardzo dobrze opracowany, jednak dosyć nietrafionym pomysłem wydało nam się zamurowanie wnęki w łazience na poddaszu. Stwierdziliśmy, że jest to całkowicie zbędne i finalnie zrezygnowaliśmy ze stawiania tej ścianki. Dzięki temu łazienka jest teraz ustawiejsza i nieco większa.Za dosyć niefortunny uznaliśmy również okienny świetlik w dachu w miejscu gdzie miała znajdować się łazienka. Zlokalizowany był zbyt wysoko, aby się do niego dostać i otworzyć w celu wywietrzenia wilgoci, dlatego postanowiliśmy go nie wstawiać, a łazienkę zamieniliśmy miejscami z garderobą robiąc je dodatkowo w jednej linii. Takie rozwiązanie pozwoliło nam uzyskać łazienkę z dostępem do klasycznego okna dachowego. Oprócz tego długie okna w wiatrołapie i pokoju gościnnym na parterze zamieniliśmy na przeszklenia o standardowych rozmiarach. Postanowiliśmy ponadto zrezygnować w domu z wszelkich grzejników - na całej powierzchni domu zastosować instalację ogrzewania podłogowego, a także zmieniliśmy zalecany system grzewczy na pompę ciepła.Decyzja o wyborze projektu domu parterowego z poddaszem użytkowym E-128 WAX1029 była dobrze przemyślana i jesteśmy z niej zadowoleni. Uwzględniony w nim układ wnętrza jest funkcjonalny, wygodny w codziennym użytkowaniu i w całości nas satysfakcjonuje. Wszystkie pomieszczenia są bardzo przestronne co bardzo mnie cieszy, a spiżarka przy kuchni jest niezwykle praktycznym rozwiązaniem. Pozdrawiam.

ASYSTENT WYBORU PROJEKTU

Szukasz idealnego projektu? Znajdziemy go dla Ciebie!

Doradca na podstawie Twoich wskazówek przygotuje spersonalizowaną listę projektów

Graficzne opracowanie rzutów poglądowych widocznych na karcie projektu zostało wykonane przez Extradom.pl. Prezentowane przez Extradom.pl wizualizacje wykonane zostały przez autora projektu i należy poczytywać je jedynie za przykład i propozycję wykończenia, wizję architektoniczną autora projektu. Ostateczne wykończenie budynku może nastąpić na wiele sposobów. Szczegółowe rozwiązania zastosowane w oferowanej dokumentacji - w tym również ilość, lokalizacje i wygląd okien, drzwi, kominów - mogą w niewielkim stopniu różnić się od prezentowanej wizualizacji budynku.

Extradom.pl Spółka z ograniczoną odpowiedzialnością z siedzibą przy ul. Jaworskiej 13, 53-612 Wrocław, wpisana do rejestru przedsiębiorców Krajowego Rejestru Sądowego przez Sąd Rejonowy dla Wrocławia-Fabrycznej we Wrocławiu, VI Wydział Gospodarczy Krajowego Rejestru Sądowego do pod numerem KRS 0000648746, numer NIP 895-17-18-333, o kapitale zakładowym 708 150,00 zł uprzejmie informuje, iż poprzez serwis Extradom.pl umożliwia m.in. zapoznanie się przez konsumentów z ofertą handlową Partnerów Extradom.pl, którzy stosują metody budowy domów przy wykorzystaniu różnego rodzaju technologie prefabrykacji bądź modułowe (tzw. „Gotowe domy”).

Extradom.pl nie prowadzi jednakże sprzedaży ani nie oferuje usług polegających na doradztwie finansowym, prawnym ani podatkowym w zakresie inwestycji realizowanych w technologiach tzw. „Gotowych domów”. Informacje prezentowane w serwisie Extradom.pl dotyczące Partnerów Extradom.pl oferujących realizację inwestycji w technologiach „Gotowych domów” lub podobnych mają charakter informacyjny i reklamowy.

Prezentowane w serwisie Extradom.pl informacje dotyczące stosowanych przez Partnerów metod budowy domów w technologii prefabrykacji bądź modułowej pochodzą od Partnerów Extradom.pl.

Extradom.pl sp. z o.o. jedynie umożliwia nawiązanie kontaktu przez Użytkownika z Partnerem Extradom.pl stosującym tego rodzaju technologie budowy domów i nie jest stroną umowy o roboty budowlane zawieranej przez Użytkownika Extradom.pl z Partnerem Extradom.pl.

REKLAMA
Zamknij