👉 Projekty w extracenach! ✂️

Koniec oferty za:

00godz.

00min.

00sek.

Sprawdź

Projekt domu Dudek WAH1134

Dodano!
Dodano!

Warstwy

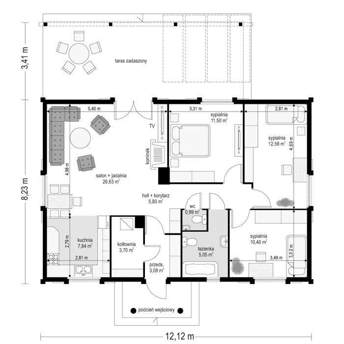
Rzut parteru

Powierzchnia (m²)
Tooltip
Powierzchnia pomieszczenia
to ta, z której faktycznie możesz korzystać – skosy i niskie części poddasza są liczone częściowo lub wcale.
  1. 100% dla wysokości powyżej 2,2 m,
  2. 50% dla wysokości 1,4–2,2 m,
  3. nie liczymy poniżej 1,4 m.

Powierzchnia podłogi
Liczymy po obrysie pomieszczenia, bez względu na jego wysokość/skosy. Jeśli nie ma skosów to powierzchnia podłogi i pomieszczenia jest taka sama.
pomieszczenia i podłogi
podłogi
1. Wiatrołap
3,08
2. Hall
5,80
3. Kuchnia
7,84
4. Pokój dzienny + jadalnia
26,63
5. Pokój
11,50
6. Pokój
12,58
7. Pokój
10,40
8. Łazienka
5,05
9. Wc
0,99
10. Kotłownia
3,70
Razem
87,57
87,57

    Usytuowanie na działce

    Czy ten projekt pasuje na
    Twoją działkę?

    Chętnie to sprawdzimy!

    Dowiedz się:

    • czy zmieści się na niej wybrany przez Ciebie dom
    • jakie parametry musi spełniać dom według miejscowego planu zagospodarowania lub warunków zabudowy (np. kąt nachylenia i typ dachu, liczba kondygnacji itp.
    • jakie inne projekty pasują na Twoją działkę – znajdziemy je dla Ciebie!

Pow. użytkowa

83,86 m²

Pokoje

3

Łazienki i WC

2

Garaż

0

Min. szer. i dł. działki

20,12 x 19,02 m

Kąt dachu

24°

Konstrukcja

Z bali
więcej

Dudek - WAH1134

ikona 83,86 m²
Powierzchnia użytkowa
ikona3
Pokoje (bez salonu)
ikona 2
Łazienki (z toaletami)
ikona 0
Liczba stanowisk garażowych
(z wiatą garażową)
ikona
Konstrukcja: Z bali

Promocja od 03.02.2026, koniec za:

0 dni

00 00 00

4 008 zł

Tooltip

Cena regularna obowiązywała od 01.02.2026 do 02.02.2026

Cena regularna: 5 010 zł
Najniższa cena z 30 dni przed obniżką: 3 808 zł
Gwarancja najniższej ceny Gwarancja najniższej ceny Tooltip

Projekt jest dostępny Tooltip

GRATIS 16% rabatu w SELSEY

GRATIS 10% rabatu do LEROY MERLIN

GRATIS Przydatne Extradodatki

GRATIS Poradnik Dach Solarny

100 dni na wymianę, 30 dni na zwrot

Darmowa dostawa - kurier, paczkomaty

Bezpłatne pozwolenie na zmiany

Dokumentacja zgodna z WT2021

Pokaż więcej (6)
Konsultant Masz pytania?
Zadzwoń
71 715 20 60

pon.-pt. 8-21, sob. 9-17

Szukasz wykonawcy godnego zaufania?
Zleć budowę w Extradom.pl!

  • Z góry znasz koszt budowy domu
  • Dom odbierasz zgodnie z ustalonym harmonogramem - nawet w 6 miesięcy
  • Zabezpiecza Cię jedna kompleksowa umowa z jednym wykonawcą
  • Otrzymujesz nawet 30-letnią gwarancję na konstrukcję domu
  • Oszczędzasz swój czas dzięki pewnej i kompletnej usłudze
Cena brutto stanu
deweloperskiego od
Tooltip
Cena brutto stanu deweloperskiego od 4 719 do 6 939 zł/m2.
Cena jest uzależniona m.in. od lokalizacji, wybranej technologii, kubatury budynku, skomplikowania projektu i ewentualnych zmian, na które zdecyduje się inwestor.
Cena za m2 powierzchni netto, czyli wszystkich pomieszczeń mierzonych na wysokości podłogi.
4 719 zł/m2
Dowiedz się więcej
Konsultant Masz pytania?
Zadzwoń
71 715 20 70

pon.-pt. 8-19

Parter - 87,57 m²

Parter projektu Dudek

Zapytaj, co możesz zmienić

Powierzchnia (m²)
Tooltip
Powierzchnia pomieszczenia
to ta, z której faktycznie możesz korzystać – skosy i niskie części poddasza są liczone częściowo lub wcale.
  1. 100% dla wysokości powyżej 2,2 m,
  2. 50% dla wysokości 1,4–2,2 m,
  3. nie liczymy poniżej 1,4 m.

Powierzchnia podłogi
Liczymy po obrysie pomieszczenia, bez względu na jego wysokość/skosy. Jeśli nie ma skosów to powierzchnia podłogi i pomieszczenia jest taka sama.
pomieszczenia i podłogi
podłogi
1. Wiatrołap
3,08
2. Hall
5,80
3. Kuchnia
7,84
4. Pokój dzienny + jadalnia
26,63
5. Pokój
11,50
6. Pokój
12,58
7. Pokój
10,40
8. Łazienka
5,05
9. Wc
0,99
10. Kotłownia
3,70
Razem
87,57
87,57

Natychmiast, otrzymasz PDF-y
z rzutami wszystkich kondygnacji

Zamów rysunki szczegółowe

Zapoznaj się ze szczegółowymi rysunkami rzutów kondygnacji w PDF dla tego projektu.

Warianty projektu (2)

PROMOCJA
Projekt domu Dudek wariant B
Dudek wariant B
83,86 m²

4 008 zł

5 010 zł

Tooltip

Cena regularna

3 808 zł najniższa cena
Tooltip

Najniższa cena z 30 dni
przed obniżką

PROMOCJA
Projekt domu Dudek wariant C
Dudek wariant C
91,80 m²

4 008 zł

5 010 zł

Tooltip

Cena regularna

3 808 zł najniższa cena
Tooltip

Najniższa cena z 30 dni
przed obniżką

Podobne projekty (12)

Zobacz wszystkie
EXTRACENA
Zdjęcie 1 projektu Julia (997) KRD2221
Julia (997)
Dodano!
Dodano!
85,70 m²
3
2
0

3 440 zł

3 790 zł

Tooltip

Cena regularna

3 440 zł najniższa cena
Tooltip

Najniższa cena z 30 dni
przed obniżką

EXTRACENA
Zdjęcie 1 projektu Elka 2 dr-st BSA2140
Elka 2 dr-st
Dodano!
Dodano!
87,30 m²
2
1
0

4 849 zł

5 249 zł

Tooltip

Cena regularna

4 549 zł najniższa cena
Tooltip

Najniższa cena z 30 dni
przed obniżką

EXTRACENA
Zdjęcie 1 projektu Jaskółka WAH1178
Jaskółka
Dodano!
Dodano!
88,49 m²
3
2
0

4 152 zł

5 190 zł

Tooltip

Cena regularna

3 952 zł najniższa cena
Tooltip

Najniższa cena z 30 dni
przed obniżką

Zdjęcie 1 projektu Elsa drewniana BSE1149
Elsa drewniana
Dodano!
Dodano!
76,53 m²
2
1
0

4 500 zł

Zdjęcie 1 projektu Galia drewniana BSE1095
Galia drewniana
Dodano!
Dodano!
74,20 m²
2
1
1

4 600 zł

Zdjęcie 1 projektu Lori drewniany BSE1227
Lori drewniany
Dodano!
Dodano!
84,30 m²
2
1
0

4 500 zł

EXTRACENA
Zdjęcie 1 projektu A-126 Dom liliowa szkieletowy BBD1219
69,10 m²
2
1
1

3 299 zł

3 499 zł

Tooltip

Cena regularna

3 299 zł najniższa cena
Tooltip

Najniższa cena z 30 dni
przed obniżką

EXTRACENA
Zdjęcie 1 projektu Piaseczno 1 dws KRP1920
Piaseczno 1 dws
Dodano!
Dodano!
84,95 m²
3
2
0

4 980 zł

5 380 zł

Tooltip

Cena regularna

4 699 zł najniższa cena
Tooltip

Najniższa cena z 30 dni
przed obniżką

Projekt z budową

Budowa Projekt z budową

Zbuduj ten dom z naszym Partnerem - wygodnie, szybko i bezpiecznie

Projekt z budową to:

  • gwarancja niezmiennego kosztu budowy

  • krótki czas realizacji - dom gotowy nawet w 6 miesięcy

  • wieloletnia gwarancja na konstrukcję domu

Elewacje

Frontowa
Tylna
Lewa
Prawa

Usytuowanie na działce

Czy ten projekt pasuje na
Twoją działkę?

Chętnie to sprawdzimy!

Czy ten projekt pasuje na
Twoją działkę?

Chętnie to sprawdzimy!

Dowiedz się:

  • czy zmieści się na niej wybrany przez Ciebie dom
  • jakie parametry musi spełniać dom według miejscowego planu zagospodarowania lub warunków zabudowy (np. kąt nachylenia i typ dachu, liczba kondygnacji itp.
  • jakie inne projekty pasują na Twoją działkę – znajdziemy je dla Ciebie!
Autor: MG Projekt

Dane techniczne projektu

Powierzchnie i wymiary Powierzchnie i wymiary

Powierzchnia użytkowa
Tooltip
Suma powierzchni wszystkich pomieszczeń mieszkalnych, pomniejszona o pow. garażu, kotłowni, strychu, piwnicy. Jest liczona w 100% dla pomieszczeń o wysokości powyżej 2,2 m, w 50% dla pomieszczeń o wys. 2,2-1,4 m i niewliczana dla niższych niż 1,4 m.

83,86 m²

Powierzchnia zabudowy
Tooltip
Powierzchnia zajmowana przez część na- oraz nadziemną budynku liczona, jako rzut pionowy budynku na działkę.

98,21 m²

Powierzchnia całkowita
Tooltip
Całkowita powierzchnia wszystkich kondygnacji budynku łącznie z elementami nośnymi, takimi jak ściany zewnętrzne (z ociepleniem), słupy, tarasy, itp.

98,21 m²

Kubatura brutto
Tooltip
Zazwyczaj jest to suma kubatur (objętości) wszystkich pomieszczeń budynku, liczonych po zewnętrznym obrysie murów (z ociepleniem).

258 m³

Powierzchnia dachu

180 m²

Kąt nachylenia dachu
Tooltip
Nachylenie połaci dachu głównego podawane w stopniach. Uwaga! W niektórych projektach występuje więcej niż jedno nachylenie dachu.

24°

Wysokość budynku
Tooltip
Wysokość liczona od części budynku położonej najniżej przy powierzchni terenu do najwyższego punktu dachu (kalenicy) z wyłączeniem kominów.

5,40 m

Szerokość elewacji

12,12 m

Długość elewacji

8,23 m

Min. szerokość działki
Tooltip
Najmniejsza możliwa szerokość działki niezbędna do wybudowania wybranego domu. Składa się z szerokości elewacji domu powiększonej z obu stron o 3 m dla ściany bez otworów drzwiowych/okiennych lub 4 m, dla ściany z otworami.

20,12 m

Min. długość działki
Tooltip
Najmniejsza możliwa długość działki niezbędna do wybudowania wybranego domu. Składa się z długości elewacji domu powiększonej z obu stron o 3 m dla ściany bez otworów drzwiowych/okiennych lub 4 m, dla ściany z otworami.

19,02 m

Energooszczędność Energooszczędność

Oze Czym jest OZE (Odnawialne Źródło Energii)?
Ep
Tooltip
Energia pierwotna określa ilość energii nieodnawialnej potrzebnej w ciągu roku do ogrzewania czy też ogrzania wody użytkowej z uwzględnieniem kosztów produkcji i transportu surowców energetycznych.

69,90 kWh/(m²rok)

Ek
Tooltip
Energia końcowa określa zapotrzebowanie budynku na energię niezbędną do uzyskania założonych parametrów, jak np. temperatura wewnątrz budynku.

59,50 kWh/(m²rok)

Euco
Tooltip
Energia użytkowa potrzebna do ogrzewania i wentylacji. Im parametr jest niższy tym budynek bardziej energooszczędny.

45,50 kWh/(m²rok)

Ogrzewanie główne

Gazowe - szczegóły

Dodatkowo istnieje możliwość zamówienia projektu z

Aneks na paliwo stałe

Gruntowa pompa ciepła

Powietrzna pompa ciepła

Interesuje Cię inne źródło ogrzewania? Wyślij zapytanie lub zadzwoń do doradcy

Wentylacja

Grawitacyjna - szczegóły

Warunki techniczne

Projekt zgody z WT 2021

Technologia i konstrukcja Technologia i konstrukcja

Konstrukcja

Z bali

PROJEKT Z BUDOWĄ Istnieje możliwość zaadaptowania tego projektu do technologii prefabrykowanej/modułowej i budowy nawet w 6 miesięcy ze stałym kosztem budowy

Dowiedz się więcej »
Opis szczegółowy

Fundamenty: betonowe ławy, ściany z bloczków. Ściany zewnętrzne: ściany z bali litych, ocieplonych od wewnątrz, konstrukcja sumikowo-łątkowa. Strop: wiązary kratownicowe drewniane. Elewacje: bale lite. Pokrycie dachu: dachówka. Nachylenie dachu: 24 stopnie.

Strop

Wiązary

Reklama
Okna i drzwi tarasowe

Nowoczesne okna PVC i aluminiowe WIŚNIOWSKI – doskonała izolacja, elegancki design i niezrównana trwałość.

Wiśniowski
Sprawdź parametry!
Okna dachowe

Oferujemy bezpłatne konsultacje w zakresie wszystkich rozwiązań VELUX. Wyceny, porady dotyczące doboru okien i rolet zewnętrznych - sprawdź!

Velux
Sprawdź szczegóły
Płytki ceramiczne i gresy

Od małych formatów po wielkoformatowe gresy. Marmur, beton, drewno, kamień, lastryko czy cegiełki zamówisz wygodnie online z szybką dostawą.

Ceramzet
Sprawdź ofertę
Drzwi

Ciepłe drzwi WIŚNIOWSKI z kontrolą dostępu. Szeroka gama wzorów i kolorów.

Wiśniowski
Wybierz najlepsze
Bramy garażowe

Automatyczne bramy garażowe segmentowe i uchylne WIŚNIOWSKI na wymiar i z systemem smart home w standardzie.

Wiśniowski
Sprawdź ofertę!
Armatura i ceramika łazienkowa

Topowi producenci. Baterie łazienkowe, zestawy natynkowe i podtynkowe, umywalki, wanny, miski WC oraz kabiny zamówisz kompleksowo online.

Ceramzet II
Dowiedz się więcej
Rekuperacja

Alnor - kompletny system rekuperacji. Dobierz idealne rozwiązanie dla Twojego domu!

Alnor
Dobierz rekuperator
Dach

Producent stalowych pokryć dachowych i systemów elewacyjnych. Precyzja wykonania, trwałość na lata i szybki montaż doceniany przez dekarzy. Postaw na solidny dach Budmat.

Budmat
Sprawdź ofertę
Ogrodzenie

Nowoczesne stalowe ogrodzenia Budmat - estetyka, bezpieczeństwo i trwałość na lata. Systemowe rozwiązania na wymiar, dopasowane do każdego domu.

Budmat
Sprawdź ofertę

Gotowe domy modułowe (118)

Zobacz wszystkie
Stan deweloperski nawet w 6 miesięcy Gwarancja stałej ceny
Zdjęcie 1 projektu Dom modułowy Energy HMD1003
Gotowy dom modułowy Energy
Dodano!
Dodano!
Pow. użytkowa
83,28 m²
Pokoje
3
473 000 zł 5 680 zł/m²
Zdjęcie 1 projektu Dom prefabrykowany P.10a HPK1010
Pow. użytkowa
84,54 m²
Pokoje
3
474 900 zł 5 617 zł/m²
Zdjęcie 1 projektu Dom prefabrykowany P.10 HPK1009
Pow. użytkowa
84,54 m²
Pokoje
3
474 900 zł 5 617 zł/m²
Zdjęcie 1 projektu Dom szkieletowy Mezzanine Smart 70 HHT1011
Pow. użytkowa
81,09 m²
Pokoje
2
449 600 zł 5 544 zł/m²
Zdjęcie 1 projektu ExtraKeramzytowy 1 HAK1001
Gotowy extraKeramzytowy 1
Dodano!
Dodano!
Pow. użytkowa
80 m²
Pokoje
3
411 560 zł 5 145 zł/m²
Zdjęcie 1 projektu Dom prefabrykowany Parterowy 80C HFX1005
Pow. użytkowa
79,83 m²
Pokoje
2
385 000 zł 4 823 zł/m²
Zdjęcie 1 projektu Dom prefabrykowany Parterowy 80A HFX1003
Pow. użytkowa
79,48 m²
Pokoje
3
385 000 zł 4 844 zł/m²
Zdjęcie 1 projektu Dom prefabrykowany E.2 HPK1018
Pow. użytkowa
88,25 m²
Pokoje
4
502 980 zł 5 699 zł/m²

Dodatki do projektu

Dodatki możesz zamówić w koszyku lub telefonicznie u naszego Doradcy.

Czym jest OZE (Odnawialne Źródło Energii)?

Ikona

Bestseller

Kosztorys

600 zł

Ikona

Bestseller

Dodatkowy egzemplarz projektu

650 zł

Ikona

Bestseller

Elektroniczna wersja projektu

600 zł

Ikona

Ogrzewanie podłogowe

550 zł

Ikona

Oze

Aneks na paliwo stałe

550 zł

Ikona

Oze

Gruntowa pompa ciepła

550 zł

Pokaż więcej (8)

Opis projektu domu
Dudek

Projekt domu Dudek to ciekawa propozycja dla osób posiadających średniej szerokości działkę. Bryła budynku posiada formę typową, co znacznie ułatwia późniejszą aranżację wnętrza. W tym projekcie kalenica skierowana jest równolegle do drogi, co jest bardzo istotnie, gdy wymaga tego plan zagospodarowania przestrzennego. Projekt został stworzony z myślą o działkach pozwalających na usytuowanie domu w zabudowie wolnostojącej. Jest to również doskonała propozycja dla osób szukających domu z dachem kopertowym, który wyjątkowo się prezentuje. Projekt Dudek to dom parterowy, co sprawia, że komunikacja między pomieszczeniami jest bardzo komfortowa. Sercem domu jest przestronna strefa dzienna, która sprzyja spędzaniu wspólnego czasu w gronie najbliższych. Otwarta kuchnia dodaje wnętrzu przestrzeni oraz znacznie ułatwia komunikację między domownikami. Połączenie jadalni z salonem to doskonałe rozwiązanie dla osób, lubiących organizować przyjęcia. Dodatkowo w salonie przewidziano kominek, nadający wnętrzu niepowtarzalny klimat. W domu znajduje się komfortowa łazienka oraz dodatkowa toaleta, co jest szczególnie przydatne przy większej liczbie domowników. Trzy sypialnie doskonale sprawdzą się w przypadku 2-4 osobowej rodziny. Przestrzeń można wykorzystać także jako pokój dla gości lub gabinet. Taras daje możliwość kontaktu z przyrodą i sprzyja wypoczynkowi. Jego wygląd zewnętrzny uwydatnia cechy charakterystyczne dla stylu tradycyjnego, dlatego będzie prezentować się doskonale niezależnie od okolicy.
Czytaj więcej

Polecani producenci

Kompletne systemy rekuperacji

tło producenta

Alnor

Dowiedz się więcej

Prefabrykowane konstrukcje dachowe

tło producenta

WIĄZAR POLSKA

Zobacz więcej

Sprawdź nową generację okien GREENVIEW

tło producenta

FAKRO

Sprawdź nową generację okien GREENVIEW

Styropian, tynki, farby, kleje

tło producenta

Termo Organika

Poznaj super jakość

Okna, drzwi, osłony przeciwsłoneczne

tło producenta

Aluprof

Sprawdź ofertę
Zobacz więcej

Społeczność projektu domu
Dudek w budowie

Dołącz do społeczności osób, które budują ten dom lub są zainteresowane jego budową.

  • Oglądaj zdjęcia z budowy
  • Zadawaj pytania
  • Wymieniaj się doświadczeniami

Opinie o projekcie domu Dudek

5

Na podstawie 2 recenzji

Wspaniały!
100%
Bardzo dobry
0%
Średni
0%
Słaby
0%
Bardzo słaby
0%

Wywiady mieszkańców domu Dudek

Zdjęcie profilowe użytkownika zuza55 zuza55

Wraz z mężem chcieliśmy wybudować dom, w którym mieszkalibyśmy tylko we dwoje. Z tego względu duży metraż nie był nam potrzebny i optymalnej dla nas propozycji szukaliśmy pośród projektów niewielkich domków. Równie istotne było to, aby budynek posiadał jedynie parter. Ostatecznie zdecydowaliśmy się na realizację projektu domu Dudek WAH1134, który spełnia powyższe wymagania i w całości przypadł nam do gustu.Muszę przyznać, że jestem zadowolona z przebiegu całej inwestycji. Nasz dom stawiali prawdziwi górale i doskonale poradzili sobie na każdym etapie. Wszystkie prace udało się wykonać sprawnie i w błyskawicznym czasie - budowę rozpoczęliśmy w maju, a do nowego, w pełni wykończonego domu wprowadziliśmy się już w październiku tego samego roku. Postanowiliśmy zastosować się do zalecanej przez architekta technologii i użyć sugerowanych przez autora materiałów. Głównym budulcem ścian zewnętrznych są tym samym drewniane bale wypełnione warstwami izolacyjnymi, zaś ściany od wewnątrz zabudowaliśmy płytami G-K. Dach pokryliśmy blachodachówką. Przyznam jednak, iż koszty naszej inwestycji były wyższe w stosunku do oszacowanych. Myślę więc, że decydując się na projekt domu Dudek WAH1134 bezpieczniej będzie wziąć pod uwagę wyższe ceny.Rozmieszczenie wnętrza przewidziane w projekcie domu Dudek WAH1134 od początku wydało nam się świetnie przemyślane, więc w całości wykonaliśmy je zgodnie z wizją architekta. Jest ono jednak na tyle elastyczne, iż bardzo łatwy sposób dopasować je do indywidualnych preferencji. Wewnątrz znajdują się jedynie ścianki działowe, więc lekka modyfikacja ich układu w żaden sposób nie naruszy konstrukcji. Oryginalna wersja rozkładu pomieszczeń w dalszym ciągu spełnia nasze oczekiwania, a metraż jest w pełni komfortowy dla naszej dwójki. Myślę, że taka powierzchnia będzie również wystarczająca dla małżeństwa z jednym dzieckiem. Dom oraz wodę użytkową ogrzewamy za pomocą pieca, w którym palimy ekogroszkiem. Przybliżone koszty takiego rozwiązania w sezonie zimowym to ok. 250 zł. Pozdrawiam.

Zdjęcie profilowe użytkownika Rela00 Rela00

Przede wszystkim, od samego początku zależało nam na realizacji domu w stylu kanadyjskim. Głównymi założeniami był dom stawiany w technologii szkieletowej z drewna oraz wszystkie pomieszczenia na jednym poziomie. Wynikało to z bardzo krótkiego czasu budowy tego typu budynków, a nam zależało na szybkiej przeprowadzce. Spośród domów odpowiadającym tym kryteriom, finalnie zdecydowaliśmy się na projekt Dudek WAH1134. Jego metraż wydał się nam idealny dla naszej dwójki, a przewidziany w nim układ wnętrza uwzględnia wszystko co potrzebne do w pełni komfortowego życia. Spodobało mi się połączenie salonu, jadalni i kuchni oraz fakt, iż oprócz głównej łazienki, autor zaplanował również osobną toaletę. Do gustu przypadły mi również trzy pokoje, które mogłam wykorzystać wedle własnych potrzeb.Budowa przebiegła niezwykle sprawnie. Niedaleko naszej działki został zrealizowany już wcześniej ten sam projekt, który został bardzo dobrze wykonany. Postanowiłam więc zlecić budowę tej samej ekipie budowlanej. Doświadczeni fachowcy doskonale sobie poradzili, a samo postawienie budynku odbyło się bardzo szybko. W przeciwieństwie do budynków murowanych nie musieliśmy czekać na odstanie murów czy wyschnięcie stropów, co również wpłynęło na błyskawiczny czas realizacji. Budowę rozpoczęliśmy we wrześniu, a już 6 grudnia tego samego roku wprowadziliśmy się do nowego domu.Przyznam, że ciężko ocenić mi faktyczne koszty budowy na poszczególnych etapach, ponieważ z ekipą budowlaną umówiliśmy się na zrealizowanie całej inwestycji, łącznie z murowanym wolnostojącym garażem przy domu, który był nadzwyczaj kosztowny (ok. 70 tys. zł). Dodatkowo, zastosowaliśmy system ogrzewania podłogowego oraz nieco inną niż w projekcie stolarkę otworową - powiększyliśmy okna i zakupiliśmy drzwi wejściowe bardzo wysokiej jakości, co spowodowało podwyższenie wydatków w stosunku do oszacowanych. Cała inwestycja łącznie z garażem i wykończeniem domu, wyniosła nas ponad 300 tys. zł.Projekt domu parterowego Dudek WAH1134 został wyjątkowo komfortowo zaplanowany, a kilka drobnych zmian pozwoliło w całości dopasować go do wszystkich naszych oczekiwań. Salon lekko powiększyliśmy kosztem części znajdującego się obok pokoju - i tak trzy sypialnie o dużych rozmiarach nie były nam potrzebne. Jedną z nich przeznaczyłam na pokój gościnny, a drugą na gabinet do pracy z garderobą. Dodatkowo zrezygnowaliśmy z kominka i zmieniliśmy sposób ogrzewania. Mieszkamy na wsi, gdzie nie mieliśmy możliwości podłączenia działki do gazu ziemnego, dlatego też musieliśmy zdecydować się na ogrzewanie paliwem stałym. Wymiary uwzględnionej w projekcie kotłowni, są jednak trochę za małe na wstawienie pieca węglowego, dlatego też zainstalowaliśmy go w nowopowstałym garażu. Powierzchnię kotłowni przeznaczyliśmy na zrobienie typowo gospodarczego pomieszczenia z pralnią. Doskonałym pomysłem okazało się powiększenie okien: duże okno w salonie poszerzyliśmy jeszcze bardziej, a także wydłużyliśmy przeszklenia w jadalni i sypialni do wymiarów balkonowego. Pomieszczenia są doskonale oświetlone i polecam to rozwiązanie przyszłym Inwestorom. Ostatnią zmianą było powiększenie tarasu oraz znajdującego się nad nim zadaszenia. Na chwilę obecną zdecydowałabym się jeszcze na powiększenie ubikacji o 20-30 cm kosztem znajdującej się obok łazienki i myślę, że warto to rozważyć.Jestem bardzo zadowolona z wyboru projektu domu Dudek WAH1134. Od początku szukaliśmy funkcjonalnego, szybkiego do zrealizowania drewnianego domu, więc ten jak najbardziej spełniał nasze oczekiwania. Uwzględniony w nim układ pomieszczeń został bardzo funkcjonalnie przemyślany, a kilka modyfikacji sprawiło, że nowy dom jest dla nas po prostu idealny i dostrzegam w nim same plusy.

ASYSTENT WYBORU PROJEKTU

Szukasz idealnego projektu? Znajdziemy go dla Ciebie!

Doradca na podstawie Twoich wskazówek przygotuje spersonalizowaną listę projektów

Graficzne opracowanie rzutów poglądowych widocznych na karcie projektu zostało wykonane przez Extradom.pl. Prezentowane przez Extradom.pl wizualizacje wykonane zostały przez autora projektu i należy poczytywać je jedynie za przykład i propozycję wykończenia, wizję architektoniczną autora projektu. Ostateczne wykończenie budynku może nastąpić na wiele sposobów. Szczegółowe rozwiązania zastosowane w oferowanej dokumentacji - w tym również ilość, lokalizacje i wygląd okien, drzwi, kominów - mogą w niewielkim stopniu różnić się od prezentowanej wizualizacji budynku.

Extradom.pl Spółka z ograniczoną odpowiedzialnością z siedzibą przy ul. Jaworskiej 13, 53-612 Wrocław, wpisana do rejestru przedsiębiorców Krajowego Rejestru Sądowego przez Sąd Rejonowy dla Wrocławia-Fabrycznej we Wrocławiu, VI Wydział Gospodarczy Krajowego Rejestru Sądowego do pod numerem KRS 0000648746, numer NIP 895-17-18-333, o kapitale zakładowym 708 150,00 zł uprzejmie informuje, iż poprzez serwis Extradom.pl umożliwia m.in. zapoznanie się przez konsumentów z ofertą handlową Partnerów Extradom.pl, którzy stosują metody budowy domów przy wykorzystaniu różnego rodzaju technologie prefabrykacji bądź modułowe (tzw. „Gotowe domy”).

Extradom.pl nie prowadzi jednakże sprzedaży ani nie oferuje usług polegających na doradztwie finansowym, prawnym ani podatkowym w zakresie inwestycji realizowanych w technologiach tzw. „Gotowych domów”. Informacje prezentowane w serwisie Extradom.pl dotyczące Partnerów Extradom.pl oferujących realizację inwestycji w technologiach „Gotowych domów” lub podobnych mają charakter informacyjny i reklamowy.

Prezentowane w serwisie Extradom.pl informacje dotyczące stosowanych przez Partnerów metod budowy domów w technologii prefabrykacji bądź modułowej pochodzą od Partnerów Extradom.pl.

Extradom.pl sp. z o.o. jedynie umożliwia nawiązanie kontaktu przez Użytkownika z Partnerem Extradom.pl stosującym tego rodzaju technologie budowy domów i nie jest stroną umowy o roboty budowlane zawieranej przez Użytkownika Extradom.pl z Partnerem Extradom.pl.

REKLAMA
Zamknij