Projekty nawet 500 zł taniej ❄️

Koniec oferty za:

0dni

00godz.

00min.

00sek.

Sprawdź

Projekt domu Jaskółka WAH1178

Dodano!
Dodano!

Warstwy

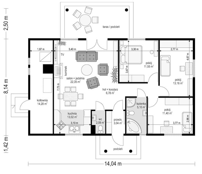
Rzut parteru

Powierzchnia (m²)
Tooltip
Powierzchnia pomieszczenia
to ta, z której faktycznie możesz korzystać – skosy i niskie części poddasza są liczone częściowo lub wcale.
  1. 100% dla wysokości powyżej 2,2 m,
  2. 50% dla wysokości 1,4–2,2 m,
  3. nie liczymy poniżej 1,4 m.

Powierzchnia podłogi
Liczymy po obrysie pomieszczenia, bez względu na jego wysokość/skosy. Jeśli nie ma skosów to powierzchnia podłogi i pomieszczenia jest taka sama.
pomieszczenia i podłogi
podłogi
1. Wiatrołap
3,04
2. Hall
6,78
3. Wc
2,09
4. Kuchnia
13,02
5. Pokój dzienny + jadalnia
22,35
6. Pokój
11,55
7. Pokój
13,16
8. Pokój
11,40
9. Łazienka
5,10
10. Pomieszczenie gospodarcze
14,20
Razem
102,69
102,69

    Usytuowanie na działce

    Czy ten projekt pasuje na
    Twoją działkę?

    Chętnie to sprawdzimy!

    Dowiedz się:

    • czy zmieści się na niej wybrany przez Ciebie dom
    • jakie parametry musi spełniać dom według miejscowego planu zagospodarowania lub warunków zabudowy (np. kąt nachylenia i typ dachu, liczba kondygnacji itp.
    • jakie inne projekty pasują na Twoją działkę – znajdziemy je dla Ciebie!

Pow. użytkowa

88,49 m²

Pokoje

3

Łazienki i WC

2

Garaż

0

Min. szer. i dł. działki

22,04 x 18,06 m

Kąt dachu

30°

Konstrukcja

Z bali
więcej

Jaskółka - WAH1178

ikona 88,49 m²
Powierzchnia użytkowa
ikona3
Pokoje (bez salonu)
ikona 2
Łazienki (z toaletami)
ikona 0
Liczba stanowisk garażowych
(z wiatą garażową)
ikona
Konstrukcja: Z bali

Promocja od 18.12.2025, koniec za:

0 dni

00 00 00

3 952 zł

Tooltip

Cena regularna obowiązywała od 15.12.2025 do 17.12.2025

Cena regularna: 4 940 zł
Najniższa cena z 30 dni przed obniżką: 3 705 zł
Gwarancja najniższej ceny Gwarancja najniższej ceny Tooltip

Projekt jest dostępny Tooltip

GRATIS 10% rabatu do LEROY MERLIN

GRATIS Przydatne Extradodatki

GRATIS Poradnik Dach Solarny

100 dni na wymianę, 30 dni na zwrot

Darmowa dostawa - kurier, paczkomaty

Bezpłatne pozwolenie na zmiany

Dokumentacja zgodna z WT2021

Pokaż więcej (5)
Konsultant Masz pytania?
Zadzwoń
71 715 20 02

pon.-pt. 8-21, sob. 9-17

Szukasz wykonawcy godnego zaufania?
Zleć budowę w Extradom.pl!

  • Z góry znasz koszt budowy domu
  • Dom odbierasz zgodnie z ustalonym harmonogramem - nawet w 6 miesięcy
  • Zabezpiecza Cię jedna kompleksowa umowa z jednym wykonawcą
  • Otrzymujesz nawet 30-letnią gwarancję na konstrukcję domu
  • Oszczędzasz swój czas dzięki pewnej i kompletnej usłudze
Cena brutto stanu
deweloperskiego od
Tooltip
Cena brutto stanu deweloperskiego od 4 719 do 6 939 zł/m2.
Cena jest uzależniona m.in. od lokalizacji, wybranej technologii, kubatury budynku, skomplikowania projektu i ewentualnych zmian, na które zdecyduje się inwestor.
Cena za m2 powierzchni netto, czyli wszystkich pomieszczeń mierzonych na wysokości podłogi.
4 719 zł/m2
Dowiedz się więcej
Konsultant Masz pytania?
Zadzwoń
71 715 20 70

pon.-pt. 8-19

Parter - 102,69 m²

Parter projektu Jaskółka

Zapytaj, co możesz zmienić

Powierzchnia (m²)
Tooltip
Powierzchnia pomieszczenia
to ta, z której faktycznie możesz korzystać – skosy i niskie części poddasza są liczone częściowo lub wcale.
  1. 100% dla wysokości powyżej 2,2 m,
  2. 50% dla wysokości 1,4–2,2 m,
  3. nie liczymy poniżej 1,4 m.

Powierzchnia podłogi
Liczymy po obrysie pomieszczenia, bez względu na jego wysokość/skosy. Jeśli nie ma skosów to powierzchnia podłogi i pomieszczenia jest taka sama.
pomieszczenia i podłogi
podłogi
1. Wiatrołap
3,04
2. Hall
6,78
3. Wc
2,09
4. Kuchnia
13,02
5. Pokój dzienny + jadalnia
22,35
6. Pokój
11,55
7. Pokój
13,16
8. Pokój
11,40
9. Łazienka
5,10
10. Pomieszczenie gospodarcze
14,20
Razem
102,69
102,69

Natychmiast, otrzymasz PDF-y
z rzutami wszystkich kondygnacji

Zamów rysunki szczegółowe

Zapoznaj się ze szczegółowymi rysunkami rzutów kondygnacji w PDF dla tego projektu.

Podobne projekty (52)

Zobacz wszystkie
NIŻSZA CENA❄️
Zdjęcie 1 projektu Dudek WAH1134
Dudek
Dodano!
Dodano!
83,86 m²
3
2
0

3 808 zł

4 760 zł

Tooltip

Cena regularna

3 570 zł najniższa cena
Tooltip

Najniższa cena z 30 dni
przed obniżką

Nowość
Zdjęcie 1 projektu Galia 2 drewniana BSE1283
Galia 2 drewniana
Dodano!
Dodano!
80,76 m²
2
2
1

4 400 zł

Zdjęcie 1 projektu TK104 WAK1097
TK104
Dodano!
Dodano!
109,11 m²
3
2
0

3 950 zł

NIŻSZA CENA❄️
Zdjęcie 1 projektu Julia (997) KRD2221
Julia (997)
Dodano!
Dodano!
85,70 m²
3
2
0

3 440 zł

3 790 zł

Tooltip

Cena regularna

3 240 zł najniższa cena
Tooltip

Najniższa cena z 30 dni
przed obniżką

NIŻSZA CENA❄️
Zdjęcie 1 projektu Jak marzenie z garażem wariant F WAH1519
87,51 m²
3
1
1

3 992 zł

4 990 zł

Tooltip

Cena regularna

3 742 zł najniższa cena
Tooltip

Najniższa cena z 30 dni
przed obniżką

NIŻSZA CENA❄️
Zdjęcie 1 projektu Parterowy 21S BBH1058
Parterowy 21S
Dodano!
Dodano!
51,90 m²
2
1
0

3 070 zł

3 338 zł

Tooltip

Cena regularna

3 070 zł najniższa cena
Tooltip

Najniższa cena z 30 dni
przed obniżką

NIŻSZA CENA❄️
Zdjęcie 1 projektu Domek Mokka 053 PRE (053 ES 20-10) SLF1110
113,52 m²
3
2
0

3 240 zł

3 600 zł

Tooltip

Cena regularna

3 240 zł najniższa cena
Tooltip

Najniższa cena z 30 dni
przed obniżką

NIŻSZA CENA❄️
Zdjęcie 1 projektu Elka 2 dr-st BSA2140
Elka 2 dr-st
Dodano!
Dodano!
87,30 m²
2
1
0

4 449 zł

4 949 zł

Tooltip

Cena regularna

4 449 zł najniższa cena
Tooltip

Najniższa cena z 30 dni
przed obniżką

Projekt z budową

Budowa Projekt z budową

Zbuduj ten dom z naszym Partnerem - wygodnie, szybko i bezpiecznie

Projekt z budową to:

  • gwarancja niezmiennego kosztu budowy

  • krótki czas realizacji - dom gotowy nawet w 6 miesięcy

  • wieloletnia gwarancja na konstrukcję domu

Elewacje

Frontowa
Tylna
Lewa
Prawa

Usytuowanie na działce

Czy ten projekt pasuje na
Twoją działkę?

Chętnie to sprawdzimy!

Czy ten projekt pasuje na
Twoją działkę?

Chętnie to sprawdzimy!

Dowiedz się:

  • czy zmieści się na niej wybrany przez Ciebie dom
  • jakie parametry musi spełniać dom według miejscowego planu zagospodarowania lub warunków zabudowy (np. kąt nachylenia i typ dachu, liczba kondygnacji itp.
  • jakie inne projekty pasują na Twoją działkę – znajdziemy je dla Ciebie!
Autor: MG Projekt

Dane techniczne projektu

Powierzchnie i wymiary Powierzchnie i wymiary

Powierzchnia użytkowa
Tooltip
Suma powierzchni wszystkich pomieszczeń mieszkalnych, pomniejszona o pow. garażu, kotłowni, strychu, piwnicy. Jest liczona w 100% dla pomieszczeń o wysokości powyżej 2,2 m, w 50% dla pomieszczeń o wys. 2,2-1,4 m i niewliczana dla niższych niż 1,4 m.

88,49 m²

Powierzchnia zabudowy
Tooltip
Powierzchnia zajmowana przez część na- oraz nadziemną budynku liczona, jako rzut pionowy budynku na działkę.

114,29 m²

Powierzchnia całkowita
Tooltip
Całkowita powierzchnia wszystkich kondygnacji budynku łącznie z elementami nośnymi, takimi jak ściany zewnętrzne (z ociepleniem), słupy, tarasy, itp.

114,29 m²

Kubatura brutto
Tooltip
Zazwyczaj jest to suma kubatur (objętości) wszystkich pomieszczeń budynku, liczonych po zewnętrznym obrysie murów (z ociepleniem).

381 m³

Powierzchnia dachu

194,05 m²

Kąt nachylenia dachu
Tooltip
Nachylenie połaci dachu głównego podawane w stopniach. Uwaga! W niektórych projektach występuje więcej niż jedno nachylenie dachu.

30°

Wysokość budynku
Tooltip
Wysokość liczona od części budynku położonej najniżej przy powierzchni terenu do najwyższego punktu dachu (kalenicy) z wyłączeniem kominów.

5,94 m

Szerokość elewacji

14,04 m

Długość elewacji

8,14 m

Min. szerokość działki
Tooltip
Najmniejsza możliwa szerokość działki niezbędna do wybudowania wybranego domu. Składa się z szerokości elewacji domu powiększonej z obu stron o 3 m dla ściany bez otworów drzwiowych/okiennych lub 4 m, dla ściany z otworami.

22,04 m

Min. długość działki
Tooltip
Najmniejsza możliwa długość działki niezbędna do wybudowania wybranego domu. Składa się z długości elewacji domu powiększonej z obu stron o 3 m dla ściany bez otworów drzwiowych/okiennych lub 4 m, dla ściany z otworami.

18,06 m

Energooszczędność Energooszczędność

Oze Czym jest OZE (Odnawialne Źródło Energii)?
Ep
Tooltip
Energia pierwotna określa ilość energii nieodnawialnej potrzebnej w ciągu roku do ogrzewania czy też ogrzania wody użytkowej z uwzględnieniem kosztów produkcji i transportu surowców energetycznych.

68,20 kWh/(m²rok)

Ek
Tooltip
Energia końcowa określa zapotrzebowanie budynku na energię niezbędną do uzyskania założonych parametrów, jak np. temperatura wewnątrz budynku.

63,90 kWh/(m²rok)

Euco
Tooltip
Energia użytkowa potrzebna do ogrzewania i wentylacji. Im parametr jest niższy tym budynek bardziej energooszczędny.

50,30 kWh/(m²rok)

Ogrzewanie główne

Gazowe - szczegóły

Dodatkowo istnieje możliwość zamówienia projektu z

Aneks na paliwo stałe

Powietrzna pompa ciepła

Gruntowa pompa ciepła

Interesuje Cię inne źródło ogrzewania? Wyślij zapytanie lub zadzwoń do doradcy

Wentylacja

Grawitacyjna - szczegóły

Warunki techniczne

Projekt zgody z WT 2021

Technologia i konstrukcja Technologia i konstrukcja

Konstrukcja

Z bali

PROJEKT Z BUDOWĄ Istnieje możliwość zaadaptowania tego projektu do technologii prefabrykowanej/modułowej i budowy nawet w 6 miesięcy ze stałym kosztem budowy

Dowiedz się więcej »
Opis szczegółowy

Fundamenty: betonowe wylewane. Ściany zewnętrzne: bale lite 9 cm + izolacja z wełny mineralnej + szalówka wewnętrzna. Konstrukcja dachu: wiązary drewniane kratownicowe. Sufit nad parterem: podwieszany do wiązarów. Elewacje: bale lite. Pokrycie dachu: blachodachówka lub dachówka. Nachylenie dachu: 30 stopni.

Strop

Wiązary

Reklama
Okna i drzwi tarasowe

Nowoczesne okna PVC i aluminiowe WIŚNIOWSKI – doskonała izolacja, elegancki design i niezrównana trwałość.

Wiśniowski
Sprawdź parametry!
Okna dachowe

Oferujemy bezpłatne konsultacje w zakresie wszystkich rozwiązań VELUX. Wyceny, porady dotyczące doboru okien i rolet zewnętrznych - sprawdź!

Velux
Sprawdź szczegóły
Płytki ceramiczne i gresy

Od małych formatów po wielkoformatowe gresy. Marmur, beton, drewno, kamień, lastryko czy cegiełki zamówisz wygodnie online z szybką dostawą.

Ceramzet
Sprawdź ofertę
Drzwi

Ciepłe drzwi WIŚNIOWSKI z kontrolą dostępu. Szeroka gama wzorów i kolorów.

Wiśniowski
Wybierz najlepsze
Bramy garażowe

Automatyczne bramy garażowe segmentowe i uchylne WIŚNIOWSKI na wymiar i z systemem smart home w standardzie.

Wiśniowski
Sprawdź ofertę!
Armatura i ceramika łazienkowa

Topowi producenci. Baterie łazienkowe, zestawy natynkowe i podtynkowe, umywalki, wanny, miski WC oraz kabiny zamówisz kompleksowo online.

Ceramzet II
Dowiedz się więcej
Rekuperacja

Alnor - kompletny system rekuperacji. Dobierz idealne rozwiązanie dla Twojego domu!

Alnor
Dobierz rekuperator
Gruntowe pompy ciepła

Przeprowadzimy kompletną instalację najbardziej oszczędnego źródła ciepła w Twoim nowym domu - gruntowej pompy ciepła. Od dokumentacji, pozwoleń, po odwierty i instalację.

Geothermal Solutions
Dowiedz się więcej

Gotowe domy modułowe (114)

Zobacz wszystkie
Stan deweloperski nawet w 6 miesięcy Gwarancja stałej ceny
Zdjęcie 1 projektu ExtraBetonowy 2 HPK1018
Gotowy extraBetonowy 2
Dodano!
Dodano!
Pow. użytkowa
88,25 m²
Pokoje
4
502 980 zł 5 699 zł/m²
Zdjęcie 1 projektu Dom szkieletowy Double Family Smart 140 HHT1024
Pow. użytkowa
88,78 m²
Pokoje
4
1 216 900 zł 13 707 zł/m²
Zdjęcie 1 projektu Dom prefabrykowany Parterowy 90C HFX1007
Pow. użytkowa
90,04 m²
Pokoje
4
415 000 zł 4 609 zł/m²
Zdjęcie 1 projektu Dom prefabrykowany Parterowy 90B HFX1006
Pow. użytkowa
90,04 m²
Pokoje
3
415 000 zł 4 609 zł/m²
Zdjęcie 1 projektu Dom keramzytowy Bella 90 HRK1000
Pow. użytkowa
90,52 m²
Pokoje
3
398 520 zł 4 403 zł/m²
Zdjęcie 1 projektu Dom prefabrykowany Parterowy 90D HFX1008
Pow. użytkowa
91,35 m²
Pokoje
3
415 000 zł 4 543 zł/m²
Zdjęcie 1 projektu Dom prefabrykowany P.7 z okapem HPK1015
Pow. użytkowa
91,53 m²
Pokoje
4
542 000 zł 5 922 zł/m²
Zdjęcie 1 projektu Dom prefabrykowany P.7 bez okapu HPK1006
Pow. użytkowa
91,53 m²
Pokoje
4
519 400 zł 5 675 zł/m²

Dodatki do projektu

Dodatki możesz zamówić w koszyku lub telefonicznie u naszego Doradcy.

Czym jest OZE (Odnawialne Źródło Energii)?

Ikona

Bestseller

Kosztorys

600 zł

Ikona

Bestseller

Dodatkowy egzemplarz projektu

650 zł

Ikona

Bestseller

Elektroniczna wersja projektu

600 zł

Ikona

Ogrzewanie podłogowe

550 zł

Ikona

Oze

Aneks na paliwo stałe

550 zł

Ikona

Oze

Powietrzna pompa ciepła

550 zł

Pokaż więcej (8)

Opis projektu domu
Jaskółka

Projekt domu Jaskółka to ciekawa propozycja dla osób posiadających średniej szerokości działkę. Dom posiada typową bryłę, więc jego realizacja jest łatwa. W tym projekcie kalenica skierowana jest równolegle do drogi, co jest istotne ze względu na wymagania określone w warunkach zabudowy. Jest przeznaczony do zabudowy wolnostojącej. Projekt jest idealną propozycją dla osób zainteresowanych domem z dachem kopertowym, dzięki czemu budynek prezentuje są bardzo atrakcyjnie. Projekt Jaskółka to dom parterowy, dzięki czemu poruszanie się po nim jest bardzo komfortowe. Warto zwrócić uwagę na przestronną część dzienną. Przewidziana w projekcie otwarta kuchnia to świetne rozwiązanie dla osób z małymi dziećmi - ich zabawę w salonie rodzice mogą nadzorować nawet podczas przygotowywania posiłków. Strefę dzienną tworzy także przestronny salon z jadalnią, dzięki czemu domownicy mogą wspólnie integrować się w jednym miejscu. Usytuowany w salonie kominek nie tylko świetnie się prezentuje, ale także zapewni przyjemne ciepło w chłodniejsze dni. W projekcie uwzględniono komfortową łazienkę oraz osobną toaletę, co jest szczególnie przydatne przy większej liczbie domowników. Strefa sypialniana składa się z trzech pokoi, co jest doskonałą opcją dla niedużej rodziny. Przestrzeń można wykorzystać także jako pokój dla gości lub gabinet. Oprócz tego, w domu znajduje się również pomieszczenie gospodarcze, które można wykorzystać zgodnie z własnymi potrzebami. Taras jest idealnym miejscem do organizowania rodzinnych spotkań i chwili relaksu. Jego wygląd zewnętrzny uwydatnia cechy charakterystyczne dla stylu dworkowego i idealnie wpisze się w wiejski krajobraz.
Czytaj więcej

Polecani producenci

Prefabrykowane konstrukcje dachowe

tło producenta

WIĄZAR POLSKA

Zobacz więcej

Sprawdź nową generację okien GREENVIEW

tło producenta

FAKRO

Sprawdź nową generację okien GREENVIEW

Styropian, tynki, farby, kleje

tło producenta

Termo Organika

Poznaj super jakość

Okna, drzwi, osłony przeciwsłoneczne

tło producenta

Aluprof

Sprawdź ofertę

Kompletne systemy rekuperacji

tło producenta

Alnor

Dowiedz się więcej

Sprawdź nowy system DACHRYNNA

tło producenta

Galeco

Sprawdź ofertę
Zobacz więcej

Społeczność projektu domu
Jaskółka w budowie

Dołącz do społeczności osób, które budują ten dom lub są zainteresowane jego budową.

  • Oglądaj zdjęcia z budowy
  • Zadawaj pytania
  • Wymieniaj się doświadczeniami

Opinie o projekcie domu Jaskółka

5

Na podstawie 3 recenzji

Wspaniały!
100%
Bardzo dobry
0%
Średni
0%
Słaby
0%
Bardzo słaby
0%

Opinie niezweryfikowane zakupem

Dodaj opinię
Magdalena8750
01.04.2021 r.
Projekt cudowny, po małych przeróbkach indywidualnych. Dom drewniany ma charakter. Polecam! 😊
Agnieszka9531
04.09.2018 r.
Prosty układ, przestronność, elastyczność, łatwość dopsowania pomieszczeń do swoich potrzeb.

Wywiady mieszkańców domu Jaskółka

Zdjęcie profilowe użytkownika Maseł213 Maseł213

Wcześniej wraz z żoną mieszkaliśmy w dużym, piętrowym domu, aczkolwiek z czasem zaczęło nam to nieco przeszkadzać. Ciągłe wchodzenie po schodach nie należy do komfortowych zajęć, a przemieszczanie się pomiędzy sporo oddalonymi od siebie pokojami bywa uciążliwe. Z tego względu postanowiliśmy wybudować nie za duży dom, w którym wszystkie pomieszczenia znajdowałyby się na jednej kondygnacji. Spośród spełniających te kryteria, finalnie zdecydowaliśmy się na realizację projektu domu Jaskółka WAH1178. Spodobała nam się prosta konstrukcja tworzącej go bryły, a przewidziany wewnątrz układ pomieszczeń wydał się nam naprawdę funkcjonalnie przemyślany.Samo postawienie budynku odbyło się szybko i sprawnie, aczkolwiek pozostałe etapy trochę się przedłużyły. Projekt nabyliśmy w kwietniu 2014 r., a inwestycję zakończyliśmy w grudniu 2016 r, jednak z całą pewnością taki dom można zrealizować znacznie szybciej. W naszym przypadku nieco przeciągnęło się to w czasie, gdyż zatrudnieni przez nas wykonawcy wykazywali opieszałość w wykonywaniu prac. Oprócz tego, bardzo zależało nam na sprowadzeniu drewna wysokiej jakości i dosyć długo musieliśmy czekać na dostarczenie interesujących nas materiałów. Przyznam jednak, że nie żałuję - dom buduje się na lata, dlatego warto zainwestować i poczekać na wysokogatunkowe produkty.Dokumentacja techniczna pod względem konstrukcyjnym została bardzo dobrze opracowana. Rysunki projektowe były czytelne i poprawnie sporządzone, jednak w kwestii podanych na stronie rzutów, należy zwrócić uwagę na jedną niejasność. W momencie wykonywania fundamentów zdaliśmy sobie sprawę z faktycznych wymiarów pomieszczeń, z których wynikało iż kuchnia posiada powierzchnię ok. 6m². Na rzutach natomiast ma ona powierzchnię 13 m², co nieco zmyliło nas przy zakupie i uważam, że warto wziąć to pod uwagę.Do postawienia domu użyliśmy litych bali sosnowych 30 cm. Postanowiliśmy zmienić zalecane pokrycie dachu i na więźbie zastosowaliśmy gont bitumiczny, co było świetnym pomysłem. To ciepły materiał o dobrych właściwościach akustycznych, a dodatkowo doskonale pasuje do tego typu budynków w kwestii wizualnej. Uważam, że oszacowany przez architekta kosztorys został poprawnie wyliczony i stosując się do zaleceń projektowych spokojnie można zmieścić się w podanej kwocie. Nasza inwestycja wyniosła nieco więcej ze względu na zwiększenie rozmiarów bali z 9 cm na 30 cm.Rozkład pomieszczeń przewidziany w projekcie domu Jaskółka WAH1178 od początku spełniał nasze oczekiwania, dlatego uznaliśmy że nie będziemy wprowadzać żadnych zmian w układzie ścianek działowych. Postanowiliśmy jedynie poszerzyć cały budynek o 1 m, dzięki czemu salon stał się bardziej przestronny. Oprócz tego wykonaliśmy bezpośrednie przejście z kuchni do pomieszczenia gospodarczego i to właśnie w nim zamontowaliśmy część mebli i kuchennych sprzętów. Sprawdza się to zwłaszcza podczas odwiedzin gości. Gotujące się potrawy czy niepozmywane naczynie znajdują się poza zasięgiem ich wzroku, a z kolei oryginalna kuchnia tworzy niejako reprezentacyjną część strefy dziennej.Innych modyfikacji nie wprowadzaliśmy i w dalszym ciągu nie dostrzegam w nowym domu nic, co by takowych wymagało. Inni Inwestorzy projektu domu Jaskółka WAH1178 mogą ewentualnie rozważyć przeniesienie drzwi od małej toalety do wiatrołapu, gdyż oryginalnie znajdują się one od strony salonu. Opinie na temat tego rozwiązania są różne, część osób (w tym my) nie widzi w tym nic dziwnego, aczkolwiek niektórzy są sceptycznie nastawieni do tego pomysłu. Myślę więc, że jest to po prostu indywidualna kwestia. Układ pomieszczeń w nowym domu w pełni nam odpowiada i jesteśmy z niego zadowoleni. Szczególnie satysfakcjonuje nas widoczna strefowość wnętrza, gdyż salon z jadalnią i kuchnią znajduje się w odrębnej części domu niż sypialnie domowników. Pozdrawiam.

ASYSTENT WYBORU PROJEKTU

Szukasz idealnego projektu? Znajdziemy go dla Ciebie!

Doradca na podstawie Twoich wskazówek przygotuje spersonalizowaną listę projektów

Graficzne opracowanie rzutów poglądowych widocznych na karcie projektu zostało wykonane przez Extradom.pl. Prezentowane przez Extradom.pl wizualizacje wykonane zostały przez autora projektu i należy poczytywać je jedynie za przykład i propozycję wykończenia, wizję architektoniczną autora projektu. Ostateczne wykończenie budynku może nastąpić na wiele sposobów. Szczegółowe rozwiązania zastosowane w oferowanej dokumentacji - w tym również ilość, lokalizacje i wygląd okien, drzwi, kominów - mogą w niewielkim stopniu różnić się od prezentowanej wizualizacji budynku.

Extradom.pl Spółka z ograniczoną odpowiedzialnością z siedzibą przy ul. Jaworskiej 13, 53-612 Wrocław, wpisana do rejestru przedsiębiorców Krajowego Rejestru Sądowego przez Sąd Rejonowy dla Wrocławia-Fabrycznej we Wrocławiu, VI Wydział Gospodarczy Krajowego Rejestru Sądowego do pod numerem KRS 0000648746, numer NIP 895-17-18-333, o kapitale zakładowym 708 150,00 zł uprzejmie informuje, iż poprzez serwis Extradom.pl umożliwia m.in. zapoznanie się przez konsumentów z ofertą handlową Partnerów Extradom.pl, którzy stosują metody budowy domów przy wykorzystaniu różnego rodzaju technologie prefabrykacji bądź modułowe (tzw. „Gotowe domy”).

Extradom.pl nie prowadzi jednakże sprzedaży ani nie oferuje usług polegających na doradztwie finansowym, prawnym ani podatkowym w zakresie inwestycji realizowanych w technologiach tzw. „Gotowych domów”. Informacje prezentowane w serwisie Extradom.pl dotyczące Partnerów Extradom.pl oferujących realizację inwestycji w technologiach „Gotowych domów” lub podobnych mają charakter informacyjny i reklamowy.

Prezentowane w serwisie Extradom.pl informacje dotyczące stosowanych przez Partnerów metod budowy domów w technologii prefabrykacji bądź modułowej pochodzą od Partnerów Extradom.pl.

Extradom.pl sp. z o.o. jedynie umożliwia nawiązanie kontaktu przez Użytkownika z Partnerem Extradom.pl stosującym tego rodzaju technologie budowy domów i nie jest stroną umowy o roboty budowlane zawieranej przez Użytkownika Extradom.pl z Partnerem Extradom.pl.

REKLAMA
Zamknij