👉 Wiosenne okazje + karta allegro 200 zł! 🔥

Koniec oferty za:

00godz.

00min.

00sek.

Sprawdź

Projekt domu Domidea 51 WAC1011

Zapisz Dodano!
Porównaj Dodano!
ikona Pobierz i drukuj

Warstwy

Warstwy

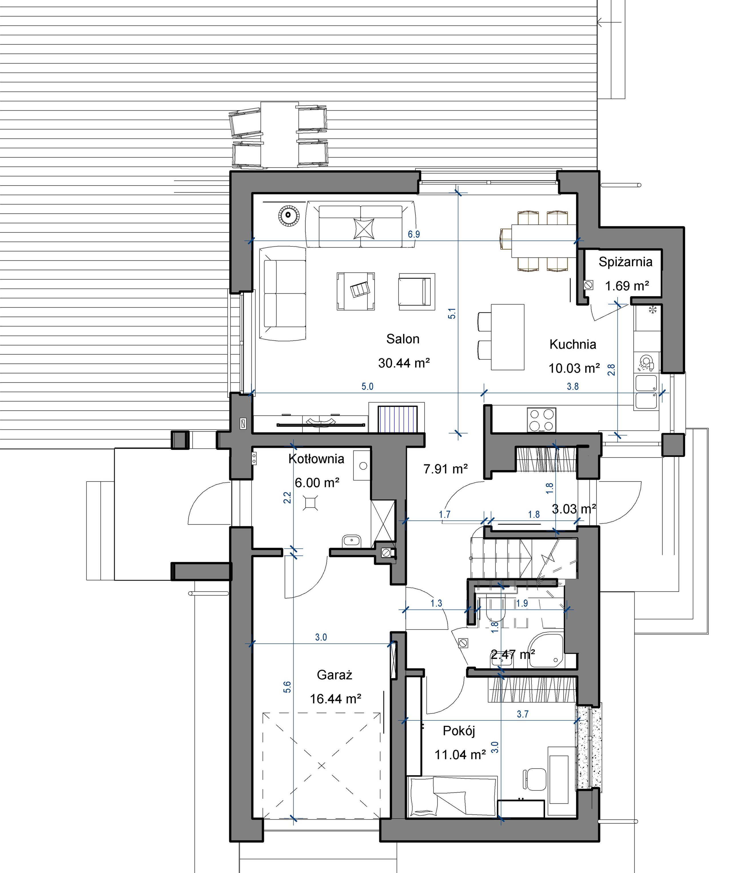
Rzut parteru

Powierzchnia (m²)
Tooltip
Powierzchnia pomieszczenia
to ta, z której faktycznie możesz korzystać – skosy i niskie części poddasza są liczone częściowo lub wcale.
  1. 100% dla wysokości powyżej 2,2 m,
  2. 50% dla wysokości 1,4–2,2 m,
  3. nie liczymy poniżej 1,4 m.

Powierzchnia podłogi
Liczymy po obrysie pomieszczenia, bez względu na jego wysokość/skosy. Jeśli nie ma skosów to powierzchnia podłogi i pomieszczenia jest taka sama.
pomieszczenia i podłogi
podłogi
1. Wiatrołap
3,03
2. Hall
7,91
3. Kuchnia
10,03
4. Spiżarnia
1,69
5. Pokój dzienny
30,44
6. Łazienka
2,47
7. Pokój
11,04
8. Kotłownia
6
9. Garaż jednostanowiskowy
16,44
Razem
89,05
89,05
Powierzchnia (m²)
Tooltip
Powierzchnia pomieszczenia
to ta, z której faktycznie możesz korzystać – skosy i niskie części poddasza są liczone częściowo lub wcale.
  1. 100% dla wysokości powyżej 2,2 m,
  2. 50% dla wysokości 1,4–2,2 m,
  3. nie liczymy poniżej 1,4 m.

Powierzchnia podłogi
Liczymy po obrysie pomieszczenia, bez względu na jego wysokość/skosy. Jeśli nie ma skosów to powierzchnia podłogi i pomieszczenia jest taka sama.
pomieszczenia i podłogi
podłogi
1. Korytarz
7,74
2. Pomieszczenie gospodarcze
1,89
3. Pokój
12,27
4. Pokój + garderoba
16,19
5. Łazienka
3,45
6. Łazienka
4,26
7. Pokój
10,34
8. Pokój
10,08
Razem
66,22
66,22

    Usytuowanie na działce

    Czy ten projekt pasuje na
    Twoją działkę?

    Chętnie to sprawdzimy!

    Dowiedz się:

    • czy zmieści się na niej wybrany przez Ciebie dom
    • jakie parametry musi spełniać dom według miejscowego planu zagospodarowania lub warunków zabudowy (np. kąt nachylenia i typ dachu, liczba kondygnacji itp.
    • jakie inne projekty pasują na Twoją działkę – znajdziemy je dla Ciebie!

Pow. użytkowa

132,99 m²

Pokoje

5

Łazienki i WC

3

Garaż

1

Min. szer. i dł. działki

17,6 x 23,20 m

Kąt dachu

40°

Konstrukcja

Murowana
więcej

Domidea 51 - WAC1011

ikona 132,99 m²
Powierzchnia użytkowa
ikona5
Pokoje (bez salonu)
ikona 3
Łazienki (z toaletami)
ikona 1
Liczba stanowisk garażowych
(z wiatą garażową)
ikona
Konstrukcja: Murowana

Projekt został
wycofany z oferty

W razie pytań prosimy o kontakt
z Centrum Obsługi Klienta
Konsultant
71 715 20 60

pon.-pt. 8-21, sob. 9-17

Parter - 89,05 m²

Parter projektu Domidea 51

Zapytaj, co możesz zmienić

Powierzchnia (m²)
Tooltip
Powierzchnia pomieszczenia
to ta, z której faktycznie możesz korzystać – skosy i niskie części poddasza są liczone częściowo lub wcale.
  1. 100% dla wysokości powyżej 2,2 m,
  2. 50% dla wysokości 1,4–2,2 m,
  3. nie liczymy poniżej 1,4 m.

Powierzchnia podłogi
Liczymy po obrysie pomieszczenia, bez względu na jego wysokość/skosy. Jeśli nie ma skosów to powierzchnia podłogi i pomieszczenia jest taka sama.
pomieszczenia i podłogi
podłogi
1. Wiatrołap
3,03
2. Hall
7,91
3. Kuchnia
10,03
4. Spiżarnia
1,69
5. Pokój dzienny
30,44
6. Łazienka
2,47
7. Pokój
11,04
8. Kotłownia
6
9. Garaż jednostanowiskowy
16,44
Razem
89,05
89,05

Poddasze - 66,22 m²

Poddasze projektu Domidea 51

Zapytaj, co możesz zmienić

Powierzchnia (m²)
Tooltip
Powierzchnia pomieszczenia
to ta, z której faktycznie możesz korzystać – skosy i niskie części poddasza są liczone częściowo lub wcale.
  1. 100% dla wysokości powyżej 2,2 m,
  2. 50% dla wysokości 1,4–2,2 m,
  3. nie liczymy poniżej 1,4 m.

Powierzchnia podłogi
Liczymy po obrysie pomieszczenia, bez względu na jego wysokość/skosy. Jeśli nie ma skosów to powierzchnia podłogi i pomieszczenia jest taka sama.
pomieszczenia i podłogi
podłogi
1. Korytarz
7,74
2. Pomieszczenie gospodarcze
1,89
3. Pokój
12,27
4. Pokój + garderoba
16,19
5. Łazienka
3,45
6. Łazienka
4,26
7. Pokój
10,34
8. Pokój
10,08
Razem
66,22
66,22

Warianty projektu (17)

PROMOCJA
Projekt domu Domidea 58 dG
Domidea 58 dG
Dodano!
Dodano!
119,51 m²
4
3
1

5 850 zł

6 150 zł

Tooltip

Cena regularna

5 850 zł najniższa cena
Tooltip

Najniższa cena z 30 dni
przed obniżką

PROMOCJA
Projekt domu Domidea 60 dG
Domidea 60 dG
Dodano!
Dodano!
125,43 m²
4
3
1

5 604 zł

5 904 zł

Tooltip

Cena regularna

5 604 zł najniższa cena
Tooltip

Najniższa cena z 30 dni
przed obniżką

PROMOCJA
Projekt domu Domidea 58
Domidea 58
Dodano!
Dodano!
104,94 m²
4
2
0

5 481 zł

5 781 zł

Tooltip

Cena regularna

5 481 zł najniższa cena
Tooltip

Najniższa cena z 30 dni
przed obniżką

PROMOCJA
Projekt domu Domidea 50 d40
Domidea 50 d40
Dodano!
Dodano!
116,32 m²
4
3
1

5 604 zł

5 904 zł

Tooltip

Cena regularna

5 604 zł najniższa cena
Tooltip

Najniższa cena z 30 dni
przed obniżką

PROMOCJA
Projekt domu Domidea 68
Domidea 68
Dodano!
Dodano!
91,81 m²
4
2
0

5 358 zł

5 658 zł

Tooltip

Cena regularna

5 358 zł najniższa cena
Tooltip

Najniższa cena z 30 dni
przed obniżką

PROMOCJA
Projekt domu Domidea 50 d40 w4
Domidea 50 d40 w4
Dodano!
Dodano!
126,70 m²
4
3
1

5 604 zł

5 904 zł

Tooltip

Cena regularna

5 604 zł najniższa cena
Tooltip

Najniższa cena z 30 dni
przed obniżką

PROMOCJA
Projekt domu Domidea 50 d40 w2
Domidea 50 d40 w2
Dodano!
Dodano!
122,60 m²
4
3
1

5 604 zł

5 904 zł

Tooltip

Cena regularna

5 604 zł najniższa cena
Tooltip

Najniższa cena z 30 dni
przed obniżką

PROMOCJA
Projekt domu Domidea 64 2G w2
Domidea 64 2G w2
Dodano!
Dodano!
127,95 m²
4
3
2

5 850 zł

6 150 zł

Tooltip

Cena regularna

5 850 zł najniższa cena
Tooltip

Najniższa cena z 30 dni
przed obniżką

PROMOCJA
Projekt domu Domidea 58 - 6 pokojowy
Domidea 58 - 6 pokojowy
Dodano!
Dodano!
106,41 m²
5
2
0

5 481 zł

5 781 zł

Tooltip

Cena regularna

5 481 zł najniższa cena
Tooltip

Najniższa cena z 30 dni
przed obniżką

PROMOCJA
Projekt domu Domidea 58 mG
Domidea 58 mG
Dodano!
Dodano!
96,62 m²
4
2
1

5 481 zł

5 781 zł

Tooltip

Cena regularna

5 481 zł najniższa cena
Tooltip

Najniższa cena z 30 dni
przed obniżką

PROMOCJA
Projekt domu Domidea 58 G
Domidea 58 G
Dodano!
Dodano!
104,48 m²
4
2
1

5 481 zł

5 781 zł

Tooltip

Cena regularna

5 481 zł najniższa cena
Tooltip

Najniższa cena z 30 dni
przed obniżką

PROMOCJA
Projekt domu Domidea 50d40 w4
Domidea 50d40 w4
Dodano!
Dodano!
124,87 m²
4
3
1

5 604 zł

5 904 zł

Tooltip

Cena regularna

5 604 zł najniższa cena
Tooltip

Najniższa cena z 30 dni
przed obniżką

PROMOCJA
Projekt domu Domidea 58 dG w2
Domidea 58 dG w2
Dodano!
Dodano!
119,63 m²
5
2
1

5 850 zł

6 150 zł

Tooltip

Cena regularna

5 850 zł najniższa cena
Tooltip

Najniższa cena z 30 dni
przed obniżką

PROMOCJA
Projekt domu Domidea 60 G
Domidea 60 G
Dodano!
Dodano!
118,28 m²
4
2
1

5 604 zł

5 904 zł

Tooltip

Cena regularna

5 604 zł najniższa cena
Tooltip

Najniższa cena z 30 dni
przed obniżką

PROMOCJA
Projekt domu Domidea 64 2G
Domidea 64 2G
Dodano!
Dodano!
127,49 m²
5
2
2

5 850 zł

6 150 zł

Tooltip

Cena regularna

5 850 zł najniższa cena
Tooltip

Najniższa cena z 30 dni
przed obniżką

PROMOCJA
Projekt domu Domidea 50 d40 - 6 pokojowy
Domidea 50 d40 - 6 pokojowy
Dodano!
Dodano!
115,94 m²
5
2
1

5 604 zł

5 904 zł

Tooltip

Cena regularna

5 604 zł najniższa cena
Tooltip

Najniższa cena z 30 dni
przed obniżką

PROMOCJA
Projekt domu Domidea 65 2G
Domidea 65 2G
Dodano!
Dodano!
118,39 m²
4
3
2

5 850 zł

6 150 zł

Tooltip

Cena regularna

5 850 zł najniższa cena
Tooltip

Najniższa cena z 30 dni
przed obniżką

Podobne projekty (1971)

Zobacz wszystkie
NIŻSZA CENA 🔥
Zdjęcie 1 projektu APS 184 NEW LUA1393
APS 184 NEW
Dodano!
Dodano!
132,20 m²
4
2
1

4 149 zł

4 699 zł

Tooltip

Cena regularna

4 149 zł najniższa cena
Tooltip

Najniższa cena z 30 dni
przed obniżką

NIŻSZA CENA 🔥
Zdjęcie 1 projektu Vincent 4 WOF1271
Vincent 4
Dodano!
Dodano!
120 m²
4
2
1

4 899 zł

5 099 zł

Tooltip

Cena regularna

4 899 zł najniższa cena
Tooltip

Najniższa cena z 30 dni
przed obniżką

NIŻSZA CENA 🔥
Zdjęcie 1 projektu APS 289 LUA1386
APS 289
Dodano!
Dodano!
124,10 m²
4
2
1

4 699 zł

5 399 zł

Tooltip

Cena regularna

4 699 zł najniższa cena
Tooltip

Najniższa cena z 30 dni
przed obniżką

NIŻSZA CENA 🔥
Zdjęcie 1 projektu Oberon 2 WOE1206
Oberon 2
Dodano!
Dodano!
135,55 m²
5
2
1

4 099 zł

4 499 zł

Tooltip

Cena regularna

4 199 zł najniższa cena
Tooltip

Najniższa cena z 30 dni
przed obniżką

NIŻSZA CENA 🔥
Zdjęcie 1 projektu Narcyz 4 WAH2029
Narcyz 4
Dodano!
Dodano!
125,58 m²
4
3
1

5 832 zł

7 290 zł

Tooltip

Cena regularna

5 832 zł najniższa cena
Tooltip

Najniższa cena z 30 dni
przed obniżką

Zdjęcie 1 projektu APS 184 NEW ECO LUA1677
APS 184 NEW ECO
Dodano!
Dodano!
132,20 m²
4
2
1

4 899 zł

NIŻSZA CENA 🔥
Zdjęcie 1 projektu Jagoda Rex (1918) KRD3060
Jagoda Rex (1918)
Dodano!
Dodano!
127,70 m²
4
2
1

4 340 zł

4 690 zł

Tooltip

Cena regularna

4 310 zł najniższa cena
Tooltip

Najniższa cena z 30 dni
przed obniżką

Zdjęcie 1 projektu APS 149 NEW ECO LUA1625
APS 149 NEW ECO
Dodano!
Dodano!
135,50 m²
4
2
1

4 699 zł

Elewacje

Frontowa
Tylna
Lewa
Prawa

Przekroje

Przekrój pionowy

Usytuowanie na działce

Czy ten projekt pasuje na
Twoją działkę?

Chętnie to sprawdzimy!

Czy ten projekt pasuje na
Twoją działkę?

Chętnie to sprawdzimy!

Dowiedz się:

  • czy zmieści się na niej wybrany przez Ciebie dom
  • jakie parametry musi spełniać dom według miejscowego planu zagospodarowania lub warunków zabudowy (np. kąt nachylenia i typ dachu, liczba kondygnacji itp.
  • jakie inne projekty pasują na Twoją działkę – znajdziemy je dla Ciebie!
Autor: Domidea SKA

Dane techniczne projektu

Powierzchnie i wymiary Powierzchnie i wymiary

Powierzchnia użytkowa
Tooltip
Suma powierzchni wszystkich pomieszczeń mieszkalnych, pomniejszona o pow. garażu, kotłowni, strychu, piwnicy. Jest liczona w 100% dla pomieszczeń o wysokości powyżej 2,2 m, w 50% dla pomieszczeń o wys. 2,2-1,4 m i niewliczana dla niższych niż 1,4 m.

132,99 m²

Powierzchnia zabudowy
Tooltip
Powierzchnia zajmowana przez część na- oraz nadziemną budynku liczona, jako rzut pionowy budynku na działkę.

118,49 m²

Powierzchnia dachu

189,72 m²

Kąt nachylenia dachu
Tooltip
Nachylenie połaci dachu głównego podawane w stopniach. Uwaga! W niektórych projektach występuje więcej niż jedno nachylenie dachu.

40°

Wysokość budynku
Tooltip
Wysokość liczona od części budynku położonej najniżej przy powierzchni terenu do najwyższego punktu dachu (kalenicy) z wyłączeniem kominów.

7,80 m

Min. szerokość działki
Tooltip
Najmniejsza możliwa szerokość działki niezbędna do wybudowania wybranego domu. Składa się z szerokości elewacji domu powiększonej z obu stron o 3 m dla ściany bez otworów drzwiowych/okiennych lub 4 m, dla ściany z otworami.

17,60 m

Min. długość działki
Tooltip
Najmniejsza możliwa długość działki niezbędna do wybudowania wybranego domu. Składa się z długości elewacji domu powiększonej z obu stron o 3 m dla ściany bez otworów drzwiowych/okiennych lub 4 m, dla ściany z otworami.

23,20 m

Energooszczędność Energooszczędność

Oze Czym jest OZE (Odnawialne Źródło Energii)?
Ogrzewanie główne

Gazowe lub paliwo stałe (OZE) - do wyboru na etapie zamówienia

Interesuje Cię inne źródło ogrzewania? Wyślij zapytanie lub zadzwoń do doradcy

Wentylacja

Grawitacyjna - szczegóły

Warunki techniczne

Projekt zgody z WT 2021

Technologia i konstrukcja Technologia i konstrukcja

Konstrukcja

Murowana

Opis szczegółowy

Ściany zewnętrzne tradycyjne murowane dwuwarstwowe – pustak ceramiczny 25cm i styropian. Strop gęstożebrowy. Schody monolityczne. Dach o konstrukcji drewnianej z pokryciem z dachówki ceramicznej, cementowej lub blachodachówki.

Strop

Gęstożebrowy

Reklama
Okna i drzwi tarasowe

Nowoczesne okna PVC i aluminiowe WIŚNIOWSKI – doskonała izolacja, elegancki design i niezrównana trwałość.

Wiśniowski
Sprawdź parametry!
Okna dachowe

Oferujemy bezpłatne konsultacje w zakresie wszystkich rozwiązań VELUX. Wyceny, porady dotyczące doboru okien i rolet zewnętrznych - sprawdź!

Velux
Sprawdź szczegóły
Płytki ceramiczne i gresy

Od małych formatów po wielkoformatowe gresy. Marmur, beton, drewno, kamień, lastryko czy cegiełki zamówisz wygodnie online z szybką dostawą.

Ceramzet
Sprawdź ofertę
Elewacja

Kup przez internet wszystkie materiały potrzebne do wykonania elewacji: styropian, płyty PIR, XPS, kleje, tynki. Najlepsze marki w super cenach z dostawą pod dom.

Hurtownia styropianu
Sprawdź ofertę!
Drzwi

Ciepłe drzwi WIŚNIOWSKI z kontrolą dostępu. Szeroka gama wzorów i kolorów.

Wiśniowski
Wybierz najlepsze
Bramy garażowe

Automatyczne bramy garażowe segmentowe i uchylne WIŚNIOWSKI na wymiar i z systemem smart home w standardzie.

Wiśniowski
Sprawdź ofertę!
Armatura i ceramika łazienkowa

Topowi producenci. Baterie łazienkowe, zestawy natynkowe i podtynkowe, umywalki, wanny, miski WC oraz kabiny zamówisz kompleksowo online.

Ceramzet II
Dowiedz się więcej
Rekuperacja

Alnor - kompletny system rekuperacji. Dobierz idealne rozwiązanie dla Twojego domu!

Alnor
Dobierz rekuperator
Dach

Producent stalowych pokryć dachowych i systemów elewacyjnych. Precyzja wykonania, trwałość na lata i szybki montaż doceniany przez dekarzy. Postaw na solidny dach Budmat.

Budmat
Sprawdź ofertę
Ogrodzenie

Nowoczesne stalowe ogrodzenia Budmat - estetyka, bezpieczeństwo i trwałość na lata. Systemowe rozwiązania na wymiar, dopasowane do każdego domu.

Budmat
Sprawdź ofertę

Gotowe domy - najszybszy sposób na dom (115)

Zobacz wszystkie
  • Stan deweloperski nawet w 6 miesięcy
  • Gwarancja stałej ceny
Skonfiguruj dom
Zdjęcie 1 projektu Bergen 130 HUS1002
130,40 m²
4
Stan deweloperski brutto
499 000 zł 3 827 zł/m²
Zdjęcie 1 projektu Dom prefabrykowany Piętrowy 130C HFX1023
132 m²
4
Stan deweloperski brutto
575 000 zł 4 356 zł/m²
Zdjęcie 1 projektu Dom prefabrykowany Piętrowy 130B HFX1022
131,60 m²
5
Stan deweloperski brutto
575 000 zł 4 369 zł/m²
Zdjęcie 1 projektu Dom prefabrykowany Piętrowy 130A HFX1021
130,40 m²
4
Stan deweloperski brutto
575 000 zł 4 410 zł/m²
Zdjęcie 1 projektu Dom prefabrykowany DEX136 HDX1002
136 m²
4
Stan deweloperski brutto
895 700 zł 6 586 zł/m²
Zdjęcie 1 projektu Dom prefabrykowany P.5 HPK1004
138,67 m²
5
Stan deweloperski brutto
787 200 zł 5 677 zł/m²
Zdjęcie 1 projektu Dom prefabrykowany P.1 z okapem HPK1000
139,44 m²
3
Stan deweloperski brutto
734 000 zł 5 264 zł/m²
Zdjęcie 1 projektu Dom prefabrykowany P.1 bez okapu HPK1012
139,44 m²
3
Stan deweloperski brutto
712 400 zł 5 109 zł/m²

Opis projektu domu
Domidea 51

Budynek Domidea 51 jest alternatywą popularnego projektu Domidea 50. W odróżnieniu od podstawowej wersji projekt ma więcej pokoi, większą powierzchnię. Projekt domu Domidea 51 odpowiedni do zrealizowania na średniej szerokości działkę. Dom cechuje się typową bryłą, więc jego realizacja nie pochłonie zbyt wielu środków finansowych. Projekt należy do kategorii domów z kalenicą usytuowaną prostopadle do drogi, co jest bardzo istotne, gdy wymagają tego warunki zabudowy. Kierowany jest do Inwestorów posiadających działkę pozwalającą na realizację projektu w zabudowie wolnostojącej. W projekcie zaproponowano garaż jednostanowiskowy w bryle budynku. Jest to również ciekawa propozycja dla osób szukających domu z dachem dwuspadowym, dzięki któremu budynek posiada ponadczasowy wygląd. Projekt Domidea 51 to dom parterowy z poddaszem użytkowym, dzięki czemu możemy cieszyć się sporym metrażem nawet na stosunkowo niedużej działce. Autor projektu przewidział w nim ciekawie prezentującą się strefę dzienną. Tworzy ją między innymi funkcjonalna kuchnia, która zachwyci każdego Inwestora. Zwolenników praktycznych rozwiązań niewątpliwie ucieszy fakt, iż przewidziano także miejsce na spiżarkę. W salonie znajduje się nastrojowy kominek dający przyjemne ciepło i nadający wnętrzu przyjemnej atmosfery. Projekt uwzględnia jedną łazienkę na parterze i dwie na poddaszu. Pięć sypialni doskonale sprawdzi się w przypadku 5-7 osobowej rodziny. Przestrzeń można wykorzystać także jako pokój dla gości lub gabinet. Szczególnie ciekawym rozwiązaniem jest zlokalizowana w sypialni garderoba, która z pewnością zadowoli osoby ceniące sobie ład i dobrą organizację. Taras przy domu sprzyja spędzaniu czasu na świeżym powietrzu. Budynek został zaprojektowany w technologii murowanej. Jego wygląd nawiązuje do stylu tradycyjnego, co jest idealnym rozwiązaniem dla osób ceniących klasykę i prostotę.
Czytaj więcej

Informacje dodatkowe

Uwaga! Powierzchnia użytkowa podana w dokumentacji projektowej może być mniejsza o ok. 3-4 mkw od podanej na stronie. Jest to związane wyłącznie ze zmianą sposobu liczenia pow. użytkowej. Wymiary budynku i jego forma nie ulegną zmianie. Zmiana dotyczy projektów dostosowanych do nowej formy dokumentacji 3+.

Czytaj więcej

Polecani producenci

Kompletne systemy rekuperacji

tło producenta

Alnor

Dowiedz się więcej

Prefabrykowane konstrukcje dachowe

tło producenta

WIĄZAR POLSKA

Zobacz więcej

Sprawdź nową generację okien GREENVIEW

tło producenta

FAKRO

Sprawdź nową generację okien GREENVIEW

Styropian, tynki, farby, kleje

tło producenta

Termo Organika

Poznaj super jakość

Okna, drzwi, osłony przeciwsłoneczne

tło producenta

Aluprof

Sprawdź ofertę
Zobacz więcej

Społeczność projektu domu
Domidea 51 w budowie

Dołącz do społeczności osób, które budują ten dom lub są zainteresowane jego budową.

  • Oglądaj zdjęcia z budowy
  • Zadawaj pytania
  • Wymieniaj się doświadczeniami

Opinie o projekcie domu Domidea 51

Ocena

Ten projekt nie ma jeszcze opinii, bądź pierwszy!

Dodaj opinię

ASYSTENT WYBORU PROJEKTU

Szukasz idealnego projektu? Znajdziemy go dla Ciebie!

Doradca na podstawie Twoich wskazówek przygotuje spersonalizowaną listę projektów

Graficzne opracowanie rzutów poglądowych widocznych na karcie projektu zostało wykonane przez Extradom.pl. Prezentowane przez Extradom.pl wizualizacje wykonane zostały przez autora projektu i należy poczytywać je jedynie za przykład i propozycję wykończenia, wizję architektoniczną autora projektu. Ostateczne wykończenie budynku może nastąpić na wiele sposobów. Szczegółowe rozwiązania zastosowane w oferowanej dokumentacji - w tym również ilość, lokalizacje i wygląd okien, drzwi, kominów - mogą w niewielkim stopniu różnić się od prezentowanej wizualizacji budynku.

REKLAMA
Zamknij