Projekty nawet 500 zł taniej ❄️

Koniec oferty za:

00godz.

00min.

00sek.

Sprawdź

Projekt domu Dom przy Sokolej KRK1080

Dodano!
Dodano!

Warstwy

Warstwy

Rzut parteru

Powierzchnia (m²)
Tooltip
Powierzchnia pomieszczenia
to ta, z której faktycznie możesz korzystać – skosy i niskie części poddasza są liczone częściowo lub wcale.
  1. 100% dla wysokości powyżej 2,2 m,
  2. 50% dla wysokości 1,4–2,2 m,
  3. nie liczymy poniżej 1,4 m.

Powierzchnia podłogi
Liczymy po obrysie pomieszczenia, bez względu na jego wysokość/skosy. Jeśli nie ma skosów to powierzchnia podłogi i pomieszczenia jest taka sama.
pomieszczenia i podłogi
podłogi
1. Wiatrołap
6,20
2. Hall
10,80
3. Pokój
10
4. Łazienka
4,80
5. Pokój dzienny
30,30
6. Kuchnia
10
Razem
72,10
72,10
Powierzchnia (m²)
Tooltip
Powierzchnia pomieszczenia
to ta, z której faktycznie możesz korzystać – skosy i niskie części poddasza są liczone częściowo lub wcale.
  1. 100% dla wysokości powyżej 2,2 m,
  2. 50% dla wysokości 1,4–2,2 m,
  3. nie liczymy poniżej 1,4 m.

Powierzchnia podłogi
Liczymy po obrysie pomieszczenia, bez względu na jego wysokość/skosy. Jeśli nie ma skosów to powierzchnia podłogi i pomieszczenia jest taka sama.
pomieszczenia
podłogi
1. Korytarz + schody
11,50
11,50
2. Pokój
12,10
15,10
3. Pokój
11,80
14,80
4. Łazienka
8,20
8,20
5. Pokój
21,40
26,70
6. Garderoba
3,80
5,20
Razem
68,80
81,50

    Usytuowanie na działce

    Czy ten projekt pasuje na
    Twoją działkę?

    Chętnie to sprawdzimy!

    Dowiedz się:

    • czy zmieści się na niej wybrany przez Ciebie dom
    • jakie parametry musi spełniać dom według miejscowego planu zagospodarowania lub warunków zabudowy (np. kąt nachylenia i typ dachu, liczba kondygnacji itp.
    • jakie inne projekty pasują na Twoją działkę – znajdziemy je dla Ciebie!

Pow. użytkowa

140,90 m²

Pokoje

4

Łazienki i WC

2

Garaż

0

Min. szer. i dł. działki

13,9 x 22,50 m

Kąt dachu

40°

Konstrukcja

Murowana
więcej

Dom przy Sokolej - KRK1080

ikona 140,90 m²
Powierzchnia użytkowa
ikona4
Pokoje (bez salonu)
ikona 2
Łazienki (z toaletami)
ikona 0
Liczba stanowisk garażowych
(z wiatą garażową)
ikona
Konstrukcja: Murowana

Projekt został
wycofany z oferty

W razie pytań prosimy o kontakt
z Centrum Obsługi Klienta
Konsultant Masz pytania?
Zadzwoń
71 715 20 60

pon.-pt. 8-21, sob. 9-17

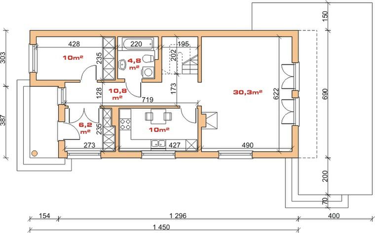
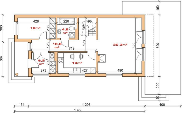
Parter - 72,10 m²

Parter projektu Dom przy Sokolej

Zapytaj, co możesz zmienić

Powierzchnia (m²)
Tooltip
Powierzchnia pomieszczenia
to ta, z której faktycznie możesz korzystać – skosy i niskie części poddasza są liczone częściowo lub wcale.
  1. 100% dla wysokości powyżej 2,2 m,
  2. 50% dla wysokości 1,4–2,2 m,
  3. nie liczymy poniżej 1,4 m.

Powierzchnia podłogi
Liczymy po obrysie pomieszczenia, bez względu na jego wysokość/skosy. Jeśli nie ma skosów to powierzchnia podłogi i pomieszczenia jest taka sama.
pomieszczenia i podłogi
podłogi
1. Wiatrołap
6,20
2. Hall
10,80
3. Pokój
10
4. Łazienka
4,80
5. Pokój dzienny
30,30
6. Kuchnia
10
Razem
72,10
72,10

Poddasze - 68,80 m²

Poddasze projektu Dom przy Sokolej

Zapytaj, co możesz zmienić

Powierzchnia (m²)
Tooltip
Powierzchnia pomieszczenia
to ta, z której faktycznie możesz korzystać – skosy i niskie części poddasza są liczone częściowo lub wcale.
  1. 100% dla wysokości powyżej 2,2 m,
  2. 50% dla wysokości 1,4–2,2 m,
  3. nie liczymy poniżej 1,4 m.

Powierzchnia podłogi
Liczymy po obrysie pomieszczenia, bez względu na jego wysokość/skosy. Jeśli nie ma skosów to powierzchnia podłogi i pomieszczenia jest taka sama.
pomieszczenia
podłogi
1. Korytarz + schody
11,50
11,50
2. Pokój
12,10
15,10
3. Pokój
11,80
14,80
4. Łazienka
8,20
8,20
5. Pokój
21,40
26,70
6. Garderoba
3,80
5,20
Razem
68,80
81,50

Podobne projekty (5136)

Zobacz wszystkie
Zdjęcie 1 projektu Nasza Stodoła S powiększona KRY1004
119,69 m²
4
3
1

5 500 zł

NIŻSZA CENA❄️
Nowość
Zdjęcie 1 projektu Stodoła Family KNT1012
Stodoła Family
Dodano!
Dodano!
132,70 m²
4
2
0

5 350 zł

5 800 zł

Tooltip

Cena regularna

5 000 zł najniższa cena
Tooltip

Najniższa cena z 30 dni
przed obniżką

NIŻSZA CENA❄️
Zdjęcie 1 projektu Lungo 3 WOF1131
Lungo 3
Dodano!
Dodano!
129,44 m²
4
2
0

3 399 zł

3 599 zł

Tooltip

Cena regularna

3 299 zł najniższa cena
Tooltip

Najniższa cena z 30 dni
przed obniżką

NIŻSZA CENA❄️
Zdjęcie 1 projektu Lajkonik (1565) KRD2714
Lajkonik (1565)
Dodano!
Dodano!
150,80 m²
5
2
0

4 540 zł

4 890 zł

Tooltip

Cena regularna

4 340 zł najniższa cena
Tooltip

Najniższa cena z 30 dni
przed obniżką

Nowość
Zdjęcie 1 projektu Krajobrazy 99 WRN1579
Krajobrazy 99
Dodano!
Dodano!
128,70 m²
4
2
0

4 195 zł

NIŻSZA CENA❄️
Zdjęcie 1 projektu Dom przy Głogowej 3 KRK1218
Dom przy Głogowej 3
Dodano!
Dodano!
118,51 m²
4
2
1

3 290 zł

3 790 zł

Tooltip

Cena regularna

3 190 zł najniższa cena
Tooltip

Najniższa cena z 30 dni
przed obniżką

NIŻSZA CENA❄️
Zdjęcie 1 projektu HomeKoncept 66 KRX1106
HomeKoncept 66
Dodano!
Dodano!
121,35 m²
4
3
0

5 390 zł

5 890 zł

Tooltip

Cena regularna

5 006 zł najniższa cena
Tooltip

Najniższa cena z 30 dni
przed obniżką

NIŻSZA CENA❄️
Zdjęcie 1 projektu BW-53 wariant 1 JGC1185
BW-53 wariant 1
Dodano!
Dodano!
114,20 m²
4
2
1

4 230 zł

4 330 zł

Tooltip

Cena regularna

4 130 zł najniższa cena
Tooltip

Najniższa cena z 30 dni
przed obniżką

Elewacje

Frontowa
Tylna
Lewa
Prawa

Przekroje

Przekrój pionowy

Usytuowanie na działce

Czy ten projekt pasuje na
Twoją działkę?

Chętnie to sprawdzimy!

Czy ten projekt pasuje na
Twoją działkę?

Chętnie to sprawdzimy!

Dowiedz się:

  • czy zmieści się na niej wybrany przez Ciebie dom
  • jakie parametry musi spełniać dom według miejscowego planu zagospodarowania lub warunków zabudowy (np. kąt nachylenia i typ dachu, liczba kondygnacji itp.
  • jakie inne projekty pasują na Twoją działkę – znajdziemy je dla Ciebie!
Autor: GALERIADOMOW.PL

Dane techniczne projektu

Powierzchnie i wymiary Powierzchnie i wymiary

Powierzchnia użytkowa
Tooltip
Suma powierzchni wszystkich pomieszczeń mieszkalnych, pomniejszona o pow. garażu, kotłowni, strychu, piwnicy. Jest liczona w 100% dla pomieszczeń o wysokości powyżej 2,2 m, w 50% dla pomieszczeń o wys. 2,2-1,4 m i niewliczana dla niższych niż 1,4 m.

140,90 m²

Powierzchnia zabudowy
Tooltip
Powierzchnia zajmowana przez część na- oraz nadziemną budynku liczona, jako rzut pionowy budynku na działkę.

100,10 m²

Kubatura brutto
Tooltip
Zazwyczaj jest to suma kubatur (objętości) wszystkich pomieszczeń budynku, liczonych po zewnętrznym obrysie murów (z ociepleniem).

597 m³

Powierzchnia dachu

194 m²

Kąt nachylenia dachu
Tooltip
Nachylenie połaci dachu głównego podawane w stopniach. Uwaga! W niektórych projektach występuje więcej niż jedno nachylenie dachu.

40°

Wysokość budynku
Tooltip
Wysokość liczona od części budynku położonej najniżej przy powierzchni terenu do najwyższego punktu dachu (kalenicy) z wyłączeniem kominów.

7,90 m

Min. szerokość działki
Tooltip
Najmniejsza możliwa szerokość działki niezbędna do wybudowania wybranego domu. Składa się z szerokości elewacji domu powiększonej z obu stron o 3 m dla ściany bez otworów drzwiowych/okiennych lub 4 m, dla ściany z otworami.

13,90 m

Min. długość działki
Tooltip
Najmniejsza możliwa długość działki niezbędna do wybudowania wybranego domu. Składa się z długości elewacji domu powiększonej z obu stron o 3 m dla ściany bez otworów drzwiowych/okiennych lub 4 m, dla ściany z otworami.

22,50 m

Energooszczędność Energooszczędność

Oze Czym jest OZE (Odnawialne Źródło Energii)?
Warunki techniczne

Projekt zgody z WT 2021

Technologia i konstrukcja Technologia i konstrukcja

Konstrukcja

Murowana

Opis szczegółowy

Ściany zewnętrzne: pustak 19 cm, styropian 15 cm. Ściany nośne: pustak 19 cm. Strop: monolityczny żelbetowy. Dach: kąt nachylenia 40°, pokrycie - dachówka ceramiczna lub betonowa.

Strop

Żelbetowy

Reklama
Okna i drzwi tarasowe

Nowoczesne okna PVC i aluminiowe WIŚNIOWSKI – doskonała izolacja, elegancki design i niezrównana trwałość.

Wiśniowski
Sprawdź parametry!
Okna dachowe

Oferujemy bezpłatne konsultacje w zakresie wszystkich rozwiązań VELUX. Wyceny, porady dotyczące doboru okien i rolet zewnętrznych - sprawdź!

Velux
Sprawdź szczegóły
Płytki ceramiczne i gresy

Od małych formatów po wielkoformatowe gresy. Marmur, beton, drewno, kamień, lastryko czy cegiełki zamówisz wygodnie online z szybką dostawą.

Ceramzet
Sprawdź ofertę
Drzwi

Ciepłe drzwi WIŚNIOWSKI z kontrolą dostępu. Szeroka gama wzorów i kolorów.

Wiśniowski
Wybierz najlepsze
Bramy garażowe

Automatyczne bramy garażowe segmentowe i uchylne WIŚNIOWSKI na wymiar i z systemem smart home w standardzie.

Wiśniowski
Sprawdź ofertę!
Armatura i ceramika łazienkowa

Topowi producenci. Baterie łazienkowe, zestawy natynkowe i podtynkowe, umywalki, wanny, miski WC oraz kabiny zamówisz kompleksowo online.

Ceramzet II
Dowiedz się więcej
Rekuperacja

Alnor - kompletny system rekuperacji. Dobierz idealne rozwiązanie dla Twojego domu!

Alnor
Dobierz rekuperator
Gruntowe pompy ciepła

Przeprowadzimy kompletną instalację najbardziej oszczędnego źródła ciepła w Twoim nowym domu - gruntowej pompy ciepła. Od dokumentacji, pozwoleń, po odwierty i instalację.

Geothermal Solutions
Dowiedz się więcej

Gotowe domy modułowe (114)

Zobacz wszystkie
Stan deweloperski nawet w 6 miesięcy Gwarancja stałej ceny
Zdjęcie 1 projektu Dom prefabrykowany P.1 z okapem HPK1000
Pow. użytkowa
139,44 m²
Pokoje
3
721 000 zł 5 171 zł/m²
Zdjęcie 1 projektu Dom prefabrykowany P.1 bez okapu HPK1012
Pow. użytkowa
139,44 m²
Pokoje
3
699 800 zł 5 019 zł/m²
Zdjęcie 1 projektu Dom prefabrykowany P.5 HPK1004
Pow. użytkowa
138,67 m²
Pokoje
5
772 700 zł 5 572 zł/m²
Zdjęcie 1 projektu Dom szkieletowy Open Sky 195 HHT1029
Pow. użytkowa
145,04 m²
Pokoje
4
940 300 zł 6 483 zł/m²
Zdjęcie 1 projektu Dom prefabrykowany DEX136 HDX1002
Pow. użytkowa
136 m²
Pokoje
4
845 000 zł 6 213 zł/m²
Zdjęcie 1 projektu Dom prefabrykowany Piętrowy 130C HFX1023
Pow. użytkowa
132 m²
Pokoje
4
539 000 zł 4 083 zł/m²
Zdjęcie 1 projektu Dom prefabrykowany Piętrowy 130B HFX1022
Pow. użytkowa
131,60 m²
Pokoje
5
539 000 zł 4 096 zł/m²
Zdjęcie 1 projektu Dom prefabrykowany Stodoła 150B HFX1025
Pow. użytkowa
151,30 m²
Pokoje
4
589 000 zł 3 893 zł/m²

Opis projektu domu
Dom przy Sokolej

Projekt Dom przy Sokolej jest idealnym wyborem dla wszystkich Inwestorów ceniących przestronność wnętrza, którzy ze względu na wymiary działki nie mogą pozwolić sobie na realizację budynku o rozległej bryle. Projektant zadbał o to, aby dom zmieścił się nawet na bardzo wąskiej działce, a dzięki temu iż poddasze zostało w pełni użytkowo zagospodarowanie, jego metraż jest idealny nawet dla 4-5 osobowej rodziny. Dodatkowo, za sprawą braku przeszkleń na jednej z bocznych ścian, można usytuować go blisko granicy z sąsiadami nie naruszając przy tym przepisów budowlanych. Pozostałe przeszklenia zostały rozmieszczone w taki sposób, by zapewnić dostateczną ilość słońca w każdym z pomieszczeń. Klasyczny wygląd sprawia, że dom doskonale wkomponuje się zarówno w miejski jak i wiejski krajobraz. Dwuspadowy dach zapewnia niskie koszty jego pokrycia, aczkolwiek nie zapomniano w nim o ozdobnych lukarnach nadających konstrukcji wyjątkowego uroku. Istotnym elementem zewnętrznym jest również główne wejście. Zostało ono w całości zadaszone, dzięki czemu od razu po wyjściu z domu nie jesteśmy narażeni na złe warunki pogodowe. Uwzględniony wewnątrz układ pomieszczeń w szczególności zadowoli zwolenników tradycyjnych rozwiązań. W wiatrołapie przewidziano miejsce na wstawienie dużej szafy wnękowej, zaś na przeciwko znajduje się sporych rozmiarów kotłownia - idealna dla chcących ogrzewać dom paliwem stałym. W projekcie Dom przy Sokolej salon i kuchnię tworzą dwa osobne pomieszczenia. Dodatkowo, dzięki zamkniętej kuchni zapachy gotowanych potraw nie przedostają się do części wypoczynkowej. Warto również zwrócić uwagę na duże rozmiary salonu pozwalające na wydzielenie w nim strefy jadalnianej. W pełni funkcjonalna łazienka znajduje się na zarówno na parterze jak i poddaszu, co jest szczególnie istotne w przypadku większej rodziny. Oprócz łazienki, na piętrze znajdziemy również trzy przestronne pokoje oraz praktyczną garderobę, do której wejście w ramach adaptacji można wykonać od strony sypialni. Przestronny hall na górze zapewnia wygodną komunikację pomiędzy pomieszczeniami. Dom zaprojektowano w technologi murowanej.
Czytaj więcej

Informacje dodatkowe

Projekt na etapie adaptacji należy dostosować do nowych przepisów.

Czytaj więcej

Polecani producenci

Prefabrykowane konstrukcje dachowe

tło producenta

WIĄZAR POLSKA

Zobacz więcej

Sprawdź nową generację okien GREENVIEW

tło producenta

FAKRO

Sprawdź nową generację okien GREENVIEW

Styropian, tynki, farby, kleje

tło producenta

Termo Organika

Poznaj super jakość

Okna, drzwi, osłony przeciwsłoneczne

tło producenta

Aluprof

Sprawdź ofertę

Kompletne systemy rekuperacji

tło producenta

Alnor

Dowiedz się więcej

Sprawdź nowy system DACHRYNNA

tło producenta

Galeco

Sprawdź ofertę
Zobacz więcej

Społeczność projektu domu
Dom przy Sokolej w budowie

Dołącz do społeczności osób, które budują ten dom lub są zainteresowane jego budową.

  • Oglądaj zdjęcia z budowy
  • Zadawaj pytania
  • Wymieniaj się doświadczeniami

Opinie o projekcie domu Dom przy Sokolej

5

Na podstawie 2 recenzji

Wspaniały!
100%
Bardzo dobry
0%
Średni
0%
Słaby
0%
Bardzo słaby
0%

Opinie niezweryfikowane zakupem

Dodaj opinię
lukasz95
19.02.2021 r.
Polecam :)

Wywiady mieszkańców domu Dom przy Sokolej

Zdjęcie profilowe użytkownika pawelpiotr pawelpiotr

Wybraliśmy projekt domu Dom przy Sokolej KRK1080, ponieważ odpowiadał nam układ pomieszczeń na poddaszu i na parterze. Ograniczała nas również działka ponieważ dom musiał być dłuższy, ale węższy. Ten spełniał nasze oczekiwania. Bardzo mi się spodobała ta prosta bryła oraz dach dwuspadowy. Budowa przebiegła według naszego planu. W ciągu niecałych dwóch lat już mieszkaliśmy. Jedyne zastoje spotkały nas w urzędach i to tam straciliśmy najwięcej czasu. Z fachowcami na szczęście nie mieliśmy żadnych problemów i nie było również kłopotów z odczytaniem projektu domu Dom przy Sokolej KRK1080. Piec mamy na gaz i jeszcze w salonie mamy kominek z tunelem grawitacyjnym na piętro. Dlatego koszty eksploatacji są bardzo korzystne. Dom jest idealnie rozmieszczony na działce. Nawet w zimie, gdy był wyż i temperatura spadła poniżej 30 st.Celsjusza, to mogliśmy na poddaszu wyłączyć grzejniki między godziną 10:00 a 14:00, ponieważ w pokojach było gorąco. To naprawdę było dla nas ogromnym zaskoczeniem, a do tego w pomieszczeniach jest bardzo jasno i przytulnie. Zdecydowaliśmy się na usunięcie ściany między kuchnią a salonem i dzięki temu zyskaliśmy więcej przestrzeni. Był to bardzo dobry pomysł, gdyż w tym miejscu podczas spotkań ze znajomymi dużo osób przystaje na rozmowę. Jeszcze jedna modyfikacja to zrobienie schowka pod schodami, w którym możemy przechowywać najpotrzebniejsze rzeczy. Teraz jeszcze będę dostawiał na tarasie zabudowę w szkle. Chcę, aby dom zyskał na swojej indywidualności. Dla mojej czteroosobowej rodziny układ pomieszczeń jest rewelacyjny, ponieważ z setek projektów, które widziałem, ten był najlepszy. Przy takiej ilości osób miejsca mamy wystarczająco, do tego jeszcze dom nie jest zbyt duży. Gdyby był większy, z pewnością byłoby też więcej sprzątania :). Na pewno największym sukcesem i miejscem, z którego jesteśmy najbardziej zadowoleni jest korytarz oraz salon z kuchnią. Jest to miejsce, gdzie najchętniej spędzamy czas. Jestem bardzo zadowolony z wyboru projekt domu parterowego z poddaszem użytkowym Dom przy Sokolej KRK1080. Polecam i pozdrawiam.

ASYSTENT WYBORU PROJEKTU

Szukasz idealnego projektu? Znajdziemy go dla Ciebie!

Doradca na podstawie Twoich wskazówek przygotuje spersonalizowaną listę projektów

Graficzne opracowanie rzutów poglądowych widocznych na karcie projektu zostało wykonane przez Extradom.pl. Prezentowane przez Extradom.pl wizualizacje wykonane zostały przez autora projektu i należy poczytywać je jedynie za przykład i propozycję wykończenia, wizję architektoniczną autora projektu. Ostateczne wykończenie budynku może nastąpić na wiele sposobów. Szczegółowe rozwiązania zastosowane w oferowanej dokumentacji - w tym również ilość, lokalizacje i wygląd okien, drzwi, kominów - mogą w niewielkim stopniu różnić się od prezentowanej wizualizacji budynku.

REKLAMA
Zamknij