Projekty nawet 500 zł taniej ❄️

Koniec oferty za:

00godz.

00min.

00sek.

Sprawdź

Projekt domu Dom przy Cyprysowej 9 KRK1223

Dodano!
Dodano!

Warstwy

Warstwy

Rzut parteru

Powierzchnia (m²)
Tooltip
Powierzchnia pomieszczenia
to ta, z której faktycznie możesz korzystać – skosy i niskie części poddasza są liczone częściowo lub wcale.
  1. 100% dla wysokości powyżej 2,2 m,
  2. 50% dla wysokości 1,4–2,2 m,
  3. nie liczymy poniżej 1,4 m.

Powierzchnia podłogi
Liczymy po obrysie pomieszczenia, bez względu na jego wysokość/skosy. Jeśli nie ma skosów to powierzchnia podłogi i pomieszczenia jest taka sama.
pomieszczenia i podłogi
podłogi
1. Wiatrołap
3,29
2. Hall
4,97
3. Spiżarnia
1,13
4. Kuchnia
11,83
5. Pokój dzienny
22,86
6. Pokój
12,31
7. Pomieszczenie gospodarcze
2,17
8. Łazienka
3,98
9. Kotłownia
5,06
10. Garaż jednostanowiskowy
18,77
Razem
86,37
86,37
Powierzchnia (m²)
Tooltip
Powierzchnia pomieszczenia
to ta, z której faktycznie możesz korzystać – skosy i niskie części poddasza są liczone częściowo lub wcale.
  1. 100% dla wysokości powyżej 2,2 m,
  2. 50% dla wysokości 1,4–2,2 m,
  3. nie liczymy poniżej 1,4 m.

Powierzchnia podłogi
Liczymy po obrysie pomieszczenia, bez względu na jego wysokość/skosy. Jeśli nie ma skosów to powierzchnia podłogi i pomieszczenia jest taka sama.
pomieszczenia
podłogi
1. Korytarz + schody
9,66
9,66
2. Pokój
10,33
13,20
3. Garderoba
2,62
5,29
4. Łazienka
10,74
12,64
5. Pokój
13,21
16,97
6. Pokój
12,95
18,20
7. Pokój
10,61
13,62
Razem
70,12
89,58

    Usytuowanie na działce

    Czy ten projekt pasuje na
    Twoją działkę?

    Chętnie to sprawdzimy!

    Dowiedz się:

    • czy zmieści się na niej wybrany przez Ciebie dom
    • jakie parametry musi spełniać dom według miejscowego planu zagospodarowania lub warunków zabudowy (np. kąt nachylenia i typ dachu, liczba kondygnacji itp.
    • jakie inne projekty pasują na Twoją działkę – znajdziemy je dla Ciebie!

Pow. użytkowa

130,49 m²

Pokoje

5

Łazienki i WC

2

Garaż

1

Min. szer. i dł. działki

21,05 x 17,60 m

Kąt dachu

40°

Konstrukcja

Murowana
więcej

Dom przy Cyprysowej 9 - KRK1223

ikona 130,49 m²
Powierzchnia użytkowa
ikona5
Pokoje (bez salonu)
ikona 2
Łazienki (z toaletami)
ikona 1
Liczba stanowisk garażowych
(z wiatą garażową)
ikona
Konstrukcja: Murowana

Projekt został
wycofany z oferty

W razie pytań prosimy o kontakt
z Centrum Obsługi Klienta
Konsultant Masz pytania?
Zadzwoń
71 715 20 60

pon.-pt. 8-21, sob. 9-17

Parter - 86,37 m²

Parter projektu Dom przy Cyprysowej 9

Zapytaj, co możesz zmienić

Powierzchnia (m²)
Tooltip
Powierzchnia pomieszczenia
to ta, z której faktycznie możesz korzystać – skosy i niskie części poddasza są liczone częściowo lub wcale.
  1. 100% dla wysokości powyżej 2,2 m,
  2. 50% dla wysokości 1,4–2,2 m,
  3. nie liczymy poniżej 1,4 m.

Powierzchnia podłogi
Liczymy po obrysie pomieszczenia, bez względu na jego wysokość/skosy. Jeśli nie ma skosów to powierzchnia podłogi i pomieszczenia jest taka sama.
pomieszczenia i podłogi
podłogi
1. Wiatrołap
3,29
2. Hall
4,97
3. Spiżarnia
1,13
4. Kuchnia
11,83
5. Pokój dzienny
22,86
6. Pokój
12,31
7. Pomieszczenie gospodarcze
2,17
8. Łazienka
3,98
9. Kotłownia
5,06
10. Garaż jednostanowiskowy
18,77
Razem
86,37
86,37

Poddasze - 70,12 m²

Poddasze projektu Dom przy Cyprysowej 9

Zapytaj, co możesz zmienić

Powierzchnia (m²)
Tooltip
Powierzchnia pomieszczenia
to ta, z której faktycznie możesz korzystać – skosy i niskie części poddasza są liczone częściowo lub wcale.
  1. 100% dla wysokości powyżej 2,2 m,
  2. 50% dla wysokości 1,4–2,2 m,
  3. nie liczymy poniżej 1,4 m.

Powierzchnia podłogi
Liczymy po obrysie pomieszczenia, bez względu na jego wysokość/skosy. Jeśli nie ma skosów to powierzchnia podłogi i pomieszczenia jest taka sama.
pomieszczenia
podłogi
1. Korytarz + schody
9,66
9,66
2. Pokój
10,33
13,20
3. Garderoba
2,62
5,29
4. Łazienka
10,74
12,64
5. Pokój
13,21
16,97
6. Pokój
12,95
18,20
7. Pokój
10,61
13,62
Razem
70,12
89,58

Warianty projektu (60)

PROMOCJA
Projekt domu Dom przy Cyprysowej 15 K4
Dom przy Cyprysowej 15 K4
Dodano!
Dodano!
154,20 m²
5
3
2

3 790 zł

4 290 zł

Tooltip

Cena regularna

3 690 zł najniższa cena
Tooltip

Najniższa cena z 30 dni
przed obniżką

PROMOCJA
Projekt domu Dom przy Cyprysowej 62
Dom przy Cyprysowej 62
Dodano!
Dodano!
177,65 m²
6
3
2

3 790 zł

4 290 zł

Tooltip

Cena regularna

3 690 zł najniższa cena
Tooltip

Najniższa cena z 30 dni
przed obniżką

PROMOCJA
Projekt domu Dom przy Cyprysowej 15 DN2
Dom przy Cyprysowej 15 DN2
Dodano!
Dodano!
152,70 m²
5
3
2

3 790 zł

4 290 zł

Tooltip

Cena regularna

3 690 zł najniższa cena
Tooltip

Najniższa cena z 30 dni
przed obniżką

PROMOCJA
Projekt domu Dom przy Cyprysowej 60
Dom przy Cyprysowej 60
Dodano!
Dodano!
115,59 m²
5
2
1

3 490 zł

3 990 zł

Tooltip

Cena regularna

3 390 zł najniższa cena
Tooltip

Najniższa cena z 30 dni
przed obniżką

PROMOCJA
Projekt domu Dom przy Cyprysowej 65
Dom przy Cyprysowej 65
Dodano!
Dodano!
113,46 m²
5
2
1

3 390 zł

3 890 zł

Tooltip

Cena regularna

3 290 zł najniższa cena
Tooltip

Najniższa cena z 30 dni
przed obniżką

PROMOCJA
Projekt domu Dom przy Cyprysowej 54
Dom przy Cyprysowej 54
Dodano!
Dodano!
120,52 m²
4
2
0

3 390 zł

3 890 zł

Tooltip

Cena regularna

3 290 zł najniższa cena
Tooltip

Najniższa cena z 30 dni
przed obniżką

PROMOCJA
Projekt domu Dom przy Cyprysowej 64
Dom przy Cyprysowej 64
Dodano!
Dodano!
99,11 m²
4
2
1

3 190 zł

3 690 zł

Tooltip

Cena regularna

3 090 zł najniższa cena
Tooltip

Najniższa cena z 30 dni
przed obniżką

PROMOCJA
Projekt domu Dom przy Cyprysowej 34 long
Dom przy Cyprysowej 34 long
Dodano!
Dodano!
104,09 m²
4
2
1

3 190 zł

3 690 zł

Tooltip

Cena regularna

3 090 zł najniższa cena
Tooltip

Najniższa cena z 30 dni
przed obniżką

PROMOCJA
Projekt domu Dom przy Cyprysowej 27
Dom przy Cyprysowej 27
Dodano!
Dodano!
100,28 m²
4
2
1

3 190 zł

3 690 zł

Tooltip

Cena regularna

3 090 zł najniższa cena
Tooltip

Najniższa cena z 30 dni
przed obniżką

PROMOCJA
Projekt domu Dom przy Cyprysowej 26 N
Dom przy Cyprysowej 26 N
Dodano!
Dodano!
99,11 m²
4
2
1

3 190 zł

3 690 zł

Tooltip

Cena regularna

3 090 zł najniższa cena
Tooltip

Najniższa cena z 30 dni
przed obniżką

PROMOCJA
Projekt domu Dom przy Cyprysowej 14 K2
Dom przy Cyprysowej 14 K2
Dodano!
Dodano!
125,87 m²
4
2
1

3 790 zł

4 290 zł

Tooltip

Cena regularna

3 690 zł najniższa cena
Tooltip

Najniższa cena z 30 dni
przed obniżką

PROMOCJA
Projekt domu Dom przy Cyprysowej 72
Dom przy Cyprysowej 72
Dodano!
Dodano!
120 m²
4
2
0

3 490 zł

3 990 zł

Tooltip

Cena regularna

3 390 zł najniższa cena
Tooltip

Najniższa cena z 30 dni
przed obniżką

PROMOCJA
Projekt domu Dom przy Cyprysowej 27 N
Dom przy Cyprysowej 27 N
Dodano!
Dodano!
100,28 m²
4
2
1

3 490 zł

3 990 zł

Tooltip

Cena regularna

3 390 zł najniższa cena
Tooltip

Najniższa cena z 30 dni
przed obniżką

PROMOCJA
Projekt domu Dom przy Cyprysowej 101
Dom przy Cyprysowej 101
Dodano!
Dodano!
152,55 m²
5
3
1

3 490 zł

3 990 zł

Tooltip

Cena regularna

3 390 zł najniższa cena
Tooltip

Najniższa cena z 30 dni
przed obniżką

PROMOCJA
Projekt domu Dom przy Cyprysowej 20
Dom przy Cyprysowej 20
Dodano!
Dodano!
112,78 m²
4
2
0

3 290 zł

3 790 zł

Tooltip

Cena regularna

3 190 zł najniższa cena
Tooltip

Najniższa cena z 30 dni
przed obniżką

PROMOCJA
Projekt domu Dom przy Cyprysowej 29
Dom przy Cyprysowej 29
Dodano!
Dodano!
113,46 m²
5
2
1

3 790 zł

4 290 zł

Tooltip

Cena regularna

3 690 zł najniższa cena
Tooltip

Najniższa cena z 30 dni
przed obniżką

PROMOCJA
Projekt domu Dom przy Cyprysowej 15 P
Dom przy Cyprysowej 15 P
Dodano!
Dodano!
150,30 m²
5
3
2

3 790 zł

4 290 zł

Tooltip

Cena regularna

3 690 zł najniższa cena
Tooltip

Najniższa cena z 30 dni
przed obniżką

PROMOCJA
Projekt domu Dom przy Cyprysowej 67
Dom przy Cyprysowej 67
Dodano!
Dodano!
181,61 m²
6
3
2

3 740 zł

4 240 zł

Tooltip

Cena regularna

3 640 zł najniższa cena
Tooltip

Najniższa cena z 30 dni
przed obniżką

PROMOCJA
Projekt domu Dom przy Cyprysowej 12
Dom przy Cyprysowej 12
Dodano!
Dodano!
117,21 m²
4
2
0

3 190 zł

3 690 zł

Tooltip

Cena regularna

3 090 zł najniższa cena
Tooltip

Najniższa cena z 30 dni
przed obniżką

PROMOCJA
Projekt domu Dom przy Cyprysowej 20 N
Dom przy Cyprysowej 20 N
Dodano!
Dodano!
112,78 m²
4
2
0

3 490 zł

3 990 zł

Tooltip

Cena regularna

3 390 zł najniższa cena
Tooltip

Najniższa cena z 30 dni
przed obniżką

PROMOCJA
Projekt domu Dom przy Cyprysowej 12 P
Dom przy Cyprysowej 12 P
Dodano!
Dodano!
120,48 m²
4
2
1

3 690 zł

4 190 zł

Tooltip

Cena regularna

3 590 zł najniższa cena
Tooltip

Najniższa cena z 30 dni
przed obniżką

PROMOCJA
Projekt domu Dom przy Cyprysowej 68
Dom przy Cyprysowej 68
Dodano!
Dodano!
101,05 m²
4
2
0

3 490 zł

3 990 zł

Tooltip

Cena regularna

3 390 zł najniższa cena
Tooltip

Najniższa cena z 30 dni
przed obniżką

PROMOCJA
Projekt domu Dom przy Cyprysowej 73
Dom przy Cyprysowej 73
Dodano!
Dodano!
120 m²
4
2
0

3 490 zł

3 990 zł

Tooltip

Cena regularna

3 390 zł najniższa cena
Tooltip

Najniższa cena z 30 dni
przed obniżką

PROMOCJA
Projekt domu Dom przy Cyprysowej 100
Dom przy Cyprysowej 100
Dodano!
Dodano!
150 m²
5
3
1

3 490 zł

3 990 zł

Tooltip

Cena regularna

3 390 zł najniższa cena
Tooltip

Najniższa cena z 30 dni
przed obniżką

PROMOCJA
Projekt domu Dom przy Cyprysowej 20 P
Dom przy Cyprysowej 20 P
Dodano!
Dodano!
118,12 m²
4
2
0

3 290 zł

3 790 zł

Tooltip

Cena regularna

3 190 zł najniższa cena
Tooltip

Najniższa cena z 30 dni
przed obniżką

PROMOCJA
Projekt domu Dom przy Cyprysowej 63
Dom przy Cyprysowej 63
Dodano!
Dodano!
145,72 m²
5
3
1

3 490 zł

3 990 zł

Tooltip

Cena regularna

3 390 zł najniższa cena
Tooltip

Najniższa cena z 30 dni
przed obniżką

PROMOCJA
Projekt domu Dom przy Cyprysowej 41
Dom przy Cyprysowej 41
Dodano!
Dodano!
146,72 m²
5
3
2

3 790 zł

4 290 zł

Tooltip

Cena regularna

3 690 zł najniższa cena
Tooltip

Najniższa cena z 30 dni
przed obniżką

PROMOCJA
Projekt domu Dom przy Cyprysowej 14 K
Dom przy Cyprysowej 14 K
Dodano!
Dodano!
145,72 m²
5
3
1

3 790 zł

4 290 zł

Tooltip

Cena regularna

3 690 zł najniższa cena
Tooltip

Najniższa cena z 30 dni
przed obniżką

PROMOCJA
Projekt domu Dom przy Cyprysowej 34
Dom przy Cyprysowej 34
Dodano!
Dodano!
80,28 m²
4
2
1

2 790 zł

3 290 zł

Tooltip

Cena regularna

2 690 zł najniższa cena
Tooltip

Najniższa cena z 30 dni
przed obniżką

PROMOCJA
Projekt domu Dom przy Cyprysowej 57
Dom przy Cyprysowej 57
Dodano!
Dodano!
120,92 m²
4
3
0

3 690 zł

4 190 zł

Tooltip

Cena regularna

3 590 zł najniższa cena
Tooltip

Najniższa cena z 30 dni
przed obniżką

PROMOCJA
Projekt domu Dom przy Cyprysowej 70
Dom przy Cyprysowej 70
Dodano!
Dodano!
100 m²
4
2
0

3 490 zł

3 990 zł

Tooltip

Cena regularna

3 390 zł najniższa cena
Tooltip

Najniższa cena z 30 dni
przed obniżką

PROMOCJA
Projekt domu Dom przy Cyprysowej 14 D
Dom przy Cyprysowej 14 D
Dodano!
Dodano!
144,12 m²
5
3
1

3 390 zł

3 890 zł

Tooltip

Cena regularna

3 290 zł najniższa cena
Tooltip

Najniższa cena z 30 dni
przed obniżką

PROMOCJA
Projekt domu Dom przy Cyprysowej 76
Dom przy Cyprysowej 76
Dodano!
Dodano!
80 m²
4
2
0

3 290 zł

3 790 zł

Tooltip

Cena regularna

3 190 zł najniższa cena
Tooltip

Najniższa cena z 30 dni
przed obniżką

PROMOCJA
Projekt domu Dom przy Cyprysowej 12 N
Dom przy Cyprysowej 12 N
Dodano!
Dodano!
117,21 m²
4
2
0

3 190 zł

3 690 zł

Tooltip

Cena regularna

3 090 zł najniższa cena
Tooltip

Najniższa cena z 30 dni
przed obniżką

PROMOCJA
Projekt domu Dom przy Cyprysowej 43
Dom przy Cyprysowej 43
Dodano!
Dodano!
145,20 m²
4
2
0

3 790 zł

4 290 zł

Tooltip

Cena regularna

3 690 zł najniższa cena
Tooltip

Najniższa cena z 30 dni
przed obniżką

PROMOCJA
Projekt domu Dom przy Cyprysowej 15 K6
Dom przy Cyprysowej 15 K6
Dodano!
Dodano!
125,87 m²
4
2
2

3 790 zł

4 290 zł

Tooltip

Cena regularna

3 690 zł najniższa cena
Tooltip

Najniższa cena z 30 dni
przed obniżką

PROMOCJA
Projekt domu Dom przy Cyprysowej 8
Dom przy Cyprysowej 8
Dodano!
Dodano!
140,59 m²
5
3
2

3 690 zł

4 190 zł

Tooltip

Cena regularna

3 590 zł najniższa cena
Tooltip

Najniższa cena z 30 dni
przed obniżką

PROMOCJA
Projekt domu Dom przy Cyprysowej 55
Dom przy Cyprysowej 55
Dodano!
Dodano!
116,74 m²
4
2
0

3 390 zł

3 890 zł

Tooltip

Cena regularna

3 290 zł najniższa cena
Tooltip

Najniższa cena z 30 dni
przed obniżką

PROMOCJA
Projekt domu Dom przy Cyprysowej 56
Dom przy Cyprysowej 56
Dodano!
Dodano!
102,93 m²
4
2
0

3 190 zł

3 690 zł

Tooltip

Cena regularna

3 090 zł najniższa cena
Tooltip

Najniższa cena z 30 dni
przed obniżką

PROMOCJA
Projekt domu Dom przy Cyprysowej 53 N
Dom przy Cyprysowej 53 N
Dodano!
Dodano!
141,34 m²
4
2
0

3 190 zł

3 690 zł

Tooltip

Cena regularna

3 090 zł najniższa cena
Tooltip

Najniższa cena z 30 dni
przed obniżką

PROMOCJA
Projekt domu Dom przy Cyprysowej 26
Dom przy Cyprysowej 26
Dodano!
Dodano!
99,11 m²
4
2
1

3 190 zł

3 690 zł

Tooltip

Cena regularna

3 090 zł najniższa cena
Tooltip

Najniższa cena z 30 dni
przed obniżką

PROMOCJA
Projekt domu Dom przy Cyprysowej 59
Dom przy Cyprysowej 59
Dodano!
Dodano!
104,09 m²
4
2
1

3 190 zł

3 690 zł

Tooltip

Cena regularna

3 090 zł najniższa cena
Tooltip

Najniższa cena z 30 dni
przed obniżką

PROMOCJA
Projekt domu Dom przy Cyprysowej 15 K5
Dom przy Cyprysowej 15 K5
Dodano!
Dodano!
151,77 m²
5
3
2

3 790 zł

4 290 zł

Tooltip

Cena regularna

3 690 zł najniższa cena
Tooltip

Najniższa cena z 30 dni
przed obniżką

PROMOCJA
Projekt domu Dom przy Cyprysowej 15 K
Dom przy Cyprysowej 15 K
Dodano!
Dodano!
153,90 m²
5
3
2

3 490 zł

3 990 zł

Tooltip

Cena regularna

3 390 zł najniższa cena
Tooltip

Najniższa cena z 30 dni
przed obniżką

PROMOCJA
Projekt domu Dom przy Cyprysowej 15 D
Dom przy Cyprysowej 15 D
Dodano!
Dodano!
152,50 m²
5
3
2

3 490 zł

3 990 zł

Tooltip

Cena regularna

3 390 zł najniższa cena
Tooltip

Najniższa cena z 30 dni
przed obniżką

PROMOCJA
Projekt domu Dom przy Cyprysowej 15 DN
Dom przy Cyprysowej 15 DN
Dodano!
Dodano!
152,50 m²
5
3
2

3 490 zł

3 990 zł

Tooltip

Cena regularna

3 390 zł najniższa cena
Tooltip

Najniższa cena z 30 dni
przed obniżką

PROMOCJA
Projekt domu Dom przy Cyprysowej 74
Dom przy Cyprysowej 74
Dodano!
Dodano!
149,20 m²
5
3
1

3 490 zł

3 990 zł

Tooltip

Cena regularna

3 390 zł najniższa cena
Tooltip

Najniższa cena z 30 dni
przed obniżką

PROMOCJA
Projekt domu Dom przy Cyprysowej 52
Dom przy Cyprysowej 52
Dodano!
Dodano!
125,43 m²
4
3
1

3 190 zł

3 690 zł

Tooltip

Cena regularna

3 090 zł najniższa cena
Tooltip

Najniższa cena z 30 dni
przed obniżką

PROMOCJA
Projekt domu Dom przy Cyprysowej 42
Dom przy Cyprysowej 42
Dodano!
Dodano!
129,28 m²
4
2
0

3 190 zł

3 690 zł

Tooltip

Cena regularna

3 090 zł najniższa cena
Tooltip

Najniższa cena z 30 dni
przed obniżką

PROMOCJA
Projekt domu Dom przy Cyprysowej 61
Dom przy Cyprysowej 61
Dodano!
Dodano!
124,69 m²
4
2
0

3 190 zł

3 690 zł

Tooltip

Cena regularna

3 090 zł najniższa cena
Tooltip

Najniższa cena z 30 dni
przed obniżką

PROMOCJA
Projekt domu Dom przy Cyprysowej 53
Dom przy Cyprysowej 53
Dodano!
Dodano!
141,34 m²
4
2
1

3 190 zł

3 690 zł

Tooltip

Cena regularna

3 090 zł najniższa cena
Tooltip

Najniższa cena z 30 dni
przed obniżką

PROMOCJA
Projekt domu Dom przy Cyprysowej 14 DN
Dom przy Cyprysowej 14 DN
Dodano!
Dodano!
144,12 m²
5
3
1

3 490 zł

3 990 zł

Tooltip

Cena regularna

3 390 zł najniższa cena
Tooltip

Najniższa cena z 30 dni
przed obniżką

PROMOCJA
Projekt domu Dom przy Cyprysowej 52 N
Dom przy Cyprysowej 52 N
Dodano!
Dodano!
125,43 m²
4
2
1

3 490 zł

3 990 zł

Tooltip

Cena regularna

3 390 zł najniższa cena
Tooltip

Najniższa cena z 30 dni
przed obniżką

PROMOCJA
Projekt domu Dom przy Cyprysowej 33
Dom przy Cyprysowej 33
Dodano!
Dodano!
115,59 m²
5
2
1

3 390 zł

3 890 zł

Tooltip

Cena regularna

3 290 zł najniższa cena
Tooltip

Najniższa cena z 30 dni
przed obniżką

PROMOCJA
Projekt domu Dom przy Cyprysowej 36 D
Dom przy Cyprysowej 36 D
Dodano!
Dodano!
127,49 m²
5
3
2

3 790 zł

4 290 zł

Tooltip

Cena regularna

3 690 zł najniższa cena
Tooltip

Najniższa cena z 30 dni
przed obniżką

PROMOCJA
Projekt domu Dom przy Cyprysowej 71
Dom przy Cyprysowej 71
Dodano!
Dodano!
100 m²
4
2
0

3 490 zł

3 990 zł

Tooltip

Cena regularna

3 390 zł najniższa cena
Tooltip

Najniższa cena z 30 dni
przed obniżką

PROMOCJA
Projekt domu Dom przy Cyprysowej 75
Dom przy Cyprysowej 75
Dodano!
Dodano!
156,80 m²
5
3
2

3 790 zł

4 290 zł

Tooltip

Cena regularna

3 690 zł najniższa cena
Tooltip

Najniższa cena z 30 dni
przed obniżką

PROMOCJA
Projekt domu Dom przy Cyprysowej 58
Dom przy Cyprysowej 58
Dodano!
Dodano!
124,63 m²
4
2
2

3 690 zł

4 190 zł

Tooltip

Cena regularna

3 590 zł najniższa cena
Tooltip

Najniższa cena z 30 dni
przed obniżką

PROMOCJA
Projekt domu Dom przy Cyprysowej 32
Dom przy Cyprysowej 32
Dodano!
Dodano!
160,79 m²
5
3
2

3 490 zł

3 990 zł

Tooltip

Cena regularna

3 390 zł najniższa cena
Tooltip

Najniższa cena z 30 dni
przed obniżką

PROMOCJA
Projekt domu Dom przy Cyprysowej 50
Dom przy Cyprysowej 50
Dodano!
Dodano!
151,77 m²
5
3
2

3 490 zł

3 990 zł

Tooltip

Cena regularna

3 390 zł najniższa cena
Tooltip

Najniższa cena z 30 dni
przed obniżką

Podobne projekty (6479)

Zobacz wszystkie
Nowość
Zdjęcie 1 projektu APS 184 NEW ECO LUA1677
APS 184 NEW ECO
Dodano!
Dodano!
132,20 m²
4
2
1

4 699 zł

NIŻSZA CENA❄️
Zdjęcie 1 projektu Domidea 50 d40 w4 WAC1010
Domidea 50 d40 w4
Dodano!
Dodano!
126,70 m²
4
3
1

5 112 zł

5 412 zł

Tooltip

Cena regularna

5 112 zł najniższa cena
Tooltip

Najniższa cena z 30 dni
przed obniżką

NIŻSZA CENA❄️
Zdjęcie 1 projektu Jadzia Atu (1875) KRD3021
Jadzia Atu (1875)
Dodano!
Dodano!
147,10 m²
5
3
0

4 540 zł

4 890 zł

Tooltip

Cena regularna

4 340 zł najniższa cena
Tooltip

Najniższa cena z 30 dni
przed obniżką

NIŻSZA CENA❄️
Zdjęcie 1 projektu Krzemień BSA2375
Krzemień
Dodano!
Dodano!
115,67 m²
4
2
0

4 749 zł

5 249 zł

Tooltip

Cena regularna

4 749 zł najniższa cena
Tooltip

Najniższa cena z 30 dni
przed obniżką

Zdjęcie 1 projektu Studio 33 WRN1542
Studio 33
Dodano!
Dodano!
139,80 m²
4
2
0

4 095 zł

Zdjęcie 1 projektu APS 149 NEW ECO LUA1625
APS 149 NEW ECO
Dodano!
Dodano!
135,50 m²
4
2
1

4 499 zł

NIŻSZA CENA❄️
Zdjęcie 1 projektu APS 289 w2 LUA1515
APS 289 w2
Dodano!
Dodano!
138,50 m²
4
2
1

4 849 zł

5 399 zł

Tooltip

Cena regularna

4 799 zł najniższa cena
Tooltip

Najniższa cena z 30 dni
przed obniżką

NIŻSZA CENA❄️
Zdjęcie 1 projektu Jaskółka 8 z garażem WRL1063
Jaskółka 8 z garażem
Dodano!
Dodano!
119,70 m²
4
2
1

4 499 zł

4 999 zł

Tooltip

Cena regularna

4 199 zł najniższa cena
Tooltip

Najniższa cena z 30 dni
przed obniżką

Elewacje

Frontowa
Tylna
Lewa
Prawa

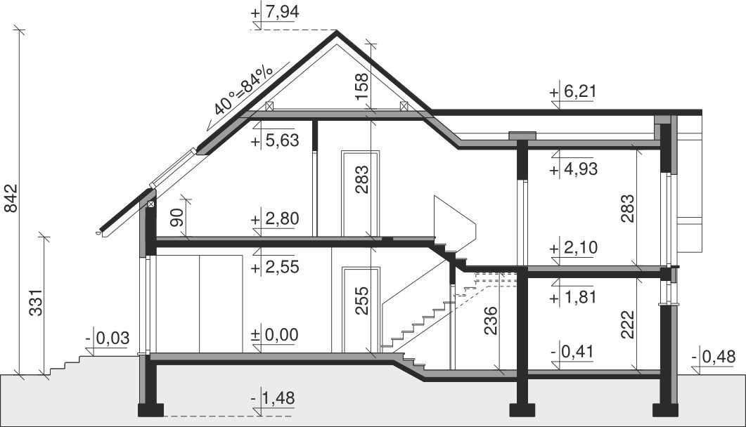
Przekroje

Przekrój pionowy

Usytuowanie na działce

Czy ten projekt pasuje na
Twoją działkę?

Chętnie to sprawdzimy!

Czy ten projekt pasuje na
Twoją działkę?

Chętnie to sprawdzimy!

Dowiedz się:

  • czy zmieści się na niej wybrany przez Ciebie dom
  • jakie parametry musi spełniać dom według miejscowego planu zagospodarowania lub warunków zabudowy (np. kąt nachylenia i typ dachu, liczba kondygnacji itp.
  • jakie inne projekty pasują na Twoją działkę – znajdziemy je dla Ciebie!
Autor: GALERIADOMOW.PL

Dane techniczne projektu

Powierzchnie i wymiary Powierzchnie i wymiary

Powierzchnia użytkowa
Tooltip
Suma powierzchni wszystkich pomieszczeń mieszkalnych, pomniejszona o pow. garażu, kotłowni, strychu, piwnicy. Jest liczona w 100% dla pomieszczeń o wysokości powyżej 2,2 m, w 50% dla pomieszczeń o wys. 2,2-1,4 m i niewliczana dla niższych niż 1,4 m.

130,49 m²

Powierzchnia zabudowy
Tooltip
Powierzchnia zajmowana przez część na- oraz nadziemną budynku liczona, jako rzut pionowy budynku na działkę.

116,47 m²

Kubatura brutto
Tooltip
Zazwyczaj jest to suma kubatur (objętości) wszystkich pomieszczeń budynku, liczonych po zewnętrznym obrysie murów (z ociepleniem).

641 m³

Powierzchnia dachu

201,02 m²

Kąt nachylenia dachu
Tooltip
Nachylenie połaci dachu głównego podawane w stopniach. Uwaga! W niektórych projektach występuje więcej niż jedno nachylenie dachu.

40°

Wysokość budynku
Tooltip
Wysokość liczona od części budynku położonej najniżej przy powierzchni terenu do najwyższego punktu dachu (kalenicy) z wyłączeniem kominów.

8,42 m

Min. szerokość działki
Tooltip
Najmniejsza możliwa szerokość działki niezbędna do wybudowania wybranego domu. Składa się z szerokości elewacji domu powiększonej z obu stron o 3 m dla ściany bez otworów drzwiowych/okiennych lub 4 m, dla ściany z otworami.

21,05 m

Min. długość działki
Tooltip
Najmniejsza możliwa długość działki niezbędna do wybudowania wybranego domu. Składa się z długości elewacji domu powiększonej z obu stron o 3 m dla ściany bez otworów drzwiowych/okiennych lub 4 m, dla ściany z otworami.

17,60 m

Energooszczędność Energooszczędność

Oze Czym jest OZE (Odnawialne Źródło Energii)?
Warunki techniczne

Projekt zgody z WT 2021

Technologia i konstrukcja Technologia i konstrukcja

Konstrukcja

Murowana

Opis szczegółowy

Ściany zewnętrzne: pustak 25 cm, styropian 20 cm. Ściany nośne: pustak 25 cm. Strop: monolityczny żelbetowy. Dach: kąt nachylenia 40°, pokrycie - dachówka ceramiczna lub betonowa.

Strop

Żelbetowy

Reklama
Okna i drzwi tarasowe

Nowoczesne okna PVC i aluminiowe WIŚNIOWSKI – doskonała izolacja, elegancki design i niezrównana trwałość.

Wiśniowski
Sprawdź parametry!
Okna dachowe

Oferujemy bezpłatne konsultacje w zakresie wszystkich rozwiązań VELUX. Wyceny, porady dotyczące doboru okien i rolet zewnętrznych - sprawdź!

Velux
Sprawdź szczegóły
Płytki ceramiczne i gresy

Od małych formatów po wielkoformatowe gresy. Marmur, beton, drewno, kamień, lastryko czy cegiełki zamówisz wygodnie online z szybką dostawą.

Ceramzet
Sprawdź ofertę
Drzwi

Ciepłe drzwi WIŚNIOWSKI z kontrolą dostępu. Szeroka gama wzorów i kolorów.

Wiśniowski
Wybierz najlepsze
Bramy garażowe

Automatyczne bramy garażowe segmentowe i uchylne WIŚNIOWSKI na wymiar i z systemem smart home w standardzie.

Wiśniowski
Sprawdź ofertę!
Armatura i ceramika łazienkowa

Topowi producenci. Baterie łazienkowe, zestawy natynkowe i podtynkowe, umywalki, wanny, miski WC oraz kabiny zamówisz kompleksowo online.

Ceramzet II
Dowiedz się więcej
Rekuperacja

Alnor - kompletny system rekuperacji. Dobierz idealne rozwiązanie dla Twojego domu!

Alnor
Dobierz rekuperator
Gruntowe pompy ciepła

Przeprowadzimy kompletną instalację najbardziej oszczędnego źródła ciepła w Twoim nowym domu - gruntowej pompy ciepła. Od dokumentacji, pozwoleń, po odwierty i instalację.

Geothermal Solutions
Dowiedz się więcej

Gotowe domy modułowe (114)

Zobacz wszystkie
Stan deweloperski nawet w 6 miesięcy Gwarancja stałej ceny
Zdjęcie 1 projektu Dom prefabrykowany Piętrowy 130A HFX1021
Pow. użytkowa
130,40 m²
Pokoje
4
539 000 zł 4 133 zł/m²
Zdjęcie 1 projektu Dom prefabrykowany Piętrowy 130B HFX1022
Pow. użytkowa
131,60 m²
Pokoje
5
539 000 zł 4 096 zł/m²
Zdjęcie 1 projektu Dom prefabrykowany Piętrowy 130C HFX1023
Pow. użytkowa
132 m²
Pokoje
4
539 000 zł 4 083 zł/m²
Zdjęcie 1 projektu Dom prefabrykowany DEX136 HDX1002
Pow. użytkowa
136 m²
Pokoje
4
845 000 zł 6 213 zł/m²
Zdjęcie 1 projektu Dom prefabrykowany P.11 HPK1011
Pow. użytkowa
122,88 m²
Pokoje
3
681 300 zł 5 544 zł/m²
Zdjęcie 1 projektu Dom prefabrykowany Parterowy 120B HFX1016
Pow. użytkowa
122,36 m²
Pokoje
3
489 000 zł 3 996 zł/m²
Zdjęcie 1 projektu Dom prefabrykowany P.5 HPK1004
Pow. użytkowa
138,67 m²
Pokoje
5
772 700 zł 5 572 zł/m²
Zdjęcie 1 projektu Dom szkieletowy Twin Smart 170 HHT1031
Pow. użytkowa
121,95 m²
Pokoje
5
1 650 700 zł 13 536 zł/m²

Opis projektu domu
Dom przy Cyprysowej 9

Dom Dom przy Cyprysowej 9 jest wariantem cieszącego się popularnością projektu Dom przy Cyprysowej. W odróżnieniu od bazowej wersji projekt ma więcej pokoi, większą powierzchnię, garaż. Projekt domu Dom przy Cyprysowej 9 to idealna propozycja dla osób posiadających średniej szerokości działkę. Bryła budynku posiada formę typową, więc jego realizacja nie pochłonie zbyt wielu środków finansowych. Projekt należy do kategorii domów z kalenicą skierowaną prostopadle do drogi, co jest istotne ze względu na wymagania określone w warunkach zabudowy. Dom został stworzony do zabudowy wolnostojącej. Posiada garaż jednostanowiskowy w linii budynku. Jest to również doskonała propozycja dla osób szukających domu z dachem dwuspadowym, i wykonanie więźby oraz jej pokrycie jest ekonomiczne i nie zajmuje wiele czasu. Projekt Dom przy Cyprysowej 9 to dom parterowy z poddaszem użytkowym, co sprawia, że strefa dzienna i nocna są od siebie wyraźnie oddzielone. Projekt domu charakteryzuje się przestronną strefą dzienną. Kuchnia zamknięta na salon jest rozwiązaniem przede wszystkim funkcjonalnym. Zamknięta strefa ogranicza przedostawanie się hałasu do innych części domu. Stół znajdujący się w kuchni to rozwiązanie niezwykle funkcjonalne i dodające jej uroku. Dodatkowo przewidziana spiżarnia to idealne miejsce na przechowywanie przetworów i zapasów żywności. W salonie znajduje się nastrojowy kominek dający przyjemne ciepło i nadający wnętrzu przyjemnej atmosfery. W projekcie uwzględniono dwie komfortowe łazienki- jedna znajduje się na parterze, druga na poddaszu. Strefa sypialniana składa się z pięciu pokoi, co jest doskonałą opcją dla dużej rodziny. Przestrzeń można wykorzystać także jako pokój dla gości lub gabinet. W utrzymaniu porządku z pewnością pomoże nam przewidziane w projekcie pomieszczenie gospodarcze. Wspólne grillowanie i rodzinne posiłki umili uwzględniony w projekcie taras. Projekt został wykonany w technologii murowanej, dzięki czemu podczas upałów dom utrzymuje przyjemny chłód. W jego bryle widoczne są rozwiązania nawiązujące do stylu nowoczesnego i idealnie wpisze się w trendy nowo powstających osiedli.
Czytaj więcej

Polecani producenci

Prefabrykowane konstrukcje dachowe

tło producenta

WIĄZAR POLSKA

Zobacz więcej

Sprawdź nową generację okien GREENVIEW

tło producenta

FAKRO

Sprawdź nową generację okien GREENVIEW

Styropian, tynki, farby, kleje

tło producenta

Termo Organika

Poznaj super jakość

Okna, drzwi, osłony przeciwsłoneczne

tło producenta

Aluprof

Sprawdź ofertę

Kompletne systemy rekuperacji

tło producenta

Alnor

Dowiedz się więcej

Sprawdź nowy system DACHRYNNA

tło producenta

Galeco

Sprawdź ofertę
Zobacz więcej

Społeczność projektu domu
Dom przy Cyprysowej 9 w budowie

Dołącz do społeczności osób, które budują ten dom lub są zainteresowane jego budową.

  • Oglądaj zdjęcia z budowy
  • Zadawaj pytania
  • Wymieniaj się doświadczeniami

Opinie o projekcie domu Dom przy Cyprysowej 9

5

Na podstawie 1 recenzji

Wspaniały!
100%
Bardzo dobry
0%
Średni
0%
Słaby
0%
Bardzo słaby
0%

Wywiady mieszkańców domu Dom przy Cyprysowej 9

Zdjęcie profilowe użytkownika Paweł1223 Paweł1223

Wybierając projekt domu Dom przy Cyprysowej 9 KRK1223, głównie kierowaliśmy się wrażeniami estetycznymi. Ciekawa forma bryły bardzo przypadła nam do gustu, dlatego też zdecydowaliśmy się na jego realizację. Dodatkowo, zależało nam na domu o dość sporym metrażu. Podczas budowy natrafiliśmy na kilka trudności, aczkolwiek nie były one spowodowane błędami w projekcie i do dokumentacji technicznej nie mam żadnych zastrzeżeń. Po wykonaniu prac fundamentowych, zrobiliśmy roczną przerwę w budowie. Kolejne etapy rozpoczęliśmy w marcu, a już w listopadzie tego samego roku mogliśmy wprowadzić się do nowego domu. Zewnętrzne ściany budynku zostały wymurowane z pustaków ceramicznych Cerpol, a do postawienia działowych użyliśmy pustaków 12,5 cm marki Röben. Na dachu zastosowaliśmy dachówkę ceramiczną tej samej firmy. Izolację poddasza tworzy wełna mineralna Rockwool, zaś bryłę ociepliliśmy 15 cm warstwą grafitowego styropianu. Na całej powierzchni parteru zainstalowaliśmy system ogrzewania podłogowego. Do kotłowni wstawiliśmy piec miałowy i to rozwiązanie świetnie się sprawdza. Poprzedniej zimy, włączając tylko tzw. „podłogówkę” mieliśmy w domu 27 °C przy temperaturze na kotle 42 °C, a ilość zużycia opału była zadowalająca. Projekt Dom przy Cyprysowej 9 KRK1223 przewidywał dodatkowy pokój na parterze, jednak my postanowiliśmy z niego zrezygnować. Usunęliśmy tworzące go ścianki, a w tym miejscu powstała funkcjonalna jadalnia. Nie mogliśmy jednak zlikwidować żelbetowego słupa podtrzymującego strop, dlatego też zabudowaliśmy go karton-gipsem, tworząc tym samym krótką ściankę na powieszenie telewizora. Póki co, nie robiliśmy również kominka, gdyż przy oryginalnej lokalizacji zajmowałby dość dużo miejsca w salonie. Jeśli jednak kiedyś się na niego zdecydujemy wbudujemy go w komin, aby zbyt nie odstawał. Dzięki zastosowaniu powyższych rozwiązań, obecnie na parterze mamy jedną, dużą i przestronną strefę dzienną. Dodatkowo zrezygnowaliśmy z wiatrołapu i teraz wchodząc do domu mamy otwartą przestrzeń. Ze względu na zamianę pieca olejowego na miałowy, z którego nieco się kurzy, postanowiliśmy zamurować wejście do kotłowni z części mieszkalnej. Obecnie dostać można się do niej jedynie przez garaż. Na tą chwilę do układu pomieszczeń nie wprowadzałbym już żadnych modyfikacji. W momencie, gdy zdecydowaliśmy się na projekt domu parterowego z poddaszem użytkowym Dom przy Cyprysowej 9 KRK1223 jego metraż bardzo nam odpowiadał. Muszę jednak przyznać, iż teraz zdecydowalibyśmy się pewnie na budynek o mniejszej powierzchni. Obecnie mieszkamy we dwójkę, więc czasem z żoną musimy szukać się po nowym domu :-) Myślę, że przy pierwotnym układzie parteru, w takim domu mogłaby zamieszkać nawet 6-7 osobowa rodzina. Jedynym kłopotem byłby jednak w tym przypadku brak miejsca na zrobienie jadalni. Pozdrawiam.

Zdjęcie profilowe użytkownika kris-r-81 kris-r-81

Od początku zależało mi na przestronnym, aczkolwiek nie za dużym domu o funkcjonalnym wnętrzu. Spośród propozycji, których metraż wydawał się idealny dla naszej rodziny, finalnie wybraliśmy projekt domu Dom przy Cyprysowej 9 KRK1223. Ukazany na stronie budynek bardzo przypadł mi do gustu.Prowadzę firmę budowlaną, dlatego też brałem czynny udział przy budowie naszego domu. Każdy z jej etapów udało się zrealizować naprawdę sprawnie i przyznam, że jestem zadowolony z przebiegu całej inwestycji. Łącznie z wykończeniami zajęła nam ok. 2 lat. Jedyne na co warto zwrócić szczególną uwagę przy budowie, to odpowiedni dobór fachowców zajmujących się montażem stolarki otworowej. Dwa górne okna posiadają niestandardowo duże wymiary oraz poszerzony element w miejscu, gdzie ma znajdować się ścianka działowa, więc ich wstawienie nie należy do najłatwiejszych. Niestety w naszym przypadku jedno z przeszkleń nie jest do końca szczelne, aczkolwiek montujący je fachowcy stwierdzili, że takie sytuacje mogą się zdarzyć, gdyż producenci nie dają pełnej gwarancji na tego typu przeszklenia.Do postawienia budynku użyłem ceramicznych pustaków Porotherm 25 cm. Strop zgodnie z projektem wykonałem w żelbetowej konstrukcji, zaś dach pokryłem dachówką ceramiczną. Muszę jednak przyznać, iż realizując projekt domu Dom przy Cyprysowej 9 KRK1223 lepiej jest założyć wyższe koszty budowy w stosunku do oszacowanych. Uważam, że bezpieczniej będzie liczyć się z kosztami ok. 170 tys. zł. na etapie stanu surowego otwartego. Postanowiłem zwiększyć sugerowaną warstwę zewnętrznej izolacji i ociepliłem budynek styropianem o gr. 20 cm. Ponadto, zrezygnowaliśmy z montażu jakichkolwiek grzejników i na całej powierzchni domu zastosowaliśmy system ogrzewania podłogowego, który doskonale się sprawdza. Dom oraz wodę użytkową ogrzewamy za pomocą pieca gazowego. Obecnie jesteśmy w trakcie pierwszego sezonu grzewczego od zamieszkania, a po ostatnich dwóch miesiącach (listopad, grudzień) otrzymaliśmy łączny rachunek za gaz na kwotę 730 zł/2 mies.W oryginalnym projekcie domu Dom przy Cyprysowej 9 KRK1223 kuchnia jest w połowie otwarta na salon, jednak ja postanowiłem całkowicie zamknąć ją na część wypoczynkową. Oprócz tego usunąłem ściankę między salonem a gabinetem, a pierwotny metraż dolnego pokoju przeznaczyłem na zrobienie jadalni. Dzięki temu uzyskałem dużą i bardzo przestronną strefę dzienną, a na tym od początku mi zależało. Wyrównałem poziom całej powierzchni parteru, a pralnię pod schodami przyłączyłem do znajdującej się obok łazienki, która teraz posiada naprawdę spore rozmiary. Tym samym udało mi się zmieścić w niej dodatkowo kabinę prysznicową, więc myślę, że jest rozwiązanie warte polecenia. Zważywszy na wyrównanie poziomu kotłowni, drzwi między nią a garażem musiałyby być dosyć niskie, dlatego też ostatecznie zrezygnowałem z tego elementu. Podejrzewam, że w przypadku pieca na paliwo stałe nie byłby to do końca dobry pomysł, gdyż wtedy opał musiałby być wnoszony przez wiatrołap, jednak przy ogrzewaniu gazowym sprawdza się naprawdę dobrze. Myślę nawet, że lepiej od oryginału gdyż spaliny generowane przez samochód nie dostają się do części mieszkalnej. Doskonałym posunięciem było także poszerzenie garażu o 80 cm. Dzięki temu nawet po wstawieniu auta mamy w nim miejsce na przechowywanie innych rzeczy. Oprócz tego nad głównym wejściem wykonałem praktyczny daszek, co również mogę doradzić innym Inwestorom tego projektu.Uważam, że projekt domu parterowego z poddaszem użytkowym Dom przy Cyprysowej 9 KRK1223 został praktycznie przemyślany. Kilka niedużych zmian wystarczyło, aby nowy dom w całości spełniał wszystkie oczekiwania naszej rodziny. Jego wnętrze jest w pełni komfortowe w użytkowaniu, a wszyscy odwiedzający nas goście chwalą funkcjonalność rozkładu pomieszczeń. Moim zdaniem projekt posiada same plusy - nie tylko pod względem wnętrza, ale także konstrukcji. Budynek jest dosyć łatwy w realizacji i spokojnie mogę polecić go innym. Pozdrawiam.

ASYSTENT WYBORU PROJEKTU

Szukasz idealnego projektu? Znajdziemy go dla Ciebie!

Doradca na podstawie Twoich wskazówek przygotuje spersonalizowaną listę projektów

Graficzne opracowanie rzutów poglądowych widocznych na karcie projektu zostało wykonane przez Extradom.pl. Prezentowane przez Extradom.pl wizualizacje wykonane zostały przez autora projektu i należy poczytywać je jedynie za przykład i propozycję wykończenia, wizję architektoniczną autora projektu. Ostateczne wykończenie budynku może nastąpić na wiele sposobów. Szczegółowe rozwiązania zastosowane w oferowanej dokumentacji - w tym również ilość, lokalizacje i wygląd okien, drzwi, kominów - mogą w niewielkim stopniu różnić się od prezentowanej wizualizacji budynku.

REKLAMA
Zamknij