👉 Projekty w extracenach! ✂️

Koniec oferty za:

0dni

00godz.

00min.

00sek.

Sprawdź

Projekt domu D67 - Paulinka WAI1005

Dodano!
Dodano!

Warstwy

Warstwy

Rzut parteru

Powierzchnia (m²)
Tooltip
Powierzchnia pomieszczenia
to ta, z której faktycznie możesz korzystać – skosy i niskie części poddasza są liczone częściowo lub wcale.
  1. 100% dla wysokości powyżej 2,2 m,
  2. 50% dla wysokości 1,4–2,2 m,
  3. nie liczymy poniżej 1,4 m.

Powierzchnia podłogi
Liczymy po obrysie pomieszczenia, bez względu na jego wysokość/skosy. Jeśli nie ma skosów to powierzchnia podłogi i pomieszczenia jest taka sama.
pomieszczenia i podłogi
podłogi
1. Wiatrołap
2,55
2. Łazienka
6,15
3. Pokój
9,26
4. Pokój dzienny + jadalnia
23,29
5. Kuchnia
4,59
6. Schody
3,10
Razem
48,94
48,94
7. Taras
3,64
8. Taras
15,09
Powierzchnia (m²)
Tooltip
Powierzchnia pomieszczenia
to ta, z której faktycznie możesz korzystać – skosy i niskie części poddasza są liczone częściowo lub wcale.
  1. 100% dla wysokości powyżej 2,2 m,
  2. 50% dla wysokości 1,4–2,2 m,
  3. nie liczymy poniżej 1,4 m.

Powierzchnia podłogi
Liczymy po obrysie pomieszczenia, bez względu na jego wysokość/skosy. Jeśli nie ma skosów to powierzchnia podłogi i pomieszczenia jest taka sama.
pomieszczenia
podłogi
1. Hall
2,75
3,75
2. Pokój
6,40
9,38
3. Pokój
5,02
7,37
Razem
14,17
20,50

    Usytuowanie na działce

    Czy ten projekt pasuje na
    Twoją działkę?

    Chętnie to sprawdzimy!

    Dowiedz się:

    • czy zmieści się na niej wybrany przez Ciebie dom
    • jakie parametry musi spełniać dom według miejscowego planu zagospodarowania lub warunków zabudowy (np. kąt nachylenia i typ dachu, liczba kondygnacji itp.
    • jakie inne projekty pasują na Twoją działkę – znajdziemy je dla Ciebie!

Pow. użytkowa

63,11 m²

Pokoje

3

Łazienki i WC

1

Garaż

0

Min. szer. i dł. działki

17,38 x 14,83 m

Kąt dachu

40°

Szacunkowy koszt SSZ

162 000 zł
Szacunkowy koszt budowy do stanu surowego zamkniętego (SSZ) metodą gospodarczą - większość prac wykonuje inwestor.

Konstrukcja

Murowana
więcej

D67 - Paulinka - WAI1005

ikona 63,11 m²
Powierzchnia użytkowa
ikona3
Pokoje (bez salonu)
ikona 1
Łazienki (z toaletami)
ikona 0
Liczba stanowisk garażowych
(z wiatą garażową)
ikona
Konstrukcja: Murowana

Promocja od 03.02.2026, koniec za:

0 dni

00 00 00

3 949 zł

Tooltip

Cena regularna obowiązywała od 27.01.2026 do 02.02.2026

Cena regularna: 4 299 zł
Najniższa cena z 30 dni przed obniżką: 3 249 zł
Gwarancja najniższej ceny Gwarancja najniższej ceny Tooltip

Projekt jest dostępny Tooltip

GRATIS 10% rabatu do LEROY MERLIN

GRATIS 16% rabatu w SELSEY

GRATIS Przydatne Extradodatki

GRATIS Poradnik Dach Solarny

100 dni na wymianę, 30 dni na zwrot

Darmowa dostawa - kurier, paczkomaty

Bezpłatne pozwolenie na zmiany

Dokumentacja zgodna z WT2021

Pokaż więcej (6)
Konsultant Masz pytania?
Zadzwoń
71 715 20 60

pon.-pt. 8-21, sob. 9-17

Szukasz wykonawcy godnego zaufania?
Zleć budowę w Extradom.pl!

  • Z góry znasz koszt budowy domu
  • Dom odbierasz zgodnie z ustalonym harmonogramem - nawet w 6 miesięcy
  • Zabezpiecza Cię jedna kompleksowa umowa z jednym wykonawcą
  • Otrzymujesz nawet 30-letnią gwarancję na konstrukcję domu
  • Oszczędzasz swój czas dzięki pewnej i kompletnej usłudze
Cena brutto stanu
deweloperskiego od
Tooltip
Cena brutto stanu deweloperskiego od 4 719 do 6 939 zł/m2.
Cena jest uzależniona m.in. od lokalizacji, wybranej technologii, kubatury budynku, skomplikowania projektu i ewentualnych zmian, na które zdecyduje się inwestor.
Cena za m2 powierzchni netto, czyli wszystkich pomieszczeń mierzonych na wysokości podłogi.
4 719 zł/m2
Dowiedz się więcej
Konsultant Masz pytania?
Zadzwoń
71 715 20 70

pon.-pt. 8-19

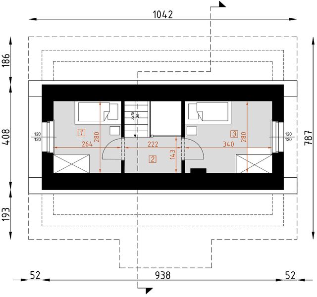
Parter - 48,94 m²

Parter projektu D67 - Paulinka

Zapytaj, co możesz zmienić

Powierzchnia (m²)
Tooltip
Powierzchnia pomieszczenia
to ta, z której faktycznie możesz korzystać – skosy i niskie części poddasza są liczone częściowo lub wcale.
  1. 100% dla wysokości powyżej 2,2 m,
  2. 50% dla wysokości 1,4–2,2 m,
  3. nie liczymy poniżej 1,4 m.

Powierzchnia podłogi
Liczymy po obrysie pomieszczenia, bez względu na jego wysokość/skosy. Jeśli nie ma skosów to powierzchnia podłogi i pomieszczenia jest taka sama.
pomieszczenia i podłogi
podłogi
1. Wiatrołap
2,55
2. Łazienka
6,15
3. Pokój
9,26
4. Pokój dzienny + jadalnia
23,29
5. Kuchnia
4,59
6. Schody
3,10
Razem
48,94
48,94
7. Taras
3,64
8. Taras
15,09

Natychmiast, otrzymasz PDF-y
z rzutami wszystkich kondygnacji

Poddasze - 14,17 m²

Poddasze projektu D67 - Paulinka

Zapytaj, co możesz zmienić

Powierzchnia (m²)
Tooltip
Powierzchnia pomieszczenia
to ta, z której faktycznie możesz korzystać – skosy i niskie części poddasza są liczone częściowo lub wcale.
  1. 100% dla wysokości powyżej 2,2 m,
  2. 50% dla wysokości 1,4–2,2 m,
  3. nie liczymy poniżej 1,4 m.

Powierzchnia podłogi
Liczymy po obrysie pomieszczenia, bez względu na jego wysokość/skosy. Jeśli nie ma skosów to powierzchnia podłogi i pomieszczenia jest taka sama.
pomieszczenia
podłogi
1. Hall
2,75
3,75
2. Pokój
6,40
9,38
3. Pokój
5,02
7,37
Razem
14,17
20,50

Natychmiast, otrzymasz PDF-y
z rzutami wszystkich kondygnacji

Zamów rysunki szczegółowe

Zapoznaj się ze szczegółowymi rysunkami rzutów kondygnacji w PDF dla tego projektu.

Warianty projektu (4)

PROMOCJA
Projekt domu D67 - Paulinka I wersja drewniana
66,76 m²
3
1
0

4 049 zł

4 399 zł

Tooltip

Cena regularna

3 349 zł najniższa cena
Tooltip

Najniższa cena z 30 dni
przed obniżką

PROMOCJA
Projekt domu D67 - Paulinka I
D67 - Paulinka I
Dodano!
Dodano!
63,11 m²
3
1
0

3 949 zł

4 299 zł

Tooltip

Cena regularna

3 249 zł najniższa cena
Tooltip

Najniższa cena z 30 dni
przed obniżką

PROMOCJA
Projekt domu D67 - Paulinka z piwnicą
D67 - Paulinka z piwnicą
Dodano!
Dodano!
89,44 m²
4
3
0

4 149 zł

4 499 zł

Tooltip

Cena regularna

3 649 zł najniższa cena
Tooltip

Najniższa cena z 30 dni
przed obniżką

PROMOCJA
Projekt domu D67 - Paulinka wersja drewniana
66,76 m²
3
1
0

4 049 zł

4 399 zł

Tooltip

Cena regularna

3 349 zł najniższa cena
Tooltip

Najniższa cena z 30 dni
przed obniżką

Podobne projekty (52)

Zobacz wszystkie
EXTRACENA
Nowość
Zdjęcie 1 projektu Jaskółka XL 5 - murowana GDE1100
Jaskółka XL 5 - murowana
Dodano!
Dodano!
60,92 m²
3
2
0

3 350 zł

3 450 zł

Tooltip

Cena regularna

3 350 zł najniższa cena
Tooltip

Najniższa cena z 30 dni
przed obniżką

PROMOCJA
Zdjęcie 1 projektu Nasza Stodoła S KRY1003
Nasza Stodoła S
Dodano!
Dodano!
72,97 m²
4
3
0

4 650 zł

5 000 zł

Tooltip

Cena regularna

4 500 zł najniższa cena
Tooltip

Najniższa cena z 30 dni
przed obniżką

PROMOCJA
Zdjęcie 1 projektu Stodoła Chalet wersja murowana KRY1013
74,53 m²
3
2
0

4 185 zł

4 800 zł

Tooltip

Cena regularna

4 050 zł najniższa cena
Tooltip

Najniższa cena z 30 dni
przed obniżką

EXTRACENA
Zdjęcie 1 projektu Oleńka WAH1560
Oleńka
Dodano!
Dodano!
67,57 m²
3
2
0

4 672 zł

5 840 zł

Tooltip

Cena regularna

4 432 zł najniższa cena
Tooltip

Najniższa cena z 30 dni
przed obniżką

EXTRACENA
Zdjęcie 1 projektu Sosenka wariant Ł WAH1455
Sosenka wariant Ł
Dodano!
Dodano!
53,67 m²
2
1
1

4 552 zł

5 690 zł

Tooltip

Cena regularna

4 312 zł najniższa cena
Tooltip

Najniższa cena z 30 dni
przed obniżką

EXTRACENA
Zdjęcie 1 projektu Chatka 2 WAH1221
Chatka 2
Dodano!
Dodano!
64,78 m²
3
2
0

4 440 zł

5 550 zł

Tooltip

Cena regularna

4 200 zł najniższa cena
Tooltip

Najniższa cena z 30 dni
przed obniżką

EXTRACENA
Zdjęcie 1 projektu Sosenka wariant L WAH1454
Sosenka wariant L
Dodano!
Dodano!
64,44 m²
2
1
0

4 472 zł

5 590 zł

Tooltip

Cena regularna

4 232 zł najniższa cena
Tooltip

Najniższa cena z 30 dni
przed obniżką

EXTRACENA
Zdjęcie 1 projektu Mandarynka 2 BSA2270
Mandarynka 2
Dodano!
Dodano!
70,73 m²
2
1
0

4 449 zł

4 849 zł

Tooltip

Cena regularna

4 049 zł najniższa cena
Tooltip

Najniższa cena z 30 dni
przed obniżką

Metody i koszt budowy

Ten dom możesz budować metodą gospodarczą, systemem zleconym lub skorzystać z naszej oferty Projekt z Budową. Przy porównaniu weź pod uwagę nie tylko koszt, ale też różny zakres prac i standard wykonania.

Metoda gospodarcza

Najtańsza metoda - większość prac
budowlanych wykonuje inwestor

Stan surowy zamknięty (SSZ)

162 000 zł netto

Szacunkowy koszt materiałów na IV kwartał 2025
  • Prace ziemne i fundamenty

    26 000 zł
  • Konstrukcja, strop oraz dach

    112 000 zł
  • Stolarka okienna i drzwiowa

    24 000 zł
  • Instalacje

    nie obejmuje
  • Prace wykończeniowe

    nie obejmuje
  • Możesz budować etapami, pamiętając jednak o zmianie kosztów w czasie
  • Możesz rozpocząć budowę z częścią niezbędnych środków
  • Sam ustalasz harmonogram, koordynujesz budowę i zapewniasz materiały
Czy da się obniżyć koszty budowy?
Zobacz nasz film jak obniżyć koszt budowy

Projekt z Budową

Najszybsza i najwygodniejsza metoda -
całą budowę domu realizuje jedna firma

Stan deweloperski
Gwarancja stałego kosztu budowy

Gwarancja stałego
kosztu budowy

  • Prace ziemne i fundamenty
  • Konstrukcja, strop oraz dach
  • Stolarka okienna i drzwiowa
  • Instalacje  
    Tooltip

    Obejmuje wykonanie instalacji:

    • wodno-kanalizacyjnej
    • centralnego ogrzewania
    • gazowej
    • elektrycznej
  • Prace wykończeniowe  
    Tooltip

    Prace wykończeniowe obejmują:

    • sufity i ściany wewnętrzne
    • tynki i okładziny ścian wewnętrznych
    • wylewki i posadzkę
    • ocieplenie ścian zewnętrznych i elewację

Budowa
nawet w
6mies.

  • Kompleksowa umowa i znany z góry koszt budowy
  • Logistyka, organizacja budowy i zakupy po stronie firmy budowlanej
  • Formalności i dokumentacje po stronie firmy budowlanej
  • Różne technologie budowy dopasowane do projektu i budżetu
Szczegóły i dostępne technologie
icon

Polecamy

Kosztorys

Zawiera zestawienie wszystkich potrzebnych materiałów wraz z ich cenami, uwzględnia koszty sprzętu i transportu. Z kosztorysem:

  • poznasz całkowite koszty budowy
  • zaplanujesz prace na budowie
  • łatwiej ocenisz konkurencyjność ofert podwykonawców
  • otrzymasz dokument wymagany w procesie kredytowym

Elewacje

Frontowa
Tylna
Lewa
Prawa

Przekroje

Przekrój pionowy

Usytuowanie na działce

Czy ten projekt pasuje na
Twoją działkę?

Chętnie to sprawdzimy!

Czy ten projekt pasuje na
Twoją działkę?

Chętnie to sprawdzimy!

Dowiedz się:

  • czy zmieści się na niej wybrany przez Ciebie dom
  • jakie parametry musi spełniać dom według miejscowego planu zagospodarowania lub warunków zabudowy (np. kąt nachylenia i typ dachu, liczba kondygnacji itp.
  • jakie inne projekty pasują na Twoją działkę – znajdziemy je dla Ciebie!
Autor: Artinex

Dane techniczne projektu

Powierzchnie i wymiary Powierzchnie i wymiary

Powierzchnia użytkowa
Tooltip
Suma powierzchni wszystkich pomieszczeń mieszkalnych, pomniejszona o pow. garażu, kotłowni, strychu, piwnicy. Jest liczona w 100% dla pomieszczeń o wysokości powyżej 2,2 m, w 50% dla pomieszczeń o wys. 2,2-1,4 m i niewliczana dla niższych niż 1,4 m.

63,11 m²

Powierzchnia zabudowy
Tooltip
Powierzchnia zajmowana przez część na- oraz nadziemną budynku liczona, jako rzut pionowy budynku na działkę.

64,37 m²

Kubatura brutto
Tooltip
Zazwyczaj jest to suma kubatur (objętości) wszystkich pomieszczeń budynku, liczonych po zewnętrznym obrysie murów (z ociepleniem).

322,40 m³

Powierzchnia dachu

113,17 m²

Kąt nachylenia dachu
Tooltip
Nachylenie połaci dachu głównego podawane w stopniach. Uwaga! W niektórych projektach występuje więcej niż jedno nachylenie dachu.

40°

Wysokość budynku
Tooltip
Wysokość liczona od części budynku położonej najniżej przy powierzchni terenu do najwyższego punktu dachu (kalenicy) z wyłączeniem kominów.

6,57 m

Szerokość elewacji

9,38 m

Długość elewacji

6,83 m

Min. szerokość działki
Tooltip
Najmniejsza możliwa szerokość działki niezbędna do wybudowania wybranego domu. Składa się z szerokości elewacji domu powiększonej z obu stron o 3 m dla ściany bez otworów drzwiowych/okiennych lub 4 m, dla ściany z otworami.

17,38 m

Min. długość działki
Tooltip
Najmniejsza możliwa długość działki niezbędna do wybudowania wybranego domu. Składa się z długości elewacji domu powiększonej z obu stron o 3 m dla ściany bez otworów drzwiowych/okiennych lub 4 m, dla ściany z otworami.

14,83 m

Energooszczędność Energooszczędność

Oze Czym jest OZE (Odnawialne Źródło Energii)?
Ogrzewanie główne

Gazowe - szczegóły

Interesuje Cię inne źródło ogrzewania? Wyślij zapytanie lub zadzwoń do doradcy

Wentylacja

Grawitacyjna - szczegóły

Dodatkowo istnieje możliwość zamówienia projektu z

Wentylacja mechaniczna z rekuperacją

Warunki techniczne

Projekt zgody z WT 2021

Technologia i konstrukcja Technologia i konstrukcja

Konstrukcja

Murowana

PROJEKT Z BUDOWĄ Istnieje możliwość zaadaptowania tego projektu do technologii prefabrykowanej/modułowej i budowy nawet w 6 miesięcy ze stałym kosztem budowy

Dowiedz się więcej »
Opis szczegółowy

Ściany zewnętrzne: dwuwarstwowe, beton komórkowy 24 cm + styropian 20cm. Strop: gęstożebrowy. Konstrukcja dachu: krokwie przy stropie gęstożebrowym. Pokrycie dachu: blachodachówka. Elewacja: tynk cienkowarstwowy, na fragmentach ścian deski i płytki klinkierowe. Ogrzewanie: gazowe EP70 kWh/m2.rok Projekt zgodny z WT2021.

Strop

Gęstożebrowy

Reklama
Okna i drzwi tarasowe

Nowoczesne okna PVC i aluminiowe WIŚNIOWSKI – doskonała izolacja, elegancki design i niezrównana trwałość.

Wiśniowski
Sprawdź parametry!
Okna dachowe

Oferujemy bezpłatne konsultacje w zakresie wszystkich rozwiązań VELUX. Wyceny, porady dotyczące doboru okien i rolet zewnętrznych - sprawdź!

Velux
Sprawdź szczegóły
Płytki ceramiczne i gresy

Od małych formatów po wielkoformatowe gresy. Marmur, beton, drewno, kamień, lastryko czy cegiełki zamówisz wygodnie online z szybką dostawą.

Ceramzet
Sprawdź ofertę
Drzwi

Ciepłe drzwi WIŚNIOWSKI z kontrolą dostępu. Szeroka gama wzorów i kolorów.

Wiśniowski
Wybierz najlepsze
Bramy garażowe

Automatyczne bramy garażowe segmentowe i uchylne WIŚNIOWSKI na wymiar i z systemem smart home w standardzie.

Wiśniowski
Sprawdź ofertę!
Armatura i ceramika łazienkowa

Topowi producenci. Baterie łazienkowe, zestawy natynkowe i podtynkowe, umywalki, wanny, miski WC oraz kabiny zamówisz kompleksowo online.

Ceramzet II
Dowiedz się więcej
Rekuperacja

Alnor - kompletny system rekuperacji. Dobierz idealne rozwiązanie dla Twojego domu!

Alnor
Dobierz rekuperator
Dach

Producent stalowych pokryć dachowych i systemów elewacyjnych. Precyzja wykonania, trwałość na lata i szybki montaż doceniany przez dekarzy. Postaw na solidny dach Budmat.

Budmat
Sprawdź ofertę
Ogrodzenie

Nowoczesne stalowe ogrodzenia Budmat - estetyka, bezpieczeństwo i trwałość na lata. Systemowe rozwiązania na wymiar, dopasowane do każdego domu.

Budmat
Sprawdź ofertę

Gotowe domy modułowe (118)

Zobacz wszystkie
Stan deweloperski nawet w 6 miesięcy Gwarancja stałej ceny
Zdjęcie 1 projektu Dom prefabrykowany DH70-1 HDH1004
Pow. użytkowa
64,87 m²
Pokoje
2
426 600 zł 5 796 zł/m²
Zdjęcie 1 projektu Dom szkieletowy Mezzanine Smart 50 HHT1010
Pow. użytkowa
61,13 m²
Pokoje
1
324 700 zł 5 346 zł/m²
Zdjęcie 1 projektu Dom prefabrykowany DH70-2 HDH1005
Pow. użytkowa
66,44 m²
Pokoje
3
433 080 zł 5 678 zł/m²
Zdjęcie 1 projektu Dom szkieletowy Family Smart 50 HHT1005
Pow. użytkowa
67,67 m²
Pokoje
3
385 800 zł 5 701 zł/m²
Zdjęcie 1 projektu Dom szkieletowy Vista Smart 80 HHT1022
Pow. użytkowa
69,20 m²
Pokoje
3
390 830 zł 5 648 zł/m²
Zdjęcie 1 projektu Dom szkieletowy One Step Smart 70 HHT1015
Pow. użytkowa
55,49 m²
Pokoje
2
342 468 zł 6 172 zł/m²
Zdjęcie 1 projektu Dom prefabrykowany Parterowy 70B HFX1001
Pow. użytkowa
70,79 m²
Pokoje
2
369 000 zł 5 213 zł/m²
Zdjęcie 1 projektu Dom prefabrykowany Parterowy 70A HFX1000
Pow. użytkowa
70,91 m²
Pokoje
3
369 000 zł 5 204 zł/m²

Dodatki do projektu

Dodatki możesz zamówić w koszyku lub telefonicznie u naszego Doradcy.

Czym jest OZE (Odnawialne Źródło Energii)?

Ikona

Bestseller

Kosztorys

999 zł

Ikona

Bestseller

Dodatkowy egzemplarz projektu

490 zł

Ikona

Bestseller

Projekt płyty fundamentowej

1 180 zł

Ikona

Oze

Wentylacja mechaniczna z rekuperacją

890 zł

Ikona

Oze

Powietrzna pompa ciepła + ogrzewanie podłogowe

1 890 zł

Opis projektu domu
D67 - Paulinka

Projekt domu D67 - Paulinka to ciekawa propozycja dla osób posiadających wąską działkę, gdyż wymiary budynku dają możliwość ciekawego zagospodarowania terenu. Dom charakteryzuje się typową bryłą, co znacznie ułatwia późniejszą aranżację wnętrza. W tym projekcie kalenica usytuowana jest równolegle do drogi, co jest bardzo istotnie, gdy wymaga tego plan zagospodarowania przestrzennego. Kierowany jest do Inwestorów posiadających działkę pozwalającą na realizację projektu w zabudowie wolnostojącej. Jest to również ciekawa propozycja dla osób szukających domu z dachem dwuspadowym, co pozwala na znaczne oszczędności. Projekt D67 - Paulinka to dom parterowy z poddaszem użytkowym, dzięki czemu możemy cieszyć się sporym metrażem nawet na stosunkowo niedużej działce. Projekt domu charakteryzuje się przestronną strefą dzienną. Kuchnia zamknięta na salon jest rozwiązaniem przede wszystkim funkcjonalnym. Zamknięta strefa ogranicza przedostawanie się hałasu do innych części domu. Usytuowany w salonie kominek sprawi, iż wnętrze stanie się bardziej przytulne. Architekt przewidział także na parterze komfortową łazienkę. Trzy komfortowe pokoje zaspokoją potrzeby 2-4 osobowej rodziny. Przestrzeń można wykorzystać także jako pokój dla gości lub gabinet. Taras jest idealnym miejscem do organizowania rodzinnych spotkań i chwili relaksu. Budynek został zaprojektowany w technologii murowanej. Jego wygląd zewnętrzny uwydatnia cechy charakterystyczne dla stylu tradycyjnego, dzięki czemu idealnie wpisze się w dowolny krajobraz. Dom do 70 m
Czytaj więcej

Informacje dodatkowe

Projekt stanowi aktualną i pełną dokumentację zawierającą część architektoniczno - budowlaną, konstrukcyjną wykonawczą, instalacji wewnętrznych, elektrycznych i teletechnicznych, charakterystykę energetyczną oraz uprawnienia projektantów. Dokumentacja zabezpieczona jest specjalną plombą, której usunięcie uniemożliwi jej zwrot oraz wymianę. Do zamówienia zostanie dołączony pakiet poglądowych rysunków szczegółowych, pozwalających zapoznać się z projektem bez konieczności zrywania plomby z właściwej dokumentacji projektowej.

Czytaj więcej

Polecani producenci

Kompletne systemy rekuperacji

tło producenta

Alnor

Dowiedz się więcej

Prefabrykowane konstrukcje dachowe

tło producenta

WIĄZAR POLSKA

Zobacz więcej

Sprawdź nową generację okien GREENVIEW

tło producenta

FAKRO

Sprawdź nową generację okien GREENVIEW

Styropian, tynki, farby, kleje

tło producenta

Termo Organika

Poznaj super jakość

Okna, drzwi, osłony przeciwsłoneczne

tło producenta

Aluprof

Sprawdź ofertę
Zobacz więcej

Społeczność projektu domu
D67 - Paulinka w budowie

Dołącz do społeczności osób, które budują ten dom lub są zainteresowane jego budową.

  • Oglądaj zdjęcia z budowy
  • Zadawaj pytania
  • Wymieniaj się doświadczeniami

Opinie o projekcie domu D67 - Paulinka

Ocena

Ten projekt nie ma jeszcze opinii, bądź pierwszy!

Dodaj opinię

Wywiady mieszkańców domu D67 - Paulinka

Zdjęcie profilowe użytkownika Anoda Anoda

Projekt domu D67 - Paulinka WAI1005 wybrałem dla córki. Chciałem, aby był to mały prosty i murowany domek, choć ona upierała się na drewniany. Udało mi się jednak ją przekonać do mojego pomysłu i teraz zgodnie stwierdzamy, że był to odpowiedni wybór. Domek jest ogrzewany kominkiem (z rozprowadzeniem na wszystkie pomieszczenia) i, dodatkowo na parterze elektrycznymi podłogowymi matami grzewczymi. Kosztów jako takich nie liczyliśmy, ponieważ przebywamy tam głównie od maja do października - służy głównie jako domek letniskowy. Także eksploatacja nie jest zbyt kosztowna. Układ pomieszczeń w domu jest odpowiedni. Uważam, że nawet 4 osoby mogłyby nawet na stałe w nim bardzo wygodnie mieszkać. Jedyne czego brakuje i nie udało się nam stworzyć to dodatkowa ubikacja na górze, co byłoby możliwe przy niewielkiej modyfikacji dachu. Wtedy dom byłby już idealny. Zastanawiam się także, czy nie byłoby dobrym pomysłem zadaszenie tarasu na długości połowy domu - w razie deszczu byłoby się gdzie schować. Poza tym, zdecydowaliśmy się powiększyć okna w kuchni i łazience - teraz wnętrze jest bardzo jasne i przyjemne. Tym bardziej, że dom jest ustawiony w osi północ-południe, z salonem od południa, więc wszystko naprawdę ze sobą współgra. Dom świetnie nadaje się także na różne zjazdy rodzinny i przyjęcia. Spokojnie możemy się w nim spotykać, odpoczywać i bawić się. Projekt domu parterowego z poddaszem użytkowym D67 - Paulinka WAI1005 to był trafny wybór. Jest on dobrze przemyślany, a nasze małe poprawki jeszcze go trochę polepszyły. Polecam i pozdrawiam.

Zdjęcie profilowe użytkownika anpiosyol anpiosyol

Wybraliśmy projekt domu D67 - Paulinka WAI1005, ponieważ szukaliśmy małego domu, który miałby właśnie takie nachylenie dachu. A ten akurat spełniał nasze wymagania. Taras mam skierowany na północ. Zdecydowaliśmy się podnieść ściankę kolankową o jakieś 30-40cm. Było to bardzo dobrym pomysłem, teraz mamy większe pokoje na poddaszu i znalazło się miejsce pomiędzy pokojami na małą toaletę. Mamy także dachówkę inną niż zakładał projekt domu D67 - Paulinka WAI1005, gdyż postawiliśmy na ceramiczną i zmieniliśmy daszek nad wejściem. Dodam jeszcze, że wzmocniliśmy ławę i dzięki temu stopy mogły być betonowe, a nie drewniane. Dom ogrzewamy gazem, a dodatkowo jest kominek. Jesteśmy zadowoleni z tego wyboru. W domu mieszkamy razem z żoną, więc dom jest jak najbardziej odpowiedni wielkościowo. Oczywiście, jeśli przyjadą goście, mamy gdzie ich ugościć ze względu na przestronny salon. Możemy także ich przenocować, jeśli zajdzie taka potrzeba. Zrobiliśmy również okna dachowe, dzięki temu teraz już w całym domu jest jasno. Ta zmiana wyszła nam na plus. Jesteśmy bardzo zadowoleni z projektu parterowego domu jednorodzinnego D67 - Paulinka WAI1005. Bardzo wygodnie w nim się mieszka. Polecam i pozdrawiam.

Zdjęcie profilowe użytkownika oljoze1 oljoze1

Z zawodu jestem budowlańcem i przepracowałem w tej branży 44 lata. Po przejściu na emeryturę, mając więcej czasu wolnego, zdecydowałem się na hobbystyczną budowę domku letniskowego na działce pod lasem. Na co dzień mieszkamy w mieście, a z domku chcieliśmy korzystać z żoną rekreacyjnie podczas weekendów. Szukaliśmy więc prostego budynku o niedużym, idealnym dla naszej dwójki metrażu ok. 60 m². Spośród propozycji spełniających te wymagania, do gustu najbardziej przypadł nam projekt D67 - Paulinka WAI1005.Dom zrealizowałem samodzielnie, a z pomocy innych fachowców skorzystałem jedynie przy zabetonowaniu płyty i ułożenia pokrycia dachowego. Całą resztę wykonałem własnymi siłami i muszę przyznać, że wszystko poszło po mojej myśli. Dokumentacja techniczna pod względem konstrukcyjnym była dobrze sporządzona, a wszystkie prace udało mi się wykonać naprawdę sprawnie. Obecnie do całkowitego zakończenia inwestycji zostały mi ostatnie wewnętrzne wykończenia.Do postawienia budynku użyłem ceramicznych pustaków Porotherm marki Wienerberger. Bryłę z zewnątrz ociepliłem 15 cm warstwą grafitowego styropianu o współczynniku 0,033, zaś izolację poddasza tworzy wełna mineralna 25 cm. Dzięki zastosowanym rozwiązaniom dom ma bardzo dobre parametry cieplne. Strop wykonałem w konstrukcji monolitycznej, a dach pokryłem blachodachówką. Z racji budowy metodą gospodarczą trudno jest mi się odnieść do poprawności kosztorysu. Pracą własną zaoszczędziłem ok. 40% na robociźnie i w naszym przypadku koszty realizacji projektu D67 - Paulinka WAI1005 były dużo mniejsze niż sugerowane.Nie mieliśmy możliwości podłączenia do działki instalacji gazowej jaką przewidywał projekt, dlatego też musieliśmy zmienić system instalacji grzewczej. Do ogrzewania domu w chłodniejsze wiosenne czy jesiennie wieczory będziemy korzystać z usytuowanego w salonie kominka z nadmuchem ciepłego powietrza. Aby jednak móc w przyszłości zamontować piec na paliwo stałe, nieduże pomieszczenie techniczne wygospodarowałem między łazienką a wiatrołapem.Świetnym pomysłem okazało się zadaszenie tarasu, co umożliwiło nam spędzanie czasu na świeżym powietrzu, nawet podczas niepogody. Szczerze polecam to innym Inwestorom, jednak należy pamiętać o tym, aby nie robić zadaszenia nad oknem w sypialni, gdyż ograniczy to dostęp słońca do pokoju. Dodatkowo postanowiliśmy wydłużyć frontowy daszek, tak iż obecnie jest on na połowę długości domu. Od frontu domu mamy piękny widok dlatego jest to idealne miejsce na postawienie ławeczki. Aby piękny krajobraz był lepiej widoczny w domu, poszerzyliśmy kuchenne okno. Oprócz tego wstawiliśmy dwa okna połaciowe - nad klatką schodową i w pokoju na górze.Innym Inwestorom projektu domu D67 - Paulinka WAI1005 mogę poradzić również podniesienie ścianki kolankowej o wysokość jednego pustaka (nie więcej, gdyż wtedy dom straci na zewnętrznym wyglądzie). Takie rozwiązanie sprawi, że poddasze stanie się przestronniejsze i bardziej użytkowe, a dodatkowo pozwoli na wygospodarowanie małej łazienki naprzeciw klatki schodowej.Wybór projektu domu parterowego z poddaszem użytkowym D67 - Paulinka WAI1005 okazał się dla nas jak najbardziej trafioną decyzją. Z racji nabytego przez wiele lat doświadczenia wiedziałem, co mogę w nim zmienić, aby stał się jeszcze bardziej funkcjonalny i obecnie w nowym domu dostrzegam same plusy. Wnętrze jest w pełni wygodne dla dwóch osób, a jedyne czego nieco obecnie żałuję to fakt, iż nie zdecydowałem się na zrobienie podpiwniczenia. Projekt domu D67 - Paulinka WAI1005 to prosty, łatwy w budowie i wygodny dom, który w dodatku bardzo ładnie wygląda z zewnątrz. Pozdrawiam.

ASYSTENT WYBORU PROJEKTU

Szukasz idealnego projektu? Znajdziemy go dla Ciebie!

Doradca na podstawie Twoich wskazówek przygotuje spersonalizowaną listę projektów

Graficzne opracowanie rzutów poglądowych widocznych na karcie projektu zostało wykonane przez Extradom.pl. Prezentowane przez Extradom.pl wizualizacje wykonane zostały przez autora projektu i należy poczytywać je jedynie za przykład i propozycję wykończenia, wizję architektoniczną autora projektu. Ostateczne wykończenie budynku może nastąpić na wiele sposobów. Szczegółowe rozwiązania zastosowane w oferowanej dokumentacji - w tym również ilość, lokalizacje i wygląd okien, drzwi, kominów - mogą w niewielkim stopniu różnić się od prezentowanej wizualizacji budynku.

Extradom.pl Spółka z ograniczoną odpowiedzialnością z siedzibą przy ul. Jaworskiej 13, 53-612 Wrocław, wpisana do rejestru przedsiębiorców Krajowego Rejestru Sądowego przez Sąd Rejonowy dla Wrocławia-Fabrycznej we Wrocławiu, VI Wydział Gospodarczy Krajowego Rejestru Sądowego do pod numerem KRS 0000648746, numer NIP 895-17-18-333, o kapitale zakładowym 708 150,00 zł uprzejmie informuje, iż poprzez serwis Extradom.pl umożliwia m.in. zapoznanie się przez konsumentów z ofertą handlową Partnerów Extradom.pl, którzy stosują metody budowy domów przy wykorzystaniu różnego rodzaju technologie prefabrykacji bądź modułowe (tzw. „Gotowe domy”).

Extradom.pl nie prowadzi jednakże sprzedaży ani nie oferuje usług polegających na doradztwie finansowym, prawnym ani podatkowym w zakresie inwestycji realizowanych w technologiach tzw. „Gotowych domów”. Informacje prezentowane w serwisie Extradom.pl dotyczące Partnerów Extradom.pl oferujących realizację inwestycji w technologiach „Gotowych domów” lub podobnych mają charakter informacyjny i reklamowy.

Prezentowane w serwisie Extradom.pl informacje dotyczące stosowanych przez Partnerów metod budowy domów w technologii prefabrykacji bądź modułowej pochodzą od Partnerów Extradom.pl.

Extradom.pl sp. z o.o. jedynie umożliwia nawiązanie kontaktu przez Użytkownika z Partnerem Extradom.pl stosującym tego rodzaju technologie budowy domów i nie jest stroną umowy o roboty budowlane zawieranej przez Użytkownika Extradom.pl z Partnerem Extradom.pl.

REKLAMA
Zamknij