👉 Rozgrzewające rabaty! 🔥

Projekt domu D21-X13 G2 WSA1012

Dodano!
Dodano!

Warstwy

Warstwy

Rzut parteru

Powierzchnia (m²)
Tooltip
Powierzchnia pomieszczenia
to ta, z której faktycznie możesz korzystać – skosy i niskie części poddasza są liczone częściowo lub wcale.
  1. 100% dla wysokości powyżej 2,2 m,
  2. 50% dla wysokości 1,4–2,2 m,
  3. nie liczymy poniżej 1,4 m.

Powierzchnia podłogi (wartość w nawiasie)
Liczymy po całym obrysie pomieszczenia, bez względu na jego wysokość.
107,15
1. Wiatrołap
2,73
2. Hall + schody
12,34
3. Kuchnia
9,36
4. Spiżarnia
2,71
5. Pokój dzienny + jadalnia
31,71
6. Łazienka
3,27
7. Pomieszczenie gospodarcze
6,01
8. Garaż dwustanowiskowy
39,02
Powierzchnia (m²)
Tooltip
Powierzchnia pomieszczenia
to ta, z której faktycznie możesz korzystać – skosy i niskie części poddasza są liczone częściowo lub wcale.
  1. 100% dla wysokości powyżej 2,2 m,
  2. 50% dla wysokości 1,4–2,2 m,
  3. nie liczymy poniżej 1,4 m.

Powierzchnia podłogi (wartość w nawiasie)
Liczymy po całym obrysie pomieszczenia, bez względu na jego wysokość.
42,42
1. Korytarz
5,52
2. Pokój
9,75
3. Garderoba
4,48
4. Pokój
7,98
5. Pokój
7,98
6. Łazienka
5,31
7. Pomieszczenie gospodarcze
1,40

    Usytuowanie na działce

    Czy ten projekt pasuje na
    Twoją działkę?

    Chętnie to sprawdzimy!

    Dowiedz się:

    • czy zmieści się na niej wybrany przez Ciebie dom
    • jakie parametry musi spełniać dom według miejscowego planu zagospodarowania lub warunków zabudowy (np. kąt nachylenia i typ dachu, liczba kondygnacji itp.
    • jakie inne projekty pasują na Twoją działkę – znajdziemy je dla Ciebie!

Pow. użytkowa

104,54 m²

Pokoje

3

Łazienki i WC

2

Garaż

2

Min. szer. i dł. działki

17,54 x 25,94 m

Kąt dachu

45°

Konstrukcja

Murowana
więcej

D21-X13 G2 - WSA1012

ikona 104,54 m²
Powierzchnia użytkowa
ikona3
Pokoje (bez salonu)
ikona 2
Łazienki (z toaletami)
ikona 2
Liczba stanowisk garażowych
(z wiatą garażową)
ikona
Konstrukcja: Murowana

Projekt został
wycofany z oferty

W razie pytań prosimy o kontakt
z Centrum Obsługi Klienta
Konsultant Masz pytania?
Zadzwoń
71 715 20 60

pon.-pt. 8-21, sob. 9-17

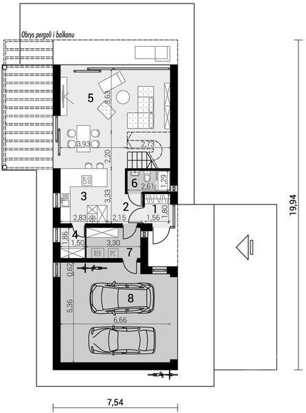
Parter - 107,15 m²

Parter projektu D21-X13 G2

Zapytaj, co możesz zmienić

Powierzchnia (m²)
Tooltip
Powierzchnia pomieszczenia
to ta, z której faktycznie możesz korzystać – skosy i niskie części poddasza są liczone częściowo lub wcale.
  1. 100% dla wysokości powyżej 2,2 m,
  2. 50% dla wysokości 1,4–2,2 m,
  3. nie liczymy poniżej 1,4 m.

Powierzchnia podłogi (wartość w nawiasie)
Liczymy po całym obrysie pomieszczenia, bez względu na jego wysokość.
(107,15)
107,15
1. Wiatrołap
2,73
2. Hall + schody
12,34
3. Kuchnia
9,36
4. Spiżarnia
2,71
5. Pokój dzienny + jadalnia
31,71
6. Łazienka
3,27
7. Pomieszczenie gospodarcze
6,01
8. Garaż dwustanowiskowy
39,02

Poddasze - 42,42 m²

Poddasze projektu D21-X13 G2

Zapytaj, co możesz zmienić

Powierzchnia (m²)
Tooltip
Powierzchnia pomieszczenia
to ta, z której faktycznie możesz korzystać – skosy i niskie części poddasza są liczone częściowo lub wcale.
  1. 100% dla wysokości powyżej 2,2 m,
  2. 50% dla wysokości 1,4–2,2 m,
  3. nie liczymy poniżej 1,4 m.

Powierzchnia podłogi (wartość w nawiasie)
Liczymy po całym obrysie pomieszczenia, bez względu na jego wysokość.
(42,42)
42,42
1. Korytarz
5,52
2. Pokój
9,75
3. Garderoba
4,48
4. Pokój
7,98
5. Pokój
7,98
6. Łazienka
5,31
7. Pomieszczenie gospodarcze
1,40

Podobne projekty (6764)

Zobacz wszystkie
NIŻSZA CENA ✂️
Zdjęcie 1 projektu Jaskółka 5 z garażem XL WRL1061
Jaskółka 5 z garażem XL
Dodano!
Dodano!
119,70 m²
4
2
1

4 499 zł

4 999 zł

Tooltip

Cena regularna

4 199 zł najniższa cena
Tooltip

Najniższa cena z 30 dni
przed obniżką

Zdjęcie 1 projektu D21-13 G2 WSA1026
D21-13 G2
Dodano!
Dodano!
101,13 m²
3
2
2

7 000 zł

NIŻSZA CENA ✂️
Zdjęcie 1 projektu A-22 PZB1039
A-22
Dodano!
Dodano!
99,06 m²
3
2
1

6 165 zł

6 490 zł

Tooltip

Cena regularna

5 841 zł najniższa cena
Tooltip

Najniższa cena z 30 dni
przed obniżką

NIŻSZA CENA ✂️
Zdjęcie 1 projektu Malachit BSA2216
Malachit
Dodano!
Dodano!
121,68 m²
4
3
1

4 599 zł

4 949 zł

Tooltip

Cena regularna

4 449 zł najniższa cena
Tooltip

Najniższa cena z 30 dni
przed obniżką

NIŻSZA CENA ✂️
Zdjęcie 1 projektu BW-36 wariant 5 JGC1163
BW-36 wariant 5
Dodano!
Dodano!
99,10 m²
3
2
1

3 530 zł

3 630 zł

Tooltip

Cena regularna

3 430 zł najniższa cena
Tooltip

Najniższa cena z 30 dni
przed obniżką

NIŻSZA CENA ✂️
Zdjęcie 1 projektu Domidea 50 d40 - 6 pokojowy WAC1047
Domidea 50 d40 - 6 pokojowy
Dodano!
Dodano!
115,94 m²
5
2
1

5 112 zł

5 412 zł

Tooltip

Cena regularna

5 112 zł najniższa cena
Tooltip

Najniższa cena z 30 dni
przed obniżką

NIŻSZA CENA ✂️
Zdjęcie 1 projektu Lars G1 (wersja A) WRC2590
Lars G1 (wersja A)
Dodano!
Dodano!
108,67 m²
3
2
1

3 760 zł

4 700 zł

Tooltip

Cena regularna

3 760 zł najniższa cena
Tooltip

Najniższa cena z 30 dni
przed obniżką

Zdjęcie 1 projektu D21-2D WSA1032
D21-2D
Dodano!
Dodano!
109,55 m²
3
3
0

7 000 zł

Elewacje

Frontowa
Tylna
Lewa
Prawa

Przekroje

Przekrój pionowy

Usytuowanie na działce

Czy ten projekt pasuje na
Twoją działkę?

Chętnie to sprawdzimy!

Czy ten projekt pasuje na
Twoją działkę?

Chętnie to sprawdzimy!

Dowiedz się:

  • czy zmieści się na niej wybrany przez Ciebie dom
  • jakie parametry musi spełniać dom według miejscowego planu zagospodarowania lub warunków zabudowy (np. kąt nachylenia i typ dachu, liczba kondygnacji itp.
  • jakie inne projekty pasują na Twoją działkę – znajdziemy je dla Ciebie!
Autor: Domy 21

Dane techniczne projektu

Powierzchnie i wymiary Powierzchnie i wymiary

Powierzchnia użytkowa
Tooltip
Suma powierzchni wszystkich pomieszczeń mieszkalnych, pomniejszona o pow. garażu, kotłowni, strychu, piwnicy. Jest liczona w 100% dla pomieszczeń o wysokości powyżej 2,2 m, w 50% dla pomieszczeń o wys. 2,2-1,4 m i niewliczana dla niższych niż 1,4 m.

104,54 m²

Powierzchnia zabudowy
Tooltip
Powierzchnia zajmowana przez część na- oraz nadziemną budynku liczona, jako rzut pionowy budynku na działkę.

135,98 m²

Kąt nachylenia dachu
Tooltip
Nachylenie połaci dachu głównego podawane w stopniach. Uwaga! W niektórych projektach występuje więcej niż jedno nachylenie dachu.

45°

Wysokość budynku
Tooltip
Wysokość liczona od części budynku położonej najniżej przy powierzchni terenu do najwyższego punktu dachu (kalenicy) z wyłączeniem kominów.

8,05 m

Szerokość elewacji

7,54 m

Długość elewacji

19,44 m

Min. szerokość działki
Tooltip
Najmniejsza możliwa szerokość działki niezbędna do wybudowania wybranego domu. Składa się z szerokości elewacji domu powiększonej z obu stron o 3 m dla ściany bez otworów drzwiowych/okiennych lub 4 m, dla ściany z otworami.

17,54 m

Min. długość działki
Tooltip
Najmniejsza możliwa długość działki niezbędna do wybudowania wybranego domu. Składa się z długości elewacji domu powiększonej z obu stron o 3 m dla ściany bez otworów drzwiowych/okiennych lub 4 m, dla ściany z otworami.

25,94 m

Energooszczędność Energooszczędność

Oze Czym jest OZE (Odnawialne Źródło Energii)?
Ep
Tooltip
Energia pierwotna określa ilość energii nieodnawialnej potrzebnej w ciągu roku do ogrzewania czy też ogrzania wody użytkowej z uwzględnieniem kosztów produkcji i transportu surowców energetycznych.

30,35 kWh/(m²rok)

Ogrzewanie główne

Pompa ciepła (OZE) - szczegóły

Interesuje Cię inne źródło ogrzewania? Wyślij zapytanie lub zadzwoń do doradcy

Wentylacja

Mechaniczna nawiewno-wywiewna z rekuperacją - szczegóły

Instalacje w projekcie

Ogrzewanie podłogowe (na całej powierzchni domu lub w jej części, szczegóły u doradcy)

Warunki techniczne

Projekt zgody z WT 2021

Technologia i konstrukcja Technologia i konstrukcja

Konstrukcja

Murowana

Opis szczegółowy

Fundamenty: płyta fundamentowa. Ściany zewnętrzne: murowane, dwuwarstwowe, beton komórkowy 24 cm, ocieplenie styropian 20 cm. Ściany wewnętrzne: nośne i działowe murowane, beton komórkowy 24 cm i 12 cm. Strop i stropodach nad garażem: międzypiętrowy gęstożebrowy Teriva, stropodach pełny, ocieplenie wełna mineralna 20 cm. Dach: konstrukcja drewniana, ocieplenie wełna mineralna 30 cm, krycie dachu: blacha trapezowa w kolorze antracytowym. Inne: schody wewnętrzne drewniane. Ogrzewanie: pompa ciepła typu powietrze/woda, rozprowadzenie ciepła - ogrzewanie podłogowe. Wentylacja: wentylacja mechaniczna nawiewno-wywiewna z odzyskiem ciepła. Dodatkowo: panele fotowoltaiczne, stacja uzdatniania wody, gniazdo instalacji elektrycznej do ładowania auta. Elewacje: okładzina drewniana wg technologii montażu i barwienia drewna wybranego producenta; rekomendowany kolor okładziny drewnianej: okładzina drewniana czarna - deski palone świerkowe lub modrzewiowe, jasne drewno - modrzew syberyjski lub świerk skandynawski, ułożenie desek pionowe. Stolarka: drewniana, PVC lub aluminiowa, drzwi podnoszono-przesuwne typu HS oraz fasada aluminiowo-szklana, drzwi wejściowe i brama garażowa kolorystycznie dopasowane do systemu okiennego; żaluzje przeciwsłoneczne w systemie współgrającym z systemem okien. Okna połaciowe: rozwiązania technologiczne, świetliki tunelowe i wyłaz dachowy dopasowane do systemu pokrycia dachowego. Otoczenie: płyty tarasowe i kostka betonowa, system tarasowy - deska kompozytowa lub drewno naturalne w kolorze współgrającym z elewacją.

Strop

Gęstożebrowy

Reklama
Okna i drzwi tarasowe

Nowoczesne okna PVC i aluminiowe WIŚNIOWSKI – doskonała izolacja, elegancki design i niezrównana trwałość.

Wiśniowski
Sprawdź parametry!
Okna dachowe

Oferujemy bezpłatne konsultacje w zakresie wszystkich rozwiązań VELUX. Wyceny, porady dotyczące doboru okien i rolet zewnętrznych - sprawdź!

Velux
Sprawdź szczegóły
Dach

Producent stalowych pokryć dachowych i elewacyjnych - 40 lat doświadczenia. Zbuduj solidny dach z nami!

Blachy Pruszyński
Sprawdź szczegóły
Płytki ceramiczne i gresy

Od małych formatów po wielkoformatowe gresy. Marmur, beton, drewno, kamień, lastryko czy cegiełki zamówisz wygodnie online z szybką dostawą.

Ceramzet
Sprawdź ofertę
Drzwi

Ciepłe drzwi WIŚNIOWSKI z kontrolą dostępu. Szeroka gama wzorów i kolorów.

Wiśniowski
Wybierz najlepsze
Bramy garażowe

Automatyczne bramy garażowe segmentowe i uchylne WIŚNIOWSKI na wymiar i z systemem smart home w standardzie.

Wiśniowski
Sprawdź ofertę!
Armatura i ceramika łazienkowa

Topowi producenci. Baterie łazienkowe, zestawy natynkowe i podtynkowe, umywalki, wanny, miski WC oraz kabiny zamówisz kompleksowo online.

Ceramzet II
Dowiedz się więcej
Rekuperacja

Alnor - kompletny system rekuperacji. Dobierz idealne rozwiązanie dla Twojego domu!

Alnor
Dobierz rekuperator
Gruntowe pompy ciepła

Przeprowadzimy kompletną instalację najbardziej oszczędnego źródła ciepła w Twoim nowym domu - gruntowej pompy ciepła. Od dokumentacji, pozwoleń, po odwierty i instalację.

Geothermal Solutions
Dowiedz się więcej

Gotowe domy modułowe (113)

Zobacz wszystkie
Stan deweloperski nawet w 6 miesięcy Gwarancja stałej ceny
Zdjęcie 1 projektu Dom prefabrykowany DH127 HDH1008
Pow. użytkowa
104,71 m²
Pokoje
3
482 220 zł 4 451 zł/m²
Zdjęcie 1 projektu Dom szkieletowy Green Smart 120 HHT1027
Pow. użytkowa
105,59 m²
Pokoje
5
586 400 zł 5 554 zł/m²
Zdjęcie 1 projektu Dom prefabrykowany DEX106 HDX1001
Pow. użytkowa
106 m²
Pokoje
3
685 000 zł 6 462 zł/m²
Zdjęcie 1 projektu Dom szkieletowy Spruce Smart 112 HHT1030
Pow. użytkowa
102,60 m²
Pokoje
3
550 500 zł 5 365 zł/m²
Zdjęcie 1 projektu Dom keramzytowy Essenzia 110 HRK1001
Pow. użytkowa
107 m²
Pokoje
3
474 120 zł 4 431 zł/m²
Zdjęcie 1 projektu ExtraBetonowy 1 HPK1017
Gotowy extraBetonowy 1
Dodano!
Dodano!
Pow. użytkowa
107,27 m²
Pokoje
3
531 160 zł 4 952 zł/m²
Zdjęcie 1 projektu Dom prefabrykowany P.8 HPK1007
Pow. użytkowa
108,05 m²
Pokoje
4
609 500 zł 5 641 zł/m²
Zdjęcie 1 projektu Dom keramzytowy Atrakcyjna Stodoła AS132G HAK1004
Pow. użytkowa
108,09 m²
Pokoje
3
645 500 zł 4 889 zł/m²

Opis projektu domu
D21-X13 G2

Projekt domu D21-X13 G2 bez komina to w pełni ekologiczny, nowoczesny dom stodoła z poddaszem, wyposażony w instalacje gwarantujące bezemisyjną produkcję energii. Minimalistyczna, monochromatyczna bryła nawiązuje do tradycji, a jednocześnie idealnie wpisuje się w otoczenie i współczesne trendy. Architektura domu od frontu chroni prywatność właścicieli, z kolei od strony ogrodu szeroko otwiera wnętrze na piękno natury, pozwalając domownikom cieszyć się panoramicznymi widokami oraz wrażeniem niczym nieskrępowanej przestrzeni. Układ pomieszczeń czytelnie podzieliliśmy na strefy między kondygnacjami. Na parterze rządzi tempo dnia – znajduje się tu rodzinna przestrzeń wspólna – duży salon, kuchnia ze spiżarnią oraz jadalnia. Na poddaszu zaplanowaliśmy zaciszną strefę nocną doświetloną oknami połaciowymi. Dopełnieniem wnętrza są dwa klimatyczne tarasy – jeden nad garażem wyposażony w wygodne meble i ozdobiony roślinnością, a drugi na poziomie parteru, który w ciepłe miesiące jest jak drugi salon i jadalnia na świeżym powietrzu. Zadbaliśmy o jego nowoczesne zadaszenie, dzięki czemu kapryśna pogoda nie zepsuje rodzinnego grilla i pozwoli znaleźć ukojenie wśród zieleni nawet podczas padającego deszczu. Projekt D21-X13 G2 to gotowy przepis na komfortowy, zdrowy, nowoczesny dom, przyjazny zarówno dla swoich mieszkańców, jak i środowiska.
Czytaj więcej

Polecani producenci

Prefabrykowane konstrukcje dachowe

tło producenta

WIĄZAR POLSKA

Zobacz więcej

Sprawdź nową generację okien GREENVIEW

tło producenta

FAKRO

Sprawdź nową generację okien GREENVIEW

Styropian, tynki, farby, kleje

tło producenta

Termo Organika

Poznaj super jakość

Okna, drzwi, osłony przeciwsłoneczne

tło producenta

Aluprof

Sprawdź ofertę

Kompletne systemy rekuperacji

tło producenta

Alnor

Dowiedz się więcej

Sprawdź nowy system DACHRYNNA

tło producenta

Galeco

Sprawdź ofertę
Zobacz więcej

Społeczność projektu domu
D21-X13 G2 w budowie

Dołącz do społeczności osób, które budują ten dom lub są zainteresowane jego budową.

  • Oglądaj zdjęcia z budowy
  • Zadawaj pytania
  • Wymieniaj się doświadczeniami

Opinie o projekcie domu D21-X13 G2

Ocena

Ten projekt nie ma jeszcze opinii, bądź pierwszy!

Dodaj opinię

ASYSTENT WYBORU PROJEKTU

Szukasz idealnego projektu? Znajdziemy go dla Ciebie!

Doradca na podstawie Twoich wskazówek przygotuje spersonalizowaną listę projektów

Graficzne opracowanie rzutów poglądowych widocznych na karcie projektu zostało wykonane przez Extradom.pl. Prezentowane przez Extradom.pl wizualizacje wykonane zostały przez autora projektu i należy poczytywać je jedynie za przykład i propozycję wykończenia, wizję architektoniczną autora projektu. Ostateczne wykończenie budynku może nastąpić na wiele sposobów. Szczegółowe rozwiązania zastosowane w oferowanej dokumentacji - w tym również ilość, lokalizacje i wygląd okien, drzwi, kominów - mogą w niewielkim stopniu różnić się od prezentowanej wizualizacji budynku.

REKLAMA
Zamknij