Projekty nawet 500 zł taniej ❄️

Koniec oferty za:

0dni

00godz.

00min.

00sek.

Sprawdź

Projekt domu D154A WAI1270

Dodano!
Dodano!

Warstwy

Warstwy

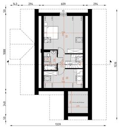
Rzut parteru

Powierzchnia (m²)
Tooltip
Powierzchnia pomieszczenia
to ta, z której faktycznie możesz korzystać – skosy i niskie części poddasza są liczone częściowo lub wcale.
  1. 100% dla wysokości powyżej 2,2 m,
  2. 50% dla wysokości 1,4–2,2 m,
  3. nie liczymy poniżej 1,4 m.

Powierzchnia podłogi
Liczymy po obrysie pomieszczenia, bez względu na jego wysokość/skosy. Jeśli nie ma skosów to powierzchnia podłogi i pomieszczenia jest taka sama.
pomieszczenia i podłogi
podłogi
1. Wiatrołap
5,61
2. Hall
5,76
3. Pokój
10,62
4. Łazienka
3,86
5. Spiżarnia
3,37
6. Kuchnia
9,85
7. Pokój dzienny + jadalnia
28,05
8. Pomieszczenie gospodarcze
1,10
9. Kotłownia
6,20
10. Garaż jednostanowiskowy
23,53
Razem
97,95
97,95
11. Taras
5
12. Taras
7,47
13. Taras
2,10
Powierzchnia (m²)
Tooltip
Powierzchnia pomieszczenia
to ta, z której faktycznie możesz korzystać – skosy i niskie części poddasza są liczone częściowo lub wcale.
  1. 100% dla wysokości powyżej 2,2 m,
  2. 50% dla wysokości 1,4–2,2 m,
  3. nie liczymy poniżej 1,4 m.

Powierzchnia podłogi
Liczymy po obrysie pomieszczenia, bez względu na jego wysokość/skosy. Jeśli nie ma skosów to powierzchnia podłogi i pomieszczenia jest taka sama.
pomieszczenia
podłogi
1. Hall
2,74
2,74
2. Schody
4,27
4,27
3. Pokój
23,62
27,20
4. Pokój
10,30
13,77
5. Łazienka
2,99
4,80
Razem
43,92
52,78

    Usytuowanie na działce

    Czy ten projekt pasuje na
    Twoją działkę?

    Chętnie to sprawdzimy!

    Dowiedz się:

    • czy zmieści się na niej wybrany przez Ciebie dom
    • jakie parametry musi spełniać dom według miejscowego planu zagospodarowania lub warunków zabudowy (np. kąt nachylenia i typ dachu, liczba kondygnacji itp.
    • jakie inne projekty pasują na Twoją działkę – znajdziemy je dla Ciebie!

Pow. użytkowa

112,16 m²

Pokoje

3

Łazienki i WC

2

Garaż

1

Min. szer. i dł. działki

19,35 x 22,36 m

Kąt dachu

34°

Szacunkowy koszt SSZ

294 000 zł
Szacunkowy koszt budowy do stanu surowego zamkniętego (SSZ) metodą gospodarczą - większość prac wykonuje inwestor.

Konstrukcja

Murowana
więcej

D154A - WAI1270

ikona 112,16 m²
Powierzchnia użytkowa
ikona3
Pokoje (bez salonu)
ikona 2
Łazienki (z toaletami)
ikona 1
Liczba stanowisk garażowych
(z wiatą garażową)
ikona
Konstrukcja: Murowana

Promocja od 18.12.2025, koniec za:

0 dni

00 00 00

4 149 zł

Tooltip

Cena regularna obowiązywała od 15.12.2025 do 17.12.2025

Cena regularna: 4 499 zł
Najniższa cena z 30 dni przed obniżką: 3 549 zł
Gwarancja najniższej ceny Gwarancja najniższej ceny Tooltip

Projekt jest dostępny Tooltip

GRATIS 10% rabatu do LEROY MERLIN

GRATIS Przydatne Extradodatki

GRATIS Poradnik Dach Solarny

100 dni na wymianę, 30 dni na zwrot

Darmowa dostawa - kurier, paczkomaty

Bezpłatne pozwolenie na zmiany

Dokumentacja zgodna z WT2021

Pokaż więcej (5)
Konsultant Masz pytania?
Zadzwoń
71 715 20 60

pon.-pt. 8-21, sob. 9-17

Szukasz wykonawcy godnego zaufania?
Zleć budowę w Extradom.pl!

  • Z góry znasz koszt budowy domu
  • Dom odbierasz zgodnie z ustalonym harmonogramem - nawet w 6 miesięcy
  • Zabezpiecza Cię jedna kompleksowa umowa z jednym wykonawcą
  • Otrzymujesz nawet 30-letnią gwarancję na konstrukcję domu
  • Oszczędzasz swój czas dzięki pewnej i kompletnej usłudze
Cena brutto stanu
deweloperskiego od
Tooltip
Cena brutto stanu deweloperskiego od 4 529 do 5 829 zł/m2.
Cena jest uzależniona m.in. od lokalizacji, wybranej technologii, kubatury budynku, skomplikowania projektu i ewentualnych zmian, na które zdecyduje się inwestor.
Cena za m2 powierzchni netto, czyli wszystkich pomieszczeń mierzonych na wysokości podłogi.
4 529 zł/m2
Dowiedz się więcej
Konsultant Masz pytania?
Zadzwoń
71 715 20 70

pon.-pt. 8-19

Parter - 97,95 m²

Parter projektu D154A

Zapytaj, co możesz zmienić

Powierzchnia (m²)
Tooltip
Powierzchnia pomieszczenia
to ta, z której faktycznie możesz korzystać – skosy i niskie części poddasza są liczone częściowo lub wcale.
  1. 100% dla wysokości powyżej 2,2 m,
  2. 50% dla wysokości 1,4–2,2 m,
  3. nie liczymy poniżej 1,4 m.

Powierzchnia podłogi
Liczymy po obrysie pomieszczenia, bez względu na jego wysokość/skosy. Jeśli nie ma skosów to powierzchnia podłogi i pomieszczenia jest taka sama.
pomieszczenia i podłogi
podłogi
1. Wiatrołap
5,61
2. Hall
5,76
3. Pokój
10,62
4. Łazienka
3,86
5. Spiżarnia
3,37
6. Kuchnia
9,85
7. Pokój dzienny + jadalnia
28,05
8. Pomieszczenie gospodarcze
1,10
9. Kotłownia
6,20
10. Garaż jednostanowiskowy
23,53
Razem
97,95
97,95
11. Taras
5
12. Taras
7,47
13. Taras
2,10

Natychmiast, otrzymasz PDF-y
z rzutami wszystkich kondygnacji

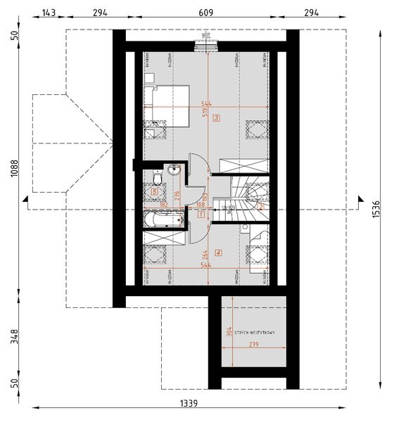
Poddasze - 43,92 m²

Poddasze projektu D154A

Zapytaj, co możesz zmienić

Powierzchnia (m²)
Tooltip
Powierzchnia pomieszczenia
to ta, z której faktycznie możesz korzystać – skosy i niskie części poddasza są liczone częściowo lub wcale.
  1. 100% dla wysokości powyżej 2,2 m,
  2. 50% dla wysokości 1,4–2,2 m,
  3. nie liczymy poniżej 1,4 m.

Powierzchnia podłogi
Liczymy po obrysie pomieszczenia, bez względu na jego wysokość/skosy. Jeśli nie ma skosów to powierzchnia podłogi i pomieszczenia jest taka sama.
pomieszczenia
podłogi
1. Hall
2,74
2,74
2. Schody
4,27
4,27
3. Pokój
23,62
27,20
4. Pokój
10,30
13,77
5. Łazienka
2,99
4,80
Razem
43,92
52,78

Natychmiast, otrzymasz PDF-y
z rzutami wszystkich kondygnacji

Zamów rysunki szczegółowe

Zapoznaj się ze szczegółowymi rysunkami rzutów kondygnacji w PDF dla tego projektu.

Podobne projekty (2650)

Zobacz wszystkie
Zdjęcie 1 projektu D21-13 G2 WSA1026
D21-13 G2
Dodano!
Dodano!
101,13 m²
3
2
2

7 000 zł

Zdjęcie 1 projektu NewHouse 755 G2 w1 KRZ1107
NewHouse 755 G2 w1
Dodano!
Dodano!
123,23 m²
4
2
2

5 990 zł

NIŻSZA CENA❄️
Zdjęcie 1 projektu Ambitny 2 WAH2046
Ambitny 2
Dodano!
Dodano!
121,16 m²
4
3
1

4 792 zł

5 990 zł

Tooltip

Cena regularna

4 492 zł najniższa cena
Tooltip

Najniższa cena z 30 dni
przed obniżką

NIŻSZA CENA❄️
Zdjęcie 1 projektu AJR_19_A1 WOJ1004
AJR_19_A1
Dodano!
Dodano!
145 m²
4
2
1

4 400 zł

4 700 zł

Tooltip

Cena regularna

4 300 zł najniższa cena
Tooltip

Najniższa cena z 30 dni
przed obniżką

NIŻSZA CENA❄️
Zdjęcie 1 projektu HomeKoncept 101 G1 KRX1205
HomeKoncept 101 G1
Dodano!
Dodano!
91,22 m²
3
2
1

5 390 zł

5 890 zł

Tooltip

Cena regularna

5 006 zł najniższa cena
Tooltip

Najniższa cena z 30 dni
przed obniżką

NIŻSZA CENA❄️
Zdjęcie 1 projektu N-133 PZB1042
N-133
Dodano!
Dodano!
119,16 m²
3
3
1

8 408 zł

8 850 zł

Tooltip

Cena regularna

6 156 zł najniższa cena
Tooltip

Najniższa cena z 30 dni
przed obniżką

Zdjęcie 1 projektu NewHouse 755 G1 KRZ1093
NewHouse 755 G1
Dodano!
Dodano!
123,23 m²
4
2
1

5 990 zł

Nowość
Zdjęcie 1 projektu Kompaktowy 03A KZB1028
Kompaktowy 03A
Dodano!
Dodano!
115,09 m²
3
2
1

4 300 zł

Metody i koszt budowy

Ten dom możesz budować metodą gospodarczą, systemem zleconym lub skorzystać z naszej oferty Projekt z Budową. Przy porównaniu weź pod uwagę nie tylko koszt, ale też różny zakres prac i standard wykonania.

Metoda gospodarcza

Najtańsza metoda - większość prac
budowlanych wykonuje inwestor

Stan surowy zamknięty (SSZ)

294 000 zł netto

Szacunkowy koszt materiałów na III kwartał 2025
  • Prace ziemne i fundamenty

    53 000 zł
  • Konstrukcja, strop oraz dach

    198 000 zł
  • Stolarka okienna i drzwiowa

    43 000 zł
  • Instalacje

    nie obejmuje
  • Prace wykończeniowe

    nie obejmuje
  • Możesz budować etapami, pamiętając jednak o zmianie kosztów w czasie
  • Możesz rozpocząć budowę z częścią niezbędnych środków
  • Sam ustalasz harmonogram, koordynujesz budowę i zapewniasz materiały
Czy da się obniżyć koszty budowy?
Zobacz nasz film jak obniżyć koszt budowy

Projekt z Budową

Najszybsza i najwygodniejsza metoda -
całą budowę domu realizuje jedna firma

Stan deweloperski
Gwarancja stałego kosztu budowy

Gwarancja stałego
kosztu budowy

  • Prace ziemne i fundamenty
  • Konstrukcja, strop oraz dach
  • Stolarka okienna i drzwiowa
  • Instalacje  
    Tooltip

    Obejmuje wykonanie instalacji:

    • wodno-kanalizacyjnej
    • centralnego ogrzewania
    • gazowej
    • elektrycznej
  • Prace wykończeniowe  
    Tooltip

    Prace wykończeniowe obejmują:

    • sufity i ściany wewnętrzne
    • tynki i okładziny ścian wewnętrznych
    • wylewki i posadzkę
    • ocieplenie ścian zewnętrznych i elewację

Budowa
nawet w
6mies.

  • Kompleksowa umowa i znany z góry koszt budowy
  • Logistyka, organizacja budowy i zakupy po stronie firmy budowlanej
  • Formalności i dokumentacje po stronie firmy budowlanej
  • Różne technologie budowy dopasowane do projektu i budżetu
Szczegóły i dostępne technologie
icon

Polecamy

Kosztorys

Zawiera zestawienie wszystkich potrzebnych materiałów wraz z ich cenami, uwzględnia koszty sprzętu i transportu. Z kosztorysem:

  • poznasz całkowite koszty budowy
  • zaplanujesz prace na budowie
  • łatwiej ocenisz konkurencyjność ofert podwykonawców
  • otrzymasz dokument wymagany w procesie kredytowym

Elewacje

Frontowa
Tylna
Lewa
Prawa

Przekroje

Przekrój pionowy

Usytuowanie na działce

Czy ten projekt pasuje na
Twoją działkę?

Chętnie to sprawdzimy!

Czy ten projekt pasuje na
Twoją działkę?

Chętnie to sprawdzimy!

Dowiedz się:

  • czy zmieści się na niej wybrany przez Ciebie dom
  • jakie parametry musi spełniać dom według miejscowego planu zagospodarowania lub warunków zabudowy (np. kąt nachylenia i typ dachu, liczba kondygnacji itp.
  • jakie inne projekty pasują na Twoją działkę – znajdziemy je dla Ciebie!
Autor: Artinex

Dane techniczne projektu

Powierzchnie i wymiary Powierzchnie i wymiary

Powierzchnia użytkowa
Tooltip
Suma powierzchni wszystkich pomieszczeń mieszkalnych, pomniejszona o pow. garażu, kotłowni, strychu, piwnicy. Jest liczona w 100% dla pomieszczeń o wysokości powyżej 2,2 m, w 50% dla pomieszczeń o wys. 2,2-1,4 m i niewliczana dla niższych niż 1,4 m.

112,16 m²

Powierzchnia zabudowy
Tooltip
Powierzchnia zajmowana przez część na- oraz nadziemną budynku liczona, jako rzut pionowy budynku na działkę.

132,72 m²

Kubatura brutto
Tooltip
Zazwyczaj jest to suma kubatur (objętości) wszystkich pomieszczeń budynku, liczonych po zewnętrznym obrysie murów (z ociepleniem).

745 m³

Kąt nachylenia dachu
Tooltip
Nachylenie połaci dachu głównego podawane w stopniach. Uwaga! W niektórych projektach występuje więcej niż jedno nachylenie dachu.

34°

Wysokość budynku
Tooltip
Wysokość liczona od części budynku położonej najniżej przy powierzchni terenu do najwyższego punktu dachu (kalenicy) z wyłączeniem kominów.

7,14 m

Szerokość elewacji

12,35 m

Długość elewacji

14,36 m

Min. szerokość działki
Tooltip
Najmniejsza możliwa szerokość działki niezbędna do wybudowania wybranego domu. Składa się z szerokości elewacji domu powiększonej z obu stron o 3 m dla ściany bez otworów drzwiowych/okiennych lub 4 m, dla ściany z otworami.

19,35 m

Min. długość działki
Tooltip
Najmniejsza możliwa długość działki niezbędna do wybudowania wybranego domu. Składa się z długości elewacji domu powiększonej z obu stron o 3 m dla ściany bez otworów drzwiowych/okiennych lub 4 m, dla ściany z otworami.

22,36 m

Energooszczędność Energooszczędność

Oze Czym jest OZE (Odnawialne Źródło Energii)?
Ogrzewanie główne

Gazowe - szczegóły

Interesuje Cię inne źródło ogrzewania? Wyślij zapytanie lub zadzwoń do doradcy

Wentylacja

Grawitacyjna - szczegóły

Dodatkowo istnieje możliwość zamówienia projektu z

Wentylacja mechaniczna z rekuperacją

Warunki techniczne

Projekt zgody z WT 2021

Technologia i konstrukcja Technologia i konstrukcja

Konstrukcja

Murowana

PROJEKT Z BUDOWĄ Istnieje możliwość zaadaptowania tego projektu do technologii prefabrykowanej/modułowej i budowy nawet w 6 miesięcy ze stałym kosztem budowy

Dowiedz się więcej »
Opis szczegółowy

Ściany zewnętrzne: murowane z ociepleniem. Strop: drewniany. Pokrycie dachu: blachodachówka. Elewacja: tynk cienkowarstwowy, na fragmentach płyty z piaskowca lub imitacji kamienia.

Strop

Drewniany

Reklama
Okna i drzwi tarasowe

Nowoczesne okna PVC i aluminiowe WIŚNIOWSKI – doskonała izolacja, elegancki design i niezrównana trwałość.

Wiśniowski
Sprawdź parametry!
Okna dachowe

Oferujemy bezpłatne konsultacje w zakresie wszystkich rozwiązań VELUX. Wyceny, porady dotyczące doboru okien i rolet zewnętrznych - sprawdź!

Velux
Sprawdź szczegóły
Płytki ceramiczne i gresy

Od małych formatów po wielkoformatowe gresy. Marmur, beton, drewno, kamień, lastryko czy cegiełki zamówisz wygodnie online z szybką dostawą.

Ceramzet
Sprawdź ofertę
Drzwi

Ciepłe drzwi WIŚNIOWSKI z kontrolą dostępu. Szeroka gama wzorów i kolorów.

Wiśniowski
Wybierz najlepsze
Bramy garażowe

Automatyczne bramy garażowe segmentowe i uchylne WIŚNIOWSKI na wymiar i z systemem smart home w standardzie.

Wiśniowski
Sprawdź ofertę!
Armatura i ceramika łazienkowa

Topowi producenci. Baterie łazienkowe, zestawy natynkowe i podtynkowe, umywalki, wanny, miski WC oraz kabiny zamówisz kompleksowo online.

Ceramzet II
Dowiedz się więcej
Rekuperacja

Alnor - kompletny system rekuperacji. Dobierz idealne rozwiązanie dla Twojego domu!

Alnor
Dobierz rekuperator
Gruntowe pompy ciepła

Przeprowadzimy kompletną instalację najbardziej oszczędnego źródła ciepła w Twoim nowym domu - gruntowej pompy ciepła. Od dokumentacji, pozwoleń, po odwierty i instalację.

Geothermal Solutions
Dowiedz się więcej

Gotowe domy modułowe (114)

Zobacz wszystkie
Stan deweloperski nawet w 6 miesięcy Gwarancja stałej ceny
Zdjęcie 1 projektu Dom prefabrykowany Parterowy 110C HFX1014
Pow. użytkowa
112,16 m²
Pokoje
4
465 000 zł 4 146 zł/m²
Zdjęcie 1 projektu Dom szkieletowy Moly Smart 112 HHT1028
Pow. użytkowa
112 m²
Pokoje
3
553 375 zł 4 941 zł/m²
Zdjęcie 1 projektu Dom szkieletowy Family Smart 70 HHT1006
Pow. użytkowa
111,77 m²
Pokoje
5
534 125 zł 5 046 zł/m²
Zdjęcie 1 projektu Dom prefabrykowany Parterowy 110B HFX1013
Pow. użytkowa
111,33 m²
Pokoje
4
465 000 zł 4 177 zł/m²
Zdjęcie 1 projektu Dom szkieletowy Forest Smart 120 HHT1017
Pow. użytkowa
113,18 m²
Pokoje
4
535 459 zł 4 730 zł/m²
Zdjęcie 1 projektu Dom prefabrykowany Parterowy 110A HFX1009
Pow. użytkowa
110,71 m²
Pokoje
3
465 000 zł 4 200 zł/m²
Zdjęcie 1 projektu Dom keramzytowy EP1 HAK1006
Gotowy dom keramzytowy EP1
Dodano!
Dodano!
Pow. użytkowa
110,58 m²
Pokoje
3
473 700 zł 4 284 zł/m²
Zdjęcie 1 projektu Dom szkieletowy Functional Smart 110 HHT1018
Pow. użytkowa
110,12 m²
Pokoje
3
525 337 zł 4 771 zł/m²

Dodatki do projektu

Dodatki możesz zamówić w koszyku lub telefonicznie u naszego Doradcy.

Czym jest OZE (Odnawialne Źródło Energii)?

Ikona

Bestseller

Kosztorys

999 zł

Ikona

Bestseller

Dodatkowy egzemplarz projektu

490 zł

Ikona

Bestseller

Projekt płyty fundamentowej

1 180 zł

Ikona

Oze

Wentylacja mechaniczna z rekuperacją

890 zł

Ikona

Oze

Powietrzna pompa ciepła + ogrzewanie podłogowe

1 890 zł

Opis projektu domu
D154A

Projekt domu D154A to ciekawa propozycja dla osób posiadających średniej szerokości działkę. Dom cechuje się prostą bryłą, przez co jest tani w budowie. Uwzględniony w nim wykusz nadaje konstrukcji wyjątkowego charakteru. Projekt należy do kategorii domów z kalenicą usytuowaną prostopadle do drogi, co jest bardzo istotne, gdy wymagają tego warunki zabudowy. Jest przeznaczony do zabudowy wolnostojącej. W projekcie zaplanowano garaż jednostanowiskowy wysunięty do przodu. Jest to również ciekawa propozycja dla osób szukających domu z dachem dwuspadowym, co pozwala na ograniczenie kosztów. Projekt D154A to dom parterowy z poddaszem użytkowym, co sprawia, że strefa dzienna i nocna są od siebie wyraźnie oddzielone. Autor projektu przewidział w nim ciekawie prezentującą się strefę dzienną. Tworzy ją między innymi funkcjonalna kuchnia, którą każdy Inwestor swobodnie dostosuje do swoich potrzeb. Dodatkowo przydatnym pomieszczeniem jest pojemna spiżarka. Strefę dzienną tworzy także przestronny salon z jadalnią, dzięki czemu domownicy mogą wspólnie integrować się w jednym miejscu. W pełni funkcjonalna łazienka przewidziana jest na obu kondygnacjach, co znacznie usprawni poranne przygotowania do wyjścia. Potrzeby 2-4 osobowej rodziny spełnią przewidziane w projekcie trzy przestronne sypialnie. Przestrzeń można wykorzystać także jako pokój dla gości lub gabinet. Oprócz tego, w domu znajduje się również pomieszczenie gospodarcze, które można wykorzystać zgodnie z własnymi potrzebami. Taras daje możliwość kontaktu z przyrodą i sprzyja wypoczynkowi. Zalecana przez architekta technologia murowana zapewnia trwałość i solidność konstrukcji. Jego wygląd nawiązuje do stylu nowoczesnego i idealnie wpisze się w trendy nowo powstających osiedli.
Czytaj więcej

Informacje dodatkowe

Projekt stanowi aktualną i pełną dokumentację zawierającą część architektoniczno - budowlaną, konstrukcyjną wykonawczą, instalacji wewnętrznych, elektrycznych i teletechnicznych, charakterystykę energetyczną oraz uprawnienia projektantów. Dokumentacja zabezpieczona jest specjalną plombą, której usunięcie uniemożliwi jej zwrot oraz wymianę. Do zamówienia zostanie dołączony pakiet poglądowych rysunków szczegółowych, pozwalających zapoznać się z projektem bez konieczności zrywania plomby z właściwej dokumentacji projektowej.

Czytaj więcej

Polecani producenci

Prefabrykowane konstrukcje dachowe

tło producenta

WIĄZAR POLSKA

Zobacz więcej

Sprawdź nową generację okien GREENVIEW

tło producenta

FAKRO

Sprawdź nową generację okien GREENVIEW

Styropian, tynki, farby, kleje

tło producenta

Termo Organika

Poznaj super jakość

Okna, drzwi, osłony przeciwsłoneczne

tło producenta

Aluprof

Sprawdź ofertę

Kompletne systemy rekuperacji

tło producenta

Alnor

Dowiedz się więcej

Sprawdź nowy system DACHRYNNA

tło producenta

Galeco

Sprawdź ofertę
Zobacz więcej

Społeczność projektu domu
D154A w budowie

Dołącz do społeczności osób, które budują ten dom lub są zainteresowane jego budową.

  • Oglądaj zdjęcia z budowy
  • Zadawaj pytania
  • Wymieniaj się doświadczeniami

Opinie o projekcie domu D154A

Ocena

Ten projekt nie ma jeszcze opinii, bądź pierwszy!

Dodaj opinię

ASYSTENT WYBORU PROJEKTU

Szukasz idealnego projektu? Znajdziemy go dla Ciebie!

Doradca na podstawie Twoich wskazówek przygotuje spersonalizowaną listę projektów

Graficzne opracowanie rzutów poglądowych widocznych na karcie projektu zostało wykonane przez Extradom.pl. Prezentowane przez Extradom.pl wizualizacje wykonane zostały przez autora projektu i należy poczytywać je jedynie za przykład i propozycję wykończenia, wizję architektoniczną autora projektu. Ostateczne wykończenie budynku może nastąpić na wiele sposobów. Szczegółowe rozwiązania zastosowane w oferowanej dokumentacji - w tym również ilość, lokalizacje i wygląd okien, drzwi, kominów - mogą w niewielkim stopniu różnić się od prezentowanej wizualizacji budynku.

Extradom.pl Spółka z ograniczoną odpowiedzialnością z siedzibą przy ul. Jaworskiej 13, 53-612 Wrocław, wpisana do rejestru przedsiębiorców Krajowego Rejestru Sądowego przez Sąd Rejonowy dla Wrocławia-Fabrycznej we Wrocławiu, VI Wydział Gospodarczy Krajowego Rejestru Sądowego do pod numerem KRS 0000648746, numer NIP 895-17-18-333, o kapitale zakładowym 708 150,00 zł uprzejmie informuje, iż poprzez serwis Extradom.pl umożliwia m.in. zapoznanie się przez konsumentów z ofertą handlową Partnerów Extradom.pl, którzy stosują metody budowy domów przy wykorzystaniu różnego rodzaju technologie prefabrykacji bądź modułowe (tzw. „Gotowe domy”).

Extradom.pl nie prowadzi jednakże sprzedaży ani nie oferuje usług polegających na doradztwie finansowym, prawnym ani podatkowym w zakresie inwestycji realizowanych w technologiach tzw. „Gotowych domów”. Informacje prezentowane w serwisie Extradom.pl dotyczące Partnerów Extradom.pl oferujących realizację inwestycji w technologiach „Gotowych domów” lub podobnych mają charakter informacyjny i reklamowy.

Prezentowane w serwisie Extradom.pl informacje dotyczące stosowanych przez Partnerów metod budowy domów w technologii prefabrykacji bądź modułowej pochodzą od Partnerów Extradom.pl.

Extradom.pl sp. z o.o. jedynie umożliwia nawiązanie kontaktu przez Użytkownika z Partnerem Extradom.pl stosującym tego rodzaju technologie budowy domów i nie jest stroną umowy o roboty budowlane zawieranej przez Użytkownika Extradom.pl z Partnerem Extradom.pl.

REKLAMA
Zamknij