👉 Projekty w extracenach + karta allegro 200 zł! 🔥

Koniec oferty za:

0dni

00godz.

00min.

00sek.

Sprawdź

Projekt domu Chmielniki małe dw 29 KRP1770

Zapisz Dodano!
Porównaj Dodano!
ikona Pobierz i drukuj
Dodaj opinię

Warstwy

Warstwy

Warstwy

Rzut parteru

Powierzchnia (m²)
Tooltip
Powierzchnia pomieszczenia
to ta, z której faktycznie możesz korzystać – skosy i niskie części poddasza są liczone częściowo lub wcale.
  1. 100% dla wysokości powyżej 2,2 m,
  2. 50% dla wysokości 1,4–2,2 m,
  3. nie liczymy poniżej 1,4 m.

Powierzchnia podłogi
Liczymy po obrysie pomieszczenia, bez względu na jego wysokość/skosy. Jeśli nie ma skosów to powierzchnia podłogi i pomieszczenia jest taka sama.
pomieszczenia i podłogi
podłogi
1. Korytarz
3,86
2. Piwnica
12,09
3. Kotłownia
6,99
4. Kotłownia
12,45
5. Piwnica
34,48
6. Pokój
11,97
Razem
81,84
81,84
Powierzchnia (m²)
Tooltip
Powierzchnia pomieszczenia
to ta, z której faktycznie możesz korzystać – skosy i niskie części poddasza są liczone częściowo lub wcale.
  1. 100% dla wysokości powyżej 2,2 m,
  2. 50% dla wysokości 1,4–2,2 m,
  3. nie liczymy poniżej 1,4 m.

Powierzchnia podłogi
Liczymy po obrysie pomieszczenia, bez względu na jego wysokość/skosy. Jeśli nie ma skosów to powierzchnia podłogi i pomieszczenia jest taka sama.
pomieszczenia i podłogi
podłogi
1. Wiatrołap
6,91
2. Pokój dzienny + kuchnia
46,23
3. Korytarz
3,26
4. Pokój
11,81
5. Łazienka
11,69
6. Garaż dwustanowiskowy
43,41
Razem
123,31
123,31
Powierzchnia (m²)
Tooltip
Powierzchnia pomieszczenia
to ta, z której faktycznie możesz korzystać – skosy i niskie części poddasza są liczone częściowo lub wcale.
  1. 100% dla wysokości powyżej 2,2 m,
  2. 50% dla wysokości 1,4–2,2 m,
  3. nie liczymy poniżej 1,4 m.

Powierzchnia podłogi
Liczymy po obrysie pomieszczenia, bez względu na jego wysokość/skosy. Jeśli nie ma skosów to powierzchnia podłogi i pomieszczenia jest taka sama.
pomieszczenia
podłogi
1. Korytarz
8,02
12,81
2. Pokój
12,19
20,97
3. Pokój
13,58
21,18
4. Pokój
14,50
22,77
5. Łazienka
6,83
12,48
6. Garderoba
12,28
22,08
7. Pomieszczenie gospodarcze
12,28
22,08
Razem
79,68
134,37

    Usytuowanie na działce

    Czy ten projekt pasuje na
    Twoją działkę?

    Chętnie to sprawdzimy!

    Dowiedz się:

    • czy zmieści się na niej wybrany przez Ciebie dom
    • jakie parametry musi spełniać dom według miejscowego planu zagospodarowania lub warunków zabudowy (np. kąt nachylenia i typ dachu, liczba kondygnacji itp.
    • jakie inne projekty pasują na Twoją działkę – znajdziemy je dla Ciebie!

Pow. użytkowa

159,58 m²

Pokoje

5

Łazienki i WC

2

Garaż

2

Kąt dachu

45°

Wysokość budynku

8,81 m

Powierzchnia zabudowy

164,20 m²

Min. szer. i dł. działki

27,1 x 18,03 m

Konstrukcja

ikona
Z bali

Pokaż więcej parametrów

Zapisz Dodano!
Porównaj Dodano!
ikona Pobierz i drukuj

Chmielniki małe dw 29 - KRP1770

ikona 159,58 m²
Powierzchnia użytkowa
ikona5
Pokoje (bez salonu)
ikona 2
Łazienki (z toaletami)
ikona 2
Liczba stanowisk garażowych
(z wiatą garażową)
ikona
Konstrukcja: Z bali

Projekt został
wycofany z oferty

W razie pytań prosimy o kontakt
z Centrum Obsługi Klienta
Konsultant
71 715 20 60

pon.-pt. 8-21, sob. 9-17

Piwnica - 81,84 m²

Projekt domu Chmielniki małe dw 29 - rzut piwnicy, dom liczy 5 pokoje, 2 łazienki i wc

Zapytaj, co możesz zmienić

Powierzchnia (m²)
Tooltip
Powierzchnia pomieszczenia
to ta, z której faktycznie możesz korzystać – skosy i niskie części poddasza są liczone częściowo lub wcale.
  1. 100% dla wysokości powyżej 2,2 m,
  2. 50% dla wysokości 1,4–2,2 m,
  3. nie liczymy poniżej 1,4 m.

Powierzchnia podłogi
Liczymy po obrysie pomieszczenia, bez względu na jego wysokość/skosy. Jeśli nie ma skosów to powierzchnia podłogi i pomieszczenia jest taka sama.
pomieszczenia i podłogi
podłogi
1. Korytarz
3,86
2. Piwnica
12,09
3. Kotłownia
6,99
4. Kotłownia
12,45
5. Piwnica
34,48
6. Pokój
11,97
Razem
81,84
81,84

Parter - 123,31 m²

Projekt domu Chmielniki małe dw 29 - rzut parteru, dom liczy 5 pokoje, 2 łazienki i wc

Zapytaj, co możesz zmienić

Powierzchnia (m²)
Tooltip
Powierzchnia pomieszczenia
to ta, z której faktycznie możesz korzystać – skosy i niskie części poddasza są liczone częściowo lub wcale.
  1. 100% dla wysokości powyżej 2,2 m,
  2. 50% dla wysokości 1,4–2,2 m,
  3. nie liczymy poniżej 1,4 m.

Powierzchnia podłogi
Liczymy po obrysie pomieszczenia, bez względu na jego wysokość/skosy. Jeśli nie ma skosów to powierzchnia podłogi i pomieszczenia jest taka sama.
pomieszczenia i podłogi
podłogi
1. Wiatrołap
6,91
2. Pokój dzienny + kuchnia
46,23
3. Korytarz
3,26
4. Pokój
11,81
5. Łazienka
11,69
6. Garaż dwustanowiskowy
43,41
Razem
123,31
123,31

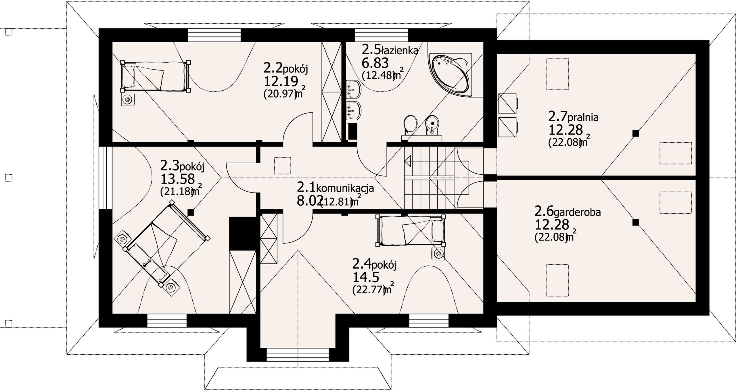
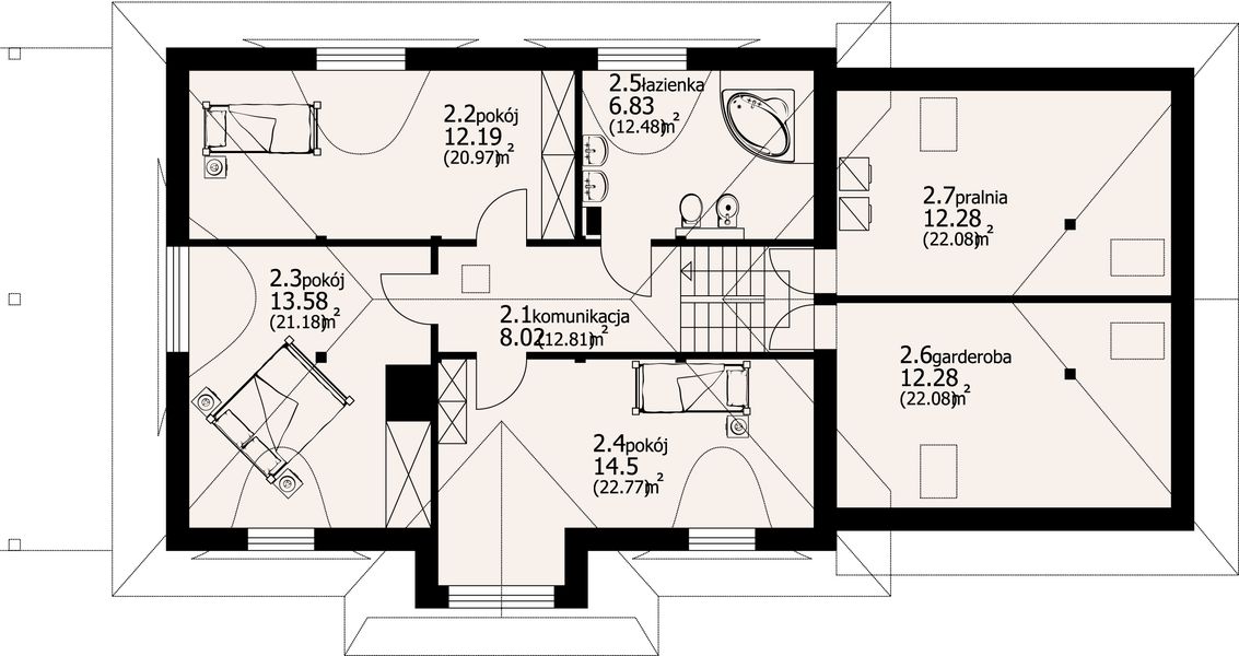
Poddasze - 79,68 m²

Projekt domu Chmielniki małe dw 29 - rzut poddasza, dom liczy 5 pokoje, 2 łazienki i wc

Zapytaj, co możesz zmienić

Powierzchnia (m²)
Tooltip
Powierzchnia pomieszczenia
to ta, z której faktycznie możesz korzystać – skosy i niskie części poddasza są liczone częściowo lub wcale.
  1. 100% dla wysokości powyżej 2,2 m,
  2. 50% dla wysokości 1,4–2,2 m,
  3. nie liczymy poniżej 1,4 m.

Powierzchnia podłogi
Liczymy po obrysie pomieszczenia, bez względu na jego wysokość/skosy. Jeśli nie ma skosów to powierzchnia podłogi i pomieszczenia jest taka sama.
pomieszczenia
podłogi
1. Korytarz
8,02
12,81
2. Pokój
12,19
20,97
3. Pokój
13,58
21,18
4. Pokój
14,50
22,77
5. Łazienka
6,83
12,48
6. Garderoba
12,28
22,08
7. Pomieszczenie gospodarcze
12,28
22,08
Razem
79,68
134,37

Warianty projektu (33)

PROMOCJA
Projekt domu Chmielniki małe 33 dw
Chmielniki małe 33 dw
Dodano!
Dodano!
160,21 m²
4
2
1

7 280 zł

7 480 zł

Tooltip

Cena regularna

7 125 zł najniższa cena
Tooltip

Najniższa cena z 30 dni
przed obniżką

PROMOCJA
Projekt domu Chmielniki średnie 28
Chmielniki średnie 28
Dodano!
Dodano!
225,20 m²
6
2
2

7 480 zł

7 680 zł

Tooltip

Cena regularna

7 325 zł najniższa cena
Tooltip

Najniższa cena z 30 dni
przed obniżką

PROMOCJA
Projekt domu Chmielniki małe dw 65
Chmielniki małe dw 65
Dodano!
Dodano!
147,38 m²
4
4
1

7 280 zł

7 480 zł

Tooltip

Cena regularna

7 125 zł najniższa cena
Tooltip

Najniższa cena z 30 dni
przed obniżką

PROMOCJA
Projekt domu Chmielniki małe dw 71
Chmielniki małe dw 71
Dodano!
Dodano!
132,17 m²
5
2
0

7 080 zł

7 280 zł

Tooltip

Cena regularna

6 925 zł najniższa cena
Tooltip

Najniższa cena z 30 dni
przed obniżką

PROMOCJA
Projekt domu Chmielniki dw 43
Chmielniki dw 43
Dodano!
Dodano!
151,73 m²
4
2
0

7 080 zł

7 280 zł

Tooltip

Cena regularna

6 925 zł najniższa cena
Tooltip

Najniższa cena z 30 dni
przed obniżką

PROMOCJA
Projekt domu Chmielniki małe dw 9
Chmielniki małe dw 9
Dodano!
Dodano!
130,77 m²
6
2
0

7 180 zł

7 380 zł

Tooltip

Cena regularna

7 025 zł najniższa cena
Tooltip

Najniższa cena z 30 dni
przed obniżką

PROMOCJA
Projekt domu Chmielniki małe 7 dws
Chmielniki małe 7 dws
Dodano!
Dodano!
134,33 m²
5
2
1

6 280 zł

6 480 zł

Tooltip

Cena regularna

6 125 zł najniższa cena
Tooltip

Najniższa cena z 30 dni
przed obniżką

PROMOCJA
Projekt domu Chmielniki małe dw 17k
Chmielniki małe dw 17k
Dodano!
Dodano!
139,21 m²
4
2
1

7 280 zł

7 480 zł

Tooltip

Cena regularna

7 125 zł najniższa cena
Tooltip

Najniższa cena z 30 dni
przed obniżką

PROMOCJA
Projekt domu Chmielniki małe dw7k
Chmielniki małe dw7k
Dodano!
Dodano!
123,77 m²
5
2
0

7 080 zł

7 280 zł

Tooltip

Cena regularna

6 925 zł najniższa cena
Tooltip

Najniższa cena z 30 dni
przed obniżką

PROMOCJA
Projekt domu Chmielniki małe dw 57
Chmielniki małe dw 57
Dodano!
Dodano!
156,52 m²
5
2
1

7 380 zł

7 580 zł

Tooltip

Cena regularna

7 225 zł najniższa cena
Tooltip

Najniższa cena z 30 dni
przed obniżką

PROMOCJA
Projekt domu Chmielniki małe dw 47
Chmielniki małe dw 47
Dodano!
Dodano!
128,84 m²
5
2
0

6 880 zł

7 080 zł

Tooltip

Cena regularna

6 725 zł najniższa cena
Tooltip

Najniższa cena z 30 dni
przed obniżką

PROMOCJA
Projekt domu Chmielniki małe dw 97
Chmielniki małe dw 97
Dodano!
Dodano!
149,16 m²
6
2
1

7 280 zł

7 480 zł

Tooltip

Cena regularna

7 125 zł najniższa cena
Tooltip

Najniższa cena z 30 dni
przed obniżką

PROMOCJA
Projekt domu Chmielniki 87 dw
Chmielniki 87 dw
Dodano!
Dodano!
155,42 m²
5
2
1

7 080 zł

7 280 zł

Tooltip

Cena regularna

6 925 zł najniższa cena
Tooltip

Najniższa cena z 30 dni
przed obniżką

PROMOCJA
Projekt domu Chmielniki małe dw 77
Chmielniki małe dw 77
Dodano!
Dodano!
143,86 m²
4
3
1

7 280 zł

7 480 zł

Tooltip

Cena regularna

7 125 zł najniższa cena
Tooltip

Najniższa cena z 30 dni
przed obniżką

PROMOCJA
Projekt domu Chmielniki średnie dw 20
Chmielniki średnie dw 20
Dodano!
Dodano!
236,61 m²
4
3
0

7 480 zł

7 680 zł

Tooltip

Cena regularna

7 325 zł najniższa cena
Tooltip

Najniższa cena z 30 dni
przed obniżką

PROMOCJA
Projekt domu Chmielniki małe dw 72
Chmielniki małe dw 72
Dodano!
Dodano!
137,80 m²
5
2
0

6 780 zł

6 980 zł

Tooltip

Cena regularna

6 625 zł najniższa cena
Tooltip

Najniższa cena z 30 dni
przed obniżką

PROMOCJA
Projekt domu Chmielniki małe 59 dw
Chmielniki małe 59 dw
Dodano!
Dodano!
138,07 m²
4
3
2

6 980 zł

7 180 zł

Tooltip

Cena regularna

6 825 zł najniższa cena
Tooltip

Najniższa cena z 30 dni
przed obniżką

PROMOCJA
Projekt domu Chmielniki małe dw 11
Chmielniki małe dw 11
Dodano!
Dodano!
106,52 m²
3
2
0

7 280 zł

7 480 zł

Tooltip

Cena regularna

7 125 zł najniższa cena
Tooltip

Najniższa cena z 30 dni
przed obniżką

PROMOCJA
Projekt domu Chmielniki małe dw 67
Chmielniki małe dw 67
Dodano!
Dodano!
134,41 m²
5
2
1

7 080 zł

7 280 zł

Tooltip

Cena regularna

6 925 zł najniższa cena
Tooltip

Najniższa cena z 30 dni
przed obniżką

PROMOCJA
Projekt domu Chmielniki dw 55
Chmielniki dw 55
Dodano!
Dodano!
228,02 m²
5
2
2

7 480 zł

7 680 zł

Tooltip

Cena regularna

7 325 zł najniższa cena
Tooltip

Najniższa cena z 30 dni
przed obniżką

PROMOCJA
Projekt domu Chmielniki małe dw 21
Chmielniki małe dw 21
Dodano!
Dodano!
113,55 m²
2
2
0

7 180 zł

7 380 zł

Tooltip

Cena regularna

7 025 zł najniższa cena
Tooltip

Najniższa cena z 30 dni
przed obniżką

PROMOCJA
Projekt domu Chmielniki małe 16 dw
Chmielniki małe 16 dw
Dodano!
Dodano!
157,79 m²
4
2
0

7 080 zł

7 280 zł

Tooltip

Cena regularna

6 925 zł najniższa cena
Tooltip

Najniższa cena z 30 dni
przed obniżką

PROMOCJA
Projekt domu Chmielniki m1
Chmielniki m1
Dodano!
Dodano!
138,02 m²
4
2
1

5 780 zł

5 980 zł

Tooltip

Cena regularna

5 625 zł najniższa cena
Tooltip

Najniższa cena z 30 dni
przed obniżką

PROMOCJA
Projekt domu Chmielniki małe dw 37
Chmielniki małe dw 37
Dodano!
Dodano!
128,84 m²
5
2
0

6 880 zł

7 080 zł

Tooltip

Cena regularna

6 725 zł najniższa cena
Tooltip

Najniższa cena z 30 dni
przed obniżką

PROMOCJA
Projekt domu Chmielniki średnie dw 25
Chmielniki średnie dw 25
Dodano!
Dodano!
212 m²
6
2
0

7 480 zł

7 680 zł

Tooltip

Cena regularna

7 325 zł najniższa cena
Tooltip

Najniższa cena z 30 dni
przed obniżką

PROMOCJA
Projekt domu Chmielniki m8
Chmielniki m8
Dodano!
Dodano!
109,54 m²
3
2
0

5 580 zł

5 780 zł

Tooltip

Cena regularna

5 425 zł najniższa cena
Tooltip

Najniższa cena z 30 dni
przed obniżką

PROMOCJA
Projekt domu Chmielniki dws 39
Chmielniki dws 39
Dodano!
Dodano!
195,02 m²
5
3
2

7 480 zł

7 680 zł

Tooltip

Cena regularna

7 325 zł najniższa cena
Tooltip

Najniższa cena z 30 dni
przed obniżką

PROMOCJA
Projekt domu Chmielniki małe dw
Chmielniki małe dw
Dodano!
Dodano!
125,51 m²
4
2
0

7 180 zł

7 380 zł

Tooltip

Cena regularna

7 025 zł najniższa cena
Tooltip

Najniższa cena z 30 dni
przed obniżką

PROMOCJA
Projekt domu Chmielniki małe 39 dw
Chmielniki małe 39 dw
Dodano!
Dodano!
150,03 m²
4
2
0

7 380 zł

7 580 zł

Tooltip

Cena regularna

7 225 zł najniższa cena
Tooltip

Najniższa cena z 30 dni
przed obniżką

PROMOCJA
Projekt domu Chmielniki dw 49x
Chmielniki dw 49x
Dodano!
Dodano!
204,15 m²
6
2
0

7 480 zł

7 680 zł

Tooltip

Cena regularna

7 325 zł najniższa cena
Tooltip

Najniższa cena z 30 dni
przed obniżką

PROMOCJA
Projekt domu Chmielniki dw 66
Chmielniki dw 66
Dodano!
Dodano!
225,04 m²
5
2
2

7 480 zł

7 680 zł

Tooltip

Cena regularna

7 325 zł najniższa cena
Tooltip

Najniższa cena z 30 dni
przed obniżką

PROMOCJA
Projekt domu Chmielniki małe dw 19
Chmielniki małe dw 19
Dodano!
Dodano!
140,69 m²
5
2
0

7 380 zł

7 580 zł

Tooltip

Cena regularna

7 225 zł najniższa cena
Tooltip

Najniższa cena z 30 dni
przed obniżką

PROMOCJA
Projekt domu Chmielniki m11
Chmielniki m11
Dodano!
Dodano!
160,88 m²
5
2
1

5 980 zł

6 180 zł

Tooltip

Cena regularna

5 825 zł najniższa cena
Tooltip

Najniższa cena z 30 dni
przed obniżką

Podobne projekty (1590)

Zobacz wszystkie
NIŻSZA CENA 🔥
Zdjęcie 1 projektu Makarena WAH2146
Makarena
Dodano!
Dodano!
149,44 m²
4
3
2

6 032 zł

7 540 zł

Tooltip

Cena regularna

6 032 zł najniższa cena
Tooltip

Najniższa cena z 30 dni
przed obniżką

NIŻSZA CENA 🔥
Zdjęcie 1 projektu Bolero WAH2148
Bolero
Dodano!
Dodano!
163,93 m²
5
3
2

5 952 zł

7 440 zł

Tooltip

Cena regularna

5 952 zł najniższa cena
Tooltip

Najniższa cena z 30 dni
przed obniżką

NIŻSZA CENA 🔥
Zdjęcie 1 projektu Miejski 4 WAH2145
Miejski 4
Dodano!
Dodano!
148,08 m²
4
3
1

5 352 zł

6 690 zł

Tooltip

Cena regularna

5 352 zł najniższa cena
Tooltip

Najniższa cena z 30 dni
przed obniżką

NIŻSZA CENA 🔥
Zdjęcie 1 projektu Miejski 3 WAH2144
Miejski 3
Dodano!
Dodano!
148,08 m²
4
3
1

5 352 zł

6 690 zł

Tooltip

Cena regularna

5 352 zł najniższa cena
Tooltip

Najniższa cena z 30 dni
przed obniżką

NIŻSZA CENA 🔥
Zdjęcie 1 projektu Wolta 3 BSA2178
Wolta 3
Dodano!
Dodano!
168,35 m²
4
2
2

5 749 zł

6 149 zł

Tooltip

Cena regularna

5 549 zł najniższa cena
Tooltip

Najniższa cena z 30 dni
przed obniżką

Zdjęcie 1 projektu Dom Lykke POZ1006
Dom Lykke
Dodano!
Dodano!
168,05 m²
4
2
2

19 800 zł

Nowość
Zdjęcie 1 projektu LK&1778 LKP1027
LK&1778
Dodano!
Dodano!
173,69 m²
4
2
1

12 300 zł

NIŻSZA CENA 🔥
Zdjęcie 1 projektu BS-16 wariant 1 dwulokalowy JGC1208
BS-16 wariant 1 dwulokalowy
Dodano!
Dodano!
163,60 m²
5
3
0

4 730 zł

4 830 zł

Tooltip

Cena regularna

4 730 zł najniższa cena
Tooltip

Najniższa cena z 30 dni
przed obniżką

Elewacje

Frontowa
Tylna
Lewa
Prawa

Przekroje

Przekrój pionowy

Usytuowanie na działce

Czy ten projekt pasuje na
Twoją działkę?

Chętnie to sprawdzimy!

Czy ten projekt pasuje na
Twoją działkę?

Chętnie to sprawdzimy!

Dowiedz się:

  • czy zmieści się na niej wybrany przez Ciebie dom
  • jakie parametry musi spełniać dom według miejscowego planu zagospodarowania lub warunków zabudowy (np. kąt nachylenia i typ dachu, liczba kondygnacji itp.
  • jakie inne projekty pasują na Twoją działkę – znajdziemy je dla Ciebie!
Autor: Dom-Projekt

Dane techniczne projektu

Powierzchnie i wymiary Powierzchnie i wymiary

Powierzchnia użytkowa
Tooltip
Suma powierzchni wszystkich pomieszczeń mieszkalnych, pomniejszona o pow. garażu, kotłowni, strychu, piwnicy. Jest liczona w 100% dla pomieszczeń o wysokości powyżej 2,2 m, w 50% dla pomieszczeń o wys. 2,2-1,4 m i niewliczana dla niższych niż 1,4 m.

159,58 m²

Wysokość ściany kolankowej
Tooltip
Wysokość ściany podpierającej dach. Jej wysokość wpływa na powierzchnię użytkową kondygnacji, na której się znajduje.

0,92 m

Powierzchnia zabudowy
Tooltip
Powierzchnia zajmowana przez część na- oraz nadziemną budynku liczona, jako rzut pionowy budynku na działkę.

164,20 m²

Powierzchnia netto
Tooltip
Powierzchna wszystkich pomieszczeń w budynku mierzona na wysokości podłogi.

339,52 m²

Kubatura brutto
Tooltip
Zazwyczaj jest to suma kubatur (objętości) wszystkich pomieszczeń budynku, liczonych po zewnętrznym obrysie murów (z ociepleniem).

1 076,40 m³

Powierzchnia dachu

318,36 m²

Kąt nachylenia dachu
Tooltip
Nachylenie połaci dachu głównego podawane w stopniach. Uwaga! W niektórych projektach występuje więcej niż jedno nachylenie dachu.

45°

Wysokość budynku
Tooltip
Wysokość liczona od części budynku położonej najniżej przy powierzchni terenu do najwyższego punktu dachu (kalenicy) z wyłączeniem kominów.

8,81 m

Min. szerokość działki
Tooltip
Najmniejsza możliwa szerokość działki niezbędna do wybudowania wybranego domu. Składa się z szerokości elewacji domu powiększonej z obu stron o 3 m dla ściany bez otworów drzwiowych/okiennych lub 4 m, dla ściany z otworami.

27,10 m

Min. długość działki
Tooltip
Najmniejsza możliwa długość działki niezbędna do wybudowania wybranego domu. Składa się z długości elewacji domu powiększonej z obu stron o 3 m dla ściany bez otworów drzwiowych/okiennych lub 4 m, dla ściany z otworami.

18,03 m

Energooszczędność Energooszczędność

Oze Czym jest OZE (Odnawialne Źródło Energii)?
Warunki techniczne

Projekt zgody z WT 2021

Technologia i konstrukcja Technologia i konstrukcja

Konstrukcja

Z bali

Opis szczegółowy

Wysokość ścianki kolankowej: 0.92 m. Strop: żelbet + drewniany. Pokrycie dachu: dachówka gontopodobna Gerard Corona. Ściany zewnętrzne: płazy drewniane + wełna mineralna + deska. Ściany wewnętrzne: płazy drewniane. Typ ogrzewania: kocioł gazowy lub kocioł na paliwo stałe.

Strop

Żelbetowy

Reklama
Okna i drzwi tarasowe

Nowoczesne okna PVC i aluminiowe WIŚNIOWSKI – doskonała izolacja, elegancki design i niezrównana trwałość.

Wiśniowski
Sprawdź parametry!
Okna dachowe

Oferujemy bezpłatne konsultacje w zakresie wszystkich rozwiązań VELUX. Wyceny, porady dotyczące doboru okien i rolet zewnętrznych - sprawdź!

Velux
Sprawdź szczegóły
Okna i drzwi tarasowe

Systemy drzwi i okien z myślą o nowoczesnej architekturze i dużych przeszkleniach tarasowych.

Drutex
Sprawdź ofertę!
Pompa ciepła

Wybierz pompę ciepła, która pasuje do Twojego domu. Niezależnie od tego, czy ustawienie wewnątrz czy na zewnątrz, pompy ciepła STIEBEL ELTRON dopasują się do każdej przestrzeni.

Stiebel
Dobierz pompę ciepła
Drzwi

Idealne połączenie sztuki z technologią! Nowoczesne i energooszczędne drzwi wyróżniają się doskonałym połączeniem funkcjonalności, wysokiej estetyki wykonania oraz unikalnego stylu.

Drutex
Zobacz więcej
Drzwi

Ciepłe drzwi WIŚNIOWSKI z kontrolą dostępu. Szeroka gama wzorów i kolorów.

Wiśniowski
Wybierz najlepsze
Bramy garażowe

Automatyczne bramy garażowe segmentowe i uchylne WIŚNIOWSKI na wymiar i z systemem smart home w standardzie.

Wiśniowski
Sprawdź ofertę!
Rekuperacja

Alnor - kompletny system rekuperacji. Dobierz idealne rozwiązanie dla Twojego domu!

Alnor
Dobierz rekuperator
Dach

Producent stalowych pokryć dachowych i systemów elewacyjnych. Precyzja wykonania, trwałość na lata i szybki montaż doceniany przez dekarzy. Postaw na solidny dach Budmat.

Budmat
Sprawdź ofertę
Ogrodzenie

Nowoczesne stalowe ogrodzenia Budmat - estetyka, bezpieczeństwo i trwałość na lata. Systemowe rozwiązania na wymiar, dopasowane do każdego domu.

Budmat
Sprawdź ofertę

Gotowe domy - najszybszy sposób na dom (115)

Zobacz wszystkie
  • Stan deweloperski nawet w 6 miesięcy
  • Gwarancja stałej ceny
Skonfiguruj dom
Zdjęcie 1 projektu Bergen 130 HUS1002
130,40 m²
4
Stan deweloperski brutto
529 000 zł 4 057 zł/m²
Zdjęcie 1 projektu Dom prefabrykowany P.2 HPK1001
159,18 m²
5
Stan deweloperski brutto
847 000 zł 5 321 zł/m²
Zdjęcie 1 projektu Dom prefabrykowany P.4 bez okapu HPK1003
162,18 m²
5
Stan deweloperski brutto
723 500 zł 4 461 zł/m²
Zdjęcie 1 projektu Dom prefabrykowany P.4 z okapem HPK1014
162,18 m²
5
Stan deweloperski brutto
739 600 zł 4 560 zł/m²
Zdjęcie 1 projektu Dom prefabrykowany DH174 HDH1009
162,97 m²
4
Stan deweloperski brutto
1 026 000 zł 6 296 zł/m²
Zdjęcie 1 projektu Dom szkieletowy Viking Smart 220 HHT1032
163,86 m²
4
Stan deweloperski brutto
1 095 606 zł 6 686 zł/m²
Zdjęcie 1 projektu Dom prefabrykowany Parterowy 150A HFX1038
150,51 m²
4
Stan deweloperski brutto
590 000 zł 3 920 zł/m²
Zdjęcie 1 projektu Dom prefabrykowany Parterowy 150B HFX1039
150,50 m²
4
Stan deweloperski brutto
590 000 zł 3 920 zł/m²

Opis projektu domu
Chmielniki małe dw 29

Dom Chmielniki małe dw 29 jest modyfikacją znanego projektu Chmielniki. W przeciwieństwie do pierwotnej wersji projekt ma mniej pokoi, mniejszą powierzchnię, garaż, piwnicę. Projekt domu Chmielniki małe dw 29 to idealna propozycja dla osób posiadających średniej szerokości działkę. Dom posiada prostą bryłę, przez co jest tani w budowie. Projekt ma usytuowaną kalenicę równolegle do drogi, co jest istotne ze względu na wymagania określone w planie zagospodarowania przestrzennego. Dom został stworzony do zabudowy wolnostojącej. Autor projektu uwzględnił garaż dwustanowiskowy w linii budynku. Konstrukcja budynku zwieńczona jest dachem kopertowym, który wyjątkowo się prezentuje. Ciekawym elementem jest także uwzględnione w jego konstrukcji tzw. wole oko. Projekt Chmielniki małe dw 29 to dom parterowy z poddaszem użytkowym, co sprawia, że jego powierzchnia jest wyraźnie podzielona na strefy: dzienną i nocną.Budynek posiada piwnicę, w której można urządzić pralnię oraz pomieszczenie gospodarcze. Uwzględniona w projekcie część dzienna z pewnością zadowoli osoby lubiące cieszyć się wspólnymi chwilami w rodzinnym gronie. Tworzy ją między innymi kuchnia, która dzięki funkcjonalnym rozwiązaniom zapewni wygodę użytkowania przez długie lata. W pełni funkcjonalną łazienkę przewidziano zarówno na parterze, jak i poddaszu, co jest świetnym rozwiązaniem dla większej ilości domowników. Pięć sypialni doskonale sprawdzi się w przypadku 5-7 osobowej rodziny. Przestrzeń można wykorzystać także jako pokój dla gości lub gabinet. Doskonałym miejscem do wypoczynku jest zaprojektowany przy domu taras. Dodatkowo weranda to miejsce doskonałe do spotkań z rodziną i najbliższymi. Jego wygląd zewnętrzny uwydatnia cechy charakterystyczne dla stylu tradycyjnego, dzięki czemu idealnie wpisze się w dowolny krajobraz.
Czytaj więcej

Polecani producenci

Kompletne systemy rekuperacji

tło producenta

Alnor

Dowiedz się więcej

Dachy modułowe ze stali

tło producenta

Budmat

Poznaj szczegóły oferty

Prefabrykowane konstrukcje dachowe

tło producenta

WIĄZAR POLSKA

Zobacz więcej
Zobacz więcej

Społeczność projektu domu
Chmielniki małe dw 29 w budowie

Dołącz do społeczności osób, które budują ten dom lub są zainteresowane jego budową.

  • Oglądaj zdjęcia z budowy
  • Zadawaj pytania
  • Wymieniaj się doświadczeniami

Opinie o projekcie domu
Chmielniki małe dw 29

Opinie niezweryfikowane

Bądź pierwszy!
Ten projekt nie ma jeszcze opinii, bądź pierwszy!

ikona Dodaj opinię o projekcie

ASYSTENT WYBORU PROJEKTU

Szukasz idealnego projektu? Znajdziemy go dla Ciebie!

Doradca na podstawie Twoich wskazówek przygotuje spersonalizowaną listę projektów

Graficzne opracowanie rzutów poglądowych widocznych na karcie projektu zostało wykonane przez Extradom.pl. Prezentowane przez Extradom.pl wizualizacje wykonane zostały przez autora projektu i należy poczytywać je jedynie za przykład i propozycję wykończenia, wizję architektoniczną autora projektu. Ostateczne wykończenie budynku może nastąpić na wiele sposobów. Szczegółowe rozwiązania zastosowane w oferowanej dokumentacji - w tym również ilość, lokalizacje i wygląd okien, drzwi, kominów - mogą w niewielkim stopniu różnić się od prezentowanej wizualizacji budynku.

REKLAMA
Zamknij