👉 Niższe ceny + karta allegro 200 zł! 🔥

Koniec oferty za:

0dni

00godz.

00min.

00sek.

Sprawdź

Projekt domu Bocian 3 z garażem 2-st. WRL1053

Dodano!
Dodano!

Warstwy

Warstwy

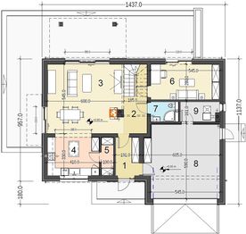
Rzut parteru

Powierzchnia (m²)
Tooltip
Powierzchnia pomieszczenia
to ta, z której faktycznie możesz korzystać – skosy i niskie części poddasza są liczone częściowo lub wcale.
  1. 100% dla wysokości powyżej 2,2 m,
  2. 50% dla wysokości 1,4–2,2 m,
  3. nie liczymy poniżej 1,4 m.

Powierzchnia podłogi
Liczymy po obrysie pomieszczenia, bez względu na jego wysokość/skosy. Jeśli nie ma skosów to powierzchnia podłogi i pomieszczenia jest taka sama.
pomieszczenia i podłogi
podłogi
1. Wiatrołap
5,60
2. Korytarz
6
3. Pokój dzienny
32,20
4. Kuchnia
12,60
5. Spiżarnia
2,90
6. Pokój
14,90
7. Łazienka
3,40
8. Garaż dwustanowiskowy
33,40
9. Kotłownia
4,60
Razem
115,60
115,60
Powierzchnia (m²)
Tooltip
Powierzchnia pomieszczenia
to ta, z której faktycznie możesz korzystać – skosy i niskie części poddasza są liczone częściowo lub wcale.
  1. 100% dla wysokości powyżej 2,2 m,
  2. 50% dla wysokości 1,4–2,2 m,
  3. nie liczymy poniżej 1,4 m.

Powierzchnia podłogi
Liczymy po obrysie pomieszczenia, bez względu na jego wysokość/skosy. Jeśli nie ma skosów to powierzchnia podłogi i pomieszczenia jest taka sama.
pomieszczenia i podłogi
podłogi
1. Korytarz
5
2. Łazienka
9,70
3. Garderoba
4,70
4. Pokój
20,60
5. Garderoba
3,90
6. Pokój
19,70
7. Pokój
18,10
Razem
81,70
81,70

    Usytuowanie na działce

    Czy ten projekt pasuje na
    Twoją działkę?

    Chętnie to sprawdzimy!

    Dowiedz się:

    • czy zmieści się na niej wybrany przez Ciebie dom
    • jakie parametry musi spełniać dom według miejscowego planu zagospodarowania lub warunków zabudowy (np. kąt nachylenia i typ dachu, liczba kondygnacji itp.
    • jakie inne projekty pasują na Twoją działkę – znajdziemy je dla Ciebie!

Pow. użytkowa

159,20 m²

Pokoje

4

Łazienki i WC

2

Garaż

2

Min. szer. i dł. działki

22,37 x 19,37 m

Kąt dachu

40°

Szacunkowy koszt SSZ

398 000 zł
Szacunkowy koszt budowy do stanu surowego zamkniętego (SSZ) metodą gospodarczą - większość prac wykonuje inwestor.

Konstrukcja

Murowana
więcej

Bocian 3 z garażem 2-st. - WRL1053

ikona 159,20 m²
Powierzchnia użytkowa
ikona4
Pokoje (bez salonu)
ikona 2
Łazienki (z toaletami)
ikona 2
Liczba stanowisk garażowych
(z wiatą garażową)
ikona
Konstrukcja: Murowana

Promocja od 13.03.2026, koniec za:

0 dni

00 00 00

4 199 zł

Tooltip

Cena regularna obowiązywała od 05.03.2026 do 11.03.2026

Cena regularna: 4 799 zł
Najniższa cena z 30 dni przed obniżką: 4 199 zł
Gwarancja najniższej ceny Gwarancja najniższej ceny Tooltip

Projekt jest dostępny Tooltip

GRATIS 15% rabatu do LEROY MERLIN

GRATIS 16% rabatu w SELSEY

GRATIS Przydatne Extradodatki

GRATIS Poradnik Dach Solarny

100 dni na wymianę, 30 dni na zwrot

Darmowa dostawa - kurier, paczkomaty

Bezpłatne pozwolenie na zmiany

Dokumentacja zgodna z WT2021

Pokaż więcej (6)
Konsultant Masz pytania?
Zadzwoń
71 715 20 60

pon.-pt. 8-21, sob. 9-17

Szukasz wykonawcy godnego zaufania?
Zleć budowę w Extradom.pl!

  • Z góry znasz koszt budowy domu
  • Dom odbierasz zgodnie z ustalonym harmonogramem - nawet w 6 miesięcy
  • Zabezpiecza Cię jedna kompleksowa umowa z jednym wykonawcą
  • Otrzymujesz nawet 30-letnią gwarancję na konstrukcję domu
  • Oszczędzasz swój czas dzięki pewnej i kompletnej usłudze
Cena brutto stanu
deweloperskiego od
Tooltip
Cena brutto stanu deweloperskiego od 4 529 do 5 679 zł/m2.
Cena jest uzależniona m.in. od lokalizacji, wybranej technologii, kubatury budynku, skomplikowania projektu i ewentualnych zmian, na które zdecyduje się inwestor.
Cena za m2 powierzchni netto, czyli wszystkich pomieszczeń mierzonych na wysokości podłogi.
4 529 zł/m2
Dowiedz się więcej
Konsultant Masz pytania?
Zadzwoń
71 718 89 70

pon.-pt. 8-19

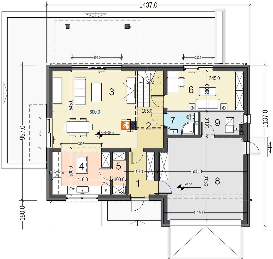
Parter - 115,60 m²

Parter projektu Bocian 3 z garażem 2-st.

Zapytaj, co możesz zmienić

Powierzchnia (m²)
Tooltip
Powierzchnia pomieszczenia
to ta, z której faktycznie możesz korzystać – skosy i niskie części poddasza są liczone częściowo lub wcale.
  1. 100% dla wysokości powyżej 2,2 m,
  2. 50% dla wysokości 1,4–2,2 m,
  3. nie liczymy poniżej 1,4 m.

Powierzchnia podłogi
Liczymy po obrysie pomieszczenia, bez względu na jego wysokość/skosy. Jeśli nie ma skosów to powierzchnia podłogi i pomieszczenia jest taka sama.
pomieszczenia i podłogi
podłogi
1. Wiatrołap
5,60
2. Korytarz
6
3. Pokój dzienny
32,20
4. Kuchnia
12,60
5. Spiżarnia
2,90
6. Pokój
14,90
7. Łazienka
3,40
8. Garaż dwustanowiskowy
33,40
9. Kotłownia
4,60
Razem
115,60
115,60

Natychmiast, otrzymasz PDF-y
z rzutami wszystkich kondygnacji

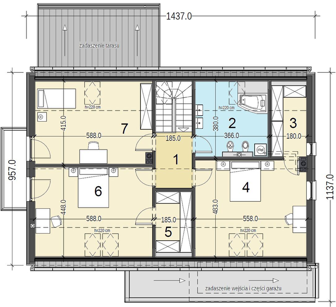
Poddasze - 81,70 m²

Poddasze projektu Bocian 3 z garażem 2-st.

Zapytaj, co możesz zmienić

Powierzchnia (m²)
Tooltip
Powierzchnia pomieszczenia
to ta, z której faktycznie możesz korzystać – skosy i niskie części poddasza są liczone częściowo lub wcale.
  1. 100% dla wysokości powyżej 2,2 m,
  2. 50% dla wysokości 1,4–2,2 m,
  3. nie liczymy poniżej 1,4 m.

Powierzchnia podłogi
Liczymy po obrysie pomieszczenia, bez względu na jego wysokość/skosy. Jeśli nie ma skosów to powierzchnia podłogi i pomieszczenia jest taka sama.
pomieszczenia i podłogi
podłogi
1. Korytarz
5
2. Łazienka
9,70
3. Garderoba
4,70
4. Pokój
20,60
5. Garderoba
3,90
6. Pokój
19,70
7. Pokój
18,10
Razem
81,70
81,70

Natychmiast, otrzymasz PDF-y
z rzutami wszystkich kondygnacji

Zamów rysunki szczegółowe

Zapoznaj się ze szczegółowymi rysunkami rzutów kondygnacji w PDF dla tego projektu.

Warianty projektu (3)

PROMOCJA
Projekt domu Bocian 4 z garażem 2-st.
Bocian 4 z garażem 2-st.
Dodano!
Dodano!
145,50 m²
4
2
2

4 199 zł

4 799 zł

Tooltip

Cena regularna

4 199 zł najniższa cena
Tooltip

Najniższa cena z 30 dni
przed obniżką

PROMOCJA
Projekt domu Bocian 2 z garażem 2-st.
Bocian 2 z garażem 2-st.
Dodano!
Dodano!
145,60 m²
4
2
2

4 199 zł

4 799 zł

Tooltip

Cena regularna

4 199 zł najniższa cena
Tooltip

Najniższa cena z 30 dni
przed obniżką

PROMOCJA
Projekt domu Bocian 1 z garażem 2-st.
Bocian 1 z garażem 2-st.
Dodano!
Dodano!
147,10 m²
4
2
2

4 199 zł

4 799 zł

Tooltip

Cena regularna

4 199 zł najniższa cena
Tooltip

Najniższa cena z 30 dni
przed obniżką

Podobne projekty (521)

Zobacz wszystkie
PROMOCJA
Zdjęcie 1 projektu NewHouse 794 G2 KRZ1120
NewHouse 794 G2
Dodano!
Dodano!
152,01 m²
4
2
2

5 751 zł

6 390 zł

Tooltip

Cena regularna

5 495 zł najniższa cena
Tooltip

Najniższa cena z 30 dni
przed obniżką

NIŻSZA CENA 🔥
Zdjęcie 1 projektu Makarena WAH2146
Makarena
Dodano!
Dodano!
149,44 m²
4
3
2

6 032 zł

7 540 zł

Tooltip

Cena regularna

6 032 zł najniższa cena
Tooltip

Najniższa cena z 30 dni
przed obniżką

NIŻSZA CENA 🔥
Zdjęcie 1 projektu Bolero WAH2148
Bolero
Dodano!
Dodano!
149,44 m²
5
3
2

5 952 zł

7 440 zł

Tooltip

Cena regularna

5 952 zł najniższa cena
Tooltip

Najniższa cena z 30 dni
przed obniżką

NIŻSZA CENA 🔥
Nowość
Zdjęcie 1 projektu Dom na zgrabnej 3 WAH2155
Dom na zgrabnej 3
Dodano!
Dodano!
135,27 m²
4
3
2

5 592 zł

6 990 zł

Tooltip

Cena regularna

5 592 zł najniższa cena
Tooltip

Najniższa cena z 30 dni
przed obniżką

NIŻSZA CENA 🔥
Zdjęcie 1 projektu Lambada WAH2147
Lambada
Dodano!
Dodano!
149,44 m²
4
3
2

5 752 zł

7 190 zł

Tooltip

Cena regularna

5 752 zł najniższa cena
Tooltip

Najniższa cena z 30 dni
przed obniżką

NIŻSZA CENA 🔥
Zdjęcie 1 projektu Fokstrot WAH1714
Fokstrot
Dodano!
Dodano!
130,25 m²
4
3
2

5 400 zł

6 750 zł

Tooltip

Cena regularna

5 400 zł najniższa cena
Tooltip

Najniższa cena z 30 dni
przed obniżką

NIŻSZA CENA 🔥
Zdjęcie 1 projektu Mambo WAH2149
Mambo
Dodano!
Dodano!
149,44 m²
4
3
2

5 952 zł

7 440 zł

Tooltip

Cena regularna

3 715 zł najniższa cena
Tooltip

Najniższa cena z 30 dni
przed obniżką

NIŻSZA CENA 🔥
Zdjęcie 1 projektu Tango WAH1721
Tango
Dodano!
Dodano!
130,17 m²
4
3
1

5 400 zł

6 750 zł

Tooltip

Cena regularna

5 400 zł najniższa cena
Tooltip

Najniższa cena z 30 dni
przed obniżką

Metody i koszt budowy

Ten dom możesz budować metodą gospodarczą, systemem zleconym lub skorzystać z naszej oferty Projekt z Budową. Przy porównaniu weź pod uwagę nie tylko koszt, ale też różny zakres prac i standard wykonania.

Metoda gospodarcza

Najtańsza metoda - większość prac
budowlanych wykonuje inwestor

Stan surowy zamknięty (SSZ)

398 000 zł netto

Szacunkowy koszt materiałów na IV kwartał 2025
  • Prace ziemne i fundamenty

    59 000 zł
  • Konstrukcja, strop oraz dach

    281 000 zł
  • Stolarka okienna i drzwiowa

    58 000 zł
  • Instalacje

    nie obejmuje
  • Prace wykończeniowe

    nie obejmuje
  • Możesz budować etapami, pamiętając jednak o zmianie kosztów w czasie
  • Możesz rozpocząć budowę z częścią niezbędnych środków
  • Sam ustalasz harmonogram, koordynujesz budowę i zapewniasz materiały
Czy da się obniżyć koszty budowy?
Zobacz nasz film jak obniżyć koszt budowy

Projekt z Budową

Najszybsza i najwygodniejsza metoda -
całą budowę domu realizuje jedna firma

Stan deweloperski
Gwarancja stałego kosztu budowy

Gwarancja stałego
kosztu budowy

  • Prace ziemne i fundamenty
  • Konstrukcja, strop oraz dach
  • Stolarka okienna i drzwiowa
  • Instalacje  
    Tooltip

    Obejmuje wykonanie instalacji:

    • wodno-kanalizacyjnej
    • centralnego ogrzewania
    • gazowej
    • elektrycznej
  • Prace wykończeniowe  
    Tooltip

    Prace wykończeniowe obejmują:

    • sufity i ściany wewnętrzne
    • tynki i okładziny ścian wewnętrznych
    • wylewki i posadzkę
    • ocieplenie ścian zewnętrznych i elewację

Budowa
nawet w
6mies.

  • Kompleksowa umowa i znany z góry koszt budowy
  • Logistyka, organizacja budowy i zakupy po stronie firmy budowlanej
  • Formalności i dokumentacje po stronie firmy budowlanej
  • Różne technologie budowy dopasowane do projektu i budżetu
Szczegóły i dostępne technologie

Elewacje

Frontowa
Tylna
Lewa
Prawa

Przekroje

Przekrój pionowy

Usytuowanie na działce

Czy ten projekt pasuje na
Twoją działkę?

Chętnie to sprawdzimy!

Czy ten projekt pasuje na
Twoją działkę?

Chętnie to sprawdzimy!

Dowiedz się:

  • czy zmieści się na niej wybrany przez Ciebie dom
  • jakie parametry musi spełniać dom według miejscowego planu zagospodarowania lub warunków zabudowy (np. kąt nachylenia i typ dachu, liczba kondygnacji itp.
  • jakie inne projekty pasują na Twoją działkę – znajdziemy je dla Ciebie!
Autor: Lelo Design

Dane techniczne projektu

Powierzchnie i wymiary Powierzchnie i wymiary

Powierzchnia użytkowa
Tooltip
Suma powierzchni wszystkich pomieszczeń mieszkalnych, pomniejszona o pow. garażu, kotłowni, strychu, piwnicy. Jest liczona w 100% dla pomieszczeń o wysokości powyżej 2,2 m, w 50% dla pomieszczeń o wys. 2,2-1,4 m i niewliczana dla niższych niż 1,4 m.

159,20 m²

Powierzchnia zabudowy
Tooltip
Powierzchnia zajmowana przez część na- oraz nadziemną budynku liczona, jako rzut pionowy budynku na działkę.

148,80 m²

Powierzchnia dachu

183,50 m²

Kąt nachylenia dachu
Tooltip
Nachylenie połaci dachu głównego podawane w stopniach. Uwaga! W niektórych projektach występuje więcej niż jedno nachylenie dachu.

40°

Wysokość budynku
Tooltip
Wysokość liczona od części budynku położonej najniżej przy powierzchni terenu do najwyższego punktu dachu (kalenicy) z wyłączeniem kominów.

8,55 m

Szerokość elewacji

14,37 m

Długość elewacji

11,37 m

Min. szerokość działki
Tooltip
Najmniejsza możliwa szerokość działki niezbędna do wybudowania wybranego domu. Składa się z szerokości elewacji domu powiększonej z obu stron o 3 m dla ściany bez otworów drzwiowych/okiennych lub 4 m, dla ściany z otworami.

22,37 m

Min. długość działki
Tooltip
Najmniejsza możliwa długość działki niezbędna do wybudowania wybranego domu. Składa się z długości elewacji domu powiększonej z obu stron o 3 m dla ściany bez otworów drzwiowych/okiennych lub 4 m, dla ściany z otworami.

19,37 m

Energooszczędność Energooszczędność

Oze Czym jest OZE (Odnawialne Źródło Energii)?
Ogrzewanie główne

Paliwo stałe (OZE) - szczegóły

Interesuje Cię inne źródło ogrzewania? Wyślij zapytanie lub zadzwoń do doradcy

Wentylacja

Grawitacyjna - szczegóły

Warunki techniczne

Projekt zgody z WT 2021

Technologia i konstrukcja Technologia i konstrukcja

Konstrukcja

Murowana

PROJEKT Z BUDOWĄ Istnieje możliwość zaadaptowania tego projektu do technologii prefabrykowanej/modułowej i budowy nawet w 6 miesięcy ze stałym kosztem budowy

Dowiedz się więcej »
Opis szczegółowy

Posadowienie bezpośrednie na zbrojonych ławach i stopach fundamentowych wykonanych z betonu B 20. Ściany fundamentowe: murowane z bloczków betonowych M6. Ściany zewnętrzne: bloczki gazobetonowe gr. 24/25 cm na zaprawie systemowej, ciepłochronnej, ocieplony styropianem fasadowym gr. 15cm. Do ocieplenia budynku zaprojektowano użycie styropianu grafitowego gr. 15 cm, o współczynniku „lambda” nie przekraczającym 0,035 W(mK) i „oporze cieplnym” nie mniejszym niż Rd – 4,0 m2k/W. Zastosowanie materiałów budowlanych (ocieplenie ścian, dachu, podłogi na gruncie, okien i drzwi zewnętrznych) użytych w projekcie odpowiada nowym wymaganiom obowiązującym od stycznia 2021 roku (WT2021). Ściany nośne wewnętrzne: bloczki gazobetonowe gr. 25cm na zaprawie cementowo-wapiennej lub systemowej. Ściany wewnętrzne działowe: bloczki gazobetonowe gr. 12cm. Strop gęstożebrowy z wypełnieniem pustakami betonowymi, zalewany wraz z wieńcami betonem B 20. Konstrukcja dachu: drewniana, drewno klasy C24, więźba dachowa krokwiowo-jętkowa. Budynek, w wersji podstawowej, jest zaprojektowany z pomieszczeniem kotłowni wyposażonej w kocioł ekologiczny na paliwo stałe „pellet” i spełnia wszystkie wymagania dotyczące WT2021. Na etapie adaptacji projektu jest możliwość zaprojektowania ogrzewania gazowego ze wspomaganiem instalacją solarną lub ogrzewania nowoczesną pompa ciepła typu powietrze – woda. Projekt pod względem konstrukcyjnym spełnia normy zgodne z Eurokodami.

Strop

Gęstożebrowy

Reklama
Okna i drzwi tarasowe

Nowoczesne okna PVC i aluminiowe WIŚNIOWSKI – doskonała izolacja, elegancki design i niezrównana trwałość.

Wiśniowski
Sprawdź parametry!
Okna dachowe

Oferujemy bezpłatne konsultacje w zakresie wszystkich rozwiązań VELUX. Wyceny, porady dotyczące doboru okien i rolet zewnętrznych - sprawdź!

Velux
Sprawdź szczegóły
Płytki ceramiczne i gresy

Od małych formatów po wielkoformatowe gresy. Marmur, beton, drewno, kamień, lastryko czy cegiełki zamówisz wygodnie online z szybką dostawą.

Ceramzet
Sprawdź ofertę
Elewacja

Kup przez internet wszystkie materiały potrzebne do wykonania elewacji: styropian, płyty PIR, XPS, kleje, tynki. Najlepsze marki w super cenach z dostawą pod dom.

Hurtownia styropianu
Sprawdź ofertę!
Drzwi

Ciepłe drzwi WIŚNIOWSKI z kontrolą dostępu. Szeroka gama wzorów i kolorów.

Wiśniowski
Wybierz najlepsze
Bramy garażowe

Automatyczne bramy garażowe segmentowe i uchylne WIŚNIOWSKI na wymiar i z systemem smart home w standardzie.

Wiśniowski
Sprawdź ofertę!
Armatura i ceramika łazienkowa

Topowi producenci. Baterie łazienkowe, zestawy natynkowe i podtynkowe, umywalki, wanny, miski WC oraz kabiny zamówisz kompleksowo online.

Ceramzet II
Dowiedz się więcej
Rekuperacja

Alnor - kompletny system rekuperacji. Dobierz idealne rozwiązanie dla Twojego domu!

Alnor
Dobierz rekuperator
Dach

Producent stalowych pokryć dachowych i systemów elewacyjnych. Precyzja wykonania, trwałość na lata i szybki montaż doceniany przez dekarzy. Postaw na solidny dach Budmat.

Budmat
Sprawdź ofertę
Ogrodzenie

Nowoczesne stalowe ogrodzenia Budmat - estetyka, bezpieczeństwo i trwałość na lata. Systemowe rozwiązania na wymiar, dopasowane do każdego domu.

Budmat
Sprawdź ofertę

Gotowe domy - najszybszy sposób na dom (124)

Zobacz wszystkie
  • Stan deweloperski nawet w 6 miesięcy
  • Gwarancja stałej ceny
Skonfiguruj dom
Zdjęcie 1 projektu Bergen 130 HUS1002
130,40 m²
4
Stan deweloperski brutto
499 000 zł 3 827 zł/m²
Zdjęcie 1 projektu Dom prefabrykowany P.2 HPK1001
159,18 m²
5
Stan deweloperski brutto
847 000 zł 5 321 zł/m²
Zdjęcie 1 projektu Dom prefabrykowany P.4 bez okapu HPK1003
162,18 m²
5
Stan deweloperski brutto
723 500 zł 4 461 zł/m²
Zdjęcie 1 projektu Dom prefabrykowany P.4 z okapem HPK1014
162,18 m²
5
Stan deweloperski brutto
739 600 zł 4 560 zł/m²
Zdjęcie 1 projektu Dom prefabrykowany DH174 HDH1009
162,97 m²
4
Stan deweloperski brutto
1 026 000 zł 6 296 zł/m²
Zdjęcie 1 projektu Dom szkieletowy Viking Smart 220 HHT1032
163,86 m²
4
Stan deweloperski brutto
1 095 606 zł 6 686 zł/m²
Zdjęcie 1 projektu Dom prefabrykowany Stodoła 150C HFX1026
152,90 m²
5
Stan deweloperski brutto
589 000 zł 3 852 zł/m²
Zdjęcie 1 projektu Dom prefabrykowany Stodoła 150A HFX1024
152,20 m²
5
Stan deweloperski brutto
589 000 zł 3 870 zł/m²

Dodatki do projektu

Dodatki możesz zamówić w koszyku lub telefonicznie u naszego Doradcy.

Ikona

Bestseller

Dodatkowy egzemplarz projektu

900 zł

Opis projektu domu
Bocian 3 z garażem 2-st.

DomProjekt domu Bocian 3 z garażem 2-st.

Nowoczesny dom z poddaszem użytkowym i dwustanowiskowym garażem, zaprojektowany z myślą o komforcie cztero- lub pięcioosobowej rodziny. Funkcjonalny układ wnętrz, czytelny podział na strefy i ekonomiczna w budowie bryła z dwuspadowym dachem to kluczowe atuty tego projektu.

WyróżnieniaCo wyróżnia ten dom?

  • Czytelny podział na strefy – umieszczenie strefy dziennej na parterze i nocnej na poddaszu gwarantuje komfort oraz poczucie prywatności wszystkim domownikom.
  • Dodatkowy pokój na parterze – to elastyczna przestrzeń, którą można zaaranżować jako gabinet do pracy zdalnej, pokój dla gości lub komfortową sypialnię.
  • Funkcjonalna strefa kuchenna – otwarta kuchnia z centralnie umieszczoną wyspą oraz przylegającą do niej spiżarnią to marzenie każdego, kto ceni sobie wygodę podczas gotowania.
  • Dwustanowiskowy garaż w bryle budynku – zapewnia bezpieczne miejsce dla dwóch samochodów i oferuje wygodne przejście bezpośrednio do części mieszkalnej.

ArchitekturaArchitektura i wygląd

Projekt wyróżnia się nowoczesną stylistyką i przemyślaną bryłą opartą na planie prostokąta, co przekłada się na niższe koszty budowy i eksploatacji. Dwuspadowy dach to klasyczne i sprawdzone rozwiązanie, które doskonale komponuje się z nowoczesnym charakterem budynku. Wysunięty do przodu garaż tworzy praktyczne zadaszenie nad strefą wejściową i nadaje bryle dynamicznego wyglądu. Duży, częściowo zadaszony taras od strony ogrodu naturalnie powiększa strefę wypoczynkową domu. Prywatną strefę na poddaszu doświetla siedem okien dachowych, zapewniając obfitość naturalnego światła.

WnętrzeWnętrze i układ funkcjonalny

Dom oferuje 159,2 m² starannie zaplanowanej powierzchni użytkowej, na której rozmieszczono cztery pokoje i dwie łazienki, tworząc idealne warunki do życia dla całej rodziny.

Parter – strefa dzienna

Centrum życia rodzinnego stanowi przestronna, otwarta strefa dzienna. Znajduje się tu komfortowy salon z miejscem na kominek, połączony z jadalnią i kuchnią wyposażoną w dużą wyspę. Praktycznym uzupełnieniem kuchni jest podręczna spiżarnia, idealna do przechowywania zapasów. Na parterze zaprojektowano również dodatkowy, ustawny pokój, który może pełnić funkcję gabinetu lub sypialni dla gości. Program tej kondygnacji uzupełnia łazienka, kotłownia oraz duży, dwustanowiskowy garaż, z którego można wygodnie przejść do domu.

Poddasze – strefa nocna

Poddasze to prywatna strefa domowników, zaprojektowana z myślą o odpoczynku i regeneracji. Znajduje się tu przestronna sypialnia, która z łatwością pomieści duże łóżko i kącik do czytania. Tuż obok zlokalizowano osobną garderobę, która ułatwia utrzymanie porządku, oraz dużą, komfortową łazienkę. Całość tworzy intymną i doskonale doświetloną przestrzeń, idealną do wyciszenia po całym dniu.

Czytaj więcej

Polecani producenci

Kompletne systemy rekuperacji

tło producenta

Alnor

Dowiedz się więcej

Prefabrykowane konstrukcje dachowe

tło producenta

WIĄZAR POLSKA

Zobacz więcej

Sprawdź nową generację okien GREENVIEW

tło producenta

FAKRO

Sprawdź nową generację okien GREENVIEW

Styropian, tynki, farby, kleje

tło producenta

Termo Organika

Poznaj super jakość

Okna, drzwi, osłony przeciwsłoneczne

tło producenta

Aluprof

Sprawdź ofertę
Zobacz więcej

Społeczność projektu domu
Bocian 3 z garażem 2-st. w budowie

Dołącz do społeczności osób, które budują ten dom lub są zainteresowane jego budową.

  • Oglądaj zdjęcia z budowy
  • Zadawaj pytania
  • Wymieniaj się doświadczeniami

Opinie o projekcie domu Bocian 3 z garażem 2-st.

Ocena

Ten projekt nie ma jeszcze opinii, bądź pierwszy!

Dodaj opinię

ASYSTENT WYBORU PROJEKTU

Szukasz idealnego projektu? Znajdziemy go dla Ciebie!

Doradca na podstawie Twoich wskazówek przygotuje spersonalizowaną listę projektów

Graficzne opracowanie rzutów poglądowych widocznych na karcie projektu zostało wykonane przez Extradom.pl. Prezentowane przez Extradom.pl wizualizacje wykonane zostały przez autora projektu i należy poczytywać je jedynie za przykład i propozycję wykończenia, wizję architektoniczną autora projektu. Ostateczne wykończenie budynku może nastąpić na wiele sposobów. Szczegółowe rozwiązania zastosowane w oferowanej dokumentacji - w tym również ilość, lokalizacje i wygląd okien, drzwi, kominów - mogą w niewielkim stopniu różnić się od prezentowanej wizualizacji budynku.

Extradom.pl Spółka z ograniczoną odpowiedzialnością z siedzibą przy ul. Jaworskiej 13, 53-612 Wrocław, wpisana do rejestru przedsiębiorców Krajowego Rejestru Sądowego przez Sąd Rejonowy dla Wrocławia-Fabrycznej we Wrocławiu, VI Wydział Gospodarczy Krajowego Rejestru Sądowego do pod numerem KRS 0000648746, numer NIP 895-17-18-333, o kapitale zakładowym 708 150,00 zł uprzejmie informuje, iż poprzez serwis Extradom.pl umożliwia m.in. zapoznanie się przez konsumentów z ofertą handlową Partnerów Extradom.pl, którzy stosują metody budowy domów przy wykorzystaniu różnego rodzaju technologie prefabrykacji bądź modułowe (tzw. „Gotowe domy”).

Extradom.pl nie prowadzi jednakże sprzedaży ani nie oferuje usług polegających na doradztwie finansowym, prawnym ani podatkowym w zakresie inwestycji realizowanych w technologiach tzw. „Gotowych domów”. Informacje prezentowane w serwisie Extradom.pl dotyczące Partnerów Extradom.pl oferujących realizację inwestycji w technologiach „Gotowych domów” lub podobnych mają charakter informacyjny i reklamowy.

Prezentowane w serwisie Extradom.pl informacje dotyczące stosowanych przez Partnerów metod budowy domów w technologii prefabrykacji bądź modułowej pochodzą od Partnerów Extradom.pl.

Extradom.pl sp. z o.o. jedynie umożliwia nawiązanie kontaktu przez Użytkownika z Partnerem Extradom.pl stosującym tego rodzaju technologie budowy domów i nie jest stroną umowy o roboty budowlane zawieranej przez Użytkownika Extradom.pl z Partnerem Extradom.pl.

REKLAMA
Zamknij