👉 Złap prezent 🎁

Projekt domu Alabama 2C garaż WRD2323

Dodano!
Dodano!

Warstwy

Warstwy

Rzut parteru

Powierzchnia (m²)
Tooltip
Powierzchnia pomieszczenia
to ta, z której faktycznie możesz korzystać – skosy i niskie części poddasza są liczone częściowo lub wcale.
  1. 100% dla wysokości powyżej 2,2 m,
  2. 50% dla wysokości 1,4–2,2 m,
  3. nie liczymy poniżej 1,4 m.

Powierzchnia podłogi (wartość w nawiasie)
Liczymy po całym obrysie pomieszczenia, bez względu na jego wysokość.
152,10
1. Wiatrołap
5,10
2. Hall
17
3. Wc
2
4. Pokój
10
5. Łazienka
10,20
6. Kotłownia
7,70
7. Pokój
15,50
8. Pokój
17,30
9. Pokój dzienny + jadalnia
35,40
10. Kuchnia
9,30
11. Spiżarnia
2,60
12. Garaż jednostanowiskowy
20
Powierzchnia (m²)
Tooltip
Powierzchnia pomieszczenia
to ta, z której faktycznie możesz korzystać – skosy i niskie części poddasza są liczone częściowo lub wcale.
  1. 100% dla wysokości powyżej 2,2 m,
  2. 50% dla wysokości 1,4–2,2 m,
  3. nie liczymy poniżej 1,4 m.

Powierzchnia podłogi (wartość w nawiasie)
Liczymy po całym obrysie pomieszczenia, bez względu na jego wysokość.
35,10
1. Hall
5,50
2. Pokój
10,60
3. Garderoba
3
4. Pokój
7,80
5. Garderoba
1,40
6. Łazienka
6,80

    Usytuowanie na działce

    Czy ten projekt pasuje na
    Twoją działkę?

    Chętnie to sprawdzimy!

    Dowiedz się:

    • czy zmieści się na niej wybrany przez Ciebie dom
    • jakie parametry musi spełniać dom według miejscowego planu zagospodarowania lub warunków zabudowy (np. kąt nachylenia i typ dachu, liczba kondygnacji itp.
    • jakie inne projekty pasują na Twoją działkę – znajdziemy je dla Ciebie!

Pow. użytkowa

159,80 m²

Pokoje

5

Łazienki i WC

3

Garaż

1

Kąt dachu

32°

Konstrukcja

Murowana
więcej

Alabama 2C garaż - WRD2323

ikona 159,80 m²
Powierzchnia użytkowa
ikona5
Pokoje (bez salonu)
ikona 3
Łazienki (z toaletami)
ikona 1
Liczba stanowisk garażowych
(z wiatą garażową)
ikona
Konstrukcja: Murowana

Projekt został
wycofany z oferty

W razie pytań prosimy o kontakt
z Centrum Obsługi Klienta
Konsultant Masz pytania?
Zadzwoń
71 715 20 60

pon.-pt. 8-21, sob. 9-17

Parter - 152,10 m²

Parter projektu Alabama 2C garaż

Zapytaj, co możesz zmienić

Powierzchnia (m²)
Tooltip
Powierzchnia pomieszczenia
to ta, z której faktycznie możesz korzystać – skosy i niskie części poddasza są liczone częściowo lub wcale.
  1. 100% dla wysokości powyżej 2,2 m,
  2. 50% dla wysokości 1,4–2,2 m,
  3. nie liczymy poniżej 1,4 m.

Powierzchnia podłogi (wartość w nawiasie)
Liczymy po całym obrysie pomieszczenia, bez względu na jego wysokość.
(152,10)
152,10
1. Wiatrołap
5,10
2. Hall
17
3. Wc
2
4. Pokój
10
5. Łazienka
10,20
6. Kotłownia
7,70
7. Pokój
15,50
8. Pokój
17,30
9. Pokój dzienny + jadalnia
35,40
10. Kuchnia
9,30
11. Spiżarnia
2,60
12. Garaż jednostanowiskowy
20

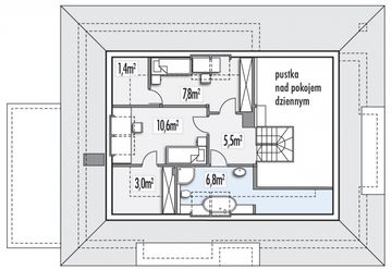
Poddasze - 35,10 m²

Poddasze projektu Alabama 2C garaż

Zapytaj, co możesz zmienić

Powierzchnia (m²)
Tooltip
Powierzchnia pomieszczenia
to ta, z której faktycznie możesz korzystać – skosy i niskie części poddasza są liczone częściowo lub wcale.
  1. 100% dla wysokości powyżej 2,2 m,
  2. 50% dla wysokości 1,4–2,2 m,
  3. nie liczymy poniżej 1,4 m.

Powierzchnia podłogi (wartość w nawiasie)
Liczymy po całym obrysie pomieszczenia, bez względu na jego wysokość.
(35,10)
35,10
1. Hall
5,50
2. Pokój
10,60
3. Garderoba
3
4. Pokój
7,80
5. Garderoba
1,40
6. Łazienka
6,80

Podobne projekty (7032)

Zobacz wszystkie
PREZENT 🎁
Zdjęcie 1 projektu NewHouse 759 KRZ1070
NewHouse 759
Dodano!
Dodano!
157 m²
4
3
2

5 990 zł

PREZENT 🎁
Zdjęcie 1 projektu NewHouse 762 KRZ1121
NewHouse 762
Dodano!
Dodano!
162,67 m²
4
3
2

6 390 zł

PREZENT 🎁
Nowość
Zdjęcie 1 projektu NewHouse 790 w3 KRZ1136
NewHouse 790 w3
Dodano!
Dodano!
172,58 m²
4
3
2

6 590 zł

PREZENT 🎁
Zdjęcie 1 projektu HG-I24 KRM1100
HG-I24
Dodano!
Dodano!
142,14 m²
4
3
2

4 650 zł

PREZENT 🎁
Zdjęcie 1 projektu HomeKoncept 37 KRX1042
HomeKoncept 37
Dodano!
Dodano!
186,56 m²
4
3
2

8 290 zł

PREZENT 🎁
Zdjęcie 1 projektu HomeKoncept 31 KRX1034
HomeKoncept 31
Dodano!
Dodano!
142,26 m²
3
2
2

6 490 zł

PREZENT 🎁
Zdjęcie 1 projektu HomeKoncept 79 KRX1125
HomeKoncept 79
Dodano!
Dodano!
162,27 m²
4
3
2

6 990 zł

PREZENT 🎁
Zdjęcie 1 projektu AJR 09 A2 a WOJ1029
AJR 09 A2 a
Dodano!
Dodano!
156,50 m²
5
3
2

4 900 zł

Elewacje

Frontowa
Tylna
Lewa
Prawa

Przekroje

Przekrój pionowy

Usytuowanie na działce

Czy ten projekt pasuje na
Twoją działkę?

Chętnie to sprawdzimy!

Czy ten projekt pasuje na
Twoją działkę?

Chętnie to sprawdzimy!

Dowiedz się:

  • czy zmieści się na niej wybrany przez Ciebie dom
  • jakie parametry musi spełniać dom według miejscowego planu zagospodarowania lub warunków zabudowy (np. kąt nachylenia i typ dachu, liczba kondygnacji itp.
  • jakie inne projekty pasują na Twoją działkę – znajdziemy je dla Ciebie!
Autor: Horyzont Pracownia Projektowa

Dane techniczne projektu

Powierzchnie i wymiary Powierzchnie i wymiary

Powierzchnia użytkowa
Tooltip
Suma powierzchni wszystkich pomieszczeń mieszkalnych, pomniejszona o pow. garażu, kotłowni, strychu, piwnicy. Jest liczona w 100% dla pomieszczeń o wysokości powyżej 2,2 m, w 50% dla pomieszczeń o wys. 2,2-1,4 m i niewliczana dla niższych niż 1,4 m.

159,80 m²

Wysokość ściany kolankowej
Tooltip
Wysokość ściany podpierającej dach. Jej wysokość wpływa na powierzchnię użytkową kondygnacji, na której się znajduje.

0,24 m

Powierzchnia zabudowy
Tooltip
Powierzchnia zajmowana przez część na- oraz nadziemną budynku liczona, jako rzut pionowy budynku na działkę.

201,50 m²

Kąt nachylenia dachu
Tooltip
Nachylenie połaci dachu głównego podawane w stopniach. Uwaga! W niektórych projektach występuje więcej niż jedno nachylenie dachu.

32°

Wysokość budynku
Tooltip
Wysokość liczona od części budynku położonej najniżej przy powierzchni terenu do najwyższego punktu dachu (kalenicy) z wyłączeniem kominów.

7,43 m

Min. szerokość działki
Tooltip
Najmniejsza możliwa szerokość działki niezbędna do wybudowania wybranego domu. Składa się z szerokości elewacji domu powiększonej z obu stron o 3 m dla ściany bez otworów drzwiowych/okiennych lub 4 m, dla ściany z otworami.

26,10 m

Energooszczędność Energooszczędność

Oze Czym jest OZE (Odnawialne Źródło Energii)?
Warunki techniczne

Projekt zgody z WT 2021

Technologia i konstrukcja Technologia i konstrukcja

Konstrukcja

Murowana

Opis szczegółowy

Strop: gęstożebrowy Teriva I. Ściany zewnętrzne: gazobeton 24cm + styropian 14cm. Pokrycie dachowe: dachówka ceramiczna. Okna połaciowe: Velux.

Strop

Gęstożebrowy

Reklama
Okna i drzwi tarasowe

Nowoczesne okna PVC i aluminiowe WIŚNIOWSKI – doskonała izolacja, elegancki design i niezrównana trwałość.

Wiśniowski
Sprawdź parametry!
Okna dachowe

Oferujemy bezpłatne konsultacje w zakresie wszystkich rozwiązań VELUX. Wyceny, porady dotyczące doboru okien i rolet zewnętrznych - sprawdź!

Velux
Sprawdź szczegóły
Dach

Producent stalowych pokryć dachowych i elewacyjnych - 40 lat doświadczenia. Zbuduj solidny dach z nami!

Blachy Pruszyński
Sprawdź szczegóły
Płytki ceramiczne i gresy

Od małych formatów po wielkoformatowe gresy. Marmur, beton, drewno, kamień, lastryko czy cegiełki zamówisz wygodnie online z szybką dostawą.

Ceramzet
Sprawdź ofertę
Drzwi

Ciepłe drzwi WIŚNIOWSKI z kontrolą dostępu. Szeroka gama wzorów i kolorów.

Wiśniowski
Wybierz najlepsze
Bramy garażowe

Automatyczne bramy garażowe segmentowe i uchylne WIŚNIOWSKI na wymiar i z systemem smart home w standardzie.

Wiśniowski
Sprawdź ofertę!
Armatura i ceramika łazienkowa

Topowi producenci. Baterie łazienkowe, zestawy natynkowe i podtynkowe, umywalki, wanny, miski WC oraz kabiny zamówisz kompleksowo online.

Ceramzet II
Dowiedz się więcej
Rekuperacja

Alnor - kompletny system rekuperacji. Dobierz idealne rozwiązanie dla Twojego domu!

Alnor
Dobierz rekuperator
Gruntowe pompy ciepła

Przeprowadzimy kompletną instalację najbardziej oszczędnego źródła ciepła w Twoim nowym domu - gruntowej pompy ciepła. Od dokumentacji, pozwoleń, po odwierty i instalację.

Geothermal Solutions
Dowiedz się więcej

Gotowe domy modułowe (113)

Zobacz wszystkie
Stan deweloperski nawet w 6 miesięcy Gwarancja stałej ceny
Zdjęcie 1 projektu Dom prefabrykowany P.2 HPK1001
Pow. użytkowa
159,18 m²
Pokoje
5
832 200 zł 5 228 zł/m²
Zdjęcie 1 projektu Dom prefabrykowany P.4 bez okapu HPK1003
Pow. użytkowa
162,18 m²
Pokoje
4
701 000 zł 4 322 zł/m²
Zdjęcie 1 projektu Dom prefabrykowany P.4 z okapem HPK1014
Pow. użytkowa
162,18 m²
Pokoje
5
710 500 zł 4 381 zł/m²
Zdjęcie 1 projektu Dom szkieletowy Viking Smart 220 HHT1032
Pow. użytkowa
163,86 m²
Pokoje
4
1 095 606 zł 6 686 zł/m²
Zdjęcie 1 projektu Dom prefabrykowany Stodoła 150C HFX1026
Pow. użytkowa
152,90 m²
Pokoje
5
589 000 zł 3 852 zł/m²
Zdjęcie 1 projektu Dom prefabrykowany Stodoła 150A HFX1024
Pow. użytkowa
152,20 m²
Pokoje
5
589 000 zł 3 870 zł/m²
Zdjęcie 1 projektu Dom prefabrykowany Stodoła 150B HFX1025
Pow. użytkowa
151,30 m²
Pokoje
4
589 000 zł 3 893 zł/m²
Zdjęcie 1 projektu Dom szkieletowy Open Sky 195 HHT1029
Pow. użytkowa
145,04 m²
Pokoje
4
940 300 zł 6 483 zł/m²

Opis projektu domu
Alabama 2C garaż

Dom Alabama 2 wersja C z pojedynczym garażem został stworzony na wzór cieszącego się popularnością projektu Alabama 2 wersja A z wiatą. W przeciwieństwie do pierwotnej wersji projekt ma garaż. Projekt domu Alabama 2 wersja C z pojedynczym garażem to idealna propozycja dla osób posiadających średniej szerokości działkę. Dom cechuje się typową bryłą, co znacznie ułatwia proces budowy. Uwzględniony w nim wykusz nadaje konstrukcji wyjątkowego charakteru. Projekt należy do kategorii domów z kalenicą skierowaną równolegle do drogi, co często określane jest w warunkach zabudowy. Jest przeznaczony do zabudowy wolnostojącej. W projekcie uwzględniono garaż jednostanowiskowy w linii budynku. Konstrukcja budynku zwieńczona jest dachem kopertowym, dzięki czemu budynek prezentuje są bardzo efektownie. Projekt Alabama 2 wersja C z pojedynczym garażem to dom parterowy z poddaszem użytkowym, co sprawia, że jego powierzchnia jest wyraźnie podzielona na strefy: dzienną i nocną.Autor projektu przewidział w nim ciekawie prezentującą się strefę dzienną. Tworzy ją między innymi kuchnia, która dzięki swoim wymiarom jest w pełni ustawna i funkcjonalna. Uwzględniona w projekcie spiżarka znacznie ułatwi zachowanie porządku. Projektant połączył salon i jadalnię w przestronną strefę dzienną, co jest nowoczesnym oraz bardzo funkcjonalnym rozwiązaniem. Usytuowany w salonie kominek nie tylko świetnie się prezentuje, ale także zapewni przyjemne ciepło w chłodniejsze dni. W projekcie uwzględniono dwie komfortowe łazienki- jedna znajduje się na parterze, zaś druga na poddaszu. Oprócz tego na dole przewidziano dodatkową, osobną toaletę. W domu znajduje się pięć wygodnych sypialni, co sprawia iż jest on doskonałym wyborem dla 5-7 osobowej rodziny. Przestrzeń można wykorzystać także jako pokój dla gości lub gabinet. Taras przy domu sprzyja spędzaniu czasu na świeżym powietrzu. Budynek został zaprojektowany w technologii murowanej. Jego wygląd zewnętrzny uwydatnia cechy charakterystyczne dla stylu nowoczesnego i idealnie wpisze się w trendy nowo powstających osiedli.
Czytaj więcej

Polecani producenci

Prefabrykowane konstrukcje dachowe

tło producenta

WIĄZAR POLSKA

Zobacz więcej

Sprawdź nową generację okien GREENVIEW

tło producenta

FAKRO

Sprawdź nową generację okien GREENVIEW

Styropian, tynki, farby, kleje

tło producenta

Termo Organika

Poznaj super jakość

Okna, drzwi, osłony przeciwsłoneczne

tło producenta

Aluprof

Sprawdź ofertę

Kompletne systemy rekuperacji

tło producenta

Alnor

Dowiedz się więcej

Sprawdź nowy system DACHRYNNA

tło producenta

Galeco

Sprawdź ofertę
Zobacz więcej

Społeczność projektu domu
Alabama 2C garaż w budowie

Dołącz do społeczności osób, które budują ten dom lub są zainteresowane jego budową.

  • Oglądaj zdjęcia z budowy
  • Zadawaj pytania
  • Wymieniaj się doświadczeniami

Opinie o projekcie domu Alabama 2C garaż

Ocena

Ten projekt nie ma jeszcze opinii, bądź pierwszy!

Dodaj opinię

ASYSTENT WYBORU PROJEKTU

Szukasz idealnego projektu? Znajdziemy go dla Ciebie!

Doradca na podstawie Twoich wskazówek przygotuje spersonalizowaną listę projektów

Graficzne opracowanie rzutów poglądowych widocznych na karcie projektu zostało wykonane przez Extradom.pl. Prezentowane przez Extradom.pl wizualizacje wykonane zostały przez autora projektu i należy poczytywać je jedynie za przykład i propozycję wykończenia, wizję architektoniczną autora projektu. Ostateczne wykończenie budynku może nastąpić na wiele sposobów. Szczegółowe rozwiązania zastosowane w oferowanej dokumentacji - w tym również ilość, lokalizacje i wygląd okien, drzwi, kominów - mogą w niewielkim stopniu różnić się od prezentowanej wizualizacji budynku.

REKLAMA
Zamknij