Projekty nawet 500 zł taniej ❄️

Koniec oferty za:

0dni

00godz.

00min.

00sek.

Sprawdź

Projekt budynku Lazur 2 BSA1222

Dodano!
Dodano!

Warstwy

Warstwy

Warstwy

Warstwy

Rzut parteru

Powierzchnia (m²)
Tooltip
Powierzchnia pomieszczenia
to ta, z której faktycznie możesz korzystać – skosy i niskie części poddasza są liczone częściowo lub wcale.
  1. 100% dla wysokości powyżej 2,2 m,
  2. 50% dla wysokości 1,4–2,2 m,
  3. nie liczymy poniżej 1,4 m.

Powierzchnia podłogi
Liczymy po obrysie pomieszczenia, bez względu na jego wysokość/skosy. Jeśli nie ma skosów to powierzchnia podłogi i pomieszczenia jest taka sama.
pomieszczenia i podłogi
podłogi
1. Korytarz
3,21
2. Korytarz
13,52
3. Korytarz
4,84
4. Kotłownia
10,26
5. Pomieszczenie gospodarcze
11,38
6. Pomieszczenie gospodarcze
11,80
7. Garaż jednostanowiskowy
17,96
8. Garaż jednostanowiskowy
17,96
9. Garaż jednostanowiskowy
17,39
10. Garaż jednostanowiskowy
17,39
11. Korytarz
29,58
12. Garaż jednostanowiskowy
21,99
13. Garaż jednostanowiskowy
21,99
14. Pomieszczenie gospodarcze
8,10
15. Pomieszczenie gospodarcze
7,19
16. Pomieszczenie gospodarcze
9,76
17. Pomieszczenie gospodarcze
6,70
18. Hall
2,83
Razem
233,85
233,85
Powierzchnia (m²)
Tooltip
Powierzchnia pomieszczenia
to ta, z której faktycznie możesz korzystać – skosy i niskie części poddasza są liczone częściowo lub wcale.
  1. 100% dla wysokości powyżej 2,2 m,
  2. 50% dla wysokości 1,4–2,2 m,
  3. nie liczymy poniżej 1,4 m.

Powierzchnia podłogi
Liczymy po obrysie pomieszczenia, bez względu na jego wysokość/skosy. Jeśli nie ma skosów to powierzchnia podłogi i pomieszczenia jest taka sama.
pomieszczenia i podłogi
podłogi
1. Schody
15,20
2. Korytarz
7,23
3. Korytarz
6,40
4. Kuchnia
8,81
5. Pokój dzienny
17,90
6. Pokój
10,06
7. Łazienka
3,63
8. Korytarz
9,83
9. Pokój dzienny
21,11
10. Kuchnia
9,68
11. Pokój
11,28
12. Pokój
11,58
13. Łazienka
5,37
14. Korytarz
13,84
15. Wc
1,70
16. Łazienka
4,31
17. Pokój
9,38
18. Pokój
14,38
19. Pokój
8,09
20. Kuchnia
9,86
21. Pokój dzienny
24,78
Razem
224,42
224,42
Powierzchnia (m²)
Tooltip
Powierzchnia pomieszczenia
to ta, z której faktycznie możesz korzystać – skosy i niskie części poddasza są liczone częściowo lub wcale.
  1. 100% dla wysokości powyżej 2,2 m,
  2. 50% dla wysokości 1,4–2,2 m,
  3. nie liczymy poniżej 1,4 m.

Powierzchnia podłogi
Liczymy po obrysie pomieszczenia, bez względu na jego wysokość/skosy. Jeśli nie ma skosów to powierzchnia podłogi i pomieszczenia jest taka sama.
pomieszczenia i podłogi
podłogi
1. Schody
15,20
2. Korytarz
7,23
3. Korytarz
6,40
4. Kuchnia
8,81
5. Pokój dzienny
17,90
6. Pokój
10,06
7. Łazienka
3,63
8. Korytarz
9,83
9. Pokój dzienny
21,11
10. Kuchnia
9,68
11. Pokój
11,28
12. Pokój
11,58
13. Łazienka
5,37
14. Korytarz
13,84
15. Wc
1,70
16. Łazienka
4,31
17. Pokój
9,38
18. Pokój
14,38
19. Pokój
8,09
20. Kuchnia
9,86
21. Pokój dzienny
24,78
Razem
224,42
224,42
Powierzchnia (m²)
Tooltip
Powierzchnia pomieszczenia
to ta, z której faktycznie możesz korzystać – skosy i niskie części poddasza są liczone częściowo lub wcale.
  1. 100% dla wysokości powyżej 2,2 m,
  2. 50% dla wysokości 1,4–2,2 m,
  3. nie liczymy poniżej 1,4 m.

Powierzchnia podłogi
Liczymy po obrysie pomieszczenia, bez względu na jego wysokość/skosy. Jeśli nie ma skosów to powierzchnia podłogi i pomieszczenia jest taka sama.
pomieszczenia i podłogi
podłogi
1. Schody
15,20
2. Korytarz
7,23
3. Korytarz
17,42
4. Pokój dzienny
20,53
5. Kuchnia
9,89
6. Pokój
8,98
7. Pokój
12,81
8. Łazienka
5,70
9. Wc
1,81
10. Korytarz
5,02
11. Kuchnia
6,18
12. Pokój dzienny
22,72
13. Łazienka
4,19
14. Korytarz
13,87
15. Wc
1,70
16. Łazienka
4,31
17. Pokój
9,38
18. Pokój
14,38
19. Pokój
8,09
20. Kuchnia
9,86
21. Pokój dzienny
19,13
Razem
218,40
218,40

    Usytuowanie na działce

    Czy ten projekt pasuje na
    Twoją działkę?

    Chętnie to sprawdzimy!

    Dowiedz się:

    • czy zmieści się na niej wybrany przez Ciebie dom
    • jakie parametry musi spełniać dom według miejscowego planu zagospodarowania lub warunków zabudowy (np. kąt nachylenia i typ dachu, liczba kondygnacji itp.
    • jakie inne projekty pasują na Twoją działkę – znajdziemy je dla Ciebie!

Pow. użytkowa

676,54 m²

Pokoje

17

Łazienki i WC

8

Garaż

6

Min. szer. i dł. działki

29,19 x 24,49 m

Kąt dachu

Konstrukcja

Murowana
więcej

Lazur 2 - BSA1222

ikona 676,54 m²
Powierzchnia użytkowa
ikona17
Pokoje (bez salonu)
ikona 8
Łazienki (z toaletami)
ikona 6
Liczba stanowisk garażowych
(z wiatą garażową)
ikona
Konstrukcja: Murowana

Projekt został
wycofany z oferty

W razie pytań prosimy o kontakt
z Centrum Obsługi Klienta
Konsultant Masz pytania?
Zadzwoń
71 715 20 60

pon.-pt. 8-21, sob. 9-17

Piwnica - 233,85 m²

Piwnica projektu Lazur 2

Zapytaj, co możesz zmienić

Powierzchnia (m²)
Tooltip
Powierzchnia pomieszczenia
to ta, z której faktycznie możesz korzystać – skosy i niskie części poddasza są liczone częściowo lub wcale.
  1. 100% dla wysokości powyżej 2,2 m,
  2. 50% dla wysokości 1,4–2,2 m,
  3. nie liczymy poniżej 1,4 m.

Powierzchnia podłogi
Liczymy po obrysie pomieszczenia, bez względu na jego wysokość/skosy. Jeśli nie ma skosów to powierzchnia podłogi i pomieszczenia jest taka sama.
pomieszczenia i podłogi
podłogi
1. Korytarz
3,21
2. Korytarz
13,52
3. Korytarz
4,84
4. Kotłownia
10,26
5. Pomieszczenie gospodarcze
11,38
6. Pomieszczenie gospodarcze
11,80
7. Garaż jednostanowiskowy
17,96
8. Garaż jednostanowiskowy
17,96
9. Garaż jednostanowiskowy
17,39
10. Garaż jednostanowiskowy
17,39
11. Korytarz
29,58
12. Garaż jednostanowiskowy
21,99
13. Garaż jednostanowiskowy
21,99
14. Pomieszczenie gospodarcze
8,10
15. Pomieszczenie gospodarcze
7,19
16. Pomieszczenie gospodarcze
9,76
17. Pomieszczenie gospodarcze
6,70
18. Hall
2,83
Razem
233,85
233,85

Parter - 224,42 m²

Parter projektu Lazur 2

Zapytaj, co możesz zmienić

Powierzchnia (m²)
Tooltip
Powierzchnia pomieszczenia
to ta, z której faktycznie możesz korzystać – skosy i niskie części poddasza są liczone częściowo lub wcale.
  1. 100% dla wysokości powyżej 2,2 m,
  2. 50% dla wysokości 1,4–2,2 m,
  3. nie liczymy poniżej 1,4 m.

Powierzchnia podłogi
Liczymy po obrysie pomieszczenia, bez względu na jego wysokość/skosy. Jeśli nie ma skosów to powierzchnia podłogi i pomieszczenia jest taka sama.
pomieszczenia i podłogi
podłogi
1. Schody
15,20
2. Korytarz
7,23
3. Korytarz
6,40
4. Kuchnia
8,81
5. Pokój dzienny
17,90
6. Pokój
10,06
7. Łazienka
3,63
8. Korytarz
9,83
9. Pokój dzienny
21,11
10. Kuchnia
9,68
11. Pokój
11,28
12. Pokój
11,58
13. Łazienka
5,37
14. Korytarz
13,84
15. Wc
1,70
16. Łazienka
4,31
17. Pokój
9,38
18. Pokój
14,38
19. Pokój
8,09
20. Kuchnia
9,86
21. Pokój dzienny
24,78
Razem
224,42
224,42

Piętro 1 - 224,42 m²

Piętro 1 projektu Lazur 2

Zapytaj, co możesz zmienić

Powierzchnia (m²)
Tooltip
Powierzchnia pomieszczenia
to ta, z której faktycznie możesz korzystać – skosy i niskie części poddasza są liczone częściowo lub wcale.
  1. 100% dla wysokości powyżej 2,2 m,
  2. 50% dla wysokości 1,4–2,2 m,
  3. nie liczymy poniżej 1,4 m.

Powierzchnia podłogi
Liczymy po obrysie pomieszczenia, bez względu na jego wysokość/skosy. Jeśli nie ma skosów to powierzchnia podłogi i pomieszczenia jest taka sama.
pomieszczenia i podłogi
podłogi
1. Schody
15,20
2. Korytarz
7,23
3. Korytarz
6,40
4. Kuchnia
8,81
5. Pokój dzienny
17,90
6. Pokój
10,06
7. Łazienka
3,63
8. Korytarz
9,83
9. Pokój dzienny
21,11
10. Kuchnia
9,68
11. Pokój
11,28
12. Pokój
11,58
13. Łazienka
5,37
14. Korytarz
13,84
15. Wc
1,70
16. Łazienka
4,31
17. Pokój
9,38
18. Pokój
14,38
19. Pokój
8,09
20. Kuchnia
9,86
21. Pokój dzienny
24,78
Razem
224,42
224,42

Piętro 2 - 218,40 m²

Piętro 2 projektu Lazur 2

Zapytaj, co możesz zmienić

Powierzchnia (m²)
Tooltip
Powierzchnia pomieszczenia
to ta, z której faktycznie możesz korzystać – skosy i niskie części poddasza są liczone częściowo lub wcale.
  1. 100% dla wysokości powyżej 2,2 m,
  2. 50% dla wysokości 1,4–2,2 m,
  3. nie liczymy poniżej 1,4 m.

Powierzchnia podłogi
Liczymy po obrysie pomieszczenia, bez względu na jego wysokość/skosy. Jeśli nie ma skosów to powierzchnia podłogi i pomieszczenia jest taka sama.
pomieszczenia i podłogi
podłogi
1. Schody
15,20
2. Korytarz
7,23
3. Korytarz
17,42
4. Pokój dzienny
20,53
5. Kuchnia
9,89
6. Pokój
8,98
7. Pokój
12,81
8. Łazienka
5,70
9. Wc
1,81
10. Korytarz
5,02
11. Kuchnia
6,18
12. Pokój dzienny
22,72
13. Łazienka
4,19
14. Korytarz
13,87
15. Wc
1,70
16. Łazienka
4,31
17. Pokój
9,38
18. Pokój
14,38
19. Pokój
8,09
20. Kuchnia
9,86
21. Pokój dzienny
19,13
Razem
218,40
218,40

Podobne projekty (6)

Zdjęcie 1 projektu Dante SLT1005
Dante
Dodano!
Dodano!
568,95 m²
0
5
6

30 750 zł

PROMOCJA
Zdjęcie 1 projektu San Pedro 2 - budynek wielorodzinny z balkonami SLN2691
629,84 m²
13
3
6

10 400 zł

10 700 zł

Tooltip

Cena regularna

10 200 zł najniższa cena
Tooltip

Najniższa cena z 30 dni
przed obniżką

PROMOCJA
Zdjęcie 1 projektu San Pedro - budynek wielorodzinny SLN2685
629,84 m²
14
3
6

9 900 zł

10 200 zł

Tooltip

Cena regularna

9 700 zł najniższa cena
Tooltip

Najniższa cena z 30 dni
przed obniżką

PROMOCJA
Zdjęcie 1 projektu San vito - budynek wielorodzinny SLN2549
460,34 m²
11
4
0

8 900 zł

9 200 zł

Tooltip

Cena regularna

8 700 zł najniższa cena
Tooltip

Najniższa cena z 30 dni
przed obniżką

Zdjęcie 1 projektu La Colina III SLO1059
La Colina III
Dodano!
Dodano!
347,84 m²
12
4
0

9 500 zł

Zdjęcie 1 projektu uA363 WCB1481
uA363
Dodano!
Dodano!
676,70 m²
0
0
0

34 900 zł

Elewacje

Frontowa
Tylna
Lewa
Prawa

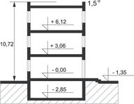
Przekroje

Przekrój pionowy

Usytuowanie na działce

Czy ten projekt pasuje na
Twoją działkę?

Chętnie to sprawdzimy!

Czy ten projekt pasuje na
Twoją działkę?

Chętnie to sprawdzimy!

Dowiedz się:

  • czy zmieści się na niej wybrany przez Ciebie dom
  • jakie parametry musi spełniać dom według miejscowego planu zagospodarowania lub warunków zabudowy (np. kąt nachylenia i typ dachu, liczba kondygnacji itp.
  • jakie inne projekty pasują na Twoją działkę – znajdziemy je dla Ciebie!
Autor: Domy w Stylu

Dane techniczne projektu

Powierzchnie i wymiary Powierzchnie i wymiary

Powierzchnia użytkowa
Tooltip
Suma powierzchni wszystkich pomieszczeń mieszkalnych, pomniejszona o pow. garażu, kotłowni, strychu, piwnicy. Jest liczona w 100% dla pomieszczeń o wysokości powyżej 2,2 m, w 50% dla pomieszczeń o wys. 2,2-1,4 m i niewliczana dla niższych niż 1,4 m.

676,54 m²

Powierzchnia zabudowy
Tooltip
Powierzchnia zajmowana przez część na- oraz nadziemną budynku liczona, jako rzut pionowy budynku na działkę.

284,46 m²

Kubatura netto
Tooltip
Zazwyczaj jest to suma kubatur (objętości) pomieszczeń budynku, bez strychu, liczonych po zewnętrznym obrysie murów (z ociepleniem).

3 287 m³

Powierzchnia dachu

380 m²

Kąt nachylenia dachu
Tooltip
Nachylenie połaci dachu głównego podawane w stopniach. Uwaga! W niektórych projektach występuje więcej niż jedno nachylenie dachu.

Wysokość budynku
Tooltip
Wysokość liczona od części budynku położonej najniżej przy powierzchni terenu do najwyższego punktu dachu (kalenicy) z wyłączeniem kominów.

10,72 m

Min. szerokość działki
Tooltip
Najmniejsza możliwa szerokość działki niezbędna do wybudowania wybranego domu. Składa się z szerokości elewacji domu powiększonej z obu stron o 3 m dla ściany bez otworów drzwiowych/okiennych lub 4 m, dla ściany z otworami.

29,19 m

Min. długość działki
Tooltip
Najmniejsza możliwa długość działki niezbędna do wybudowania wybranego domu. Składa się z długości elewacji domu powiększonej z obu stron o 3 m dla ściany bez otworów drzwiowych/okiennych lub 4 m, dla ściany z otworami.

24,49 m

Energooszczędność Energooszczędność

Oze Czym jest OZE (Odnawialne Źródło Energii)?
Warunki techniczne

Projekt zgody z WT 2021

Technologia i konstrukcja Technologia i konstrukcja

Konstrukcja

Murowana

Opis szczegółowy

Ściany: 2-warstwowe - pustak ceramiczny. Stropy: prefabrykowane płyty kanałowe. Dach: stropodach o konstrukcji żelbetowej, kąt nachylenia 3°. Ogrzewanie: gazowe.

Reklama
Okna i drzwi tarasowe

Nowoczesne okna PVC i aluminiowe WIŚNIOWSKI – doskonała izolacja, elegancki design i niezrównana trwałość.

Wiśniowski
Sprawdź parametry!
Okna dachowe

Oferujemy bezpłatne konsultacje w zakresie wszystkich rozwiązań VELUX. Wyceny, porady dotyczące doboru okien i rolet zewnętrznych - sprawdź!

Velux
Sprawdź szczegóły
Płytki ceramiczne i gresy

Od małych formatów po wielkoformatowe gresy. Marmur, beton, drewno, kamień, lastryko czy cegiełki zamówisz wygodnie online z szybką dostawą.

Ceramzet
Sprawdź ofertę
Drzwi

Ciepłe drzwi WIŚNIOWSKI z kontrolą dostępu. Szeroka gama wzorów i kolorów.

Wiśniowski
Wybierz najlepsze
Bramy garażowe

Automatyczne bramy garażowe segmentowe i uchylne WIŚNIOWSKI na wymiar i z systemem smart home w standardzie.

Wiśniowski
Sprawdź ofertę!
Armatura i ceramika łazienkowa

Topowi producenci. Baterie łazienkowe, zestawy natynkowe i podtynkowe, umywalki, wanny, miski WC oraz kabiny zamówisz kompleksowo online.

Ceramzet II
Dowiedz się więcej
Rekuperacja

Alnor - kompletny system rekuperacji. Dobierz idealne rozwiązanie dla Twojego domu!

Alnor
Dobierz rekuperator
Gruntowe pompy ciepła

Przeprowadzimy kompletną instalację najbardziej oszczędnego źródła ciepła w Twoim nowym domu - gruntowej pompy ciepła. Od dokumentacji, pozwoleń, po odwierty i instalację.

Geothermal Solutions
Dowiedz się więcej

Opis projektu budynku
Lazur 2

Dom mieszkalny wielorodzinny, podpiwniczony. W piwnicy zaprojektowano 6 stanowisk garażowych, komórki lokatorskie, pomieszczenie techniczne. Na trzech kondygnacjach mieszkaniowych zaprojektowano 9 mieszkań. Dom o nowoczesnej, zwartej bryle.
Czytaj więcej

Informacje dodatkowe

Dokumentacja zabezpieczona jest specjalną plombą, której usunięcie uniemożliwi zwrot oraz wymianę projektu. Zapraszamy do zamówienia przed zakupem rysunków szczegółowych projektu oraz analizy posiadanej działki w celu upewnienia się, że wybrany projekt domu idealnie na nią pasuje. Do projektu zostanie dołączony egzemplarz okazowy w formacie A4 (część architektoniczna), służący do weryfikacji projektu po odbiorze zamówienia bez konieczności otwierania pełnej dokumentacji projektowej.

Czytaj więcej

Polecani producenci

Prefabrykowane konstrukcje dachowe

tło producenta

WIĄZAR POLSKA

Zobacz więcej

Sprawdź nową generację okien GREENVIEW

tło producenta

FAKRO

Sprawdź nową generację okien GREENVIEW

Styropian, tynki, farby, kleje

tło producenta

Termo Organika

Poznaj super jakość

Okna, drzwi, osłony przeciwsłoneczne

tło producenta

Aluprof

Sprawdź ofertę

Kompletne systemy rekuperacji

tło producenta

Alnor

Dowiedz się więcej

Sprawdź nowy system DACHRYNNA

tło producenta

Galeco

Sprawdź ofertę
Zobacz więcej

Społeczność projektu budynku
Lazur 2 w budowie

Dołącz do społeczności osób, które budują ten dom lub są zainteresowane jego budową.

  • Oglądaj zdjęcia z budowy
  • Zadawaj pytania
  • Wymieniaj się doświadczeniami

Opinie o projekcie budynku Lazur 2

Ocena

Ten projekt nie ma jeszcze opinii, bądź pierwszy!

Dodaj opinię

ASYSTENT WYBORU PROJEKTU

Szukasz idealnego projektu? Znajdziemy go dla Ciebie!

Doradca na podstawie Twoich wskazówek przygotuje spersonalizowaną listę projektów

Graficzne opracowanie rzutów poglądowych widocznych na karcie projektu zostało wykonane przez Extradom.pl. Prezentowane przez Extradom.pl wizualizacje wykonane zostały przez autora projektu i należy poczytywać je jedynie za przykład i propozycję wykończenia, wizję architektoniczną autora projektu. Ostateczne wykończenie budynku może nastąpić na wiele sposobów. Szczegółowe rozwiązania zastosowane w oferowanej dokumentacji - w tym również ilość, lokalizacje i wygląd okien, drzwi, kominów - mogą w niewielkim stopniu różnić się od prezentowanej wizualizacji budynku.

REKLAMA
Zamknij