👉 Rozgrzewające rabaty! 🔥

Projekt budynku Primavera 3 SKA1112

Dodano!
Dodano!

Warstwy

Warstwy

Rzut parteru

Powierzchnia (m²)
Tooltip
Powierzchnia pomieszczenia
to ta, z której faktycznie możesz korzystać – skosy i niskie części poddasza są liczone częściowo lub wcale.
  1. 100% dla wysokości powyżej 2,2 m,
  2. 50% dla wysokości 1,4–2,2 m,
  3. nie liczymy poniżej 1,4 m.

Powierzchnia podłogi (wartość w nawiasie)
Liczymy po całym obrysie pomieszczenia, bez względu na jego wysokość.
173,82
1. Pomieszczenie usługowe
125,15
2. Korytarz
4,79
3. Pomieszczenie socjalne
4,62
4. Wc dla personelu
3,62
5. Wc dla klientów
6,72
6. Kotłownia
9,26
7. Pomieszczenie gospodarcze
7,66
8. Schody
12
Powierzchnia (m²)
Tooltip
Powierzchnia pomieszczenia
to ta, z której faktycznie możesz korzystać – skosy i niskie części poddasza są liczone częściowo lub wcale.
  1. 100% dla wysokości powyżej 2,2 m,
  2. 50% dla wysokości 1,4–2,2 m,
  3. nie liczymy poniżej 1,4 m.

Powierzchnia podłogi (wartość w nawiasie)
Liczymy po całym obrysie pomieszczenia, bez względu na jego wysokość.
159,31
1. Schody
18,14
2. Korytarz
10,94
3. Pokój
16,88
4. Pokój dzienny + kuchnia + jadalnia
24,50
5. Łazienka
7,11
6. Korytarz
13,52
7. Łazienka
7,11
8. Pokój dzienny + kuchnia + jadalnia
28,64
9. Pokój
14,44
10. Pokój
14,04
11. Garderoba
3,99

    Usytuowanie na działce

    Czy ten projekt pasuje na
    Twoją działkę?

    Chętnie to sprawdzimy!

    Dowiedz się:

    • czy zmieści się na niej wybrany przez Ciebie dom
    • jakie parametry musi spełniać dom według miejscowego planu zagospodarowania lub warunków zabudowy (np. kąt nachylenia i typ dachu, liczba kondygnacji itp.
    • jakie inne projekty pasują na Twoją działkę – znajdziemy je dla Ciebie!

Pokoje

3

Łazienki i WC

4

Garaż

0

Min. szer. i dł. działki

17,85 x 29,10 m

Kąt dachu

25°

Konstrukcja

Murowana
więcej

Primavera 3 - SKA1112

ikona3
Pokoje (bez salonu)
ikona 4
Łazienki (z toaletami)
ikona 0
Liczba stanowisk garażowych
(z wiatą garażową)
ikona
Konstrukcja: Murowana

Projekt został
wycofany z oferty

W razie pytań prosimy o kontakt
z Centrum Obsługi Klienta
Konsultant Masz pytania?
Zadzwoń
71 715 20 60

pon.-pt. 8-21, sob. 9-17

Parter - 173,82 m²

Parter projektu Primavera 3

Zapytaj, co możesz zmienić

Powierzchnia (m²)
Tooltip
Powierzchnia pomieszczenia
to ta, z której faktycznie możesz korzystać – skosy i niskie części poddasza są liczone częściowo lub wcale.
  1. 100% dla wysokości powyżej 2,2 m,
  2. 50% dla wysokości 1,4–2,2 m,
  3. nie liczymy poniżej 1,4 m.

Powierzchnia podłogi (wartość w nawiasie)
Liczymy po całym obrysie pomieszczenia, bez względu na jego wysokość.
(173,82)
173,82
1. Pomieszczenie usługowe
125,15
2. Korytarz
4,79
3. Pomieszczenie socjalne
4,62
4. Wc dla personelu
3,62
5. Wc dla klientów
6,72
6. Kotłownia
9,26
7. Pomieszczenie gospodarcze
7,66
8. Schody
12

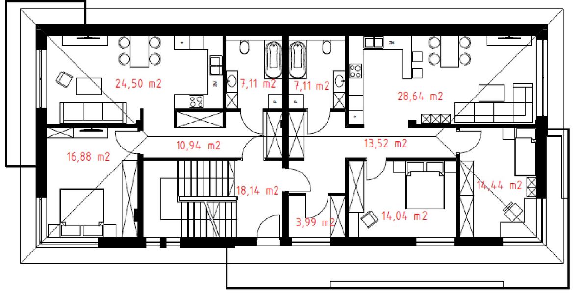
Piętro 1 - 159,31 m²

Piętro 1 projektu Primavera 3

Zapytaj, co możesz zmienić

Powierzchnia (m²)
Tooltip
Powierzchnia pomieszczenia
to ta, z której faktycznie możesz korzystać – skosy i niskie części poddasza są liczone częściowo lub wcale.
  1. 100% dla wysokości powyżej 2,2 m,
  2. 50% dla wysokości 1,4–2,2 m,
  3. nie liczymy poniżej 1,4 m.

Powierzchnia podłogi (wartość w nawiasie)
Liczymy po całym obrysie pomieszczenia, bez względu na jego wysokość.
(159,31)
159,31
1. Schody
18,14
2. Korytarz
10,94
3. Pokój
16,88
4. Pokój dzienny + kuchnia + jadalnia
24,50
5. Łazienka
7,11
6. Korytarz
13,52
7. Łazienka
7,11
8. Pokój dzienny + kuchnia + jadalnia
28,64
9. Pokój
14,44
10. Pokój
14,04
11. Garderoba
3,99

Podobne projekty (8)

Zdjęcie 1 projektu WB-0016 KRA3568
WB-0016
Dodano!
Dodano!
195,58 m²
3
2
0

3 850 zł

PROMOCJA
Zdjęcie 1 projektu U-202 PZB1091
U-202
Dodano!
Dodano!
132,95 m²
0
2
0

15 190 zł

15 990 zł

Tooltip

Cena regularna

14 391 zł najniższa cena
Tooltip

Najniższa cena z 30 dni
przed obniżką

Zdjęcie 1 projektu Budynek usługowy Office 1 DCU04 WOB1660
165,20 m²
7
1
0

6 570 zł

PROMOCJA
Zdjęcie 1 projektu Efficax I SLS1099
Efficax I
Dodano!
Dodano!
205,17 m²
0
3
0

6 999 zł

7 999 zł

Tooltip

Cena regularna

6 999 zł najniższa cena
Tooltip

Najniższa cena z 30 dni
przed obniżką

Zdjęcie 1 projektu Przychodnia weterynaryjna SLO1036
Przychodnia weterynaryjna
Dodano!
Dodano!
209 m²
0
3
1

7 500 zł

Zdjęcie 1 projektu Budynek mieszkalno-usługowy BMU-315 SKA1072
315,72 m²
4
4
1

11 499 zł

Zdjęcie 1 projektu Pawilon handlowy PH229 SKA1059
Pawilon handlowy PH229
Dodano!
Dodano!
229,27 m²
0
1
0

7 900 zł

PROMOCJA
Zdjęcie 1 projektu Renovatius I SLS1102
Renovatius I
Dodano!
Dodano!
175,10 m²
0
4
0

9 899 zł

11 399 zł

Tooltip

Cena regularna

9 899 zł najniższa cena
Tooltip

Najniższa cena z 30 dni
przed obniżką

Elewacje

Frontowa
Tylna
Lewa
Prawa

Usytuowanie na działce

Czy ten projekt pasuje na
Twoją działkę?

Chętnie to sprawdzimy!

Czy ten projekt pasuje na
Twoją działkę?

Chętnie to sprawdzimy!

Dowiedz się:

  • czy zmieści się na niej wybrany przez Ciebie dom
  • jakie parametry musi spełniać dom według miejscowego planu zagospodarowania lub warunków zabudowy (np. kąt nachylenia i typ dachu, liczba kondygnacji itp.
  • jakie inne projekty pasują na Twoją działkę – znajdziemy je dla Ciebie!
Autor: Dom to Dom

Dane techniczne projektu

Powierzchnie i wymiary Powierzchnie i wymiary

Wysokość ściany kolankowej
Tooltip
Wysokość ściany podpierającej dach. Jej wysokość wpływa na powierzchnię użytkową kondygnacji, na której się znajduje.

0,25 m

Powierzchnia zabudowy
Tooltip
Powierzchnia zajmowana przez część na- oraz nadziemną budynku liczona, jako rzut pionowy budynku na działkę.

211,70 m²

Kubatura brutto
Tooltip
Zazwyczaj jest to suma kubatur (objętości) wszystkich pomieszczeń budynku, liczonych po zewnętrznym obrysie murów (z ociepleniem).

1 695 m³

Kąt nachylenia dachu
Tooltip
Nachylenie połaci dachu głównego podawane w stopniach. Uwaga! W niektórych projektach występuje więcej niż jedno nachylenie dachu.

25°

Wysokość budynku
Tooltip
Wysokość liczona od części budynku położonej najniżej przy powierzchni terenu do najwyższego punktu dachu (kalenicy) z wyłączeniem kominów.

9,85 m

Min. szerokość działki
Tooltip
Najmniejsza możliwa szerokość działki niezbędna do wybudowania wybranego domu. Składa się z szerokości elewacji domu powiększonej z obu stron o 3 m dla ściany bez otworów drzwiowych/okiennych lub 4 m, dla ściany z otworami.

17,85 m

Min. długość działki
Tooltip
Najmniejsza możliwa długość działki niezbędna do wybudowania wybranego domu. Składa się z długości elewacji domu powiększonej z obu stron o 3 m dla ściany bez otworów drzwiowych/okiennych lub 4 m, dla ściany z otworami.

29,10 m

Energooszczędność Energooszczędność

Oze Czym jest OZE (Odnawialne Źródło Energii)?
Warunki techniczne

Projekt zgody z WT 2021

Technologia i konstrukcja Technologia i konstrukcja

Konstrukcja

Murowana

Opis szczegółowy

Ściany zewnętrzne: dwuwarstwowe, bloczek gazobetonowy + styropian Strop: nad parterem i nad piętrem płyta żelbetowa monolityczna Schody: żelbetowe, monolityczne ze spocznikiem Ścianka kolankowa: 25cm Dach: czterospadowy, nachylenie 25º, pokrycie z blachy płaskiej,

Strop

Nad parterem i nad piętrem płyta żelbetowa monolityczna

Reklama
Okna i drzwi tarasowe

Nowoczesne okna PVC i aluminiowe WIŚNIOWSKI – doskonała izolacja, elegancki design i niezrównana trwałość.

Wiśniowski
Sprawdź parametry!
Okna dachowe

Oferujemy bezpłatne konsultacje w zakresie wszystkich rozwiązań VELUX. Wyceny, porady dotyczące doboru okien i rolet zewnętrznych - sprawdź!

Velux
Sprawdź szczegóły
Dach

Producent stalowych pokryć dachowych i elewacyjnych - 40 lat doświadczenia. Zbuduj solidny dach z nami!

Blachy Pruszyński
Sprawdź szczegóły
Płytki ceramiczne i gresy

Od małych formatów po wielkoformatowe gresy. Marmur, beton, drewno, kamień, lastryko czy cegiełki zamówisz wygodnie online z szybką dostawą.

Ceramzet
Sprawdź ofertę
Drzwi

Ciepłe drzwi WIŚNIOWSKI z kontrolą dostępu. Szeroka gama wzorów i kolorów.

Wiśniowski
Wybierz najlepsze
Bramy garażowe

Automatyczne bramy garażowe segmentowe i uchylne WIŚNIOWSKI na wymiar i z systemem smart home w standardzie.

Wiśniowski
Sprawdź ofertę!
Armatura i ceramika łazienkowa

Topowi producenci. Baterie łazienkowe, zestawy natynkowe i podtynkowe, umywalki, wanny, miski WC oraz kabiny zamówisz kompleksowo online.

Ceramzet II
Dowiedz się więcej
Rekuperacja

Alnor - kompletny system rekuperacji. Dobierz idealne rozwiązanie dla Twojego domu!

Alnor
Dobierz rekuperator
Gruntowe pompy ciepła

Przeprowadzimy kompletną instalację najbardziej oszczędnego źródła ciepła w Twoim nowym domu - gruntowej pompy ciepła. Od dokumentacji, pozwoleń, po odwierty i instalację.

Geothermal Solutions
Dowiedz się więcej

Opis projektu budynku
Primavera 3

PRIMAVERA to projekt budynku usługowo - mieszkalnego o prostej i ponadczasowej bryle z szerokim wachlarzem możliwości adaptacyjnych w zależności od zapotrzebowania. Parter budynku został zaprojektowany z myślą o prowadzeniu usług, np. handlu detalicznego. W tym celu przewidziano jednoprzestrzenną salę sprzedaży z której zapewniono bezpośredni dostęp do pomieszczeń socjalno – szatniowych oraz węzła sanitarnego przeznaczonego dla personelu. Dodatkowo ze względu na powierzchnię usługową przewidziano toaletę dla klientów, która została dostosowana do potrzeb osób niepełnosprawnych. Układ funkcjonalny budynku uzupełnia pomieszczenie kotłowni, które jest dostępne z zewnątrz oraz pomieszczenie gospodarcze zlokalizowane w przestrzeni pod schodami. Piętro budynku zostało przewidziane w trzech wariantach: Wariant 3(prezentowany)- na piętrze budynku wydzielono dwa lokale mieszkalne o powierzchni 59,43m2 i 77,75m2. W apartamentach w zależności od powierzchni wydzielono jedną lub dwie sypialnie. Dodatkowo każdy z nich posiada przestronny pokój dzienny połączony z aneksem kuchennym oraz funkcjonalną łazienkę. W apartamencie trzypokojowym przewidziano również miejsce na garderobę. Pozostałe dostępne warianty projektu to: Wariant 1 – wydzielono 2 lokale usługowe, które mogą zostać wykorzystane do prowadzenia nieuciążliwej działalności gospodarczej, takiej jak biuro. Każdy z lokali posiada dostęp do zaplecza socjalnego oraz węzła sanitarnego. Przewidziano również toaletę dla klientów, która została przystosowana do wymogów osób niepełnosprawnych. Wariant 2 – piętro budynku zostało podzielone na dwie części. Część pierwszą przewidziano pod lokal biurowy z dostępem do zaplecza sanitarnego i socjalnego. W części drugiej zaplanowano salon fryzjerski oraz salon kosmetyczny ze stanowiskiem do wykonywania zabiegów na twarz i stanowiskiem do manicure. Obsługa salonów będzie posiadała dostęp do wydzielanego pomieszczenia socjalno – szatniowego oraz węzła sanitarnego, który został przystosowany do potrzeb osób niepełnosprawnych. Ze względu na profil działalności wydzielono pomieszczenie porządkowe z miejscem na lodówkę służącą do przechowywania zużytych odpadów kosmetycznych. Niewątpliwą zaletą prezentowanego obiektu jest elastyczność w dostosowaniu go do indywidualnych potrzeb. Prezentowane warianty nie wyczerpują możliwości aranżacyjnych i stanowią jedynie przykład w jaki sposób wykorzystać dostępną powierzchnię.
Czytaj więcej

Polecani producenci

Prefabrykowane konstrukcje dachowe

tło producenta

WIĄZAR POLSKA

Zobacz więcej

Sprawdź nową generację okien GREENVIEW

tło producenta

FAKRO

Sprawdź nową generację okien GREENVIEW

Styropian, tynki, farby, kleje

tło producenta

Termo Organika

Poznaj super jakość

Okna, drzwi, osłony przeciwsłoneczne

tło producenta

Aluprof

Sprawdź ofertę

Kompletne systemy rekuperacji

tło producenta

Alnor

Dowiedz się więcej

Sprawdź nowy system DACHRYNNA

tło producenta

Galeco

Sprawdź ofertę
Zobacz więcej

Społeczność projektu budynku
Primavera 3 w budowie

Dołącz do społeczności osób, które budują ten dom lub są zainteresowane jego budową.

  • Oglądaj zdjęcia z budowy
  • Zadawaj pytania
  • Wymieniaj się doświadczeniami

Opinie o projekcie budynku Primavera 3

Ocena

Ten projekt nie ma jeszcze opinii, bądź pierwszy!

Dodaj opinię

ASYSTENT WYBORU PROJEKTU

Szukasz idealnego projektu? Znajdziemy go dla Ciebie!

Doradca na podstawie Twoich wskazówek przygotuje spersonalizowaną listę projektów

Graficzne opracowanie rzutów poglądowych widocznych na karcie projektu zostało wykonane przez Extradom.pl. Prezentowane przez Extradom.pl wizualizacje wykonane zostały przez autora projektu i należy poczytywać je jedynie za przykład i propozycję wykończenia, wizję architektoniczną autora projektu. Ostateczne wykończenie budynku może nastąpić na wiele sposobów. Szczegółowe rozwiązania zastosowane w oferowanej dokumentacji - w tym również ilość, lokalizacje i wygląd okien, drzwi, kominów - mogą w niewielkim stopniu różnić się od prezentowanej wizualizacji budynku.

REKLAMA
Zamknij